//
ТехЛит.ру
- крупнейшая бесплатная электронная интернет библиотека для "технически умных" людей.
WWW.TEHLIT.RU - ТЕХНИЧЕСКАЯ ЛИТЕРАТУРА

:: Алготрейдинг::


АЛГОТРЕЙДИНГ
шаг за шагом
с нуля по урокам!

Торговые роботы на PYTHON, BackTrader,
Pandas, Pine Script для TradingView. Связка с брокерами, телеграм и легкими приложениями.


ПРАВИТЕЛЬСТВО МОСКВЫ

МОСКОМАРХИТЕКТУРА

РЕКОМЕНДАЦИИ
по проектированию
комплексных
центров
социального
обслуживания

2005

ПРЕДИСЛОВИЕ

1. РАЗРАБОТАНЫ: ГУП МНИИП «Моспроект-4» (архитекторы Любомудрова К.И., Кряжевских М.А., инженер Тихомирова И.Б.).

2. ПОДГОТОВЛЕНЫ К УТВЕРЖДЕНИЮ И ИЗДАНИЮ

Управлением перспективного проектирования, нормативов и координации проектно-изыскательских работ Москомархитектуры.

3. СОГЛАСОВАНЫ: Департаментом социальной защиты населения города Москвы, Москомархитектурой.

4. УТВЕРЖДЕНЫ И ВВЕДЕНЫ В ДЕЙСТВИЕ приказом Москомархитектуры от 11.02.05 № 20.

СОДЕРЖАНИЕ

ВВЕДЕНИЕ

Комплексные центры социального обслуживания (далее КЦСО) являются учреждениями, предназначенными для адресного обслуживания граждан, нуждающихся в социальной поддержке, путем оказания социальной, бытовой, медицинской, психологической, юридической и иной помощи.

1. ОБЛАСТЬ ПРИМЕНЕНИЯ.

1.1. Настоящие Рекомендации разработаны для города Москвы в дополнение к действующим на ее территории нормативным документам по проектированию и строительству и распространяются на проектирование новых и реконструкцию существующих КЦСО.

1.2. Настоящие Рекомендации устанавливают основные положения по размещению, участку, территории, архитектурно-планировочным решениям и инженерному оборудованию КЦСО.

1.3. Проектирование КЦСО должно вестись в соответствии с положениями настоящих Рекомендаций, а также требованиями нормативно-методических документов в строительстве, действующих на территории города Москвы (Раздел 2 настоящих Рекомендаций).

2. НОРМАТИВНЫЕ ССЫЛКИ.

В настоящих Рекомендациях приведены ссылки на следующие нормативно-методические документы:

СНиП 2.08.02-89* «Общественные здания и сооружения»;

СНиП 21-01-97* «Пожарная безопасность зданий и сооружений»;

СНиП 2.07.01-89* «Градостроительство. Планировка и застройка городских и сельских поселений»;

НПБ 88-2001 «Установки пожаротушения и сигнализации. Нормы и правила проектирования»;

СНиП 41-01-2003 «Отопление, вентиляция и кондиционирование воздуха»;

СНиП 2.04.01-85* «Внутренний водопровод и канализация зданий»;

СНиП 23-05-95* «Естественное и искусственное освещение»;

СНиП 35-01-2001 «Доступность зданий и сооружений для маломобильных групп населения»;

СанПиН 2.2.1/2.1.1.1076-01 «Гигиенические требования к инсоляции и солнцезащите помещений жилых и общественных зданий и территорий»;

СанПиН 2.2.1/2.1.1.1278-03 «Гигиенические требования к естественному, искусственному и совмещенному освещению в жилых и общественных зданиях»;

СанПиН 2.4.2.1178-02 «Гигиенические требования к условиям обучения школьников в общеобразовательных учреждениях»;

СанПиН 2.1.2.1188-03 «Плавательные бассейны. Гигиенические требования к устройству, эксплуатации и качеству воды. Контроль качества»;

СН 441-72* «Указания по проектированию ограждений площадок и участков предприятий, зданий и сооружений»;

МГСН 4.12-97 «Лечебно-профилактические учреждения»;

МГСН 1.01-99 «Нормы и правила проектирования планировки и застройки г. Москвы»;

МГСН 2.01-99 «Энергосбережение в зданиях»;

МГСН 2.06-99 «Естественное, искусственное и совмещенное освещение»;

«Рекомендации по проектированию социально-реабилитационных центров для несовершеннолетних», М., 2004 г.;

«Рекомендации по проектированию образовательных учреждений для детей, нуждающихся в психолого-педагогической и медико-социальной помощи», М., 2000 г.;

«Рекомендации по проектированию домов милосердия для инвалидов среднего и старшего возраста», М., 2003 г.;

«Рекомендации по проектированию кризисных центров для женщин», М., 2003 г.;

«Пособие по проектированию учреждений здравоохранения к СНиП 2.08.02-89*»;

«Пособие по проектированию окружающей среды для людей с физическими ограничениями», М., 1997 г., Выпуск 2;

«Проектирование бассейнов». Справочное пособие к СНиП 2.08.02-89*, М., Стройиздат, 1991 г.;

«Проектирование клубов». Справочное пособие к СНиП 2.08.02-89*.

3. ТЕРМИНЫ И ОПРЕДЕЛЕНИЯ.

В настоящих Рекомендациях употребляются следующие понятия:

государственная социальная помощь - предоставление малоимущим семьям или малоимущим одиноко проживающим гражданам за счет средств соответствующих бюджетов социальных пособий, субсидий, компенсаций, жизненно необходимых товаров;

социальные службы - предприятия и учреждения независимо от форм собственности, представляющие социальные услуги;

клиент социальной службы - гражданин, находящийся в трудной жизненной ситуации, которому в связи с этим предоставляются социальные услуги;

социальные услуги - действия по оказанию клиенту социальной помощи, предусмотренной законодательством;

трудная жизненная ситуация - ситуация, объективно нарушающая жизнедеятельность гражданина (инвалидность, неспособность к самообслуживанию в связи с преклонным возрастом, болезнью, сиротство, безнадзорность, малообеспеченность, безработица, отсутствие определенного места жительства, конфликты и жестокое обращение в семье, одиночество и т.п.), которую он не может преодолеть самостоятельно;

социальное обслуживание - деятельность социальных служб по социальной поддержке, оказанию социально-бытовых, социально-медицинских, психолого-педагогических, социально-правовых услуг и материальной помощи, проведению социальной адаптации и реабилитации граждан, находящихся в трудной жизненной ситуации;

социальное обслуживание на дому - временное или постоянное оказание социально-бытовой помощи в надомных условиях инвалидам и гражданам пожилого возраста, частично утратившим способности к самообслуживанию и нуждающимся в посторонней поддержке;

социально-медицинское обслуживание на дому - социально-бытовое обслуживание и оказание доврачебной медицинской помощи в надомных условиях гражданам пожилого возраста и инвалидам, частично или полностью утратившим способность к самообслуживанию и страдающими тяжелыми заболеваниями;

безнадзорный - несовершеннолетний, контроль за поведением которого отсутствует вследствие неисполнения или ненадлежащего исполнения обязанностей по его воспитанию, обучению и (или) содержанию со стороны родителей или законных представителей либо должностных лиц;

несовершеннолетний, оставшийся без попечения родителей, - лицо в возрасте до восемнадцати лет, которое вследствие объективных причин лишено на время опеки родителей или законных представителей и нуждающееся в социальной помощи и (или) психологической реабилитации;

семья, находящаяся в социально опасном положении, - семья, имеющая детей, находящихся в социально опасном положении, а также семья, где родители или законные представители несовершеннолетних не исполняют своих обязанностей по их воспитанию, обучению и (или) содержанию, и (или) отрицательно влияют на их поведение либо жестоко обращаются с ними;

профилактика безнадзорности и правонарушений несовершеннолетних - система социальных, правовых, педагогических и иных мер, направленных на выявление и устранение причин и условий, способствующих безнадзорности, беспризорности, правонарушениям и антиобщественным действиям несовершеннолетних, осуществляемых в совокупности с индивидуальной профилактической работой с несовершеннолетними и семьями, находящимися в социально опасном положении.

4. ОБЩИЕ ПОЛОЖЕНИЯ.

4.1. Основной задачей КЦСО является проведение социальных, оздоровительных, педагогических, профилактических и иных мероприятий, направленных на социальную поддержку и обслуживание различных групп населения.

4.2. Для выполнения этой задачи КЦСО осуществляет следующие функции:

- выявление лиц, нуждающихся в социальной защите, выявление причин и факторов социального неблагополучия конкретных семей, лиц пожилого возраста и инвалидов и их потребности в социальной помощи;

- проведение учета и осуществление прогнозирования количества лиц, нуждающихся в социальной поддержке и обслуживании, подготовка предложений по развитию сферы социальных услуг;

- оказание социальной, бытовой, медицинской, психологической, консультативной и иной помощи гражданам;

- предоставление социальной помощи на дому лицам, нуждающимся в этом виде обслуживания;

- организация дневного пребывания лиц пожилого возраста, инвалидов и несовершеннолетних;

- организация социального обслуживания и социальной защиты различных групп населения;

- осуществление социального патронажа семей и детей, нуждающихся в социальной помощи, реабилитации и поддержке;

- оказание помощи семьям в решении вопросов по преодолению сложных жизненных ситуаций;

- оказание социальной поддержки и осуществление мероприятий по адаптации детей-сирот и детей, оставшихся без попечения родителей, выпускников детских домов, в возрасте до 23 лет;

- осуществление социальной реабилитации детей и подростков с ограниченными умственными и физическими возможностями;

- проведение мероприятий по профилактике безнадзорности, алкоголизма и наркомании среди несовершеннолетних, защите их прав.

4.3. Деятельность КЦСО определяется следующим основным принципом - возможность оперативной корректировки содержания, форм и методов социального обслуживания различных групп населения в соответствии с изменением контингента обслуживаемых и их потребности в различных видах социальной помощи.

4.4. Контингент обслуживаемых КЦСО составляют различные группы населения, нуждающиеся в социальной государственной поддержке.

4.5. Для осуществления функций в КЦСО, как правило, создаются следующие структурные подразделения:

- приема граждан, обработки информации, анализа и прогнозирования;

- консультативной помощи;

- социального обслуживания на дому;

- социально-медицинского обслуживания на дому;

- дневного пребывания граждан пожилого возраста и инвалидов;

- дневного пребывания несовершеннолетних;

- срочного социального обслуживания;

- социальной помощи семье и детям;

- профилактики безнадзорности несовершеннолетних;

- социальной реабилитации инвалидов;

- реабилитации несовершеннолетних с ограниченными физическими и умственными возможностями;

- психолого-педагогической помощи;

- помощи женщинам, оказавшимся в трудной жизненной ситуации;

- технических средств реабилитации;

- торгово-бытового обслуживания малообеспеченных граждан;

- социальной столовой.

Необходимость тех или иных структурных подразделений в составе КЦСО в каждом конкретном случае определяются заданием на проектирование в соответствии с составом контингента, потребностью обслуживаемой территории, наличием на данной территории уже существующих учреждений социальной помощи населению и т.п.

4.6. Пропускная способность КЦСО определяется заданием на проектирование в каждом конкретном случае в зависимости от потребности населения обслуживаемой территории и наличия тех или иных структурных подразделений в составе центра.

4.7. Состав и площади помещений структурных подразделений КЦСО определяются в каждом конкретном случае заданием на проектирование с учетом положений Раздела 6 настоящих Рекомендаций.

5. ПОЛОЖЕНИЯ ПО РАЗМЕЩЕНИЮ, УЧАСТКУ И ТЕРРИТОРИИ.

5.1. КЦСО следует размещать порайонно, в селитебной зоне, в 10-ти минутной доступности от остановок общественного транспорта.

5.2. Размеры и составы зон участков определяются заданием на проектирование, с учетом положений настоящего раздела и в соответствии с перечнем структурных подразделений, составляющих КЦСО.

5.3. При размещении всех структурных подразделений, перечисленных в п. 4.5. настоящих Рекомендаций, в одном здании, КЦСО следует размещать на обособленном земельном участке. Здание должно располагаться так, чтобы иметь возможность организовать основные входы непосредственно с улицы.

5.4. Площадь участка КЦСО принимается из расчета 60 м2 на 1 место в отделении дневного пребывания граждан пожилого возраста и инвалидов (в соответствии с положениями «Рекомендаций по проектированию домов милосердия для инвалидов среднего и старшего возраста») и из расчета 100 - 120 м2 на 1 место в отделении дневного пребывания несовершеннолетних (в соответствии с положениями «Рекомендаций по проектированию социально-реабилитационных центров для несовершеннолетних»).

5.5. В составе территории участка КЦСО предусматриваются следующие зоны:

- отдыха;

- физкультурно-оздоровительная;

- хозяйственная.

5.6. В зоне отдыха для лиц пожилого возраста и инвалидов, посещающих отделение дневного пребывания, рекомендуется предусматривать прогулочную территорию, с мощеными площадками, теневыми навесами и скамейками, асфальтированными дорожками для прогулок с использованием механических средств передвижения. В обоснованных случаях допускается предусматривать беседку для проведения массовых культурных мероприятий на воздухе площадью не менее 100 м2.

5.7. В физкультурно-оздоровительной зоне для детей и подростков, посещающих отделение дневного пребывания, рекомендуется предусматривать игровые и спортивные площадки.

Площадь игровых площадок следует принимать 6 - 8 м2 на 1 ребенка из расчета одновременного присутствия всех детей дошкольного возраста и 40 - 50 % детей школьного возраста. Площадки должны иметь травянистый или песчаный покров. Теневые навесы - 2 м2 на 1 место - должны примыкать к игровым площадкам и быть рассчитаны на проведение игр в плохую погоду, а также на возможность проведения занятий с детьми на воздухе. Теневые навесы должны иметь дощатый пол и ветрозащитные стенки с двух-трех сторон.

На игровых площадках для детей дошкольного и младшего школьного возраста рекомендуется предусматривать следующее оборудование: качели, качалки, грибки, скамейки для отдыха, песочные дворики с ящиками для хранения песка, столы для игр с песком, а также оборудование для развития всех основных видов движения (для лазания, скатывания, перелезания).

Для детей среднего и старшего школьного возраста рекомендуется предусматривать: комбинированную площадку для спортивных игр 60´40 м; гимнастическую площадку 15´16 м.

В том случае, если в контингент воспитанников входят несовершеннолетние с ограниченными возможностями, рекомендуется предусматривать игровую площадку двигательной коррекции, набор оборудования которой уточняется заданием на проектирование в соответствии с физическими дефектами воспитанников.

В обоснованных случаях допускается заменять спортивные площадки на легкоатлетическое спортядро с круговой беговой дорожкой длиной 250 м.

Состав и количество игровых и физкультурных площадок в каждом конкретном случае уточняется заданием на проектирование.

5.8. Площадь озеленения должна составлять не менее 35 % от общей площади участка. Озеленение участка включает групповые и рядовые посадки деревьев и кустарников, декоративные растения, цветники и газоны.

5.9. На территории хозяйственной зоны допускается размещать гараж служебных машин, навесы для инвентаря и оборудования, мусоросборники и т.п. Гараж рекомендуется проектировать на 3 машины (1 - легковая, 1 - грузовая типа «газель», 1 - автобус). Автобус должен быть приспособлен к перевозке инвалидов, использующих кресла-коляски.

5.10. Земельный участок должен иметь ограждение высотой не менее 1,5 - 2 м с проходной для охраны в соответствии с требованиями СН 441-72*.

5.11. На участок КЦСО должен быть предусмотрен один основной въезд (хозяйственный), размещаемый со стороны производственных помещений кухни, и второй - эвакуационный (пожарный).

5.12. Участок КЦСО должен быть освещен в соответствии с требованиями СНиП 23-05-95.

5.13. Планировка участка должна обеспечивать подъезды с твердым покрытием к хозяйственной зоне, подъезды пожарных машин ко всем зданиям и блокам, а также объезды вокруг них в соответствии с положениями СНиП 21-01-97*.

5.14. Для автомашин сотрудников КЦСО следует предусматривать открытую стоянку в соответствии с требованиями МГСН 1.01-99.

6. ПОЛОЖЕНИЯ ПО АРХИТЕКТУРНО-ПЛАНИРОВОЧНЫМ РЕШЕНИЯМ И ИНЖЕНЕРНОМУ ОБОРУДОВАНИЮ.

Общие требования.

6.1. В состав КЦСО входят следующие функциональные группы помещений:

- вестибюльная;

- отделения приема граждан, обработки информации, анализа и прогнозирования;

- консультативного отделения;

- отделения социального обслуживания на дому;

- отделения социально-медицинского обслуживания на дому;

- отделения дневного пребывания граждан пожилого возраста и инвалидов;

- отделения дневного пребывания несовершеннолетних;

- отделения срочного социального обслуживания;

- отделения технических средств реабилитации;

- отделения социальной помощи семье и детям;

- отделения профилактики безнадзорности несовершеннолетних;

- отделения социальной реабилитации инвалидов;

- отделения реабилитации несовершеннолетних с ограниченными физическими и умственными возможностями;

- отделения психолого-педагогической помощи;

- отделения помощи женщинам, оказавшимся в трудной жизненной ситуации;

- отделения торгово-бытового обслуживания малообеспеченных граждан;

- досуговая;

- питания;

- административно-хозяйственная.

Архитектурно-планировочные решения КЦСО должны учитывать требования функционального зонирования помещений с учетом осуществляемой в них деятельности.

6.2. Основными функциональными требованиями к планировочной организации здания КЦСО являются требования обособления, изоляции и, одновременно, удобных технологических и коммуникационных связей между отдельными группами помещений. Допускается предусматривать проходы через отдельные функциональные группы помещений, исключая помещения групп дневного пребывания, отделения торгово-бытового обслуживания малообеспеченных граждан и социальной столовой, которые проектируются непроходными. Функциональная связь различных групп помещений может осуществляться через общее коммуникационное пространство.

6.3. При проектировании КЦСО рекомендуется пользоваться планировочными схемами отдельных помещений, приведенными в Приложении к настоящим Рекомендациям. Рекомендуемые площади помещении в зависимости от конкретных планировочных и конструктивных решений допускается корректировать (уменьшать или увеличивать) не более чем на 15 %, в пределах суммарной расчетной площади по КЦСО в целом.

6.4. Функциональные группы помещений могут размещаться либо в отдельных корпусах или блоках, непосредственно примыкающих друг к другу или соединенных отапливаемыми переходами. В случае непосредственного примыкания корпусов (блоков) должны предусматриваться пожарные отсеки площадью не более 5000 м2, разделяемые противопожарными стенами 1-го типа (в соответствии с требованиями СНиП 21-01-97*), а из каждого пожарного отсека должно быть предусмотрено не менее двух эвакуационных выходов, один из выходов допускается предусматривать в соседний блок.

6.5. Здания КЦСО, как правило, не должны превышать 4 этажей (СНиП 2.08.02-89*). В районах с затесненной застройкой допускается увеличение этажности по согласованию с органами Госпожнадзора.

6.6. Объемно-планировочная структура здания должна обеспечивать оптимальные условия осуществления протекающих в нем функциональных процессов, отражать специфику учреждения и обеспечивать соответствующие условия эксплуатации и необходимую связь с участком.

6.7. Эргономические параметры здания КЦСО (входы в здание, лифты, ширина проходов, дверных проемов, лестниц, пандусов, необходимые размеры разворотов, поворотов, отсутствие порогов и т.п.), необходимые для жизнеобеспечения инвалидов, принимаются в соответствии с требованиями СНиП 35-01-2001 и Пособия по проектированию окружающей среды для людей с физическими ограничениями (Выпуск 2).

Ширина лестничных маршей должна быть не менее 1,35 м. Лестничные марши должны быть оборудованы поручнями на разной высоте (0,9 м и 0,7 - 0,75 м).

Ширину дверей основных помещений следует принимать не менее 1 м.

Ширину коридоров в группах помещений административно-хозяйственного назначения следует принимать не менее 1,4 м; а во всех группах помещений, рассчитанных на работу с посетителями - не менее 2,2 м.

На путях передвижения посетителей КЦСО следует предусматривать зоны отдыха. Ширина рекреационных зон должна приниматься не менее 4 м (с учетом ширины коридора).

6.8. Высота наземных этажей здания КЦСО должна быть не менее 3,3 м (от пола до пола вышележащего этажа). Высота зрительного зала принимается по техническим требованиям, высота бассейна - 6 м (до низа несущих конструкций).

6.9. Внутренняя отделка помещений КЦСО должна быть выполнена из материалов, разрешенных для применения органами государственного санитарного надзора, допускающих влажную уборку, а также применение дезинфицирующих средств.

6.10. Помещения, в которых сосредоточены материальные ценности, должны иметь металлические двери и решетки на окнах.

6.11. Все помещения групп дневного пребывания и реабилитации несовершеннолетних, рассчитанные на пребывание детей, должны быть оборудованы умывальниками.

6.12. В помещениях рекреаций, фойе, и холлах рекомендуется организовывать уголки релаксации с зелеными насаждениями, фонтанчиками, аквариумами и т.д.

6.13. Естественное, искусственное и совмещенное освещение в помещениях следует проектировать в соответствии с требованиями СанПиН 2.2.1/2.1.1.1278-03.

6.14. Для организации мобильных форм ведения занятий в помещениях дневного пребывания, реабилитации и психолого-педагогической помощи, рассчитанных на пребывание детей, необходимо предусматривать равномерное освещение по всей рабочей плоскости в помещении за счет дополнительного верхнего света или дополнительного искусственного освещения в глубине помещения.

6.15. Допускается не предусматривать естественного освещения:

- в зрительном зале;

- в коммуникациях и коридорах, не являющихся рекреационными помещениями;

- в умывальных, душевых и уборных при тренажерных и гимнастических залах, санитарных узлах для персонала, комнатах личной гигиены женщин;

- в буфете для персонала;

- в кладовых инвентаря, комнатах хранения уборочного инвентаря;

- в помещениях технических служб.

В зависимости от архитектурно-планировочного решения допускается проектировать с искусственным освещением санитарные узлы для престарелых и инвалидов (при соблюдении необходимой кратности обмена воздуха).

6.16. Санитарные узлы в КЦСО проектируются с учетом специфики работы каждого подразделения в соответствии с действующими нормативными документами. СанПиН 2.4.2.782-99, МГСН 4.12-97, «Рекомендациями по проектированию образовательных учреждений для детей, нуждающихся в психолого-педагогической и медико-социальной помощи».

Санитарные узлы для персонала следует размещать поэтажно. В состав оборудования санитарных узлов следует включать: унитаз и умывальник.

Кабины личной гигиены для женщин (для персонала) рекомендуется размещать в административно-хозяйственной группе помещений. В состав оборудования кабин входят: унитаз, умывальник, бидэ.

6.17. Специальные устройства и приспособления для обеспечения инвалидам возможности пользования санитарными приборами и оборудованием рекомендуется проектировать в соответствии с требованиями СНиП 35-01-2001 и Пособия по проектированию окружающей среды для людей с физическими ограничениями (Выпуск 2).

6.18. В комнатах хранения уборочного инвентаря следует предусматривать умывальник и слив. Данные помещения следует размещать поэтажно.

6.19. Инсоляцию помещений с длительным пребыванием посетителей КЦСО следует предусматривать в соответствии с требованиями СанПиН 2.2.1/2.1.1.1076-01.

6.20. Отопление и вентиляцию здания следует проектировать в соответствии с требованиями СНиП 41-01-2003 и МГСН 2.01-99.

6.21. Энергоснабжение, электрооборудование, электрическое освещение здания и наружное освещение территории следует предусматривать в соответствии с требованиями СанПиН 2.2.1/2.1.1.1278-03, МГСН 2.06-99, МГСН 2.01-99.

6.22. Проектирование здания КЦСО должно осуществляться с учетом принципов максимального энергосбережения в соответствии с требованиями МГСН 2.01-99.

6.23. Здание следует проектировать не менее II степени огнестойкости в соответствии с СНиП 21-01-97*.

6.24. В здании должна быть предусмотрена автоматическая пожарная сигнализация в соответствии с требованиями НПБ 88-2001. Сигнал о срабатывании системы АПС (автоматической пожарной сигнализации) выводится в помещение с круглосуточным пребыванием персонала.

6.25. На путях эвакуации из здания должно быть предусмотрено аварийное и эвакуационное освещение, проектируемое в соответствии с требованиями СНиП 21-01-97* и СНиП 23-05-95.

Вестибюльная группа помещений.

6.26. Рекомендуемые состав и площади помещений вестибюльной группы КЦСО приведены в таблице 6.1.

6.27. Главный вестибюль рекомендуется проектировать с входом непосредственно с улицы. Главный вестибюль предназначен для пользования посетителями всех отделений КЦСО, кроме отделений дневного пребывания, социальной столовой и отделения торгово-бытового обслуживания малообеспеченных граждан, а также персоналом.

6.28. При помещении главного вестибюля рекомендуется предусматривать гардероб для верхней одежды посетителей с вешалками консольного типа.

6.29. Гардероб для верхней одежды персонала рекомендуется предусматривать в отдельном помещении при вестибюле.

6.30. В состав помещений главного вестибюля рекомендуется включать помещение справочной службы («одного окна»).

6.31. Вестибюли отделений дневного пребывания рекомендуется проектировать с двумя входами: непосредственно с улицы и с участка.

6.32. При помещении вестибюля отделения дневного пребывания граждан пожилого возраста и инвалидов рекомендуется предусматривать гардероб для верхней одежды посетителей с вешалками консольного типа.

6.33. При помещении вестибюля отделения дневного пребывания несовершеннолетних следует предусматривать гардероб для детской одежды, оборудованный вешалками консольного типа. Гардероб рекомендуется оборудовать сушильными шкафами для одежды и обуви с подогревом и вытяжкой.

6.34. Вестибюль социальной столовой рекомендуется проектировать с входом непосредственно с улицы. В составе помещений вестибюля рекомендуется предусматривать гардероб для верхней одежды посетителей с вешалками консольного типа.

6.35. При главном вестибюле, вестибюлях отделений дневного пребывания и вестибюле социальной столовой следует предусматривать посты дежурных администраторов. В состав помещений главного вестибюля следует включать помещение для отдыха дежурных администраторов.

6.36. Вестибюль отделения торгово-бытового обслуживания малообеспеченных граждан рекомендуется проектировать с входом непосредственно с улицы. В вестибюле следует предусматривать место для дежурного администратора-регистратора.

6.37. Входы в вестибюли и служебные входы в здание следует оборудовать тамбурами в соответствии с требованиями СНиП 35-01-2001.

6.38. Входы в здание следует оборудовать пандусами с продольным уклоном не более 1:10 при ширине не менее 1,8 м.

Таблица 6.1.

Рекомендуемые состав и площади помещений вестибюльной группы.

№ п.п.

Наименование помещений

Площадь помещений, м2

Примечание

На 1 место

Всего

1

2

3

4

5

Главный вестибюль

1.

Вестибюль

0,5

 

С учетом численности персонала и посетителей

2.

Гардероб для верхней одежды посетителей

0,1

-

 

3.

Гардероб для верхней одежды персонала

-

20

 

4.

Справочная

-

10

 

5.

Помещение отдыха дежурных администраторов

-

10

В ночное время используется для вахтера

6.

Санитарный узел с умывальником в шлюзе

-

4

 

7.

Комната хранения уборочного инвентаря

-

4

 

Вестибюль отделения дневного пребывания граждан пожилого возраста и инвалидов

1.

Вестибюль

0,5

 

На 100 % вместимости отделения

2.

Гардероб для верхней одежды посетителей

0,1

-

-«-

3.

Санитарный узел с умывальником в шлюзе

-

4

 

4.

Комната хранения уборочного инвентаря

-

4

 

Вестибюль отделения дневного пребывания несовершеннолетних

1.

Вестибюль

0,5

-

На 100 % вместимости отделения

2.

Гардероб для верхней одежды несовершеннолетних

0,15

-

-«-

3.

Санитарный узел с умывальником в шлюзе

-

3

 

4.

Комната хранения уборочного инвентаря

-

4

 

Вестибюль отделения торгово-бытового обслуживания малообеспеченных граждан

1.

Вестибюль

-

12

 

2.

Санитарный узел с умывальником в шлюзе

-

3

 

3.

Комната хранения уборочного инвентаря

-

4

 

Вестибюль социальной столовой

1.

Вестибюль

0,5

 

На 100 % вместимости отделения

2.

Гардероб для верхней одежды посетителей

0,1

-

-«-

3.

Санитарный узел с умывальником в шлюзе

-

4

 

4.

Комната хранения уборочного инвентаря

-

4

 

Отделение приема граждан, обработки информации, анализа и прогнозирования.

6.39. Рекомендуемые площади помещений отделения приема граждан, обработки информации, анализа и прогнозирования приведены в таблице 6.2. Состав помещений отделения определяется заданием на проектирование.

6.40. Данное отделение предназначено для выявления потребности различных групп населения на обслуживаемой территории в конкретных видах социальных услуг, информирования граждан об услугах, предоставляемых КЦСО, анализа реальной и перспективной потребности в них.

6.41. Основными направлениями деятельности отделения являются:

- прием граждан в КЦСО, выявление имеющихся у них потребностей в социальных услугах и направление их в соответствующие функциональные отделения (по принципу «одного окна»);

- участие в разработке мероприятий по организации социального обслуживания различных групп населения, нуждающихся в государственной социальной поддержке;

- информационная работа;

- содействие в решении вопросов занятости населения;

- разработка и внедрение новых форм и видов социального обслуживания с учетом социально-экономических условий обслуживаемой территории;

- рекламно-пропагандистская, аналитико-пропагандистская и методическая работа.

6.42. Группу помещений отделения приема граждан, обработки информации, анализа и прогнозирования следует размещать в непосредственной близости от группы помещений главного вестибюля.

6.43. Данную группу помещений составляют кабинеты специалистов двух типов:

- не предназначенные для работы с посетителями;

- в которых непосредственно осуществляется первичный прием посетителей.

Количество кабинетов в каждом конкретном случае определяется заданием на проектирование в зависимости от числа обслуживаемого населения.

6.44. Рекомендуемый состав оборудования кабинетов того или другого назначения: столы специалистов, компьютерные столы, компьютеры, стеллажи, стулья.

Таблица 6.2.

Рекомендуемые состав и площади группы помещений отделения приема граждан, обработки информации, анализа и прогнозирования.

п.п.

Наименование помещений

Площадь помещений, м2

Примечания

1

2

3

4

1.

Кабинет заведующего отделением

8

 

2.

Кабинет специалистов по социальной работе, не рассчитанный на прием посетителей (на 4 специалистов)

16

Кол-во по заданию на проектирование

3.

Кабинет специалистов по социальной работе, рассчитанный на прием посетителей (на 4 специалистов)

20

-«-

4.

Кабинет социолога и методиста (на 2 специалистов)

12

-«-

5.

Санитарный узел для посетителей с умывальником в шлюзе

4

 

Консультативное отделение.

6.45. Рекомендуемые состав и площади помещений консультативного отделения приведены в таблице 6.3.

6.46. Основное назначение отделения - защита прав и интересов граждан, их адаптация в обществе путем содействия в решении социальных, психологических и юридических вопросов.

6.47. Отделение осуществляет:

- консультирование по социально-правовым вопросам;

- содействие в решении правовых вопросов, входящих в компетенцию органов социальной защиты населения;

- оказание психологической помощи, в том числе экстренной, по «телефону доверия»;

- предоставление консультаций по вопросам профессиональной ориентации, получения образования и трудоустройства.

6.48. Все кабинеты специалистов данного отделения рассчитаны на работу с посетителями.

Количество кабинетов в каждом конкретном случае определяется заданием на проектирование в зависимости от числа обслуживаемого населения.

6.49. Рекомендуемый состав оборудования кабинетов: столы специалистов, компьютерные столы, компьютеры, стеллажи, стулья.

6.50. Кабинет экстренной психологической помощи с «телефоном доверия» предусматривает круглосуточную работу специалиста. В составе оборудования кабинета рекомендуется предусматривать: письменный стол, компьютерный стол, компьютер, стеллаж, диван, кресло. Кабинет рекомендуется размещать при главном вестибюле. При кабинете следует предусматривать санитарный узел, в состав оборудования которого входят: унитаз, умывальник, душ.

Таблица 6.3.

Рекомендуемые состав и площади помещений консультативного отделения.

№ п.п.

Наименование помещений

Площадь помещений, м2

Примечания

1

2

3

4

1.

Кабинет заведующего отделением

8

 

2.

Кабинет специалиста по социальной работе

10

 

3.

Кабинет психолога

10

 

4.

Кабинет юрисконсульта

10

 

5.

Кабинет социального педагога

10

 

6.

Кабинет экстренной психологической помощи с «телефоном доверия» с санузлом

12 + 3

 

Отделение социального обслуживания на дому.

6.51. Рекомендуемые площади помещений отделения социального обслуживания на дому приведены в таблице 6.4. Состав помещений отделения определяется заданием на проектирование.

6.52. Данное отделение организуется для временного (до 6 месяцев) или постоянного оказания социально-бытовой помощи в надомных условиях инвалидам и гражданам пожилого возраста, частично утратившим способности к самообслуживанию и нуждающимся в посторонней поддержке. Деятельность отделения направлена на максимально возможное продление пребывания граждан в привычной среде обитания и поддержание их социального, психологического и физического статуса.

6.53. Количество кабинетов заведующих отделениями зависит от количества обслуживаемого населения. Данные кабинеты не рассчитаны на работу с посетителями. Рекомендуемое количество специалистов в кабинете не должно превышать 5 человек. Количество кабинетов в каждом конкретном случае определяется заданием на проектирование в зависимости от числа обслуживаемого населения. Рекомендуемая площадь - 4 м2 на 1 место, но не менее 8 м2 на кабинет.

6.54. Рекомендуемый состав оборудования кабинетов заведующих отделениями: столы специалистов, компьютерные столы, компьютеры, стеллажи, стулья.

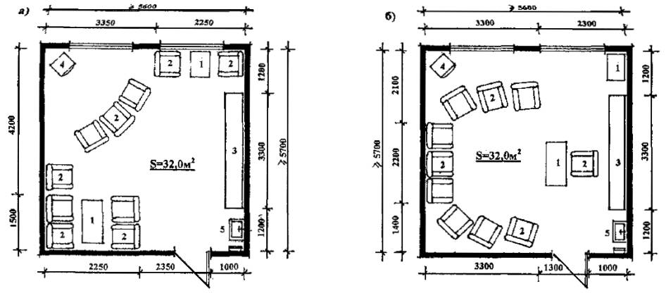
6.55. В состав помещений следует включать кабинет для проведения совещаний, рассчитанный на одновременное присутствие 30 чел. Оборудование его составляют стол специалиста и кресла с откидными столиками для участников совещания, расстановка которых может быть произвольной.

Таблица 6.4.

Рекомендуемые состав и площади помещений отделения социального обслуживания на дому.

№ п.п.

Наименование помещений

Площадь помещений, м2

Примечания

1

2

3

4

1.

Кабинет заведующих отделениями

8 - 20

 

2.

Кабинет для проведения совещаний

45

Приложение, Рис. П.1.

Отделение социально-медицинского обслуживания на дому.

6.56. Рекомендуемые площади помещений отделения социально-медицинского обслуживания на дому приведены в таблице 6.5. Состав помещений определяется заданием на проектирование.

6.57. Отделение предназначается для социально-бытового обслуживания и оказания доврачебной медицинской помощи в надомных условиях гражданам пожилого возраста и инвалидам, частично или полностью утратившим способность к самообслуживанию и страдающим тяжелыми заболеваниями, в т.ч. психическими расстройствами (в стадии ремиссии), туберкулезом (за исключением активной формы), тяжелыми заболеваниями (в том числе онкологическими) в поздних стадиях.

6.58. К основным функциям отделения относятся:

- оказание гражданам квалифицированного ухода, социально-бытовой и доврачебной медицинской помощи на дому;

- наблюдение за состоянием здоровья обслуживаемых граждан и проведение мероприятий, направленных на профилактику обострений имеющихся у них заболеваний;

- оказание морально-психологической поддержки обслуживаемым гражданам и членам их семей;

- обучение родственников обслуживаемых граждан практическим навыкам общего ухода за больными.

6.59. Количество кабинетов заведующих отделениями зависит от количества обслуживаемого населения. Данные кабинеты не рассчитаны на работу с посетителями. Рекомендуемое количество специалистов в кабинете не должно превышать 5 человек. Количество кабинетов в каждом конкретном случае определяется заданием на проектирование в зависимости от числа обслуживаемого населения. Рекомендуемая площадь - 4 м2 на 1 место, но не менее 8 м2 на кабинет.

6.60. Рекомендуемый состав оборудования кабинетов заведующих отделениями: столы специалистов, компьютерные столы, компьютеры, стеллажи, стулья.

6.61. В состав помещений следует включать кабинет для проведения совещаний, рассчитанный на одновременное присутствие 30 чел. Оборудование его составляют стол специалиста и кресла с откидными столиками для участников совещания, расстановка которых может быть произвольной.

Таблица 6.5.

Рекомендуемые состав и площади помещений отделения социально-медицинского обслуживания на дому.

п.п.

Наименование помещений

Площадь помещений, м2

Примечания

1

2

3

4

1.

Кабинет заведующих отделениями

8 - 20

 

2.

Кабинет для проведения совещаний

45

Приложение, Рис. П.1.

Отделение дневного пребывания граждан пожилого возраста и инвалидов.

6.62. Рекомендуемые состав и площади помещений отделения дневного пребывания граждан пожилого возраста и инвалидов приведены в таблице 6.6.

6.63. Данное отделение является полустационарным структурным подразделением КЦСО, к основным видам деятельности которого относятся: организация питания, доврачебной медицинской помощи, занятий лечебной физкультурой, клубной и просветительской работы, отдыха, трудотерапии и т.п.

6.64. Максимальная рекомендуемая вместимость отделения - 90 чел.

6.65. Питание посетителей осуществляется в общей столовой (см. раздел «Помещения питания» настоящих Рекомендаций).

6.66. Основная задача помещений доврачебной медицинской помощи - обеспечение постоянного наблюдения за состоянием здоровья престарелых и инвалидов. Доврачебная медицинская помощь осуществляется в кабинете медицинской сестры. В состав оборудования данного помещения следует включать: стол медицинской сестры со стульями для специалиста и посетителя, кушетку, медицинский шкаф, столик инструментальный, холодильник.

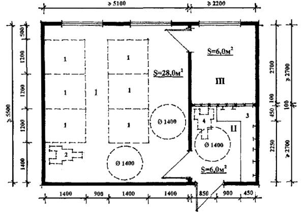
6.67. Занятия лечебной физкультурой осуществляются в кабинете групповых занятий ЛФК, который рассчитан на проведение занятий в группе из 9 человек.

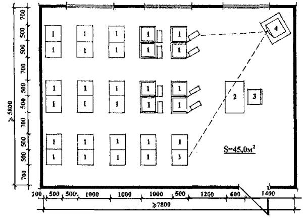
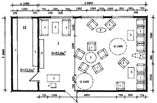
6.68. Клубная и просветительская работа осуществляется в следующих помещениях: большая гостиная, малая гостиная, комната тихого отдыха, кружковые.

6.69. Большая гостиная рассчитана на одновременное пребывание 100 % от вместимости отделения; малая гостиная рассчитана на одновременное пребывание 50 % от вместимости отделения.

В состав оборудования большой гостиной рекомендуется включать театральные кресла и фортепьяно; в состав оборудования малой гостиной - мягкую мебель, журнальные столики и бильярдный стол.

Над бильярдным столом следует предусматривать источник света в специальном абажуре, рассеивающим свет.

6.70. Комната тихого отдыха рассчитана на одновременное пребывание 20 человек. В состав оборудования данного помещения входят: мягкая мебель, журнальные столики, стеллаж с периодикой, стол и стул библиотекаря. Состав оборудования кладовой, располагаемой смежно с комнатой тихого отдыха, представлен стеллажами с книгами.

6.71. Все кружковые помещения рассчитаны на проведение занятий в группе из 15 человек. Состав и профиль кружковых помещений в каждом конкретном случае уточняются заданием на проектирование, при этом номенклатура их зависит от состава посетителей отделения на данный момент. При организации кружковых посещений следует предусмотреть возможность их перепрофилирования с учетом требований изменяющегося контингента посетителей. Рекомендуемое количество кружковых помещений - 3.

В номенклатуру кружков рекомендуется включать кружки эстетического воспитания: театральный и хорового искусства. Эти кружки следует организовывать на базе актового зала (см. раздел «Досуговые помещения» настоящих Рекомендаций).

6.72. В рамках КЦСО осуществляется также медицинская реабилитация с элементами трудотерапии. В соответствии с трудовой рекомендацией ВТЭК или заключением врача, посетители могут заниматься трудовой деятельностью, которая осуществляется в мастерских трудотерапии.

Состав и количество мастерских в каждом конкретном случае определяется заданием на проектирование. Планировка помещений должна учитывать возможность перепрофилирования в связи с изменением контингента посетителей или конъюнктуры. Рекомендуемая вместимость мастерских трудотерапии - 15 человек. Рекомендуемое количество помещений - 2.

6.73. Для дневного отдыха посетителей рекомендуется организовывать специальный блок помещений на 8 чел., который представляет собой две спаренные спальные комнаты с санитарным узлом. В состав оборудования комнат следует включать кровати и стулья в соответствии с количеством мест в комнате. Рекомендуемый состав оборудования санитарного узла: унитаз и умывальник. Сантехническое оборудование санитарного узла следует размещать в соответствии с требованиями СНиП 35-01-2001.

6.74. Рекомендуемый состав оборудования санитарных узлов отделения: два унитаза в закрытых кабинах, два умывальника, два писсуара (в мужском санузле), бидэ в отдельной кабине (в женском санузле). Сантехническое оборудование санузлов следует размещать в соответствии с требованиями СНиП 35-01-2001.

Таблица 6.6.

Рекомендуемые состав и площади помещений отделения дневного пребывания граждан пожилого возраста и инвалидов.

п.п.

Наименование помещений

Площадь помещений, м2

Примечания

1

2

3

4

1.

Кабинет заведующего отделением

8

 

2.

Кабинет медицинской сестры

10

 

3.

Кабинет групповых занятий ЛФК с раздевальной и кладовой

45 + 9 + 5

Приложение

Рис П.2.

4.

Большая гостиная

128

Приложение

Рис. П.3.

5.

Малая гостиная

78

Приложение

Рис. П.4.

6.

Комната тихого отдыха

53 + 12

Приложение

Рис. П.5.

7.

Кружковые помещения

52´3

 

8.

Мастерские трудотерапии

60´2

 

9.

Спальные комнаты с санитарным узлом

19 + 13 + 3

Приложение

Рис. П.6.

10.

Санитарные узлы для мужчин и для женщин с умывальниками в шлюзе

10´2

 

Отделение дневного пребывания несовершеннолетних.

6.75. Рекомендуемые площади помещений отделения дневного пребывания несовершеннолетних приведены в таблице 6.7. Состав помещений определяется заданием на проектирование.

6.76. Основная задача отделения - реализация программ социальной реабилитации несовершеннолетних в полустационарных условиях. Данная группа помещений предусматривается для проведения мероприятий, направленных на:

- формирование у детей и подростков потребности в групповом и межличностном общении;

- раскрытие врожденных склонностей ребенка, формирование круга его культурных интересов;

- физическое развитие, предоставление позитивной возможность дать выход своей энергии;

- организацию питания несовершеннолетних.

6.77. Рекомендуемая вместимость отделения - не более 30 чел. Для работы с несовершеннолетними рекомендуется создавать реабилитационные группы, объединяющие несовершеннолетних по возрастному принципу. Количество несовершеннолетних в группе устанавливается согласно положениям «Рекомендаций по проектированию образовательных учреждений для детей, нуждающихся в психолого-педагогической и медико-социальной помощи» - 9 человек. Все помещения, составляющие данное отделение, (кроме указанных особо) рассчитаны на работу с данной группой.

6.78. Интерьеры помещений отделения, рассчитанных на работу с детьми, должны быть привлекательны и вызывать интерес детей и подростков, оказывать положительное эмоциональное и эстетическое воздействие. Интерьеры не должны выглядеть казенно, их оформление не должно быть вызывающим. К оформлению рекомендуется привлекать несовершеннолетних и использовать элементы их самодеятельного творчества.

6.79. Питание несовершеннолетних осуществляется в общей столовой (см. раздел «Помещения питания» настоящих Рекомендаций).

6.80. В состав отделения следует включать кабинет специалистов, не рассчитанный на работу с посетителями. Рекомендуемое количество сотрудников в кабинете - 4 человека. Рекомендуемый состав оборудования кабинета: столы специалистов, компьютерный стол, стеллаж, стулья.

6.81. В состав данной группы помещений рекомендуется включать комнаты тихого отдыха, в оборудование которых входят: мягкая мебель журнальный столик, телевизор с видеомагнитофоном, комбинированный шкаф для настольных игр и кассет с видеофильмами. Комнаты тихого отдыха должны быть приспособлены к проведению групповых психолого-коррекционных занятий. Количество данных помещений определяется заданием на проектирование.

6.82. Игровые комнаты имеют многоцелевое назначение: проведение досуга; приготовление домашних заданий; организация ситуационных игр. В состав оборудования данных помещений рекомендуется включать: ученические столы, стол воспитателя, комбинированный шкаф для игр, игрушек и пособий.

6.83. Кабинет релаксации рассчитан на проведение индивидуальной психолого-терапевтической коррекции. В состав оборудования его рекомендуется включать виброкресло, установку с водяным каскадом, стул специалиста, столик для специальной аппаратуры.

6.84. Компьютерный кабинет представляет собой учебное помещение, оборудованное компьютерными столами и компьютерами по числу несовершеннолетних в группе, столом специалиста с компьютером и сервером, комбинированным шкафом.

6.85. Для формирования культурных интересов несовершеннолетних в состав отделения следует включать кружковые помещения, состав, профиль и количество которых в каждом конкретном случае определяется заданием на проектирование в зависимости от инфраструктуры обслуживаемой территории, сложившегося спроса, экономических и кадровых возможностей.

6.86. Учитывая возможность наличия в контингенте отделения детей и подростков с запущенной девиантностью, архитектурно-планировочная организация кружковых помещений для занятий с использованием ценного оборудования должна предусматривать выделение двух зон доступности:

- зону занятий с руководителем;

- зону ограниченной доступности (хранения ценного оборудования, сырья, изделия).

6.87. В номенклатуру кружков рекомендуется включать кружки эстетического воспитания: театральный, танцевальный и хорового искусства. Эти кружки следует организовывать на базе актового зала (см. раздел «Досуговые помещения» настоящих Рекомендаций).

6.88. Площади залов гимнастических занятий (5,5 м2 на 1 чел.) и тренажерного (4 м2 на 1 тренажер) определяются в соответствии с положениями справочного пособия «Проектирование клубов» к СНиП 2.08.02-89*.

6.89. Зал гимнастических занятий при необходимости может использоваться для проведения занятий борьбой и тяжелой атлетикой.

6.90. При залах гимнастических занятий и тренажерном следует организовывать раздевальные со скамьями для переодевания и санитарными узлами, в состав оборудования которых входят: по две душевые сетки, одному унитазу и умывальнику.

6.91. Для оздоровления и физического развития несовершеннолетних предусматривается также бассейн (см. раздел «Отделение социальной реабилитации инвалидов» настоящих Рекомендаций).

6.92. В отделении размещение санитарных приборов рекомендуется осуществлять только в общих санитарных узлах в открытых кабинах. Рекомендуемый состав оборудования санитарных узлов: четыре унитаза, огороженных экранами высотой не более 1 м, четыре умывальника, два писсуара (в санузле для мальчиков), бидэ в отдельной открытой кабине (в санузле для девочек).

Таблица 6.7.

Рекомендуемые состав и площади помещений отделения дневного пребывания несовершеннолетних.

п.п.

Наименование помещений

Площадь помещений, м2

Примечания

1

2

3

4

1.

Кабинет заведующего отделением

8

 

2.

Кабинет специалистов по социальной работе, не рассчитанный на прием посетителей (на 4 специалистов)

16

 

3.

Комната тихого отдыха

32

Приложение

Рис. П.7.

4.

Комната игровая

30

Приложение

Рис. П.8.

5.

Кабинет релаксации

10

Приложение

Рис. П.9.

6.

Компьютерный кабинет

30

Приложение

Рис. П.10.

7.

Кружковая комната с подсобным помещением

22 + 6

 

8.

Зал гимнастических занятий с раздевальной и кладовой

50 + 13 + 9

Приложение Рис. П.11.

9.

Тренажерный зал с раздевальной и кладовой

36 + 13 + 9

Приложение Рис. П.12.

10.

Зал для игры в настольный теннис

48

 

11.

Санитарные узлы с умывальниками в шлюзе для мальчиков и для девочек

10´2

 

Отделение срочного социального обслуживания.

6.93. Рекомендуемые площади помещений отделения срочного социального обслуживания приведены в таблице 6.8. Состав помещений определяется заданием на проектирование.

6.94. Отделение предназначено для оказания неотложной социальной помощи разового характера гражданам, попавшим в экстремальные условия и остро нуждающимся в социальной поддержке.

6.95. Помещения отделения следует размещать в непосредственной близости от группы помещений главного вестибюля.

6.96. Данную группу помещений составляют:

- кабинеты специалистов, рассчитанные на работу с посетителями;

- помещения для хранения и выдачи товаров.

6.97. Рекомендуемый состав оборудования кабинетов специалистов: столы специалистов, компьютерные столы, компьютеры, стеллажи, стулья.

Количество специалистов в кабинете не должно превышать 4 чел.

6.98. В помещениях для хранения и выдачи товаров следует предусматривать стол специалиста и стеллажи для размещения товаров.

В составе оборудования помещений для хранения и выдачи промышленных товаров следует предусмотреть примерочную и кронштейн для вывешивания образцов.

В помещениях для хранения и выдачи промышленных товаров, а также товаров бывших в употреблении следует дополнительно предусмотреть принудительную вентиляцию.

Таблица 6.8.

Рекомендуемые состав и площади помещений отделения срочного социального обслуживания.

п.п.

Наименование помещений

Площадь помещений, м2

Примечания

1

2

3

4

1.

Кабинет заведующего отделением

8

 

2.

Кабинет специалистов, рассчитанный на работу с посетителями (на 4 специалистов)

20

Кол-во кабинетов по заданию на проектирование

3.

Холл для ожидания

40

 

4.

Помещение для хранения и выдачи промышленных товаров

40

 

5.

Помещение для хранения и выдачи промышленных товаров, бывших в употреблении

40

 

6.

Помещение для хранения и выдачи детских промышленных товаров

40

 

7.

Помещение для хранения и выдачи продовольственных товаров

40

 

Отделение технических средств реабилитации.

6.99. Рекомендуемые состав и площади помещений отделения технических средств реабилитации приведены в таблице 6.9.

6.100. Отделение предназначено для обеспечения нуждающихся инвалидов различными вспомогательными средствами для передвижения (креслами-колясками, ходунками, костылями и т.п.).

6.101. Помещения отделения следует размещать в непосредственной близости от группы помещений главного вестибюля.

6.102. В состав отделения следует включать кабинет социального работника, рассчитанный на прием посетителей. Состав оборудования кабинета: стол специалиста, стулья, стеллажи.

6.103. В состав отделения следует включать кабинет ортопеда, оборудование которого составляют: стол специалиста, медицинскую кушетку, стулья, стеллаж.

6.104. В составе отделения следует предусматривать помещение хранения и выдачи технических средств, оборудования которого должны составлять стол специалиста; место технического работника, который осуществляет индивидуальную подгонку технических средств, и стеллажи для размещения технических средств.

Таблица 6.9.

Рекомендуемые состав и площади помещений отделения технических средств.

№ п.п.

Наименование помещений

Площадь помещений, м2

Примечания

1

2

3

4

1.

Кабинет заведующего отделением

8

 

2.

Кабинет социального работника

8

 

3.

Кабинет ортопеда

10

 

4.

Помещение для хранения и выдачи технических средств реабилитации

50

 

Отделение социальной помощи семье и детям.

6.105. Рекомендуемые площади помещений отделения социальной помощи семье и детям приведены в таблице 6.10. Состав помещений определяется заданием на проектирование.

6.106. Основной задачей отделения является организация социального обслуживания и оказание социальных услуг и помощи семьям, детям и отдельным гражданам, нуждающимся в социальной помощи и поддержке.

6.107. Для выполнения возложенной задачи отделение осуществляет следующие функции:

- выявляет причины социального неблагополучия конкретных семей и детей, их потребности в социальной помощи;

- ведет учет семей, детей и граждан, нуждающихся в социальной поддержке;

- предоставляет конкретные виды социально-экономических, социально-психологических, социально-педагогических, юридических и иных социальных услуг семьям и детям, нуждающимся в социальной поддержке;

- осуществляет социальный патронаж семей с детьми-инвалидами, нуждающихся в социальной помощи и реабилитации;

- оказывает социальную поддержку и осуществляет комплекс мер по адаптации лиц из числа бывших детей-сирот и детей, оставшихся без попечения родителей - бывших воспитанников детских домов-интернатов и школ-интернатов в возрасте до 23 лет;

- организует семейные и детские праздники и т.п.

6.108. Контингент обслуживаемых данным отделением составляют: а) семьи; б) дети; в) отдельные граждане.

а) Семьи:

- многодетные, неполные, с детьми-инвалидами, разводящиеся, молодые, состоящие из несовершеннолетних родителей, малообеспеченные;

- с неблагоприятным психологическим климатом, эмоционально-конфликтными отношениями, педагогической несостоятельностью родителей, жестоким обращением с детьми.

б) Дети в возрасте до 18 лет:

- оказавшиеся в неблагоприятных семейных условиях, угрожающих их здоровью и развитию;

- осиротевшие или оставшиеся без попечения родителей, нуждающиеся в устройстве в связи с отменой или признанием недействительным усыновления, опеки;

- допускающие асоциальное поведение, безнадзорные, испытывающие негативное воздействие по месту жительства, учебы, работы (жестокое обращение, насилие, оскорбление, унижение, вымогательство, приобщение к алкоголю, наркотикам, вовлечение в противоправную деятельность);

- переживающие острые конфликтные ситуации с родителями, учителями, соседями, знакомыми;

- проживающие с родителями, оформляющими развод или находящимися в состоянии развода, временно не способными заботиться о детях в результате болезни, нетрудоспособности, длительных командировок, привлечения к ответственности в установленном порядке или пренебрегающими своими родительскими обязанностями, ведущими аморальный и паразитический образ жизни;

- лица, из числа детей-сирот и детей, оставшихся без попечения родителей, выпускники детских домов и школ-интернатов, нуждающиеся в социальной поддержке.

в) Взрослые граждане:

- пенсионеры, имеющие на иждивении несовершеннолетних;

- пенсионеры-опекуны над несовершеннолетними;

- лица, оказавшиеся в сложной жизненной ситуации.

6.109. В состав помещений отделения входят кабинеты специалистов двух типов:

- не предназначенные для работы с посетителями;

- для проведения работы с посетителями.

6.110. Все кабинеты специалистов по социальной работе, не предназначенные для работы с посетителями, рекомендуется проектировать на 4 чел. В состав оборудования их следует включать столы, стеллажи, стулья. Количество кабинетов в каждом конкретном случае определяется заданием на проектирование в зависимости от числа обслуживаемого населения.

6.111. Кабинеты социального педагога и психолога рассчитаны на работу с «детско-родительской» группой и оборудуются столом специалиста, компьютерным столом, стеллажом, журнальным столиком с 4 креслами.

6.112. Кабинет групповой психотерапии предназначен для социальноредовой адаптации как несовершеннолетних, так и взрослых граждан. В состав его оборудования рекомендуется включать кресла, журнальный столик, стул специалиста. Данное помещение рассчитано на проведение занятий в группе из 9 чел.

6.113. В состав помещений отделения входит лекционная аудитория, рассчитанная на проведение лекций как для несовершеннолетних, так и для взрослых граждан. Оптимальная вместимость аудитории составляет 15 чел. Оборудование ее составляют стол лектора - социального педагога и кресла с откидными столиками для слушателей, столик с телевизором, видеомагнитофоном и полками для видеокассет.

6.114. Для проведения мероприятий, направленных на преодоление у несовершеннолетних социальной дезадаптации, могут быть использованы кружковые помещения, входящие в состав отделения дневного пребывания несовершеннолетних (см. п. 6.85. настоящих Рекомендаций).

6.115. Для физического развития несовершеннолетних используется бассейн КЦСО (см. раздел «Отделение социальной реабилитации инвалидов» настоящих Рекомендаций).

6.116. В состав отделения следует включать помещение для хранения и выдачи промышленных и продовольственных товаров. В состав его оборудования входят: стол специалиста, стеллажи, примерочная и кронштейн для вывешивания образцов.

Таблица 6.10.

Рекомендуемые состав и площади помещений отделения социальной помощи семье и детям.

п.п.

Наименование помещений

Площадь помещений, м2

Примечания

1

2

3

4

1.

Кабинет заведующего отделением

8

 

2.

Кабинет специалистов по социальной работе, не рассчитанный на работу с посетителями (на 4 специалистов)

16

Кол-во кабинетов по заданию на проектирование

3.

Кабинет юриста

8

 

4.

Кабинет социального педагога

22

Приложение

Рис. П.13.

5.

Кабинет психолога

22

Приложение

Рис. П.13.

6.

Кабинет групповой психотерапии

23

Приложение

Рис. П.14.

7.

Лекционная аудитория

28

Приложение

Рис. П.15.

8.

Помещение для хранения и выдачи промышленных и продовольственных товаров

20

 

9.

Санитарные узлы с умывальниками в шлюзе для мужчин и для женщин

3´2

 

Отделение профилактики безнадзорности несовершеннолетних.

6.117. Рекомендуемые площади помещений отделения профилактики безнадзорности несовершеннолетних приведены в таблице 6.11. Состав помещений определяется заданием на проектирование.

6.118. Основное назначение отделения:

- проведение профилактической работы по предупреждению безнадзорности несовершеннолетних;

- проведение индивидуальной работы с детьми и подростками «группы риска»;

- оказание социальной помощи детям-сиротам и детям, оставшимся без попечения родителей.

6.119. Основными направлениями деятельности отделения являются:

- участие в работе по выявлению и анализу факторов, обусловивших социальную дезадаптацию несовершеннолетних, форм и степени дезадаптации, особенностей личностного развития и поведения детей и подростков;

- разработка индивидуальных и групповых программ социальной реабилитации;

- осуществление социального патронажа детей-сирот и детей, оставшихся без попечения родителей, выпускников сиротских учреждений до 23-х лет;

- содействие подросткам в профессиональной ориентации, получении специальности и образования;

- включение детей и подростков в разнообразные виды деятельности в КЦСО и за его пределами;

- оказание совместно с другими подразделениями КЦСО комплексной психолого-педагогической помощи;

- оказание помощи несовершеннолетним в устройстве, при необходимости, на временное проживание в учреждения образования или социальной зашиты.

6.120. Все кабинеты специалистов данного отделения не рассчитаны на работу с посетителями. Рекомендуемое количество сотрудников в кабинете - 4 человека.

Количество кабинетов в каждом конкретном случае определяется заданием на проектирование в зависимости от числа обслуживаемого населения.

6.121. Рекомендуемый состав оборудования кабинетов: стол специалиста, компьютерный стол, стеллажи, стулья.

Таблица 6.11.

Рекомендуемые состав и площади помещений отделения профилактики безнадзорности несовершеннолетних.

№ п. п.

Наименование помещений

Площадь помещений, м2

Примечания

1

2

3

4

1.

Кабинет заведующего отделением

8

 

2.

Кабинет социальных работников, рассчитанный на работу с посетителями (на 4 специалистов)

16

Кол-во кабинетов по заданию на проектирование

Отделение социальной реабилитации инвалидов.

6.122. Рекомендуемые состав и площади помещений отделения социальной реабилитации инвалидов приведены в таблице 6.12.

6.123. Основной задачей отделения является оказание инвалидам помощи по социальной реабилитации, направленной на устранение или компенсацию ограничений их жизнедеятельности, восстановление социального статуса инвалида.

6.124. Основные направления деятельности отделения:

- выявление и учет инвалидов, нуждающихся в реабилитации;

- реализация индивидуальных программ реабилитации инвалидов в части социально-средовой ориентации и социально-бытовой адаптации;

- оказание инвалидам, а также членам их семей консультативно-правовой помощи по вопросам социальной защиты инвалидов;

- проведение оздоровительно-реабилитационных мероприятий.

6.125. Оптимальная пропускная способность отделения - 30 чел. в день.

6.126. В составе отделения предусматривается кабинет врача-терапевта и кабинет медицинской сестры с процедурной, рассчитанные на индивидуальную работу с посетителями.

6.127. Кабинет компьютерной реабилитации рассчитан на индивидуальное обслуживание посетителей. В состав оборудования данного помещения следует включать: стол специалиста, компьютерный стол, медицинскую кушетку, стеллажи, стулья.

6.128. Кабинет механотерапии с раздевальной и кладовой следует оборудовать тренажерами, позволяющими корректировать различные физические дефекты. Помещение рассчитано на занятие группы из 6 чел.

6.129. Кабинет релаксации рассчитан на проведение индивидуальной психолого-терапевтической коррекции. В состав его оборудования рекомендуется включать виброкресло, столик для специальной аппаратуры, установку с водяным каскадом, стул специалиста.

6.130. Кабинет групповой психотерапии рассчитан на проведение занятий в группе из 9 чел. В состав оборудования данного помещения следует включать кресла и журнальный столик.

6.131. В состав отделения рекомендуется включать бассейн, основное назначение которого - водные оздоровительные процедуры, развитие моторики и общее укрепление организма.

Проектирование бассейна следует осуществлять в соответствии с положениями справочного пособия «Проектирование бассейнов» к СНиП 2.08.02-89*, СНиП 35-01-2001, СанПиН 2.1.2.1188-03 и Пособия по проектированию окружающей среды для людей с физическими ограничениями (Выпуск 2).

Рекомендуемые размеры ванны бассейна - 6´10 м, глубина от 1,2 м - в мелкой части до 1,8 м - в глубокой части. Одновременная загрузка бассейна - 9 чел. Бассейн следует оборудовать пандусом и подъемным устройством для опускания в воду.

6.132. По заданию на проектирование в состав отделения допускается включать баню сухого жара, располагаемую рядом с бассейном. Состав помещений и вместимость уточняются заданием на проектирование.

6.133. Учитывая специфику контингента, обслуживаемого данным отделением, сантехническое оборудование следует размещать в соответствии с требованиями СНиП 35-01-2001.

Размещение унитазов в уборных производится либо в индивидуальных санитарных узлах либо в общих с использованием закрывающихся кабин. В индивидуальных санузлах рекомендуется размещать умывальник непосредственно в кабине, а в общих - в шлюзе.

Таблица 6.12.

Рекомендуемые состав и площади помещений отделения социальной реабилитации инвалидов.

№ п.п.

Наименование помещений

Площадь помещений, м2

Примечания

1

2

3

4

1.

Кабинет заведующего отделением

8

 

2.

Кабинет врача

10

 

3.

Кабинет медицинской сестры с процедурной

14

 

4.

Кабинет компьютерной реабилитации

12

 

5.

Кабинет механотерапии с раздевальной и кладовой

28 + 6 + 6

Приложение

Рис. П.16.

6.

Фитокабинет с кладовой

10 + 3

 

7.

Кабинет лечебного массажа на 1 место

8

 

8.

Кабинет релаксации

12

 

9.

Кабинет групповой психотерапии

23

Приложение

Рис. П.14.

10.

Бассейн с ванной 6´10 м

114

 

11.

Раздевальные с душевыми и санитарными узлами для мужчин и для женщин

18´2

 

12.

Комната инструкторов с санитарным узлом

10 + 3

В состав санузла входят: душ, унитаз, умывальник

13.

Помещение для хранения реактивов

4

 

14.

Реагентная

4

 

15.

Комната медсестры

10

Должны располагаться смежно и иметь выход на обходную дорожку

16.

Лаборатория анализа воды

8

17.

Узел управления

6

18.

Блок бани сухого жара:

 

 

- камера сухого жара

10

 

- предбанник с душем

10

 

- санузел с умывальником

3,5

 

- раздевальная

12

 

- комната отдыха

12

 

- кладовая инвентаря

4

 

19.

Санитарные узлы для мужчин и для женщин с умывальниками

3,5

 

20.

Комната хранения уборочного инвентаря

4

 

21.

Инвентарная

24

 

Отделение реабилитации несовершеннолетних с ограниченными физическими и умственными возможностями.

6.134. Рекомендуемые состав и площади помещений отделения реабилитации несовершеннолетних с ограниченными физическими и умственными возможностями приведены в таблице 6.13.

6.135. Основное назначение отделения - реабилитация (психолого-социальная, социально-педагогическая, социально-бытовая, социально-трудовая, социально-медицинская) несовершеннолетних с отклонениями в физическом и умственном развитии, а также обучение родителей особенностям их воспитания.

6.136. Отделение осуществляет:

- выявление семей, имеющих детей-инвалидов, и организацию их социального патронажа в соответствии с индивидуальной программой реабилитации;

- формирование банка данных о детях-инвалидах;

- поэтапную реализацию индивидуальных программ реабилитации совместно с учреждениями здравоохранения, образования, физической культуры и спорта;

- подготовку родителей, имеющих детей-инвалидов, к реализации индивидуальных программ реабилитации;

- содействие в налаживании быта, лечении, обучении, профессиональной подготовке детей-инвалидов, развитии их творческих способностей, организации досуга и общения;

- оказание консультативной помощи семьям.

6.137. Оптимальная пропускная способность отделения - 10 чел. в день.

6.138. Для реабилитации несовершеннолетних следует формировать группы «малого контакта» численностью 5 чел.

6.139. Кабинет специалистов по социальной работе не рассчитан на прием посетителей. Помещение следует проектировать на 4 чел. В состав его оборудования следует включать: столы специалистов, компьютерный стол, стеллаж, стулья.

6.140. Кабинеты врачей-специалистов (врача-педиатра, невропатолога, логопеда-дефектолога, психолога) рассчитаны на индивидуальную работу с несовершеннолетними. В состав оборудования кабинетов следует включать: стол специалиста, стеллажи, стулья. В оборудование кабинетов врача-педиатра и невропатолога дополнительно следует включать кушетку; а логопеда-дефектолога - зеркало.

6.141. Занятия ЛФК рекомендуется проводить только индивидуально.

6.142. В состав отделения рекомендуется включать мастерскую трудотерапии, основное назначение которой - развитие различных видов моторики у несовершеннолетних и раскрытие их врожденных склонностей. Помещение мастерской должно предусматривать возможность перепрофилирования в зависимости от состава контингента на данный момент. Помещение рассчитано на занятия с группой.

6.143. В состав отделения следует включать многофункциональный коррекционный кабинет, рассчитанный на проведение занятий в группе. В нем осуществляется проведение занятий по коррекционным играм «лего» и ситуационным играм. В состав оборудования рекомендуется включать одноместные столы, которые в зависимости от вида коррекционного занятия могут стоять отдельно друг от друга или быть составлены в один стол, закрывающиеся шкафы с пособиями, стол специалиста.

6.144. Кабинет социально-бытовой адаптации, рассчитанный на проведение занятий в группе, представляет собой помещение, включающее зону приготовления пищи (кухня) и зону отдыха с обеденным столом (гостиная). В оборудование кухни рекомендуется включать разделочный стол, шкаф для хранения кухонной и чайной посуды, мойку, холодильник. В оборудование гостиной входят: обеденный стол со стульями, мягкая мебель (диван, два кресла), журнальный столик.

6.145. Санитарные узлы в отделении проектируются в соответствии с положениями «Рекомендаций по проектированию образовательных учреждений для детей, нуждающихся в психолого-педагогической и медико-социальной помощи».

6.146. В состав отделения следует включать лекционную аудиторию, рассчитанную на проведение лекций для родителей. Оптимальная вместимость аудитории составляет 15 чел.

Таблица 6.13.

Рекомендуемые состав и площади помещений отделения реабилитации несовершеннолетних с ограниченными физическими и умственными возможностями.

№ п.п.

Наименование помещений

Площадь помещений, м2

Примечания

1

2

3

4

1.

Кабинет заведующего отделением

8

 

2.

Кабинет социальных работников, не рассчитанный на работу с посетителями (на 4 специалистов)

16

 

3.

Кабинет врача-педиатра

10

 

4.

Кабинет невропатолога

10

 

5.

Кабинет логопеда-дефектолога

9

 

6.

Кабинет психолога

10

 

7.

Кабинет индивидуальных занятий ЛФК

10

 

8.

Кабинет массажа на 1 место

8

 

9.

Мастерская трудотерапии

22

 

10.

Многофункциональный коррекционный кабинет

20

Приложение

Рис. П.17.

11.

Кабинет социально-бытовой адаптации

27

Приложение

Рис. П.18.

12.

Лекционная аудитория

28

Приложение

Рис. П.15.

13.

Санитарные узлы для мальчиков и для девочек с умывальниками в шлюзе

3´2

 

Отделение психолого-педагогической помощи.

6.147. Рекомендуемые состав и площади помещений отделения психолого-педагогической помощи приведены в таблице 6.14.

6.148. Основными направлениями деятельности отделения являются:

- помощь гражданам в воспитании детей, успешном разрешении семейных конфликтов, обучение детей и родителей здоровому образу жизни;

- патронаж семей, имеющих неблагоприятные психологические или социально-педагогические условия;

- индивидуальная и групповая коррекционная работа с детьми и подростками;

- диагностика психофизического и эмоционального развития несовершеннолетнего, изучение его склонностей и способностей;

- психологическое обследование личности граждан, анализ поведения, тестирование для определения оптимального варианта психолого-педагогической помощи;

- психологические тренинги по снятию состояния тревожности, нервно-психической напряженности, преодолению неадекватных форм поведения и т.п.;

- консультирование по психолого-педагогическим вопросам;

- психологическая коррекция нарушений и искажений в психическом развитии ребенка;

- организация деятельности групп взаимоподдержки, создание клубов общения, разработка и проведение циклов бесед и т.п.

6.149. Данную группу помещений составляют кабинеты специалистов двух типов:

- не рассчитанные на работу с посетителями;

- для проведения работы с посетителями.

6.150. Кабинеты специалистов по социальной работе не рассчитаны на прием посетителей. Помещения следует проектировать на 4 чел. В состав их оборудования следует включать: столы специалистов, компьютерный стол, стеллажи, стулья.

Количество кабинетов в каждом конкретном случае определяется заданием на проектирование в зависимости от числа обслуживаемого населения.

6.151. В кабинете психолога проводится как индивидуальная работа, так и работа с «детско-родительской» группой. Помещение следует оборудовать столом специалиста, компьютерным столом, стеллажами, журнальным столиком с 4 креслами.

6.152. Кабинет групповой психотерапии предназначен для психолого-педагогической реабилитации как несовершеннолетних, так и взрослых граждан. В состав его оборудования рекомендуется включать кресла, журнальный столик. Данное помещение рассчитано на проведение занятий в группе из 9 чел.

6.153. В состав помещений отделения входит лекционная аудитория, рассчитанная на проведение лекций как для несовершеннолетних, так и для взрослых граждан. Оптимальная вместимость аудитории составляет 30 чел. Оборудование ее составляют стол специалиста и кресла с откидными столиками для слушателей, расстановка которых может быть произвольной.

6.154. По заданию на проектирование в состав отделения допускается включать «Родительский клуб». Основная цель его организации - создание условий для общения членов семьи. Состав оборудования клуба: обеденный стол со стульями, шкаф с посудой, уголок отдыха с мягкой мебелью, рабочий стол с микроволновой печью и электрическим чайником, холодильник, раковина. Помещение рассчитано на пребывание группы из 6 чел. (включая двух специалистов).

6.155. Кабинет социального педагога рассчитан на проведение индивидуальных занятий с детьми. В состав его оборудования входят: стол специалиста, ученический стол, стеллажи, стулья.

6.156. Кабинет психолого-педагогической коррекции представляет собой классное помещение на 9 чел. Данное помещение может быть использовано для проведения ситуационных игр.

Таблица 6.14.

Рекомендуемые состав и площади помещений отделения психолого-педагогической помощи.

№ п.п.

Наименование помещений

Площадь помещений, м2

Примечания

1

2

3

4

1.

Кабинет заведующего отделением

8

 

2.

Кабинет социальных работников, не рассчитанный на работу с посетителями (на 4 специалистов)

16

Кол-во кабинетов по заданию на проектирование

3.

Кабинет социальных работников, рассчитанный на работу с посетителями (на 4 специалистов)

20

-«-

4.

Кабинет психолога

22

Приложение

Рис. П.13.

5.

Кабинет групповой психотерапии

23

Приложение

Рис. П.14.

6.

Лекционная аудитория

45

Приложение

Рис. П.1.

7.

Кабинет социального педагога

10

 

8.

Кабинет психолого-педагогической коррекции

30

 

9.

Родительский клуб

36

Приложение

Рис. П.19.

10.

Санитарные узлы для мужчин и для женщин с умывальниками в шлюзе

3´2

 

Отделение помощи женщинам, оказавшимся в трудной жизненной ситуации.

6.157. Рекомендуемые состав и площади помещений отделения помощи женщинам, оказавшимся в трудной жизненной ситуации, приведены в таблице 6.15.

6.158. Основная цель организации данного отделения - оказание психологической, юридической, педагогической, социальной и иных видов помощи женщинам, находящимся в состоянии, опасном для физического и душевного здоровья или подвергшимся психофизическому насилию.

6.159. Основными направлениями деятельности отделения являются:

- социальный патронаж женщин, нуждающихся в социальной помощи, реабилитации и поддержке;

- проведение мероприятий по повышению стрессоустойчивости и психологической культуры женщин, в первую очередь, в сфере межличностного, семейного и родительского общений;

- оказание помощи женщинам в создании в семье взаимопонимания и уважения, благоприятного микроклимата, преодоление конфликтов и иных нарушений супружеских и внутрисемейных отношений;

- оказание социально-психологической помощи женщинам в адаптации к изменяющимся социально-экономическим условиям жизни.

6.160. Оказание помощи женщинам в данном отделении осуществляется в амбулаторных условиях и условиях стационара.

6.161. Все кабинеты специалистов рассчитаны на работу как с самой женщиной, так и с ее семьей. Рекомендуемый состав оборудования: стол специалиста, компьютерный стол, стеллаж, журнальный столик с четырьмя креслами.

6.162. В состав помещений отделения следует включать кабинет групповой психотерапии, рассчитанный на проведение занятий в группе из 9 чел.

6.163. Основное назначение помещений стационара - временная изоляция женщин от конфликтной ситуации в семье на время до ее разрешения.

6.164. Вместимость стационара определяется в каждом конкретном случае заданием на проектирование. Рекомендуемая вместимость - не более 10 чел.

6.165. В составе помещений стационара следует предусматривать спальные комнаты на 5 чел., в состав оборудования которых входят: кровати, прикроватные тумбочки, стулья по числу проживающих, секционный шкаф для хранения одежды.

6.166. В состав стационара включается кухня, оборудованная холодильником, электроплитой, кухонным столом, шкафом для кухонной посуды.

6.167. В состав стационара включается бытовая комната, оборудованная стиральной машиной с сушкой, гладильной доской, хозяйственным столом, шкафом для хранения моющих веществ.

6.168. Санитарный узел и душевую рекомендуется проектировать общими для стационара. В состав оборудования санитарного узла следует включать: 2 унитаза и 1 бидэ - в закрывающихся кабинках, 2 умывальника - в шлюзе. В состав оборудования душевой входят: 2 душевые сетки, огороженные экранами, умывальник, скамья для раздевания, вешалка для одежды.

Таблица 6.15.

Рекомендуемые состав и площади помещений отделения помощи женщинам, оказавшимся в трудной жизненной ситуации.

№ п.п.

Наименование помещений

Площадь помещений, м2

Примечания

1

2

3

4

1.

Кабинет заведующего отделением

8

 

2.

Кабинет специалиста по социальной работе

22

Приложение

Рис. П.13.

3.

Кабинет юриста

22

Приложение

Рис. П.13.

4.

Кабинет сексопатолога

22

Приложение

Рис. П.13.

5.

Кабинет психолога

22

Приложение

Рис. П.13.

6.

Кабинет групповой психотерапии

22

Приложение

Рис. П.14.

7.

Санитарный узел для посетителей с умывальником

2

 

8.

Спальная комната

24

Кол-во по заданию на проектирование

9.

Кухня

12

 

10.

Бытовая комната

8

 

11.

Санитарный узел стационара

10

 

12.

Душевая стационара

4

 

Отделение торгово-бытового обслуживания малообеспеченных граждан.

6.169. Рекомендуемые состав и площади помещений отделения торгово-бытового обслуживания малообеспеченных граждан приведены в таблице 6.16.

6.170. Основная цель организации данного отделения - обеспечение товарами первой необходимости и бытовыми услугами малообеспеченных граждан по льготным ценам.

6.171. В состав отделения следует включать торговое помещение, в котором организуется продажа продовольственных и промышленных товаров первой необходимости. В состав оборудования помещения следует включать: витрину-холодильник, прилавок, стеллажи. При помещении рекомендуется организовывать кладовые, в состав оборудования которых входят: холодильник, стеллажи для хранения сухих продуктов, стеллажи для хранения промышленных товаров.

6.172. В состав приемного пункта прачечной-химчистки следует включать два помещения: помещение приема, оборудованное прилавком, стеллажами для грязного белья и одежды, и помещение выдачи, оборудованное стеллажами для чистого белья, кронштейнами для чистой одежды.

6.173. Помещение срочного ремонта обуви следует оборудовать прилавком, столом с оборудованием и т.п. Помещение рассчитано на работу 1 мастера.

6.174. В состав отделения следует включать помещение парикмахерской с кладовой на 4 рабочих места. В составе оборудования парикмахерской следует предусмотреть вешалку для верхней одежды посетителей.

Таблица 6.16.

Рекомендуемые состав и площади помещений отделения торгово-бытового обслуживания малообеспеченных граждан.

№ п.п.

Наименование помещений

Площадь помещений, м2

Примечания

1

2

3

4

1.

Торговое помещение с кладовыми

60 + 10 + 10

 

2.

Помещения приемного пункта прачечной-химчистки

10 + 10

 

3.

Помещение срочного ремонта обуви

10

 

4.

Помещение парикмахерской с кладовой

30 + 10

 

Досуговые помещения.

6.175. Состав досуговых помещений КЦСО определяется заданием на проектирование. Рекомендуемые состав и площади досуговых помещений приведены в таблице 6.17.

6.176. Назначение актового зала - организация массовых мероприятий для всех групп контингента, обслуживаемых учреждением, а также проведения собраний персонала. Вместимость актового зала определяется заданием на проектирование в каждом конкретном случае с учетом численности групп посетителей, пользующихся залом. В актовом зале должны быть предусмотрены места для людей, использующих кресла-коляски, из расчета 5 % от вместимости.

6.177. При вместимости актового зала более 100 мест рекомендуется предусматривать фойе, которое используется как холл для отдыха, выставочный зал и т.п.

Таблица 6.17.

Рекомендуемые состав и площади досуговых помещений.

№ п.п.

Наименование помещений

Площадь помещений, м2

Примечание

На 1 место

Всего

1

2

3

4

5

1.

Актовый зал

1,2

-

 

2.

Эстрада при зале

-

48

Глубина эстрады не менее 4 м

3.

Кинопроекционная с перемоточной

-

13

 

4.

Фойе

0,35

-

На 1 место в зале

5.

Санитарные узлы при фойе

-

20´2

 

6.

Помещение для артистов

-

9´2

 

7.

Фильмовидеотека

-

8

 

8.

Кладовая мебели и реквизита

-

20

 

9.

Кладовая аппаратуры

-

10

 

Помещения питания.

6.178. Бесплатное питание в КЦСО организуется для посетителей следующих отделений:

- дневного пребывания несовершеннолетних;

- дневного пребывания граждан пожилого возраста и инвалидов;

- социальной столовой.

6.179. Питание осуществляется в трех обеденных залах:

- первый зал обслуживает отделение дневного пребывания несовершеннолетних;

- второй зал - отделение дневного пребывания граждан пожилого возраста и инвалидов;

- третий зал - социальную столовую.

6.180. Первый зал следует размещать в непосредственной близости от помещений обслуживаемого им отделения. Площадь данного зала следует принимать из расчета 1,1 м2 на 1 посадочное место; при зале предусматривается умывальная из расчета 3 м2 (1 умывальник) на каждые 15 мест.

6.181. Второй зал следует размещать в непосредственной близости от помещений обслуживаемого им отделения. Площадь данного зала следует принимать из расчета 1,4 м2 на 1 посадочное место; при зале предусматривается умывальная из расчета 3 м2 (1 умывальник) на каждые 18 - 20 мест.

6.182. Третий зал следует размещать в непосредственной близости от помещений вестибюля социальной столовой с организацией входа непосредственно из данного вестибюля. Площадь данного зала следует принимать из расчета 1,4 м2 на 1 посадочное место; при зале предусматривается умывальная из расчета 3 м2 (1 умывальник) на каждые 18 - 20 мест.

6.183. Основное назначение социальной столовой - обеспечение бесплатным горячим питанием малообеспеченных граждан.

6.184. Рекомендуемое количество посадочных мест в зале социальной столовой - 60 мест.

6.185. Состав, площади и оборудование производственных помещений кухни для отделений дневного пребывания определяются, исходя из условия только подогрева пищи и наличия базового предприятия столовой-заготовочной в муниципальном районе. Работа технологического оборудования кухни предусматривается на электричестве.

6.186. Производственные помещения кухни для социальной столовой следует рассчитывать на работу на сырье.

6.187. При наличии в составе КЦСО социальной столовой приготовление пищи для посетителей отделений дневного пребывания осуществляется производственными помещениями кухни социальной столовой. В этом случае в состав производственных помещений кухни следует включать две моечных столовой посуды и две сервизные (первые - обслуживают залы отделений дневного пребывания, вторые - зал социальной столовой).

6.188. В производственные помещения кухни должен предусматриваться отдельный вход.

6.189. Кроме питания посетителей, помещения кухни должны обеспечивать питание персонала.

6.190. Для питания персонала предусматривается обеденный зал самообслуживания (или буфет) из расчета 1,1 м2 на 1 посадочное место. Его следует располагать в составе помещений кухни или администрации. Количество мест определяется заданием на проектирование, исходя из количества питающихся в учреждении, продолжительности обеденного времени и количества смен. При зале предусматривается подсобное помещение, предназначенное для раздачи пищи, хранения и мойки посуды площадью 8 м2.

6.191. Для обслуживания обеденных залов при помещениях кухни следует предусматривать две раздаточные (одну - для обслуживания залов отделений дневного пребывания, вторую - социальной столовой) с удобным доступом к внутренним коммуникационным связям (коридорам, лестницам).

6.192. Учитывая специфику контингента посетителей социальной столовой, в состав производственных помещений кухни следует включать кабинет диетсестры.

6.193. Рекомендуемые состав и площади производственных помещений кухни отделений дневного пребывания приведены в таблице 6.18.

6.194. Рекомендуемые состав и площади производственных помещений кухни социальной столовой приведены в таблице 6.19.

Таблица 6.18.

Рекомендуемые состав и площади производственных помещений кухни отделений дневного пребывания.

п.п.

Наименование помещений

Площадь помещений, м2

Примечания

1

2

3

4

1.

Раздаточная социальной столовой

9

 

2.

Сервизная

6

 

3.

Горячий цех

25

 

4.

Хлеборезка, хранение хлеба

4

 

5.

Моечная кухонной посуды

10

 

6.

Моечная столовой посуды

14

 

7.

Комната заведующего производством

8

 

8.

Загрузочная-тарная

8

 

9.

Бельевая, гардеробная персонала, душевая, санитарный узел

6 + 14 + 2 + 2

 

Таблица 6.19.

Рекомендуемые состав и площади производственных помещений кухни социальной столовой.

№ п.п.

Наименование помещений

Площадь помещений, м2

Примечания

1

2

3

4

1.

Горячий цех

70

 

2.

Холодный цех

 

3.

Рыбный цех

24

 

4.

Мясной цех

 

5.

Хлеборезка, хранение хлеба

8

 

6.

Цех мучных изделий

14

 

7.

Раздаточная первого и второго залов

20

 

8.

Раздаточная третьего зала

18

 

9.

Сервизная первого и второго залов

12

 

10.

Сервизная третьего зала

8

 

11.

Моечная кухонной посуды

10

 

12.

Моечная столовой посуды первого и второго залов

20

 

13.

Моечная столовой посуды третьего зала

18

 

14.

Охлаждаемая камера для хранения:

 

 

- молочных продуктов

8

 

- рыбы, мяса

8

 

- яиц

6

 

15.

Кладовая сухих продуктов

6

 

16.

Кладовая овощей

12

 

17.

Кладовая суточного запаса

8

 

18.

Помещение первичной обработки овощей

8

 

19.

Загрузочная, кладовая тары

14

 

20.

Камера утилизации отходов с техническим сливом

4

 

21.

Комната заведующего производством

8

 

22.

Кабинет диетсестры

8

 

23.

Бельевая, гардеробная персонала, душевая, уборная

18

 

24.

Комната хранения предметов уборки

4

 

Административно-хозяйственные помещения.

6.195. Рекомендуемые состав и площади административно-хозяйственных помещений приведены в таблице 6.20.

6.196. Кладовые чистого и грязного белья, инвентарные рекомендуется располагать в подвальном помещении.

Таблица 6.20.

Рекомендуемые состав и площади помещений административно-хозяйственного обслуживания.

п.п.

Наименование помещений

Площадь помещений, м2

Примечания

1

2

3

4

1.

Кабинет директора

36

 

2.

Приемная

18

Смежно с кабинетом директора

3.

Канцелярия

12

 

4.

Кабинет заместителя директора по хозяйственной части

12

 

5.

Помещение дежурного персонала технического обслуживания

14

 

6.

Бухгалтерия с кассой

18 + 4

 

7.

Комната психологической разгрузки персонала

18

 

8.

Комната отдыха персонала

36

 

9.

Компьютерный центр с архивом

24 + 10

 

10.

Помещение пожарного поста

12

 

11.

Кладовая чистого белья

12

 

12.

Кладовая грязного белья

10

 

13.

Инвентарная

40

 

14.

Кладовые:

 

 

- для хранения спецодежды

30

Оборудуется принудительной вентиляцией

- для хранения материалов для мастерских

10´3

 

15.

Санитарные узлы для мужчин и женщин с умывальниками в шлюзе (для персонала)

3´2

 

16.

Кабины личной гигиены для женщин (для персонала)

3

 

17.

Комната хранения уборочного инвентаря

4

 

ПРИЛОЖЕНИЕ

«Планировочные схемы основных помещений КЦСО»

ЭКСПЛИКАЦИЯ ОБОРУДОВАНИЯ

1. Кресло с подлокотниками и откидным столиком

2. Стол лектора

3. Стул

4. Столик с телевизором, видеомагнитофоном и полками для хранения видеокасет

Рис. П.1. Лекционная аудитория отделения психолого-педагогической помощи.

ЭКСПЛИКАЦИЯ ОБОРУДОВАНИЯ

I - зал:

1. Шведская стенка

1. Скамья

3. Маты для занятий

II - кладовая:

4. Стеллаж

III - раздевалка:

5. Скамья для переодевания

6. Шкаф методиста

7. Умывальник с вешалкой для полотенца

Рис. П.2. Кабинет групповых занятий ЛФК с кладовой и раздевалкой отделения дневного пребывания граждан пожилого возраста и инвалидов.

ЭКСПЛИКАЦИЯ ОБОРУДОВАНИЯ

1. Театральные кресла

2. Пианино

3. Регулируемый табурет

4. Музыкальный центр

5. Место для инвалидной коляски

Рис. П.3. Большая гостиная отделения дневного пребывания граждан пожилого возраста и инвалидов.

ЭКСПЛИКАЦИЯ ОБОРУДОВАНИЯ

1. Мягкая мебель

2. Журнальный столик

3. Бильярдный стол

4. Зона игры в бильярд

5. Место для инвалидной коляски

Рис. П.4. Малая гостиная отделения дневного пребывания граждан пожилого возраста и инвалидов.

ЭКСПЛИКАЦИЯ ОБОРУДОВАНИЯ

I - комната тихого отдыха:

1. Мягкая мебель

2. Журнальный столик

3. Стол библиотекаря

4. Стул библиотекаря

5. Стеллаж для газет и журналов

6. Место для инвалидной коляски

II - кладовая:

7. Стеллаж для хранения книг

Рис. П.5. Комната тихого отдыха отделения дневного пребывания граждан пожилого возраста и инвалидов.

ЭКСПЛИКАЦИЯ ОБОРУДОВАНИЯ

I - спальные комнаты:

1. Кровать

2. Стул

3. Место для инвалидной коляски

II - передняя

III - санитарный узел:

4. Место для инвалидной коляски

5. Унитаз с поручнями

6. Умывальник с вешалкой для полотенца

Рис. П.6. Спальные комнаты с санитарным узлом отделения дневного пребывания граждан пожилого возраста и инвалидов.


ЭКСПЛИКАЦИЯ ОБОРУДОВАНИЯ

1. Журнальный стол

2. Кресло

3. Комбинированный шкаф

4. Телевизор с видеомагнитофоном

5. Умывальник с вешалкой для полотенца

Рис. П.7. Комната тихого отдыха отделения дневного пребывания несовершеннолетних. Расстановка оборудования: а) для отдыха; б) для групповых психолого-коррекционных занятий.

ЭКСПЛИКАЦИЯ ОБОРУДОВАНИЯ

1. Стол ученический

2. Стул

3. Стол воспитателя

4. Комбинированный шкаф

5. Умывальник с вешалкой для полотенца

Рис. П.8. Игровая комната отделения дневного пребывания несовершеннолетних. Расстановка оборудования: а) для приготовления уроков; б) для досуговых и ситуационных игр.


ЭКСПЛИКАЦИЯ ОБОРУДОВАНИЯ

1. Виброкушетка

2. Виброкресло

3. Столик для специальной аппаратуры

4. Установка с водяным каскадом

5. Стул специалиста

6. Штора

Рис. П.9. Кабинет релаксации отделения дневного пребывания несовершеннолетних.

ЭКСПЛИКАЦИЯ ОБОРУДОВАНИЯ

1. Стол ученический с компьютером

2. Стул

3. Стол специалиста с компьютером и сервером

4. Комбинированный шкаф

5. Умывальник с вешалкой для полотенца

Рис. П.10. Компьютерный кабинет отделения дневного пребывания несовершеннолетних.

ЭКСПЛИКАЦИЯ ОБОРУДОВАНИЯ

I - зал:

1. Стул методиста

2. Шведская стенка

3. Кольца

4. Скамья

5. Козел

6. Перекладина

II - раздевальная:

7. Скамья для переодевания

8. Шкаф методиста

9. Крючки для одежды

10. Санузел с умывальником

11. Душевая

III - кладовая

Рис. П.11. Зал гимнастических занятий с раздевальной и кладовой отделения дневного пребывания несовершеннолетних.

ЭКСПЛИКАЦИЯ ОБОРУДОВАНИЯ

I - зал:

1. Стул методиста

2. Скамья

3. Зона размещения тренажеров

II - раздевальная:

4. Скамья для переодевания

5. Шкаф методиста

6. Крючки для одежды

7. Санузел с умывальником

8. Душевая

III - кладовая

Рис. П.12. Тренажерный зал с раздевальной и кладовой отделения дневного пребывания несовершеннолетних.

ЭКСПЛИКАЦИЯ ОБОРУДОВАНИЯ

1. Стол специалиста

2. Стул

3. Стол специалиста с компьютером

4. Шкаф – стеллаж

5. Журнальный стол

6. Мягкая мебель

7. Умывальник с вешалкой для полотенца

Рис. П.13. Кабинет специалиста (социального педагога, психолога)

ЭКСПЛИКАЦИЯ ОБОРУДОВАНИЯ

1. Стул

2. Стол специалиста

3. Кресло

Рис. П.14. Кабинет групповой психотерапии.

ЭКСПЛИКАЦИЯ ОБОРУДОВАНИЯ

1. Кресло с подлокотниками и откидным столиком

2. Стол лектора

3. Стул

4. Столик с телевизором, видеомагнитофоном и полками

для хранения видеокасет

Рис. П.15. Лекционная аудитория.

ЭКСПЛИКАЦИЯ ОБОРУДОВАНИЯ

I - кабинет механотерапии:

1. Место расстановки оборудования для механотерапии

2. Место для инвалидной коляски

II - раздевальная:

3. Скамья с открытой вешалкой

4. Место для инвалидной коляски

III - кладовая

Рис. П.16. Кабинет механотерапии отделения социальной реабилитации инвалидов.


ЭКСПЛИКАЦИЯ ОБОРУДОВАНИЯ

1. Стол воспитанника

2. Стул воспитанника

3. Закрывающийся шкаф с пособиями

4. Стул воспитателя

5. Стол специалиста

6. Стул специалиста

7. Урна для мусора

8. Умывальник с вешалкой для полотенца

Рис. П.17. Многофункциональный коррекционный кабинет отделения реабилитации несовершеннолетних с ограниченными физическими и умственными возможностями. Варианты расстановки оборудования для проведения: а) индивидуальных занятий; б) групповых занятий.


ЭКСПЛИКАЦИЯ ОБОРУДОВАНИЯ

1. Высокая сервировочная стойка - разделочный стол

2. Стоя - шкаф кухонной посуды

3. Электроплита с воздухоочистителем

4. Стол - шкаф сухих продуктов

5. Мойка

6. Холодильник

7. Навесные шкафы для столовой и чайной посуды

8. Обеденный стол

9. Стул

10. Стул воспитателя

11. Мягкая мебель

12. Журнальный столик

Рис. П.18. Кабинет социально-бытовой адаптации отделения реабилитации несовершеннолетних с ограниченными физическими и умственными возможностями.

ЭКСПЛИКАЦИЯ ОБОРУДОВАНИЯ

1. Обеденный стол

2. Стул

3. Шкаф для посуды

4. Холодильник

5. Рабочий стол с микроволновой печью и электрочайником

6. Раковина

7. Журнальный столик

8. Мягкая мебель

9. Телевизор

Рис. П.19. Помещение родительского клуба.




Яндекс цитирования



   Copyright © 2007-2026,  www.tehlit.ru.

[ ѓосты, стандарты, нормативы, инструкции, правила, строительные нормы ]