//
ТехЛит.ру
- крупнейшая бесплатная электронная интернет библиотека для "технически умных" людей.
WWW.TEHLIT.RU - ТЕХНИЧЕСКАЯ ЛИТЕРАТУРА

:: Алготрейдинг::


АЛГОТРЕЙДИНГ
шаг за шагом
с нуля по урокам!

Торговые роботы на PYTHON, BackTrader,
Pandas, Pine Script для TradingView. Связка с брокерами, телеграм и легкими приложениями.


ПРАВИТЕЛЬСТВО МОСКВЫ
МОСКОМАРХИТЕКТУРА

РЕКОМЕНДАЦИИ
по проектированию специализированных
(коррекционных) детских домов
для детей-сирот и детей, оставшихся
без попечения родителей

2006

ПРЕДИСЛОВИЕ

1. РАЗРАБОТАНЫ: ГУП МНИИП «Моспроект-4» (архитекторы Любомудрова К.И., Кряжевских М. А., инженер Тихомирова И.Б.).

2. ПОДГОТОВЛЕНЫ К УТВЕРЖДЕНИЮ И ИЗДАНИЮ Управлением перспективного проектирования, нормативов и координации проектно-изыскательских работ Москомархитектуры.

3. СОГЛАСОВАНЫ: Департаментом образования города Москвы, Москомархитектурой.

4. УТВЕРЖДЕНЫ И ВВЕДЕНЫ В ДЕЙСТВИЕ приказом Москомархитектуры от 27.06.06 №134.

СОДЕРЖАНИЕ

ВВЕДЕНИЕ

Специальный (коррекционный) детский дом для детей-сирот и детей, оставшихся без попечения родителей, (далее СКДД) является самостоятельным типом общеобразовательного учреждения стационарного типа для детей и подростков, сирот и оставшихся без попечения родителей или родственников в раннем возрасте, страдающих нарушениями умственного развития. Это учреждение создает оптимальные условия для реабилитации, социальной адаптации, воспитания, образования, оздоровления и профессионального образования воспитанников.

Назначением СКДД является обеспечение психологической, медицинской и педагогической коррекции отклонений в психическом развитии детей и подростков, формирование их личности, их социальная реабилитация, включая адаптацию в обществе, а также условий, необходимых для получения общего среднего и начального профессионального образования.

1. ОБЛАСТЬ ПРИМЕНЕНИЯ.

1.1. Настоящие «Рекомендации» разработаны в развитие нормативных документов по проектированию и строительству, действующих на территории г. Москвы. Их положения распространяются на проектирование новых и реконструкцию существующих СКДД.

1.2. Настоящие «Рекомендации» устанавливают основные положения и требования к размещению, участку, территории, архитектурно-планировочным решениям и инженерному оборудованию СКДД.

1.3. Проектирование СКДД должно вестись в соответствии с положениями настоящих «Рекомендаций», а также требованиями нормативно-методических документов в строительстве, действующих на территории г. Москвы.

2. НОРМАТИВНЫЕ ССЫЛКИ.

В настоящих Рекомендациях приведены ссылки на следующие нормативно-методические документы:

СНиП 2.08.02-89* «Общественные здания и сооружения»;

СНиП 21-01-97* «Пожарная безопасность зданий и сооружений»;

СНиП 2.07.01-89* «Градостроительство. Планировка и застройка городских и сельских поселений»;

НПБ 88-2001 «Установки пожаротушения и сигнализации. Нормы и правила проектирования»;

СНиП 41-01-2003 «Отопление, вентиляция и кондиционирование воздуха»;

СНиП 23-05-95* «Естественное и искусственное освещение»;

СНиП 2.04.01-85* «Внутренний водопровод и канализация зданий»;

СП 2.4.990-00 «Гигиенические требования к устройству, содержанию, организации режима работы в детских домах и школах-интернатах для детей-сирот и детей, оставшихся без попечения родителей»;

СанПиН 2.2.1/2.1.1.1076-01 «Гигиенические требования к инсоляции и солнцезащите помещений жилых и общественных зданий и территорий»;

СанПиН 2.4.2.1178-02 «Гигиенические требования к условиям обучения в общеобразовательных учреждениях»;

СанПиН 2.2.1/2.1.1.1278-03 «Гигиенические требования к естественному, искусственному и совмещенному освещению в жилых и общественных зданиях»;

СанПиН 2.1.2.1188-03 «Плавательные бассейны. Гигиенические требования к устройству, эксплуатации и качеству воды. Контроль качества»;

СН 441-72* «Указания по проектированию ограждений площадок и участков предприятий, зданий и сооружений»;

МГСН 4.06-03 «Общеобразовательные учреждения»;

МГСН 4.15-98 «Общеобразовательные учреждения для детей-сирот и детей, оставшихся без попечения родителей»;

МГСН 1.01-99 «Нормы и правила проектирования, планировки и застройки г. Москвы»;

МГСН 4.32-97 «Лечебно-профилактические учреждения»;

МГСН 2.01-99 «Энергосбережение в зданиях»;

МГСН 4.07-96 «Дошкольные учреждения»;

«Рекомендации по проектированию образовательных учреждений для детей, нуждающихся в психолого-педагогической и медико-социальной помощи», М., 2000г.;

«Рекомендации по проектированию сети и зданий детских внешкольных учреждений для г. Москвы», М, 1997г.;

«Пособие по проектированию учреждений здравоохранения к СНиП 2.08.02-89*»;

«Проектирование бассейнов» Справочное пособие к СНиП 2.08.02-89*;

«Проектирование клубов» Справочное пособие к СНиП 2.08.02-89*.

3. ОБЩИЕ ПОЛОЖЕНИЯ.

3.1. Основной целью деятельности СКДД является реабилитация, социализация и профессиональная ориентация детей и подростков с нарушениями умственного развития, направленные на максимальную адаптацию этого контингента к самостоятельной жизни в обществе.

3.2. Основной задачей СКДД является создание условий максимально способствующих осуществлению процессов обучения и воспитания с учетом психического состояния воспитанников.

3.3. Предметом деятельности СКДД является:

- оказание медико-психологической и коррекционной помощи воспитанникам на основе индивидуальной диагностики;

- осуществление мер по социальной адаптации воспитанников к предстоящей самостоятельной жизни;

- организация образовательной деятельности по общеобразовательным программам (основным и дополнительным) и начального профессионального образования в соответствии с индивидуальными особенностями воспитанников;

- трудовое обучение по индивидуальным программам, включающим в себя подготовку воспитанников для индивидуальной трудовой деятельности;

- организация развивающего досуга;

- обеспечение охраны и укрепление здоровья воспитанников;

- обеспечение охраны прав и интересов воспитанников;

- организация питания и проживания воспитанников в соответствии с установленными нормами.

3.4. Контингент воспитанников СКДД составляют дети-сироты и дети, оставшиеся без попечения родителей, в возрасте от 3 до 18 лет с нарушениями умственного развития различной тяжести. В зависимости от тяжести нарушения СКДД подразделяются на следующие типы:

СКДД-1 - с задержкой психического развития;

СКДД-2 - умственно отсталые;

СКДД-3 - глубоко умственно отсталые или имеющие сложный дефект развития.

3.5. Структура и состав помещений учреждения определяются в зависимости от тяжести дефекта умственного развития воспитанников.

Структура и состав помещений СКДД-1 рассчитываются на использование городской социальной инфраструктуры. Его воспитанники должны обслуживаться муниципальными общеобразовательными учреждениями, учреждениями дополнительного образования, учреждениями начальной профессиональной подготовки (УПК), культурно-массовыми и спортивными учреждениями и т.п.

Структура и состав помещений СКДД-3 полностью рассчитываются на использование внутренней инфраструктуры. Его воспитанники не могут посещать обычные общеобразовательные учреждения, учреждения дополнительного образования, учреждения начальной профессиональной подготовки и т.п. Функции этих учреждений должны быть обеспечены за счет соответственно расширенной номенклатуры помещений.

Структура и состав помещений СКДД-2 могут быть сходными как СКДД-1, так и СКДД-3. Определяющим моментом в данном случае является наличие в непосредственной близости следующих учреждений: муниципального общеобразовательного, дополнительного образования и начальной профессиональной подготовки, осуществляющих работу с данным контингентом детей и подростков. При отсутствии подобных учреждений или части из них, их функции должны быть обеспечены в СКДД-2 за счет соответственно расширенной номенклатуры помещений.

3.6. От тяжести дефекта умственного развития воспитанников зависит также организация жилой группы. В зависимости от организации жилые группы подразделяются на:

- традиционного типа, в которых проживание воспитанников организуется по групповому (поло-возрастному) принципу, т.е. жилая группа рассчитана на проживание одновозрастных однополых воспитанников. Данный тип возможен для любого типа СКДД;

- семейного типа, в которых проживание воспитанников организуется по принципу «семьи». «Семья» состоит из детей разного пола и возраста при условии постоянного пребывания «мамы»-воспитателя. Жилая группа данного типа может быть организована только в СКДД-1.

3.7. Оптимальная вместимость СКДД - 50 мест.

3.8. Состав и площади помещений СКДД должны определяться заданием на проектирование в соответствии с Разделом 5 настоящих Рекомендаций.

4. ПОЛОЖЕНИЯ ПО РАЗМЕЩЕНИЮ, УЧАСТКУ И ТЕРРИТОРИИ.

4.1. СКДД следует размещать в селитебной зоне города.

СКДД-1 следует размещать вблизи муниципальных общеобразовательных школ, имеющих в своем составе классы выравнивания, с учетом радиуса пешеходной доступности.

В том случае, если в состав помещений СКДД-2 не входят помещения общего образования, учреждения следует размещать вблизи специализированных коррекционных общеобразовательных школ, с учетом радиуса пешеходной доступности. При наличии в составе СКДД-2 общеобразовательной группы помещений это требование не выдвигается.

СКДД-3 следует размешать в периферийной зоне города, вне жилой застройки.

4.2. Здания СКДД следует размещать на обособленных земельных участках.

4.3. Площадь участка СКДД определяются заданием на проектирование в соответствии с требованиями МГСН 1.01-99, табл. 8.4. из расчета не менее 80-120 м2 на 1 воспитанника.

При размещении СКДД-1 в непосредственной близости от парковой зоны площадь участка может быть уменьшена на 15%.

4.4. В составе территории участка СКДД предусматриваются следующие зоны:

- учебная и общественная;

- проживания;

- физкультурно-оздоровительная;

- медицинского изолятора;

- хозяйственная.

4.5. Состав и размеры зон участков определяются заданием на проектирование или проектом с учетом положений настоящего раздела.

4.6. В зоне размещения функциональных блоков учебного и общественного назначения рекомендуется предусматривать мощеную площадку для массовых сборов воспитанников из расчета 0,8 м2 на 1 воспитанника.

4.7. В зоне проживания рекомендуется предусматривать прогулочную территорию, оборудованную газонами, цветниками, навесами, скамейками для отдыха и т.п.

4.8. В физкультурно-оздоровительной зоне рекомендуется предусматривать игровые и спортивные площадки, теневые навесы для отдельных групп детей.

Площадь игровых площадок следует принимать из расчета 6-8 м2 на 1 воспитанника, исходя из одновременного присутствия всех детей дошкольного возраста и 40-50% детей школьного возраста. Площадки должны иметь травянисто-песчаный покров. На игровых площадках для детей дошкольного и младшего школьного возраста рекомендуется предусматривать следующее оборудование: качели, качалки, грибки, скамейки для отдыха, песочные дворики с ящиками для хранения песка, столы для игр с песком, а также оборудование для развития всех основных видов движения (для лазания, скатывания, перелезания).

Теневые навесы из расчета 2 м2 на 1 воспитанника должны примыкать к игровым площадкам и быть рассчитаны на проведение игр в плохую погоду, а также на возможность проведения занятий с детьми на воздухе. Теневые навесы должны иметь дощатый пол и ветрозащитные стенки с двух-трех сторон.

4.9. В составе физкультурно-оздоровительной зоны для воспитанников среднего и старшего школьного возраста рекомендуется предусматривать:

- баскетбольную и волейбольную площадки;

- гимнастическую площадку (15×16 м);

- комбинированную площадку для спортивных игр, метания мяча и прыжков (60×40 м).

Состав и количество физкультурных площадок определяются в каждом конкретном случае заданием на проектирование.

В зимнее время на территории физкультурных площадок в СКДД-1 и СКДД-2 рекомендуется организовывать каток.

Учитывая специфику контингента воспитанников СКДД-3, физкультурно-оздоровительную зону для детей и подростков школьного возраста следует оборудовать также качелями, качалками и т.п.

Учитывая нарушение двигательной функции у контингента СКДД-3, для него не предусматриваются занятия бегом, катание на роликовых коньках, скейтбордах, лыжах, велосипедах и т.п.

В составе физкультурно-оздоровительной зоны СКДД-3 рекомендуется предусматривать игровую площадку двигательной коррекции, набор оборудования которой уточняется заданием на проектирование в каждом конкретном случае.

4.10. Помимо оздоровительной функции, физкультурно-оздоровительные комплексы СКДД-2 и СКДД-3 являются также базой для проведения психолого-коррекционных мероприятий. На территории участка следует организовывать теплицу площадью 100 м2, работа в которой, во-первых, дает терапевтический эффект, во-вторых, является базой для подготовки специалистов-садовников.

4.11. Медицинский изолятор должен иметь самостоятельный выход на участок и подъездные пути, обеспечивающие возможность проезда специального медицинского транспорта для госпитализации заболевших.

4.12. Хозяйственная зона должна размещаться со стороны производственных помещений пищеблока. На ее территории допускается, при необходимости, размещать гараж с мастерскими, навесы для инвентаря и оборудования, мусоросборники и т.п. Отапливаемый гараж рекомендуется проектировать на 3 машины (1 - легковая, 1 - грузовая типа «газель», 1 -автобус) и использовать как для хозяйственных нужд учреждения, так и для обучения автоделу воспитанников СКДД-1 и СКДД-2. В составе гаража допускается предусматривать мастерскую.

4.13. Площадь озеленения территории участка СКДД-1 и СКДД- 2 должна составлять не менее 50% от общей площади участка. Озеленение участка включает групповые и рядовые посадки деревьев и кустарников, декоративные растения, цветники и газоны. Во избежание снижения освещенности в помещениях, кустарники следует высаживать не ближе 5 м, а деревья - 10 м от здания.

Площадь озеленения территории участка СКДД-3 должна составлять 40% от общей площади участка. Озеленение участка должно быть представлено газонами с низкорастущими декоративными растениями, кустарниками (не выше 50 см), цветниками и отдельно стоящими лиственными деревьями, размещаемыми в центральной зоне участка. Подобное озеленение позволит организовать постоянное наблюдение за воспитанниками.

4.14. Земельные участки СКДД-1 и СКДД-2 должны иметь решетчатое ограждение высотой не менее 1,5 м в соответствии с требованиями СН 441-72*.

Земельный участок СКДД-3 должен иметь глухое ограждение по всему периметру высотой не менее 2 м без выступов с наружной и внутренней сторон.

4.15. На участки СКДД-1 и СКДД-2 должно быть предусмотрено не менее двух въездов (один - хозяйственный).

Въезд и проход на территорию СКДД-3 осуществляется через контрольно-пропускной пункт. КПП оборудуется воротами и турникетом для сотрудников и посетителей.

4.16. Планировка участка должна обеспечивать подъезды пожарных машин ко всем зданиям и блокам, а также объезды вокруг них в соответствии с СНиП 21-01-97*. Подъезды должны иметь твердое покрытие и ширину не менее 3 м.

4.17. Участок СКДД должен быть освещен в соответствии с требованиями СНиП 23-05-95*.

4.18. Для автомашин сотрудников СКДД следует предусматривать открытую стоянку за пределами ограждаемой территории в соответствии с требованиями МГСН 1.01-99.

5. ПОЛОЖЕНИЯ ПО АРХИТЕКТУРНО-ПЛАНИРОВОЧНЫМ РЕШЕНИЯМ И ИНЖЕНЕРНОМУ ОБОРУДОВАНИЮ.

Общие положения.

5.1. В состав СКДД входят следующие функциональные группы помещений:

- вестибюльная;

- проживания;

- общего образования;

- профессиональной подготовки и дополнительного образования;

- лечебно-реабилитационная (психолого-коррекционные, коррекционные, медицинские);

- досуговая и физкультурно-оздоровительная;

- медицинского изолятора;

- питания;

- административно-хозяйственная.

Архитектурно-планировочные решения СКДД должны учитывать требования функционального зонирования помещений с учетом осуществляемой в них деятельности.

Состав и площади функциональных групп помещений, рассчитанных на работу с воспитанниками, определяются с учетом выполнения коррекционной функции.

5.2. Основными функциональными требованиями к планировочной организации зданий СКДД-1 и СКДД-2 являются требования обособления, изоляции и, одновременно, удобных технологических и коммуникационных связей между отдельными группами помещений. Допускается предусматривать проходы через отдельные функциональные группы помещений, исключая помещения групп проживания, общего образования и медицинского изолятора. Функциональная связь различных групп помещений может осуществляться через общее коммуникационное пространство.

5.3. Учитывая специфику контингента СКДД-3, отдельные блоки помещений, непосредственно рассчитанные на пребывание воспитанников, следует проектировать непроходными, с возможностью их изоляции в течение суток в зависимости от режима работы каждой группы помещений. Объединение различных групп помещений может осуществляться через общее коммуникационное пространство. В том случае, если в одном блоке размещены различные группы помещений, их следует проектировать поэтажно, предусматривая возможность изоляции.

Общая функционально-планировочная схема СКДД представлена на Рис. 1.

Рис. 1. Функционально-планировочная схема СКДД.

1. Вестибюльная группа помещений. 2. Помещения проживания. 3. Помещения питания. 4. Помещения общего образования. 5. Помещения профессиональной подготовки и дополнительного образования. 6. Помещения досугового и физкультурно-оздоровительного назначения: а. - досуговые; б. - физкультурно-оздоровительные. 7. Лечебно-реабилитационные помещения. 8. Медицинский изолятор. 9. Административно-хозяйственные помещения

Условные обозначения

Коммуникационное пространство

Обязательные связи

Необязательные связи

5.4. Объемно-планировочная структура здания должна обеспечивать оптимальные условия осуществления протекающих в нем функциональных процессов, отражать специфику учреждения и обеспечивать соответствующие условия эксплуатации и необходимую связь с участком.

5.5. При проектировании помещений СКДД рекомендуется пользоваться планировочными схемами отдельных помещений, приведенными в Приложении к настоящим Рекомендациям. Рекомендуемые площади помещений в зависимости от конкретных планировочных и конструктивных решений могут быть откорректированы (уменьшены или увеличены) не более чем на 15%.

5.6. Функциональные группы помещений могут размещаться в корпусах или блоках, непосредственно примыкающих друг к другу или соединенных отапливаемыми переходами. В случае непосредственного примыкания корпусов (блоков) должны предусматриваться пожарные отсеки площадью не более 5000 м2, разделяемые противопожарными стенами 1-го типа (в соответствии с требованиями СНиП 21-01-97*), а из каждого пожарного отсека должно быть предусмотрено не менее двух эвакуационных выходов, один из выходов допускается предусматривать в соседний блок.

5.7. Здания СКДД не должны превышать 4 этажей при условии размещения помещений, рассчитанных на использование дошкольниками, не выше 3 этажа.

5.8. Ширина лестничных маршей должна быть не менее 1,35 м. Лестничные марши должны быть оборудованы поручнями на разной высоте (0,9 м и 0,7-0,75 м) в соответствии с положениями МГСН 4.15-98.

Ширину дверей помещений группы проживания и административно-хозяйственного назначения следует принимать 0,8 м; в помещениях остальных групп - не менее 0,9 м.

Ширину коридоров во всех группах помещений, рассчитанных на работу с детьми, следует принимать не менее 2,2 м; а в группе помещений административно-хозяйственного назначения следует принимать не менее 1,4 м.

Ширина рекреационных помещений в группе помещений общего образования должна приниматься не менее 4 м.

5.9. Высота наземных этажей здания СКДД должна быть не менее 3,3 м (от пола до пола вышележащего этажа). В СКДД-1 и СКДД-2 высота зрительного зала принимается по технологическим требованиям, высота спортзала - 6 м (до низа несущих конструкций). Высота бассейна во всех типах СКДД принимается 6 м (до низа несущих конструкций).

5.10. Внутренняя отделка помещений СКДД должна быть выполнена из материалов, разрешенных для применения органами государственного санитарного надзора, допускающих влажную уборку, а также применение дезинфицирующих средств.

5.11. В помещениях рекреаций и холлах рекомендуется организовывать уголки релаксации с зелеными насаждениями, фонтанчиками, аквариумами и живыми уголками.

5.12. Естественное, искусственное и совмещенное освещение в помещениях следует проектировать в соответствии с требованиями СанПиН 2.2.1/2.1.1.1278-03.

5.13. Рабочие места в учебных помещениях, а также в помещениях мастерских и кружковых должны иметь естественное освещение с КЕО не менее 1,5 на поверхности столов и освещаться боковым с левой стороны светом. Для организации мобильных форм (групповых и индивидуальных) ведения занятий необходимо предусматривать равномерное освещение по всей рабочей плоскости в помещении за счет дополнительного верхнего света или дополнительного искусственного освещения в глубине помещения.

5.14. Допускается не предусматривать естественного освещения:

- в зрительном зале или зале проведения массовых мероприятий;

- в коммуникациях и коридорах, не являющихся рекреационными помещениями;

- в умывальных, душевых и уборных при спортивном зале, тренажерном зале, бассейне;

- в санитарных узлах для персонала, комнатах личной гигиены женщин;

- в радиоузле;

- в столовой для персонала;

- в кладовых инвентаря, комнатах хранения уборочного инвентаря;

- в помещениях технических служб.

В зависимости от архитектурно-планировочного решения допускается проектировать с искусственным освещением санитарные узлы для детей и подростков в группе проживания (при соблюдении необходимой кратности обмена воздуха).

5.15. Санитарные узлы и туалетные комнаты в СКДД проектируются с учетом специфики работы каждого подразделения в соответствии с положениями МГСН 4.15-98, МГСН 4.06-03, СП 2.4.990-00.

Учитывая специфику контингента воспитанников СКДД-3, размещений санитарных приборов осуществляется только в общих санитарных узлах в кабинах, огороженных экранами.

Внутренний водопровод и канализацию следует проектировать в соответствии с положениями СНиП 2.04.01-85*.

Санитарные узлы для персонала следует размещать поэтажно. В состав оборудования санитарных узлов следует включать унитаз и умывальник.

Кабины личной гигиены для женщин (персонала) рекомендуется размещать в административно-хозяйственной группе помещений. В состав оборудования кабин входят: унитаз, умывальник, биде.

5.16. В комнатах хранения уборочного инвентаря следует предусматривать умывальник и слив. Данные помещения следует размещать поэтажно, кроме случаев, оговоренных особо в настоящих Рекомендациях.

5.17. Инсоляцию помещений, в которых находятся дети, следует предусматривать в соответствии с требованиями СанПиН 2.2.1/2.1.1.1076-01.

5.18. Отопление и вентиляцию зданий следует проектировать в соответствии с требованиями СНиП 41-01-2003, МГСН 2.01-99.

5.19. Энергоснабжение, электрооборудование, электрическое освещение здания и наружное освещение территории следует предусматривать в соответствии с требованиями МГСН 2.06-99, СанПиН 2.2.1/2.1.1.1278-03, МГСН 2.01-99.

5.20. Проектирование зданий должно осуществляться с учетом принципов максимального энергосбережения в соответствии с требованиями МГСН 2.01-99.

5.21. Здания следует проектировать не менее II степени огнестойкости в соответствии с требованиями СНиП 21-01-97*.

5.22. В зданиях должна быть предусмотрена автоматическая пожарная сигнализация в соответствии с требованиями НПБ 88-2001. Перечень помещений, в которых необходимо предусматривать автоматическую пожарную сигнализацию, следует определять в соответствии с МГСН 4.06-03 и МГСН 4.15-98. Сигнал о срабатывании системы AПC (автоматической пожарной сигнализации) выводится в помещение с круглосуточным пребыванием персонала.

5.23. На путях эвакуации из здания должно быть предусмотрено аварийное и эвакуационное освещение, проектируемое в соответствии с требованиями СНиП 21-01-97* и СНиП 23-05-95*.

Вестибюльная группа помещений.

5.24. Состав и площади помещений вестибюльной группы СКДД определяются заданием на проектирование. Рекомендуемые состав и площади приведены в таблице 5.1.

5.25. Вход во все блоки различных групп помещений, как правило, осуществляется через вестибюльную группу.

5.26. Гардероб для верхней одежды персонала и посетителей рекомендуется предусматривать в отдельном помещении при вестибюле.

5.27. В состав вестибюльной группы рекомендуется включать комнату свиданий воспитанников с посетителями.

5.28. В состав вестибюльной группы следует включать пост дежурного администратора (охраны) с помещением для отдыха. Пост охраны должен быть оборудован телефоном, тревожной «кнопкой», пожарной сигнализацией и т.п.

5.29. Входы в вестибюль и служебные входы в здание следует оборудовать тамбурами.

Таблица 5.1.

Рекомендуемые состав и площади помещений вестибюльной группы.

№ п.п.

Наименование помещений

Площадь помещений, м2

Примечание

На 1 место

Всего

1

2

3

4

5

1.

Вестибюль

0,2

Не менее 30

С учетом 100% численности персонала и посетителей (25% от числа воспитанников)

2.

Гардероб для верхней одежды персонала и посетителей

0,15

-

 

3.

Комната свиданий воспитанников с посетителями

-

12

 

4.

Помещение для отдыха дежурного администратора (охраны)

-

10

В ночное время используется для вахтера

5.

Санитарный узел с умывальником

-

2

 

6.

Комната хранения уборочного инвентаря

-

3

 

Помещения проживания.

5.30. Состав и площади помещений проживания определяются заданием на проектирование. Рекомендуемые состав и площади приведены в таблице 5.2.

5.31. Помещения проживания следует размещать в корпусе или блоке, непосредственно примыкающем к блокам других групп помещений или соединенном с ними теплым переходом.

5.32. Интерьеры и оборудование помещений проживания должны быть максимально приближены к домашним.

5.33. Помещения проживания традиционного типа в СКДД-1 и СКДД-2 рекомендуется проектировать в виде изолированных секций, организованных по поло-возрастному принципу, и состоящих из двух жилых групп на 10 воспитанников каждая. Количество секций в учреждении определяется заданием на проектирование в зависимости от общего количества воспитанников.

5.34. В состав помещений жилой группы традиционного типа СКДД-1 и СКДД-2 для детей дошкольного возраста входят:

- раздевальная, оборудованная шкафом для сушки одежды и обуви, а также встроенными шкафами для раздельного хранения верхней одежды и обуви;

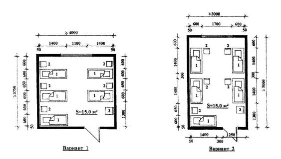
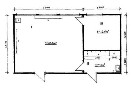
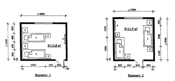
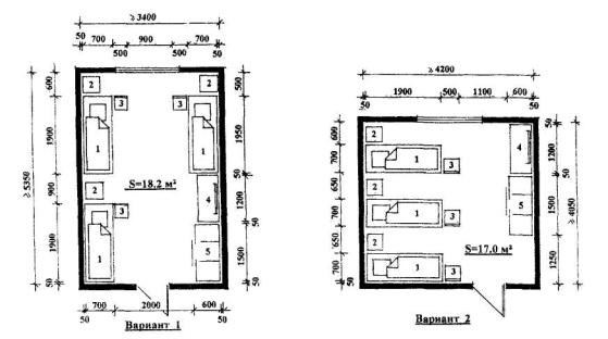
- две спальные комнаты на 5 мест (см. Приложение 2, Рис. П.1.), которые проектируются из расчета 3 м2 на 1 воспитанника и оборудуются кроватями и детскими стульями по числу воспитанников, а также стулом воспитателя;

- игровая - комната групповых занятий (см. Приложение 2, Рис. П.2.), в оборудование которой следует включать мягкую мебель, столик для телевизора и видеомагнитофона, столы и стулья по количеству воспитанников, стеллажи для хранения пособий, игр и игрушек. При проведении групповых занятий (психолого-коррекционных, ситуационных игр и т.п.) столы могут быть составлены в один;

- санитарный узел, который следует оборудовать из расчета: 5 детских умывальников, 4 детских унитаза в открытых кабинах с перегородкой-экраном;

- душевая, которую следует оборудовать: 2 душевых поддона с душевой сеткой на гибком шланге, 1 полотенцесушитель, 2 ногомойки, скамья для раздевания, вешалка для одежды;

- гардеробная для хранения одежды воспитанников, оборудованная секционными шкафами с количеством секций по числу детей в группе.

5.35. В состав помещений жилой группы традиционного типа СКДД-1 и СКДД-2 для детей школьного возраста входят:

- раздевальная, оборудованная шкафом для сушки одежды и обуви, а также встроенными шкафами для раздельного хранения верхней одежды и обуви;

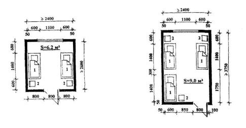
- две спальные комнаты на 2 места (см. Приложение 2, Рис. П.3.);

- две спальные комнаты на 3 места (см. Приложение 2, Рис. П.4.);

- комната дневного пребывания;

- санитарный узел;

- душевая;

- гардеробная для хранения одежды воспитанников, оборудованная секционными шкафами с количеством секций по числу детей в группе.

5.36. Спальные комнаты следует проектировать из расчета 6 м2 на 1 воспитанника. В состав оборудования следует включать: кровати, тумбочки, стулья по количеству проживающих, секционный шкаф для хранения личных вещей и одежды детей с количеством секций по числу проживающих в комнате. В спальной комнате для девочек следует предусматривать комод с зеркалом.

5.37. Назначение многофункциональной комнаты дневного пребывания:

- приготовление уроков;

- проведение психолого-коррекционных занятий;

- проведение досуга (организация игр, просмотр телевизионных передач и т.п.).

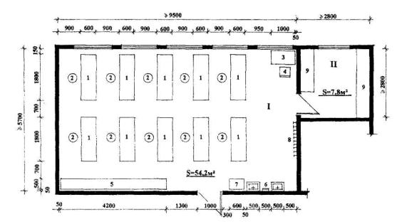
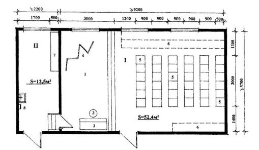
В состав оборудования комнаты дневного пребывания следует включать ученические столы со стульями по количеству воспитанников, мягкую мебель, журнальный столик, столик для телевизора и видеомагнитофона, стеллаж для настольных игр и т.п., рабочий стол с полками для посуды, с микроволновой печью и электрическим чайником, мойку (см. Приложение 2, Рис. П.5.).

5.38. В состав оборудования санитарного узла следует включать: 4 унитаза в закрывающихся кабинах, 4 умывальника. В санитарном узле для мальчиков следует предусмотреть 2 писсуара. При санитарном узле для девочек следует предусматривать комнату личной гигиены, оборудованную биде, умывальником, унитазом.

В состав оборудования душевой следует включать: 2 душевых поддона с душевыми сетками на гибком шланге в закрывающихся кабинках, 1 полотенцесушитель, 2 ногомойки, скамья для раздевания, вешалка для одежды.

5.39. В состав жилой секции входят:

- две жилые группы;

- бытовая комната;

- кладовая хранения сезонной одежды;

- комната дежурного воспитателя;

- санитарный узел персонала;

- комната хранения уборочного инвентаря.

В состав оборудования комнаты дежурного воспитателя следует включать диван, кресло, стол, стул.

В составе помещений секции, рассчитанной на проживание детей дошкольного возраста при обосновании допускается размещение кабинета логопеда (см. таблицу 5.5. настоящих Рекомендаций) и мастерской ручного труда для дошкольников (см. п. 5.88. настоящих Рекомендаций).

В секции для детей школьного возраста при обосновании допускается размещение кабинета психолога (см. таблицу 5.5. настоящих Рекомендаций).

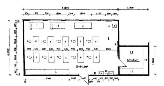
Функционально-планировочная схема жилой секции для школьников традиционного типа СКДД-1 и СКДД-2 представлена на Рис.2.

5.40. Помещения проживания традиционного типа в СКДД-3 рекомендуется проектировать в виде изолированных секций, организованных по поло-возрастному принципу, и состоящих из двух жилых групп на 5 воспитанников каждая. Количество секций в учреждении определяется заданием на проектирование в зависимости от общего количества воспитанников.

Секции для мальчиков и девочек следует размещать поэтажно с возможностью полной изоляции.

Секция для детей дошкольного возраста состоит из двух жилых групп: для мальчиков и для девочек.

Рис. 2. Функционально-планировочная схема жилой секции традиционного типа для школьников в СКДД - 1 и СКДД - 2.

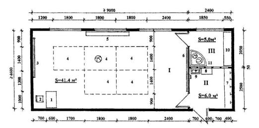
I - Помещения жилой группы: 1. Спальная комната на 2 места; 2. Спальная комната на 3 места; 3. Комната дневного пребывания; 4. Гардеробная для хранения одежды воспитанников; 5. Санитарный узел; 6. Душевая.

II - Помещения на жилую секцию: 7. Бытовая комната; 8. Кладовая хранения сезонной одежды; 9. Комната дежурного воспитателя; 10. Санитарный узел персонала, 11. Комната хранения уборочного инвентаря.

5.41. В состав помещений жилой группы традиционного типа СКДЦ-3 для детей дошкольного возраста входят:

- раздевальная, оборудованная шкафом для сушки одежды и обуви, а также встроенными шкафами для раздельного хранения верхней одежды и обуви;

- спальная комната на 5 мест (см. Приложение 2, Рис. П.1.), которая проектируется из расчета 3 м2 на 1 воспитанника и оборудуется кроватями и детскими стульями по числу воспитанников, а также стулом воспитателя;

- игровая - комната групповых занятий (см. Приложение 2, Рис. П.6.), в оборудование которой следует включать мягкую мебель, столик для телевизора и видеомагнитофона, столы и стулья по количеству воспитанников, шкаф для хранения пособий, игр и игрушек. При проведении групповых занятий (психолого-коррекционных, ситуационных игр и т.п.) столы могут быть составлены в один;

- санитарный узел, который следует оборудовать из расчета: 5 детских умывальников, 4 детских унитаза в открытых кабинах с перегородкой-экраном;

- душевая, которую следует оборудовать: 2 душевых поддона с душевой сеткой на гибком шланге, 1 полотенцесушитель, 2 ногомойки, скамья для раздевания, вешалка для одежды;

- гардеробная для хранения одежды воспитанников, оборудованная секционными шкафами с количеством секций по числу детей в группе.

5.42. В состав помещений жилой группы традиционного типа СКДД-3 для детей школьного возраста входят:

- раздевальная, оборудованная шкафом для сушки одежды и обуви, а также встроенными шкафами для раздельного хранения верхней одежды и обуви;

- спальная комната на 2 места (см. Приложение 2, Рис. П.7.);

- спальная комната на 3 места (см. Приложение 2, Рис. П.8.);

- комната дневного пребывания (см. Приложение 2, Рис. П.9.);

- санитарный узел;

- душевая;

- гардеробная для хранения одежды воспитанников, оборудованная секционными шкафами с количеством секций по числу детей в группе.

5.43. Входы в спальные комнаты проектируются с дверными проемами без дверного полотна для организации наблюдения за воспитанниками в ночное время.

Спальные комнаты следует проектировать из расчета 6 м2 на 1 воспитанника. В оборудование спальных комнат следует включать: кровати, тумбочки, стулья по количеству проживающих в комнате. В жилой группе для девочек в спальных комнатах следует предусмотреть зеркало.

5.44. Назначение многофункциональной комнаты дневного пребывания:

- приготовление уроков;

- проведение психолого-коррекционных занятий;

- проведение досуга (организация игр, просмотр телевизионных передач и т.п.).

В состав оборудования комнаты дневного пребывания следует включать ученические столы со стульями по количеству воспитанников, мягкую мебель, журнальный столик, столик для телевизора и видеомагнитофона, шкаф для хранения настольных игр и т.п.

При проведении групповых психолого-коррекционных занятий или игр отдельно стоящие столы составляются в один.

5.45. В состав оборудования санитарного узла следует включать: 4 унитаза в открытых кабинах с перегородкой-экраном, 4 умывальника. В санитарном узле в секции для мальчиков следует предусмотреть 2 писсуара. При санитарном узле в секции для девочек следует предусматривать гигиенический отсек в открытой кабине с перегородкой-экраном, оборудованный биде, умывальником, унитазом.

В состав оборудования душевой следует включать: 2 душевых поддона с душевыми сетками на гибком шланге в открытых кабинах с перегородкой-экраном, 1 полотенцесушитель, 2 ногомойки, скамья для раздевания, вешалка для одежды.

5.46. В состав жилой секции входят:

- две жилые группы;

- столовая;

- буфетная с моечной посуды, оборудованная шкафом для хранения столовой посуды, 2-гнездовой мойкой, столом, шкафом для сушки посуды;

- кабинет логопеда;

- кабинет дефектолога;

- бытовая комната;

- кладовая хранения сезонной одежды;

- кабинет дежурной медицинской сестры;

- санитарный узел персонала;

- комната хранения уборочного инвентаря.

Учитывая специфику контингента СКДД-3, кабинеты дефектолога и логопеда используются для ежедневных занятий с каждым из воспитанников в свободное от учебы время. Они рассчитаны на проведение индивидуальной работы с воспитанником.

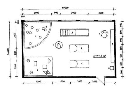
Столовая рассчитывается на одновременное пребывание 10 чел. Площадь столовой в секции, рассчитанной на проживание детей дошкольного возраста, принимается из расчета 1,0 м2 на 1 посадочное место, в секции для детей школьного возраста - 1,5 м2 на 1 посадочное место (в соответствии с положениями СП 2.4.990-00). В секции для детей школьного возраста мытье столовой посуды осуществляется силами самих воспитанников. Моечная посуды является в данном случае коррекционным помещением, основное назначение которого - социально-бытовая адаптация.

В составе помещений секции, рассчитанной на проживание детей дошкольного возраста, рекомендуется предусматривать: кабинет развития моторики (см. п. 5.90. настоящих Рекомендаций); кабинет «вода-песок» (см. п. 5.91. настоящих Рекомендаций).

В составе помещений секции, рассчитанной на проживание детей школьного возраста, рекомендуется предусматривать кабинет коррекционных игр «лего» (см. п. 5.85. настоящих Рекомендаций).

Кабинеты развития моторики, «вода-песок» и коррекционных игр «лего» организуются непосредственно в помещениях проживания для уменьшения миграции воспитанников по учреждению в свободное от учебы время. Данные кабинеты позволяют организовать ежедневное проведение необходимых коррекционных мероприятий.

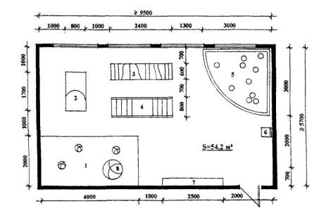
Функционально-планировочная схема жилой секции для школьников традиционного типа СКДД-3 представлена на Рис. 3.

Рис. 3. Функционально-планировочная схема жилой секции традиционного типа для школьников в СКДД - 3.

I - Помещения жилой группы: 1. Спальная комната на 2 места; 2. Спальная комната на 3 места; 3. Комната дневного пребывания; 4. Гардеробная для хранения одежды воспитанников; 5. Санитарный узел; 6. Душевая.

II - Помещения на жилую секцию: 7. Кладовая хранения сезонной одежды; 8. Буфетная; 9. Столовая; 10. Кабинет дежурной медсестры; 11. Бытовая комната; 12. Санитарный узел персонала, 13. Комната хранения уборочного инвентаря.

5.47. Вход в жилую секцию в СКДД-3 оборудуется запирающейся дверью.

5.48. Помещения проживания семейного типа в СКДД-1 рекомендуется проектировать в виде изолированных жилых групп на 7 воспитанников каждая.

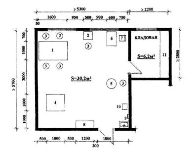
5.49. В состав помещений жилой группы семейного типа СКДД-1 входят:

- раздевальная, оборудованная шкафом для сушки одежды и обуви, а также шкафом для раздельного хранения верхней одежды и обуви;

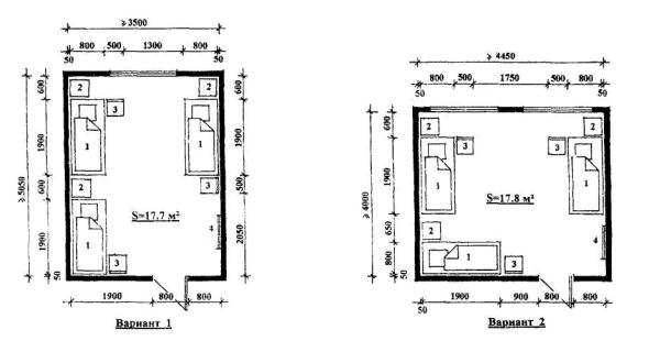
- спальная на 2 или 3 места для детей дошкольного возраста (см. Приложение 2, Рис. П. 10), в состав оборудования которой следует включать кровати и стулья по числу проживающих. Площадь комнаты определяется из расчета 3 м2 на 1 воспитанника;

- 2 спальные комнаты на 2 или 3 места для детей школьного возраста (см. Приложение 2, Рис. П.3. и П.4.). Спальные комнаты для мальчиков и для девочек следует предусматривать отдельными из расчета 6 м2 на 1 воспитанника. В состав оборудования следует включать: кровати, тумбочки, стулья по количеству проживающих, секционный шкаф для хранения личных вещей и одежды детей с количеством секций по числу проживающих в комнате. В спальной комнате для девочек следует предусматривать комод с зеркалом;

- гостиная-столовая (см. Приложение 2, Рис. П.11.), в состав оборудования которой следует включать обеденный стол, стулья, три ученических стола для индивидуальных занятий, диван, стеллаж. Данная комната может служить также для приготовления уроков, проведения занятий по групповой психотерапии и т.п.;

- комната тихого отдыха (см. Приложение 2, Рис. П.12.), в состав оборудования которой следует включать мягкую мебель, журнальный столик, ковер, столик для телевизора и видеомагнитофона, стеллаж для хранения настольных игр и игрушек;

- 2 санитарных блока при жилых комнатах для мальчиков и для девочек. Каждый санитарный блок должен состоять из изолированного санитарного узла (оборудование: унитаз, умывальник; в санитарном узле для девочек - биде) и душевой (оборудование: 1 душевая сетка, полотенцесушитель; скамья для раздевания, вешалка для одежды);

- комната воспитателя, которую следует располагать рядом со спальной комнатой для дошкольников. В состав оборудования комнаты следует включать диван, стол, кресло, стул;

- буфетная с моечной посуды, в состав оборудования которой следует включать шкаф для хранения столовой посуды, 2-гнездовую мойку, стол, шкаф для сушки посуды (в данном случае это помещение является коррекционным, основное назначение которого - социально- бытовая адаптация).

- кладовая для хранения вещей воспитанников;

- бытовая комната;

- комната хранения уборочного инвентаря.

5.50. Во всех типах помещений проживания кладовые для хранения чистого и грязного белья рекомендуется размещать поэтажно общим на 2-3 секции.

Таблица 5.2.

Рекомендуемые состав и площади помещений проживания.

№ № п.п.

Наименование помещений

Площадь помещений, м2

Примечания

1

2

3

4

1. Помещения проживания традиционного типа СКДД-1 и СКДД-2

1.1. Жилая группа для дошкольников

1.

Раздевальная

16

 

2.

Спальная на 5 мест (2 шт.)

15×2=30

Приложение 2, Рис. П.1.

3.

Игровая - комната групповых занятий

42

Приложение 2, Рис. П.2.

4.

Санитарный узел

10

 

5.

Душевая

8

 

6.

Гардеробная

8

 

1.2. Жилая группа для школьников

1.

Раздевальная

16

 

2.

Спальная на 2 места (2 шт.)

12×2=24

Приложение 2, Рис. П.3.

3.

Спальная на 3 места (2 шт.)

18×2=36

Приложение 2, Рис. П.4.

4.

Комната дневного пребывания

40

Приложение 2, Рис. П.5.

5.

Санитарный узел

10

 

6.

Душевая

8

 

7.

Гардеробная для хранения одежды воспитанников

8

 

1.3. Общие помещения жилой секции

1.

Комната дежурного воспитателя

10

 

2.

Санузел персонала

3

В состав санузла входят: унитаз, умывальник, душ

3.

Кладовая хранения сезонной одежды

6

 

4.

Бытовая комната

6

 

5.

Комната хранения уборочного инвентаря

3

 

2. Помещения проживания традиционного типа СКДД-3

2.1. Жилая группа для дошкольников

1.

Раздевальная

16

 

2.

Спальная на 5 мест

15

Приложение 2, Рис. П.1.

3.

Игровая - комната групповых занятий

36

Приложение 2, Рис. П.6.

4.

Санитарный узел

10

 

5.

Душевая

8

 

6.

Гардеробная

8

 

2.2. Жилая группа для школьников

1.

Раздевальная

16

 

2.

Спальная на 2 места

12

Приложение 2, Рис. П.7.

3.

Спальная на 3 места

18

Приложение 2, Рис. П.8.

4.

Комната дневного пребывания

26

Приложение 2, Рис. П.9.

5

Санитарный узел

10

 

6.

Душевая

8

 

7.

Гардеробная для хранения одежды воспитанников

8

 

2.3. Общие помещения жилой секции

1.

Столовая в секции для дошкольников

10

 

2.

Столовая в секции для школьников

15

 

3.

Буфетная

9

 

4.

Кабинет дежурной медсестры

8

 

5.

Санузел персонала

3

В состав санузла входят: унитаз, умывальник, душ

6.

Кладовая хранения сезонной одежды

6

 

7.

Бытовая комната

6

 

8.

Комната хранения уборочного инвентаря

3

 

3. Помещения проживания семейного типа СКДД-1

1.

Раздевальная

16

 

2.

Спальная на 2 места

 

 

 

- для дошкольников

6

Приложение 2, Рис. П.10.

 

- для школьников

12

Приложение 2, Рис. П.3.

3.

Спальная на 3 места

 

 

 

- для дошкольников

9

Приложение 2, Рис. П.10.

 

- для школьников

18

Приложение 2, Рис. П.4.

4.

Гостиная-столовая

24

Приложение 2, Рис. П.11.

5.

Комната тихого отдыха

24

Приложение 2, Рис. П.12.

6.

Санитарный блок для мальчиков

4

 

7.

Санитарный блок для девочек

4

 

8.

Комната воспитателя

6

 

9.

Буфетная с моечной посуды

9

 

10.

Кладовая для хранения вещей воспитанников

6

 

11.

Бытовая комната

6

 

12.

Комната хранения уборочного инвентаря

3

 

Помещения общего образования.

5.51. Состав и площади помещений общего образования определяются заданием на проектирование. Рекомендуемые состав и площади приведены в таблице 5.3. Данную группу помещений следует предусматривать в СКДД-3; в СКДД-1 и СКДД-2 - в случае, если общеобразовательный процесс осуществляется в стенах учреждения.

5.52. Данная группа помещений обеспечивает проведение мероприятий, направленных на:

- обучение по образовательным программам в соответствии с возрастными и индивидуальными особенностями детей и подростков, на уровне, предусмотренном законом «Об образовании», и соответствующее их психофизическому развитию;

- психолого-педагогическую помощь в усвоении образовательных программ.

5.53. Наполняемость учебных помещений принимается в СКДД-1 12 чел.

Наполняемость учебных помещений в СКДД-2 принимается 10 чел.

Наполняемость учебных помещений в СКДД-3 принимается 5 чел.

5.54. В составе группы помещений общего образования в СКДД-1 предусмотрены универсальные классные помещения и специализированные кабинеты: физики-химии, иностранного языка, биологии, компьютерный класс. Учебные помещения должны отвечать требованиям активного ведения учебного урока с организацией как фронтальных, так групповых и индивидуальных форм обучения с широким привлечением технических средств. Количество универсальных классных помещений определяется в каждом конкретном случае заданием на проектирование в зависимости от общей вместимости учреждения и возрастного состава воспитанников.

5.55. В составе группы помещений общего образования в СКДД-2 и СКДД-3 следует предусматривать универсальные классные помещения, площадью не менее 3,5 м2 на 1 воспитанника, которые проектируются с расстановкой одноместных парт на расстоянии не менее 0,7 м друг от друга. Количество классных помещений определяется в каждом конкретном случае заданием на проектирование.

Учитывая отсутствие специализации классных помещений, в состав оборудования универсальных классных помещений не входят стеллажи с пособиями. Хранение пособий следует предусматривать в специализированном помещении со стеллажами, которое следует организовывать при учительской.

5.56. В СКДД-3 помещения общего образования (классы, коридоры) должны быть свободны от лишних деталей, отвлекающих внимание воспитанников (никакого ненужного украшательства). На окнах рекомендуется вывешивать шторы, гармонирующие по цвету с окраской стен.

5.57. В состав помещений общего образования СКДД следует включать библиотеку с книгохранилищем без читального зала. Если в СКДД-1 и СКДД-2 отсутствует группа помещений общего образования, библиотеку с книгохранилищем следует размещать в группе досуговых помещений.

5.58. Учебные помещения должны быть оборудованы умывальниками.

5.59. Проектирование санитарных узлов при учебных помещениях осуществляется в соответствии с положениями МГСН 4.06-03.

Таблица 5.3.

Рекомендуемые состав и площади помещений общего образования.

№№п.п.

Наименование помещений

Площадь помещении, м2

Примечания

1

2

3

4

Помещения общего образования СКДД-1

1.

Класс

42

К-во по заданию на проектирование

2.

Кабинет занятий физикой и химией с двумя лаборантскими

50+9×2

 

3.

Кабинет биологии с лаборантской

50+14

 

4.

Кабинет иностранного языка

40

 

5.

Компьютерный класс

35

 

Помещения общего образования СКДД-2

1.

Класс

35

К-во по заданию на проектирование

Помещения общего образования СКДД-3

1.

Класс

18

К-во по заданию на проектирование

Общие помещения СКДД-1, СКДД-2 и СКДД-3

1.

Библиотека:

 

 

 

- книгохранилище на 100000 единиц хранения

35

Размещаются смежно

 

- комната выдачи книг

10

 

2.

Рекреация

 

Поэтажно, 2 м2 на 1 учащегося

3.

Методический кабинет

24

 

4.

Кабинет заведующего учебной частью

14

 

5.

Кабинет социального педагога

14

 

6.

Учительская

36

 

7.

Кладовая для хранения учебных пособий

8

 

8.

Санитарный узел для учащихся с умывальниками в шлюзе

10

3 унитаза, 3 умывальника

9.

Санитарный узел персонала с умывальником

2

 

10.

Комната хранения уборочного инвентаря

3

 

Помещения профессиональной подготовки и дополнительного образования.

5.60. Состав и площади помещений профессиональной подготовки и дополнительного образования определяются заданием на проектирование. Рекомендуемые состав и площади приведены в таблице 5.4.

5.61. Причинами объединения в единый блок группы помещений профессиональной подготовки и группы помещений дополнительного образования являются:

- сходные функции данных групп помещений;

- для воспитанников СКДД-1 и СКДД-2 отдельные помещения профессиональной подготовки служат также помещениям дополнительного образования (автодело, обработка дерева, ювелирная и т.п.);

- для воспитанников СКДД-3 помещения дополнительного образования, в которых осуществляется обучение различным видам ремесел (лозоплетение, бисероплетение, вышивание, вязание и т.п.), являются помещениями профессиональной подготовки.

5.62. Данная группа помещений обеспечивает проведение мероприятий, направленных на:

- предоставление воспитанникам возможности получения профессиональной подготовки;

- приобретение воспитанниками трудовых навыков, необходимых для выполнения определенной работы и дающих возможность самостоятельного жизнеобеспечения в последующем;

- раскрытие врожденных склонностей воспитанника;

- проведение терапевтической коррекционной работы, заключающейся в развитии различных видов моторики у воспитанников.

5.63. Организация профессиональной подготовки и дополнительного образования воспитанников осуществляется в соответствии с их психофизическим развитием и имеет практическую направленность. Номенклатура видов профессиональной подготовки и дополнительного образования должна предоставлять воспитанникам возможность индивидуального подбора занятий, наиболее эффективно корректирующих их дефекты и позволяющих наиболее точно выбрать возможное направление будущей профессиональной деятельности.

5.64. Наполняемость мастерских профессиональной подготовки и помещений дополнительного образования в СКДД-1 и СКДД-2 принимается 10 чел.

Наполняемость мастерских профессиональной подготовки и помещений дополнительного образования в СКДД-3 принимается 5 чел.

5.65. Выбор профилей профессиональной подготовки и видов дополнительного образования для контингента СКДД-1 и СКДД-2 не ограничивается.

Рекомендуемый состав мастерских профессиональной подготовки для мальчиков: картонажная, по обработке металла, по обработке дерева, ювелирная, автодело (теория), малярная, штукатурная и т.п. Практические занятия по автоделу проводятся в гараже и на территории учреждения. Рекомендуемый состав мастерских профессиональной подготовки для девочек: картонажная, ювелирная, швейная, вязальная, изготовления головных уборов и т.п. В Приложении 2 представлены возможные варианты организации мастерских профессиональной подготовки (см. Приложение 2, Рис. П.13. - Рис. П.16.).

Рекомендуемый состав мастерских дополнительного образования приведен в таблице 5.4.

5.66. Выбор профиля профессиональной подготовки и вида дополнительного образования для воспитанников СКДД-3 осуществляется в соответствии с психофизическими особенностями воспитанников - возможность производить простейшие операции, построенные на полном воспроизведении действий педагога.

Рекомендуемый состав мастерских профессиональной подготовки: картонажная, переплетная, производство мебели, слесарная, малярная, штукатурная и т.п.

Рекомендуемый состав мастерских дополнительного образования приведен в таблице 5.4.

5.67. Количество мастерских дополнительного образования в каждом конкретном случае определяется заданием на проектирование в зависимости от состава контингента воспитанников на данный момент. Рекомендуемое количество в СКДД-1 и СКДД-2 составляет 2 мастерские; в СКДД-3 - 5 мастерских, т.к. в данном случае эти помещения несут на себе функцию профессиональной подготовки.

5.68. При проектировании мастерских следует предусмотреть возможность их перепрофилирования с учетом требований изменяющегося контингента воспитанников, а также востребованности тех или иных специальностей.

5.69. При помещениях профессиональной подготовки и дополнительного образования следует предусматривать кладовые для хранения материалов и готовых изделий.

5.70. В мастерских профессиональной подготовки следует предусматривать стол мастера, инструментальные шкафы, вешалки для спецодежды и умывальники с подводкой горячей и холодной воды (не менее 2-х умывальников на группу).

Помещения штукатурной и малярной мастерских должны дополнительно оборудоваться мойкой для мытья инструментов со специальным сливом.

5.71. В помещениях профессиональной подготовки, в которых технологические процессы связаны с выделением пыли, следует предусматривать местные отсосы и общеобменные вентиляционные системы в соответствии со СНиП 41-01-2003.

5.72. При расстановке оборудования в мастерских профессиональной подготовки рекомендуется обеспечивать следующие требования:

- расстояние между ученическими слесарными верстаками (столярными верстаками, рабочими столами и т.п.) в ряду не менее 0,9 м, между их рядами - не менее 0,7 м;

- оборудование рабочих мест табуретами с возможностью изменения высоты.

5.73. Механическая и слесарная мастерские не предназначены для обучения воспитанников. Основное их назначение - ремонт и подготовка инвентаря к работе. В состав оборудования механической мастерской входят следующие станки: токарный, для заточки пил, для заточки ножей, сверлильный. В состав оборудования слесарной мастерской входят станки, предназначенные для подготовки слесарных инструментов к работе.

Таблица 5.4.

Рекомендуемые состав и площади помещений профессиональной подготовки и дополнительного образования.

№№ п./п.

Наименование помещений

Площадь помещений, м2

Примечания

1.

2

3

4

Помещения профессиональной подготовки

Помещения профессиональной подготовки в СКДД-1 и СКДД-2

1.

Мастерские профессиональной подготовки с кладовыми

54+8

Приложение 2,

Рис. П.13.

Рис. П.14.

Рис. П.15.

Рис. П.16.

2.

Мастерская автодела (теория)

32

 

Помещения профессиональной подготовки в СКДД-3

1.

Мастерские профессиональной подготовки с кладовыми

30+6

 

Помещения дополнительного образования

Помещения дополнительного образования в СКДД-1 и СКДД-2

1.

Изостудия

39

Приложение 2, Рис. П.17.

2.

Театрально-художественная мастерская с кладовой (костюмерная)

49+6

Приложение 2, Рис. П.18.

3.

Кукольная мастерская (изготовление) с кладовой

40+6

Приложение 2, Рис. П.19.

4.

Мастерская выжигания по дереву

42

Приложение 2, Рис. П.20.

5.

Мастерская лепки и обжига с кладовой

40+6

Приложение 2, Рис. П.21.

6.

Мастерская ткачества с кладовой

54+6

 

7.

Мастерская рукоделия (вязания, вышивания, бисероплетения)

36

 

8.

Швейная мастерская

42

Приложение 2, Рис. П.22.

9.

Мастерская изготовления поделок из кожи

36

 

Помещения дополнительного образования в СКДД-3

1.

Мастерская выжигания по дереву с кладовой

26+6

 

2.

Мастерская лепки и обжига с кладовой

30+6

Приложение 2, Рис. П.23.

3.

Мастерская ткачества с кладовой

35+6

Приложение 2, Рис. П.24.

4.

Мастерская лозоплетения)

26

 

5.

Мастерская рукоделия (вязания, вышивания, бисероплетения)

27

Приложение 2, Рис. П.25.

Вспомогательные помещения (СКДД-1, СКДД-2 и СКДД-3)

1.

Комната мастеров

25

 

2.

Механическая мастерская с подсобным помещением для работы мастеров

25+12

 

3.

Слесарная мастерская с подсобным помещением для работы мастеров

25+12

 

4.

Кладовые для хранения сырья, материалов и готовой продукции

24

 

5.

Санитарный узел для воспитанников с умывальниками в шлюзе

10

3 унитаза, 3 умывальника

6.

Санитарный узел персонала с умывальником

2

 

7.

Комната хранения уборочного инвентаря

3

 

Лечебно-реабилитационные помещения (психолого-коррекционные. коррекционные и медицинские).

5.74. Состав и площади лечебно-реабилитационных помещений определяются заданием на проектирование. Рекомендуемые состав и площади приведены в таблице 5.5.

5.75. Группа лечебно-реабилитационных помещений предназначена для проведения мероприятий, направленных на:

- оздоровление и профилактику, лечение физических и психических заболеваний у воспитанников;

- нормализацию психического состояния воспитанников;

- преодоление отклонений в эмоционально-волевой сфере воспитанников;

-социально-средовую адаптацию воспитанников;

- социально-бытовую адаптацию воспитанников.

5.76. Группа медицинских помещений рассчитана на профилактику соматических заболеваний у воспитанников и общее укрепление организма.

5.77. Медицинские помещения следует проектировать с учетом положений МГСН 4.12-97 и Пособия по проектированию учреждений здравоохранения к СНиП 2.08.02-89*. Все кабинеты, входящие в данную группу (кроме указанных особо), рассчитаны на индивидуальную работу с воспитанниками.

5.78. Группу медицинских помещений следует располагать в непосредственной близости от помещений медицинского изолятора. При обосновании допускается размещение кабинетов логопеда и психолога в группе помещений проживания СКДД-1 и СКДД-2. В СКДД- 3 кабинеты логопеда и дефектолога следует располагать в составе жилых секций (см. п. 5.46. настоящих Рекомендаций).

5.79. В СКДД-1 и СКДД-2 кабинет групповых занятий ЛФК (см. Приложение 2, Рис. П.26) рассчитан на проведение занятий в группе из 10 чел. Данное помещение рекомендуется использовать также для проведения гимнастических занятий для дошкольников.

В СКДД-3 кабинет групповых занятий ЛФК (см. Приложение 2, Рис. П.27) рассчитан на проведение занятий в группе из 5 чел.

5.80. Кабинеты детского психиатра и психотерапевта могут быть объединены в один.

5.81. Психолого-коррекционные помещения предназначены для проведения мероприятий, направленных на:

- индивидуальную психологическую коррекцию;

- преодоление социальной дезадаптации.

5.82. В СКДД для проведения занятий групповой психотерапии рекомендуется использовать комнаты дневного пребывания в группе помещений проживания.

5.83. Кабинет психо-эмоциональной коррекции рассчитан как на проведение индивидуальной психологической реабилитации, так и групповой (5 чел.) (см. Приложение 2, Рис. П.28). В рекомендуемый состав оборудования кабинета входят воздушно-пузырьковые колонны; напольное фибро-оптическое волокно; настенное водяное панно; настенный комплекс акриловых зеркал; настенное колесо со спецэффектами «облако»; столик-этажерка с магнитофоном, проектором, прибором для аромотерапии; напольное оптическое панно «млечный путь», настенная ультрофиолетовая панель с нитями. В помещении следует предусматривать ковер с мягким ворсом для проведения занятий на полу.

5.84. Коррекционные помещения предназначены для проведения мероприятий, направленных на:

- социально-средовую адаптацию воспитанников;

- социально-бытовую адаптацию воспитанников;

- развитие моторики на основе уроков ручного труда с формированием обобщенных приемов умственной работы.

5.85. В состав коррекционных помещений следует включать кабинет коррекционных игр «лего». В состав оборудования данного кабинета рекомендуется включать столы на 1 воспитанника, которые в случае проведения групповых занятий могут быть составлены в один стол, закрывающиеся шкафы с пособиями, стол специалиста.

В СКДД-1 и СКДД-2 данный кабинет рассчитан на проведение занятий в группе из 10 чел.

В СКДД-3 данный кабинет рассчитан на проведение занятий в группе их 5 чел. Его следует располагать в составе жилой секции для школьников (см. п. 5.46. настоящих Рекомендаций) (см. Приложение 2, Рис. П.29).

5.86. Основное назначение зала ситуационных игр, входящего в состав коррекционных помещений, - социально-средовая адаптация воспитанников. В состав оборудования зала следует включать стол, за которым проводятся занятия всех присутствующих, закрывающиеся шкафы с пособиями, стол специалиста.

В СКДД-1 и СКДД-2 данное помещение рассчитано на проведение занятий в группе из 10 чел.

В СКДД-3 данное помещение рассчитано на проведение занятий в группе из 15 чел. (см. Приложение 2, Рис. П.30).

5.87. В состав данной группы помещений рекомендуется включать кабинет развивающих игр «компьютер», который оборудуется столами на 1 воспитанника с компьютерами, стеллажами, столом преподавателя с компьютером.

В СКДД-1 и СКДД-2 кабинет рассчитан на проведение занятий в группе из 10 чел. При наличии группы общеобразовательных помещений в СКДД-1 функции данного кабинета выполняет компьютерный кабинет в группе помещений общего образования.

В СКДД-3 кабинет рассчитан на проведение занятий в группе из 5 чел.

5.88. Кабинет ручного труда для дошкольников следует предусматривать в СКДД-1 и СКДД-2 (см. Приложение 2, Рис. П.31). Он представляет собой помещение, включающее зону изготовления поделок и зону кукольного театра. В состав оборудования зоны изготовления поделок следует включать круглый стол для всех занимающихся со стульями, стеллажи для хранения материалов, поделок и т.п., умывальник. Зону кукольного театра следует оборудовать ширмой. Основное назначение данного кабинета - развитие у детей моторики на основе уроков ручного труда с формированием обобщенных навыков умственной работы. Кабинет рассчитан на проведение занятий в группе из 10 чел. Данный кабинет рекомендуется размещать в СКДД- 1 и СКДД-2 в составе жилой секции для дошкольников.

5.89. Кабинет творческого труда для детей школьного возраста предназначен для развития бытовых навыков самообслуживания: шитья, починки одежды, глажения и т.п. В состав оборудования кабинета следует включать стол (не менее 3 м длиной), стулья по количеству занимающихся, шкафы для хранения материалов, поделок и т.п., гладильную доску, кронштейны для вывешивания выполняемой продукции, примерочную с зеркалом, стол мастера со стулом, классную доску, умывальник, мусоросборник.

В СКДД-1 и СКДД-2 данный кабинет следует рассчитывать на проведение занятий в группе из 10 чел. (см. Приложение 2, Рис. П.32).

В СКДД-3 данный кабинет следует рассчитывать на проведение занятий в группе из 5 чел.

5.90. Кабинет развития моторики следует предусматривать в СКДД-3. Помещение рассчитано на проведение занятий в группе из 5 чел. В состав оборудования входят ковер с мячами разного диаметра, туннель, следовая дорожка, горка-лесенка, сухой бассейн, скамья (см. Приложение 2, Рис. П.33). Основная задача данного помещения - развитие двигательных функций у детей дошкольного возраста со сложным дефектом развития. Рекомендуется размещать данное помещение в составе жилой секции для дошкольников (см. п.5.46. настоящих Рекомендаций).

5.91. Кабинет «вода-песок» следует предусматривать в СКДД-3. Данное помещение рассчитано на проведение занятий в группе из 2 чел. В состав оборудования входят ванна, емкость для песка, скамья, вешалка для одежды, полотенцесушитель, поручни, лестница в ванну (см. Приложение 2, Рис. П.34). Основная задача данного помещения - проведение психолого-коррекционных мероприятий с детьми дошкольного возраста. Рекомендуется размещать данное помещение в составе жилой секции для дошкольников (см. п.5.46. настоящих Рекомендаций).

5.92. Кабинет социально-бытовой адаптации (кулинарного творчества) предназначен для развития у воспитанников бытовых навыков самообслуживания. Он представляет собой помещение, включающее зону приготовления пищи (кухня) и зону приема пищи (столовая). В оборудование кухни рекомендуется включать разделочный стол, плиту, холодильник, шкаф сухих продуктов, шкаф кухонной посуды, мойку. В оборудование столовой входят: обеденные столы со стульями, сервант.

В СКДД-1 и СКДД-2 кабинет рассчитан на проведение занятий в группе из 10 чел. (см. Приложение 2, Рис. П.35).

В СКДД-3 кабинет рассчитан на проведение занятий в группе из 5 чел.

Таблица 5.5.

Рекомендуемые состав и площади лечебно-реабилитационных помещений (психолого-коррекционных, коррекционных и медицинских).

№ № п.п.

Наименование помещений

Площадь помещений, м2

Примечания

1

2

3

4

Медицинские помещения

1.

Кабинет врача - педиатра

10

 

2.

Кабинет детского психиатра и психотерапевта

10

 

3.

Кабинет логопеда

10

 

4.

Кабинет стоматолога

16

 

5.

Кабинет медицинской сестры - процедурная

12

 

6.

Фитокабинет с кладовой

10+3

 

7.

Ингаляторий на 3 места со стерилизационной

12

 

8.

Кабинет физиотерапии

24

 

9.

Кабинет групповых занятий ЛФК с раздевальной и кладовой:

 

 

- в СКДД-1 и СКДД-2 на 10 чел

66+6+9

Приложение 2, Рис. П.26.

- в СКДД-3 на 5 чел.

41+6+5

Приложение 2, Рис. П.27.

10.

Кабинет массажа на 1 место

8

 

Психолого-коррекционные помещения

1.

Кабинет психолога

10

 

2.

Кабинет психо-эмоциональной коррекции

18

Приложение 2, Рис. П.28.

Коррекционные помещения

1.

Кабинет коррекционных игр «лего»:

 

 

 

- в СКДД-1 и СКДД-2 на 10 чел.

22

 

 

- в СКДД-3 на 5 чел.

18

Приложение 2, Рис. П.29.

2.

Зал ситуационных игр:

 

 

 

- в СКДД-1 и СКДД-2 на 10 чел.

30

 

 

-вСКДД-3 на 15 чел.

37

Приложение 2, Рис. П.30,

3.

Кабинет коррекционных игр «компьютер»:

 

 

 

- в СКДД-1 и СКДД-2 на 10 чел.

35

 

 

- в СКДД-3 на 5 чел.

26

 

4.

Кабинет ручного труда для дошкольников

30

Приложение 2, Рис. П.31.

5.

Кабинет творческого труда для детей школьного возраста:

 

 

 

- в СКДД-1 и СКДД-2 на 10 чел.

36

Приложение 2, Рис. П.32.

 

- в СКДД-3 на 5 чел.

28

 

6.

Кабинет развития моторики

54

Приложение 2, Рис. П.33.

7.

Кабинет «вода-песок»

16

Приложение 2, Рис. П.34.

8.

Кабинет социально-бытовой адаптации:

 

 

 

- в СКДД-1 и СКДД-2 на 10 чел.

32

Приложение 2, Рис. П.35.

 

- в СКДД-3 на 5 чел.

22

 

Общие помещения

1.

Санитарные узлы для воспитанников с умывальниками в шлюзе

10

3 унитаза, 3 умывальника

2.

Санитарный узел персонала с умывальником

2

 

3.

Комната хранения уборочного инвентаря

4

 

Досуговые и физкультурно-оздоровительные помещения.

5.93. Состав и площади досуговых и физкультурно-оздоровительных помещений определяются заданием на проектирование. Рекомендуемые состав и площади приведены в таблице 5.6.

5.94. Эта группа помещений обеспечивает проведение мероприятий, направленных на:

- культурное и эстетическое развитие;

- проведение массовых мероприятий;

- развитие врожденных склонностей воспитанников, формирование их культурных интересов;

- физическое развитие.

5.95. В состав досуговых помещений СКДД-1 и СКДД-2 рекомендуется включать актовый зал, рассчитанный на 120% от вместимости учреждения (в расчете на персонал и гостей).

В СКДД-3 в состав досуговых помещений следует включать зал для проведения массовых мероприятий с подиумом, рассчитанный на одновременное присутствие 36 чел. (5 групп воспитанников + 5 человек персонала + 6 гостей). Данный зал является одновременно также помещением для проведения мероприятий по социально-средовой адаптации воспитанников. Количество зрительских мест в ряду должно быть кратно количеству воспитанников в группе с воспитателем, т.е. 6 чел.

Места в залах рекомендуется предусматривать съемными, секционными со складированием по периметру зала. Освобождаемая в этом случае площадь зала может быть использована для проведения игр, танцев, музыкальных занятий для дошкольников и т.п.

5.96. На базе актового зала и зала проведения массовых мероприятий рекомендуется организовывать кружки эстетического воспитания: театральный, танцевальный, музыкальный и хорового искусства.

5.97. Расчетная одновременная загрузка спортзала в СКДД-1 и СКДД-2 - 10 чел. При зале предусматриваются 2 раздевальные, на 5 чел. каждая.

При спортивном зале предусматривается снарядная, смежная с ним.

5.98. Тренажерный зал в СКДД-1 и СКДД-2 рассчитан на проведение занятий в группе из 10 чел. При зале проектируется 2 раздевальные, на 5 чел. каждая.

5.99. Для организации досуга детей дошкольного и младшего школьного возраста в СКДД-1 и СКДД-2 при обосновании по заданию на проектирование допускается предусматривать игровой зал (см. Приложение 2, Рис. П.37), в состав оборудования которого входят: сухой бассейн, ковер с мячами и геометрическими фигурами, горка для скатывания, туннели разной высоты, скамья, большие мячи диаметром не менее 90 см.

5.100. В СКДД-3 зал гимнастических занятий и тренажерный зал рассчитаны на проведение занятий в группе из 5 чел. Раздевальные при зале гимнастических занятий и тренажерном зале проектируются на 5 чел. (см. Приложение 2, Рис. П.38).

Раздевальные и кладовые для хранения спортивного инвентаря располагаются смежно с залом гимнастических занятий и тренажерным залом.

Зал гимнастических занятий при необходимости может использоваться для проведения занятий по борьбе и тяжелой атлетике.

5.101. Проектирование бассейна следует осуществлять в соответствии с положениями справочного пособия «Проектирование бассейнов» к СНиП 2.08.02-89* и СанПиН 2.1.2.1188-03. Рекомендуемый размер ванны бассейна для обучения плаванию и оздоровления 6×10 м, глубина допускается 0,6 м - в мелкой части и 1,25 м - в глубокой.

В СКДД-1 и СКДД-2 бассейн допускается включать в состав физкультурно-оздоровительных помещений по заданию на проектирование. Одновременная загрузка бассейна - 10 чел.

В СКДД-3 бассейн является обязательной составляющей физкультурно-оздоровительных помещений, т.к. на его базе осуществляется коррекция двигательных дефектов воспитанников. Плавание является наиболее эффективным средством как достижения коррекционных целей, так и физического развития организма детей со сложными дефектами развития, которые, как правило, отличаются одновременно недоразвитием как психики, так и телосложения. Одновременная загрузка бассейна - 5 чел.

5.102. Между душевой и бассейном предусматривается ножная ванна, глубиной 15 см. Размер ножной ванны 1,8 м по направлению движения от душевой к чаше бассейна и на ширину прохода.

5.103. При бассейне в СКДД-1 и СКДД-2 следует проектировать 2 раздевальные на 5 чел. каждая. Площадь раздевальной следует рассчитывать, исходя из нормы 0,72 м2 на 1 дошкольника и 1,2 м2 на 1 воспитанника школьного возраста. В раздевальной для девочек следует предусматривать установку для сушки волос.

5.104. При бассейне в СКДД-3 следует проектировать раздевальную на 5 чел. Площадь раздевальной с душевой и санитарным узлом следует предусматривать не менее 2, 5 м2 на 1 воспитанника. В раздевальной следует предусматривать установку для сушки волос.

5.105. В СКДД рекомендуется дополнительно предусматривать помещения для хранения санок, лыж и велосипедов, площади которых определяются заданием на проектирование.

Таблица 5.6.

Рекомендуемые состав и площади досуговых и физкультурно-оздоровительных помещений

№ № п.п.

Наименование помещений

Площадь помещений, м2

Примечания

На 1 место

всего

1

2

3

4

5

Досуговые помещения

1.

Актовый зал в СКДД-1 и СКДД-2

1,0

-

Кол-во мест 120% от вместимости СКДД

2.

Эстрада при зале в СКДД-1 и СКДД-2

-

36

Глубина эстрады не менее 4 м

3.

Зал для проведения массовых мероприятий на 36 мест с кладовой в СКДД-3

-

52+13

Приложение 2, Рис. П.36.

4.

Кинопроекционная с перемоточной и радиоузлом

 

10

 

5.

Помещение для артистов

-

8

 

6.

Фильмовидеотека

-

4

 

7.

Кладовая аппаратуры и музыкальных инструментов

-

14

 

8.

Санитарные узлы для мальчиков и для девочек с умывальниками в шлюзе

-

10×2

3 унитаза, 3 умывальника

9.

Комната хранения уборочного инвентаря

-

3

 

Физкультурно-оздоровительные помещения

Физкультурно-оздоровительные помещения в СКДД-1 и СКДД-2

1.

Спортивный зал

-

162 (9×18)

 

2.

Раздевальные для воспитанников с душевыми и санитарными узлами

-

16×2

По 2 душевые, 1 унитазу и умывальнику на раздевальную

3.

Снарядная

-

16

Смежно со спортивным залом

4.

Тренажерный зал

-

54

 

 

- раздевальные

 

7×2

 

5.

Зал для занятий настольным теннисом

-

24

 

6.

Игровой зал для дошкольников и младших школьников

-

58

Приложение 2, Рис. П.37.

Физкультурно-оздоровительные помещения в СКДД-3

1.

Зал гимнастических занятий с раздевальной и кладовой

-

37+7+13

Приложение 2, Рис. П.38.

2.

Тренажерный зал с раздевальной и кладовой

-

37+7+13

 

Общие помещения для СКДД-1, СКДД-2 и СКДД-3

1.

Бассейн с ванной 6×10 м

-

114

 

2.

Инвентарная при бассейне

-

10

 

3.

Раздевальные при бассейне:

 

 

 

 

- в СКДД-1 и СКДД-2 - 2 шт на 5 чел.

-

6×2

 

 

- в СКДД-3 - 1 шт. на 5 чел.

-

6

 

4.

Душевые при раздевальных включая ножную ванну:

 

 

 

 

- в СКДД-1 и СКДД-2 - на 2 раздевальные

-

6x2

2 душевые сетки

 

- в СКДД-3 - на 1 раздевальную

-

6

2 душевые сетки

5.

Уборные при раздевальных с умывальником:

-

-

 

 

- в СКДД-1 и СКДД-2 - на 2 раздевальные

-

2×2

 

 

- в СКДД-3 - на 1 раздевальную

-

2

 

6.

Комната инструкторов-методистов с санузлом

-

10+3

В состав оборудования санузла входят: унитаз, умывальник, душ

7.

8.

9.

Комната медсестры

Лаборатория анализа воды

Узел управления

-

-

-

Должны располагаться смежно и иметь выход на обходную дорожку

10

Помещение хранения химических реактивов

-

4

 

11.

Реагентная

-

4

 

12.

Помещение хранения уборочного инвентаря

-

3

 

Помещения медицинского изолятора.

5.106. Состав, площади помещений и вместимость медицинского изолятора определяются заданием на проектирование. Рекомендуемые состав и площади приведены в таблице 5.7.

5.107. Рекомендуемая вместимость изолятора - 5-10% от числа воспитанников.

5.108. Помещения изолятора следует размещать на первом этаже здания при организации самостоятельного выхода на участок.

5.109. Помещения изолятора соединяются с остальными помещениями СКДД через тамбур-шлюз, в котором следует размещать умывальник и вешалку для смены халатов.

5.110. В состав помещений изолятора следует включать изоляционные палаты на 1 и 3 чел. Количество палат в каждом конкретном случае определяется заданием на проектирование в соответствии с учетом п. 5.107. настоящих Рекомендаций.

5.111. Между изоляционными палатами и коридором следует предусматривать глухие (не открывающиеся) окна для наблюдения за детьми.

5.112. Для организации питания детей, находящихся в изоляторе, в состав его помещений следует включать буфетную с моечной посуды. Моечную следует оборудовать тремя моечными ванными и баком для дезинфекции посуды.

5.113. В состав помещений изолятора следует включать санузел и туалетную. Рекомендуемое оборудование санитарного узла: унитаз, умывальник; туалетной: унитаз, умывальник, ванна. Вход в санузел и туалетную следует проектировать из коридора изолятора.

Таблица 5.7.

Рекомендуемый состав и площади помещений медицинского изолятора.

№№ п.п.

Наименование помещений

Площадь помещений, м2

Примечания

1

2

3

4

1.

Изоляционная палата на 1 место

6

К-во по заданию на проектирование

2.

Изоляционная палата на 3 места

18

К-во по заданию на проектирование

3.

Санитарный узел для воспитанников

4

 

4.

Туалетная для воспитанников

5

 

5

Процедурная

8

 

6.

Кабинет дежурной медицинской сестры

10

 

7.

Раздевальная с санузлом для персонала

4+3

Состав оборудования санузла: душ, унитаз, умывальник

8.

Буфетная с моечной посуды

3+5

 

9.

Кладовая со шкафами для чистого и грязного белья

4

 

10.

Комната хранения уборочного инвентаря

3

 

Помещения питания.

5.114. Питание для воспитанников СКДД организуется в одну смену. В СКДД-1 и СКДД-2 при организации помещений проживания традиционного типа питание организуется в общей столовой; в СКДД-1 при организации системы проживания «семейного» типа - в гостиных жилых групп; в СКДД-3 - в столовых жилых секций.

5.115. Площадь обеденного зала общей столовой в СКДД-1 и СКДД-2 принимается из расчета 1,5 м2 на 1 посадочное место для школьников и 1,0 м2 на 1 посадочное место для дошкольников (в соответствии с положениями СП 2.4.990-00). При зале предусматривается умывальная из расчета 3 м2 (1 умывальник) на каждые 18-20 мест.

В случае организации питания дошкольников в СКДД-1 и СКДД-2 в жилых группах вместимость обеденного зала рассчитывается на количество школьников.

5.116. Производственные помещения кухни следует, как правило, рассчитывать на работу на сырье. Кроме питания детей, помещения кухни должны обеспечивать питание персонала.

5.117. В кухне следует предусматривать раздаточную с удобным доступом к внутренним коммуникационным связям: коридору для доставки пищи в изолятор, лифту для подъема пищи в жилые группы в СКДД-1 и в жилые секции в СКДД-3. Допускается размещать лифт смежно с раздаточной.

5.118. В производственные помещения кухни должен предусматриваться отдельный вход.

5.119. Для питания персонала предусматривается обеденный зал самообслуживания (или буфет) из расчета 1,0 м2 на 1 посадочное место. Его допускается располагать в составе помещений кухни или в группе административных помещений. Количество мест определяется заданием на проектирование, исходя из количества питающихся в учреждении, продолжительности обеденного времени и количества смен. При зале предусматривается подсобное помещение, площадью 8 м2, предназначенное для раздачи пищи, хранения и мойки посуды.

5.120. Учитывая специфику контингента воспитанников СКДД (большое количество детей с хроническими заболеваниями в запущенной форме) в состав производственных помещений кухни следует включать кабинет диетсестры.

5.121. Состав и площади производственных помещений кухни определяются заданием на проектирование. Рекомендуемые состав и площади приведены в таблице 5.8.

Таблица 5.8.

Рекомендуемые состав и площади производственных помещений кухни

№ № п.п.

Наименование помещений

Площадь помещений, м2

Примечания

1

2

3

4

1.

2.

70

 

3.

4.

24

 

5.

Хлеборезка, хранение хлеба

8

 

6.

Цех мучных изделий

14

 

7.

Раздаточная

18

 

8.

Сервизная

8

 

9.

Моечная кухонной посуды

10

 

10.

Моечная столовой посуды

18

 

11.

Охлаждаемая камера для хранения:

 

 

- молочных продуктов

8

 

- рыбы, мяса

8

 

- яиц

6

 

12.

Кладовая сухих продуктов

6

 

13.

Кладовая овощей

12

 

14.

Кладовая суточного запаса

8

 

15.

Помещение первичной обработки овощей (коренной цех)

12

 

16.

Загрузочная, кладовая тары

14

 

17.

Камера утилизации отходов с техническим сливом

4

 

18.

Комната заведующего производством

8

 

19.

Кабинет диетсестры

8

 

20.

Бельевая, гардеробная персонала, душевая, уборная

18

 

21.

Комната хранения уборочного инвентаря

4

 

Административно-хозяйственные помещения.

5.122. Состав и площади административно-хозяйственных помещений определяются заданием на проектирование. Рекомендуемые состав и площади приведены в таблице 5.9.

5.123. Кладовую чистого белья, кладовую грязного белья, комнату глажения и починки белья и одежды рекомендуется располагать рядом с постирочной.

5.124. Постирочная, дезкамера, кладовые, инвентарные, ремонтные мастерские могут располагаться в подвальном помещении.

5.125. Помещения постирочной, дезкамеры, кладовой сезонной одежды и обуви следует оборудовать принудительной вентиляцией.

5.126. В состав административно-хозяйственных помещений допускается включать помещение парикмахерской на 1 рабочее место.

Таблица 5.9.

Рекомендуемые состав и площади помещений административно-хозяйственного обслуживания.

№ № п.п.

Наименование помещений.

Площадь помещений, м2

Примечания.

1

2

3

4

1.

Кабинет директора

36

 

2.

Приемная

18

 

3.

Канцелярия

12

Смежно с кабинетом директора

4.

Кабинет заместителя директора по воспитательной работе

14

 

5.

Кабинет заместителя директора по обеспечению безопасной жизнедеятельности

14

 

6.

Кабинет заместителя директора по социальной защите

14

 

7.

Кабинет заместителя директора по хозяйственной части

10

 

8.

Помещение дежурного персонала технического обслуживания

14

 

9.

Бухгалтерия с кассой

18+4

 

10.

Комната сестры-хозяйки

12

 

11.

Комната психологической разгрузки персонала

18

 

12.

Комната отдыха персонала

36

 

13.

Компьютерный центр с архивом

24+10

 

14.

Помещение пожарного поста

12

 

15.

Кладовая чистого белья с починочной

20

 

16.

Кладовая грязного белья

16

 

17.

Постирочная с помещением для разборки белья и кладовой

10+22+8

 

18.

Дезкамера

6

 

19.

Парикмахерская

8

 

20.

Ремонтная мастерская с подсобным помещением (ремонт обуви)

10+3

 

21.

Ремонтная мастерская с подсобным помещением (ремонт мебели)

22+10

 

22.

Кладовые, инвентарные

80

 

23.

Санитарные узлы для мужчин и женщин с умывальниками

2×2

 

24.

Кабины личной гигиены для женщин

2

Разместить при санитарном узле

25.

Комната хранения уборочного инвентаря

3

 

26.

Гараж на 3 машины, мастерская

90

 

 

27.

Комната водителей

10

 

 

28.

Санузел с умывальником

2

 

 

ПРИЛОЖЕНИЯ

Приложение 1.

Концептуальные основы организации СКДД-3.

В основу организации СКДД-3 положено создание учебно-воспитательного учреждения, обеспечивающего специальные условия для индивидуальной коррекции отклонений в развитии, а также социальной реабилитации детей и подростков, оставшихся без попечения родителей в раннем возрасте, с учетом их психо-физических особенностей и различных сопутствующих нарушений умственного развития.

Детям и подросткам данной группы, как правило, свойственны снижение работоспособности, низкий уровень активности познавательной деятельности, замедление переработки информации, ограничение в объеме и непрочность памяти, незрелость эмоциональной сферы, несфомированность произвольного поведения, отставание в развитии речи, несбалансированность процессов торможения и возбуждения, отклонения в развитии двигательной сферы, нарушение моторики кистей и пальцев рук. Взаимоотношения со средой у подобных несовершеннолетних характеризуется как состояние хронической дезадаптации. Основные концептуальные положения организации учреждения строятся на указанной выше специфике психо-физического развития данного контингента СКДД-3 и заключаются в следующем:

- в обеспечении активного приспособления воспитанников к условиям социальной среды на основе групп «малого контакта», т.е. групп проживания и обучения численностью не более 5 чел (по мнению психологов оптимальное число для осуществления коррекционной деятельности), и нежелательности одновременного постоянного пребывания нескольких групп в одном помещении из-за нарушения эмоционального комфорта и психического равновесия воспитанников;

- в учете особенностей речевого и психического развития воспитанников, требующих ежедневного вмешательства специалистов - логопеда и дефектолога, непосредственно по месту проживания;

- в организации постоянного медицинского наблюдения за воспитанниками по месту проживания (предотвращение психических срывов несовершеннолетних);

- в необходимости коррекции отклонений в развитии двигательной сферы с применением массажа и занятий ЛФК;

- в средовой адаптации воспитанников на основе ситуационных игр (одновременное пребывание 3 групп) и массовых мероприятий (одновременное пребывание 5 групп);

- в необходимости развития бытовых навыков самообслуживания, социально-бытовая адаптация непосредственно в условиях жилых групп (самостоятельное мытье столовой посуды, накрывание на стол, уборка помещений, стирка носильных вещей и т.п.);

- в формировании у воспитанников рефлексии, связанной с мотивацией обучения, осознанностью действий и самоконтролем при выполнении собственных действий;

- в развитии моторики на основе ручного труда с формированием обобщенных навыков умственной работы;

- в профориентации каждого воспитанника по индивидуальной программе на основе выявленных предпочтений и возможностей, а также расширенной номенклатуры видов профессионального и дополнительного образования;

- в коррекции двигательных дефектов воспитанников на основе подбора специальных физкультурно-оздоровительных занятий, в том числе плаванием - наиболее эффективным средством достижения как коррекционных целей, так и физического развития организма аномальных детей, как правило, отличающихся недоразвитием телосложения и психики одновременно.

Приложение 2.

Примеры планировочных решений.

Экспликация оборудования

1. Кровать

2. Стул детский

3. Стул воспитателя

Рис. П.1. Варианты расстановки оборудования в спальных комнатах на 5 мест для дошкольников в СКДД -1 и СКДД - 2.

Экспликация оборудования

1. Телевизор с видеомагнитофоном

2. Кресло

3. Диван

4. Стол

5. Стульчик

6. Стеллаж

Рис. П.2. Игровая - комната групповых занятий для дошкольников вСКДД-1иСКДД-2.

Экспликация оборудования

1. Кровать

2. Тумбочка

3. Стул

4. Комод с зеркалом (в спальнях для девочек)

5. Секционный платяной шкаф

Рис. П.3. Варианты расстановки оборудования в спальных комнатах на 2 места для школьников в СКДД -1 и СКДД- 2.

Экспликация оборудования

1. Кровать

2. Тумбочка

3. Стул

4. Комод с зеркалом (в спальнях для девочек)

5. Секционный платяной шкаф

Рис. П.4. Варианты расстановки оборудования в спальных комнатах на 3 места для школьников в СКДД -1 и СКДД - 2.

Экспликация оборудования

1. Ученический стол

2. Стул

3. Стол воспитателя

4. Тумба с телевизором и видеомагнитофоном

5. Мягкая мебель

6. Журнальный столик

7. Стеллаж

8. Рабочий стол

9. Микроволновая печь

10. Электрический чайник

11. Мойка с вешалкой для полотенца

Рис. П.5. Комната дневного пребывания для школьников в СКДД - 1 и СКДД - 2.

Экспликация оборудования

1. Тумба с телевизором и видеомагнитофоном

2. Кресло

3. Диван

4. Стол детский

5 Стул детский

6. Шкаф для игр и игрушек

Рис. П.6. Игровая - комната групповых занятий для дошкольников в СКДД - 3.

Экспликация оборудования

1. Кровать

2. Тумбочка

3. Стул

4. Зеркало (в спальных для девочек)

Рис. П.7. Варианты расстановки оборудования в спальных комнатах на 2 места

для школьников в СКДД - 3.

Экспликация оборудования

1. Кровать

2. Тумбочка

3. Стул

4. Зеркало (в спальных для девочек)

Рис. П.8. Варианты расстановки оборудования в спальных комнатах на 3 места

для школьников в СКДД - 3.

Экспликация оборудования

1. Ученический стол

2. Стул

3. Стол воспитателя

4. Шкаф-стеллаж

5. Тумба с телевизором и видеомагнитофоном

6. Мягкая мебель

7. Журнальный столик

Рис. П.9. Комната дневного пребывания для школьников в СКДД - 3.

Экспликация оборудования

1. Кровать детская

2. Стул детский

Рис. П.10. Расстановка оборудования в спальных комнатах на 2 и 3 места для дошкольников в СКДД - 1 семейного типа

Экспликация оборудования

1. Обеденный стол

2. Стул

3. Стол для индивидуальных занятий

4. Стеллаж

5. Кресло

6. Диван

Рис. II.11. Гостиная - столовая в СКДД - 1 семейного типа.

Экспликация оборудования

1. Мягкая мебель

2. Журнальный столик

3. Ковер

4. Стеллаж

5. Тумба с телевизором и видеомагнитофоном

Рис. П.12. Комната тихого отдыха в СКДД - 1 семейного типа.

Экспликация оборудования

I - Мастерская

1. Слесарный станок

2. Верстак

3. Стол для клея и смазочных материалов

4. Стол педагога

5. Стул педагога

6. Рабочий стол

7. Табурет

8. Классная доска

9. Металлические шкафы для хранения

инструментов и рабочей одежды

10. Умывальники с вешалкой для полотенца

11. Мусоросборник

II - Кладовая

12. Стеллажи

Рис.П.13. Многофункциональная мастерская труда в СКДД - 1 и СКДД - 2

Экспликация оборудования

I – МАСТЕРСКАЯ

1. Верстак столярный ученический

2. Табурет регулируемый

3. Стол мастера

4. Стул

5, Металлический шкаф для хранения инструментов

6, Умывальник с вешалкой для полотенца

7. Мусоросборник

8. Вешалка для халатов

II - КЛАДОВАЯ

9. Стеллажи

Рис. П.14. Мастерская профессиональной подготовки - столярная мастерская в СКДД - 1 и СКДД - 2.

Экспликация оборудования

I - МАСТЕРСКАЯ

1. Учебный отсек, имитирующий помещение

здания с потолком, окнами и дверными проемами

2. Стенка, имитирующая часть помещения

Стол мастера

Стул

Мусоросборник

Умывальник с вешалкой для полотенца

Раковина со специальным сливом для мытья инструментов

II - КЛАДОВАЯ

Стеллажи

Вешалка для халатов

Рис. II.15. Мастерская профессиональной подготовки - малярная мастерская в СКДД - 1 и СКДД - 2.

Экспликация оборудования

I. МАСТЕРСКАЯ

1. Учебный отсек, имитирующий помещение

здания с потолком, окнами и дверными проемами

2. Стена с арочным проемом

3. Стол мастера

4. Стул

5. Емкость с раствором

6. Мусоросборник

7. Умывальник с вешалкой для полотенца

8. Раковина со специальным сливом для мытья инструментов

9. Вешалка для халатов

II - КЛАДОВАЯ

10. Стеллажи

Рис. П.16. Мастерская профессиональной подготовки - штукатурная мастерская в СКДД-1 и СКДД - 2.

Экспликация оборудования

1. Стол руководителя кружка

2. Стул руководителя кружка

3. Шкаф - стеллаж

4. Мольберт

5. Регулируемый табурет

6. Помост для моделей

7. Стенд для рисунков

8. Умывальник с вешалкой для полотенца

Рис. П.17. Изостудия в СКДД - 1 и СКДД - 2.

Экспликация оборудования

1. Рабочие столы

2. Стол со швейной машиной

3. Регулируемый табурет

4. Мольберт

5. Стол мастера

6. Стул

7. Умывальник с вешалкой для полотенца

8. Мусоросборник

9. Шкаф для экспозиции

10. Стеллаж

Рис. П.18. Театрально-художественная мастерская с кладовой в СКДД - 1 и СКДД - 2.

Экспликация оборудования

1. Рабочий стол

2. Стол со швейной машиной

3. Регулируемый табурет

4. Шкаф для экспозиции

5. Ширма для представлений

6. Стол мастера

7. Стул

8. Умывальник с вешалкой для полотенца

9. Мусоросборник

10. Стеллаж

11. Вешалка для кукол

Рис. П.19. Кукольная мастерская (изготовление) с кладовой вСКДД-1иСКДД-2.

Экспликация оборудования

1. Рабочий стол с прибором для выжигания

2. Табурет

3. Стол мастера

4. Стул

5. Рабочий стол для рисования

6. Стеллаж

7. Урна для мусора

8. Умывальник

Рис. П.20. Мастерская выжигания по дереву вСКДД-1иСКДД-2.

Экспликация оборудования

1. Рабочий стол

2. Стол для индивидуальной работы

3. Регулируемый табурет

4. Печь для обжига

5. Гончарный круг

6. Стол мастера

7. Стул

8. Шкаф для экспозиции

9. Умывальник с вешалкой для полотенца

10. Урна для мусора

11. Стеллаж

Рис. П.21. Мастерская лепки и обжига с кладовой в СКДД - 1 и СКДД - 2.

Экспликация оборудования

1. Стол рабочий

2. Стол мастера

3. Регулируемый табурет

4. Доска меловая

5. Швейная машина

6. Вязальная машина

7. Гладильная доска

8. Стеллаж с отделением для выставки

9. Манекен

10. Зеркало

11. Стенд

12. Умывальник с вешалкой для полотенца

13. Стул мастера

Рис. П.22. Швейная мастерская в СКДД - 1 и СКДД - 2.

Экспликация оборудования

1. Рабочий стол

2. Стол для индивидуальной работы

3. Регулируемый табурет

4. Печь для обжига

5. Гончарный круг

6. Стол мастера

7. Стул

8. Шкаф для экспозиции

9. Умывальник с вешалкой для полотенца

10. Урна для мусора

11. Стеллаж

Рис. П.23. Мастерская лепки и обжига с кладовой в СКДД - 3.

Экспликация оборудования

I - МАСТЕРСКАЯ

1. Ткацкий станок

2. Табурет регулируемый

3. Рабочий стол

4. Ящик для пряжи

5. Стол мастера

6. Стул мастера

7. Умывальник с вешалкой для полотенца

8. Урна для мусора

II - КЛАДОВАЯ

9. Комбинированный шкаф

Рис. П.24. Мастерская ткачества с кладовой в СКДД - 3.

Экспликация оборудования

1. Рабочий стол

2. Регулируемый табурет

3. Швейная машина для вышивания

4. Вязальная машина

5. Стол мастера

6. Стул мастера

7. Металлический шкаф для хранения материалов

8. Урна для мусора

9. Умывальник с вешалкой для полотенца

Рис. II.25. Мастерская рукоделия в СКДД-3 (вязания, вышивания, бисероплетсния).

Экспликация оборудования

I - зал

1. Стол методиста

2. Стул

3. Шведская стенка

4. Маты для занятий

5. Скамья

6. Зеркало

II - кладовая

7. Шкаф - стеллаж

8. Ящик для мелочей

III - раздевальная

9. Шкаф методиста

10. Скамья

11. Крючки для одежды

12. Умывальник с вешалкой для полотенца

Рис. П.26. Кабинет групповых занятий ЛФК с раздевальной и кладовой вСКДД-1иСКДД-2.

Экспликация оборудования

I - зал

1. Стол методиста

2. Стул методиста

3. Шведская стенка

4. Маты для занятий

5. Скамья

6. Зеркало

II - раздевальная

7. Шкаф - стеллаж

8. Шкаф методиста

9. Умывальник с вешалкой для полотенца

III - кладовая

10. Стеллаж

11. Манеж для мячей

Рис. П.27. Кабинет занятий ЛФК с раздевальной и кладовой в СКДД - 3.

Экспликация оборудования

1. Воздушно-пузырьковые колонны на подиуме

2. Фибро-оптическое волокно (напольное)

3. Настенное водяное панно

4. Настенный комплекс акриловых зеркал

5. Настенное колесо с спецэффектами «облака»

6. Столик - этажерка с магнитофоном и проектором

7. Напольное оптическое панно «млечный путь»

8. Настенная ультрофиолетовая панель с нитями

9. Ковровое покрытие

Рис. П.28. Кабинет психо-эмоциональной коррекции.

Экспликация оборудования

1. Шкаф-стеллаж

2. Круглый рабочий стол

3. Стул

4. Стул руководителя

5. Умывальник с вешалкой для полотенца

Рис. П.29. Кабинет коррекционных игр ЛЕГО в СКДД - 3.

Экспликация оборудования

1. Рабочий стол

2. Стул воспитанника

3. Стул специалиста

4. Компьютерный стол специалиста с компьютером

5. Закрывающиеся шкафы для пособий

6. Ученическая доска

7. Умывальник с вешалкой для полотенца

Рис. П.30. Зал ситуационных игр в СКДД - 3.

Экспликация оборудования

1. Круглый рабочий стол

2. Стульчик

3. Шкаф - стеллаж

4. Умывальник с вешалкой для полотенца

5. Шкаф для хранения кукол

6. Ширма

7. Скамейка

Рис. П.31. Кабинет ручного труда для дошкольников.

Экспликация оборудования

1. Рабочий стол

2. Табурет

3. Стол педагога

4. Стул педагога

5. Контейнер - вешалка готовой продукции

6. Доска меловая

7. Мусоросборник

8. Умывальник с вешалкой для полотенца

9. Шкаф - стеллаж

10. Примерочная

11. Зеркало

12. Гладильная доска

13. Манекен

14. Стол со швейной машиной

Рис. П.32. Кабинет творческого труда для детей школьного возраста в СКДД - 1 и СКДД - 2.

Экспликация оборудования

1. Ковер с мячами

2. Туннель

3. Дорожка следовая

4. Горка - лесенка

5. Сухой бассейн

6. Стул методиста

7. Скамья

8. Большой мяч

Рис. П.33. Кабинет развития моторики в СКДД - 3.

Экспликация оборудования

1. Ванна

2. Емкость для песка

3 .Скамья

4. Вешалка для одежды

5. Полотенцесушитель

6. Поручни

7. Лестница

8. Умывальник с вешалкой для полотенца

9. Стул

Рис. П.34. Кабинет «вода - песок»

Экспликация оборудования

1. Стол - шкаф кухонной посуды

2. Стол - шкаф хранения сухих продуктов

3. Плита

4. Мойка

5. Холодильник

6. Сервировочная стойка с разделочным столом

7. Обеденный стол

8. Стул

9. Сервант

Рис. П.35. Кабинет социально-бытовой адаптации в СКДД - 1 и СКДД - 2.

Экспликация оборудования

I – зал

1. Сцена

2. Пианино

3. Табурет винтовой

4. Ширма

5. Зрительные места

6. Место складирования зрительских мест

II - кладовая

7. Шкаф

8. Умывальник с вешалкой для полотенца

Рис. П.36. Зал для проведения массовых мероприятий с кладовой в СКДД - 3.

Экспликация оборудования

1. Сухой бассейн

2. Ковер с мячами и геометрическими фигурами

3. Горка

4. Туннель (разной высоты)

5. Скамья

6. Стул

7. Большой мяч

Рис. П.37. Игровой зал для детей дошкольного и младшего школьного возраста в СКДД - 1иСКДД - 2

Экспликация оборудования

I - зал для гимнастических и тренажерных занятий

1. Стул воспитателя

2. Шведская стенка

3. Скамья

II - раздевальная

4. Скамья для переодевания

5. Крючки для одежды

6. Шкаф методиста

7. Умывальник с вешалкой для полотенца

III - кладовая хранения спортивного и тренажерного инвентаря

Рис. П.38. Зал гимнастических занятий (тренажерный зал) с раздевальной и кладовой в СКДД - 3.

 




Яндекс цитирования



   Copyright © 2007-2026,  www.tehlit.ru.

[ ѓосты, стандарты, нормативы, инструкции, правила, строительные нормы ]