//
ТехЛит.ру
- крупнейшая бесплатная электронная интернет библиотека для "технически умных" людей.
WWW.TEHLIT.RU - ТЕХНИЧЕСКАЯ ЛИТЕРАТУРА

:: Алготрейдинг::


АЛГОТРЕЙДИНГ
шаг за шагом
с нуля по урокам!

Торговые роботы на PYTHON, BackTrader,
Pandas, Pine Script для TradingView. Связка с брокерами, телеграм и легкими приложениями.


МЕЖГОСУДАРСТВЕННЫЙ СТАНДАР

ГОСТ 11677-85

ТРАНСФОРМАТОРЫ СИЛОВЫЕ

ОБЩИЕ ТЕХНИЧЕСКИЕ УСЛОВИЯ

Содержание

1. КЛАССИФИКАЦИЯ

2. ОСНОВНЫЕ ПАРАМЕТРЫ

3. ТЕХНИЧЕСКИЕ ТРЕБОВАНИЯ

4 ТРЕБОВАНИЯ БЕЗОПАСНОСТИ

5 КОМПЛЕКТНОСТЬ

6 ПРАВИЛА ПРИЕМКИ

7. МЕТОДЫ КОНТРОЛЯ

8. МАРКИРОВКА, УПАКОВКА, ТРАНСПОРТИРОВАНИЕ И ХРАНЕНИЕ

9 УКАЗАНИЯ ПО ЭКСПЛУАТАЦИИ

10. ГАРАНТИИ ИЗГОТОВИТЕЛЯ

ПРИЛОЖЕНИЕ 1 Условное обозначение трансформаторов

ПРИЛОЖЕНИЕ 2 Соответствие условных обозначений видов систем охлаждения, принятых СССР, СЭВ и МЭК

ПРИЛОЖЕНИЕ 3 Методика расчета удельной массы

ПРИЛОЖЕНИЕ 4 Перечень технических данных и характеристик, включаемых в паспорт трансформатора

ПРИЛОЖЕНИЕ 5 Маркировка выводов и ответвлений силовых трансформаторов

 

МЕЖГОСУДАРСТВЕННЫЙ СТАНДАРТ

ГОСТ 11677-85

Дата введения 01.07.86 г.

ТРАНСФОРМАТОРЫ СИЛОВЫЕ

Общие технические условия

Power transformers. General specifications

Настоящий стандарт распространяется на силовые трансформаторы общего назначения, в том числе на автотрансформаторы, трансформаторы собственных нужд электростанций и трансформаторы для комплектных трансформаторных подстанций (КТП), трехфазные мощностью более 5 кВ·А и однофазные мощностью более 4 кВ·А классов напряжения до 1150 кВ включительно, предназначенные для нужд народного хозяйства.

Стандарт не распространяется на специальные, регулировочные и многообмоточные трансформаторы.

Термины, применяемые в стандарте - по ГОСТ 16110-82.

Требования настоящего стандарта являются обязательными.

(Измененная редакция, Изм. № 2, 4)

1. КЛАССИФИКАЦИЯ

1.1 Силовые трансформаторы классифицируют:

- по условиям работы - на трансформаторы, предназначенные для работы в нормальных и специальных условиях;

- по виду изолирующей и охлаждающей среды - на масляные и сухие трансформаторы, трансформаторы, заполненные негорючим жидким диэлектриком, трансформаторы с литой изоляцией;

- по типам, характеризующим назначение и основное конструктивное исполнение (однофазные или трехфазные, и РПН, ПБВ и т.д.) - в соответствии с приложением 1.

1.2 Нормальные условия работы характеризуют следующими данными:

- высота установки над уровнем моря - не более 1000 м, кроме трансформаторов класса напряжения 750-1150 кВ, для которых высота установки над уровнем моря - не более 500 м;

- климатическое исполнение - У по ГОСТ 15150 и ГОСТ 15543.1.

При этом среднесуточная температура воздуха не более 30°С и среднегодовая температура воздуха не более 20°С;

- температура охлаждающей воды - не более 25°С у входа в охладитель.

1.3 По заказу потребителя должны изготавливаться трансформаторы для следующих условий:

- высота установки над уровнем моря для трансформаторов классов напряжения до 500 кВ включ. - от 1000, но не более 3500 м;

- климатическое исполнение - ХЛ или УХЛ по ГОСТ 15150, ГОСТ 15543.1 и ГОСТ 17412;

- температура охлаждающей воды - более 25°С, но не более 33°С.

Внешние механические воздействия по ГОСТ 17516.1, в том числе и для сейсмоопасных районов.

(Измененная редакция, Изм. № 1, 4)

1.3.1 При температуре охлаждающей среды (воздуха или воды), отличающейся от установленной в п. 1.2, при выборе номинальной мощности трансформатора должна быть учтена температура охлаждающей среды в соответствии с инструкцией по эксплуатации.

1.4 Виды систем охлаждения трансформаторов и их условные обозначения должны соответствовать приведенным в табл. 1.

Таблица 1

Вид системы охлаждения трансформатора

Условное обозначение вида системы охлаждения

Сухие трансформаторы

Естественное воздушное при открытом исполнении

С

Естественное воздушное при защищенном исполнении

СЗ

Естественное воздушное при герметичном исполнении

СГ

Воздушное с принудительной циркуляцией воздуха

СД

Масляные трансформаторы

Естественная циркуляция воздуха и масла

М

Принудительная циркуляция воздуха и естественная циркуляция масла

Д

Естественная циркуляция воздуха и принудительная циркуляция масла с ненаправленным потоком масла

МЦ

Естественная циркуляция воздуха и принудительная циркуляция масла с направленным потоком масла

НМЦ

Принудительная циркуляция воздуха и масла с ненаправленным потоком масла

ДЦ

Принудительная циркуляция воздуха и масла с направленным потоком масла

НДЦ

Принудительная циркуляция воды и масла с ненаправленным потоком масла

Ц

Принудительная циркуляция воды и масла с направленным потоком масла

НЦ

Трансформаторы с негорючим жидким диэлектриком

Естественное охлаждение негорючим жидким диэлектриком

Н

Охлаждение негорючим жидким диэлектриком с принудительной циркуляцией воздуха

НД

Охлаждение негорючим жидким диэлектриком с принудительной циркуляцией воздуха и с направленным потоком жидкого диэлектрика

ННД

Примечание. Соответствие условных обозначений видов систем охлаждения, принятых СССР, СЭВ и МЭК, приведено в приложении 2.

1.5 Класс напряжения трансформатора устанавливают по классу напряжения его обмотки ВН.

1.6 Основными парами обмоток трехобмоточных трансформаторов следует принимать обмотки ВН и СН. Допускается в стандартах или технических условиях на конкретные группы и типы трансформаторов принимать другую пару обмоток за основную.

2. ОСНОВНЫЕ ПАРАМЕТРЫ

2.1 В стандартах или технических условиях на конкретные группы или типы трансформаторов должны быть указаны следующие основные параметры:

- номинальная мощность трансформатора (указывают также мощности основных обмоток трехобмоточных трансформаторов и мощность обмотки НН трехобмоточных автотрансформаторов);

- номинальные напряжения основных обмоток на всех ответвлениях;

- условное обозначение схемы и группы соединений обмоток;

- вид переключения ответвлений (РПН, ПБВ), диапазон и число ступеней регулирования напряжения;

- наибольший допустимый ток в общей обмотке автотрансформатора;

- потери холостого хода и короткого замыкания на основном ответвлении;

- напряжение короткого замыкания, приведенное к номинальной мощности (для трансформаторов РПН указывают нормированные значения на основном и крайних ответвлениях, для остальных трансформаторов - на основном ответвлении);

- ток холостого хода на основном ответвлении;

- установленная мощность двигателей системы охлаждения;

- полная масса;

- транспортная масса (допускается не указывать, если она отличается от полной массы не более чем на 10%);

- удельная масса;

- масса масла;

- габаритные размеры.

Примечания:

1 Если потребителем выдвигаются дополнительные (специальные) требования по перегрузкам и, исходя из них, изготавливается трансформатор, то в перечень основных параметров включают параметры, характеризующие нагрузочную способность.

2 Методика расчета удельной массы приведена в приложении 3. В стандартах или технических условиях на конкретные группы и типы трансформаторов указывают расчетную массу.

3 Масса масла приводится для сведения заказчика с точностью до +10%.

(Измененная редакция, Изм. № 1, 3, 4)

2.2 В стандартах или технических условиях на конкретные группы и типы трансформаторов допускается устанавливать дополнительные параметры, кроме указанных в п. 2.1.

2.3 Номинальные мощности трансформаторов должны соответствовать ГОСТ 9680, номинальные напряжения - ГОСТ 721 и ГОСТ 21128.

2.4 Номинальная частота питающей сети должна быть 50 Гц по ГОСТ 13109.

2.5 Расчетную температуру, к которой следует приводить потери и напряжение короткого замыкания, принимают равной:

- 115°С - для трансформаторов с изоляцией классов нагревостойкости F, Н, С по ГОСТ 8865;

- 80°С - для трансформаторов с системой охлаждения НЦ, НДЦ;

- 75°С - для остальных трансформаторов.

2.6 Предельные отклонения измеряемых параметров трансформаторов от нормированных не должны превышать значений, указанных в табл. 2.

Таблица 2

Наименование параметра

Предельное отклонение, %

Примечание

1 Коэффициент трансформации

±1,0

Для трансформаторов с коэффициентом трансформации фазных напряжений 3 и менее, а также на не основном ответвлении

±0,5

Для всех остальных трансформаторов на основном ответвлении

2 Напряжение короткого замыкания

±10

Для всех трансформаторов

3 Потери короткого замыкания на основном ответвлении

+ 10

Для всех двухобмоточных и трехобмоточных трансформаторов и для основной пары обмоток трехобмоточных автотрансформаторов

+20

Для не основных пар обмоток трехобмоточных автотрансформаторов

4 Потери холостого хода

+15

Для всех трансформаторов

5 Суммарные потери

+10

Для всех трансформаторов

6 Ток холостого хода

+30

Для всех трансформаторов

7 Полная масса

+10

Для трансформаторов мощностью не более 1,6 МВА

Примечания:

1 При определении суммарных потерь трехобмоточного автотрансформатора потери холостого хода складывают с потерями короткого замыкания основной пары обмоток.

2 Отсутствие нижнего предельного отклонения для тока холостого хода и потерь означает, что его значение не ограничено.

3 По согласованию между изготовителем и потребителем предельное отклонение напряжения короткого замыкания для не основных пар обмоток трехобмоточных трансформаторов, а также для трансформаторов РПН на крайних ответвлениях не должно выходить за пределы ±15%.

4 По согласованию между изготовителем и потребителем предельное отклонение коэффициента трансформации на основном ответвлении для трансформаторов мощностью 100 МВА и более не должно выходить за пределы ±10,0%.

5 Предельные отклонения коэффициента трансформации, приведенные в п. 1 табл. 2, распространяются на трансформаторы мощностью до 1000 МВ·А включительно.

6 Предельные отклонения, приведенные в п. 2 табл. 2, не распространяются на напряжение короткого замыкания между частями расщепленной обмотки НН.

7 Предельное отклонение на потери короткого замыкания для трансформаторов мощностью менее 1 МВ·А может быть увеличено до +15%, что должно быть оговорено в стандартах или технических условиях на трансформаторы конкретных типов и групп.

(Измененная редакция, Изм. № 3, 4)

2.7. Схемы и группы соединения обмоток трансформаторов должны соответствовать приведенным в табл. 3-10.

Таблица 3

Схемы и группы соединения обмоток трехфазных двухобмоточных трансформаторов

Схема соединения обмоток

Диаграмма векторов напряжения холостого хода

Условное обозначение

ВН

НН

ВН

НН

У/Ун-0

Ун/У-0

У/Д-11

Ун/Д-11

У/Zн-11

Д/Ун-11

Д/Д-0

Таблица 4

Схема и группа соединения обмоток однофазных двухобмоточных трансформаторов

Схема соединения обмоток

Диаграмма векторов напряжения холостого хода

Условное обозначение

ВН

НН

ВН

НН

1/1-0

Таблица 5

Схемы и группы соединения обмоток трехфазных трехобмоточных трансформаторов

Схема соединения обмоток

Диаграмма векторов напряжения холостого хода

Условное обозначение

ВН

СН

НН

ВН

СН

НН

Ун/Ун/Д-0-11

Ун/Д/Д-11-11

Таблица 6

Схема и группа соединения обмоток трехфазных трехобмоточных автотрансформаторов

Схема соединения обмоток

Диаграмма векторов напряжения холостого хода

Условное обозначение

ВН и СН

НН

ВН и СН

НН

Ун авто/Д-0-11

Таблица 7

Схема и группа соединения обмоток однофазных трехобмоточных автотрансформаторов

Схема соединения обмоток

Диаграмма векторов напряжения холостого хода

Условное обозначение

ВН и СН

НН

ВН и СН

НН

1 авто/1-0-0

Таблица 8

Схема и группа соединения обмоток трехфазных двухобмоточных автотрансформаторов

Схема соединения обмоток

Диаграмма векторов напряжения холостого хода

Условное обозначение

ВН и НН

ВН и НН

Ун авто

Таблица 9

Схема и группа соединения обмоток однофазных двухобмоточных трансформаторов с расщепленной обмоткой НН

Схема соединения обмоток

Диаграмма векторов напряжения холостого хода

Условное обозначение

ВН

НН

ВН

НН

1/1-1-0-0

Таблица 10

Схемы и группы соединения обмоток трехфазных двухобмоточных трансформаторов с расщепленной обмоткой НН

Схема соединения обмоток

Диаграмма векторов напряжения холостого хода

Условное обозначение

ВН

НН

ВН

НН

Ун/Д-Д-11-11

Д/Д-Д-0-0

(Измененная редакция, Изм. № 1)

2.8 Схемы и группы соединения обмоток однофазных трансформаторов для работы в трехфазной группе следует указывать в стандартах или технических условиях на эти трансформаторы.

2.9 Указанные в табл. 3-10 схемы соединения обмоток не относятся к действительному расположению отводов активной части и вводов на крышке бака трансформатора.

Схемы соединения обмоток ВН указаны со стороны отводов обмотки ВН, а схемы соединения обмоток СН и НН - со стороны отводов обмотки НН.

2.10 Трансформаторы с системой охлаждения вида Д при отключении электродвигателей вентиляторов допускают нагрузку не менее 50% номинальной мощности трансформатора.

2.9, 2.10 (Измененная редакция, Изм. № 1)

3. ТЕХНИЧЕСКИЕ ТРЕБОВАНИЯ

3.1 Трансформаторы должны изготавливать в соответствии с требованиями настоящего стандарта, стандартов или технических условий на конкретные группы и типы трансформаторов по рабочим чертежам, утвержденным в установленном порядке.

3.2 Требования к конструкции

3.2.1 Требования по нагреву и нагрузочной способности

3.2.1.1 Превышения температуры отдельных элементов масляного трансформатора или трансформатора с жидким диэлектриком над температурой охлаждающей среды (воздуха или воды) при испытаниях на нагрев на основном ответвлении не должны быть более значений, указанных в табл. 11.

Таблица 11

Элемент трансформатора

Превышение температуры, °С

Обмотки (класс нагревостойкости изоляции А):

 

при естественной или принудительной циркуляции с ненаправленным потоком масла через обмотку

65

при принудительной циркуляции с направленным потоком масла через обмотку

70

Масло или другой жидкий диэлектрик в верхних слоях:

 

исполнение герметичное или с расширителем

60

исполнение негерметичное без расширителя

55

Поверхности магнитной системы и элементов металлоконструкций

75

Примечания:

1 Превышения температуры обмоток определяют методом измерения их сопротивления постоянному току (средние превышения температуры обмоток).

2 (Исключено, Изм. № 1)

Для трехобмоточных режимов трансформаторов расчетные превышения температуры отдельных элементов не должны превышать значений, указанных в табл. 11, с учетом примечания к п. 3.9.3.3. В этом случае превышение температуры верхних слоев масла или другого жидкого диэлектрика трехобмоточного трансформатора должно быть рассчитано для сочетания нагрузок с наибольшими суммарными потерями, а превышения температуры обмоток, поверхности магнитной системы и элементов металлоконструкций - для сочетания нагрузок, являющихся наиболее жесткими для рассматриваемого элемента трансформатора.

(Измененная редакция, Изм. № 1)

3.2.1.2 Для масляных трансформаторов при нормированной температуре охлаждающей воды у входа в охладитель более 25°С (но не более 33°С) среднее превышение температуры обмоток, указанное в табл. 11, должно быть уменьшено на разность между нормированной температурой и 25°С.

3.2.1.3 Для трансформаторов в отдельных точках магнитной системы и элементов металлоконструкций допускается превышение температуры поверхности, не соприкасающейся с твердой изоляцией, над температурой охлаждающей среды до 85°С, если это превышение не превзойдет в других режимах работы, в том числе и на неосновных ответвлениях.

(Измененная редакция, Изм. № 4)

3.2.1.4 Для масляных трансформаторов при болтовом соединении контактов съемных вводов превышение температуры контактов над температурой окружающей среды не должно превышать:

85°С - для контактов в масле;

65°С - для контактов в воздухе.

3.2.1.5 Превышения температуры отдельных элементов сухого трансформатора над температурой охлаждающей среды при испытаниях на нагрев на основном ответвлении не должны превышать указанных в табл. 12.

Таблица 12

Элемент трансформатора

Класс нагревостойкости по ГОСТ 8865

Превышение температуры, °С

Обмотки

А

60

Е

75

В

80

F

100

Н

125

Поверхности магнитной системы и элементов металлоконструкций

-

Не более чем допустимо для соприкасающихся изоляционных материалов

Примечания:

1 Превышения температуры обмоток (средние превышения температуры обмоток) определяют методом измерения их сопротивления постоянному току.

2 Допускается применение отдельных изоляционных деталей более низкого класса нагревостойкости, чем класс нагревостойкости обмоток в целом, если испытаниями доказано, что температура наиболее нагретых точек изоляционных деталей пониженных классов не превышает значений, допустимых для этих классов по ГОСТ 8865.

(Измененная редакция, Изм. № 1)

3.2.1.6 При установившихся токах короткого замыкания в соответствии с п. 3.3.1 температура обмоток, рассчитанная исходя из начальной температуры, равной сумме максимальной температуры охлаждающей среды по п.п. 1.2, 1.3 и превышения температуры обмотки по табл. 11, не должна превышать значений, указанных в табл. 13.

Таблица 13

Вид трансформатора

Материал обмотки

Класс нагревостойкости изоляции обмотки по ГОСТ 8865

Максимальная температура обмотки при коротком замыкании, °С

Масляные и с негорючим жидким диэлектриком

Медь

А

250

Алюминий

А

200

Сухие трансформаторы

Медь

А

180

Е

250

В, F, Н

350

Алюминий

А

180

Е, В, F, Н

200

3.2.1.7 Под нагрузочной способностью понимают свойство трансформатора нести нагрузку сверх номинальной при определенных условиях эксплуатации - предшествующей нагрузке трансформатора, температуре охлаждающей среды.

3.2.1.8 Допустимые систематические и аварийные перегрузки должны быть установлены: - для масляных трансформаторов мощностью до 100 MB А включительно - по ГОСТ 14209, если иное не оговорено в стандартах или технических условиях на конкретные группы или типы трансформаторов;

- для трансформаторов мощностью свыше 100 MB A - в инструкции по эксплуатации;

- для сухих трансформаторов и трансформаторов с негорючим жидким диэлектриком - в стандартах или технических условиях на конкретные группы или типы трансформаторов.

Примечание. Все элементы трансформатора, включая комплектующие изделия, должны обеспечить указанные требования.

(Измененная редакция, Изм. № 4)

3.2.2 Требования к электрической прочности изоляции

3.2.2.1 Требования к электрической прочности изоляции трансформаторов классов напряжения 3-500 кВ - по ГОСТ 1516.1; трансформаторов класса напряжения 750 кВ - по ГОСТ 20690. Требования к электрической прочности изоляции трансформаторов класса напряжения 1150 кВ должны быть указаны в технических условиях на эти трансформаторы. При этом испытательные напряжения изоляции масляных трансформаторов должны соответствовать нормам, принятым для электрооборудования с нормальной изоляцией; испытательные напряжения сухих трансформаторов и трансформаторов с негорючим жидким диэлектриком должны быть не ниже норм, принятых для электрооборудования с облегченной изоляцией.

Примечания:

1 По согласованию между изготовителем и потребителем, в случае применения ограничителей перенапряжений, допускается изготовление трансформаторов на сниженные испытательные напряжения по сравнению с приведенными требованиями.

2 Испытание изоляции элементов цепей управления, блокировки и сигнализации, а также самих цепей для трансформаторов, отправляемых с предприятия-изготовителя без их монтажа, не проводить.

3.2.2.2 Для трансформаторов, предназначенных для работы на высоте, превышающей 1000 м (но не более 3500 м) над уровнем моря, внешняя изоляция должна быть рассчитана по ГОСТ 1516.1:

при высоте установки от 1000 до 2400 м включительно - по нормам для высоты установки 2400 м;

при высоте установки от 2400 до 3500 м включительно - по нормам для высоты установки 3500 м.

3.2.2.1, 3.2.2.2 (Измененная редакция, Изм. № 1)

3.3 Требования по устойчивости к внешним воздействиям

3.3.1 Требования к стойкости трансформаторов при коротких замыканиях

3.3.1.1 Трансформаторы должны выдерживать внешние короткие замыкания в эксплуатации (испытание по ГОСТ 20243) на любом ответвлении обмотки при любых сочетаниях сторон питания, соответствующих режимам работы трансформатора, указанным в стандартах или технических условиях на этот трансформатор, при указанных ниже значениях тока короткого замыкания и его длительности.

3.3.1.2 Наибольший установившийся ток короткого замыкания в двухобмоточных режимах определяют следующим образом:

- для однофазных трансформаторов и автотрансформаторов, включенных между фазой и нейтралью по формуле

                                                                                                      (1)

где Iк.отв - наибольший установившийся ток короткого замыкания ответвления, кА;

Uном.отв - номинальное напряжение ответвления (фазное), кВ;

zг.отв - сопротивление короткого замыкания, отнесенное к рассматриваемой обмотке (стороне) и ответвлению, Ом;

zc - сопротивление короткого замыкания сети, Ом;

- для трехфазных трансформаторов по формуле

                                                                                               (2)

где Iк.отв - наибольший установившийся линейный ток короткого замыкания ответвления, кА;

Uном.отв - номинальное линейное напряжение ответвления, кВ.

Наибольший установившийся ток короткого замыкания в трехобмоточных режимах определяют по трехлучевой схеме замещения, каждый луч которой состоит из сопротивления короткого замыкания, вносимого трансформатором, и включенного последовательно с ним сопротивления короткого замыкания соответствующей сети z.

(Измененная редакция, Изм. № 4)

3.3.1.3 Сопротивление короткого замыкания трансформатора zг.отв, Ом, определяют по формуле

                                                                                              (3)

где Uк.отв - расчетное значение напряжения короткого замыкания ответвления, приведенное к номинальной мощности трансформатора на основном ответвлении,

Sном - номинальная мощность трансформатора на основном ответвлении, МВ·А.

При испытаниях допускается принимать измеренное значение сопротивления замыкания трансформатора.

3.3.1.4 Сопротивление короткого замыкания сети zc, Ом, определяют по формуле

                                                                                                                 (4)

где Uс.ном - номинальное линейное напряжение сети, кВ;

Sc - мощность короткого замыкания сети, МВ·А.

Примечания:

1 Для трансформаторов мощностью менее 1 МВ·А (для трансформаторов мощностью менее 3,15 МВ·А, разработанных после 01.01.91) сопротивление короткого замыкания сети не учитывают (в формулах (1) и (2) zc=0), если оно составляет не более 5% сопротивления короткого замыкания трансформатора.

2 Для трансформаторов классов напряжения до 35 кВ включ. собственных нужд электростанций сопротивление короткого замыкания сети не учитывают.

(Измененная редакция, Изм. № 4)

3.3.1.5 Мощность трехфазного короткого замыкания сети следует принимать по табл. 14.

Таблица 14

Номинальное напряжение сети, кВ

Мощность трехфазного короткого замыкания сети Sc, МВ·А

для трансформаторов классов напряжения ниже 110 кВ

для трансформаторов классов напряжения 110 кВ и выше и трансформаторов собственных нужд электростанций

До 10

500

2000

Св. 10 до 35 включ.

2500

5000

110

-

15000

150

-

20000

220

-

25000

330

-

35000

500

-

50000

750

-

75000

1150

-

80000

Примечание. По согласованию с потребителем допускается принимать мощности короткого замыкания сети, отличающиеся от указанных в таблице.

Для трехобмоточных автотрансформаторов мощность короткого замыкания сети на стороне НН принимают:

600 MB·А - для сети с номинальным напряжением НН до 20 кВ и мощностью автотрансформаторов до 63 МВ·А включительно;

1000 МВ·А - для сети с номинальным напряжением НН 20 кВ и выше автотрансформаторов класса напряжения 220 кВ;

2000 МВ·А - для обмоток НН трехобмоточных автотрансформаторов классов напряжения 330, 500 и 750 кВ.

Для трехобмоточных автотрансформаторов класса напряжения 1150 кВ мощность короткого замыкания принимают по техническим условиям на эти трансформаторы.

(Измененная редакция, Изм. № 1, 4)

3.3.1.6 Для трехобмоточных трансформаторов, исключая автотрансформаторы, в любом двух- или трехобмоточном режиме кратность наибольшего установившегося тока короткого замыкания, определяемого в соответствии с п. 3.3.1.2, по отношению к номинальному току обмотки должна быть ограничена в соответствии с табл. 15 при условии равенства мощностей всех обмоток. В случае различных мощностей обмоток предельные кратности наибольшего установившегося тока короткого замыкания должны устанавливаться в стандартах или технических условиях на такие трансформаторы.

Таблица 15

Класс напряжения обмотки ВН трансформатора, кВ

Предельная кратность наибольшего установившегося тока короткого замыкания

в ближайшей к стержню магнитной системы обмотке

в средней по расположению на стержне магнитной системы обмотке

в обмотке ВН

35

-

12,0

-

110

10,0

14,0

9,5

150

10,0

14,0

9,5

220

10,0

15,0

8,0

(Измененная редакция, Изм. № 4)

3.3.1.7 (Исключен, Изм. № 4)

3.3.1.8 Наибольший ударный ток короткого замыкания Iуд, кА, определяют по формуле

Iуд=Iк.отв·КудÖ2,                                                                                                            (5)

где Iк.отв - наибольший установившийся ток короткого замыкания, кА;

КудÖ2 - коэффициент, определяемый по табл. 17.

Таблица 17*

* - Табл. 16. (Исключена, Изм. № 4)

Up/Ua

1

1,5

2

3

4

5

6

8

10

14 и более

КудÖ2

1,51

1,64

1,76

1,95

2,09

2,19

2,28

2,38

2,46

2,55

Примечание. Для промежуточных значений Up/Ua от 1 до 14, не указанных в таблице, коэффициент КудÖ2 допускается определять линейной интерполяцией.

Обозначение: Up, Ua - реактивная и активная составляющие напряжения короткого замыкания трансформатора соответственно.

(Измененная редакция, Изм. № 4)

3.3.1.9 Наибольшую продолжительность короткого замыкания (tk.max) на зажимах трансформаторов принимают при коротком замыкании на сторонах с номинальным напряжением 35 кВ и ниже - 4 с, при коротком замыкании на сторонах с номинальным напряжением 110 кВ и выше - 3 с.

3.3.1.10 Допустимую продолжительность внешнего короткого замыкания tк с, при протекании тока короткого замыкания менее наибольшего установившегося определяют по формуле

                                                                                                          (6)

где tk.max - допустимая продолжительность короткого замыкания при протекании наибольшего установившегося тока короткого замыкания по п. 3.3.1.9, с;

Iк.отв - наибольший установившийся ток короткого замыкания, А;

Iк - установившийся ток короткого замыкания менее наибольшего установившегося, А.

Наибольшая допустимая продолжительность внешнего короткого замыкания tк равна 15 с.

3.3.2. Требования по стойкости трансформаторов к ударным толчкам током.

3.3.2.1. Масляные трансформаторы и трансформаторы с негорючим жидким диэлектриком, кроме указанных в п. 3.3.2.4, должны выдерживать в эксплуатации ударные толчки током. При этом отношение действующего значения тока к номинальному (кратность) не должно превышать значений, указанных в табл. 18.

Таблица 18

Число ударных толчков тока в сутки

Кратность, не более, в зависимости от мощности трансформатора

до 25 МВ·А

более 25 до 100 МВ·А включ.

До 3

4,0

2,0

Св. 3 до 10

2,0

1,3

Св. 10 до 1000

1,3

1,1

Примечание. Допустимость ударных толчков током, указанных в табл. 18, обеспечивается испытаниями на стойкость при коротком замыкании в соответствии с разд. 6. Для трансформаторов мощностью более 100 МВ·А систематические ударные толчки током более номинального должны быть согласованы между потребителем и изготовителем.

(Измененная редакция, Изм. № 1)

3.3.2.2 Для сухих трансформаторов допустимые ударные толчки током устанавливают в стандартах или технических условиях на конкретные группы и типы сухих трансформаторов.

3.3.2.3 При числе толчков током более 100 в сутки или при их продолжительности более 15 с следует проводить расчетную проверку нагрузочной способности по методике изготовителя, согласованной с потребителем.

3.3.2.4 Масляные трансформаторы собственных нужд электростанций должны выдерживать при эксплуатации ударные толчки током продолжительностью каждый не более 15 с. При этом отношение действующего значения тока к номинальному (кратность) не должно превышать значений, указанных в табл. 19.

Таблица 19

Причина толчков нагрузки

Повторяемость, не более

Кратность тока, не более

при расщепленной обмотке НН

при нерасщепленной обмотке НН

для каждой части обмотки НН

для обмотки ВН

для обмотки НН 45

для обмотки ВН

Пуск отдельных двигателей

2 раза в день

5

3

4

4

Самозапуск всех двигателей

2 раза в год

5

5

5

5

3.4 Требования к надежности

Для силовых трансформаторов устанавливают следующие показатели надежности:

- установленная безотказная наработка - не менее 25000 ч;

- вероятность безотказной работы за наработку 8800 ч - не менее 0,995;

- срок службы до первого капитального ремонта - не менее 12 лет;

- полный срок службы - не менее 25 лет.

(Измененная редакция, Изм. № 1)

3.5 Требования к составным частям

3.5.1 Вводы классов напряжения 110-750 кВ, устанавливаемые на трансформаторах, должны быть герметичного исполнения по ГОСТ 10693 и ГОСТ 23865.

3.5.2 Зажимы сухих трансформаторов должны быть выполнены в соответствии с требованиями ГОСТ 10434.

3.5.3 В двухобмоточньгх трансформаторах мощностью 32 МВ·А и более, трехобмоточных автотрансформаторах мощностью 63 МВ·А и более и трансформаторах собственных нужд электростанций мощностью 10 МВ·А и более должна быть предусмотрена возможность присоединения экранированных токопроводов вводов НН к баку трансформатора или установкам трансформаторов тока. В трансформаторах собственных нужд электростанций классов напряжения до 35 кВ включительно мощностью 10 МВ·А и более дополнительно должна быть предусмотрена возможность присоединения экранированных токопроводов вводов ВН к баку трансформатора или установкам трансформаторов тока.

Для указанных трансформаторов, разработанных после 01.01.87, основные присоединительные размеры по вводам должны быть согласованы с потребителем.

(Измененная редакция, Изм. № 1)

Указанные границы мощности могут быть уточнены в стандартах или технических условиях на конкретные группы и типы трансформаторов.

3.5.4 По согласованию между изготовителем и потребителем должна быть обеспечена возможность крепления экранированных токопроводов по п. 3.5.3 к крышке или верхней части бака трансформатора.

3.5.5 В трансформаторах мощностью 25 кВ·А и более классов напряжения до 330 кВ включительно конструкция вводов и трансформаторов должна допускать демонтаж и установку ввода (или его наружного изолятора) без съема крышки или верхней части бака, выемки активной части из бака и слива масла ниже прессующих колец.

Примечание. Требования п. 3.5.5 не распространяются на трансформаторы для КТП.

3.5.6 По заказу потребителя трансформаторы изготовляют с вводами для II, IV степеней загрязнения по ГОСТ 9920.

(Измененная редакция, Изм. № 4)

3.5.7 По согласованию между потребителем и изготовителем трансформаторы классов напряжения 35 кВ и выше изготовляют с кабельными вводами.

3.5.8 По согласованию между потребителем и изготовителем трансформаторы классов напряжения 110 кВ и выше изготовляют с вводами для присоединения к элегазовому оборудованию.

3.5.9 Расположение вводов масляных трансформаторов и трансформаторов с негорючим жидким диэлектриком и зажимов сухих трансформаторов должно быть указано в стандартах или технических условиях на трансформаторы конкретных групп и типов.

3.5.10 Устройства РПН должны соответствовать требованиям ГОСТ 24126 или технических условий на устройства РПН, согласованных с потребителем.

(Измененная редакция, Изм. № 1)

3.5.11 Масляные трансформаторы должны быть снабжены встроенными трансформаторами тока по ГОСТ 7746 в соответствии с требованиями стандартов или технических условий на трансформаторы конкретных групп и типов.

3.5.12 Все ответвления от трансформаторов тока должны быть выведены для возможности присоединения кабелей. В коробку зажимов должны быть проведены кабели для использования одного ответвления.

(Измененная редакция, Изм. № 1)

3.5.13 Емкость расширителя должна обеспечивать постоянное наличие в нем масла при всех режимах работы трансформатора от отключенного состояния до номинальной нагрузки и при колебаниях температуры окружающего воздуха, указанных в п.п. 1.2 или 1.3, причем при перегрузках, установленных в разд. 3, масло не должно выливаться.

На маслоуказателе или расширителе должны быть нанесены контрольные метки для следующих температур масла:

- минус 45, 15, 40°С - для климатического исполнения У;

- минус 60, 15, 40°С - для климатических исполнений ХЛ, УХЛ.

Примечание. Для конкретных условий охлаждающей среды, отличающихся от предельных, указанных в п.п. 1.2 или 1.3 (внутренняя установка и др.) емкость расширителя выбирают исходя из предельных значений температуры, нормированных для этих конкретных условий.

(Измененная редакция, Изм. № 4)

3.5.14 Масляные трансформаторы и трансформаторы с негорючим жидким диэлектриком мощностью 25 кВ·А и более должны быть снабжены расширителем или другой защитой, предохраняющей масло или негорючий жидкий диэлектрик в баке от непосредственного соприкосновения с окружающим воздухом.

Расширитель должен быть снабжен воздухоосушителем с масляным затвором или другим устройством для защиты масла или другого негорючего жидкого диэлектрика в расширителе от непосредственного соприкосновения с окружающим воздухом.

Конструкция воздухоосушителя должна обеспечивать возможность наблюдения за состоянием сорбента при эксплуатации трансформатора.

(Измененная редакция, Изм. № 1)

3.5.15 Конструкция расширителя должна исключать возможность попадания остатков масла из расширителя в бак.

3.5.16 В нижней части расширителя должна быть предусмотрена пробка для слива масла.

В трансформаторах с газовым реле между расширителем и баком должно быть установлено запорное устройство с указателем положения.

(Измененная редакция, Изм. № 4)

3.5.17 В трансформаторах мощностью до 1 МВ·А включительно расширитель должен быть снабжен устройством для заливки масла, а в трансформаторах большей мощности - запорным устройством.

3.5.18 Баки масляные трансформаторов и трансформаторов с негорючим жидким диэлектриком должны выдерживать испытания на механическую прочность в соответствии с табл. 20 и п. 3.5.19. Испытания трансформаторов мощностью до 6,3 МВ·А включ. на напряжение до 35 кВ включ. и с гофрированными баками - по стандартам или техническим условиям на эти трансформаторы.

Таблица 20

Номинальная мощность трансформатора, МВ·А

Класс напряжения, кВ

Испытание

избыточным давлением, кПа

при вакууме с остаточным давлением, кПа

Номин.

Пред. откл.

Номин.

Пред. откл.

Более 6,3

До 35 включ.

50

+5

50

-2,5

1,0 и более

110

 

150 и более

Не более 5

-

(Измененная редакция, Изм. № 4)

3.5.19 Баки трансформаторов с азотной подушкой без расширителя должны выдерживать испытания на механическую прочность при вакууме по нормам, указанным в табл. 20, при избыточном давлении, равном 75+5 кПа.

3.5.20 В трансформаторах с массой активной части более 25 г баки должны иметь нижний разъем.

3.5.21 По согласованию между изготовителем и потребителем баки трансформаторов могут изготовляться неразъемной конструкции (с заваренным разъемом).

3.5.22 Масляные трансформаторы и трансформаторы с негорючим жидким диэлектриком, кроме герметичных с гофрированным баком, должны снабжать маслоуказателем (указателем уровня жидкости).

3.5.23 В трансформаторах мощностью 10 МВ·А и более маслоуказатель должен быть стрелочного типа и включать в себя датчики минимального и максимального уровней масла.

3.5.24 Конструкция маслоуказателя со стеклянной трубкой должна обеспечивать замену трубки без слива масла из расширителя.

3.5.25 Масляные трансформаторы мощностью 1 МВ·А и более, а также герметичные масляные трансформаторы, кроме трансформаторов с гофрированными баками, и трансформаторы с негорючим жидким диэлектриком мощностью 160 кВ·А и более должны иметь манометрический термометр с двумя переставными сигнальными контактами.

Масляные трансформаторы и трансформаторы с негорючим жидким диэлектриком всех видов систем охлаждения, кроме видов М и Н, должны снабжаться манометрическими термометрами для измерения температуры верхних слоев масла и для автоматического управления системой охлаждения.

Температурная погрешность манометрических термометров не должна превышать ±5°С.

(Измененная редакция, Изм. № 1)

3.5.26 Сигнальные контакты манометрических термометров должны работать в цепях управления и контроля напряжением 220 В постоянного или переменного тока.

3.5.27 Корпус манометрического термометра должен быть укреплен на высоте не более 1,6 м от уровня фундамента.

3.5.28 Масляные трансформаторы и трансформаторы с негорючим жидким диэлектриком должны быть снабжены арматурой для заливки, отбора пробы, слива и фильтрации масла или негорючего жидкого диэлектрика и подключения вакуум-насоса в соответствии с требованиями стандартов или технических условий на конкретные группы или типы трансформаторов.

3.5.29 Герметичные трансформаторы без расширителей должны быть снабжены мановакуумметром.

Герметичные трансформаторы с гофрированными баками должны снабжаться мановакуумметром по заказу потребителя.

3.5.30 В трансформаторах напряжением 110 кВ и выше арматура для отбора пробы масла должна находиться в нижней части бака и бака устройства РПН и должна:

- позволять отбирать пробу масла на высоте не более 10 мм от дна бака;

- допускать возможность присоединения резинового шланга и плавного регулирования струи.

Для остальных трансформаторов требования к арматуре для отбора пробы масла - в соответствии со стандартами или техническими условиями на конкретные группы или типы трансформаторов.

3.5.31 Трансформатор, у которого радиаторы или охладители демонтируют на время транспортирования, должен иметь запорную арматуру, позволяющую снимать радиаторы или охладители без слива масла из бака.

3.5.32 Радиаторы и охладители, демонтируемые на время транспортирования, должны быть снабжены пробками в нижней и верхней частях.

3.5.33 Краны и затворы, установленные на трансформаторе, должны иметь метки, указывающие их положение.

3.5.34 Запорная арматура должна быть съемной.

3.5.35 Запорная арматура трансформаторов с видами систем охлаждения ДЦ, НДЦ, Ц, НЦ должна обеспечивать вакуумирование бака, системы охлаждения и отдельных ее элементов.

3.5.36 Масляные трансформаторы мощностью 1,6 МВ·А и более с расширителем должны быть снабжены газовым реле. Трансформаторы мощностью 0,4-1 МВ·А с расширителем снабжаются газовым реле по заказу потребителя.

Реле должно быть приспособлено для визуального контроля выделившегося газа, а также для отбора пробы газа.

(Измененная редакция, Изм. № 4)

3.5.37 Расширитель устройства РПН должен быть снабжен струйным защитным реле и элементом, сигнализирующим о низком уровне масла.

3.5.38 По заказу потребителя трансформаторы мощностью 400 и 630 кВ·А с расширителем, предназначенные для питания собственных нужд станций и подстанций для установки внутри зданий, должны быть снабжены газовым реле.

3.5.39 В трансформаторах, имеющих газовое реле, полости, в которых могут скапливаться газы, должны быть соединены с коллектором, отводящим газ в газовое реле.

3.5.40 Установка газового реле на трансформаторе должна обеспечивать отсутствие ложных срабатываний при работе трансформатора.

3.5.41 Трансформаторы, кроме герметичных трансформаторов с гофрированными баками, должны быть снабжены устройствами для защиты бака от повреждения при повышении внутреннего давления в соответствии с требованиями ГОСТ 12.2.007.2.

3.5.42 Трансформаторы мощностью 1 MB А и более, герметичные трансформаторы для комплектных трансформаторных подстанций мощностью 160 кВ·А и более с мановакууметром, а также трансформаторы, указанные в п. 3.5.38, должны быть снабжены коробкой зажимов и проводкой в защитной оболочке, соединяющей приборы сигнализации, защиты, а также встроенные трансформаторы тока с коробкой зажимов.

(Измененная редакция, Изм. № 1, 3)

3.5.43 Трансформаторы мощностью 125 МВ·А и более должны быть снабжены устройством для отбора проб газа из газового реле с уровня установки трансформатора.

(Измененная редакция, Изм. № 1)

3.5.44 Трансформаторы мощностью 63 МВ·А и более должны предусматривать возможность установки тепловых извещателей устройства обнаружения пожара.

3.5.45 Трансформаторы с напряжением обмотки НН, равным 0,69 кВ и менее, по заказу потребителя должны быть снабжены пробивным предохранителем.

3.5.46 Трансформаторы мощностью 1 МВ·А и более классов напряжения 6 кВ и выше должны быть снабжены устройством для перекатки в продольном и поперечном направлениях.

Сухие трансформаторы должны быть выполнены на салазках, предназначенных как для продольного, так и для поперечного передвижений.

Способ передвижения остальных трансформаторов и трансформаторов для КТП должен устанавливаться в стандартах или технических условиях на эти трансформаторы.

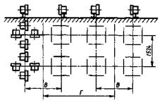
3.5.47 Ширина колеи и расстояние между средними линиями катков для трансформаторов массой менее 200 т должны соответствовать указанным на черт. 1 и в табл. 21, а для трансформаторов 200 т и более - на черт. 2-4 и в табл. 22.

Трансформаторы массой менее 200 г

Черт. 1

Таблица 21

Наименование параметра

Норма

Расстояние между средними линиями гладких катков А, мм

500

600

820

1070

1594

-

-

-

Ширина колеи для катков с ребордой Б, мм

-

-

750

1000

1524

2000

2500

3000

Примечания:

1 Применение конкретного типа катков с ребордой или гладких катков, а также указанных в табл. 21, 22 и на черт. 1-4 расстояний между катками должно устанавливаться в стандартах или технических условиях на трансформаторы конкретных групп и типов.

2 Связь между массой трансформаторов и колеей рекомендуемая.

3 Связь между размерами на черт. 2-4 и посадочными местами кареток на трансформаторе должна соответствовать размерам рельсов по ГОСТ 7174.

4 По согласованию между изготовителем и потребителем допускается применение ширины колеи для поперечной перекатки трансформаторов, а также количество катков, отличные от указанных на черт. 2-4.

Трансформаторы массой 200-255 т

Черт. 2

Трансформаторы массой 255-300 т

Черт. 3

Трансформаторы массой 300-700 т

Черт. 4

Таблица 22

Номер чертежа

Ширина поперечной колеи В, мм

Расстояние между осями колеи Г, мм

2

1524

-

2000

-

3

1524

4164

2000

5140

4

1524

3188

2000

4164

(Измененная редакция, Изм. № 4)

3.5.48 В трансформаторах с полной массой более 0,05 т должна быть предусмотрена возможность их передвижения при монтаже.

Трансформаторы с полной массой свыше 5 т должны иметь устройство для зачаливания при перекатке.

Составные части трансформатора массой более 0,05 т должны иметь приспособления для стропления при подъеме.

3.5.49 Трансформаторы с полной массой более 25 т должны быть снабжены расположенными в нижней части бака устройствами для упора головок домкратов, обеспечивающими установку домкратов, подводимых под трансформатор.

3.5.50 Масляные трансформаторы и трансформаторы с негорючим жидким диэлектриком должны иметь крюки или иные устройства для подъема полностью собранного и заполненного маслом трансформатора.

3.5.51 (Исключен, Изм. № 1)

3.5.52 В масляных трансформаторах классов напряжения 220 кВ и выше масло должно быть полностью защищено от соприкосновения с окружающим воздухом.

3.5.53 Масло в баке или расширителе контактора устройства РПН должно быть защищено от непосредственного соприкосновения с окружающим воздухом воздухоосушителем с масляным затвором или другим устройством.

(Измененная редакция, Изм. № 1)

3.5.54 Масляные трансформаторы с массой масла более 1000 кг должны быть снабжены фильтрами: термосифонными - при видах систем охлаждений М и Д, адсорбционными - при остальных видах систем охлаждений и фильтрами очистки масла от механических примесей - при видах систем охлаждений ДЦ, НДЦ, Ц, НЦ.

(Измененная редакция, Изм. № 4)

3.6 Требования к системам охлаждения масляных трансформаторов

3.6.1 Общие требования к конструкции

3.6.1.1 Система охлаждения должна быть рассчитана на отвод тепла, выделяющегося в трансформаторе в охлаждающую среду, и обеспечивать его тепловой режим в соответствии с требованиями п. 3.2.1.

3.6.1.2 За исключением герметичных трансформаторов с гофрированными баками система охлаждения должна быть навешена на бак либо вынесена.

(Измененная редакция, Изм. № 4)

3.6.1.3 Системы охлаждения видов Д, ДЦ, НДЦ, Ц и НЦ должны иметь шкафы автоматического управления.

Шкафы автоматического управления системами охлаждения видов ДЦ, НДЦ, Ц и НЦ должны устанавливать отдельно от бака трансформатора.

3.6.1.4 Система охлаждения видов ДЦ, НДЦ, Ц и НЦ должны предусматривать резервные охладители.

3.6.1.5 (Исключен, Изм. № 4)

3.6.1.6 Электродвигатели вентиляторов и электронасосы должны иметь автоматические выключатели для защиты от токов короткого замыкания. При этом электродвигатели систем охлаждения видов ДЦ, НДЦ, Ц и НЦ должны иметь защиту от работы на двух фазах.

3.6.1.7 Напряжение питания электродвигателей вентиляторов и электронасосов - 380 В переменного тока, цепей управления - 220 В постоянного или переменного тока.

По заказу потребителя в системе охлаждения вида Д трансформаторов класса напряжения 110 кВ и менее могут быть применены электродвигатели с напряжением питания 220 В переменного тока.

3.6.1.8 (Исключен, Изм. № 4)

3.6.1.9 Системы охлаждения видов НДЦ и НЦ должны быть обеспечены устройствами для присоединения приборов контроля расхода масла.

3.6.1.10 (Исключен, Изм. № 4)

3.6.1.11 Охладители вынесенных систем охлаждения видов Ц и НЦ должны быть установлены в помещениях с температурой воздуха не менее 5°С.

3.6.1.12 В системах охлаждения видов Ц и НЦ должно быть обеспечено превышение гидростатического давления масла над давлением воды (в любой точке охладителя) не менее 10 кПа при минимальном уровне масла в расширителе трансформатора.

3.6.1.13 В системах охлаждения видов Ц и НЦ каждый электронасос должен быть снабжен манометром и каждый охладитель - манометрами и термометрами для измерения давления и температуры масла и воды на входных и выходных патрубках охладителя.

3.6.2 Требования к функционированию системы охлаждения вида Д

3.6.2.1 Автоматическое управление системой охлаждения вида Д должно обеспечивать:

- включение электродвигателей вентиляторов при достижении температуры верхних слоев масла 55°С или при достижении тока, равного 1,05 номинального, - независимо от температуры верхних слоев масла;

- отключение электродвигателей вентиляторов при снижении температуры верхних слоев масла до 50°С, если при этом ток нагрузки менее 1,05 номинального.

3.6.3 Требования к функционированию систем охлаждения видов ДЦ, НДЦ, Ц, НЦ

3.6.3.1 Автоматическое управление систем охлаждения видов ДЦ, НДЦ, Ц и НЦ должно обеспечивать:

- включение электронасосов и электродвигателей вентиляторов (для систем охлаждения видов ДЦ и НДЦ);

- включение электронасосов и электродвигателей вентиляторов (для систем охлаждения видов ДЦ и НДЦ) резервного охладителя взамен любого автоматически аварийно отключенного рабочего;

- включение резервного питания при недопустимом снижении или исчезновении напряжения в основной цепи, а также обратное переключение на основную цепь при восстановлении в ней допустимого напряжения;

- включение и отключение нагревателей шкафа автоматического управления системами охлаждения видов ДЦ и НДЦ.

(Измененная редакция, Изм. № 1)

3.6.3.2 Автоматическое управление систем охлаждения видов НДЦ, Ц, НЦ должно обеспечивать следующую работу электронасосов:

- при температуре верхних слоев масла в баке, равной 15°С и более, должны работать все рабочие электронасосы;

- при температуре верхних слоев масла в баке менее 15°С должен работать только пусковой электронасос.

3.6.3.3 Автоматическое управление систем охлаждения видов ДЦ и НДЦ должно обеспечивать работу электродвигателей вентиляторов и электронасосов для системы охлаждения вида ДЦ и электродвигателей вентиляторов для системы охлаждения вида НДЦ группами:

первой - в режиме холостого хода или при нагрузке не более 40% номинального тока;

первой и второй - при нагрузке трансформатора более 40% номинального тока;

первой, второй и третьей - при нагрузке трансформатора более 75% номинального тока.

При небольшом количестве охладителей число групп может быть сокращено.

Электродвигатели вентиляторов должны работать только при температуре верхних слоев масла в баке более 40°С группами в зависимости от нагрузки трансформатора.

(Измененная редакция, Изм. № 4)

3.6.3.4 В системах охлаждения видов Ц и НЦ циркуляция воды через маслоохладители должна автоматически осуществляться после включения рабочих электронасосов циркуляции масла и отключаться при снижении температуры верхних слоев масла в баке ниже 15°С или при снятии напряжения.

3.6.3.5 Автоматическое управление систем охлаждения видов ДЦ, НДЦ, Ц и НЦ должно обеспечивать выдачу сигналов для осуществления следующей сигнализации:

а) о включении системы охлаждения:

- при включении пускового электронасоса;

- при включении рабочих электронасосов;

б) о неисправности системы охлаждения:

- при аварийном отключении пускового электронасоса;

- при аварийном отключении любого рабочего электронасоса;

- при аварийном отключении резервного электронасоса;

- при включении резервного электронасоса;

- при неотключении пускового электронасоса при работающих рабочих электронасосах;

- при включении резервного источника питания системы охлаждения;

в) об отключении системы охлаждения:

- при отключении рабочего и резервного источников питания системы охлаждения;

- при отключении пускового и всех рабочих электронасосов;

г) о включении и отключении нагревателя (для систем охлаждения видов ДЦ и НДЦ).

3.6.4 Указания о работе трансформаторов при прекращении функционирования системы охлаждения должны быть изложены в эксплуатационной документации.

3.6.5 Вводные аппараты защиты от токов короткого замыкания шкафов автоматического управления системой охлаждения должны быть стойкими к действию токов сквозного короткого замыкания со значением амплитудного тока 16 кА.

3.6.6 (Исключен, Изм. № 1)

3.6.7 Системы охлаждения должны допускать ручное управление.

3.7 Требования к защитным покрытиям

3.7.1 Для масляных трансформаторов металлические поверхности элементов активной части, внутренние поверхности бака, расширителя и защитного устройства (выхлопной трубы) должны иметь маслостойкое покрытие, защищающее масло от контакта с ними и не оказывающее вредного влияния на масло.

Допускается не защищать покрытием торцевые поверхности магнитной системы, магнитные экраны, алюминиевые шины, детали переключающих устройств, крепежные детали, а также другие детали и составные части активной части, не оказывающие активного каталитического воздействия на масло.

3.7.2 Охладители систем охлаждения должны быть очищенными и промытыми трансформаторным маслом.

Трубы маслопроводов систем охлаждения, соединяющие бак трансформатора с охладителями, должны быть коррозионно-стойкими и маслостойкими или иметь коррозионно-стойкое и маслостойкое внутреннее покрытие.

(Измененная редакция, Изм. № 1, 4)

3.7.3 Для трансформаторов с негорючим жидким диэлектриком и масляных трансформаторов с гофрированными баками требования защиты внутренних поверхностей должны быть указаны в стандартах или технических условиях на эти трансформаторы.

3.7.4 Наружные поверхности трансформатора из некоррозионно-стойких материалов должны иметь стойкие к атмосферным воздействиям покрытия. Применяемые для этих целей лакокрасочные покрытия должны быть серого, светло-серого или темно-серого цветов.

Для сухих трансформаторов требования к цвету покрытий наружных поверхностей должны быть указаны в технических условиях на эти трансформаторы.

Поверхности резьбовых соединений, деталей сочленения бака с транспортером сочлененного типа, поверхности катания катков, поверхности заземления допускается не защищать покрытиями. В этом случае указанные поверхности подлежат консервации.

(Измененная редакция, Изм. № 1, 4)

3.7.5 Трансформаторы для КТП мощностью св. 250 кВ·А и КРУ должны быть окрашены в один цвет с их шкафами.

(Измененная редакция, Изм. № 3)

3.8 Требования к заземлению

3.8.1 Заземление баков трансформаторов должно быть выполнено в соответствии с требованиями ГОСТ 12.2.007.0 со следующими дополнениями:

- при применении для заземления резьбового соединения диаметр резьбы должен быть М12 для трансформаторов мощностью 25 кВ·А и более и М8 - для трансформаторов мощностью менее 25 кВ·А;

- поверхность заземляющего контакта должна быть достаточной для присоединения стальной шины сечением не менее 40´4 мм;

- заземляющий контакт должен быть расположен в доступном месте внизу бака на стороне НН, а в трансформаторах с охлаждением вида С - в доступном месте остова.

3.8.2 Магнитная система трансформатора и массивные металлические конструктивные элементы должны иметь надежное металлическое соединение с баком.

3.9 Требования к нагрузке и внешним механическим воздействиям

3.9.1 Для сухих трансформаторов с изоляцией классов нагревостойкости F, Н, С по ГОСТ 8865, предназначенных для работы на высоте, превышающей 1000 м (но не более 3500 м) над уровнем моря, номинальная мощность должна быть снижена в зависимости от высоты установки и указана в стандартах или технических условиях на эти трансформаторы.

Для остальных трансформаторов, предназначенных для работы на высоте, превышающей 1000 м (но не более 3500 м) над уровнем моря, номинальная мощность должна быть сохранена независимо от высоты установки.

3.9.2 Мощность обмоток на всех ответвлениях должна быть номинальной, кроме отрицательных ответвлений обмоток ниже минус 5% номинального напряжения.

При работе на ответвлениях ниже минус 5% номинального напряжения мощность обмотки должна соответствовать неизменному для всех этих ступеней току, равному номинальному току ответвления минус 5%, а при отсутствии такого ответвления ближайшему большему току (например, при диапазоне ±8´1,5% - номинальному току ответвления минус 4´1,5%).

3.9.3 Масляные трансформаторы и трансформаторы с негорючим жидким диэлектриком должны быть рассчитаны на следующие продолжительные режимы работы.

3.9.3.1 Для всех трансформаторов - на продолжительную нагрузку одной или двух обмоток током, превышающим на 5% номинальный ток ответвления, на которое включена соответствующая обмотка, если напряжение ни на одной из обмоток не превышает номинального напряжения соответствующего ответвления. При этом ток нагрузки не должен превышать 1,05 номинального тока обмотки, в автотрансформаторе ток в общей обмотке не должен превышать наибольший длительно допустимый ток этой обмотки, а мощность трансформатора не должна быть более номинальной.

3.9.3.2 Для трехобмоточного трансформатора - любое распределение продолжительных нагрузок по его обмоткам при условии, что ни одна из трех обмоток не будет нагружена током, превышающим допустимый по п. 3.9.3.1, а потери трансформатора не превысят сумму его потерь холостого хода и наибольшего из значений потерь короткого замыкания пар обмоток.

3.9.3.3 Для трехобмоточного автотрансформатора - любое распределение продолжительных нагрузок по его обмоткам при условии, что ни одна из трех обмоток не будет нагружена током, превышающим допустимый по п. 3.9.3.1, а потери автотрансформатора не превысят сумму его потерь холостого хода и максимальных нагрузочных потерь.

Примечание. Для обмотки, нагруженной током, превышающим ее номинальный ток, а также для верхних слоев масла или другого жидкого диэлектрика и для других обмоток расчетное превышение температуры может быть выше указанного в настоящем разделе, но не более чем на 5°С. Это относится также к расчетным превышениям температуры, откорректированным по результатам испытаний на нагрев.

3.9.4 Допустимые продолжительные нагрузки сухих трансформаторов должны быть установлены в стандартах или технических условиях на трансформаторы конкретных групп и типов.

3.9.5 В трансформаторах с расщепленной на две части обмоткой НН номинальная мощность каждой из ее частей должна быть равна 50% номинальной мощности трансформатора.

3.9.6 Вводы и отводы нейтрали обмотки НН должны быть выбраны на продолжительную нагрузку током, равным:

- для трансформаторов со схемой соединения обмоток У/Ун - 25%,

- для трансформаторов со схемами соединения обмоток У/Zн и Д/Ун - 75% номинального тока обмотки НН.

3.9.7 Вводы и отводы нейтрали ВН трансформаторов классов напряжения 6-35 кВ со схемой соединения обмоток Ун/Д и всех трансформаторов классов напряжения 110 кВ и выше должны быть выбраны на продолжительную нагрузку током, равным номинальному току обмотки ВН.

Вводы и отводы нейтрали СН трехобмоточных трансформаторов классов напряжения 110 кВ и выше должны быть выбраны на продолжительную нагрузку током, равным номинальному току обмотки СН.

(Измененная редакция, Изм. № 1)

3.9.8 Форма кривой напряжения, подводимого к трансформатору, должна быть практически синусоидальной, а система фазных напряжений - практически симметричной.

Примечание. Понятия «практически синусоидальная» и «практически симметричная» - по ГОСТ 3484.1 - ГОСТ 3484.5.

3.9.9 (Исключен, Изм. № 4)

3.9.10 Категории размещения для масляных трансформаторов, трансформаторов с негорючим жидким диэлектриком и сухих герметичных трансформаторов - 1-4, для сухих негерметичных трансформаторов - 3, 4 по ГОСТ 15150.

4 ТРЕБОВАНИЯ БЕЗОПАСНОСТИ

4.1 Требования безопасности, в том числе пожарной, должны соответствовать ГОСТ 12.2.007.0, ГОСТ 12.2.007.2 и ГОСТ 12.1.004.

Вероятность возникновения пожара в силовых трансформаторах не должна превышать 10-6 в год.

(Измененная редакция, Изм. № 4)

4.2 Трансформаторы должны быть снабжены прикрепленными к баку лестницей и упорами в соответствии с ГОСТ 12.2.007.2.

Данное требование не распространяется на герметичные трансформаторы для КТП (без расширителя).

Для передвижных трансформаторов допускается лестницу выполнять в виде скоб, приваренных к баку трансформатора.

4.3 Требования безопасности для трансформаторов, заполненных негорючим жидким диэлектриком:

а) синтетические жидкие диэлектрики не должны быть токсичны;

б) синтетические жидкие диэлектрики не должны поддерживать горение;

в) пары синтетических жидких диэлектриков и продукты их разложения не должны образовывать в смеси с воздухом или азотом токсичной, взрывчатой или горючей смеси.

Примечание. Введение в действие требования, установленного подпунктом а, - с 01.01.89.

4.4 Допустимые значения шумовых характеристик для масляных трансформаторов - по- ГОСТ 12.2.024, для сухих трансформаторов и трансформаторов, заполненных негорючим жидким диэлектриком, и трансформаторов на напряжение 1150 кВ - по стандартам и техническим условиям на эти трансформаторы.

(Измененная редакция, Изм. № 4)

5 КОМПЛЕКТНОСТЬ

5.1 В комплект трансформатора должны входить его составные части.

5.1.1 Составные части, входящие в комплект трансформатора, должны быть указаны в стандартах или технических условиях на трансформаторы конкретных групп или типов.

Примечание. В комплект трансформатора входит также масло, заливаемое в трансформатор при транспортировании в соответствии с требованиями п. 8.3.6, и силикагель.

(Измененная редакция, Изм. № 1, 4)

5.1.2 (Исключен, Изм. № 1)

5.1.3 Масляные трансформаторы, транспортируемые без масла, с баком, заполненным сухим воздухом или инертным газом, должны быть укомплектованы:

комплектом баллонов со сжатым газом в количестве, достаточном для поддержания давления в баке, равного 5-50 кПа на время транспортирования и последующего хранения;

устройством для подпитки газом бака, автоматически поддерживающим в нем избыточное давление 5-50 кПа.

(Измененная редакция, Изм. № 1)

5.1.4 Трансформаторы с системами охлаждения видов Ц и НЦ, для которых предусматривается применение нормализованной системы охлаждения в соответствии с типовым проектом, комплектуют трубами подсоединения системы охлаждения к трансформатору.

5.1.5 К трансформатору прилагают следующую техническую документацию:

паспорт трансформатора;

паспорта комплектующих изделий;

инструкцию по эксплуатации трансформатора, включающую документацию по плановому ремонту;

инструкцию по транспортированию, разгрузке, хранению, монтажу и вводу в эксплуатацию трансформатора;

чертежи важнейших составных частей в соответствии со стандартами или техническими условиями на трансформаторы конкретных групп и типов.

Основные технические данные и характеристики, которые должен содержать паспорт трансформатора, приведены в приложении 4.

6 ПРАВИЛА ПРИЕМКИ

6.1 Трансформатор подвергают приемо-сдаточным, приемочным, типовым, периодическим и квалификационным испытаниям.

(Измененная редакция, Изм. № 4)

6.2 Приемо-сдаточные испытания

6.2.1 Перед проведением приемо-сдаточных испытаний каждый трансформатор должен быть подвергнут наружному осмотру и проверке на соответствие рабочим чертежам.

6.2.2 Приемо-сдаточным испытаниям подвергают каждый трансформатор.

6.2.3 Программа приемо-сдаточных испытаний должна содержать:

проверку коэффициента трансформации и группы соединения обмоток - для всех трансформаторов;

испытание пробы масла из бака масляного трансформатора и контактора устройства РПН, имеющего гашение дуги в масле:

- определение пробивного напряжения - для трансформаторов мощностью 1 МВ·А и более и трансформаторов класса напряжения 35 кВ независимо от мощности; для остальных трансформаторов пробивное напряжение определяют по пробе масла, отбираемого не реже одного раза в день из емкости, из которой масло заливают в трансформаторы, а также непосредственно после каждой доливки масла в указанную емкость;

- определение тангенса угла диэлектрических потерь при температуре плюс 90°С - для всех трансформаторов классов напряжения 110 кВ и выше;

- определение влагосодержания и содержания механических примесей для масла из бака трансформатора - для трансформаторов, в конструкторской документации которых указанные показатели нормированы. Допускается определять пробивное напряжение по пробе масла, отбираемого не реже одного раза в день из емкости, из которой заполняются маслом трансформаторы мощностью до 6,3 МВ·А классов напряжения до 35 кВ включительно, если пробивное напряжение выше допустимого не менее чем на 15%;

испытание пробы масла из контактора устройства РПН допускается проводить до установки этого устройства на трансформатор;

испытание электрической прочности изоляции по ГОСТ 1516.1 и ГОСТ 20690 в объеме приемо-сдаточных испытаний для трансформаторов класса напряжения до 750 кВ включительно. Для трансформаторов класса напряжения 1150 кВ объем испытаний должен быть установлен в технических условиях на эти трансформаторы;

проверку потерь и тока холостого хода (опыт холостого хода) - для всех трансформаторов;

проверку потерь и напряжения короткого замыкания на основном ответвлении обмоток (опыт короткого замыкания) - для всех трансформаторов. Для трансформаторов 25 кВ·А и менее допускается проводить эту проверку выборочно от партии трансформаторов одного типа. Число трансформаторов в партии и решающее правило определяют стандартами или техническими условиями на трансформаторы конкретных групп или типов. Допускается не проводить проверку потерь и напряжения короткого замыкания между частями расщепленной обмотки;

испытание бака трансформатора на герметичность - для масляных трансформаторов, трансформаторов, заполненных негорючим жидким диэлектриком, и сухих герметичных трансформаторов. Требования к испытанию бака на герметичность должны быть установлены стандартами или техническими условиями на трансформаторы конкретных типов и групп;

испытание устройств РПН в сборе с трансформатором; при этом проводят:

проверку последовательности действия контактов, если она не проверялась до установки устройства РПН на трансформатор;

проверку правильности сочленения монтируемых на трансформаторе составных частей устройства РПН;

измерение крутящего момента на валу привода с проверкой работы механической блокировки ручного управления;

проверку правильности работы блокировки электродвигателя привода;

проверку устройства РПН под напряжением путем 4-5-кратной прогонки по всему диапазону регулирования.

Одновременно с приемо-сдаточными испытаниями изготовитель проводит следующие измерения для сравнения их результатов с результатами измерений в эксплуатации:

определение сопротивления обмоток постоянному току - для всех трансформаторов;

определение диэлектрических параметров изоляции;

определение сопротивления изоляции;

определение тангенса угла диэлектрических потерь и емкости - для трансформаторов класса напряжения 35 кВ мощностью 10 MB А и более и для всех трансформаторов классов напряжения 110 кВ и выше;

определение потерь холостого хода при малом напряжении - для трансформаторов мощностью 10 МВ·А и более.

6.3 Приемочным испытаниям подвергают опытные образцы, опытные партии или трансформаторы единичного производства на соответствие требованиям настоящего стандарта и стандарта или технических условий на трансформаторы конкретных групп и типов.

Программа приемочных испытаний должна содержать:

испытания, проверки и измерения по п. 6.2; при этом дополнительно следует проводить измерение потерь и напряжения короткого замыкания на крайних ответвлениях трансформаторов РПН, а также измерение напряжения короткого замыкания частей расщепленной обмотки;

испытание электрической прочности изоляции в объеме приемочных испытаний - по ГОСТ 1516.1 и ГОСТ 20690 для трансформаторов классов напряжения до 750 кВ включительно. Для трансформаторов класса напряжения 1150 кВ объем испытаний должен быть установлен в технических условиях на эти трансформаторы;

испытание на нагрев;

испытание на стойкость при коротком замыкании и стойкость к ударным толчкам нагрузки (последнее только для трансформаторов собственных нужд электростанций) - для трансформаторов трехфазных номинальной мощностью до 630 МВ·А включительно;

испытания бака на механическую прочность:

при внутреннем избыточном давлении - для трансформаторов с негорючим жидким диэлектриком, масляных и сухих герметичных трансформаторов,

при вакууме - для трансформаторов с негорючим жидким диэлектриком и масляных трансформаторов мощностью 1 МВ·А и более,

на транспортере - для трансформаторов, транспортируемых на транспортере сочлененного типа;

испытание активной части на механическую прочность при подъеме активной части и при запрессовке обмоток - для трансформаторов мощностью 100 МВ·А и более;

акустические испытания - для трансформаторов мощностью 100 кВ·А и более;

измерение сопротивления нулевой последовательности - для трехфазных двухобмоточных трансформаторов без боковых ярм, имеющих схему соединения обмоток Ун/Д. В остальных случаях такие измерения проводят по заказу потребителя по методике, согласованной с потребителем;

взвешивание - для трансформаторов мощностью до 1,6 МВ·А включительно;

измерение гармонического состава тока холостого хода;

проверка превышений температуры контактов съемных вводов.

Примечания:

1 При согласии основного потребителя допускается не проводить испытания на стойкость при коротком замыкании.

2 Испытанию на стойкость при коротком замыкании подлежит исполнение трансформатора с тем напряжением НН или СН, которому соответствуют наименьшие запасы стойкости трансформатора при коротком замыкании (в расчете).

6.2.3, 6.3 (Измененная редакция, Изм. № 1, 4)

6.4 Необходимость и объем типовых испытаний определяет изготовитель.

6.5 Периодические испытания следует проводить в объеме приемочных испытаний не реже одного раза в 5 лет для трансформаторов мощностью менее 10 МВ·А, одного раза в 8 лет - для трансформаторов мощностью до 100 МВ·А и одного раза в 10 лет - для трансформаторов мощностью 100 МВ·А и более. Дополнительно проводят контроль показателей надежности.

Испытания изоляции проводят в объеме периодических испытаний по ГОСТ 1516.1.

Если за период, прошедший после проведения приемочных, квалификационных или предыдущих периодических испытаний, были проведены типовые испытания по отдельным видам испытаний, то эти испытания должны быть засчитаны как периодические. Допускается не проводить периодические испытания на нагрев, на стойкость при коротком замыкании и стойкость к ударным толчкам нагрузки, на механическую прочность бака на транспортере и активной части, а также испытания акустические и на взвешивание.

Непроведение испытаний на стойкость при коротком замыкании должно быть согласовано с основным потребителем.

(Измененная редакция, Изм. № 1, 4)

6.6 Если при испытаниях хотя бы один из параметров трансформатора не будет соответствовать требованиям настоящего стандарта, стандарта или технических условий на трансформаторы конкретных групп или типов, то после устранения причины возникновения дефектов повторные испытания проводят по пунктам несоответствия.

Если для устранения причин дефектов или для оценки результатов испытаний на стойкость при коротком замыкании производилась разборка магнитной системы, то допускаются предельные отклонения от нормированных значений потерь и тока холостого хода +25% и +60% соответственно.

Для испытаний на стойкость при коротком замыкании в случае выявления повреждений одного из элементов трансформатора допускается не повторять испытания, если причина повреждений устраняется введением дополнительных мер, проверенных на моделях или других испытанных трансформаторах.

(Измененная редакция, Изм. № 4)

6.7 Допускается проводить различные виды приемочных, типовых и периодических испытаний на разных трансформаторах данного типа одного завода-изготовителя.

Трансформаторы, имеющие отличия в обозначении типа, но одинаковую конструкцию применительно к конкретному виду испытаний, рассматривают для этого вида испытаний как один тип.

(Измененная редакция, Изм. № 1, 4)

6.8 Протоколы приемочных, периодических испытаний и данные опыта короткого замыкания по фазам (напряжения, токи) предъявляют потребителю по его требованию.

(Измененная редакция, Изм. № 4)

6.9 Допускается не проводить приемочные испытания трансформатора либо отдельные виды этих испытаний на основе сравнения с трансформатором аналогичной конструкции (прототипом), изготовленным на том же предприятии и успешно выдержавшим соответствующие испытания, если соблюдены условия, перечисленные ниже.

Испытания не проводят:

- на нагрев - если рассматриваемый трансформатор и прототип имеют мощности равноценные или менее (но не более чем вдвое), аналогичные конструкции обмоток и магнитной системы, вид охлаждения, конструкцию охлаждающей системы, а превышения температуры рассматриваемого трансформатора с учетом результатов испытаний на нагрев прототипа и сопоставительного теплового расчета соответствует нормам, приведенным в п. 3.2.1;

- на стойкость при коротком замыкании - если прототип имеет более высокие расчетные механические усилия, нагрузки и осевые силы на опоры и меньшие запасы прочности при одинаковых с данным трансформатором конструкциях обмоток, опорной изоляции, прессующих элементах и других существенных признаках. Мощность прототипа не должна превышать мощность рассматриваемого трансформатора более чем вдвое. Для трансформаторов мощностью 1 МВ·А и более сопоставительный расчет должен быть выполнен по методике, согласованной с потребителем. При невыполнении расчетных соотношений испытания на стойкость при коротком замыкании обязательны, за исключением случая, когда единственным видом воздействий, по которому не выполнены требуемые расчетные соотношения по коэффициентам запаса, являются радиальные силы во внутренних обмотках. В этом случае допускается заменять испытания трансформатора испытанием полноразмерных моделей обмоток;

- на механическую прочность бака при вакууме и внутреннем избыточном давлении - если бак рассматриваемого трансформатора по сравнению с баком прототипа имеет для одинаковых баков равные, а для разных баков более низкие расчетные механические напряжения при аналогичной конструкции бака;

- на механическую прочность бака на транспортере и активной части при подъеме и запрессовке обмоток - если рассматриваемый трансформатор по сравнению с баком и активной частью прототипа имеет для одинаковых баков и активных частей равные, а для разных - более низкие расчетные механические напряжения при аналогичной конструкции бака и активной части соответственно;

- акустические испытания - если рассматриваемый трансформатор и прототип имеют идентичные магнитные системы и системы охлаждения, а номинальная частота и индукция в магнитной системе рассматриваемого трансформатора не выше, чем у прототипа;

- электрической прочности изоляции в случаях, предусмотренных ГОСТ 1516.1.

(Измененная редакция, Изм. № 1, 4)

6.10. Необходимость и объем квалификационных испытаний устанавливают в стандартах или технических условиях на трансформаторы конкретных групп и типов.

(Введен дополнительно, Изм. № 4)

7. МЕТОДЫ КОНТРОЛЯ

7.1 Наружный осмотр трансформатора проводят визуально.

Размеры трансформатора проверяют в процессе его изготовления с помощью измерительного инструмента, обеспечивающего точность измерений в пределах допусков, указанных на рабочих чертежах.

7.2 Методика испытаний и проверок трансформаторов должна соответствовать табл. 23.

Таблица 23

Испытание (проверка)

Методика

1 Проверка коэффициента трансформации

ГОСТ 3484.1

2 Проверка группы соединения обмоток

То же

3 Измерение сопротивления обмоток постоянному току

»

4 Проверка потерь и напряжения короткого замыкания (опыт короткого замыкания)

»

5 Проверка потерь и тока холостого хода (опыт холостого хода)

»

6 Измерение сопротивления нулевой последовательности

»

7 Измерение гармонического состава тока холостого хода

ГОСТ 3484.1

8 Испытания на нагрев

ГОСТ 3484.2

9 Определение диэлектрических параметров изоляции

ГОСТ 3484.3

10 Испытание баков на механическую прочность

ГОСТ 3484.4

11 Испытания баков на герметичность

ГОСТ 3484.5

12 Испытания электрической прочности изоляции

ГОСТ 22756 и ГОСТ 21023

13 Испытания на стойкость при коротком замыкании и стойкость к ударным толчкам нагрузки (последнее только для трансформаторов собственных нужд электростанции)

ГОСТ 20243

14 Акустические испытания

ГОСТ 12.2.024

15 Контроль маркировки

ГОСТ 18620

16 Испытания трансформаторного масла

По стандартам и техническим условиям на трансформаторные масла и по методике изготовителя

17 Проверка превышений температуры контактов съемных вводов

По методике изготовителя

18 Испытание активной части на механическую прочность

То же

19 Испытание (проверка) на пожарную опасность

По методике, соответствующей ГОСТ 12.1.004

20 Определение массы (взвешиванием)

По методике изготовителя

Примечания:

1 При испытаниях трехобмоточного трансформатора на стойкость при коротком замыкании допускается заменять трехобмоточный режим опытом, в котором средняя по расположению обмотка обтекается нормированным током короткого замыкания по п. 3.3, а две другие замкнуты накоротко.

2 Методика проведения испытаний на стойкость к ударным толчкам нагрузки должна быть согласована с основным потребителем.

(Измененная редакция, Изм. № 1, 3, 4)

7.3 Испытание на стойкость при коротком замыкании и толчках нагрузки трансформаторов собственных нужд электростанций следует проводить по методике, согласованной с потребителем.

7.4 Значения показателей надежности трансформаторов определяют расчетом с учетом данных эксплуатации по методике изготовителя.

7.5 Массу трансформаторов и их составных частей определяют расчетом, а массу трансформаторов мощностью до 1,6 МВА включ. - расчетом и взвешиванием.

(Измененная редакция, Изм. № 4)

8. МАРКИРОВКА, УПАКОВКА, ТРАНСПОРТИРОВАНИЕ И ХРАНЕНИЕ

8.1 Маркировка

8.1.1 Маркировка зажимов (вводов) для внешнего присоединения должна быть нанесена способом, обеспечивающим ее долговечность и стойкость к атмосферным воздействиям.

Маркировка зажимов (вводов) - в соответствии с табл. 3-10.

По заказу потребителя зажимы (вводы) следует маркировать в соответствии со специальными требованиями, приведенными в приложении 5.

(Измененная редакция, Изм. № 3, 4)

8.1.2 Каждый трансформатор должен быть снабжен прикрепленной на видном месте табличкой, на которой указывают следующие данные:

товарный знак предприятия-изготовителя;

наименование изделия (трансформатор, автотрансформатор);

заводской номер;

условное обозначение типа;

обозначение стандарта или технических условий на трансформаторы конкретных групп и типов;

дату изготовления в соответствии с требованиями нормативно-технической документации;

условное обозначение схемы и группы соединения обмоток;

номинальную частоту в герцах;

номинальный режим (в том случае, если режим отличается от продолжительного);

номинальную мощность в киловольтамперах (указывают также мощности основных обмоток трехобмоточных трансформаторов и мощность обмотки НН трехобмоточных автотрансформаторов);

номинальные напряжения трансформатора на основном ответвлении в вольтах или киловольтах;

номинальные токи обмоток на основном ответвлении в амперах;

напряжение короткого замыкания на основном ответвлении в процентах (для трехобмоточных трансформаторов указывают напряжение короткого замыкания всех пар обмоток);

уровень изоляции обмотки и ее нейтрали для обмоток классов напряжения 110 кВ и выше (указывают испытательные напряжения промышленной частоты и полного грозового импульса для внутренней изоляции);

класс нагревостойкости изоляции - только для сухих трансформаторов;

полную массу трансформаторов в килограммах или тоннах;

массу масла в килограммах или тоннах;

массу активной части в килограммах или тоннах - для трансформаторов мощностью 1 МВ·А и более;

транспортную массу, если она указана в стандартах или технических условиях на трансформаторы конкретных типов и групп;

массу съемной части бака в транспортном состоянии - для трансформаторов с нижним разъемом.

Примечания:

1 Для однофазного трансформатора, предназначенного для соединения в трехфазную группу, номинальные напряжения обмоток, соединяемых в звезду, обозначают в виде дроби, числителем которой является линейное напряжение трехфазной группы, а знаменателем Ö3.

2 Для трансформаторов мощностью 1 МВ·А и более указывают значение напряжения короткого замыкания, измеренное при приемо-сдаточных испытаниях. Для трансформаторов мощностью менее 1 МВ·А допускается указывать значение напряжения короткого замыкания, измеренное при приемочных испытаниях.

(Измененная редакция, Изм. № 1, 3, 4)

8.1.3 Кроме обозначения на табличке, заводской номер трансформатора должен быть четко обозначен рядом с табличкой, на крышке или верхе бака около ввода фазы А обмотки ВН и на левом конце верхней полки ярмовой балки остова со стороны НН.

В трансформаторах мощностью 630 кВ·А и менее допускается не обозначать заводской номер на баке и на крышке при взаимозаменяемости баков и крышек трансформаторов одного типа.

(Измененная редакция, Изм. № 1)

8.1.4 Для трансформаторов ПБВ и РПН первому положению привода должно соответствовать наибольшее значение номинального напряжения ответвления*.

* - Для новых разработок трансформаторов.

8.1.5 Маркировка места заземления должна быть выполнена по одному из методов ГОСТ 21130.

8.1.6 Транспортная маркировка - по ГОСТ 14192 со следующими дополнениями.

Основные, дополнительные и информационные надписи для упакованных демонтированных и запасных частей должны быть нанесены на таре, а для деталей и сборочных единиц, транспортируемых без упаковки, - на ярлыки или детали и сборочные единицы;

виды манипуляционных знаков, наносимых на грузовые места, места их нанесения должны соответствовать ГОСТ 14192  и технической документации на трансформатор.

8.1.7 На баке трансформатора должны быть нанесены предупредительные надписи «Домкрат» при наличии мест под установку домкратов.

(Измененная редакция, Изм. № 1, 4)

8.1.8 (Исключен, Изм. № 3)

8.1.9 На баках трансформаторов, на активной части которых установлен макет изоляции, вблизи места установки макета должна быть сделана надпись «Макет изоляции».

8.1.10 В трансформаторах с расщепленной обмоткой НН и с разными номинальными напряжениями частей маркировка вводов a1 b1, с1 должна относиться к большему напряжению, а вводов а2, b2, c2 - к меньшему.

8.1.11 Все надписи, указанные в п.п. 8.1.7, 8.1.9, должны быть выполнены несмывающейся краской.

8.1.12 На деталях и сборочных единицах, подлежащих демонтажу перед отправкой потребителю, должна быть предусмотрена маркировка для правильного монтажа.

(Введен дополнительно, Изм. № 4)

8.2 Упаковка

8.2.1 Масляные трансформаторы, а также демонтированные на время транспортирования крупногабаритные составные части транспортируют без упаковки. Составные части, внутренняя поверхность которых при эксплуатации трансформатора имеет контакт с маслом, при транспортировании и хранении должны быть защищены от попадания в них влаги и пыли.

Требования к упаковке и транспортированию трансформаторов, заполненных синтетическим жидким диэлектриком, должны быть указаны в технических условиях на эти трансформаторы.

8.2.2 Сухие трансформаторы упаковывают в деревянные ящики по ГОСТ 10198.

(Измененная редакция, Изм. № 1)

8.2.3 Комплектующие съемные составные части - вводы, приборы и т.д., а также крепежные детали должны быть упакованы в соответствии с требованиями ГОСТ 23216. Покупные комплектующие составные части, поступающие на предприятие-изготовитель трансформаторов, упаковывают в соответствии со стандартами или техническими условиями на эти изделия.

8.2.4 Категория упаковки демонтированных на время транспортирования составных и запасных частей, за исключением указанных в п. 8.2.1, конструкция и тип ящиков в зависимости от механических и климатических воздействий при транспортировании и хранении должны обеспечивать их сохранность во время транспортирования и хранения.

8.2.5 Консервация неокрашенных и не имеющих защитных покрытий наружных поверхностей трансформатора, подвергающихся коррозии и порче, - по ГОСТ 9.014.

8.2.6 Вводы на напряжение более 35 кВ, не демонтируемые на время транспортирования, должны быть защищены от механических повреждений во время транспортирования.

8.2.7 В конструкторской документации на каждый тип трансформатора должны быть указаны масса каждого грузового места (транспортного блока), их габаритные размеры, а также способы транспортирования: в упаковке, без упаковки.

(Измененная редакция, Изм. № 1)

8.2.8 Эксплуатационная документация на трансформатор и на его комплектующие изделия, транспортируемая с комплектом трансформатора, должна быть упакована не ниже КУ-2 по ГОСТ 23216.

8.3 Транспортирование

8.3.1 Требования к транспортированию трансформаторов устанавливают в стандартах или технических условиях на трансформаторы конкретных групп и типов.

8.3.2 Условия транспортирования трансформаторов в части воздействия климатических факторов - по группе условий хранения 8 ГОСТ 15150, в части воздействия механических факторов - Л по ГОСТ 23216.

8.3.3 Транспортирование трансформаторов производят железнодорожным или транспортом другого вида в соответствии с правилами перевозки груза или техническими условиями, действующими на транспорте данного вида.

8.3.4 Баки трансформаторов должны иметь приспособления для крепления на время транспортирования.

В случае применения растяжек они не должны касаться и повреждать выступающие части: радиаторы, запорную арматуру и т.д.

8.3.5 Для транспортирования допускается демонтаж отдельных составных частей трансформатора.

8.3.6 Масляные трансформаторы транспортируют высушенными и заполненными маслом. По согласованию между потребителем и изготовителем или в случае, когда это указано в стандартах или технических условиях на отдельные группы или типы трансформаторов, допускается вместо масла заполнять трансформаторы сухим инертным газом или воздухом.

При транспортировании трансформаторов с маслом в конструкторской документации указывают уровень масла, но не ниже уровня прессующих колец, до которого заполняют трансформатор на время транспортирования.

8.3.7 Масляные трансформаторы, транспортируемые без масла, с баком, заполненным сухим воздухом или инертным газом, должны быть уплотнены и испытаны на герметичность избыточным давлением, равным 25-50 кПа.

(Измененная редакция, Изм. № 1, 4)

8.4 Хранение

8.4.1 Требования к хранению трансформаторов должны устанавливаться в стандартах или технических условиях на трансформаторы конкретных групп или типов в соответствии с ГОСТ 23216.

9 УКАЗАНИЯ ПО ЭКСПЛУАТАЦИИ

9.1 Эксплуатацию трансформаторов производят в соответствии с инструкцией по эксплуатации.

9.2 До первого капитального ремонта трансформатора подпрессовку обмоток не производят.

9.3 Для трансформаторов, которые рассчитаны на работу с номинальной мощностью при температуре охлаждающей воды 33°С, допускается эксплуатация при температуре охлаждающей воды 37°С со снижением мощности нагрузки до 93% номинальной.

9.4 Допустимые превышения напряжения

9.4.1 Для масляных трансформаторов классов напряжения 110 кВ и выше допускаются кратковременные превышения напряжения при работе на любом ответвлении с кратностями и длительностью превышения напряжений, установленных в табл. 24 и ГОСТ 1516.1 -для трансформаторов классов напряжения 110-500 кВ и ГОСТ 20690 - для трансформаторов класса напряжения 750 кВ. Для трансформаторов класса напряжения 1150 кВ допустимые кратковременные превышения напряжения должны быть установлены в технических условиях на эти трансформаторы.

Таблица 24

Наименование параметра

Норма

Длительность превышения напряжения, не более

20 мин

20 с

Предшествующая нагрузка в долях номинального тока ответвления, не более

0,50

1,00

Кратность напряжения в долях номинального напряжения ответвления, не более

1,15

1,30

9.4.2 Допустимые продолжительные превышения напряжения

9.4.2.1 Трансформаторы классов напряжения до 35 кВ включительно мощностью свыше 630 кВ·А и все трансформаторы классов напряжения от 110 до 1150 кВ включительно допускают продолжительную работу (при мощности не более номинальной) при превышении напряжения на любом ответвлении любой обмотки на 10% более номинального напряжения данного ответвления. При этом напряжение на любой обмотке не должно превышать наибольшее рабочее напряжение по ГОСТ 721.

9.4.2.2 Допустимые продолжительные превышения напряжения для трансформаторов классов напряжения до 35 кВ включительно мощностью до 630 кВ·А включительно устанавливают в стандартах или технических условиях на эти трансформаторы.

9.4.2.3 Для автотрансформаторов РПН в нейтрали допускается продолжительное превышение напряжения (при мощности не более номинальной), подводимого к любому ответвлению любой обмотки более 10% сверх номинального напряжения данного ответвления при условии обеспечения контроля за возбуждением автотрансформатора в процессе его работы, которое не должно превышать 110% нормального рабочего возбуждения.

Примечания:

1 За нормальное рабочее возбуждение принимают наибольшее из значений возбуждения автотрансформатора, имеющих место при подведении на холостом ходу к каждому из ответвлений номинального напряжения этого ответвления.

2 В случае вынесенного устройства РПН (например, последовательного регулировочного трансформатора) автотрансформатор вместе с этим устройством рассматривают как единое целое.

9.4.2.4 При превышении напряжения в соответствии с п. п. 9.4.2.1, 9.4.2.2, 9.4.2.3 напряжение на любой стороне не должно превышать наибольшее рабочее напряжение, установленное ГОСТ 721.

9.5 В двухобмоточных трансформаторах с расщепленной обмоткой НН при одинаковых номинальных напряжениях ее частей допускается работа при параллельном соединении этих частей.

9.6 По согласованию между изготовителем и потребителем допускается установка трансформатора непосредственно на фундамент (без кареток или катков).

9.7 На месте установки трансформатору должен быть придан уклон, если об этом имеется указание в эксплуатационной документации изготовителя.

9.8 Трансформаторы и автотрансформаторы допускают параллельную работу при условии, что ни одна из обмоток не будет нагружена током, превышающим допустимый ток для данной обмотки.

9.9 Подъем трансформатора полной массой более 200 т в полностью собранном виде при монтаже или в эксплуатации должен быть согласован между изготовителем и потребителем.

10. ГАРАНТИИ ИЗГОТОВИТЕЛЯ

10.1 Изготовитель гарантирует соответствие трансформаторов требованиям настоящего стандарта при соблюдении условий транспортирования, хранения, монтажа и эксплуатации.

Гарантийный срок эксплуатации трансформаторов, которым присвоен государственный Знак качества, - 5 лет; остальных трансформаторов - 3 года со дня ввода их в эксплуатацию.

ПРИЛОЖЕНИЕ 1

Обязательное

Условное обозначение трансформаторов

1 Структурная схема условного обозначения трансформатора.

Для автотрансформаторов при классах напряжения стороны СН или НН 110 кВ и выше после класса напряжения стороны ВН через черту дроби указывают класс напряжения стороны СН или НН.

Примечание. Для трансформаторов, разработанных до 01.07.87, допускается указывать последние две цифры года выпуска рабочих чертежей.

2 Буквенная часть условного обозначения должна содержать обозначения в следующем порядке:

А - автотрансформатор;

О или Т - однофазный или трехфазный трансформатор;

Р - расщепленная обмотка НН;

условное обозначение видов охлаждения - по табл. 1 настоящего стандарта;

З - исполнение трансформатора с естественным масляным охлаждением или с охлаждением негорючим жидким диэлектриком с защитой при помощи азотной подушки без расширителя;

Л - исполнение трансформатора с литой изоляцией;

Т* - трехобмоточный трансформатор;

Н - трансформатор РПН;

С - исполнение трансформатора собственных нужд электростанций.

_____________________

* - Для двухобмоточных трансформаторов не указывают.

3 В стандартах или технических условиях на трансформаторы конкретных групп или типов могут предусматриваться дополнительные буквенные обозначения после букв, перечисленных выше.

4 Для трансформаторов с разными классами напряжения обмоток ВН допускается применять одинаковые условные обозначения, если эти трансформаторы различаются лишь номинальными напряжениями. В этом случае указывают наибольший из классов напряжения обмотки ВН.

5 Примеры условных обозначений:

трансформатора трехфазного сухого с естественным воздушным охлаждением при защищенном исполнении, двухобмоточного, мощностью 100 кВ·А, класса напряжения 10 кВ, исполнения У категории 3 по ГОСТ 15150:

ТСЗ-100/10-У3

трансформатора трехфазного масляного с охлаждением при естественной циркуляции воздуха или масла, двухобмоточного, с регулированием напряжения под нагрузкой, мощностью 2500 кВ·А, класса напряжения 110 кВ, исполнения У категории 1 по ГОСТ 15150:

ТМН-2500/110-У1

автотрансформатора трехфазного масляного с охлаждением при принудительной циркуляции воздуха и масла с ненаправленным потоком масла, трехобмоточного, с регулированием напряжения под нагрузкой, мощностью 200000 кВ·А, класса напряжения обмотки ВН - 330 кВ, класса напряжения обмотки - СН - 110 кВ, исполнения У категории 1 по ГОСТ 15150:

АТДЦТН-200000/330/110-У1

(Измененная редакция, Изм. № 1)

ПРИЛОЖЕНИЕ 2

Обязательное

Соответствие условных обозначений видов систем охлаждения, принятых СССР, СЭВ и МЭК

Условное обозначение вида охлаждения

Условное обозначение вида охлаждения

принятое СССР

принятое СЭВ и МЭК

принятое СССР

принятое СЭВ и МЭК

С

AN

ДЦ

OFAF

СЗиСГ

ANAN

НДЦ

ODAF

СД

ANAF

Ц

OFWF

М

ONAN

НЦ

ODWF

Д

ONAF

Н

LNAF

МЦ

OFAN

НД

LNAF

НМЦ

ODAN

ННД

LFAF

ПРИЛОЖЕНИЕ 3

Справочное

Методика расчета удельной массы

Удельную массу трансформатора ms, кг/(кВ·А), рассчитывают по формуле

где М - полная масса трансформатора, кг;

Sном - номинальная мощность трансформатора, кВ·А.

ПРИЛОЖЕНИЕ 4

Обязательное

Перечень технических данных и характеристик, включаемых в паспорт трансформатора

1 Условное обозначение схемы и группы соединения обмоток.

2 Номинальная частота в герцах.

3 Номинальный режим (указывают, если режим отличается от продолжительного).

4 Номинальная мощность в киловольтамперах (указывают также мощности основных обмоток трехобмоточных трансформаторов и мощность обмотки НН трехобмоточных автотрансформаторов).

5 Номинальные напряжения трансформатора и напряжения ответвлений в вольтах или киловольтах.

Примечание. Для однофазного трансформатора, предназначенного для соединения в трехфазную группу, напряжения обмоток, соединяемых в звезду, обозначают в виде дроби, числителем которой является линейное напряжение трехфазной группы, а знаменателем √3.

6 Номинальные токи обмоток на основном ответвлении в амперах.

7 Напряжение короткого замыкания на основном ответвлении в процентах (для трехобмоточных трансформаторов указывают напряжение короткого замыкания всех пар обмоток).

Примечание. Для трансформаторов мощностью менее 1 MB·А допускается указывать значение напряжения короткого замыкания, измеренное при приемочных испытаниях.

8 Уровень изоляции обмотки и ее нейтрали; при этом указывают испытательные напряжения промышленной частоты и полного грозового импульса для внутренней изоляции.

7, 8 (Измененная редакция, Изм. № 4)

9 Класс нагревостойкости изоляции - только для сухих трансформаторов.

10 Данные приемо-сдаточных испытаний, необходимые для ввода трансформатора в эксплуатацию.

11 Мощность трансформатора при отключенном дутье для трансформаторов с охлаждением Д.

12 Наибольший длительно допустимый ток в общей обмотке для автотрансформаторов.

13 Потери холостого хода.

14 Потери короткого замыкания на основном ответвлении во всех парных режимах.

15 Потери и напряжение короткого замыкания на крайних ответвлениях - для трансформаторов РПН.

16 Напряжение короткого замыкания всех пар частей расщепленной обмотки и пар из каждой части расщепленной обмотки и каждой из нерасщепленных обмоток на основном и крайних ответвлениях - для трансформаторов с расщепленными обмотками.

17 Ток холостого хода.

18 Сопротивление обмоток постоянному току.

Примечание. Если сопротивления постоянному току между отдельными парами зажимов обмотки трехфазного трансформатора отличаются друг от друга вследствие конструктивных или технологических особенностей исполнения обмоток, отводов, устройств ПБВ (РПН) более чем на 2%, то в паспорте должны быть указаны измеренные значения сопротивлений между всеми парами зажимов и причины, вызвавшие эти отклонения.

(Измененная редакция, Изм. № 3, 4)

19 Сопротивление и тангенс угла диэлектрических потерь изоляции трансформатора.

20 Значение температуры, при которой измерялись сопротивление обмоток постоянному току, сопротивление и тангенс угла диэлектрических потерь изоляции трансформатора.

21 Указание об облегченной изоляции - для трансформаторов с облегченной изоляцией.

22 Расчетную тепловую постоянную времени трансформатора, а по согласованию между изготовителем и потребителем - максимальную и минимальную расчетные тепловые постоянные времени обмоток трансформатора - для трансформаторов мощностью более 1 МВ·А.

23 Сопротивление нулевой последовательности - для трансформаторов, у которых измерение этого сопротивления предусмотрено настоящим стандартом или стандартами (техническими условиями) на трансформаторы конкретных групп и типов.

(Измененная редакция, Изм. № 4)

24 Обозначение стандарта или технических условий и пробивное напряжение масла, примененного при испытаниях, и масла, которым заполнен бак трансформатора (для трансформаторов классов напряжения 110 кВ и выше должен быть дополнительно указан тангенс угла диэлектрических потерь масла при температуре 90°С).

25 Максимальные расчетные нагрузочные потери - для трехобмоточных автотрансформаторов.

(Измененная редакция, Изм. № 4)

26 Значения измеренных сил прессовки каждого прессующего кольца.

27 Другие данные по усмотрению изготовителя.

Примечания:

1 Для параметров, приведенных в п. п. 15, 16, допускается указывать расчетные значения с учетом результатов испытаний.

2 Для параметров, приведенных в п. п. 13-17, для трансформаторов мощностью до 6,3 МВ·А включительно допускается указывать нормированные значения.

(Измененная редакция, Изм. № 1).

ПРИЛОЖЕНИЕ 5

Обязательное

Маркировка выводов и ответвлений силовых трансформаторов

1 Порядок обозначения

Маркировку выводов и ответвлений силовых трансформаторов следует выполнять, применяя систему обозначений, основанную на чередовании прописных букв латинского алфавита и арабских цифр. Применение букв 1 и 0 не допускается. Примеры маркировки - на черт. 5-12.

Примечание. Допускается применять строчные буквы, однако предпочтительнее применение прописных букв.

ПРИМЕРЫ МАРКИРОВКИ ВЫВОДОВ И ОТВЕТВЛЕНИЙ СИЛОВЫХ ТРАНСФОРМАТОРОВ

Маркировка обмоток фазы

а) обмотка фазы с ответвлениями посредине; б) обмотка фазы с грубой и тонкой ступенями регулирования на одном конце обмотки; в) обмотка фазы, состоящая из двух частей, соединяемых последовательно или параллельно; г) обмотка фазы, состоящая из двух частей, соединенных последовательно, каждая из которых посредине ответвления

Черт. 5

Маркировка однофазных трансформаторов

а) трансформатор с двумя обмотками без ответвлений; б) трансформатор с тремя обмотками без ответвлений; в) автотрансформатор без ответвлений

Черт. 6

Маркировка однофазных автотрансформаторов

а) обмотка с ответвлениями, помещенная между последовательной и общей обмотками; б) обмотка с ответвлениями, помещенная в конце последовательной обмотки; в) обмотка с ответвлениями, один конец которой подключен к соединению между последовательной и общей обмотками

Черт. 7

Маркировка трехфазных двухобмоточных трансформаторов

а) Ун/Ун-0; б) Ун/Ун-6; в) Ун/Д-5; г) Ун/Д-11

Черт. 8

Маркировка трехфазного трехобмоточного трансформатора (Ун/Ун/Д-0-5)

Черт. 9

Маркировка обмотки низшего напряжения черт. 9, если она соединена в открытый треугольник

Черт. 10

Маркировка трехфазного автотрансформатора (Унавто/Д-0)

Черт. 11

Маркировка линейного регулировочного трансформатора с возбуждающей обмоткой, соединенной в треугольник

Черт. 12

Допускается опускать буквы и цифры. Соседние группы цифр, имеющие различное смысловое значение, следует разделять точкой. Например, вместо обозначения 1 U 11 допускается сокращенная запись - 1.11.

Следует следить за тем, чтобы между двумя подобными обозначениями не было смешения.

2 Концы обмоток фазы

Два конца обмоток фазы, подводимые к линейному или нейтральному выводам, следует маркировать соответственно цифрами 1 и 2.

Если обмотки фазы на концах имеют ответвления, предназначенные для присоединения к устройствам ПБВ или РПН, которые ведут к линейному или нейтральному выводам, то эти выводы следует маркировать соответственно цифрами 1 или 2.

При такой системе маркировки выводов и ответвлений на чертежах схем обмоток предполагается одинаковое направление намотки для всех обмоток. Полярность концов 1 и 2 всех обмоток одного стержня также всегда одинаковая.

Примечание. Маркировка автотрансформаторов с двумя обмотками фазы, имеющими общий конец - по п. 4.

3 Линейный и нейтральный выводы

Линейные выводы обмотки трехфазного силового трансформатора следует обозначать буквами U, V, W, которые помещают перед цифрами, приведенными в п. 2. Если необходимо, допускается помещать эти буквы также перед цифрами, приведенными в п. п. 5 и 6.

Нейтраль обмотки, соединенной в звезду или зигзагом, следует обозначать буквой N.

4 Обозначение обмоток

Различные обмотки трансформатора следует обозначать цифрами, которые помещают перед буквами, приведенными в п. 3. Обмотку высшего напряжения следует обозначать цифрой 1, а другие обмотки - цифрами 2, 3, 4... в нисходящем порядке номинальных напряжений.

Для автотрансформаторов, у которых две обмотки имеют общий конец, этот конец следует маркировать цифрой 2 (пример приведен на черт. 6, в).

Примечание. Если несколько обмоток имеют одинаковое номинальное напряжение, применение соответствующего им цифрового обозначения следует согласовать между изготовителем и потребителем.

5 Последовательно-параллельное соединение

Если обмотки фазы состоят из нескольких частей, которые могут быть соединены последовательно или параллельно, концы этих частей следует обозначать цифрами 1, 2, 3, 4... при этом линейные или нейтральные концы обмоток фазы маркируют цифрами 1 и 2 в соответствии с требованиями п. 2.

6 Маркировка ответвлений

Ответвления, подводимые к устройствам РПН или ПБВ, следует обозначать группой цифр, расположенными в возрастающем порядке. Значения этих цифр должны быть больше применяемых для обозначения линейного и нейтрального выводов и для обозначения концов частей обмоток фазы, соединенных последовательно или параллельно.

Нумерация должна начинаться с ближайшего к концу, промаркированному цифрой 1, ответвления. Маркировка обмоток с переключаемыми ответвлениями должна основываться на таком соединении, которое дает наибольшее эффективное число витков для обмотки, присоединенной к устройству ПБВ или РПН.

Обмотки автотрансформаторов с ответвлениями, расположенными между последовательной и общей обмотками или на конце последовательной обмотки, а также обмотки, один конец которых подключен к соединению между последовательной и общей обмотками (черт. 7в), следует нумеровать как последовательную обмотку.

В более сложных случаях, например, когда два трансформатора помещены в один бак, требуется согласование между изготовителем и потребителем.

(Введено дополнительно, Изм. № 3)

ИНФОРМАЦИОННЫЕ ДАННЫЕ

1 РАЗРАБОТАН И ВНЕСЕН Министерством электротехнической промышленности. РАЗРАБОТЧИКИ - И.Ю. Мелешко (руководитель темы); В.Ю. Френкель, канд. техн. наук; В.М. Кириллов; С.И. Майзус

2 УТВЕРЖДЕН И ВВЕДЕН В ДЕЙСТВИЕ Постановлением Государственного комитета СССР по стандартам от 24.09.85 № 3005

3 Стандарт полностью соответствует СТ СЭВ 1102-86

Стандарт соответствует международным стандартам МЭК 76-1-76, МЭК 76-2-76, МЭК 76-4-76, МЭК 76-5-76

В стандарт введен международный стандарт МЭК 616-78.

4 ВЗАМЕН ГОСТ 11677-75

5 ССЫЛОЧНЫЕ НОРМАТИВНО-ТЕХНИЧЕСКИЕ ДОКУМЕНТЫ

Обозначение НТД, на который дана ссылка

Номер пункта

Обозначение НТД, на который дана ссылка

Номер пункта

ГОСТ 9.014-78

8.2.5

ГОСТ 14192-96

8.1.6

ГОСТ 12.1.004-91

4.1; 7.2

ГОСТ 14209-85

3.2.1.8

ГОСТ 12.2.007.0-75

3.8.1; 4.1

ГОСТ 15150-69

1.2; 1.3; 3.9.10; 8.3.2; приложение 1

ГОСТ 12.2.007.2-75

3.5.41; 4.1; 4.2

ГОСТ 12.2.024-87

4.4; 7.2

ГОСТ 15543.1-89

1.2; 1.3

ГОСТ 721-77

2.3; 9.4.2.1; 9.4.2.4

ГОСТ 16110-82

Вводная часть

ГОСТ 1516.1-76

3.2.2.1; 3.2.2.2; 6.2.3 6.3; 6.5; 6.9; 9.4.1

ГОСТ 17221-91

3.6.1.5

ГОСТ 17412-72

1.3

ГОСТ 3484.1-88

 

ГОСТ 17516.1-90

1.3

ГОСТ 3484.5-88

3.9.8; 7.2

ГОСТ 18620-86

7.2

ГОСТ 7174-75

3.5.47

ГОСТ 20243-74

3.3.1.1; 7.2

ГОСТ 7746-89

3.5.11

ГОСТ 20690-75

3.2.2.1; 6.2.3; 6.3; 9.4.1

ГОСТ 8865-93

2.5; 3.2.1.5; 3.2.1.6; 3.9.1

ГОСТ 21023-75

7.2

ГОСТ 9680-77

2.3

ГОСТ 21128-83

2.3

ГОСТ 9920-89

3.5.6

ГОСТ 21130-75

8.1.5

ГОСТ 10198-91

8.2.2

ГОСТ 22756-77

7.2

ГОСТ 10434-82

3.5.2

ГОСТ 23216-78

8.2.3; 8.2.8; 8.3.2; 8.4.1

ГОСТ 10693-81

3.5.1

ГОСТ 23865-79

3.5.1

ГОСТ 13109-97

2.4

ГОСТ 24126-80

3.5.10

6 Ограничение срока действия снято по протоколу № 5-94 Межгосударственного Совета по стандартизации, метрологии и сертификации (ИУС 11-12-94)

7 ПЕРЕИЗДАНИЕ (январь 1999 г.) с Изменениями № 1, 2, 3, 4, утвержденными в мае 1987 г., сентябре 1987 г., сентябре 1989 г., декабре 1990 г. (ИУС 8-87, 12-87, 12-89, 3-91)

 

 




Яндекс цитирования



   Copyright © 2007-2026,  www.tehlit.ru.

[ ѓосты, стандарты, нормативы, инструкции, правила, строительные нормы ]