//
ТехЛит.ру
- крупнейшая бесплатная электронная интернет библиотека для "технически умных" людей.
WWW.TEHLIT.RU - ТЕХНИЧЕСКАЯ ЛИТЕРАТУРА

:: Алготрейдинг::


АЛГОТРЕЙДИНГ
шаг за шагом
с нуля по урокам!

Торговые роботы на PYTHON, BackTrader,
Pandas, Pine Script для TradingView. Связка с брокерами, телеграм и легкими приложениями.


ГОСТ 21924.0-84

МЕЖГОСУДАРСТВЕННЫЕ СТАНДАРТЫ

ПЛИТЫ ЖЕЛЕЗОБЕТОННЫЕ ДЛЯ ПОКРЫТИЙ ГОРОДСКИХ ДОРОГ

ИПК ИЗДАТЕЛЬСТВО СТАНДАРТОВ

Москва

МЕЖГОСУДАРСТВЕННЫЙ СТАНДАРТ

ПЛИТЫ ЖЕЛЕЗОБЕТОННЫЕ ДЛЯ ПОКРЫТИЙ ГОРОДСКИХ ДОРОГ

Технические условия

Reinforced concrete slabs for pavements of city roads. Specifications

ГОСТ 21924.0-84

Дата введения 01.01.85

Настоящий стандарт распространяется на железобетонные предварительно напряженные плиты и плиты с ненапрягаемой арматурой, изготовляемые из тяжелого бетона и предназначенные для устройства сборочных покрытий постоянных и временных городских дорог под автомобильную нагрузку Н-30 и Н-10.

Плиты применяют для дорог в районах с расчетной температурой наружного воздуха (средней наиболее холодной пятидневки района строительства по СНиП 2.01.01) до минус 40 °C включ.

При применении плит в климатическом подрайоне IVA должны учитываться дополнительные требования СНиП 2.03.01 к конструкциям, предназначенным для эксплуатации в этом районе.

Допускается применение данных плит для дорог в районах с расчетной температурой наружного воздуха ниже минус 40 °C при соблюдении требований, предъявляемых СНиП 2.03.01 к конструкциям, предназначенным для эксплуатации в этих условиях.

Стандарт не распространяется на железобетонные плиты для внутренних автомобильных дорог промышленных предприятий, для внутрихозяйственных автомобильных дорог по СНиП 2.05.07, а также на плиты многоразового использования для временных дорог на строительных площадках.

(Измененная редакция, Изм. № 1).

1. ТИПЫ, ОСНОВНЫЕ ПАРАМЕТРЫ И РАЗМЕРЫ

1.1. Плиты подразделяют на типы в зависимости:

- от назначения:

1 - для постоянных дорог,

2 - для временных дорог;

- от конфигурации:

П - прямоугольная,

ПБ - прямоугольная с одним совмещенным бортом,

ПББ - прямоугольная с двумя совмещенными бортами,

ПТ - трапецеидальная,

ПШ - шестиугольная,

ПШД - шестиугольная осевая диагональная,

ПШП - шестиугольная осевая поперечная,

ДПШ - диагональная половина шестиугольной плиты,

ППШ - поперечная половина шестиугольной плиты.

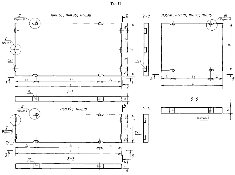
1.2. Форма и основные размеры плит должны соответствовать указанным на черт 1-6 и в табл. 1, 2.

Черт. 1

Черт. 2

Черт. 3

Черт. 4

Черт. 5

Черт. 6

Черт. 7

Черт. 8

Таблица 1

Типоразмер плиты

Размеры, плит, мм

Массы плиты (справочная), т

L

B

Толщина плиты h (h1)

l1

l2

b1

b2 (b3)

a6

B/C

предварительно напряженной

с ненапрягаемой арматурой

l2/l3

1П60.38

6000

3750

140

-

1200

3600

475

1400

-

7,85

1П60.35

3500

450

1300

7,33

2П60.35

-

-

1П60.30

3000

400

1100

6,28

2П60.30

-

-

1П60.19

1870

360

1150

3,90

1П60.18

1750

300

3,65

2П60.18

-

-

1П35.28

3500

2750

-

170

750

2000

4,08

2П35.28

1П30.18

3000

1750

500

2,20

2П30.18

18.18

1750

160

450

850

1,20

18.18

1П18.15

1500

1,03

2П18.15

1ПБ60.18

6000

1750

140

-

1200

3600

240

1270

4,48

1ПББ55.20

5500

2000

935

3630

360

1280

4,40

1ПББ35.20

3500

-

160

595

2310

400

1200

3,38

1ПТ55

5500

2000/1500

140

-

1045

3300/1155

-

-

3,35

2ПТ55

1ПТ35

3500

-

170

665

2100/735

2,58

2ПТ35

 

1ПШ13

2480

2150

180

555

-

370

1240

1,80

1ПШД13

180 (196)

1,90

1ПШП13

180 (199)

1,93

1ПШ12

2320

2010

180

520

350

1160

1,58

1ПШД12

180 (195)

1,65

1ПШП12

180 (197)

1,68

1ДПШ13

2480

1070

180

-

484

345

1240

0,90

1ДПШ12

2320

1000

452

325

1160

0,78

1ППШ13

2150

1235

484

615(345)

1240

0,90

1ППШ12

2010

1155

452

575(325)

1160

0,78

Примечание. Масса плит приведена для бетона средней плотностью 2500 кг/м3.

Таблица 2

мм

Типоразмер плиты

Номер узла по черт. 6

h

h/2

а

b

с

R

1П60.38

I и II

140

70

200

80

80

80

1П60.35

2П60.35

1П60.30

2П60.30

1П60.19

180

70

75

75

1П60.18

2П60.18

1П35.28

III

170

85

155

80

2П35.28

1П30.18

2П30.18

1П18.18

160

80

125

60

70

75

2П18.18

1П18.15

2П18.15

1ПБ60.18

I, II и IV

140

70

180

70

75

1ПББ55.20

I и IV

-

-

-

-

1ПББ35.20

160

80

(Измененная редакция, Изм. № 1).

Плиты для временных дорог изготовляют без монтажных скоб Ск1.

В этих плитах ниши для монтажных скоб допускается не устраивать.

По согласованию с потребителем допускается изготовление плит типов П и ПТ с пазами для беспетлевого монтажа в соответствии с черт. 7 или с отверстиями для цангового захвата вместо монтажных петель и устройства ниш для них. При этом в предварительно напряженных плитах для постоянных дорог взамен монтажных петель необходима установка скоб Ск1 в соответствии с черт. 6 (узел 1). Число отверстий для цанговых захватов и их расположение определяют исходя из технологии изготовления плит и их монтажа.

Рабочая поверхность плит (верхняя поверхность дорожного покрытия) должна иметь рифление согласно черт. 8, а плит, изготовляемых этой поверхностью «вверх», должна быть шероховатой (п. 2.9.1).

Примечания:

1. Допускается изготовление плит с фаской размером не более 10 мм на лицевой поверхности плиты.

2. Допускается изготовление плит с технологическими скосами в местах установки монтажных петель и скоб не более 5 мм, а также с технологическими нишами под скобами Ск1 глубиной 20 мм.

3. Инвентарные плиты для временных дорог допускается изготовлять с технологическими скосами не более 8 мм.

4. Допускается изготовление на действующем оборудовании плит общим видом, отличным от указанного на черт. 1 - 8, при сохранении габаритных размеров плиты и соблюдении всех остальных требований, установленных настоящим стандартом.

5. Для беспетлевых плит (черт. 7) допускаются изменения формы плит, связанные с технологией их изготовления (наличие и размеры фасок, радиусов закруглений и т.д.).

6. Для плит с ненапрягаемой арматурой допускается вертикальное расположение монтажных петель.

7. Допускается смещение монтажных петель в пределах ниш от середины плиты вдоль ее грани до положения зеркально заменяемым привязкам петель (размеры а и b) по черт. 6.

1.3. Плиты рассчитаны на проезд автомобилей массой 30 и 10 т. При этом коэффициент динамичности принят равным 1,2, а модуль деформации основания при расчете плит составляет:

- для постоянных дорог - 50 МПа (500 кгс/см2);

- для временных дорог - 25 МПа (250 кгс/см2).

1.4. Конструкция плит приведена:

- предварительно напряженных плит - в ГОСТ 21924.1;

- плит с ненапрягаемой арматурой - в ГОСТ 21924.2.

1.5. Плиты изготовляют с монтажными петлями и отверстиями для цангового захвата (черт. 1 - 6) или пазами для беспетлевого монтажа (черт. 7).

Петли не должны выступать за рабочую поверхность грани плиты.

Для подъема и монтажа беспетлевых плит следует применять специальные захватные устройства или цанговые захваты, конструкцию которых принимает изготовитель по согласованию с потребителем и Госгортехнадзором.

1.6. Плиты обозначают марками в соответствии с ГОСТ 23009.

Марка плиты состоит из буквенно-цифровых групп, разделенных дефисом. Первая группа содержит обозначение типа плиты (п. 1.1) и ее номинальные размеры в дециметрах (с округлением значений до целого числа):

- для прямоугольных плит - длину и ширину;

- для трапецеидальных плит - длину;

- для шестиугольных плит - диагональ.

Во второй группе приводят значение нагрузки, на которую рассчитана плита (п. 1.3).

Для предварительно напряженных плит во второй группе марки приводят также класс напрягаемой арматурной стали.

Марку плит, изготовляемых с пазами для беспетлевого монтажа или с отверстиями для цангового захвата (вместо монтажных петель), дополняют буквой Б.

Пример условного обозначения (марки) плиты для постоянных дорог (тип 1), прямоугольной, длиной 6000 и шириной 1750 мм, рассчитанной под автомобиль массой 30 т, с напрягаемой арматурой из арматурной стали класса А - V:

1П60.18-30AV

То же, трапецеидальной, длиной 5500 мм, рассчитанной под автомобиль массой 30 т, с напрягаемой арматурой из арматурной стали класса А - IV:

1ПТ55-30АV

То же, шестиугольной со стороной 1160 мм, рассчитанной под автомобиль массой 30 т, с ненапрягаемой арматурой:

1ПШ12-30

То же, плиты для временных дорог (тип 2), прямоугольной, длиной 3000 и шириной 1750 мм, рассчитанной под автомобиль массой 10 т, с ненапрягаемой арматурой:

2П30.18-10

1.5, 1.6. (Измененная редакция, Изм. № 1).

2. ТЕХНИЧЕСКИЕ ТРЕБОВАНИЯ

2.1. Плиты следует изготовлять в соответствии с требованиями настоящего стандарта и технологической документации, утвержденной в установленном порядке, по чертежам, приведенным в ГОСТ 21924.1 и ГОСТ 21924.2.

2.2. Плиты подлежат изготовлению в формах, обеспечивающих соблюдение установленных настоящим стандартом требований к качеству и точности изготовления плит.

2.3. Плиты должны иметь заводскую готовность, соответствующую требованиям настоящего стандарта.

2.4. Плиты по прочности и трещиностойкости должны выдерживать контрольные нагрузки, указанные в ГОСТ 21924.1 и ГОСТ 21924.2.

2.5. Плиты должны удовлетворять требованиям ГОСТ 13015.0:

- по показателям фактической прочности бетона (в проектном возрасте, отпускной и передаточной);

- к качеству материалов, применяемых для приготовления бетона;

- к качеству арматурных и закладных изделий и их положению в плите;

- по маркам арматурной стали;

- по маркам стали для закладных изделий и монтажных петель;

- по отклонению толщины защитного слоя бетона до арматуры.

(Измененная редакция, Изм. № 1).

2.6. Требования к бетону

2.6.1. Плиты следует изготовлять из тяжелого бетона средней плотности более 2200 до 2500 кг/м3 включ. классов по прочности на сжатие и марок по прочности на растяжение при изгибе, указанных в ГОСТ 21924.1 и ГОСТ 21924.2.

Бетон должен удовлетворять требованиям ГОСТ 26633.

(Измененная редакция, Изм. № 1).

2.6.2. (Исключен, Изм. № 1).

2.6.3. Значение нормируемой отпускной прочности бетона следует принимать равным 70 % класса бетона по прочности на сжатие и марки бетона по прочности на растяжение при изгибе. При поставке плит в холодный период года (по ГОСТ 13015.0) значение нормируемой отпускной прочности бетона может быть повышено, но не более 90 % класса по прочности на сжатие и марки по прочности на растяжение при изгибе, а для плит, предназначенных для временных дорог, - до 100 %.

Значение нормируемой отпускной прочности бетона должно соответствовать указанному в заказе на изготовление плит согласно проектной документации конкретного сооружения.

(Измененная редакция, Изм. № 1).

2.6.4. Нормируемая передаточная прочность бетона предварительно напряженных плит составляет 70 % класса бетона по прочности на сжатие.

Передача усилий обжатия на бетон (отпуск натяжения арматуры) должна производиться после достижения бетоном требуемой передаточной прочности.

2.6.5. Марки бетона по морозостойкости и водонепроницаемости принимают для плит, предназначенных для постоянных дорог в районах со среднемесячной расчетной температурой наиболее холодного месяца (согласно СНиП 2.01.01), соответственно:

- до минус 5 °C включ. - F 100 и W 2;

- ниже минус 5 °C до минус 15 °C включ. - F 150 и W 4;

- ниже минус 15 °C - F 200 и W 4.

Марки бетона по морозостойкости и водонепроницаемости для плит, предназначенных для временных дорог в районах со среднемесячной расчетной температурой наиболее холодного месяца:

- до минус 5 °C включ. - F 75 и W 2;

- ниже минус 5 °C до минус 15 °C включ. - F 100 и W 2;

- ниже минус 15 °C - F 150 и W 2.

Марки бетона по морозостойкости и водонепроницаемости указывают в заказе на изготовление плит, в соответствии с установленными проектной документацией конкретного сооружения.

(Измененная редакция, Изм. № 1).

2.6.6. Бетон плит не должен иметь водопоглощение более 5 % по массе.

2.6.7. Температура изотермической выдержки при тепловлажностной обработке плит не должна превышать 70 °С.

2.6.8. Для приготовления бетона следует применять портландцемент по ГОСТ 10178 с дополнительными требованиями для бетона дорожных покрытий.

Допускается применение портландцемента по ТУ 21-20-51-83.

Заполнители - по ГОСТ 26633 (крупность зерен крупного заполнителя не более 20 мм).

2.6.5 - 2.6.8. (Измененная редакция, Изм. № 1).

2.6.9. Пластифицирующие и воздухововлекающие (газообразующие) добавки, применяемые для приготовления бетона, должны удовлетворять требованиям нормативно-технической документации (НТД), утвержденной в установленном порядке.

2.7. Требования к арматуре и арматурным изделиям

2.7.1. В качестве напрягаемой арматуры предварительно напряженных плит следует применять стержневую термомеханически упрочненную арматурную сталь классов Ат - V, Ат - IV и Ат - IVC и горячекатаную классов А - V и Ат - IV.

Несвариваемая арматурная сталь классов Ат - V и Ат - IV должна применяться в виде целых стержней мерной длины без сварных стыков.

2.7.2. В качестве ненапрягаемой арматуры должна применяться арматурная проволока класса Вр-1 и стержневая арматурная сталь классов Ат - IIIC, А - III и А - I.

2.7.1, 2.7.2. (Измененная редакция, Изм. № 1).

2.7.3. (Исключен, Изм. № 1).

2.7.4. Арматурная сталь должна удовлетворять требованиям:

- стержневая арматурная сталь классов А - V, А - IV, А - III и А - I - ГОСТ 5781;

- термомеханически и термически упрочненная арматурная сталь классов Ат - V, Ат - IV, Ат - IVC и Ат – IIIС - ГОСТ 10884;

- арматурная проволока класса Вр-I - ГОСТ 6727.

(Измененная редакция, Изм. № 1).

2.7.5. Форма и размеры арматурных изделий для плит должны соответствовать приведенным в ГОСТ 21924.3.

2.7.6. Арматурные изделия должны удовлетворять требованиям ГОСТ 10922.

2.7.7. Значения напряжений в напрягаемой арматуре, контролируемых по окончании натяжения ее на упоры, и предельные отклонения этих напряжений - по ГОСТ 21924.1.

2.8. Требования к точности изготовления плит

2.8.1. Значения фактических отклонений геометрических параметров не должны превышать предельных, указанных в табл. 3.

Таблица 3

Вид отклонения геометрического параметра

Геометрический параметр и его номинальное значение

Пред, откл., мм, для плит

постоянных дорог

временных дорог

Отклонение от линейного размера

Длина и ширина плиты:

 

 

- до 2,5 м включ.

±6

±10

 

- св. 2,5 до 4,0 м включ.

±8

±12

 

- св. 4,0 м

±10

±15

 

Толщина плиты

±4

±6

 

Размеры выемок (монтажно-стыковые элементы)

±3

±5

 

Размер, определяющий положение закладных изделий:

 

 

 

- в плоскости плиты

10

10

 

- из плоскости плиты

3

3

Отклонение от прямолинейности

Прямолинейность профиля верхней поверхности плиты в любом сечении на всей длине или ширине:

 

 

 

- до 2,5 м включ.

4

6

 

- св. 2,5 до 4,0 м включ.

5

8

 

- св. 4,0 м

6

10

Отклонение от плоскостности

Плоскостность лицевой поверхности плиты (при измерении от условной плоскости, проходящей через три крайние точки) при длине плиты:

 

 

 

- до 2,5 м включ.

4

6

 

- св. 2,5 до 4,0 м включ.

5

8

 

- св. 4,0 м

6

10

Отклонение от перпендикулярности

Перпендикулярность смежных торцевых граней плит на участке длиной:

 

 

 

- 400 мм

2

3

 

- 1000 мм

2,5

4

Отклонение от равенства диагоналей

Разность длин диагоналей лицевых поверхностей плит при их наибольшем размере (длине и ширине):

 

 

 

- до 4,0 м включ.

8

8

 

- св. 4,0 м

10

10

(Измененная редакция, Изм. № 1).

2.8.2. (Исключен, Изм. № 1).

2.9. Требования к качеству поверхностей и внешнему виду плит

2.9.1. Рифление поверхности плиты образуют путем применения в качестве днища поддона формы листовой рифленой стали по ГОСТ 8568 с ромбическим рифлением. Глубина рифа - не менее 1,0 мм.

Рифленая поверхность плиты должна иметь четкий рисунок рифления без околов граней канавок.

Шероховатость рабочей поверхности плит, изготовляемых этой поверхностью «вверх», получают за счет обработки поверхности (после уплотнения бетонной смеси) капроновыми щетками или брезентовой лентой.

2.9.2. Размеры раковин и местных наплывов на рабочей поверхности плиты не должны превышать:

- по диаметру или наибольшему размеру раковин........................................ 15 мм

- по глубине раковин и высоте местных наплывов...................................... 10 мм

Размеры раковин на нерабочей поверхности и боковых гранях плиты не должны превышать по диаметру или наибольшему размеру 20 мм.

Околы бетона ребра (при их суммарной длине на 1 м ребра до 100 мм) не должны превышать 10 мм по глубине, измеряемой по рабочей поверхности плиты, и 20 мм - по нерабочей поверхности плиты.

2.9.1, 2.9.2. (Измененная редакция, Изм. № 1).

2.9.3. Трещины на поверхностях плит не допускаются, за исключением поверхностных усадочных и технологических шириной не более 0,1 мм и длиной не более 50 мм в количестве не более пяти на 1,5 м2 поверхности плиты.

3. ПРАВИЛА ПРИЕМКИ

3.1. Приемку плит следует производить партиями в соответствии с требованиями ГОСТ 13015.1 и настоящего стандарта.

Испытание плит по прочности и трещиностойкости нагружением проводят перед началом их массового изготовления, при внесении в них конструктивных изменений или изменении технологии изготовления плит.

3.2. Приемку плит по показателям прочности бетона (классу по прочности на сжатие, отпускной и передаточной прочности), расположения арматуры и натяжения напрягаемой арматуры, соответствия арматурных изделий, прочности сварных соединений, толщины защитного слоя бетона до арматуры, точности геометрических параметров, качества поверхностей следует проводить по результатам приемосдаточных испытаний и контроля.

Приемку шестиугольных плит по показателям прочности бетона на растяжение при изгибе проводят по результатам приемосдаточных испытаний, а прямоугольных и трапецеидальных плит - по результатам периодических испытаний не реже одного раза в месяц.

3.3. Приемочный контроль прочности бетона следует проводить по ГОСТ 18105.

3.4. Приемку плит по морозостойкости, водонепроницаемости и водопоглощению бетона следует проводить по результатам периодических испытаний.

3.1 - 3.4. (Измененная редакция, Изм. № 1).

3.5. В случаях, если при проверке будет установлено, что отпускная прочность бетона плит не удовлетворяет требованиям, приведенным в п. 2.6, поставка плит потребителю не должна производиться до достижения бетоном плит прочности, соответствующей классу бетона по прочности на сжатие.

3.6. При приемке плит по показателям точности геометрических параметров, толщины защитного слоя бетона до арматуры и качества поверхностей, контролируемым путем измерений, следует применять выборочный одноступенчатый контроль.

4. МЕТОДЫ КОНТРОЛЯ И ИСПЫТАНИЙ

4.1. Испытание плит по прочности и трещиностойкости

4.1.1. Испытание плит по прочности и трещиностойкости следует проводить нагружением по ГОСТ 8829 с учетом требований настоящего стандарта.

4.1.2. Испытание плит нагружением проводят после достижения бетоном плит прочности, соответствующей классу бетона по прочности на сжатие и марке по прочности на растяжение при изгибе.

Допускается использовать для испытаний плиты, имеющие раковины, местные наплывы и околы бетона, размеры которых превышают допускаемые настоящим стандартом (п. 2.9.1) не более чем в два раза, и другие дефекты, не влияющие на прочность плит.

4.1.3. Испытания плит по прочности и трещиностойкости следует проводить по схеме, приведенной на черт. 9, и данным табл. 4.

Схема испытания плит

Черт. 9

Таблица 4

мм

Типоразмер плиты

l

а

k

П60.38, П60.35, П60.30, П60.19, П60.18, ПБ60.18

6000

900

1200

ПББ55.20

5920

890

1180

ПТ55

5500

825

1100

П35.28

3500

100

П30.18

3000

700

П18.18, П18.15

1800

400

ПББ35.20

3920

930

ПТ35

3500

825

ПШ13, ПШД13, ПШП13

2480

570

ПШ12, ПШД12, ПШП12

2320

530

4.1.4. Значения контрольной нагрузки при испытании плит по прочности и трещиностойкости принимают по ГОСТ 21924.1 и ГОСТ 21924.2.

4.1.5. Ширину раскрытия трещин замеряют в местах ее наибольшего раскрытия при помощи отсчетного микроскопа типа МПБ-2 с ценой деления 0,05 мм и набора щупов по НТД.

4.2. Прочность бетона на сжатие и растяжение при изгибе следует определять по ГОСТ 10180 на серии образцов, изготовленных из бетонной смеси рабочего состава и хранившихся в условиях по ГОСТ 18105.

Допускается определять фактическую прочность бетона плит ультразвуковым методом по ГОСТ 17624 или приборами механического действия по ГОСТ 22690, а также другими методами, предусмотренными стандартами на методы испытаний бетона.

4.3. Морозостойкость бетона следует определять из серии образцов, изготовленных из бетонной смеси рабочего состава, по ГОСТ 10060.0. При этом бетонные образцы перед испытанием должны быть насыщены 5 %ым раствором хлористого натрия и в таком же растворе должны оттаивать после каждого цикла замораживания.

4.4. Водонепроницаемость бетона следует определять по ГОСТ 12730.0 и ГОСТ 12730.5 на серии образцов, изготовленных из бетонной смеси рабочего состава.

4.5, 4.6. (Исключен, Изм. № 1).

4.7. Объем вовлеченного воздуха в бетонной смеси следует определять по ГОСТ 10181.

4.8. Контроль и испытание сварных арматурных изделий следует проводить по ГОСТ 10922.

4.9. Измерение напряжений в напрягаемой арматуре, контролируемых по окончании натяжения, следует проводить по ГОСТ 22362.

4.10. Методы контроля и испытаний исходных сырьевых материалов, применяемых для изготовления плит, должны соответствовать установленным государственными стандартами или техническими условиями на эти материалы.

4.11. Размеры, отклонения от прямолинейности и плоскостности, толщину защитного слоя, положение монтажно-стыковых элементов, качество бетонных поверхностей и внешний вид плит следует проверять методами, установленными ГОСТ 13015.0.

5. МАРКИРОВКА, ХРАНЕНИЕ И ТРАНСПОРТИРОВАНИЕ

5.1. Маркировка плит - по ГОСТ 13015.2.

Маркировочные надписи и знаки следует наносить на боковой или торцевой гранях каждой плиты.

5.2. Требование к документу о качестве плит, поставляемых потребителю, - по ГОСТ 13015.3.

Кроме основных фактических показателей качества, в документе дополнительно должны быть приведены:

- марки бетона по морозостойкости;

- марки бетона по водонепроницаемости;

- водопоглощение бетона.

(Измененная редакция, Изм. № 1).

5.3. Хранение и транспортирование плит должно производиться в рабочем (горизонтальном) положении.

5.4. Плиты следует хранить на складах грузоотправителей и грузополучателей в штабелях рассортированными по маркам и партиям.

Высота штабеля должна быть не более 2,0 м.

5.5. Нижний ряд плит в штабеле следует укладывать по плотному, тщательно выравненному основанию на подкадки, расположенные у мест подъема плит.

Толщина подкладок должна быть при грунтовом основании не менее 100 мм, а при жестком основании - не менее 50 мм.

(Измененная редакция, Изм. № 1).

5.6. Плиты при хранении в штабеле, а также при транспортировании необходимо укладывать на поперечные прокладки толщиной не менее 25 мм, расположенные строго по вертикали одна над другой у мест подъема плит.

При этом следует обеспечивать возможность захвата каждой плиты краном и свободный подъем ее для погрузки на транспортные средства и монтажа.

5.7. Погрузка, транспортирование и разгрузка плит должны производиться с соблюдением мер, исключающих возможность повреждения плит.

Не допускается:

- разгрузка плит сбрасыванием;

- захват плит за подъемные технологические петли при погрузке, разгрузке и монтаже.

5.8. Высоту штабеля плит при транспортировании устанавливают в зависимости от грузоподъемности транспортных средств и допускаемых габаритов.

5.9. Плиты следует транспортировать автомобильным или железнодорожным транспортом в рабочем положении (лицевой поверхностью вверх) с надежным закреплением, предохраняющим плиты от смещения.

Плиты при транспортировании не должны подвергнуться ударам и толчкам.

5.10. Погрузку, крепление и транспортирование плит на открытом железнодорожном подвижном составе (полувагоны и платформы) следует осуществлять в соответствии с требованиями Правил перевозок грузов и Технических условий погрузки и крепления грузов, утвержденных Министерством путей сообщения.

5.11. При погрузке, транспортировании, разгрузке и хранении плит следует соблюдать требования СНиП III-4.

ИНФОРМАЦИОННЫЕ ДАННЫЕ

1. РАЗРАБОТАН И ВНЕСЕН Министерством жилищно-коммунального хозяйства РСФСР

2. УТВЕРЖДЕН И ВВЕДЕН В ДЕЙСТВИЕ ПОСТАНОВЛЕНИЕМ Государственного комитета СССР по делам строительства от 30.09.83 № 210

3. ВЗАМЕН ГОСТ 21924-76

4. ССЫЛОЧНЫЕ НОРМАТИВНО-ТЕХНИЧЕСКИЕ ДОКУМЕНТЫ

Обозначение НТД, на который дана ссылка

Номер пункта

ГОСТ 5781-82

2.7.4

ГОСТ 6727-80

2.7.4

ГОСТ 8568-77

2.9.1

ГОСТ 8829-94

4.1.1

ГОСТ 10060.0-95

4.3

ГОСТ 10178-85

2.6.8

ГОСТ 10180-90

4.2

ГОСТ 10181-2000

4.7

ГОСТ 10884-94

2.7.4

ГОСТ 10922-90

2.7.6, 4.8

ГОСТ 12730.0-78

4.4

ГОСТ 12730.5-84

4.4

ГОСТ 13015.0-83

2.5, 2.6.3, 4.11

ГОСТ 13015.1-81

3.1

ГОСТ 13015.2-81

5.1

ГОСТ 13015.3-81

5.2

ГОСТ 17624-87

4.2

ГОСТ 18105-86

3.3,4.2

ГОСТ 21924.1-84

1.4, 2.1, 2.4, 2.6.1, 2.7.7, 4.1.4

ГОСТ 21924.2-84

1.4, 2.1, 2.4, 2.6.1, 4.1.4

ГОСТ 21924.3-84

2.7.5

ГОСТ 22362-77

4.9

ГОСТ 22690-88

4.2

ГОСТ 23009-78

1.6

ГОСТ 26633-91

2.6.1,2.6.8

ТУ 21-20-51-83

2.6.8

СНиП 2.01.01-82

Вводная часть, 2.6.5

СНиП 2.03.01-84

Вводная часть

СНиП 2.05.07-85

Вводная часть

СНиП III-4-80

5.11

5. ИЗДАНИЕ (январь 2002 г.) с Изменением № 1, утвержденным в декабре 1987 г. (ИУС 5-88)

СОДЕРЖАНИЕ

 




Яндекс цитирования



   Copyright © 2007-2026,  www.tehlit.ru.

[ ѓосты, стандарты, нормативы, инструкции, правила, строительные нормы ]