//
ТехЛит.ру
- крупнейшая бесплатная электронная интернет библиотека для "технически умных" людей.
WWW.TEHLIT.RU - ТЕХНИЧЕСКАЯ ЛИТЕРАТУРА

:: Алготрейдинг::


АЛГОТРЕЙДИНГ
шаг за шагом
с нуля по урокам!

Торговые роботы на PYTHON, BackTrader,
Pandas, Pine Script для TradingView. Связка с брокерами, телеграм и легкими приложениями.


ПРАВИТЕЛЬСТВО МОСКВЫ
МОСКОМАРХИТЕКТУРА

ПОСОБИЕ
к МГСН 4.18-99

ПРЕДПРИЯТИЯ БЫТОВОГО ОБСЛУЖИВАНИЯ НАСЕЛЕНИЯ

ВЫПУСК 2

Объемно-планировочные и инженерные решения

2003

ПРЕДИСЛОВИЕ

1. РАЗРАБОТАН Московским научно-исследовательским и проектным институтом типологии, экспериментального проектирования (МНИИТЭП) при участии ИОЗ Госстроя РФ Мосгорбытпроекта.

Авторы: канд. арх. К.Н. Красильникова (МНИИТЭП, руководитель темы), канд. арх. А.М. Гарнец (ИОЗ руководитель раздела темы), инженер Л.В. Сигачева (ИОЗ); канд. эконом. наук В.Д. Генчик, инженер-технолог Н.М. Зеленкова (Мосгорбытпроект).

При участии - инженер-экономист Л.М. Гуляева, инженер-технолог Т.В. Журкова (Департамент потребительского рынка и услуг).

2. ПОДГОТОВЛЕН к утверждению и изданию Управлением перспективного проектирования, нормативов и координации проектно-изыскательских работ Москомархитектуры.

3. СОГЛАСОВАН с Москомархитектурой и Департаментом потребительского рынка и услуг.

4. УТВЕРЖДЕН указанием Москомархитектуры от 16.07.03 № 27.

СОДЕРЖАНИЕ

1. Введение. 2

2. Классификация предприятий бытового обслуживания по условиям размещения. 2

2.1. Отдельно стоящие здания, торгово-бытовые комплексы (центры) 2

2.2. Предприятия встроенные и встроенно-пристроенные в жилые дома и здания иного назначения. 3

3. Структура зданий и функциональные связи помещений. 4

3.1. Отдельно стоящие здания. 4

3.2. Предприятия, встроенные и встроенно-пристроенные к жилым домам.. 6

4. Архитектурно-планировочные решения. 8

4.1. Отдельно стоящие здания. 8

4.2. Предприятия, встроенные и встроенно-пристроенные к жилым домам.. 10

5. Системы инженерного обеспечения. 12

Общие положения. 12

5.1. Водоснабжение и канализация. 12

5.2. Отопление и вентиляция. 14

5.3. Электроснабжение, электроосвещение, естественное освещение. 15

5.4. Слаботочные устройства. 17

5.5. Защита от шума. 18

6. Ссылка на нормативно-методический документы.. 18

Приложение 1. Отдельно стоящие здания предприятий бытового обслуживания населения, торгово-бытовые центры (комплексы) 19

Приложение 2. Встроенные и встроенно-пристроенные предприятия бытового обслуживания в жилые дома и здания иного назначения. 21

Приложение 3. Расчетная температура воздуха и кратность воздухообмена в помещениях. 21

Приложение 4. Нормативные показатели искусственного освещения. 22

Приложение 5. Нормативные показатели естественного и совмещенного освещения. 23

6. Примеры проектных решений. 25

1. ВВЕДЕНИЕ

1. Пособие разработано в развитие МГСН 4.18-99 «Предприятия бытового обслуживания населения» и распространяется на проектирование новых и реконструируемых массовых типов предприятий бытового обслуживания, расположенных в жилой застройке.

2. Пособие состоит из двух выпусков:

Выпуск 1 «Основные положения и общие требования»

Выпуск 2 «Объемно-планировочные и инженерные решения».

3. Настоящий выпуск 2 разработан в помощь проектировщикам-архитекторам, инженерам, технологам - с целью создания современных прогрессивных решений зданий и помещений предприятий бытового обслуживания населения, вписывающихся в архитектурно-пространственную среду современной жилой застройки города Москвы.

4.В настоящем выпуске приводятся примеры построенных за последний период зданий и помещений предприятий бытового обслуживания, а также проектные предложения, разработанные авторами по современным нормативам в соответствии с МГСН 4.18-99 «Предприятия бытового обслуживания населения»

В данном выпуске приводятся также примеры проектных решений отдельно стоящих зданий и встроенных предприятий бытового обслуживания, изменивших в настоящее время свой профиль, состав помещений или их планировку в соответствии с рыночной конъюнктурой.

2. КЛАССИФИКАЦИЯ ПРЕДПРИЯТИЙ БЫТОВОГО ОБСЛУЖИВАНИЯ ПО УСЛОВИЯМ РАЗМЕЩЕНИЯ

2.1. ОТДЕЛЬНО СТОЯЩИЕ ЗДАНИЯ, ТОРГОВО-БЫТОВЫЕ КОМПЛЕКСЫ (ЦЕНТРЫ)

2.1.1. Предприятия бытового обслуживания, размещаемые в отдельно стоящих зданиях являются, как правило, наиболее сложными по технологическим процессам и крупными по мощности или составу. Они размещаются в капитальных зданиях, строительство которых требует высоких материальных затрат и значительного времени.

2.1.2. К одной группе таких предприятий относятся:

- Дома Моды с демонстрационными и выставочными залами, музеями Моды, отделами по продаже полуфабрикатов и готовых изделий и т.п.;

- Ателье пошива с развитым составом помещений и видов услуг;

- Многоотраслевые комплексные предприятия с развитым составом видов услуг и производством;

- Салоны Красоты, парикмахерские с большим числом дополнительных услуг и помещений; в том числе демонстрационными и выставочными залами, массажными кабинетами, сауной с бассейном, солярием, а также тренажерными залами для занятий оздоровительной физкультурой;

- Салоны художественной фотографии и др. (см. приложение 1 графа 3).

2.1.3. Другая группа предприятий, размещаемых в отдельно стоящих зданиях, включает предприятия с высокой концентрацией вредных веществ, высоким уровнем шума, применением токсичных материалов.

Сюда относятся мастерские по изготовлению и ремонту мебели, предприятия по ремонту и техническому обслуживанию бытовой радиоэлектронной аппаратуры бытовых машин и приборов, ремонту и изготовлению металлоизделий, мини-прачечные с мини-химчистками и др.

2.1.4. Отдельную группу составляют некапитальные здания и сооружения из легких металлических конструкций, так называемые быстровозводимые комплексы.

Распоряжением мэра Москвы от 16.10.02 г. № 604-РМ «О повышении качества градостроительных решений предпроектной и проектной подготовки строительства некапитальных объектов» предусмотрено два типа таких зданий и сооружений:

- бесфундаментные одноэтажные, (палатки, переходы и пр.);

- с незаглубленным фундаментом, без подвалов этажностью 1,2,3 этажа.

2.1.5. Быстровозводимые некапитальные здания целесообразно использовать для размещения разнообразных предприятий бытового обслуживания широкой номенклатуры, но меньшей мощности, чем в капитальных зданиях.

Сюда могут быть отнесены:

- многоотраслевые комплексные предприятия, многоотраслевые комплексные приемные пункты (типа «Мультисервис»);

- разнообразные мастерские по ремонту обуви, бытовых машин и приборов, радиоэлектронной аппаратуры и пр.;

- Салоны Красоты, парикмахерские (с различным набором видов услуг);

-салоны художественной фотографии, фотографии;

- мини-химчистки и минипрачечные, приемные пункты химчисток и прачечных, ателье проката и пр. (см. приложение 1, графа 4).

2.1.6. Быстровозводимые здания рекомендуется размещать на свободных или освобождаемых площадках около станций метро, вблизи вокзалов и других крупных транспортных узлов, а также на территории жилых районов, и формировать в сочетании с предприятиями торговли и общественного питания торгово-бытовые комплексы.

2.1.7. В реконструируемых зданиях могут размещаться те же предприятия, что и во вновь строящихся, но ограниченные по мощностям. Их номенклатура (состав и мощности) аналогична номенклатуре быстровозводимых некапитальных зданий (см. приложение 1, графа 4).

2.1.8. В составе торгово-бытовых центров (комплексов), расположенных на крупных городских магистралях и площадях, рекомендуется размещать разнообразные, небольшие по вместимости (до 200-300 м2 общей площади) предприятия бытового обслуживания: разнообразные мастерские ремонта, фотографии, салоны Красоты, парикмахерские, многоотраслевые комплексные предприятия и приемные пункты (типа «Мультисервис»), ателье по пошиву и ремонту одежды, минихимчистки и минипрачечные, приемные пункты химчисток и прачечных, бюро посреднических услуг, ателье проката и пр. (см. приложение 1, графа 5).

2.2. ПРЕДПРИЯТИЯ ВСТРОЕННЫЕ И ВСТРОЕННО-ПРИСТРОЕННЫЕ В ЖИЛЫЕ ДОМА И ЗДАНИЯ ИНОГО НАЗНАЧЕНИЯ

2.2.1. В жилых домах следует размещать предприятия, предусмотренные МГСН 3.01-01 «Жилые здания» ограниченной вместимости, с более простой организацией технологических процессов и условий эксплуатации, которые по своим характеристикам не ухудшают комфорт проживания населения, не являются пожароопасными, а также источниками шумов, запахов и пр.

2.2.2. Во встроенных и встроенно-пристроенных помещениях крупнопанельных жилых домов массового строительства как правило проектируются согласно п. 3.3 МГСН 4.18-99 небольшие по вместимости разнообразные мастерские ремонта, ателье по пошиву и ремонту одежды и пр., парикмахерские и фотографии, приемные пункты прачечных и химчисток, домовые прачечные самообслуживания (до 75 кг белья в смену), многоотраслевые приемные пункты типа «Мультисервис», бюро посреднических услуг, ателье проката (см. приложение 2 графы 3 и 4)

2.2.3. В жилых домах индивидуального строительства номенклатура встроенных и встроенно-пристроенных предприятий может быть расширена за счет специальных объемно-планировочных, конструктивных и инженерно-технологических решений, в соответствии с приложением 2 графы 3 и 4 (со знаком*).

2.2.4. При проектировании предприятий бытового обслуживания в жилых домах следует руководствоваться санитарно-гигиеническими, пожарными и технологическими требованиями, изложенными в МГСН 4.18-99, пункты 3.3, 4.4, 4.5.

2.2.5. Значительное количество предприятий бытового обслуживания в г. Москве размещается в нижних этажах нежилых зданий: офисах, гостиницах, вокзалах, научно-исследовательских и проектных институтах и других общественных зданиях (за исключением школ, дошкольных и лечебно-профилактических учреждений), отнесенных к категории зданий иного назначения (см. МГСН 4.18-99 приложение 1).

2.2.6. Номенклатура встроенных и встроенно-пристроенных предприятий бытового обслуживания в зданиях иного назначения значительно шире, чем в жилых домах. Она имеет меньшие ограничения по вместимости предприятий и по требованиям к уровню шума, вибрации, нормативным параметрам воздушной среды, режиму эксплуатации во времени и пр. согласно МГСН 2.04-97

В зданиях иного назначения, помимо предприятий встраиваемых и пристраиваемых к жилым домам, могут размещаться мастерские по ремонту радиоэлектронной аппаратуры, ремонту мягкой и корпусной мебели, изготовлению и ремонту ювелирных изделий, мини-прачечные и мини-химчистки, а также Салоны Красоты и Дома Моды, общей площадью 500 м2 и свыше (см. приложение 2 графа 5).

2.2.7. Конструктивные решения общественных и производственных зданий, выполняемых в каркасе, монолите и т.п. более полно соответствуют технологическим и функциональным характеристикам встраиваемых предприятий бытового обслуживания.

В этой связи номенклатура встроенных предприятий как правило аналогична номенклатуре встроенно-пристроенных предприятий.

3. СТРУКТУРА ЗДАНИЙ И ФУНКЦИОНАЛЬНЫЕ СВЯЗИ ПОМЕЩЕНИЙ

3.1. ОТДЕЛЬНО СТОЯЩИЕ ЗДАНИЯ

3.1.1. Структура отдельно стоящих зданий формируется соответственно функциональному назначению групп помещений - основных и дополнительных.

3.1.2. Основные группы помещений (для посетителей, производственные, складские, служебно-бытовые) следует располагать в соответствии с их функциональным назначением и технологическими связями между собой.

Помещения дополнительного обслуживания (торговые, выставочные, демонстрационные залы, кафе, бары, интернет-кафе, игровые автоматы и пр.) рекомендуется размещать в непосредственной близости от помещений для посетителей или в их составе.

3.1.3. Планировочным ядром структуры зданий являются помещения (салоны) для посетителей. В многоэтажных зданиях они должны быть обеспечены вертикальными связями (лестницами); в одноэтажных связанны непосредственно, или посредством горизонтальных связей (коридоров) между собой и другими группами помещений.

3.1.4. Наиболее развитая планировочная структура зданий со сложными взаимосвязями групп помещений имеет место в крупных предприятиях бытового обслуживания: Домах Моды, ателье по пошиву и ремонту одежды, головных уборов и трикотажных изделий (с полным набором видов услуг), многоотраслевых комплексных предприятиях (типа «Мультисервис»), Салонах Красоты, сервисных центрах, предприятиях по ремонту и изготовлению мебели, химчистках-прачечных и др.

В них имеются все основные группы помещений и помещения дополнительного обслуживания. Схема функциональных связей групп основных и дополнительных помещений показана на таблице 1.

3.1.5. Наиболее сложными по функциональным взаимосвязям являются многоотраслевые комплексные предприятия (типа «Мультисервис»). Они ,как правило, включают бюро по оказанию обслуживания быта населения и оказанию посреднических услуг, производственную группу помещений, служебно-бытовую группу и большое количество помещений дополнительного обслуживания.

Бюро обслуживания могут включать различный набор бытовых услуг, соответствующих Общероссийскому классификатору услуг населению - ОК 002-93, в том числе:

- заказы на уборку квартир, мытье окон и прочие работы по дому;

- заказы на ремонт квартир;

- заказы на изготовление и реставрацию мебели;

- заказы на дизайнерские работы и т.п.

В составе многоотраслевого предприятия могут находиться ателье по ремонту и утюжке верхней одежды и легкого платья, ателье по пошиву лоскутных одеял, штор и пр., мастерские срочного ремонта обуви, ремонту часов и ювелирных изделий, электробытовых приборов, кожгалантереи и металлоизделий, ремонту радиоэлектронной аппаратуры, прокату предметов бытового назначения. Кроме того, в многоотраслевом комплексном предприятии предусматриваются приемные пункты химчистки и прачечной, парикмахерские и фотосалоны.

К помещениям дополнительного обслуживания многоотраслевых предприятий, как правило, относятся:

- торговые помещения по продаже мебели по образцам, обоев и других товаров, необходимых при ремонте квартир, полуфабрикатов и готовых изделий при ателье пошива и др.;

- кафе и бары;

- игровые автоматы, интернет-кафе (прокат компьютерного времени);

- студия звукозаписи и т.п.

В многоотраслевом предприятии салон для посетителей является средоточением разнообразных услуг для посетителей, а также местом ожидания и развлечения. Его площадь включает помещения для посетителей всех основных служб, находящихся в составе предприятия, а также бюро услуг, справочное бюро, кафе, бары, игровые автоматы и пр.

Отличительной особенностью многоотраслевого предприятия является отсутствие специально выделенной складской группы помещений, т.к. необходимые складские площади предусматриваются в каждом производственном помещении в составе мастерских ремонта, приемных пунктов прачечной и химчистки, проката предметов бытового назначения.

ВАРИАНТ 1

ВАРИАНТ 2

 основные связи                                  дополнительные связи

ТАБЛИЦА 1 ВАРИАНТЫ СХЕМ ФУНКЦИОНАЛЬНЫХ СВЯЗЕЙ ГРУПП ПОМЕЩЕНИЙ В ОТДЕЛЬНО СТОЯЩИХ ЗДАНИЯХ

3.2. ПРЕДПРИЯТИЯ, ВСТРОЕННЫЕ И ВСТРОЕННО-ПРИСТРОЕННЫЕ К ЖИЛЫМ ДОМАМ

3.2.1. Для встроенных и встроенно-пристроенных предприятий ввиду их относительно меньшей вместимости и более простых технологических процессов, характерно совмещение ряда функций в одном помещении.

Во встроенных предприятиях вместимостью до 200 м2 общей площади производственные помещения могут быть объединены в одном объеме со складскими помещениями, салоны для посетителей - с производственными помещениями, салоны - с производственными и складскими помещениями, согласно требованиям п.4.1.3. «Пособие к МГСН 4.18-99 выпуск 1».

3.2.2. Функциональные связи групп помещений во встроенных и встроенно-пристроенных предприятиях строятся по тем же принципам, что и в отдельно стоящих зданиях.

Варианты схем функциональных связей групп помещений встроенных и встроенно-пристроенных предприятий бытового обслуживания приведены в таблице 2.

Вариант 1 включает все 4 основные группы помещений: салон для посетителей, производственные помещения, складская группа и служебно-бытовые помещения. Дополнительная группа объединена с салоном для посетителей. Этот вариант характерен для ателье по пошиву и ремонту одежды, головных уборов и трикотажных изделий, ателье-магазинов, мастерских ремонта обуви, бытовых машин и приборов.

Вариант 2. Совмещены производственная и складская группы помещений, а также салон для посетителей и дополнительные службы. Это вариант характерен для парикмахерских, некоторых мастерских ремонта и пр.

Вариант 3. Совмещены салон для посетителей, производственная группа (частично) и дополнительные помещения, а также складская с производственной (частично).

Этот вариант характерен для небольших парикмахерских, бюро посреднических услуг, многоотраслевых комплексных приемных пунктов типа «Мультисервис» и пр.

Вариант 4. Отсутствует производственная группа и дополнительные помещения. Этот вариант характерен для приемных пунктов прачечных, химчисток и ателье проката предметов домашнего обихода.

ВАРИАНТ 1

ВАРИАНТ 2

ВАРИАНТ 3

ВАРИАНТ 4

 основные связи                                  дополнительные связи

ТАБЛИЦА 2 ВАРИАНТЫ СХЕМ ФУНКЦИОНАЛЬНЫХ СВЯЗЕЙ ГРУПП ПОМЕЩЕНИЙ ВСТРОЕННЫХ И ВСТРОЕННО-ПРИСТРОЕННЫХ ПРЕДПРИЯТИЙ

4. АРХИТЕКТУРНО-ПЛАНИРОВОЧНЫЕ РЕШЕНИЯ

4.1. ОТДЕЛЬНО СТОЯЩИЕ ЗДАНИЯ

4.1.1. Отдельно стоящие здания, включающие наиболее крупные по мощностям предприятия бытового обслуживания, размещаются, как правило, на площадях, главных городских магистралях и должны способствовать формированию архитектурно-художественного облика городской застройки.

Конструкции зданий (это, как правило, каркасные сооружения, или с применением монолита, кирпича) дают большую свободу выбора архитектуры фасадов: с большими остекленными плоскостями, с применением навесных панелей (горизонтальных или вертикальных), или стеновыми решениями.

На рис. 1 представлен пример решения фасадов ателье индивидуального пошива, разработанного МНИИТЭПом с применением вертикальных панелей на два этажа.

4.1.2. Этажность зданий определяется градостроительными, технологическими и противопожарными требованиями и составляет от одного до шести этажей (согласно пункту 5.3. МГСН 4.18-99).

В особых градостроительно обоснованных случаях и по согласованию с санитарными и пожарными органами надзора, этажность зданий может превышать указанную.

4.1.3. Основные входы в здания следует располагать со стороны главных подходов и обеспечивать удобными подъездами к ним. Входы могут быть оформлены средствами пластического и цветового решений, цветовой и световой рекламой, буквенными символами и т.п.

Дополнительные возможности в архитектурно-художественном решении первых этажей зданий предоставляет разнообразное оформление витрин.

4.1.4. При проектировании зданий предприятий бытового обслуживания необходимо предусматривать большие шаги и пролеты несущих конструкций, которые обеспечат возможность трансформации помещений и размещение различных типов предприятий, гибкую планировку помещений, а также перепрофилирование предприятий на другие виды бытовых услуг с учетом меняющейся рыночной конъюнктуры.

4.1.5. При проектировании зданий предприятий бытового обслуживания следует предусматривать специальные устройства и мероприятия для удобного доступа в помещения и свободного передвижения инвалидам и маломобильным гражданам. Следует стремиться к исключению перепадов уровней в помещениях на путях перемещения инвалидов, при необходимости, предусматривая пандусы.

При входах в здания необходимо проектировать наряду с лестницами, пандусы, специальные двери и тамбуры и другие приспособления для инвалидов в соответствии с требованиями СНиП 35-01-2001.

4.1.6. В планировочном решении многоэтажных зданий целесообразно предусматривать размещение основных помещений для посетителей (салонов, выставочных и демонстрационных залов, кафе, баров, помещений для продажи сопутствующих товаров, изделий и полуфабрикатов и пр.) на нижних этажах вблизи от главного входа и лестнично-лифтового узла - для лучшей доступности посетителей.

4.1.7. Салоны для посетителей могут быть запроектированы двухсветными, с открытой лестницей при наличии других лестниц в лестничных клетках и при соблюдении требований пожарной безопасности (согласно пунктам 5.7 и 5.8 МГСН 4.18-99).

Примеры планировочных решений зданий многоотраслевого комплексного предприятия по типу «Мультисервис» приведены на рис. 2 и 3.

Здание запроектировано из легких металлических конструкций по технологии быстро возводимых комплексов.

Стальной каркас из прокатных элементов с монолитным междуэтажным перекрытием и покрытием второго этажа из легких конструкций формируют структуру здания. Ограждающие конструкции - алюминиевые витражи с остеклением и стены навесные по стальному каркасу. Фундаменты - мелкого заложения.

Ядром планировочного решения является двухсветный салон для посетителей, связанный с основными производственными помещениями и приемными пунктами посредством лестницы и примыкающих к ней коридоров.

В первом варианте (рис. 2) салон соединяет со вторым этажом открытая лестница, вторая лестница - закрытая, связывает производственные помещения и служебно-бытовые.

Во втором варианте (рис. 3) запроектирована одна центральная закрытая лестница, освещенная верхним фонарем. Дополнительная пожарная лестница со второго этажа предусматривается вдоль фасада здания.

В обоих вариантах на первом этаже в непосредственной связи с салоном располагается дополнительная группа торговых помещений: продажа по образцам мебели, сопутствующих материалов - при отделе заказов на ремонт квартир; продажа лоскутных одеял, штор, полотенец и прочих полуфабрикатов - при ателье пошива.

В салоне для посетителей предусматриваются места для бюро обслуживания, справочного бюро, юриста, а также кафе-бара, игровых автоматов и пр.

Служебно-бытовые помещения размещаются также на первом этаже - с отдельным входом с противоположной стороны здания. Этот же вход служит для загрузки материалов.

Основные мастерские ремонта запроектированы на втором этаже - вдоль светового фронта здания и связаны с салоном (обходным) коридором.

Предусмотрены специальные устройства и мероприятия для обслуживания инвалидов и престарелых: при входах в здания, в обоих вариантах, имеются наряду с лестницами - пандусы; для подъема на второй этаж могут быть использованы лифты, которые служат для доставки материалов и оборудования в мастерские.

4.1.8. Большую долю фонда предприятий бытового обслуживания, составляют предприятия, располагаемые в переоборудуемых и реконструируемых зданиях. Планировочные решения этих предприятий, ограничиваются объемами существующих зданий и их конструктивной системой.

Реально используемыми приемами архитектурной модернизации таких зданий являются оформление витрин первых этажей, цветовой и световой рекламой, а также организация развитых входов. Характерным примером реконструкции существующего здания служит проект комплексного предприятия бытового обслуживания по Палашевскому переулку, разработанный Мосгорбытпроектом (рис. 4).

Реконструируемое здание представляет 3-4 этажный объем из кирпича - с надстраиваемым этажом. Архитектуру здания обогащает пристраеваемый объем с закругленными углами и надстроенный остекленный этаж. Входы подчеркиваются вертикальными застекленными проемами на всю высоту здания.

На первом этаже размещены салон-парикмахерская (в пристроенном объеме) и помещения химической чистки одежды и стирки белья. На втором этаже предусматриваются мастерские металлоремонта и мелкого ремонта одежды, а также торговые залы магазина «Обувь». Третий и четвертый этажи заняты офисами.

4.1.9. Значительное распространение в настоящее время находит переоборудование старых особняков для размещения в них Салонов Красоты, Домов Моды и пр.

4.2. ПРЕДПРИЯТИЯ, ВСТРОЕННЫЕ И ВСТРОЕННО-ПРИСТРОЕННЫЕ К ЖИЛЫМ ДОМАМ

4.2.1. Для размещения встроенных и встроенно-пристроенных предприятий бытового обслуживания целесообразно использовать секции жилых домов массового строительства, преимущественно располагаемые на районных магистралях и на внутриквартальных проездах.

Примеры планировочных решений предприятий бытового обслуживания для рядовых угловых и поворотных секций приведены в приложении 6.

Наиболее предпочтительными для встраивания предприятий обслуживания являются индивидуальные жилые дома со специальными объемно-планировочными, конструктивными и инженерно-технологическими решениями (конструктивный «стол» несущий каркас, технический этаж, разделяющий жилую и нежилую части здания и т.п.).

4.2.2. Рекомендуются следующие приемы архитектурно-планировочных решений предприятий, размещаемых в многосекционных жилых домах:

а) встроенные - с размещением всех помещений в габаритах жилого здания;

б) встроенно-пристроенные:

- с выносом объемов помещений для посетителей и некоторых производственных помещений за габариты зданий со стороны магистралей и проездов;

- с выносом объемов салонов для посетителей, некоторых производственных и складских помещений за габариты зданий со стороны дворов;

- с пристройкой объемов различных помещений с торцов зданий. Основные производственные, складские и служебно-бытовые помещения желательно размещать во встроенной части жилых зданий, в том числе в цокольных этажах и подвалах в соответствии с требованиями МГСН 3.01-01 и пункта 3.5 МГСН 4.18-99.

4.2.3. Выбор варианта размещения должен определяться типом встраиваемых предприятий обслуживания, градостроительной ситуацией и конструктивной системой здания, в которое встраивается предприятие.

На городских магистралях и главных улицах города Москвы наиболее рациональным приемом является встраивание предприятий целиком в габариты зданий, т.к. это экономит территорию застройки, обогащает архитектуру жилых домов, создает масштабность застройки, а также исключает проблемы, связанные с пристройкой.

В исторически сложившихся районах города, с традиционно небольшой шириной улиц рекомендуется преимущественно также размещение предприятий обслуживания целиком в габаритах зданий, а при необходимости пристройки - расположение ее со стороны дворов.

В периферийных районах города новой застройки при большей ширине улиц и менее остром дефиците территорий возможно применение, помимо встроенных, и встроенно-пристроенных предприятий обслуживания с выносом объемов пристроек на магистраль вдоль фронта зданий или с их торцов.

В жилых домах во внутриквартальных пространствах целесообразно размещение предприятий приближенного обслуживания в габаритах здания, при необходимости устройства небольших залов, их можно пристраивать к торцам домов, чтобы выступающий объем не ухудшал комфорта проживания жильцов.

4.2.4. Для размещения в нижних этажах предприятий обслуживания целесообразно предусматривать следующие планировочные решения жилых домов:

- с конструктивным «столом» и техническим этажом между нежилыми и жилым этажом;

- без технического этажа (с техническим подпольем или подвалом). Наличие технического этажа позволяет рационально решить разводку инженерных коммуникаций жилой части дома и освободить первые нежилые этажи от часто расположенных стояков, вентблоков и несущих панельных конструкций жилой части. При наличии пристроенных объемов применение технического этажа позволяет рационально решить вопрос примыкания крыши предприятия обслуживания к зданию, т.к. в этом случае уровень кровли выступающего объема значительно ниже отметки пола первого жилого этажа.

Однако применение технического этажа значительно удорожает строительство и усложняет конструкции жилого дома. Поэтому такое решение может быть рекомендовано для размещения предприятий городского значения в жилых домах индивидуального строительства, расположенных, как правило, на крупных магистралях и площадях г. Москвы.

Для размещения небольших по вместимости предприятий бытового обслуживания в типовых домах массового строительства экономически целесообразнее вариант решения - без технического этажа, но с техническим подпольем или подвалом - для разводки инженерных коммуникаций. При устройстве технического подполья необходимо предусматривать частичное понижение пола - для размещения вентиляционных камер и других технических помещений, обслуживающих предприятие.

4.2.5. В типовых домах при встраивании предприятий бытового обслуживания сохраняется, как правило, конструктивная система жилого дома: панельная с малым или смешанным шагом поперечных несущих стен, блочная или кирпичная.

Для объединения двух соседних ячеек в целях увеличения площади помещений во внутренних стенах крупнопанельных, крупноблочных и кирпичных домов могут предусматриваться проемы достаточных размеров (до 2,4 м) разнообразного очертания: прямоугольные, арочные и пр.

Пристроенные к типовым жилым домам объемы рекомендуется выполнять в каркасных конструкциях. Форма объемов может быть различной: прямоугольной, полукруглой, трапециевидной и пр. (рис. 5).

4.2.6. В индивидуальных жилых домах, запроектированных со специальными объемно-планировочными, конструктивными и инженерно-технологическими решениями планировка встроенных помещений может быть более свободной и трансформируемой, в тех случаях, когда конструкции нижних этажей решаются в каркасных, монолитных, железобетонных и других конструкциях с широкими шагами и пролетами.

Примером решения встроенных и встроенно-пристроенных предприятий в индивидуальные жилые дома может служить 24 этажный дом И-1279, расположенный на крупной городской магистрали - Каширском шоссе, разработанный мастерской № 2 МНИИТЭПа. Он выполнен в сборно-монолитных конструкциях с двумя нежилыми этажами и двухэтажной пристройкой (рис. 6).

На первом этаже жилого дома запроектирована мастерская по ремонту радиотелеаппаратуры, во втором этаже - парикмахерская, в двухэтажной пристройке размещен спортивно-оздоровительный комплекс с двухсветным спортивным залом.

Пример интересного решения архитектуры интерьера представляет проектное предложение встроенной парикмахерской салона красоты в 9-этажный кирпичный дом расположенный на Ленинском проспекте, разработанный мастерской «Архстройдизайн» (рис. 7, 8). Парикмахерская запроектирована в двух нижних этажах дома - с двухсветным залом ожидания и открытой лестницей, ведущей в холл 2 этажа. Конструкции здания с продольной несущей кирпичной стеной (с пролетами между ней и наружными стенами 6 м) позволяет организовать свободное единое пространство зала ожидания, кафе и зала парикмахерской.

Примеры планировочных решений встроенных и встроенно-пристроенных предприятий бытового обслуживания в жилые дома массового строительства приводятся на рис. 9, 10, 8.

5. «СИСТЕМЫ ИНЖЕНЕРНОГО ОБЕСПЕЧЕНИЯ»

ОБЩИЕ ПОЛОЖЕНИЯ

Системы инженерного обеспечения зданий и помещений предприятий бытового обслуживания населения следует проектировать в соответствии с требованиями раздела 6 МГСН 4.18-99, а встроенных или встроенно-пристроенных помещений в жилые здания также в соответствии с требованиями МГСН 3.01-01.

При проектировании встроенных и встроенно-пристроенных помещений бытового обслуживания в жилых зданиях следует руководствоваться «Рекомендациями по проектированию энергоэкономичных технических решений систем отопления, вентиляции и водоснабжения встроенно-пристроенных в жилые здания помещений общественного назначения».

«Рекомендации» также могут использоваться и при проектировании систем инженерного обеспечения предприятий бытового обслуживания населения, входящих в п. 1.2. МГСН 4.18-99.

5.1. ВОДОСНАБЖЕНИЕ И КАНАЛИЗАЦИЯ

5.1.1. В предприятиях бытового обслуживания населения качество воды должно удовлетворять требованиям государственного стандарта на питьевую воду.

5.1.2. Водоснабжение предприятий бытового обслуживания (при необходимости) включают системы хозяйственно-питьевого водопровода холодной и горячей воды и противопожарного водопровода.

Хозяйственно-питьевой водопровод должен включать ввод в здание, водомерный узел, разводящую сеть, подводки к санитарным приборам, смесительную, запорную и регулирующую арматуру.

5.1.3. С целью обеспечения надежности водоснабжения встроенных предприятий бытового обслуживания вводы водопровода для жилой части здания и для предприятий следует проектировать отдельными.

Для предприятий бытового обслуживания, занимающих четыре и более секции жилого здания, рекомендуется предусматривать два таких ввода, присоединенных к разным участкам наружной сети.

5.1.4. При наличии в жилом здании не более двух блоков помещений предприятий бытового обслуживания, допускается присоединение сети обслуживающих их водопроводов к основным вводам в здание, если расчетное потребление воды в пределах каждого блока не превышает среднего суммарного потребления воды на соответствующей площади в жилой части здания.

В этом случае присоединение рекомендуется производить в виде ответвления в начале магистральной линии нижней разводки жилого здания. От этого присоединения в техподполье может быть проведена автономная магистральная линия для обслуживания предприятий.

5.1.5. На ответвлениях от магистральной линии нижней разводки для предприятий бытового обслуживания необходимо устанавливать отдельные счетчики потребителей, располагая их в легко доступных помещениях, имеющих освещение и температуру воздуха не ниже 5 °С, с вентилями на входе и выходе, манометром и спускным краном для возможности опорожнения и ремонта сети, обслуживающей предприятия.

5.1.6. Прокладку трубопроводов холодной и горячей воды внутри помещений, занимаемых предприятиями бытового обслуживания, и установку арматуры следует осуществлять согласно соответствующим разделам СНиП 2.04.01-85*.

5.1.7. Не допускается прокладка через помещения предприятий бытового обслуживания разводящих магистралей и стояков водопровода холодной и горячей воды, снабжающих жилую часть здания.

5.1.8. Канализация помещений, занимаемых встроенными предприятиями, может включать бытовую канализацию для отведения сточных вод от санитарно-технических приборов и производственную - для отведения производственных сточных вод.

5.1.9. Системы канализации встроенных предприятий бытового обслуживания следует проектировать согласно СНиП 2.04.01-85* и предусматривать, как правило, отдельными от системы канализации жилого здания.

Для предприятий непроизводственного характера, при расчетном расходе сточных вод предприятий, расположенных в пределах жилой секции, не превышающем расчетный расход, собираемый с жилого этажа этой секции, допускается присоединять отводные трубопроводы к ближайшим канализационным стоякам жилого здания. При этом присоединение следует проектировать под потолком технического подполья с помощью косых тройников, а выше присоединения предусматривать ревизию.

5.1.10. Отводные трубопроводы рекомендуется проектировать из пластмассовых труб. Прокладку отводных трубопроводов от всех приборов, устанавливаемых в уборных, лабораториях и т.п. рекомендуется предусматривать над полом в приставных коробах у стен, с устройством облицовки водостойкими плитками.

5.1.11. Все канализационные стояки, в том числе и внутренние водостоки с крыш, проходящие через помещения встроенных предприятий бытового обслуживания, следует проектировать в коробах. Против ревизий на стояках следует предусматривать люки размером 30-40 см.

5.1.12. По составу загрязняющих веществ и их концентраций поверхностный сток с территории объектов должен быть идентичен стоку с селитебных зон.

Для сокращения выноса загрязнений с поверхностным стоком рекомендуется предусматривать:

- ограждение зоны озеленения бордюрами, исключающими слив грунта от ливневых дождей на дорожные покрытия;

- устройство поливочных кранов вне здания для регулярных профилактических уборок территории с твердым покрытием и полива озелененных площадок в теплое время года, а также возможность сетевого подключения и хранения электромеханического уборочного инвентаря;

- организация сбора ливнестока и отвода в систему городской ливневой канализации.

5.2. ОТОПЛЕНИЕ И ВЕНТИЛЯЦИЯ

5.2.1. В предприятиях бытового обслуживания населения расчетную температуру воздуха и кратность воздухообмена в помещениях следует принимать в соответствии с приложением 3.

5.2.2. Системы отопления и вентиляции встроенных в жилые здания предприятий бытового обслуживания следует проектировать в соответствии с СНиП 2.04.05-91*.

5.2.3. Для отопления помещений встроенных предприятий бытового обслуживания рекомендуется применение водяной системы отопления, используемой в жилой части здания. Для таких помещений допустимо применение комбинированной системы отопления, при которой в дополнение к водяному отоплению, покрывающему основную долю теплопотребления, используются электроотопительные приборы, обеспечивающие остальную долю потребления тепла.

5.2.4. Системы отопления встроенно-пристроенных в жилые дома помещений и отдельно стоящих объектов необходимо проектировать самостоятельными для каждого владельца или арендатора с установкой в них приборов учета расхода тепловой энергии.

5.2.5. Системы отопление объектов, встроенных в многосекционные жилые здания, рекомендуется проектировать посекционно, избегая систем с большой протяженностью разводящих магистралей. Это относится также к отдельно стоящим зданиям.

5.2.6. При наличии в двухтрубных системах отопления термостатов с минимальными размерами отверстий для прохода теплоносителя (минимальная предварительная настройка) рекомендуется кроме грубой очистки теплоносителя в грязевиках проводить дополнительно тонкую очистку воды в узлах ввода.

5.2.7. При невозможности выполнения двухтрубных систем рекомендуются для встроенно-пристроенных и малоэтажных отдельно стоящих зданий бытового назначения однотрубные системы отопления.

Для этого варианта предпочтительно устройство горизонтальных систем отопления с установкой у нагревательных приборов термостатических клапанов. При большой протяженности систем отопления на горизонтальных приборных ветвях рекомендуется установка автоматических регуляторов, обеспечивающих постоянство расхода, или балансных клапанов с постоянной гидравлической характеристикой сопротивления и ручной настройкой.

5.2.8. Системы отопления функционально должны соответствовать требованиям производственных процессов и в то же время создавать работающим в помещениях комфортные условия. При расположении постоянных рабочих мест с ограниченной подвижностью работающих у витражей или других ограждений с повышенной холодной радиацией рекомендуется предусматривать вблизи них нагревательные приборы с повышенной тепловой радиацией.

5.2.9. При повышенных требованиях к качеству воздуха в помещениях предприятий бытового обслуживания рекомендуется применение индивидуальных кондиционеров, установленных снаружи помещений. При этом должно обеспечиваться содержание вредных веществ в воздухе производственных помещений в пределах допустимых концентраций, утвержденных Минздравом РФ.

5.2.10. Системы вентиляции встроенных и встроенно-пристроенных предприятий бытового обслуживания населения в соответствии с обязательным пунктом 6.11 МГСН 4.18-99 и МГСН 3.01-01 следует проектировать раздельными с системами вентиляции жилых зданий.

5.2.11. Допускается присоединять к вентиляционной системе жилого здания предприятия со средним числом постоянно пребывающих в помещениях людей (включая посетителей), не превышающим одного человека на каждые 9 кв. м. занимаемой площади, с деятельностью непроизводственного характера: пункты проката, бюро услуг и т.п.

5.2.12. При проектировании для отдельного потребителя нескольких систем приточной вентиляции расход тепловых ресурсов следует определять с учетом одновременности работы этих систем, а не путем механического суммирования.

5.2.13. Проектирование воздушно-тепловых завес у наружных входов во встроенно-пристроенные помещения и отдельно стоящие здания должно осуществляться только при соответствующем технико-экономическом обосновании целесообразности их устройства в соответствии СНиП 2.04.05-91*.

5.2.14. При проектировании систем приточной вентиляции, кондиционирования воздуха и воздушно-тепловых завес особое внимание следует уделять выбору регулирующей арматуры, автоматики систем и приборов учета расхода теплоносителя.

5.2.15. Тепловые нагрузки вентиляционных систем в целом по конкретному зданию следует определять из расчета оптимальных расходов количества нагреваемого наружного воздуха, учитывать одновременность работы вентиляционных систем в увязке с технологическими процессами и функциональными назначениями систем.

5.2.16. Отсутствие притока воздуха (нулевой приток) допускается в помещениях парикмахерских для маникюра, педикюра и косметических услуг, а также в помещениях кладовых для различных предметов. Встроенные в жилые дома предприятия бытового обслуживания, вместимостью до 3-5 рабочих мест (общей площадью до 100-150 кв. м.) допускается проектировать без организованного притока воздуха, при наличии механической вытяжки.

5.3. ЭЛЕКТРОСНАБЖЕНИЕ, ЭЛЕКТРООСВЕЩЕНИЕ, ЕСТЕСТВЕННОЕ ОСВЕЩЕНИЕ

5.3.1. Электроснабжение и электроосвещение встроенных предприятий бытового обслуживания должны проектироваться в соответствии с требованиями ПУЭ, СНиП 3.05.06-85, и отраслевыми нормами и рекомендациями.

При проектировании электрических сетей в помещениях следует ориентироваться на применение прогрессивных энергосберегающих решений.

Расчетные электрические нагрузки, схемные и конструктивные решения электрических сетей рекомендуется принимать в соответствии с ВСН 59-88.

5.3.2. Для общего искусственного освещения помещений следует использовать, как правило, газоразрядные источники света, отдавая предпочтение при равной мощности источниками света с наибольшей световой отдачей и сроком службы. При выборе типа и мощности источника света следует также учитывать требования к цветопередаче, и к равномерности распределения освещенности в помещениях согласно СНиП 23-05-95.

5.3.3. В помещениях предприятий, в которых предполагается деятельность, связанная с интенсивной зрительной работой, - чтение, письмо, работа на компьютере, шитье, вышивание, ремонт мелких изделий и т.п. следует предусматривать естественное освещение, а при необходимости, совмещенное с искусственным в соответствии с МГСН 2.06.-99.

5.3.4. Электроприемники помещений встроенных предприятий бытового обслуживания по степени надежности электроснабжения следует относить к III категории.

5.3.5. Подключение электрических сетей, обеспечивающих электроснабжение встроенных предприятий бытового обслуживания, следует производить в вводно-распределительном устройстве (электрощитовой) жилого здания в соответствии с «Порядком электроснабжения встроенных, встроенно-пристроенных, пристроенных помещений без конкретного функционального назначения». Приложение 2 к распоряжению Правительства Москвы от 30 апреля 2002 г. № 618-РП.

5.3.6. При наличии на подводке к зданию собственной электрощитовой, не допускается расположение последней непосредственно под помещениями с мокрыми процессами (кроме кухонь квартир) и под жилыми помещениями.

В электрощитовой следует предусматривать электрическое освещение, вентиляцию и температуру не ниже 5°С.

Учет электроэнергии в таких помещениях рекомендуется производить раздельно по двум тарифам - дневному и ночному.

5.3.7. На каждой подводке к электропотребителю (субабоненту) должен устанавливаться электросчетчик в опломбированном шкафу. Электросчетчик должен располагаться в легко доступном помещении с освещением и температурой воздуха не ниже 5°С.

Рекомендуется предусматривать типы электросчетчиков, позволяющих им работать в составе автоматизированных систем учета электроэнергии.

5.3.8. Прокладку питающих линий к помещениям предприятий бытового обслуживания рекомендуется проектировать в техподполье на лотках; прокладку групповых сетей в помещениях - в пластмассовых электротехнических плинтусах.

5.3.9. В случае применения комбинированной системы отопления (включающей водяную систему как основную и электроотопление как дополнительную) учет электроэнергии также рекомендуется осуществлять двухтарифными счетчиками.

Электрическая сеть питания отопительных приборов должна быть отдельной от общей электрической сети с возможностью отключения ее в вводно-распределительном устройстве вне отопительного периода.

Следует предусматривать специальное подключение отопительных приборов к электрической сети, исключающее возможность подсоединения других электроприемников.

5.3.10. По степени обеспечения надежности электроснабжения комплекс электроприемников предприятий бытового обслуживания населения нормируемой площадью 1000 кв. м. и более, предприятий химической чистки и стирки белья нормируемой площадью 300 кв. м. и более, салонов-парикмахерских нормируемой площадью 200 кв. м. и более относятся ко II категории. Электроприемники других предприятий бытового обслуживания населения относятся к III категории.

5.3.11. Для предприятий и учреждений может проектироваться и применяться рабочее, аварийное, охранное и эвакуационное освещение. При необходимости часть светильников может использоваться как дежурное освещение (витрин, при входах и др.).

5.3.12. Рабочее освещение следует предусматривать для всех помещений зданий, а также участков открытых пространств, предназначенных для работы, прохода людей и движения транспорта. Для помещений, имеющих зоны с разным условиями естественного освещения и различными режимами работы должно быть предусмотрено раздельно управление освещением таких зон.

5.3.13. Рабочее освещение в зависимости от особенностей рабочих процессов в помещениях может предусматриваться общим или комбинированным.

5.3.14. На предприятиях бытового обслуживания и сопутствующих помещениях производственного характера, где выполняются зрительные работы I-IV разрядов (например, помещения ювелирных и граверных работ, ремонта часов, теле- и радиоаппаратуры, калькуляторов и т.д.) следует применять систему комбинированного освещения.

При комбинированном освещении освещенность непосредственно на рабочем месте следует применять по приложению 4.

5.3.15. На эвакуационных путях следует предусматривать освещение, дающее на полу проходов освещенность не менее 0,5 лк. Для освещения могут применяться как разрядные источники света, так и лампы накаливания.

Для встроенных учреждений, специализирующихся на работе с пожилыми людьми и инвалидами, следует предусматривать аварийное освещение, дающее освещенность рабочих поверхностей не менее 5% рабочей освещенности.

5.3.16. В помещениях с рабочими местами без естественного света, дополнительно к источникам искусственного освещения, для компенсации ультрафиолетовой недостаточности рекомендуется использовать УФ-облучательные установки длительного действия, совмещенные с осветительными установками.

5.3.17. В помещениях для посетителей, в производственных помещениях для изготовления и ремонта одежды, меховых и трикотажных изделий, головных уборов и в производственных помещениях химической чистки в осветительных установках следует применять лампы, обеспечивающие правильную цветопередачу.

5.3.18. Нормированное значение КЕО в помещениях, имеющих естественное освещение, должно быть не менее 0,7 еН. % (при боковом освещении). Для помещений, имеющих большее минимальное значение КЕО, следует применять показатели приложения 5. Допускается совмещенное освещение.

5.3.19. Условная плоскость нормирования естественного освещения в помещениях принимается на высоте 0,8 метра над уровнем пола в точке, удаленной от световых проемов:

на 1,5 высоты помещения - для работ I-IV разрядов;

на 2 высоты помещения - для работ V-VII разрядов;

на 3 высоты помещения - для работ VIII разряда.

5.3.20. Допускается деление помещений на зоны с боковым освещением (зоны, примыкающие к наружным стенам с окнами) и зоны с верхним освещением. При этом нормирование и расчет естественного освещения в каждой зоне производится независимо друг от друга.

5.3.21. Совмещенное освещение помещений предприятий бытового обслуживания допускается предусматривать в случаях, когда это требуется условиям выбора рациональных объемно-планировочных решений. Приложение 4.

Расчетное значение КЕО при совмещенном освещении должно составлять 60 % от нормированных значений КЕО при естественном освещении.

5.3.22. Схемы управления лифтами в зданиях предприятий бытового обслуживания выполняться в соответствии с правилами устройства безопасной эксплуатации лифтов и с учетом возможности блокировки включения второго лифта после вызова первого.

5.3.23. При устройстве автоматического включения резервного питания (АВР), к нему следует подключать и лифты.

5.3.24. Для отключения электроприемников, расположенных в кладовых для хранения принятых и готовых заказов и складских помещениях вне этих помещений, должен быть установлен общий аппарат управления, обеспечивающий полное обесточивание помещения по окончании работы (независимо от наличия таких аппаратов внутри этих помещений).

5.3.25. В проектах наружного освещения следует предусматривать автоматическое управление на вводно-распределительном устройстве здания в зависимости от уровня естественного освещения.

5.4. СЛАБОТОЧНЫЕ УСТРОЙСТВА

5.4.1. В помещениях предприятий бытового обслуживания могут устанавливаться телефонные и радиотрансляционные аппараты и устройства системы внутренней связи и сигнализации.

5.4.2. Устройства охранной и противопожарной сигнализации должны подключаться к общей электросети с обеспечением автоматического переключения на автономные электроисточники, действующие независимо от общей электросети.

5.4.3. В ателье изготовления и ремонта одежды, обуви, трикотажных изделий нормируемой площадью 1000 кв. м. и более следует предусматривать оперативную связь. Дома быта, дома моды, ателье нормируемой площадью 3000 кв. м. и более оборудуются служебно-хозяйственной связью.

5.4.4. На предприятиях бытового обслуживания, оборудованных автоматическими системами извещения о возникновении пожара или его тушения, необходимо предусматривать блокирование с ними систем вентиляции с механическим побуждением, кондиционирования воздуха и воздушного отопления для автоматического отключения последних при возникновении пожара.

5.4.5. В помещениях, где хранятся материальные ценности, желательно предусматривать дополнительные рубежи защиты, например, ультразвуковые датчики, дающие сигнал тревоги при движении нарушителя и емкостные датчики, устанавливаемые непосредственно на месте хранения ценностей.

Каждый рубеж защиты по своей абонентской телефонной линии следует подключать на самостоятельный номер пульта централизованного наблюдения.

5.5. ЗАЩИТА ОТ ШУМА

5.5.1. Звукоизоляция и виброизоляция перекрытий и стен помещений, занимаемых предприятиями бытового обслуживания, должны соответствовать требованиям МГСН 2.04-97, пособий к МГСН 2.04-97, СН 2.2.4/2.1.8.561-96, СН 2.2.4/2.1.8.562-96 и обеспечивать нормируемые акустические показатели как в помещениях предприятий бытового обслуживания с постоянным пребыванием людей, так и в помещениях жилой части здания.

В предприятиях бытового обслуживания с повышенным уровнем шума рекомендуется звукопоглощающая обшивка или облицовка потолков и стен.

5.5.2. В жилых зданиях помещения предприятий бытового обслуживания с повышенными источниками шума и вибрации не допускается размещать граничащими с помещениями квартир.

5.5.3. При использовании для перевозки материалов и изделий тележек и контейнеров, в конструкции полов должен быть предусмотрен звукоизоляционный слой.

Устанавливаемые во встроенных предприятиях бытового обслуживания, например, в мастерских по ремонту обуви, металлоизделий и т.п., машины и механизмы, при работе которых возникают вибрации или ударные шумы, следует устанавливать на упругие подкладки из вибропоглащающих резиноподобных материалов.

5.5.4 Проектирование защиты от шума и вибрации, создаваемого инженерным оборудованием, следует осуществлять, руководствуясь соответствующим Пособием к МГСН 2.04-97.

5.5.5. Методика расчета требуемой звукоизоляции ограждающих конструкций помещений, где установлено инженерное оборудование, приводятся в пособии к МГСН 2.04-97.

5.5.6. Вопросы защиты от воздушного шума, создаваемого системами вентиляции и кондиционирования воздуха и распространяющегося по воздуховодам, изложены в «Руководстве по расчету и проектированию шумоглушения вентиляционных установок»

(М, Стройиздат, 1982).

6. ССЫЛКА НА НОРМАТИВНО-МЕТОДИЧЕСКИЙ ДОКУМЕНТЫ

СНиП 2.08.02-89* «Общественные здания и сооружения»;

СНиП 2.09.04-87* Административные и бытовые здания»;

СНиП 2.04.05-91* «Отопление, вентиляция и кондиционирование воздуха»;

СНиП 2.04.01-85* «Водоснабжение и канализация»;

СНиП 3.05.06-85 «Электротехнические устройства»;

СНиП II-12-77 «Защита от шума»;

СНиП 35-01-2001 «Доступность зданий и сооружений для маломобильных групп населения»;

МГСН 3.01-01 «Жилые здания»;

МГСН 4.18-99 «Предприятия бытового обслуживания»;

МГСН 4.13-97 «Предприятия розничной торговли»;

МГСН 4.14-98 «Предприятия общественного питания»;

МГСН 1.01-99 «Нормы и правила проектирования планировки и застройки Москвы»;

МГСН 2.01-99 «Энергосбережение в зданиях»;

МГСН 2.04-97 «Допустимые уровни шума, вибрации и требования к звукоизоляции жилых и общественных зданий»;

МГСН 2.06-99 «Естественное, искусственное и совмещенное освещение»;

НПБ 104-95 «Проектирование системы оповещения людей о пожаре в зданиях и сооружениях;

ВСН 59-88 «Электрооборудование жилых и общественных зданий. Нормы проектирования»;

ВНТП-90 «Ведомственные нормы технологического проектирования предприятий бытового обслуживания»;

ПУЭ «Правила устройства электроустановок», 2000 г.;

РД 78.143-92/МВД России «Системы и комплексы сигнализации. Нормы проектирования»;

СН 2.2.4/2.1.8.561-96 «Допустимые уровни вибрации на рабочих местах в помещениях жилых и общественных зданий»;

СН 2.2.4/2.1.8.562-96 «Шумы на рабочих местах в помещениях жилых, общественных зданий и на территории жилой застройки»;

Пособие к МГСН 4.18-99 «Предприятия бытового обслуживания населения (выпуск 1). Основные положения и общие требования»;

Пособие к МГСН 2.01-99 «Энергосбережение в зданиях (выпуск 1)»;

Пособие к МГСН 2.04-07 «Проектирование защиты от шума и вибрации инженерного оборудования в жилых и общественных зданиях»;

Пособие к МГСН 2.04-97 «Проектирование защиты от транспортного шума и вибрации зданий»;

Пособие к МГСН 2.06-99 «Расчет и проектирование искусственного освещения помещений общественных зданий»;

Руководство по расчету и проектированию шумоглушения вентиляционных установок (М., Стройиздат, 1982).

ОК.002-93 «Общероссийский классификатор услуг населению».

Приложение 1

ОТДЕЛЬНО СТОЯЩИЕ ЗДАНИЯ ПРЕДПРИЯТИЙ БЫТОВОГО ОБСЛУЖИВАНИЯ НАСЕЛЕНИЯ, ТОРГОВО-БЫТОВЫЕ ЦЕНТРЫ (КОМПЛЕКСЫ)

№ п/п

Наименование предприятий

Отдельно стоящие здания

Торгово-бытовые центры (комплексы), м2 общей площади

капитальные здания, м2 общей площади

некапитальные здания (БВК), реконструируемые, м2 общей площади

1

Многоотраслевые комплексные предприятия (с различным набором видов услуг)

500-1000

300-600

300

2

Дом моды

500-1000

-

-

3

Ателье по пошиву и ремонту одежды, головных уборов и трикотажных изделий (с различным набором видов услуг)

500-800

-

300

4

Салоны красоты, парикмахерские (с различным набором видов услуг)

500 и выше

100-150

100-150

5

Салоны художественной фотографии

300-500

200 и выше

200 и выше

6

Фотографии (с различными видами услуг)

-

100-150

100-150

7

Мастерские по ремонту обуви

-

100-150

100-150

8

Мастерские по изготовлению и ремонту металлоизделий и кожгалантереи (с различным набором видов услуг)

-

100-150

100-150

9

Мастерские по ремонту бытовых машин и приборов (бытовая техника)

-

100-150

100-150

10

Мастерские по ремонту часов изготовлению и ремонту ювелирных изделий

-

100-150

100-150

11

Мастерские по ремонту радиоэлектронной аппаратуры

-

100-150

100-150

12

Мастерские по изготовлению мягкой и корпусной мебели и ремонту мебели

500

-

-

13

Мини-прачечные (до 500 кг белья в смену)

500-600 (в комплексе с мини химчистками

200-300

200-300

14

Мини-химчистки (до 160 кг вещей в смену)

-

200-250

200-250

15

Приемные пункты химчисток

-

100-150

100-150

16

Приемные пункты прачечных

-

100-150

100-150

17

Предприятие по ремонту и техническому обслуживанию бытовой радиоэлектронной аппаратуры, бытовых машин и бытовых приборов, ремонту и изготовлению металлоизделий

500 и выше

-

-

18

Многоотраслевой комплексный приемный пункт, типа "Мультисервис" (с различным набором видов услуг

-

200-300 и выше

200-300 и выше

19

Бюро посреднических услуг.

-

200 и выше

200 и выше

20

Ателье проката

-

300 и выше

300

Примечания:

1. Реконструируемые здания включены в графу 4, так как они по площадям однотипны с некапитальными - быстро возводимыми комплексами (БВК).

2. В графах 3, 4, 5 указываются оптимальные площади предприятий бытового обслуживания, минимальные площади не ограничиваются.

Приложение 2

ВСТРОЕННЫЕ И ВСТРОЕННО-ПРИСТРОЕННЫЕ ПРЕДПРИЯТИЯ БЫТОВОГО ОБСЛУЖИВАНИЯ В ЖИЛЫЕ ДОМА И ЗДАНИЯ ИНОГО НАЗНАЧЕНИЯ

№ п/п

Наименование предприятий

В жилые дома

В здания иного назначения, встроенные и встроенно-пристроенные, м2 общей плошали

встроенные, м2 общей площади

встроенно-пристроенные, м2 общей площади

1

Ателье по пошиву и ремонту одежды, головных уборов и трикотажных изделий (с различным набором видов услуг)

300

500*

500

500 и выше

2

Мастерские по ремонту обуви (срочный, мелкий, средний)

100

100

100 и выше

3

Мастерские по изготовлению и ремонту металлоизделий и кожгалантереи (с различным набором видов услуг)

100

150

150 и выше

4

Мастерские по ремонту бытовых машин и приборов (бытовая техника)

100

100

100 и выше

5

Мастерские по ремонту часов и ювелирных изделий

100

150

150 и выше

6

Салоны красоты (без сауны)

500*

500

500 и выше

7

Парикмахерские (с различным набором видов услуг)

100

150*

150

150 и выше

8

Фотографии

100

150*

150

150 и выше

9

Приемные пункты химчисток

100

100

100 и выше

10

Приемные пункты прачечных

100

100

100 и выше

11

Прачечные самообслуживания (домовые) до 75 кг белья в смену

150

150

-

12

Многоотраслевой комплексный приемный пункт типа «Мультисервис»

300

300

300 и выше

13

Бюро посреднических услуг

200

200

200 и выше

14

Ателье проката

300

300

300 и выше

15

Мини-прачечные (до 500 кг белья в смену)

-

-

400-450

16

Мини-химчистки (до 1 60 кг вещей в смену)

-

-

200-250

17

Дома Моды

-

-

500 и выше

18

Салоны Красоты

-

-

500 и выше

19

Салоны художественной фотографии

-

-

150-200

20

Мастерские по ремонту радиоэлектронной аппаратуры

-

-

150 и выше

21

Мастерские по изготовлению ювелирных изделий

-

-

100-150

22

Мастерские по ремонту мебели

-

-

200 и выше

Примечания:

1 Знаком* указаны максимальные площади предприятий обслуживания при встраивании в жилые дома со специальным объемно-планировочным, конструктивным и инженерно-технологическим решением, при условии согласования с органами санитарного и пожарного надзора.

2. В графах 3, 4, 5 указаны максимальные площади предприятий бытового обслуживания, минимальные площади не ограничиваются.

3. В графе 5 разделение на встроенные и встроенно-пристроенные предприятия не дается, т.к. они однотипны.

Приложение 3

Расчетная температура воздуха и кратность воздухообмена в помещениях

Помещение

Расчетная температура воздуха в помещении (для холодного периода года)

Кратность воздухообмена в/ч

приток

вытяжка

А. Производственные

 

 

 

Изготовление и ремонт одежды, головных уборов, трикотажных изделий

18

По расчету

Скорняжные работы, гофре и плиссе

18

2

2

Изготовление, ремонт обуви и галантереи

15

По расчету

Мини-химчистка

16

По расчету

Мини-прачечная

15

По расчету

Прачечная самообслуживания

16

1

1

Ремонт металлоизделий, бытовых машин, фотоаппаратуры, музыкальных инструментов, переплетные работы

8

2

3

Ремонт бытовой радиоэлектронной аппаратуры

18

4

5

Фотография

18

1

2

Обработка фотоматериалов:

 

 

 

черно-белых

18

2

3

цветных

18

8

10

Ремонт изделий из пластмасс, граверные работы

18

1

2

Прокат предметов домашнего обихода и культурно-бытового назначения

18

1

2

Парикмахерские с нормируемой площадью, кв. м:

 

 

 

до 50

18

-

1

до 100

18

1

2

100 и более

18

2

3

Помещения для сушки волос

18

По расчету

Студия звукозаписи (зал звукозаписи, аппаратная, кабинет перезаписи)

18

2

2

Машинописное бюро

18

3

3

Бюро обслуживания

18

1

2

Демонстрационный зал

18

2

2

 

 

(но не менее 20 куб. м./ч на 1 чел.)

Костюмерная

16

-

1,5

Биллиардная

16

2

3

Зал для проведения семейных мероприятий

16

3

3

 

 

(но не менее 20 куб. м./ч на 1 чел.)

Б. Для посетителей

 

 

 

Залы ожидания и приемные

18

По балансу со смежными помещениями

Помещения приема белья в стирку

16

1

2

Помещения выдачи белья

16

1

1

Кладовые

 

 

 

Кладовые для хранения принятых и готовых заказов, материалов

15

-

0,5

Разгрузочные

16

1

-

Приложение 4

Нормативные показатели искусственного освещения

Помещения

Разряд зрительной работы по СНиП 23-05-95

Освещенность рабочей поверхности, ЛК

При комбинированном освещении

При общем освещении

1

Ателье пошива и ремонта одежды и трикотажных изделий:

 

 

 

 

а) пошивочные цехи, отделения ремонта одежды

IIа

2000/750

750

 

б) закройные отделения

IIб

-

750

 

в) отделения подготовки прикладных материалов, утюжные, декатировочные

IVa

-

300

 

г) отделения ручной и машинной вязки

IIв

-

500

2

Ремонтные мастерские:

 

 

 

 

а) изготовление и ремонт головных уборов, скорняжные работы

IIа

2000/750

750

 

6) ремонт обуви и галантереи, металлоизделий, изделий из пластмассы, бытовых электроприборов

IIIа

2000/750

-

 

в) ремонт часов, ювелирные и граверные работы

IIб

3000/300

-

 

г) ремонт фото-кино-радио и телевизионной аппаратуры

IIв

2000/200

-

3

Парикмахерские:

 

 

 

 

а) мужской и женский залы

А-2

500/300

400

 

б) косметический кабинет

А-1

600/400

500

4

Фотографии:

 

 

 

 

а) салоны приема и выдачи заказов, фотолаборатории, помещения для приготовления растворов и регенерации серебра

Б-2

-

200

 

б) съемочный зал фотоателье

В-2

-

100

 

в) помещения для ретуши

IIIб

1000/200

-

5

Мини-прачечные:

 

 

 

 

а) отделения приема и выдачи белья; отделения упаковки белья

Б-2

-

200

 

б) хранение белья

VIIIб

-

75

 

в) стиральные отделения

VI

-

200

 

г) хранение стиральных материалов

VIIIв

-

50

 

д) сушильно-гладильные отделения

 

-

 

 

механические

VI

-

200

 

ручные

IVa

-

300

 

е) отделения починки белья

IIа

2000/750

750

6

Прачечные с самообслуживанием

Б-2

-

200

7

Мини-химчистка:

 

 

 

 

а) салон приема и выдачи одежды

Б-2

-

200

 

б) помещения химической чистки

VI

-

200

 

в) помещения для хранения химикатов

VIIIв

 

50

8

Пункты проката:

 

 

 

 

а) помещения для посетителей

Б-2

-

200

 

6) кладовые

В-1

-

150

9

Студия звукозаписи:

Помещения для записи, перезаписи и прослушивания, фонотеки

Б-2

-

200

Примечание: В графе 4 в числителе указана норма освещенности от общего и местного освещения на рабочем месте, а в знаменателе - освещенность от общего освещения по помещению.

Приложение 5

Нормативные показатели естественного и совмещенного освещения.

Помещения

Разряд зрительной работы по СНиП 23-05-95

Естественное освещение КЕО, еН. %

Совмещенное освещение, еН. %

При верхнем или комбинированном освещении

При боковом освещении

1

Ателье по пошиву и ремонту одежды, головных уборов и трикотажных изделий

 

 

 

 

 

а) пошивочные цехи, отделения ремонта одежды

IIа

-

4,2

1,5

 

б) закройные отделения

IIб

-

4,2

1,5

 

в) отделения подготовки прикладных материалов, утюжные, декатировочные

IVa

-

2,4

0,9

 

г) отделения ручной и машинной вязки

IIв

-

4,2

1,5

 

д) изготовление и ремонт головных уборов, скорняжные работы

IIа

-

4,2

1,5

2

Мастерские по изготовлению и ремонту:

 

 

 

 

 

а) ремонт обуви и галантереи, металлоизделий, изделий из пластмассы, бытовых электроприборов

IIIа

-

3,0

1,2

 

б) ремонт часов, ювелирные и граверные работы

IIб

-

4,2

1,5

в) ремонт фото-, кино-, радио- и телеаппаратуры

IIв

-

4,2

1,5

3

Парикмахерские (салоны красоты):

 

 

 

 

а) мужской и женский залы

А-2

-/1,2

2,1

0,7

б) косметический кабинет

А-1

-/1,5

2,4

0,9

 

в) солярий, сауна, массаж

Б-2

2,5/0,7

1,5

0,5

4

Фотографии: салоны приема и выдачи заказов

Б-2

-/0,7

1,5

0,5

5

Мини-прачечные:

 

 

 

 

 

а) отделения приема, выдачи и упаковки белья

Б-2

-

1,5

0,5

 

б) сушильно-гладильные отделения:

 

 

 

 

 

механические

Б-2

-

1,5

0,5

 

ручные

Б-1

-

1,8

0,5

6

Прачечные самообслуживания

Б-2

-

1,5

0,5

7

Мини-химчистки: салон приема и выдачи одежды, помещения химической чистки

Б-2

-/0,7

1,5

0,5

8

Ателье проката

Б-2

-/0,7

1,5

0,5

9

Бюро посреднических услуг:

 

 

 

 

 

а) кабинеты, рабочие комнаты, офисы

Б-1

3,0/1,0

1,8

0,6

 

б) помещения для работы с дисплеями

А-2

3,5/1,0

2,1

0,6

 

в) помещения для посетителей (залы ожидания)

Б-1

3,0/1,0

1,8

0,6

 

г) машинописное бюро

А-2

3,5/1,0

2,1

0,6

10

Вспомогательные помещения

 

 

 

 

 

а) вестибюли

Е

2,0/0,5

1,2

0,3

 

б) эвакуационные лестничные клетки

В-2

2,0/0,5

1,2

0,3

 

в) главные проходы, коридоры

Ж-1

-

-

0,1

Примечание: В графе 4 в числителе указано КЕО при верхнем или верхнем и боковом освещении, в знаменателе - при боковом.

6. ПРИМЕРЫ ПРОЕКТНЫХ РЕШЕНИЙ

Рис. 1 АТЕЛЬЕ ИНДИВИДУАЛЬНОГО ПОШИВА КОМПЛЕКСНОГО ОБСЛУЖИВАНИЯ В ОРЕХОВО-БОРИСОВО
(МНИИЭП арх. Шайхет, Гурвич и др.)

А. ФАСАД                Б. ПЛАН ПЕРВОГО ЭТАЖА

1 - салоны мужской и женской одежды, 2 - салон полуфабрикатов, 3 - склад готовых изделий и примерок, 4 - комнаты для закройщиков, 5 - столовая для персонала

Рис. 1 АТЕЛЬЕ ИНДИВИДУАЛЬНОГО ПОШИВА КОМПЛЕКСНОГО ОБСЛУЖИВАНИЯ В ОРЕХОВО-БОРИСОВО
(МНИИЭП арх. Шайхет, Гурвич и др.)

В. ПЛАН ВТОРОГО ЭТАЖА                                                         Г. ПЛАН ТРЕТЬЕГО ЭТАЖА

6 - Фойе, 7 - демонстрационный комплекс (зал и подсобные помещения), 8 - цеха пошива женской легкой одежды, 9 - цеха закройный, отделок, 10 - административно-бытовые помещения, 11 - цех пошива женской верхней одежды, 12 - цех пошива мужской верхней одежды, 13 - закройный цех, 14 - цех влажно-тепловой обработки, 15 - кладовые

Рис. 2 ПРИМЕР ПРОЕКТНОГО РЕШЕНИЯ КОМПЛЕКСНОГО МНОГООТРАСЛЕВОГО ПРЕДПРИЯТИЯ, ТИПА «МУЛЬТИСЕРВИС» ИЗ ЛЕГКИХ МЕТАЛЛИЧЕСКИХ КОНСТРУКЦИЙ (Б.В.К.)
(арх. К. Красильникова, инж-технолог Н. Зеленкова)

А. ФАСАД,               Б. ПЛАН ПЕРВОГО ЭТАЖА

1 - салон для посетителей, 2 - бюро услуг, 3 - кафе-бар, 4 - помещение выставки мебели с продажей по образцам, 5 - помещение заказов на ремонт квартир по образцам, торговля сопутствующими товарами,6 - интернет-кафе, 7 - 12 - парикмахерская, в т.ч. 7 - зал парикмахерской, 8 - косметический кабинет, 9 - кабинет маникюра и педикюра, 10 - массажный кабинет, 11 - гардероб персонала парикмахерской, 12 - кладовая, 13 - кабинет администратора, 14 - гардеробы персонала, 15 - технические помещения

Рис. 2 ПРИМЕР ПРОЕКТНОГО РЕШЕНИЯ КОМПЛЕКСНОГО МНОГООТРАСЛЕВОГО ПРЕДПРИЯТИЯ, ТИПА «МУЛЬТИСЕРВИС» ИЗ ЛЕГКИХ МЕТАЛЛИЧЕСКИХ КОНСТРУКЦИЙ (Б.В.К.)
(арх. К. Красильникова, инж-технолог Н. Зеленкова)

Г. ПЛАН ВТОРОГО ЭТАЖА                                          В. РАЗРЕЗ

1 - ателье ремонта и утюжки одежды, пошив штор и постельного белья, 2 - мастерская ремонта обуви, 3 - мастерская ремонта металлоизделий и кожгалантереи малогабаритных приборов, 4 - мастерская ремонта часов и ювелирных изделий, 5 - мастерская ремонта радиоэлектронной аппаратуры, 6 - мастерская ремонта электробытовых малогабаритный приборов, 7 - видеопрокат, 8 - комната выездных мастеров, 9 - ксерокопия и переплетные работы, 10 - игровые автоматы.

Рабочая площадь – 424,5 м2          Общая площадь – 630,9 м2

Рис. 3 ПРИМЕР ПРОЕКТНОГО РЕШЕНИЯ КОМПЛЕКСНОГО МНОГООТРАСЛЕВОГО ПРЕДПРИЯТИЯ, ТИПА «МУЛЬТИСЕРВИС» ИЗ ЛЕГКИХ МЕТАЛЛИЧЕСКИХ КОНСТРУКЦИЙ (Б.В.К.)
(арх. К. Красильникова, инж-технолог Н. Зеленкова)

А. ФАСАД,                                Б. ПЛАН ПЕРВОГО ЭТАЖА

1 - салон для посетителей, 2 - бюро услуг, 3 - кафе-бар, 4 - игровые автоматы, 5 - помещение заказов на ремонт квартир по образцам, торговля сопутствующими товарами, 6 - видеопрокат, 7 - 12 - приемный пункт химчистки (в т.ч. 7 - кладовая чистых вещей, 8 - кладовая грязных вещей), 9 - комната администратора, 10 - комната выездных мастеров, 11 - гардеробы персонала, 12 - технические помещения

Рис.3 ПРИМЕР ПРОЕКТНОГО РЕШЕНИЯ КОМПЛЕКСНОГО
МНОГООТРАСЛЕВОГО ПРЕДПРИЯТИЯ, ТИПА «МУЛЬТИСЕРВИС»

ИЗ ЛЕГКИХ МЕТАЛЛИЧЕСКИХ КОНСТРУКЦИЙ (Б.В.К.)
(арх. К. Красильникова, инж-технолог Н. Зеленкова)

В. РАЗРЕЗ                Г. ПЛАН ВТОРОГО ЭТАЖА

1 - ателье ремонта и утюжки одежды, пошив штор и постельного белья, 2 - мастерская ремонта обуви, 3 - мастерская ремонта электробытовых малогабаритных приборов, 4 - мастерская ремонта радиоэлектронной аппаратуры, 5 - мастерская ремонта часов и ювелирных изделий, 6 - ксерокопия и переплетные работы, 7 - студия звукозаписи, 8 - мастерская ремонта металлоизделий и кожгалантереи

Рабочая площадь - 326,7 м2          Общая площадь - 432,5 м2

                                                                               СУЩЕСТВУЮЩЕЕ ЗДАНИЕ

                                                                               НОВОЕ СТРОИТЕЛЬСТВО

Рис. 4 ЗДАНИЕ ПРЕДПРИЯТИЙ БЫТОВОГО ОБСЛУЖИВАНИЯ НАСЕЛЕНИЯ
в Малом Палашевском переулке
Реконструкция («Мосбытпроект»)

А Фасад              Б. План первого этажа

1 - холл для посетителей, 2 - помещения чистки одежды, 3 - стиральный цех, 4 - зал парикмахерской и салон для посетителей, 5 - кабинет, 6 - подсобные помещения, 7 - санитарные узлы

                                                                               СУЩЕСТВУЮЩЕЕ ЗДАНИЕ

                                                                               НОВОЕ СТРОИТЕЛЬСТВО

Рис.4 ЗДАНИЕ ПРЕДПРИЯТИЙ БЫТОВОГО ОБСЛУЖИВАНИЯ НАСЕЛЕНИЯ
в Малом Палашевском переулке
Реконструкция («Мосбытпроект»)

Б. Разрез             Г. План второго этажа

8 - мастерская ремонта одежды, 9 - мастерская металлоремонта, 10 - торговые залы магазина «Обувь», 11 - служба маркетинга, 12 - бытовые помещения и санитарные узлы, 13 - венткамера

Рис. 5 ПРИМЕР ПЛАНИРОВОЧНОГО РЕШЕНИЯ ПАРИКМАХЕРСКОЙ, ВСТРОЕННОЙ В ПЕРВЫЙ ЭТАЖ ЖИЛОГО ДОМА ПО УЛ. ГЕНЕРАЛА КУЗНЕЦОВА

План первого этажа

1 - вестибюль с гардеробом, 2 - холл для посетителей, 3 - зал парикмахерской, 4 - косметический кабинет, 5 - кабинет маникюра и педикюра, 6 - солярий, 7 - кабинет директора, 8 - гардероб персонала, 9 - комната персонала, 10 - торговый зал магазина косметики, 11 - зал кафе, 12 - бар, 13 - подсобные помещения.

(МНИИТЭП, арх. К.М. Амбарцумян, инж. Л.Г. Мишандина)

Рис. 6 ПРИМЕР ПРОЕКТНОГО РЕШЕНИЯ ПРЕДПРИЯТИЙ БЫТОВОГО ОБСЛУЖИВАНИЯ В ЖИЛОМ ДОМЕ И-1279 на Каширском шоссе
(мастерская 2 МНИИТЭП арх. Калашникова И.)

План первого этажа

Мастерская по ремонту радиотелеаппаратуры

1 - холл, 2 - торговый зал мастерской, 3 - приемочная, 4 - мастерские, 5 - подсобные помещения, 6 - служебно-бытовые помещения, 7 - спортивно-оздоровительный комплекс

Рис. 7 ПРИМЕР ПЛАНИРОВОЧНОГО РЕШЕНИЯ "САЛОНА КРАСОТЫ",
встроенного в 9-этажный кирпичный дом по Ленинскому проспекту
(АРХСТРОЙДИЗАЙН, арх. А. Иванов, М. Фельдман)

А. Фрагмент фасада          Б. План первого этажа

1 - салон для посетителей, 2 - кафе с баром, 3 - зал парикмахерской с маникюром, 4 - кабинет педикюра, 5 - косметический кабинет, 6 - массажный кабинет, 7 - кабинет директора

Рис. 7 ПРИМЕР ПЛАНИРОВОЧНОГО РЕШЕНИЯ "САЛОНА КРАСОТЫ",
встроенного в 9-этажный кирпичный дом по Ленинскому проспекту
(АРХСТРОЙДИЗАЙН. арх. А. Иванов, М. Фельдман)

В. Разрез 1-1                       Г. План второго этажа

8 - холл, 9 - солярий для лица, 10 - солярий для тела, 11 - кабинет косметологии по телу, 12 - грязеводолечебный кабинет. В подвале - комната отдыха персонала, гардероб персонала, технические помещения.

Рис. 8 ПРИМЕР ПЛАНИРОВОЧНЫХ РЕШЕНИЙ ПРЕДПРИЯТИЙ БЫТОВОГО ОБСЛУЖИВАНИЯ, ВСТРОЕННО-ПРИСТРОЕННЫХ В ПЕРВЫЙ ЭТАЖ 2Х БЛОК-СЕКЦИЙ ДОМА СЕРИИ П-44-Т
(арх. К. Красильникова, инж-технолог Н. Зеленкова)

А. АТЕЛЬЕ ПО ПОШИВУ ВЕРХНЕГО И ЛЕГКОГО ПЛАТЬЯ

1 - салон для посетителей, 2,3 - участки пошива верхнего и легкого платья, 4 - участок отделки и глаженья, 5 - скорняжный участок, 6 - раскройный участок, 7 - кладовые, 8 - кабинет администратора, 9 - комната персонала и гардероб

Рабочая площадь - 327,8 м2          Общая площадь - 395,0 м2

Б - МАСТЕРСКАЯ ПО РЕМОНТУ ОБУВИ

1 - салон для посетителей со срочным ремонтом, 2 - помещение ремонта, 3 - кладовая, 4 - комната персонала и гардероб.

Рабочая площадь - 75,5 м 2           Общая площадь - 85,7 м2

Рис. 9 ПРИМЕР ПЛАНИРОВОЧНОГО РЕШЕНИЯ МНОГООТРАСЛЕВОГО КОМПЛЕКСНОГО ПРИЕМНОГО ПУНКТА «МУЛЬТИСЕРВИС» ВСТРОЕННОГО В ПЕРВЫЙ ЭТАЖ 2Х БЛОК-СЕКЦИЙ ДОМА СЕРИИ П-46М
(арх. К. Красильникова, инж-технолог Н. Зеленкова)

1 - салон для посетителей с местом для юриста, справочным бюро, бюро по оказанию услуг, 2 - помещение дизайнера, 3 - помещение флориста, 4 - заказы на ремонт квартир по образцам, 5 - заказы на ремонт холодильников, телевизоров и других предметов домашнего обихода, с образцами ремонта, 6 - мастерская ремонта металлоизделий и кожгалантереи, 7 - мастерская срочного ремонта обуви, 8 - ксерокопия и переплетные работы, 9-10 - пункт проката, в том числе 9 - помещение для посетителей, 10 - склад, 11 - кабинет администратора, 12 - комната выездных мастеров.

Рабочая площадь – 210,3 м2          Общая площадь – 241,3 м2

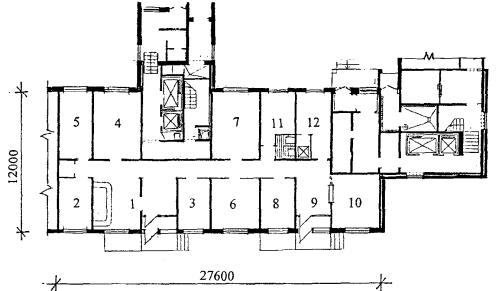
Рис. 10 ПРИМЕР ПЛАНИРОВОЧНЫХ РЕШЕНИЙ ПРЕДПРИЯТИЙ БЫТОВОГО ОБСЛУЖИВАНИЯ, ВСТРОЕННЫХ В ПЕРВЫЙ ЭТАЖ БЛОК-СЕКЦИИ ДОМА СЕРИИ П-55
(арх. К. Красильникова, инж-технолог Н. Зеленкова)

А. САЛОН ПАРИКМАХЕРСКАЯ

1 - вестибюль с кассой, 2 - зал парикмахерской, 3 - демонстрационный зал с баром, 4 - кабинет маникюра и педикюра, 5 - косметический кабинет, 6 - массажный кабинет, 7 - солярий, 8 - комната персонала с гардеробом.

Рабочая площадь - 113,0 м2          Общая площадь - 141,5 м2

Б. АТЕЛЬЕ-МАГАЗИН

1 - салон для посетителей с продажей готовой продукции и полуфабрикатов, 2 - комната технологов, 3 - участок пошива, 4 - закройный участок, 5 - кладовая ателье, 6 - комната персонала с гардеробом.

Рабочая площадь - 129,2 м2          Общая площадь - 141,5 м2




Яндекс цитирования



   Copyright © 2007-2026,  www.tehlit.ru.

[ ѓосты, стандарты, нормативы, инструкции, правила, строительные нормы ]