//
ТехЛит.ру
- крупнейшая бесплатная электронная интернет библиотека для "технически умных" людей.
WWW.TEHLIT.RU - ТЕХНИЧЕСКАЯ ЛИТЕРАТУРА

:: Алготрейдинг::


АЛГОТРЕЙДИНГ
шаг за шагом
с нуля по урокам!

Торговые роботы на PYTHON, BackTrader,
Pandas, Pine Script для TradingView. Связка с брокерами, телеграм и легкими приложениями.


ОСТ 24.125.156-01

СТАНДАРТ ОТРАСЛИ

ОПОРЫ СКОЛЬЗЯЩИЕ
НАПРАВЛЯЮЩИЕ ХОМУТОВЫЕ
ТРУБОПРОВОДОВ ТЭС И АЭС

КОНСТРУКЦИЯ И РАЗМЕРЫ

Предисловие

1 РАЗРАБОТАН открытым акционерным обществом «Научно-производственное объединение по исследованию и проектированию энергетического оборудования им. И. И. Ползунова» (ОАО «НПО ЦКТИ») и открытым акционерным обществом «Белгородский завод энергетического машиностроения» (ОАО «Белэнергомаш»)

ИСПОЛНИТЕЛИ: от ОАО «Белэнергомаш» ЗАВГОРОДНИЙ Ю.В., СЕРГЕЕВ О.А., РОГОВ В.А.; от ОАО «НПО ЦКТИ» ПЕТРЕНЯ Ю.К., д-р физ.-мат. наук; СУДАКОВ А.В., д-р техн. наук; ДАНЮШЕВСКИЙ И.А., канд. техн. наук; ИВАНОВ Б.Н., канд. техн. наук; ТАБАКМАН М.Л.; ГЕОРГИЕВСКИЙ Н.

2 ПРИНЯТ И ВВЕДЕН В ДЕЙСТВИЕ Департаментом промышленной и инновационной политики в машиностроении Министерства промышленности, науки и технологий Российской Федерации письмом № 10-1984 от 31.10.2001 г.

3 ВЗАМЕН ОСТ 108.275.33-80, ОСТ 108.275.34-80, ОСТ 108.275.35-80, ОСТ 108.275.36-80

СТАНДАРТ ОТРАСЛИ

ОПОРЫ СКОЛЬЗЯЩИЕ
НАПРАВЛЯЮЩИЕ ХОМУТОВЫЕ
ТРУБОПРОВОДОВ ТЭС И АЭС

Конструкция и размеры

Дата введения 2002-01-01

1 Область применения

Настоящий стандарт распространяется на опоры скользящие направляющие хомутовые трубопроводов ТЭС и АЭС:

- из хромомолибденованадиевых сталей наружным диаметром от 57 до 920 мм с температурой среды t 560 °С;

- из углеродистой и кремнемарганцовистых сталей наружным диаметром от 57 до 820 мм с температурой среды t 440 °С;

- из сталей аустенитного класса наружным диаметром от 57 до 325 мм с температурой среды t 440 °С.

2 Нормативные ссылки

В настоящем стандарте использованы ссылки на следующие стандарты:

ГОСТ 5264-80 Ручная дуговая сварка. Соединения сварные. Основные типы, конструктивные элементы и размеры

ОСТ 24.125.154-01 Опоры скользящие трубопроводов ТЭС и АЭС. Конструкция и размеры

ОСТ 24.125.157-01 Плиты направляющие опор трубопроводов ТЭС и АЭС. Конструкция и размеры

ОСТ 24.125.170-01 Детали и сборочные единицы опор, подвесок, стяжек для линзовых компенсаторов и приводов дистанционного управления арматурой трубопроводов ТЭС и АЭС. Общие технические условия

РД 153-34.1-003-01 Сварка, термообработка и контроль трубных систем котлов и трубопроводов при монтаже и ремонте энергетического оборудования (РТМ-1с)

3 Конструкция и размеры

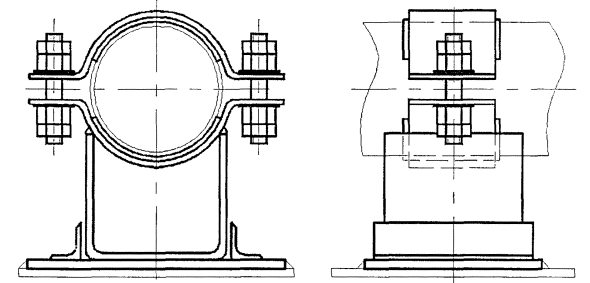
3.1 Конструкция и основные размеры опор должны соответствовать указанным на рисунках 1 - 5 и в таблицах 1 - 3. Допускаемые усилия на опоры приведены в таблице 4.

3.2 Основание опоры приваривается к строительным конструкциям по РД 153-34.1-003-01 непрерывным швом согласно рисунку 1, либо прерывистым симметричным относительно основания опоры. Минимально допустимая общая длина шва l дана в таблице 1.

3.3 Маркировка и остальные технические требования по ОСТ 24.125.170.

3.4 Пример условного обозначения скользящей направляющей опоры исполнения 05:

ОПОРА 05 ОСТ 24.125.156

3.5 Пример маркировки: 05 ОСТ 24.125.156

1 - скользящая опора; 2 - направляющая плита

Рисунок 1.

См. рисунок 1

Рисунок 2.

См. рисунок 1

Рисунок 3.

См. рисунок 1

Рисунок 4.

См. рисунок 1

Рисунок 5.

Таблица 1

Основные размеры и спецификация скользящих направляющих опор трубопроводов из хромомолибденованадиевых сталей

Размеры в миллиметрах

Исполнение

Наружный диаметр трубопровода Da

Рисунок

B

B1

H

L

l, не менее

Масса, кг

Опора скользящая, поз. 1, 1 шт.

Плита направляющая, поз. 2, 1 шт.

Исполнение по ОСТ 24.125.154

Исполнение по ОСТ 24.125.157

01

57

1

140

175

135

250

600

5,92

01

01

02

76

160

146

6,06

02

01

03

108

200

215

180

7,30

03

.02

04

133

240

198

7,56

04

02

05

159

270

213

7,76

05

02

06

194

330

265

261

11,55

06

03

07

219

355

277

11,81

07

03

08

245

2

390

315

290

300

19,60

08

04

09

273

430

310

19,90

09

04

10

325

490

395

346

400

800

29,15

10

05

11

377

560

475

360

40,93

11

06

12

426

610

404

44,41

12

06

13

465

3

660

433

53,41

13

06

14

530

740

645

430

500

71,7

14

07

15

630

850

705

500

97,0

15

08

16

720

950

785

542

109,00

16

09

17

920

1150

686

119,00

17

09

(Измененная редакция).

Таблица 2

Основные размеры и спецификация скользящих направляющих опор трубопроводов из углеродистых и кремнемарганцовистых сталей

Размеры в миллиметрах

Исполнение

Наружный диаметр трубопровода Da

Рисунок

B

B1

H

L

l, не менее

Масса, кг

Опора скользящая, поз. 1, 1 шт.

Плита направляющая, поз. 2, 1 шт.

Исполнение по ОСТ 24.125.154

Исполнение по ОСТ 24.125.157

18

57

1

140

175

112

250

600

5,330

18

01

19

76

160

124

5,430

19

01

20

89

185

215

137

7,120

20

02

21

108

200

157

7,480

21

02

22

133

240

175

7,760

22

02

23

159

270

192

7,900

23

02

24

194

330

265

241

10,910

24

03

25

219

355

257

11,110

25

03

26

245

2

390

315

270

300

18,676

26

04

27

273

430

290

18,976

27

04

28

325

490

395

326

400

800

27,980

28

05

29

377

560

475

340

39,330

29

06

30

426

610

384

42,530

30

06

31

465

3

660

413

51,590

31

06

32

530

740

645

410

500

69,68

32

07

33

630

850

705

480

93,860

33

08

34

720

950

785

522

104,560

34

09

35

820

1100

598

113,9

35

09

Таблица 3

Основные размеры и спецификация скользящих направляющих опор трубопроводов из аустенитных сталей

Размеры в миллиметрах

Исполнение

Наружный диаметр трубопровода Da

Рисунок

B

B1

H

L

l, не менее

Масса, кг

Опора скользящая, поз. 1, 1 шт.

Плита направляющая, поз. 2, 1 шт.

Исполнение по ОСТ 24.125.154

Исполнение по ОСТ 24.125.157

36

57

4

140

175

113

250

600

5,410

36

01

37

76

160

125

5,550

37

01

38

89

185

215

138

7,230

38

02

39

108

200

158

7,640

39

02

40

133

240

176

8,000

40

02

41

159

270

193

8,180

41

02

42

219

355

265

258

11,450

42

03

43

245

5

390

315

271

300

19,176

43

04

44

273

430

291

19,536

44

04

45

325

490

395

395

400

800

28,850

45

05

Таблица 4

Допускаемые боковые усилия на скользящие направляющие опоры

Наружный диаметр трубопровода Da, мм

Максимальное усилие, кН

Трубы из хромомолибденованадиевых сталей

Трубы из углеродистых сталей

Температура среды, °С

20

545

560

20

200

340

440

57

98,1

26,5

21,6

68,6

64,7

51,0

26,5

76

89

-

-

-

98,1

76,5

39,2

108

107,9

40,2

32,4

107,9

70,6

133

159

194

107,9

43,1

34,3

107,9

98,1

49,0

219

245

127,5

127,5

107,9

273

325

176,5

53,9

43,1

176,5

137,3

68,6

377

68,6

53,9

176,5

88,3

426

83,4

68,6

107,9

465

107,9

93,2

156,9

530

225,5

225,5

630

156,9

127,4

720

820

-

-

-

920

225,5

156,9

127,4

-

-

-

-

Ключевые слова: скользящие опоры, трубопроводы, конструкция, размеры.

СОДЕРЖАНИЕ

 




Яндекс цитирования



   Copyright © 2007-2026,  www.tehlit.ru.

[ ѓосты, стандарты, нормативы, инструкции, правила, строительные нормы ]