//
ТехЛит.ру
- крупнейшая бесплатная электронная интернет библиотека для "технически умных" людей.
WWW.TEHLIT.RU - ТЕХНИЧЕСКАЯ ЛИТЕРАТУРА

:: Алготрейдинг::


АЛГОТРЕЙДИНГ
шаг за шагом
с нуля по урокам!

Торговые роботы на PYTHON, BackTrader,
Pandas, Pine Script для TradingView. Связка с брокерами, телеграм и легкими приложениями.


ГОСТ Р 51872-2002

ГОСУДАРСТВЕННЫЙ СТАНДАРТ РОССИЙСКОЙ ФЕДЕРАЦИИ

 

ДОКУМЕНТАЦИЯ
ИСПОЛНИТЕЛЬНАЯ ГЕОДЕЗИЧЕСКАЯ

Правила выполнения

 

 

ГОСУДАРСТВЕННЫЙ КОМИТЕТ РОССИЙСКОЙ ФЕДЕРАЦИИ
ПО СТРОИТЕЛЬСТВУ И ЖИЛИЩНО-КОММУНАЛЬНОМУ КОМПЛЕКСУ
(ГОССТРОЙ РОССИИ)

Москва

 

 

Предисловие

1 РАЗРАБОТАН Центральным научно-исследовательским и проектно-экспериментальным институтом организации, механизации и технической помощи строительству (Ф.В. Андреева) с участием рабочей группы специалистов (Е.И. Гуревич, И.Б. Карасик, Д.И. Прокофьев, В.Д. Фельдман, А.В. Цареградский)

ВНЕСЕН Управлением стандартизации, технического нормирования и сертификации Госстроя России

СОГЛАСОВАН с Федеральной службой геодезии и картографии России (письмо № 6-02-2632 от 5.09.01 г.)

2 ПРИНЯТ И ВВЕДЕН В действие постановлением Госстроя России от 21.11.01 г. № 120

3 ВВЕДЕН ВПЕРВЫЕ

 

Содержание

1 Область применения

2 Нормативные ссылки

3 Общие положения

4 Состав, содержание и оформление документации по элементам зданий, сооружений, благоустройства и геодезической разбивочной основе

5 Состав, содержание и оформление документации по инженерным сетям

5.1 Инженерные сети внутри зданий и надземные сети

5.2 Подземные сети и сооружения

6 Контроль документации

7 Передача, приемка и хранение документации

Приложение А

Примерный перечень исполнительных схем по элементам, конструкциям и частям зданий и сооружений, благоустройству и геодезической разбивочной основе

Приложение Б

Требования к содержанию исполнительного чертежа и продольного профиля подземной части

Приложение В

Форма, размеры и заполнение основной надписи документации на подземные сети

Приложение Г

Библиография

 

 

ГОСТ Р 51872-2002

ГОСУДАРСТВЕННЫЙ СТАНДАРТ РОССИЙСКОЙ ФЕДЕРАЦИИ

ДОКУМЕНТАЦИЯ ИСПОЛНИТЕЛЬНАЯ ГЕОДЕЗИЧЕСКАЯ

Правила выполнения

EXECUTIVE GEODETIC DOCUMENTATION IN CONSTRUCTION

Performance rules

Дата введения 2002-07-01

1 Область применения

Настоящий стандарт устанавливает требования к составу, содержанию, оформлению, контролю, порядку приема и хранения геодезической исполнительной документации (далее - документации) на бумажном носителе, составляемой наряду с другой исполнительной документацией при строительстве, реконструкции, расширении, капитальном ремонте зданий и сооружений (далее - строительстве).

Положения настоящего стандарта подлежат применению государственными органами управления и надзора, организациями - держателями геодезических фондов, имеющих специальное строительное назначение, организациями и лицами - участниками строительства, а также выполняющими исполнительные и контрольные съемки в строительстве.

2 Нормативные ссылки

В настоящем стандарте использованы ссылки на следующие государственные стандарты:

ГОСТ 2.307-68* ЕСКД. Нанесение размеров и предельных отклонений

ГОСТ 2.308-79* ЕСКД. Указание на чертежах допусков форм и расположения поверхностей

ГОСТ 2.321-84 ЕСКД. Обозначения буквенные

ГОСТ 21.101-97 СПДС. Основные надписи к проектной и рабочей документации

ГОСТ 21.113-88 СПДС. Обозначения характеристик точности

ГОСТ 21.204-93 СПДС. Условные графические обозначения и изображения элементов генеральных планов и сооружений транспорта

ГОСТ 21.508-93 СПДС. Правила выполнения рабочей документации генеральных планов предприятий, сооружений и жилищно-гражданских объектов

ГОСТ 21.601-79* СПДС. Водопровод и канализация. Рабочие чертежи

ГОСТ 21.602-79* Отопление, вентиляция и кондиционирование воздуха. Рабочие чертежи

ГОСТ 21.604-82 СПДС. Водоснабжение и канализация. Наружные сети. Рабочие чертежи

ГОСТ 21.605-82* СПДС. Сети тепловые (тепломеханическая часть). Рабочие чертежи

ГОСТ 21.607-82 СПДС. Электрическое освещение территории промышленных предприятий. Рабочие чертежи

ГОСТ 21.608-84 СПДС. Внутреннее электрическое освещение. Рабочие чертежи

ГОСТ 21.609-83 СПДС. Газоснабжение. Внутренние устройства. Рабочие чертежи

ГОСТ 21.610-85* СПДС. Газоснабжение. Наружные газопроводы. Рабочие чертежи

ГОСТ 21778-81 Система обеспечения точности геометрических параметров в строительстве. Основные положения

ГОСТ 23616-79* Система обеспечения точности геометрических параметров в строительстве. Контроль точности

3 Общие положения

3.1 Документация предназначена для регистрации значений линейных и угловых размеров, координат, расстояний, отметок, уклонов, сечений, диаметров, привязок и других геометрических параметров (далее - геометрических параметров) элементов, конструкций и частей зданий и сооружений, инженерных сетей, элементов благоустройства, знаков закрепления пунктов геодезической разбивочной основы (далее - элементов) с целью определения их соответствия проектной документации (далее - проекту) и требованиям нормативных документов, оценки качества строительной продукции, а также нанесения проложенных инженерных сетей на топографические планы.

3.2 Документация составляется по результатам исполнительной съемки.

3.3 Документация составляется на все виды подземных и надземных инженерных сетей, а также другие элементы, обязательность составления документации на которые установлена действующими нормативными документами, проектом, проектом производства работ, в том числе геодезических, инструкциями и правилами органов надзора, ведомств, территориальных инженерных служб и эксплуатирующих организаций.

3.4 В состав документации входят:

по инженерным сетям - исполнительные чертежи, профили, каталоги координат, схемы сварных стыков трубопроводов, полевые геодезические материалы исполнительной съемки;

по остальным элементам - исполнительные схемы и полевые геодезические материалы исполнительной съемки;

по объектам производственного назначения, кроме того, - исполнительные генпланы.

3.5 В документации подлежат отражению значения геометрических параметров, предусмотренных настоящим стандартом, а также других геометрических параметров, требования к точности которых установлены действующими нормативными документами и проектом.

Допускается в случае необходимости дополнительно отражать в документации сведения о фактически выполненных технических решениях, материале конструкций и другую техническую исполнительную информацию.

3.6 Геометрические параметры в документации характеризуются проектными (номинальными по ГОСТ 21778) и действительными значениями или их действительными отклонениями. Способ характеризации выбирается по указаниям действующих нормативных документов, проекта, а при отсутствии таких указаний - по усмотрению исполнителя.

4 Состав, содержание и оформление документации по элементам зданий и сооружений, благоустройства и геодезической разбивочной основе

4.1 Состав исполнительных схем по объекту строительства устанавливается на основании требований действующих нормативных документов, требований органов государственного надзора, технадзора заказчика, авторского надзора проектной организации с учетом рекомендаций приложения А.

4.2 На исполнительных схемах указываются разбиваемые в натуре оси, элементы, геометрические параметры, характеризующие их действительные размеры и положение в плане и по высоте.

4.3 Действительные размеры и положение элементов характеризуются следующими геометрическими параметрами: размерами элементов, координатами и отметками выбранных определяемых точек на элементах, расстояниями и углами между исходными и определяемыми точками.

Положение элементов конструкций в плане показывают размерами или отклонениями, которые доступны для наблюдения:

- действительными отклонениями осей элементов от разбиваемых в натуре координационных осей (ГОСТ 21.101) или действительными расстояниями от граней элементов до этих осей;

- действительными расстояниями от граней элементов до разбиваемых в натуре параллелей осям (базовых осей по ГОСТ 2.308) с указанием привязочных размеров последних к координационным осям.

4.4 В случае необходимости на исполнительных схемах могут помещаться согласующая надпись или данные (название документа, дата, номер и др.) о согласовании сверхнормативных отклонений с проектной организацией.

4.5 В качестве основы для исполнительных схем допускается использовать рабочие чертежи, входящие в состав проектной документации.

4.6 Проектные значения параметров в случае необходимости показываются по ГОСТ 2.307, ГОСТ 21.508, ГОСТ 21.101. Действительные значения и действительные отклонения показываются согласно указаниям 4.6.1 - 4.6.6 настоящего стандарта.

4.6.1 Действительные значения линейных размеров (расстояний между осями, поверхностями и т.п.) показываются числовыми значениями, помещенными под размерной линией, над которой указан соответствующий проектный размер.

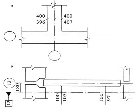
4.6.2 Проектные и действительные отметки показываются: для грунтовых и других поверхностей рельефа по ГОСТ 21.508, для прочих элементов - по ГОСТ 21.101. При этом перед числовым значением действительных отметок помещается буква "Д" в прямоугольной рамке. Направляющую линию соединяют с точкой поверхности, к которой относится отметка (рисунок 1).

а - конструкции на плане; б - грунтовой или другой поверхности рельефа на плане; в - любой поверхности на разрезе

Рисунок 1 - Обозначение действительной отметки поверхности

4.6.3 Действительные отклонения от проектных отметок показываются числовым значением в см для грунтовых и других поверхностей рельефа и в мм - для других элементов со знаком "плюс" в случае превышения или "минус" в случае занижения. Направляющую линию соединяют с точкой поверхности, к которой относится отклонение (рисунок 2).

а - сваи или колонны на плане; б - колонны на разрезе

Рисунок 2 - Примеры указания действительных отклонений поверхностей

Отклонения точек плит перекрытий и подобных поверхностей от их самых высоких точек показываются числовым значением в мм со знаком "минус" с направляющей линией.

4.6.4 Уклоны поверхностей и линейных элементов показываются по ГОСТ 21.101; крутизна откосов показывается по ГОСТ 21.508.

При этом перед действительными числовыми значениями помещается буква "Д" в прямоугольной рамке.

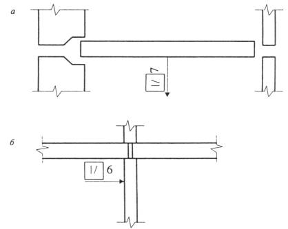
4.6.5 Действительные отклонения осей элементов от разбивочных осей на планах показываются стрелками, направленными в сторону отклонения, и расположенным рядом числовым значением отклонения. При этом перед действительными числовыми значениями отклонений помещается в прямоугольной рамке буква "В" для верхнего сечения или буква "Н" для нижнего сечения элемента (рисунок 3).

а - сваи; б - колонны

Рисунок 3 - Примеры указания действительных отклонений осей элементов от разбивочных осей на плане

Действительные расстояния от граней элемента до разбивочных осей показываются в соответствии с 4.6.1 (рисунок 4).

а - от граней монолитного ростверка до разбиваемой в натуре координационной оси; б - от грани стеновой панели до разбиваемой в натуре параллели оси

Рисунок 4 - Примеры указаний действительных расстояний на плане

4.6.6 Действительные отклонения поверхностей элементов от вертикальности показываются стрелками, направленными в сторону отклонения, и расположенными рядом условными обозначениями невертикальности по ГОСТ 21.113 и числовыми значениями отклонений (рисунок 5).

а - на плане; б - на разрезе

Рисунок 5 - Примеры указаний действительных отклонений поверхностей элементов от вертикальности

4.7 В исполнительных схемах применяются условные обозначения элементов конструкций и систем, установленные в стандартах СПДС, а также условные знаки Федеральной службы Роскартографии, не противоречащие 4.6.

4.8 В примечаниях к исполнительной схеме указывают номера и названия рабочих чертежей, исходные геодезические данные, условные обозначения и другие сведения, поясняющие содержание схем.

4.9 В правом нижнем углу исполнительной схемы размещается основная надпись по ГОСТ 21.101.

4.10 Исполнительная схема подписывается исполнителем, ответственным производителем работ по объекту и руководителем строительной (монтажной) организации. В случае выполнения исполнительной съемки сторонней организацией схема подписывается также руководителем этой организации или уполномоченным им лицом.

4.11 Исполнительная схема геодезической разбивочной основы фиксирует действительные значения привязок и отметок знаков закрепления пунктов основы. Схема должна содержать:

- схему вынесенных в натуру точек, осей и установленных знаков закрепления с необходимыми привязками;

- сведения о способе закрепления точек и конструкции знаков.

4.12 Исполнительный генплан промышленного предприятия должен содержать совмещенную схему подземных и надземных коммуникаций в составе, установленном ГОСТ 21.508. На генплане дополнительно указываются действительные расстояния в свету между уложенными сетями.

5 Состав, содержание и оформление документации по инженерным сетям

5.1 Инженерные сети внутри зданий и надземные сети

5.1.1 Исполнительные чертежи составляются на все виды надземных инженерных сетей.

Исполнительные чертежи сетей внутри зданий составляются в случае необходимости по требованию технадзора заказчика, авторского надзора проектной организации, территориальных инженерных служб и эксплуатирующих организаций.

При этом требования к составу и содержанию исполнительных чертежей не должны выходить за пределы, установленные стандартами СПДС (ГОСТ 21.601, ГОСТ 21.602, ГОСТ 21.608, ГОСТ 21.609) для соответствующих инженерных сетей.

5.1.2 Исполнительные чертежи должны включать планы, схемы, разрезы, сечения и геометрические параметры сетей, указанные на рабочих чертежах.

5.1.3 При соответствии действительных размеров, отметок, уклонов, сечений (диаметров), привязок и других геометрических параметров номинальным значениям (с установленными предельными отклонениями) на исполнительных чертежах делается надпись: «Отклонений от проекта по геометрическим параметрам нет».

При наличии недопустимых отклонений помещаются согласующая надпись или данные (название документа, дата, номер и др.) об их согласовании с проектной организацией.

5.1.4 Допускается совмещение исполнительных чертежей различных сетей, если информация об одной сети не может быть отнесена к другой.

5.1.5 При большой протяженности и (или) сложном расположении сетей допускается их изображение с разрывами, обозначаемыми параллельными штриховыми линиями.

5.1.6 В качестве основы исполнительных чертежей, как правило, используются рабочие чертежи, входящие в состав проектной документации, а при невозможности этого исполнительные чертежи выполняются на отдельных листах.

5.1.7 Исполнительные чертежи на отдельных листах выполняются в виде планов и схем в масштабах, принятых для соответствующих рабочих чертежей. Для небольших зданий, когда соответствующие рабочие чертежи отсутствуют, допускается принимать масштаб 1:50.

5.1.8 Значения параметров наносятся в соответствии с 4.6.

5.1.9 В случае, когда масштабы исполнительных чертежей не позволяют с достаточной степенью детальности показать все размеры, от соблюдения которых зависят эксплуатационные характеристики сетей, следует применять буквенные обозначения по ГОСТ 2.321.

5.1.10 Исполнительные чертежи подписываются согласно указаниям 4.10.

5.2 Подземные сети и сооружения

5.2.1 В состав документации по подземным инженерным сетям включаются: исполнительные чертежи; продольные профили по оси сети (если они входят в состав проекта); схемы сварных стыков трубопроводов; каталоги координат выходов, углов поворота и створных точек сети (при ее аналитической привязке); полевые геодезические материалы исполнительной съемки.

В случае, когда определение местоположения сети по плану, использованному для разработки проекта, невозможно или затруднено, в состав документации включают ситуационный план масштаба 1:2000 или 1:5000 с нанесенной на нем сетью.

5.2.2 Исполнительный чертеж составляется на топографическом плане, использованном для разработки проекта и дополненном новыми зданиями и сооружениями, к твердым точкам которых выполнена привязка сети.

5.2.3 На исполнительный чертеж наносится вновь построенная сеть с указанием данных геодезических измерений и привязок, а также все существующие сети, вскрытые при строительстве.

5.2.4 На совмещенные прокладки может быть составлен общий исполнительный чертеж.

5.2.5 Содержание исполнительного чертежа должно отвечать требованиям приложения Б.

5.2.6 При перекладке сетей на исполнительном чертеже отмечаются участки старых сетей, изъятых из земли или оставленных в земле, с указанием места и способа их отключения.

5.2.7 Фактическое положение подземных сетей характеризуется следующими геометрическими параметрами: действительными координатами характерных определяемых точек на сетях, действительной глубиной заложения, действительными значениями отметок, расстояний, углов и превышений между исходными и определяемыми точками.

5.2.8 На исполнительных чертежах и продольных профилях показываются действительные значения геометрических параметров сетей. Номинальные значения могут показываться в случае необходимости.

5.2.9 Действительные значения геометрических параметров подземных сетей показываются на исполнительных чертежах по ГОСТ 21.604, ГОСТ 21.605, ГОСТ 21.607, ГОСТ 21.610, а параметров строительных конструкций и частей зданий - согласно указаниям 4.6 настоящего стандарта.

5.2.10 Плановое положение подземных сетей указывается на исполнительных чертежах линейными засечками или перпендикулярами, или полярными координатами элементов, устройств и характерных точек относительно пунктов геодезической опорной сети, точек съемочного обоснования, специально проложенных теодолитных ходов или твердых точек и створов существующих долговременных объектов. При этом на каждую определяемую точку должно быть не менее трех линейных засечек с углами между ними от 30 до 150°, а длина перпендикуляра не должна превышать 4 м.

5.2.11 Содержание продольного профиля должно отвечать требованиям приложения Б.

Горизонтальный и вертикальный масштабы профиля должны соответствовать масштабам профиля в составе проекта.

5.2.12 Схемы сварных стыков трубопроводов составляются для газопроводов, теплопроводов, сетей горячего водоснабжения, продуктопроводов опасных и вредных продуктов, а также, в случае необходимости, для других трубопроводов по требованию органов надзора, территориальных инженерных служб и эксплуатирующих организаций.

5.2.13 На схемах сварных стыков газопроводов и теплопроводов показывают расположение сварных стыков относительно углов поворота и других характерных элементов сети с указанием действительных расстояний между ними и персональных данных (Ф.И.О., номер) сварщиков, выполнивших работы.

5.2.14 Каталог координат точек сети составляется в системе координат, принятой при разработке проекта.

5.2.15 При соответствии действительных размеров, отметок, уклонов, сечений (диаметров), привязок и других геометрических параметров номинальным значениям (с установленными предельными отклонениями) на документах делается надпись: «Отклонений от проекта по геометрическим параметрам нет».

При наличии недопустимых отклонений помещаются согласующая надпись или данные (название документа, дата, номер и др.) об их согласовании с проектной организацией.

5.2.16 Исполнительные чертежи, продольные профили, схемы сварных стыков и каталоги координат изготавливаются на основе, обеспечивающей их длительное хранение.

5.2.17 В исполнительных чертежах, продольных профилях и каталогах координат применяются условные знаки Роскартографии или знаки, согласованные ею.

5.2.18 В правом нижнем углу исполнительного чертежа, продольного профиля, схемы и каталога координат размещается основная надпись (штамп) по форме приложения В.

5.2.19 Исполнительные чертежи, продольные профили, схемы сварных стыков и каталоги координат подписываются согласно указаниям 4.10.

5.2.20 С правой стороны исполнительного чертежа и продольного профиля проставляется штамп организации, эксплуатирующей изображенную сеть, заверенный подписью с указанием даты, свидетельствующий о том, что требования действующих технических условий данной организации учтены.

5.2.21 В состав полевых геодезических материалов исполнительной съемки входят схемы геодезических построений, журналы измерений, абрисы, ведомости вычислений и отметок.

Полевые геодезические материалы исполнительной съемки оформляются в соответствии с требованиями нормативных документов Роскартографии.

6 Контроль документации

6.1 Контроль документации заключается в проверке соответствия ее состава, полноты содержания и оформления требованиям настоящего стандарта, а также в проверке правильности отображения в документации результатов исполнительной съемки (действительных значений или отклонений).

6.2 Соответствие состава, полноты содержания и оформления документации требованиям настоящего стандарта определяется визуально путем просмотра материалов.

Правильность отображения в документации результатов исполнительной съемки проверяется по результатам контрольных измерений (контрольных съемок) и дополнительных вычислений.

В необходимых случаях для просмотра предъявляются полевые материалы исполнительной съемки.

6.3 Контроль документации является обязанностью заказчика объекта строительства, если иное не установлено решениями местных органов исполнительной власти или соглашениями между участниками инвестиционного процесса.

Контроль документации по подземным инженерным сетям выполняется организациями, уполномоченными местными органами исполнительной власти.

6.4 Контроль документации по элементам, конструкциям и частям зданий и сооружений, геодезической разбивочной основе, наземным и внутренним инженерным сетям, благоустройству выполняется с соблюдением следующих дополнительных положений.

6.4.1 Правильность отображения в документации действительных значений или отклонений геометрических параметров подлежит выборочному контролю. Объем выборок проверяемых значений и правила их образования назначаются по ГОСТ 23616.

6.4.2 Разность между значениями геометрических параметров, указанных в документации и полученных по результатам контрольных измерений, не должна превышать 0,2 предельной погрешности измерений, если иные значения не предусмотрены специальным расчетом.

6.5 Контроль документации по подземным инженерным сетям выполняется с соблюдением следующих дополнительных положений.

6.5.1 Правильность отображения в документации действительных значений или отклонений геометрических параметров подлежит сплошному контролю.

6.5.2 Проверка соответствия значений контролируемых геометрических параметров их отображению в документации выполняется по результатам контрольной геодезической съемки проложенной подземной сети.

6.5.3 Разность между значениями геометрических параметров, указанных в документации и полученных по результатам контрольных измерений, не должна превышать:

в плане - 0,5 м; по высоте - 0,3 м для самотечных трубопроводов и 0,1 м для остальных сетей.

Для сетей на территории производственных объектов заказчиком могут быть установлены более строгие требования к правильности отображения в документации результатов исполнительной съемки.

6.5.4 При соответствии данных контрольной съемки и данных, представленных на проверяемом документе, в правой части документа проверяющий делает надпись: «Исполнительный документ составлен правильно и соответствует действительному положению сети на местности. Отклонений от проекта нет» или «Исполнительный документ составлен правильно и соответствует действительному положению сети на местности. Имеются согласованные (не согласованные) отклонения от проекта».

Надпись оформляется штампом с указанием регистрационного номера, подписи и даты.

7 Передача, приемка и хранение документации

7.1 Оригиналы документации, кроме документации по подземным инженерным сетям, хранятся организацией - исполнителем работ вместе с полевыми материалами исполнительных съемок в соответствии с правилами архивного хранения.

Оригиналы исполнительных чертежей, продольных профилей и каталогов координат подземных сетей хранятся территориальными организациями - держателями геодезических фондов в соответствии с правилами Роскартографии.

Оригиналы схем сварных стыков трубопроводов подземных сетей хранятся эксплуатирующими организациями.

Полевые материалы исполнительных съемок подземных сетей хранятся организацией - исполнителем съемок или передаются ею организации - производителю строительно-монтажных работ.

7.2 Копии документации передаются эксплуатирующим, контролирующим, изыскательским и другим заинтересованным организациям в соответствии с положениями действующих законодательных актов, нормативных документов, инструкций и правил органов надзора, ведомств, территориальных инженерных служб и эксплуатирующих организаций.

7.3 Организация - исполнитель работ представляет организации-держателю геодезических (фондов оригиналы исполнительных чертежей, продольных профилей и каталогов координат подземных сетей и копии с них в пяти экземплярах.

7.4 Организация - держатель геодезических фондов в срок до пяти дней принимает и регистрирует документацию, ставит на оригиналах и копиях штамп приемки, указывает регистрационный номер и дату приемки и возвращает копии организации - исполнителю работ.

7.5 При приемке и вводе в эксплуатацию законченных строительством объектов документация передается или предъявляется в соответствии с требованиями соответствующих нормативных документов. При этом документация на подземные инженерные сети передается или предъявляется в виде копий, имеющих штамп организации - держателя геодезических фондов о приемке документации.

Один экземпляр копии документации на подземные инженерные сети со штампом о приемке хранится у организации - исполнителя работ.

7.6 Оригиналы документации по подземным инженерным сетям подлежат хранению до перекладки или реконструкции этих сетей и составления новой документации.

Срок хранения полевых материалов исполнительных съемок подземных сетей установлен [1].

7.7 Хранение документации должно производиться в соответствии с действующими правилами работы архивов учреждений, организаций и предприятий.

ПРИЛОЖЕНИЕ А

(рекомендуемое)

Примерный перечень исполнительных схем по элементам, конструкциям и частям зданий и сооружений, благоустройству и геодезической разбивочной основе

1. Исполнительная схема геодезической разбивочной основы на строительной площадке.

2. Исполнительная схема выноса в натуру (разбивки) основных осей здания (сооружения).

3. Исполнительная схема котлована.

4. Высотная исполнительная схема свай после их погружения (забивки).

5. Исполнительная схема свайного поля (после срубки свай).

6. Исполнительная схема ростверков.

7. Исполнительная схема фундаментов.

8. Исполнительная схема фундаментов под оборудование и их элементов (анкерных болтов, закладных деталей, технологических отверстий, колодцев и др.).

9. Поярусные исполнительные схемы колонн каркасных зданий.

10. Исполнительная схема крыши.

11. Исполнительная схема подкрановых балок и путей.

12. Высотная исполнительная схема площадок опирания панелей, перекрытий и покрытий здания.

13. Высотная исполнительная схема полов промышленного здания.

14. Исполнительная схема лифтовой шахты.

15. Поэтажные исполнительные схемы многоэтажных зданий.

16. Высотная исполнительная схема консолей колонн.

17. Исполнительная схема территории после выполнения работ по благоустройству.

18. Исполнительная схема земляного полотна транспортного сооружения (автомобильной или железной дороги, внутризаводской дороги, эстакады и других инженерных сооружений).

19. Исполнительные схемы резервуаров, градирен, мачт, дымовых труб и других инженерных сооружений.

ПРИЛОЖЕНИЕ Б

(обязательное)

Требования к содержанию исполнительного чертежа
и продольного профиля подземной сети

Б.1 Требования к содержанию исполнительного чертежа

Б.1.1 На исполнительный чертеж должны быть нанесены геометрические параметры следующих характерных точек и линий проложенной инженерной сети, в том числе ее надземных участков, а также существующих сетей, вскрытых при строительстве:

центров колодцев, люков колодцев и камер;

точек поворота сети, главных точек кривых (начало, середина и конец) при плавных поворотах в плане, точек изломов и изгибов по высоте;

центров мест переходов из подземного положения в надземное;

точек пересечения оси основной сети с осью присоединения или отвода;

створных точек оси (верх прокладки) на прямых прокладках не реже, чем через 50 м (на незастроенных территориях при большом протяжении допускается наносить створные точки через 100 м);

точек пересечения осей вводов и выпусков с наружными гранями зданий (сооружений);

осей существующих сетей, пересекающихся или идущих параллельно проложенной, вскрытых при строительстве;

концевых, переломных и поворотных точек на футлярах (кожухах);

мест изменения диаметра и материала труб;

расположения отключающих устройств, расположенных вне камер и колодцев.

Б.1.2 По отдельным видам сетей на исполнительный чертеж, кроме точек, указанных в Б.1.1, должны быть нанесены геометрические параметры мест расположения следующих элементов и устройств и приведена дополнительная информация:

по водопроводам и трубопроводам специального технического назначения (продуктопроводам) - опор при надземной прокладке, пожарных гидрантов, задвижек, вантузов, аварийных выпусков, водоразборных колонок, упоров на углах поворота, заглушек, габариты колодцев и камер;

по канализации и водостоку - аварийных выпусков, оголовков выпусков водостока, дождеприемников, ливнеспусков, очистных сооружений на водостоках, упоров на углах поворота напорной канализации, габариты камер, зданий станций перекачки и насосных станций;

по подземным дренажам - тип дренажа, материал и поперечное сечение лотков и траншей для закрытых дрен, материал и поперечное сечение глухого коллектора;

по тепловым сетям - опор при надземной прокладке, компенсаторов, задвижек, неподвижных опор, габариты камер, надземных павильонов над камерами и зданий центральных тепловых пунктов, тип прокладки и канала, а также все данные сопутствующего дренажа, водоспусков из канала и всех инженерных сетей, находящихся в канале;

по газопроводам - коверов, регуляторов давления, задвижек, гидравлических затворов, контрольных трубок, конденсационных горшков, заглушек, габариты газораспределительных пунктов и станций;

по электрокабелям - линейных и тройниковых муфт, петель запаса кабеля, переводов, мест выходов на опоры и стены зданий, габариты распределительных пунктов, трансформаторов и тяговых подстанций;

по сооружениям электрозащиты от коррозии - контактных устройств, анодных заземлителей, электрозащитных установок, электрических перемычек, защитных заземлений и дренажных кабелей;

по телефонной канализации - общее количество каналов на каждом пролете, размеры нестандартных колодцев и камер, мест выходов на здания и телефонные распределительные шкафы.

Б.1.3 При отсутствии в составе исполнительной документации продольного профиля приводятся также отметки: обечайки смотрового люка и дна колодца; дна лотка самотечных и верха трубы напорных трубопроводов; верха труб, бронированного кабеля и пакета кабельной канализации на створных точках; поверхности земли (бровки траншеи) около колодцев и на створных точках.

Б.1.4 На исполнительном чертеже должны быть приведены данные о: назначении сети; количестве, материале и диаметре труб; количестве напряжений и марке кабелей; давлении газа.

Б.1.5 На исполнительном чертеже или прилагаемом к нему отдельном листе в масштабе, принятом в проекте, изображаются:

планы и разрезы колодцев или указывается их тип;

все характерные сечения коллекторов, каналов, футляров, блоков кабельной канализации, кабельных пакетов;

развертки кабельных колодцев;

другие детали сети и сооружений на ней с указанием необходимых линейных размеров, характеризующих построенное сооружение;

условные знаки изображенных на данном листе инженерных сетей.

На исполнительном чертеже проложенного водопровода или прилагаемом к нему отдельном листе, кроме того, изображается внемасштабная общая схема проложенной сети с указанием внешних габаритов сооружений, диаметров и материала труб, протяженности отдельных участков сети, упоров на углах поворота, задвижек, отключаемых участков существующих сетей.

Б.2 Требования к содержанию продольного профиля

Б.2.1 На продольный профиль должны быть нанесены: проложенная инженерная сеть, в том числе ее надземные участки; существующие подземные сети, вскрытые при строительстве; существующие подземные сети, расположенные ниже проложенной (наносятся по данным топографических планов, использованных для разработки проекта).

Б.2.2 На продольном профиле указываются: проектные и действительные отметки поверхности земли и элементов проложенной сети, указанные в Б.1.1 и Б.1.2; горизонтальные расстояния между точками нивелирования (пикетаж, нумерация); величины и направления уклонов; количество кабелей или труб; диаметры труб; характеристика конструкций дорожной одежды и ее основания, вскрытых при строительстве.

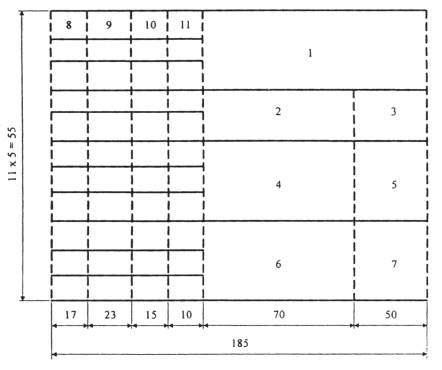
ПРИЛОЖЕНИЕ В

(обязательное)

Форма, размеры и заполнение основной надписи
документации на подземные сети

В поле 1 указывается наименование строительной организации, выполнившей прокладку сети.

В поле 2 указывается наименование организации-заказчика (застройщика).

В поле 3 указывается наименование проектной организации.

В поле 4 указывается номер, шифр и дата выпуска проекта.

В поле 5 указываются данные о согласовании проекта

В поле 6 указываются наименование исполнительного чертежа и подземной прокладки, адрес объекта и длина трассы.

В поле 7 указываются номер и дата выдачи разрешения на выполнение строительно-монтажных работ.

В поле 8 - 11 указываются должности, фамилии, подписи исполнителей и ответственных руководителей работ, даты подписания чертежа, а также, в случае необходимости, наименование сторонней организации, составившей исполнительный чертеж.

 

ПРИЛОЖЕНИЕ Г

(информационное)

Библиография

[1] ГКИНП-17-003-87 Роскартография. Перечень топографо-геодезических, картографических, аэросъемочных материалов и материалов космической съемки с указанием сроков их хранения.

 

Ключевые слова: документация исполнительная геодезическая, состав, содержание, оформление, элементы зданий и сооружений, геодезическая разбивочная основа, инженерные сети, подземные и надземные сети, контроль, передача, приемка, хранение

 

 




Яндекс цитирования



   Copyright © 2007-2026,  www.tehlit.ru.

[ ѓосты, стандарты, нормативы, инструкции, правила, строительные нормы ]