//
ТехЛит.ру
- крупнейшая бесплатная электронная интернет библиотека для "технически умных" людей.
WWW.TEHLIT.RU - ТЕХНИЧЕСКАЯ ЛИТЕРАТУРА

:: Алготрейдинг::


АЛГОТРЕЙДИНГ
шаг за шагом
с нуля по урокам!

Торговые роботы на PYTHON, BackTrader,
Pandas, Pine Script для TradingView. Связка с брокерами, телеграм и легкими приложениями.


ПРАВИТЕЛЬСТВО МОСКВЫ
МОСКОМАРХИТЕ
КТУРА

РЕКОМЕНДАЦИИ
ПО ПРОЕКТИРОВАНИЮ ОБЪЕКТОВ
МАЛОГО ПРЕДПРИНИМАТЕЛЬСТВА
В г. МОСКВЕ

РАЗДЕЛ II
ЗДАНИЯ И ПОМЕЩЕНИЯ

ВЫПУСК II-1
ВСТРОЕННЫЕ ПОМЕЩЕНИЯ
ДЛЯ МАЛОГО ПРЕДПРИНИМАТЕЛЬСТВА

2002

1. Выпуск II-1 разработан ФГУП «Институт общественных зданий» Госстроя России.

Авторский коллектив - канд. архитектуры Гарнец A. M. (руководитель разработки), канд. архитектуры Смывина Л. А., к.т.н. Кротюк В. Ф., инж. Сигачева Л. В., инж. Чернозубова Н. И.

2. Подготовлен к утверждению и изданию Управлением перспективного проектирования и нормативов Москомархитектуры.

3. Согласован: Департаментом поддержки и развития малого предпринимательства Правительства Москвы, Москомархитектурой.

4. Утвержден и внесен в действие Указанием Москомархитектуры от 12.07.2002 г. № 52.

СОДЕРЖАНИЕ

Введение. 2

1. Область применения. 2

2. Нормативные ссылки. 3

3. Общие положения. 4

4. Архитектурно-планировочные решения встраиваемых помещений. 6

5. Конструктивные решения при встраивании в жилые здания помещений для малого предпринимательства. 12

6. Санитарно-гигиенические и экологические требования. 16

7. Требования пожарной безопасности. 17

8. Требования по защите встроенных объектов. 19

9. Требования к инженерно-техническим решениям.. 20

Общие требования. 20

Водоснабжение. 20

Канализация. 21

Теплоснабжение. 21

Вентиляция. 21

Электроснабжение, электроосвещение и электротехнические устройства. 22

Слаботочные устройства. 23

Приложение А Термины и определения, 42

Приложение Б Предпочтительное размещение жилых зданий со встроенными предприятиями малого предпринимательства в планировочной структуре селитебных территорий. 43

Приложение В Нежилые помещения, используемые для малых предприятий в типовых проектах массовых серий жилых зданий. 44

В.1. Первый этаж жилой. 44

В.2. Первый этаж нежилой без конкретной технологии. 47

B.3. Первый этаж нежилой с предприятиями с конкретной технологией. 49

В.4. Встроенно-пристроенные нежилые помещения. 50

Приложение Г Минимальные площади помещений для предпринимательской деятельности, организуемой на площади основных малых предприятий. 51

Приложение Д Примерный состав и площади помещений предприятий малого предпринимательства, размещаемых в жилых зданиях. 51

Библиография. 61

ВВЕДЕНИЕ

Выпуск II-1 «Встроенные помещения для малого предпринимательства», «Рекомендаций по проектированию объектов малого предпринимательства в г. Москве» разработан по форме нормативного документа в рамках комплексной работы по проектированию объектов малого предпринимательства для различных градостроительных условий в соответствии с постановлением Правительства Москвы от 07.10.97 № 722. «О проекте разрешения жилищных, культурно-бытовых, коммунальных и других видов строительства в г. Москве на 2000-2005 годы».

Развитие малого предпринимательства в экономической и социальных сферах осуществляется при поддержке как на федеральном, так и на местном уровне, что нашло свое отражение в различных государственных актах и постановлениях Российской Федерации и г. Москвы (см. раздел «Библиография»).

В настоящее время в Москве функционирует сеть малых предприятий и организаций; на 1000 жителей приходится 23 малых предприятия, что приближается к уровню показателей стран ЕЭС. Эти предприятия действуют в различной организационно-правовой форме. Они относятся как к области производства, так и к сфере обслуживания, в том числе торгово-бытового, культурно-досугового, лечебно-оздоровительного, предприятий питания, юридических, посреднических и научно-проектных, а также социальных платных услуг.

Для развития малого предпринимательства необходимым условием является создание материально-технической базы, отвечающей современным требованиям к организации предпринимательской деятельности. Действующие нормативные документы регламентируют требования к проектированию встроенных в жилые здания объектов (помещений) общественного назначения, однако в этих документах не отражена специфика проектирования объектов малого предпринимательства.

Поэтому большое значение приобретает расширение нормативно-методической базы проектирования объектов малого предпринимательства. При разработке документа учтен отечественный опыт проектирования и эксплуатации объектов малого предпринимательства, а также практика приспособления нежилых помещений в жилых зданиях массовой застройки. Включены требования и положения московских и федеральных нормативно-методических документов в части проектирования встроенных объектов (помещений) в жилые здания и определяющие их номенклатуру.

Методической основой разработки Выпуска II-1 является Раздел 1 Общие положения Рекомендаций по проектированию объектов малого предпринимательства в г. Москве, выполненный ФГУП МНИИТЭП с участием ФГУП ИОЗ, согласованный Департаментом поддержки и развития малого предпринимательства Правительства Москвы и утвержденный Москомархитектурой Указанием от 20.11.2000 г. № 49.

Термины и их определения, принятые в настоящем документе, приведены в Приложении А.

1. ОБЛАСТЬ ПРИМЕНЕНИЯ

1.1. Положения Выпуска II-1 распространяются на проектирование новых и реконструкцию (перепланировку) существующих помещений предприятий и учреждений малого предпринимательства (далее по тексту малые предприятия), встроенных в многоквартирные жилые здания массовых серий алее - жилые дома, здания).

Номенклатуру объектов малого предпринимательства, встраиваемых в жилые здания, следует принимать по СНиП 2.08.01 и МГСН 3.01, а также в соответствии с Приложением 1 Постановления Правительства Москвы от 16.09.97 № 683.

1.2. Рекомендации предназначены для использования проектными организациями и инвесторами, а также специалистами, занимающимися развитием малого бизнеса и вопросами функционирования объектов малого предпринимательства, размещаемых в жилых зданиях.

1.3. Настоящие рекомендации можно использовать при проектировании новых жилых зданий с нежилыми помещениями, предназначенными для объектов малого предпринимательства.

1.4. Положения и рекомендации текста, а также параметры планировочных схем в настоящем документе учитывают требования доступности объектов для маломобильных групп населения в соответствии с СНиП 35-01-2001, СП 31-102-99 и СП 35-101-2001.

2. НОРМАТИВНЫЕ ССЫЛКИ

2.1. В настоящем документе даны ссылки на следующие нормативные документы в части проектирования помещений объектов малого предпринимательства, встроенных в жилые здания:

СНиП 21-01-97* Пожарная безопасность зданий и сооружений,

СНиП 23-05-95 Естественное и искусственное освещение,

СНиП 35-01-2001 Доступность зданий и сооружений для маломобильных групп населения,

СНиП 2.01.07-85 Нагрузки и воздействия,

СНиП 2.02.01-83* Основания зданий и сооружений,

СНиП 2.03.11-85 Защита строительных конструкций от коррозии,

СНиП 2.03.13-88 Полы,

СНиП 2.04.01-85 Внутренний водопровод и канализация зданий,

СНиП 2.04.05-91* Отопление, вентиляция, кондиционирование,

СНиП 2.04.09-84 Пожарная автоматика зданий и сооружений,

СНиП 2.07.01-89* Градостроительство. Планировка и застройка городских и сельских поселений,

СНиП 2.08.01-89* Жилые здания,

СНиП 2.08.02-89* Общественные здания и сооружения,

Пособие к СНиП 2.08.02-89* «Проектирование спортивных залов, помещений для физкультурно-оздоровительных занятий и крытых катков с искусственным льдом»,

СНиП 2.09.04-87 Административные и бытовые здания,

СНиП 3.05.06-85 Электротехнические устройства,

СНиП II-12-77 Защита от шума,

СП 31-102-99 Требования доступности общественных зданий и сооружений для инвалидов и других маломобильных посетителей,

СП 35-101-2001 Проектирование зданий и сооружений с учетом доступности для маломобильных групп населения. Общие положения,

МГСН 2.01-99 Энергоснабжение в зданиях,

МГСН 2.04-97 Допустимые уровни шума, вибрации и требования к звукоизоляции жилых и общественных зданий,

МГСН 2.05-99 Инсоляция и солнцезащита,

МГСН 2.06-99 Естественное, искусственное и совместное освещение,

МГСН 3.01-01 Жилые здания,

МГСН 4.04-94 Многофункциональные здания и комплексы,

МГСН 4.07-96 Дошкольные учреждения,

МГСН 4.08-97 Массовые типы физкультурно-оздоровительных учреждений,

МГСН 4.09-97 Здания органов социальной защиты населения,

МГСН 4.10-97 Здания банковских учреждений,

МГСН 4.12-97 Лечебно-профилактические учреждения,

МГСН 4.13-97 Предприятия розничной торговли,

МГСН 4.14-98 Предприятия общественного питания,

МГСН 4.18-99 Предприятия бытового обслуживания,

МГСН 5.01-01 Стоянки легковых автомашин,

НПБ 104-95 Проектирования систем оповещения людей о пожаре в зданиях и сооружениях,

НПБ 105-95 Определение категорий помещений и зданий по взрывоопасной и пожарной опасности,

НПБ 110-99 Перечень зданий, сооружений, помещений и оборудования, подлежащих защите автоматическими установками тушения и обнаружения пожара,

ВСН 59-88 Электрооборудование жилых и общественных зданий. Нормы проектирования,

ВСН 61-89(р) Реконструкция и капитальный ремонт жилых зданий. Нормы проектирования,

ВНП 001-95 Здания учреждений Центрального банка России,

ПУЭ. Правила устройства электроустановок, 2000 г.,

РД 25.952-90/МВД России. Системы автоматического пожаротушения, пожарной охранной и охранно-пожарной сигнализации,

РД 78.143-92/МВД России. Системы и комплексы охранной сигнализации. Нормы проектирования,

РД 78.145-93ВД России. Системы и комплексы охранной, пожарной и охранно-пожарной сигнализации. Правила производства и приемки работ,

РД 78.147-93/МВД России. Единые требования по укреплению и оборудованию охраняемых объектов,

СанПин 2.2.1/2.1.1.567-96 Санитарно-защитные зоны и санитарная классификация предприятий, сооружений и иных объектов,

Дополнение к СанПин 2.2.1/2.1.1.567-96 Временные гигиенические нормативы по размещению отдельных производственных объектов на территории г. Москвы,

СанПин 42123.577-91 Санитарные правила для предприятий общественного питания,

СанПин 2.2.4.548-96 Гигиенические требования к микроклимату производственных помещений,

СП 2.2.4/2.1.8.561-96 Допустимые уровни вибрации на рабочих местах в помещениях жилых и общественных зданий,

СП 2.2.4/2.1.8.562-96 Шумы на рабочих местах в помещениях жилых, общественных зданий и на территории жилой застройки,

СП 2.2.4/2.1.8.566-96 Производственная вибрация, вибрация в помещениях жилых и общественных зданий,

ГОСТ 9573-96 Плиты из минеральной ваты на синтетическом связующем теплоизоляционные. Технические условия,

ГОСТ 15588-86 Плиты пенополистирольные. Технические условия,

ГОСТ 20916-87 Плиты теплоизоляционные из пенопласта на основе резольных феноло-формальдегидных смол. Технические условия,

ГОСТ 22950-95 Плиты минераловатные повышенной жесткости на синтетическом связующем. Технические условия,

ГОСТ Р 50862-96 Сейфы и хранилища ценностей. Требования и методы испытаний на устойчивость к взлому и огнестойкость,

ГОСТ Р 50941-96 Кабина защитная. Общие требования и методы испытаний,

«Технические решения утепления наружных ограждений домов первых массовых серий», утвержденные и введенные в действие приказом Госстроя России от 10 ноября 1998 года, № 8.

2.2. При исключении нормативных документов, указанных в п. 2.1 из числа действующих, следует руководствоваться нормами, которые вводятся взамен исключенных или другими действующими рекомендательными документами.

3. ОБЩИЕ ПОЛОЖЕНИЯ

3.1. Настоящий документ содержит положения и рекомендации по размещению объектов малого предпринимательства в жилой застройке, объемно-планировочным и конструктивным решениям встраиваемых в жилые здания объектов малого предпринимательства, в том числе к их автономному инженерно-техническому обеспечению и охранной безопасности.

В Выпуске II-1 приведены ссылки на требования действующих федеральных и московских нормативных документов по проектированию встраиваемых в жилые здания малых предприятий.

Кроме того в документе уточняются и расширяются отдельные положения в части инженерно-конструктивных решений реконструкции жилых зданий при встраивании в них малых предприятий.

3.2. В жилые здания рекомендуется встраивать малые предприятия:

- без больших потоков посетителей,

- как правило, без производственных процессов или с отдельными видами производственных процессов,

- не связанных с нарушением санитарно-экологической среды,

- не нарушающих комфортности проживания жильцов дома,

- имеющие технологию и объемно-планировочные решения, не противоречащие конструктивным решениям и структуре жилого здания и

- отвечающие требованиям нормативных параметров воздушной среды, шума, вибрации и т.д.

При этом рекомендуется встраивать предприятия, с эпизодическим использованием грузового транспорта малой и средней грузоподъемности.

Номенклатура учреждений и предприятий общественного назначения, разрешенных для встраивания в жилые здания в г. Москве, приведена в МГСН 3.01-01, Приложение 5.

Оптимальный перечень малых предприятий, рекомендуемых для встраивания в жилые здания, приведен в таблице 1.

3.3. При встраивании малых предприятий в жилые здания следует учитывать местоположение этих зданий. Предложения по предпочтительному размещению встроенных малых предприятий в планировочной структуре селитебных территорий даны в Приложении Б.

В зонах общественных центров, на городских транспортных магистралях и в зонах интенсивных пешеходных потоков в жилых зданиях рекомендуется размещать эксклюзивные магазины (бутики, фирменные магазины сантехники, бытовой техники, мебели и т.п.) и предприятия дорогих эксклюзивных услуг.

В зонах общественных центров районов или крупных жилых комплексов в жилых зданиях рекомендуется предусматривать продовольственные и непродовольственные магазины, рестораны, кафе, бары, ателье одежды, фотоателье, парикмахерские, нотариальные конторы и т.п.

На транспортных магистралях районного значения для обслуживания населения прилегающих районов в жилых зданиях рекомендуется размещать: продовольственные мини-маркеты («удобные магазины»), непродовольственные магазины, кафе, закусочные общего типа, магазины кулинарии, комплексные предприятия бытового обслуживания, парикмахерские, фотоателье, пункты проката, мини-аптеки, юридические консультации, нотариальные конторы и т.п.

Таблица 1. Оптимальные номенклатура и типы предприятий и учреждений малого предпринимательства, рекомендованных к встраиванию в жилые здания массовых серий.

№ п/п

Тип объекта

Оптимальное количество работающих

Примерная площадь, м2

1

Предприятия питания

3-10

20-150

2

Магазины продовольственных товаров

до 10

150-200

3

Магазины специализированных непродовольственных товаров (в том числе бутики)

до 10

300-400

4

Парикмахерские

2-8

10-60

5

Мини-бытовой комплекс

8-10

100

6

Ремонт обуви

1-4

5-50

7

Ателье

5-10

50-100

8

Ремонт часов

1-2

15-50

9

Ремонт металлоизделий

1-2

30-50

10

Пункты проката, обмена детских вещей и т.п.

1-2

50

11

Бюро по ремонту квартир

2-4

20

12

Мини-прачечные (прачечные самообслуживания)

1-2

50

13

Стоматологические кабинеты

2

20

14

Медико-оздоровительные услуги, тренажерные залы, массаж

5-10

50-100

15

Дошкольные учреждения (частные) - детский сад, прогулочная группа.

до 12

50

16

Образовательные учреждения (частные) - мини-лицей, начальная школа, курсы репетиторские, иностранного языка и т.п.

до 20

100

17

Учреждения платных социальных услуг

10

100

18

Досуговые учреждения, клубы по интересам

1-5

50-100

19

Научно-проектно-посреднические и риэлтерские фирмы, нотариальные конторы, юридические консультации

3-15

50-100

20

Мастерские художественные, народных промыслов

5-10

50-100

21

Частные аптеки

1-3

20-50

На жилых улицах или внутриквартальных проездах в жилых зданиях рекомендуется предусматривать предприятия повседневного спроса - магазины, молочные кухни, и т.п., а также мини-лицеи.

На пешеходных улицах и бульварах во внутренних зонах жилой застройки рекомендуется предусматривать помещения для проведения досуга (в первую очередь, для детей, подростков и пенсионеров), различные кружковые комнаты, художественные мастерские, комнаты временного пребывания детей и прогулочные группы, клубы по интересам, центры физкультурно-оздоровительной работы (тренажерные залы, массажные, залы общей физической подготовки) и т.п.

3.4. Размещение малых предприятий по этажам жилых зданий следует принимать в соответствии с обязательным Приложением 5 МГСН 3.01-01.

3.5. Проект встраивания в жилые здания малых предприятий должен быть согласован в установленном порядке.

4. АРХИТЕКТУРНО-ПЛАНИРОВОЧНЫЕ РЕШЕНИЯ ВСТРАИВАЕМЫХ ПОМЕЩЕНИЙ

4.1. Встраиваемые объекты малого предпринимательства могут размещаться: на нижних (первом, втором, цокольном или подвальном) и на верхних (последнем и мансардном) этажах жилого здания (рисунок 4.1). Встраиваемые помещения могут располагаться на одном или двух смежных этажах. При выборе места размещения малого предприятия следует учитывать преимущества и недостатки каждого варианта размещения, приведенные в таблице 2.

Наиболее массовым вариантом является встраивание на первом этаже, в силу того, что в первых этажах располагается наибольшая часть имеющегося фонда нежилых помещений в массовой жилой застройке, а по функционально-планировочным требованиям первый этаж подходит для размещения всех возможных типов встроенных малых предприятий. Другие варианты встраивания пригодны для весьма ограниченного набора типов малых предприятий, и соответствующий им фонд нежилых помещений существенно меньше.

4.2. Малые предприятия допускается встраивать в жилые здания с высотой этажа (между перекрытиями в чистоте) не менее 2,8 м при обеспечении санитарно-гигиенических, инженерно-технических и противопожарных требований как к жилой части дома, так и к встраиваемому объекту.

4.3. Параметры и площади нежилых помещений, которые можно использовать для малых предприятий в жилых зданиях массовых серий, приведены в Приложении В.

Минимальные площади помещений для предпринимательской деятельности, организуемой на площади основных малых предприятий даны в Приложении Г.

Таблица 2. Преимущества и недостатки различных уровней размещения встроенных малых предприятий в структуре жилого здания

Уровень размещения

Преимущества

Недостатки

Верхний этаж

1. Возможность применения планировки зального типа с большепролетным покрытием.

2. Возможность применения верхнего света с заданной ориентацией.

3. Возможность развития вверх за счет строительства дополнительного этажа или мансарды.

4. Возможность создания эксклюзивной планировки малого предприятия с эксплуатируемой крышей.

1. Практическая недоступность для интенсивных потоков посетителей.

2. Установка лифтов для перемещения персонала, посетителей и грузов.

3. Необходимость взаимоувязки планировки малого предприятия и верхних технических помещений и разводок коммуникаций.

Второй этаж

1. Доступность для потоков посетителей небольшой интенсивности.

1. Установка лифтов для перемещения грузов и маломобильных групп посетителей.

Первый этаж

1. Возможность обслуживания массовых потоков посетителей.

2. Возможность функционально обособленной эксплуатации малого предприятия (в том числе с отдельным входом).

3. Перемещение грузов в одном уровне.

4. Возможность раскрытия витринного пространства в глубину для усиления внешней привлекательности предприятия.

5. Возможность установки тяжелого оборудования с передачей нагрузки на грунт (при отсутствии подвала или цокольного этажа).

 

Подвал (цоколь)

1. Доступность для потоков посетителей небольшой интенсивности.

2. Возможность локализации источников шума или вибрации.

3. Возможность установки тяжелого оборудования с передачей нагрузки на грунт.

4. Повышение эффективности использования строительного объема дома.

1. Необходимость выполнения дополнительных противопожарных требований по обеспечению эвакуации и дымоудалению.

2. Сниженная естественная освещенность.

3. Необходимость защиты от грунтовых вод.

4. Необходимость взаимоувязки планировки малого предприятия и нижних технических помещений и разводок коммуникаций.

4.4. Состав и площади помещений малых предприятий, разрешенных для встраивания в жилые здания массовой застройки, определяются заданием на проектирование с учетом функциональных и технологических требований. Для ориентировочных расчетов площади помещений следует принимать по Приложению Д. Указанные в нем площади определены по аналогам учреждений и предприятий по действующим нормативным документам, указанным в разделе 2, и на основе практики эксплуатации объектов малого бизнеса.

4.5. Помещения встраиваемых малых предприятий подразделяются на следующие основные функциональные группы:

- помещения для посетителей (входные помещения, зоны ожидания);

- производственные помещения для основного вида деятельности;

- служебно-бытовые;

- обслуживающие;

- складские, подсобные учреждения.

Основные функциональные группы помещений объектов малого предпринимательства, встраиваемых в жилые здания, приведены в таблице 3.

4.6. Возможные сочетания встроенных в жилые здания объектов малого предпринимательства по условиям функциональной совместимости представлены в таблице 4.

4.7. При проектировании объектов малого предпринимательства, особенно объектов, не связанных с производственными процессами, следует предусматривать свободную универсальную планировку помещений, допускающую быструю смену оборудования и мебели.

4.8. Входы и планировка встроенных малых предприятий, обслуживающих население, должна обеспечивать условия доступности для маломобильных групп населения, в том числе для инвалидов-колясочников в соответствии с действующими нормативными документами - СНиП 35-01-2001, СП 31-102-99 и др.

4.9. С целью обеспечения непосредственной пространственной связи между помещениями малого предприятия предусматривается расширение существующих или устройство дополнительных дверных проемов, а также более широких проемов для проходов во внутренних несущих стенах.

4.10. В случае размещения малых предприятий на двух этажах рекомендуется предусматривать встроенные внутренние лестницы, а при необходимости и лифты.

4.11. В случае размещения малых предприятий на верхнем этаже может предусматриваться устройство над ними:

- фонарей верхнего естественного освещения;

- плоской эксплуатируемой крыши;

мансардного этажа.

В двух последних случаях предусматривается лестничный выход на крышу или мансарду.


Таблица 3. Основные функциональные группы помещений объектов малого предпринимательства, размещаемых в жилых зданиях

Наименование объектов

Функциональные группы помещений

Входн. зона для посетите лей

Производственные помещения

Торговый (обеденный) зал

Учебные помещения

Помещения физкультурно-оздоровительн. назнач.

Помещения общественного питания

Помещения медицинского обслуживания

Служебно-бытовые помещения

Подсобные и складские помещения

Помещения для сна

Помещения для игр

Помещения для музыкальных занятий

Помещения для физических занятий

Помещения для работы сотрудников

Помещения для работы с посетителями

Предприятия питания

+

+

+

-

-

-

-

+

+

-

-

-

-

-

-

Продовольственные магазины (миниаркеты)

-

-

+

-

-

-

-

+

+

-

-

-

-

-

-

Специализированные непродовольственные магазины

-

-

+

-

-

-

-

+

+

-

-

-

-

-

-

Парикмахерские

+

+

-

-

-

-

-

+

+

-

-

-

-

-

-

Мини-бытовой комплекс

+

+

-

-

-

-

-

+

+

-

-

-

-

-

-

Ремонт обуви

+

+

-

-

-

-

-

+

+

-

-

-

-

-

-

Ателье

+

+

-

-

-

-

-

+

+

-

-

-

-

-

-

Ремонт часов

+

+

-

-

-

-

-

+

+

-

-

-

-

-

-

Ремонт металлоизделий

+

+

-

-

-

-

-

+

+

-

-

-

-

-

-

Пункт проката

+

-

-

-

-

-

-

+

+

-

-

-

-

-

-

Бюро по ремонту квартир

+

-

-

-

-

-

-

+

-

-

-

-

-

-

-

Мини-прачечная

+

-

-

-

-

-

-

+

+

-

-

-

-

-

-

Стоматологический кабинет

+

-

-

-

-

-

+

-

+

-

-

-

-

-

-

Медико-оздоровительные услуги

+

-

-

-

+

-

+

+

-

-

-

-

-

-

-

Частный детский сад

+

-

-

-

-

+

+

+

+

+

+

+

+

-

-

Мини-лицей

+

-

-

+

+

+

+

+

-

+

+

-

-

-

-

Учреждения платных социальных услуг

+

-

-

-

-

-

-

+

+

-

+

-

-

-

-

Досуговые учреждения

+

+

-

-

-

-

-

+

-

-

-

-

-

+

-

Научно-проектные организации

+

+

-

-

-

-

-

+

-

-

-

-

-

-

+

Мастерские народных промыслов

+

+

-

-

-

-

-

+

+

-

-

-

-

-

-

Частные аптеки

-

-

+

-

-

-

-

+

-

-

-

-

-

-

-

+ требуются; - не требуются

Таблица 4. Возможные сочетания объектов малого предпринимательства по условиям функциональной совместимости


4.12. С целью лучшей зрительной связи помещений малого предприятия с внешним пространством, а также в рекламных целях может предусматриваться расширение существующих оконных проемов, а также проектирование с учетом функциональных и технологических требований, устройство вместо существующих наружных стен витражных ограждений и витрин.

4.13. Наружные и внутренние двери в помещениях малых предприятий следует предусматривать с учетом возможности провоза тележек и мобильных контейнеров, а также проезда кресел-колясок инвалидов:

- ширина двери должна быть не менее 0,9 м;

- двери следует устраивать, как правило, без порогов, а при необходимости (например, у наружных дверей) устраивать небольшие пандусы с уклоном не более 1:6.

В стесненных условиях пандусы могут быть съемными.

4.14. Помещения встраиваемых малых предприятий должны быть обеспечены отдельными входами, для устройства которых предусматриваются дополнительные дверные проемы и проектируются помещения входной группы:

- пристроенные или встроенные тамбуры,

- пристроенные крыльца с лестницами и пандусами,

- пристроенные террасы (подиумы), охватывающие по фасаду все или большую часть помещений малого предприятия, с лестницами и пандусами.

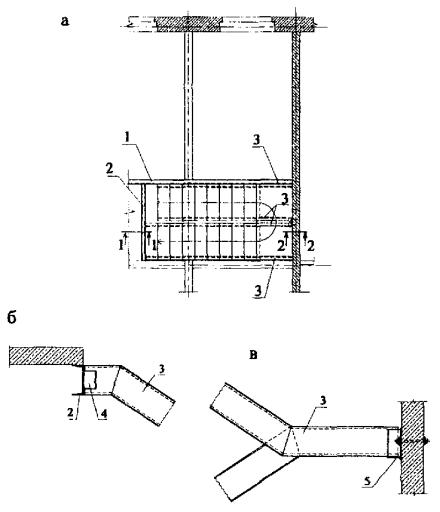
Примеры проектирования входов и помещений входной группы приведены на рисунках 4.2-4.6.

4.15. Встроенные тамбуры могут проектироваться на отметке первого этажа и на пониженном уровне, в том числе «на уровне земли»; при встроенных тамбурах, расположенных на пониженном уровне, внутри здания размещается лестница для подъема на отметку первого этажа.

4.16. Входы встроенных и встроенно-пристроенных малых предприятий следует предусматривать обособлено в жилую часть дома, преимущественно, со стороны магистралей и улиц.

4.17. Загрузку помещений встроенных малых предприятий в жилые здания следует предусматривать согласно требованиям СНиП 2.08.01-89*:

- с торцов зданий, не имеющих окон;

- из подземных туннелей,

- со стороны магистралей или улиц - при наличии специальных загрузочных помещений.

При проектировании в существующих жилых зданиях предприятий торговли, питания, бытового обслуживания, а также аптек и детских учреждений по согласованию с ЦГСНЭН допускается загрузка помещений с любой стороны при наличии козырька или навеса над разгрузочными площадками.

Указанные загрузочные помещения допускается не предусматривать при общей площади малых предприятий, не превышающей 150 м2.

4.18. При организации участка, прилегающего к встроенному (встроенно-пристроенному) малому предприятию следует исключать пересечения путей движения посетителей и машин к этим предприятиям и путей движения проживающих в жилых домах.

4.19. При проектировании малых предприятий в существующих жилых зданиях размещение автостоянок и количество машино-мест следует определять с учетом наличной территории по согласованию с органами санитарного надзора г. Москвы и органами местного самоуправления.

При проектировании (или привязке) новых жилых зданий встраиваемые малые предприятия следует обеспечивать автостоянками с расчетным количеством машино-мест для сотрудников и посетителей с учетом требований МГСН 5.01-94*.

4.20. Встроенные малые детские учреждения и групповые отделения вместимостью не более 4-х групп следует проектировать по МГСН 4.07-96 с уменьшением наполняемости групп до 10-15 детей. При этом залы для музыкальных и гимнастических занятий могут не предусматриваться.

4.21. При встроенных детских учреждениях должны предусматриваться участки территории для прогулок и игр, удаленные от входов, как правило, не далее 50 м.

Общая площадь участка у встроенных детских учреждений составляет 225 м2 на одну группу (при расчетном числе детей в группе не более 10).

При встроенных детских учреждениях (групповых отделениях) вместимостью до 4-х групп, а также при помещениях прогулочных групп допускается в качестве игровой территории предусматривать только игровые площадки, размещаемые на придомовой территории с необходимыми отступами и санитарными разрывами между площадками.

4.22. Для размещаемых в жилых комплексах дежурных групп кратковременного присмотра за детьми допускается устройство вместо участка - открытой террасы. В этом случае вместо хозплощадки допускается устраивать загрузочную площадку со стороны пищеблока и площадку мусоросборников, располагаемых с внешней по отношению к жилому зданию стороне проезда или в другом удобном месте, но не ближе 12 м от стены жилого здания.

4.23. Общедоступные предприятия питания встраиваются в жилые здания при соблюдении санитарно-гигиенических и противопожарных требований, а также требований СНиП 2.08.02-98*, МГСН 3.01-01, МГСН 4.14-98 и других московских городских норм. В жилых зданиях допускается размещать встроенные или встроенно-пристроенные предприятия питания вместимостью не более 50 посадочных мест, с режимом работы до 23 часов и без оркестрового сопровождения. Допускается размещать магазины кулинарии без технологических процессов, торговой площадью не более 150 м2, а также кафетерии в составе предприятий торговли.

4.24. Встроенные предприятия питания повседневного обслуживания вместимостью от 25 до 75 мест (специализированные кафе и закусочные, бары, магазины кулинарии, общедоступные столовые, диетические и раздаточные, в том числе для пенсионеров, инвалидов и благотворительные), а также домовые кухни должны ориентироваться на приближенное обслуживание и размещаться на территории жилых (муниципальных) районов с учетом обслуживания также и работников предприятий и учреждений, расположенных на этих территориях.

4.25. При организации загрузки продуктов через транспортные туннели или подземные стоянки машин загрузочный бокс следует выделять в закрытое помещение.

4.26. Для встроенных предприятий питания рекомендуется предусматривать раздельные входы для персонала и посетителей; допускается вход для персонала устраивать через помещение загрузочной.

4.27. В цокольных и подвальных этажах жилых зданий допускается размещать предприятия бытового обслуживания - приемные пункты прачечных и химчисток, прачечные самообслуживания с объемом производства не более 75 кг в смену, бюро посреднических услуг, ателье проката, многоотраслевые комплексные приемные пункты типа «Мультисервис», парикмахерские и фотографии. Их следует проектировать с учетом МГСН 4.18-99.

Ателье пошива и мастерские ремонта допускается размещать в цокольных этажах с отметкой пола не ниже 0,5 м от уровня земли. При этом необходимо соблюдать противопожарные требования в отношении эвакуационных выходов.

В подвальных этажах допускается размещение разгрузочных, складских и других подсобных, служебно-бытовых и инженерно-технических помещений.

4.28. Во встроенных предприятиях бытового обслуживания при количестве работающих до 10 человек допускается объединение в одном помещении различных функциональных зон - для посетителей, производственных и складских.

4.29. В составе помещений бытового обслуживания следует предусматривать кладовки для отходов.

Входы для персонала в предприятиях бытового обслуживания допускается совмещать со входами для посетителей или загрузкой.

4.30. Из номенклатуры лечебно-профилактических учреждений в жилых зданиях допускается размещать женские консультации, стоматологические поликлиники, кабинеты врачей общей практики (семейных врачей) и другие кабинеты врачебного приема, в том числе кабинеты частно практикующих врачей - при соблюдении п. 4.31 настоящих Рекомендаций, раздаточные пункты молочных кухонь и хозрасчетные (частные) аптеки общего типа.

Допускается размещение рентгено-стоматологических кабинетов стоматологических поликлиник, встроенных в жилые здания, если смежные по вертикали и горизонтали помещения не являются жилыми.

4.31. В жилых зданиях не допускается размещать:

-         рентгеновскую и иную лечебную или диагностическую аппаратуру и установки, являющиеся источником ионизирующего излучения;

-         отделения (кабинеты) магнито-резонансной томографии;

-         зуботехнические, клинико-диагностические и бактериологические лаборатории;

-         стационары, в том числе стационары диспансеров, дневные стационары и стационары частных клиник;

-         диспансеры без стационаров всех типов, травмпункты, подстанции скорой медицинской помощи;

-         дерматовенерологические, психиатрические, инфекционные и физиатрические кабинеты врачебного приема, в том числе кабинеты врачей, занимающихся частной практикой по этим специальностям.

4.32. Размещение физкультурно-оздоровительных учреждений во встроенных и встроенно-пристроенных помещениях допускается только при условии регламентируемого режима функционирования (не ранее 7-00 и не позднее 23-00 часов). Встроенные физкультурно-оздоровительные клубы микрорайонов следует размещать в пределах жилых территорий микрорайонов и кварталов и проектировать по МГСН 4.08-97.

4.33. Во встроенных в жилые здания помещениях для физкультурно-оздоровительных занятий допускается не проектировать душевых; санитарные узлы допускается предусматривать общими для мужчин и женщин.

4.34. Для встроенных физкультурно-оздоровительных учреждений - при соответствующем спортивно-технологическом обосновании и соблюдении требований к кратности обмена и подвижности воздуха в зонах нахождения занимающихся - допускается:

-         уменьшение нормативной высоты залов общефизической подготовки, залов для занятий ритмической и женской оздоровительной гимнастикой, атлетической гимнастикой, борьбой (исключая классическую борьбу и карате), хореографией и помещений тренажерной техники;

-         устройство залов в помещениях с нестандартными габаритами;

-         устройство в помещениях с промежуточными опорами - тренажерных залов, игровых в настольный теннис и залов атлетической гимнастики.

4.35. Устройство бань сухого жара при встроенных в жилые здания физкультурно-оздоровительных (медико-оздоровительных) учреждениях не допускается.

4.36. При рассредоточенном размещении функциональных блоков физкультурно-оздоровительных учреждений (как встроенных в жилые здания, так и пристроенных и встроенно-пристроенных) варианты размещения основных и вспомогательных помещений следует принимать в соответствии с Приложением Е.

4.37. Размещенные в жилых зданиях творческие студии (мастерские), в том числе расположенные в верхних этажах, могут проектироваться с одним эвакуационным выходом, в лестничную клетку жилого здания; сообщение таких мастерских с лестничной клеткой следует предусматривать через тамбур. Инженерно-техническое обеспечение мастерских осуществляется от соответствующих систем жилого здания.

4.38. При проектировании встроенных видеотек и видеосалонов следует руководствоваться МГСН 4.17-98, ПУЭ, а также «Требованиями пожарной безопасности при проектировании и оснащении видеозалов, видеотек и видеокомплексов».

4.39. Встроенные видеотеки включают участок выдачи и приема видеокассет с залом для посетителей, помещение хранения видеокассет и административные помещения. Участок выдачи и приема видеокассет и зал для посетителей следует размещать в одном помещении.

4.40. Помещения хранения видеотек должны обеспечивать защиту видеокассет от воздействия солнечных лучей и магнитных полей.

Из помещения хранения видеокассет, а также зала для посетителей следует предусматривать обособленные эвакуационные выходы.

4.41. Площади кабинетов руководителей фирм, контор, офисов и других организаций малого предпринимательства рекомендуется принимать в зависимости от числа работающих:

при численности работающих  до 5   человек - 12 м2

                                                      до 10 человек - 15 м2

                                                      до 15 человек - 18 м2

При численности сотрудников до 5 человек рабочее место руководителя может размещаться в общем рабочем помещении предприятия.

4.42. Площадь рабочих комнат должна быть не менее 12 м2. В рабочих помещениях офисов каждое рабочее место следует оборудовать телефоном, факсом, компьютером и принтером.

4.43. Встроенные в жилые здания отделения банков допускается размещать на первом и втором этажах при условии обеспечения требуемой звукоизоляции. При этом не допускается использования оборудования, являющегося источником сверхнормативных уровней шума.

4.44. В жилые здания допускается встраивать все помещения банковских учреждений, кроме операционного и кассового залов и бокса для инкассаторских машин, которые могут пристраиваться и иметь высоту от пола до потолка не менее 3,0 м.

4.45. При размещении отделений банков в комплексе с помещениями иного назначения должна быть обеспечена их планировочная изоляция и автономное функционирование.

4.46. Количество входов и выходов из встроенных банковских учреждений должно соответствовать технологическим требованиям МГСН 4.10-97. Входы и выходы должны иметь контрольные шлюзы, постоянно находиться под наблюдением охраны (в том числе с помощью технических средств) и блокироваться при необходимости с поста охраны.

4.47. Вход в помещения встроенных банков, стоянку для автомашин клиентов и подъезд для банковских автомобилей следует размещать со стороны улицы и с торца здания. Не допускается использование для указанных целей придомовой территории жилого здания.

4.48. В составе основных встроенных малых предприятий могут быть размещены помещения для организации других видов деятельности, площадь которых может быть сокращена за счет совместного использования общих помещений для посетителей (Приложение Г).

4.49. При встраивании малого предприятия в жилое здание, как правило, необходима реконструкция (переустройство) объема здания в пределах занимаемого этажа с целью размещения необходимых помещений, их инженерно-технического и технологического обеспечения и организации связей между ними.

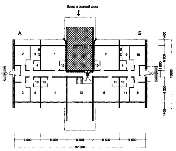
4.50. Примеры планировочных решений малых предприятий, встроенных в первые этажи жилых зданий различных типовых серий приведены на рисунках 4.7-4.18 (в пределах одной жилой секции), 4.19 (в пределах двух жилых секций), 4.20 (в пределах трех жилых секций) и 4.21, 4.22 (в пределах двух жилых секций с пристройкой).

5. КОНСТРУКТИВНЫЕ РЕШЕНИЯ ПРИ ВСТРАИВАНИИ В ЖИЛЫЕ ЗДАНИЯ ПОМЕЩЕНИЙ ДЛЯ МАЛОГО ПРЕДПРИНИМАТЕЛЬСТВА

5.1. Крупнопанельные жилые здания массовых серий, дают основной объем нежилых помещений, которые могут быть использованы для размещения малых предприятий в жилых домах. В проектной документации на крупнопанельные здания ряда серий предусмотрен вариант с первым нежилым этажом, используемым по общественному назначению. При разработке проекта встраивания малых предприятий в такие здания следует преимущественно руководствоваться основными решениями этого варианта.

При отсутствии в составе проектной документации на здание варианта с первым нежилым этажом, производится самостоятельное проектирование переустройства этажа и его инженерно-технического обеспечения.

5.2. При встраивании малых предприятий в бывшие жилые помещения первых и последних этажей, как правило, необходимо предусматривать ряд подготовительных мероприятий, в частности

-         полную или частичную разборку межкомнатных перегородок, встроенных квартирных шкафов и сантехнических кабин;

-         демонтаж сантехнических приборов и проводок к ним, а также переустройство вентиляционных коробов, групповых и распределительных электросетей (без нарушения нормального функционирования жилой части здания);

-         закладку существующих проемов квартирных дверей на лестничную клетку.

5.3. При проектировании встроенных малых предприятий в зависимости от конкретной серии жилого здания и предполагаемого набора помещений могут предусматриваться в различных сочетаниях следующие мероприятия:

-         образование новых дверных проемов и расширение существующих оконных проемов в наружных стенах;

-         образование новых дверных проемов во внутренних стенах;

-         образование проемов в перекрытиях (для размещения вновь возводимых внутренних лестниц, лифтовых шахт или встроенных тамбуров на уровне ниже отметки пола первого этажа);

-         возведение новых внутренних лестниц, лифтовых шахт, встроенных тамбуров и др.;

-         усиление плит перекрытий (при недостаточной их проектной прочности);

-         пристраивание открытых или закрытых крылец или террас с лестницами и пандусами;

-         утепление наружных стен и обновление фасадных поверхностей;

-         установка новых окон, дверей, витражей, витрин;

-         устройство новых полов, перегородок, подвесных потолков;

-         устройство новых инженерно-технических проводок и установка приборов.

5.4. Устройство проемов в наружных и внутренних стенах и перекрытиях следует производить по технологии влажной резки с применением специализированных сверл и резаков с алмазными дисками большого диаметра. Недопустимо применение дисков малого диаметра, не позволяющих сделать рез на всю толщину панели, с последующим выбиванием надрезанного участка. Вырезание проема во внутренних несущих стенах должно производиться после полного закрепления на панели и омоноличивания подкрепляющих рам.

Для производства работ по вырезке проемов в стенах и перекрытиях следует привлекать специализированные организации, имеющие соответствующий сертификат.

5.5. Конструктивные решения при устройстве дверных проемов в наружных стенах следует принимать с учетом характера последних несущих, самонесущих или навесных. При навесных стеновых панелях проемы для входов могут быть образованы путем:

-         вырезки подоконной части панели,

-         вырезки подоконной части и расширения проема,

-         вырезки проема необходимого размера в глухой панели или глухой части двухмодульной панели,

-         полного демонтажа наружной стеновой панели (рисунок 5.1).

При самонесущих стеновых панелях проемы рекомендуется устраивать только путем вырезки подоконной части, а при несущих - этот прием может быть применен в сочетании с усилением, простенков панели стальными обоймами (рисунок 5.2).

5.6. Вырезку участков в наружных стеновых панелях следует проектировать с учетом их конструктивных особенностей - сплошных или трехслойных со средним слоем эффективного утеплителя. В последнем случае положение линий реза должно учитывать расположение диафрагм между наружными слоями, таким образом, чтобы проектируемый проем располагался в чистоте между диафрагмами (рисунок 5.3).

5.7. При проектировании дополнительных дверных проемов во внутренних несущих стенах принимаются конструктивные меры по укреплению ослабленной проемом панели. Такое укрепление рекомендуется осуществлять в виде парных сварных рам из прокатных профилей, стягиваемых болтами, пропущенными через просверленные в стеновой панели отверстия (рисунок 5.4), обеспечивая равнопрочность сечения на поперечную силу и изгибающий момент.

В каждой глухой стеновой панели следует предусматривать не более одного вновь образуемого проема; в панелях с дверным проемом проектировать дополнительные проемы не рекомендуется, допустимо лишь расширение существующего.

5.8. Учитывая высокий уровень напряжений в несущих стеновых панелях первого этажа, вопрос о возможности образования в них дополнительных проемов и технические решения по компенсации ослаблений должны согласовываться с проектной организацией-разработчиком проекта данного жилого здания и институтом МосЖилНИИпроект.

5.9. При устройстве встроенных тамбуров на отметке ниже уровня первого этажа производится вырезка части существующего перекрытия над техподпольем с целью возведения его на более низкой отметке. При этом в крупнопанельных зданиях с поперечными несущими стенами необходимо учитывать, что опорные участки плит перекрытия, как правило, защемлены между верхней и нижней стеновыми панелями, и через них передаются вертикальные усилия в стене. В связи с этим опорные участки плит перед производством работ по вырезке следует снизу подкреплять. Пример конструктивного решения такого подкрепления с помощью стального профиля, прикрепленного к стеновой панели техподполья на болтах, приведен на рисунке 5.5.

В связи с тем, что встроенный тамбур на пониженной отметке вносит ослабление в диск перекрытия над техподпольем, и пределах каждой секции жилого здания рекомендуется предусматривать не более одного такого тамбура.

5.10. При устройстве внутренних лестниц или лифта между помещениями малых предприятий, расположенных на разных этажах, в перекрытиях выполняются проемы необходимого размера. При проектировании таких проемов балочные конструкции, поддерживающие прилегающие участки плит, рекомендуется выполнять из прокатных профилей с опиранием на несущие стены. Пример решения узла опирания поддерживающей балки через опорный столик, закрепляемый на стеновой панели с помощью болта, приведен на рисунке 5.6.

5.11. Внутренние лестницы в помещениях малых предприятий рекомендуется проектировать на стальных косоурах с опиранием последних на балки, подведенные под перекрытие по краям проема, и несущие стены (рисунок 5.7). Уклон таких лестниц следует принимать не более 1:1,5 и ширину - не менее 1,05 м.

5.12. При устройстве лифтов между помещениями малых предприятий, расположенных на двух этажах, лифтовую шахту следует проектировать опирающейся на собственный отдельно стоящий фундамент, а конструкции шахты отделять от перекрытий и других несущих конструкций здания деформационными швами с упругими прокладками, поглощающими вибрации и шум. Шахты лифтов рекомендуется выполнять из легких металлических конструкций.

5.13. Размещение малых предприятий, функционирование которых может создавать на перекрытие нагрузку более 2,0 кПа (200 кг2), нормируемой СНиП 2.01.07-85 для жилых помещений, должно производиться с учетом несущей способности перекрытия, предусмотренной проектом жилого дома. В случае, если последняя недостаточна, размещение таких малых предприятий (обеденные залы, кафе, торговые и экспозиционные залы, архивы и др.) возможно лишь при проведении конструктивных мероприятий по усилению перекрытия.

Плиты перекрытия усиливают подведением поддерживающих балок, уменьшающих расчетный пролет плит, или шпренгельных конструкций, усиливающих их расчетные сечения. Примеры технических решений усиления плит перекрытия приведены на рисунке 5.8.

5.14. Пристраиваемые крыльца, тамбуры, террасные блоки и ризалиты следует проектировать отделенными от здания осадочным швом, с опиранием на собственные фундаменты, без передачи какой-либо нагрузки на стеновые панели здания. К последним допустимо крепление только деталей заделки осадочных швов и примыканий кровли компенсаторов, фартуков и т.п. Фундаменты пристроек, выполняемых в массивных конструкциях, рекомендуется закладывать на отметке ненарушенного фунта. С целью уменьшения величины просадки пристройки величину расчетного сопротивления грунта под ней рекомендуется принимать на 40 % ниже значения, нормируемого СНиП 2.02.01 83* для данных грунтов.

В случае, если пристраиваемые крыльца, тамбуры и террасные блоки в силу местных условий возводятся на нарушенных грунтах, следует предусматривать конструктивные связи, препятствующие горизонтальной сдвижке пристройки при развитии деформаций основания. Такие связи должны присоединяться к несущим конструкциям здания и пристройки (рисунок 5.9).

5.15. Пристройки небольшой глубины (тамбуры, террасные блоки и др.) рекомендуется проектировать преимущественно в легких металлических конструкциях с монолитными железобетонными перекрытиями. Несущие конструкции пристраиваемой части должны иметь предел огнестойкости не менее 0,75 часа и нулевой предел распространения огня.

5.16. Уровень кровли пристраиваемой части должен быть не выше отметки пола вышерасположенных жилых помещений здания. В качестве теплоизоляции в покрытии пристраиваемого блока следует применять негорючие утеплители - минераловатные плиты на синтетическом связующем (ГОСТ 9573-96) или керамзитовый гравий.

Кровельное покрытие пристраиваемого блока должно иметь защитный слой, предохраняющий от сильного нагревания кровли и поступления избыточного тепла в расположенные выше жилые помещения. Защитный слой может выполняться из следующих материалов:

-         оцинкованной кровельной стали или профлиста;

-         неоцинкованной листовой стали, окрашиваемой в два слоя лакокрасочными покрытиями группы Iа по СНиП 2.03.11-85 светлого тона с добавлением 15 % алюминиевой пудры;

-         листов окрашенного в светлые тона асбестоцемента;

-         погодостойкой керамической или стеклянной плиткой светлых тонов.

5.17. Полы следует проектировать в соответствии со СНиП 2.03.13-88. Выбор конструкций полов во встроенных помещениях следует осуществлять как с учетом обычных функциональных требований, так и с учетом возможности использования последних малыми предприятиями различного типа, возможной частой смены арендаторов и в связи с этим необходимости перестановки перегородок и оборудования. В соответствии с этим к конструкции полов следует предъявлять требования высокой прочности, устойчивости к ударным нагрузкам, стойкости к истиранию, беспыльности, ремонтопригодности, негорючести, достаточной декоративности и удобства влажной уборки.

5.18. Принятая конструкция полов для всех помещений за исключением санузлов должна соответствовать умеренной интенсивности механических воздействий и малой интенсивности воздействия жидкостей.

В соответствии с перечисленными требованиями для указанных помещений рекомендуются сплошные (бесшовные) наливные полы на основе бетона, в том числе магнезиального, и полимеров.

В сантехнических помещениях рекомендуются покрытия из штучных материалов - керамической плитки по быстротвердеющей мастике на водостойких вяжущих.

5.19. В помещениях малых предприятий, допускается устройство сборных съемных полов («фальш-полов») с подпольным пространством, используемым для прокладки инженерных коммуникаций, при обеспечении высоты помещений не менее 2,5 м.

5.20. Конструкция пола в пристраиваемых отапливаемых помещениях тамбурах, террасных блоках и т.п. должна включать теплоизоляционный слой. В качестве теплоизоляционных материалов рекомендуется применять керамзитовый гравий, минераловатные плиты на синтетическом связующем - жесткие по ГОСТ 9573-96 или повышенной жесткости по ГОСТ 22950-95, а также плиты из пенопласта полистирольного марки 50 по ГОСТ 15588-86 или на основе резольных фенолоформальдегидных смол по ГОСТ 20916-87.

5.21. В помещениях малых предприятий, имеющих высоту от пола до потолка, не превышающую 2,8 м, подвесные потолки устраивать не рекомендуется. Допускается устройство на потолках звукопоглощающей облицовки по СНиП II-12-77 суммарной толщиной до 70 мм.

В помещениях зданий, первый этаж которых запроектирован специально для размещения общественных учреждений, подвесные потолки могут предусматриваться с целью скрытия выступающих частей перекрытия, верхней прокладки электропроводок, размещения осветительных приборов и защиты от шума.

5.22. Перегородки в помещениях малых предприятий с нормальным режимом влажности рекомендуется проектировать сборно-разборными, трансформируемыми, из легких материалов, стекла и пластика. Следует отдавать предпочтение перегородкам, высота которых меньше высоты помещения. Стационарные перегородки в помещениях с таким режимом влажности устраивать не рекомендуется.

Перегородки, ограждающие санузлы и другие помещения с высокой влажностью воздуха, рекомендуется проектировать каркасными из тонколистовых холодногнутых оцинкованных профилей с обшивками из водостойких гипсокартонных или гипсоволокнистых листов, а также сплошными - из пустотелого кирпича, керамических или легкобетонных блоков и т.п. Для гидроизоляции таких перегородок следует использовать высокоэластичные полимерные мастики.

5.23. Если наружные стены здания не отвечают современным нормативным требованиям по сопротивлению теплопередаче - МГСН 2.01-99 - проектирование встроенных помещений должно включать модернизацию стен с применением дополнительных слоев теплоизоляции, особенно эффективной в сочетании с воздушной прослойкой и отражательной теплоизоляцией. Примеры утепления стен жилых зданий приведены в альбоме «Технические решения утепления наружных ограждений домов первых массовых серий».

Обновление фасадных поверхностей части жилого здания, занимаемой малым предприятием, может производиться путем окраски, оштукатуривания или облицовки различными материалами.

5.24. Окна и двери в малых предприятиях, рекомендуется предусматривать из алюминиевых сплавов или пластика, со стеклопакетами с сопротивлением теплопередаче по МГСН 2.01-99.

5.25. Конструкции витражей и витрин на фасадах малых предприятий целесообразно предусматривать следующих типов (рисунок 5.10):

-         плоский или объемный витраж на месте демонтированной панели наружной стены;

-         отдельные объемные блоки, укрепляемые на стеновых панелях;

-         единая объемная конструкция на ширину нескольких окон, также укрепляемая на стеновых панелях.

Витрины и витражи рекомендуется проектировать из алюминиевых сплавов или пластика. Объемные конструкции витрин проектируются с применением в качестве конструктивной основы легкого стального каркаса.

5.26. С целью повышения функциональной пригодности первых этажей для встраивания малых предприятий и расширения номенклатуры последних, рекомендуется для жилых зданий типовых серий, действующих в настоящее время и предназначенных для массового строительства на ближайшие годы, разработать варианты с первым нежилым этажом при:

-         увеличенной до 3,3 м (от пола до пола) высоте первого этажа;

-         внутренних несущих стенах - в пределах этого этажа - в виде панелей-рам, позволяющих объединить нежилые помещения в единое свободно планируемое пространство;

-         наружных стеновых панелях первого этажа увеличенной высоты, в том числе с дверьми, окнами-витринами увеличенного размера и тиражами;

-         встроенных тамбурах при входах «на уровне земли» для облегчения доступа маломобильным группам населения;

-         увеличенной до 6,0 кПа (600 кг2) нормативной нагрузке на перекрытие первого этажа.

Все дополнительные изделия по таким вариантам должны быть полностью совместимы с конструкциями действующей серии.

5.27. При разработке новых типовых серий многоэтажных жилых зданий рекомендуется сразу предусматривать варианты с первым нежилым этажом в каркасных конструкциях увеличенной высоты.

6. САНИТАРНО-ГИГИЕНИЧЕСКИЕ И ЭКОЛОГИЧЕСКИЕ ТРЕБОВАНИЯ

6.1. Деятельность малых предприятий, встроенных в жилые здания не должна ухудшать санитарно-гигиенические и экологические условия проживания жильцов. В соответствии с профилем деятельности малых предприятий они должны отвечать санитарно-гигиеническим требованиям, изложенным в СанПин 2.2.4.548-96, СанПин 42.123.577-91, СИ 2.2.4/2.1.8.561-96 и СН 2.2.4/2.1.8.562-96.

6.2. В помещениях малых предприятий, в которых предполагается деятельность, связанная с интенсивной зрительной работой, - чтение, письмо, работа на компьютере, шитье, вышивание, ремонт мелких изделий и т.п. следует предусматривать естественное освещение, а при необходимости, совмещенное с искусственным в соответствии с МГСН 2.06-99.

В качестве источников искусственного освещения следует преимущественно использовать газоразрядные источники света со спектральным составом, близким к спектру естественного света.

6.3. В помещениях с рабочими местами без естественного света дополнительно к источникам искусственного освещения для компенсации ультрафиолетовой недостаточности рекомендуется использовать УФ-облучательные установки длительного действия, совмещенные с осветительными установками.

6.4. Для отделки помещений следует использовать материалы, имеющие гигиенические сертификаты.

Рекомендуется применение отделочных материалов с высоким коэффициентом отражения света, легко поддающихся пневматической и влажной очистке и не аккумулирующие грязь и пыль.

Для горизонтальных поверхностей лестниц, площадок крылец и пандусов рекомендуется применять материалы, имеющие фактуру, исключающую скольжение в зимнее время и при намокании.

6.5. Звукоизоляция и виброизоляция перекрытий и стен помещений, занимаемых малыми предприятиями, должны соответствовать требованиям МГСН 2.04-97, СН 2.2.4/2.1.8.561-96, СН 2.2.4/2.1.8.562-96 и обеспечивать нормируемые акустические показатели как в помещениях малых предприятий с постоянным пребыванием людей, так и в помещениях жилой части здания.

В малых предприятиях с повышенным уровнем шума рекомендуется звукопоглощающая обшивка или облицовка потолков и стен.

6.6. При использовании для перевозки материалов и изделий тележек и контейнеров, в конструкции полов должен быть предусмотрен звукоизоляционный слой.

Устанавливаемые во встроенных малых предприятиях, например, в мастерских по ремонту обуви, металлоизделий и т.п., машины и механизмы, при работе которых возникают вибрации или ударные шумы, следует устанавливать на упругие подкладки из вибро-поглощающих резиноподобных материалов.

6.7. При проектировании элементов конструкций - перегородок, подшивных потолков, вентиляционных каналов или шахт для пропуска инженерных коммуникаций, утепления наружных стен и полов над подвалом, и т.п., а также их отделки, - следует обеспечивать защиту помещений от проникновения паразитирующих животных и насекомых.

6.8. При выборе конструкций и отделки следует отдавать предпочтение таким решениям, которые позволяют легко осуществлять санитарную обработку.

Стены и перегородки в помещениях с влажным режимом должны иметь влагостойкую отделку на высоту не менее 1,6 м, а в охлаждаемых камерах - на всю высоту помещения.

6.9. Сбор и удаление твердых бытовых отходов и отходов от функционирования встроенных малых предприятий должны быть организованы в соответствии с правилами эксплуатации жилищного фонда, принятыми местными органами власти.

Бытовые, пищевые и производственные отходы деятельности малых предприятий целесообразно собирать в специальные емкости - пластиковые мешки или закрывающиеся бачки (контейнеры) и хранить до наполнения в специально отведенном для этого помещении. Такие помещения должны быть защищены от проникновения в них тараканов, мышей и крыс, и иметь отделку, допускающую влажную уборку и дезинфекцию.

6.10. Организация подходов и подъездов к встроенным и встроенно-пристроенным малым предприятиям, расположение автостоянок, прогулочных площадок и открытых мест отдыха сотрудников, не должны ухудшать экологическую обстановку у жилого здания - вытаптывание газонов, замусоривание палисадников или детских площадок, загазованность, интенсивный, проезд автомашин вблизи детских игровых площадок и мест отдыха жильцов и т.п.

На прилегающей к встроенным малым предприятиям участкам дворовой территории следует предусматривать благоустройство, включающее озеленение, мощение дорожек и площадок, установку осветительных фонарей, урн для мусора, скамеек и других малых архитектурных форм.

6.11. Площадка для используемых малым предприятием контейнеров с мусором должна иметь твердое покрытие.

Жидкие и твердые отходы малых предприятий должны удаляться без загрязнения территории и водоносных горизонтов.

7. ТРЕБОВАНИЯ ПОЖАРНОЙ БЕЗОПАСНОСТИ

7.1. Планировочные и инженерные решения, пожарная безопасность конструкций и элементов зданий, а также применяемые материалы должны соответствовать требованиям СНиП 21-01-97* и других документов по пожарной безопасности и обеспечивать надежную эвакуацию людей при пожаре.

7.2. Встроенные в жилые здания малые предприятия и учреждения должны быть отделены от жилой части здания противопожарными стенами и перекрытиями 2-го типа.

Проходящие через помещения малых предприятий стояки водопровода, отопления или канализации, выполненные из пластиковых труб, следует ограждать противопожарными перегородками.

7.3. Помещения видеосалонов, встроенных в жилые здания, следует отделять от основного здания противопожарными перекрытиями 3-го типа. Встроенные видеотеки и видеосалоны должны иметь помещения хранения видеокассет, отделенные от других помещений предприятия противопожарными перегородками 1-го типа. Помещения выдачи и приема видеокассет и помещения их хранения по взрывопожарной опасности приравниваются к категории В2 по НПБ 105-95. Двери помещения хранения видеокассет должны быть противопожарными с пределом огнестойкости не менее 0,5 часа.

7.4. Каждое малое предприятие (учреждение), расположенное в пределах одной секции жилого здания, должно иметь отдельный эвакуационный выход. Если предприятие или учреждение расположено в пределах двух секций, оно должно иметь не менее двух эвакуационных выходов из разных секций. Также не менее двух эвакуационных выходов, независимо от занимаемой площади, должны иметь учреждения, специализирующиеся на работе с детьми, пожилыми людьми и инвалидами, а также видеосалоны вместимостью более 20 мест. В видеозалах вместимостью до 20 мест допускается один эвакуационный выход, который одновременно является и входом в видеозал.

7.5. Допускается устройство одного эвакуационного выхода из помещений малого предприятия при общей площади не более 300 м2: с первого и цокольного этажа при числе работающих не более 15 человек и со второго этажа при расчетном числе одновременно находящихся людей на этаже не более 15.

7.6. Ширина эвакуационных выходов из встроенных в жилые здания предприятий и учреждений должна быть не менее 0,9 м, а для предприятий, специализирующихся на работе с детьми, пожилыми людьми и инвалидами - не менее 1,2 м.

При устройстве отдельной лестницы из помещения на первом этаже в техническое подполье ширина ее должна быть не менее 0,7 м и уклон не более 1:1.

Эвакуационные выходы из отдельных малых предприятий могут вести наружу непосредственно, а также через общий для нескольких предприятий вестибюль или коридор.

Ширину и геометрию эвакуационных путей рекомендуется назначать, исходя из отнесения всех помещений первого нежилого этажа, занимаемого малыми предприятиями, к классу Ф1 функциональной пожарной опасности по СНиП 21-01-97*.

7.7. Для отделки стен и потолков в вестибюлях (фойе), холлах и общих коридорах, через которые пролегают пути эвакуации, в соответствии со СНиП 21-01-97* могут применяться материалы:

-         умеренногорючие (Г2),

-         умеренновоспламеняемые (В2),

-         с умеренной дымообразующей способностью (Д2),

-         умеренноопасные по токсичности продуктов горения 2).

Для покрытий полов могут применяться материалы:

-         нормальногорючие (Г3),

-         умереннораспространяющие (РП3),

-         с высокой дымообразующей способностью (Д3) и

-         умеренноопасные по токсичности продуктов горения (Т2).

7.8. Минимальный расход воды для нужд пожаротушения в помещениях, занимаемых малыми предприятиями, в соответствии с СНиП 2.04.01-85 можно принимать равным 2,5 л/с при одной струе. В связи с этим для нужд пожаротушения указанных помещений может быть использована система внутреннего противопожарного водопровода здания.

Ответвление противопожарного водопровода для помещений малых предприятий в каждой секции могут подключаться к противопожарным стоякам жилого здания в техподполье. Пожарные краны следует размещать таким образом, чтобы обеспечить пожаротушение в любой части помещений по возможности наиболее коротким шлангом. На одном ответвлении от пожарного стояка здания допускается установка двух пожарных кранов.

Преимущественные места размещения пожарных кранов - у входов, в вестибюлях и других наиболее доступных местах.

7.9. Пожарные краны следует размещать в пожарных шкафах на стене в соответствии с СНиП 2.04.01-85. В пожарных шкафах следует предусматривать возможность размещения двух ручных огнетушителей.

7.10. Во всех или части помещений, занимаемых малыми предприятиями, может быть смонтирована система автоматического пожаротушения; при этом должна быть достаточная пропускная способность водопровода для обеспечения одновременной работы пожарных кранов и спринклерных установок. Тип установки пожаротушения ее вид и выбор огнетушащих средств определяется технологическими требованиями в соответствии со СНиП 2.04.09-94.

Установка систем автоматического пожаротушения обязательна в помещениях, занимаемых банковскими учреждениями (за исключением помещений санузлов и других с мокрым режимом) и помещениях хранения видеокассет видеосалонов и видеотек.

7.11. Проектирование систем оповещения людей о пожаре следует производить по НПБ 104-95 и в соответствии с СНиП 2.04.09-94.

Встроенные в жилые здания помещения банковских учреждений оборудуются пожарной сигнализацией и автоматическими установками пожаротушения с учетом требований РД 25925-90, РД 78143-92, РД 78147-93, и РД 78145-93.

Автоматическими установками оповещения людей о пожаре в соответствии с НПБ 110-99 следует оборудовать все помещения малых предприятий и учреждений, кроме:

-         помещений с мокрыми процессами (санузлы, душевые, помещений мойки оборудования и т.п.);

-         помещений для инженерного оборудования (насосных, венткамер и т.п.);

-         помещений, оборудованных автоматическим пожаротушением.

7.12. Оповещение людей о пожаре должно осуществляться:

-         подачей звуковых и (или) световых сигналов во все помещения малого предприятия с постоянным или временным пребыванием людей;

-         трансляцией речевой информации о необходимости эвакуации, путях эвакуации и других действиях, направленных на обеспечение безопасности.

Сигналы оповещения должны отличаться от сигналов другого назначения.

7.13. Противодымная защита помещений встроенных малых предприятий должна выполняться в соответствии с СНиП 2.04.09-94.

Помещения хранения видеокассет встроенных видеосалонов и видеотек следует оборудовать устройствами удаления газов после пожара в соответствии со СНиП 2.04.05-91*.

7.14. Стальные конструкции, применяемые для компенсации ослаблений стеновых дополнительными проемами, а также конструкции, подкрепляющие плиты перекрытия, должны иметь защитное покрытие в виде штукатурки по сетке толщиной не менее 50 мм.

7.15. Предел огнестойкости пристроенных крылец, террас и т.п. должен быть не ниже предела огнестойкости жилого здания.

8. ТРЕБОВАНИЯ ПО ЗАЩИТЕ ВСТРОЕННЫХ ОБЪЕКТОВ

8.1. Мероприятия по защите и укреплению охраняемых объектов должны выполняться в соответствии с РД 78147-93. Мероприятия, обеспечивающие охранную безопасность встроенных предприятий и учреждений могут включать устройство:

-         стальных ударопрочных входных дверей с замками повышенной секретности и сопротивляемости взлому;

-         кодовых, в том числе электронных замков;

-         стальных защитно-декоративных решеток на окнах;

-         стальных защитных или защитно-декоративных штор на витринах;

-         электронных систем охранной сигнализации;

-         систем постоянного телевизионного наблюдения за наиболее ответственными участками помещений и входа.

Системы охранной сигнализации следует проектировать в соответствии с РД 78143-92.

8.2. Защитно-декоративные решетки рекомендуется устраивать с внутренней стороны окна с возможностью их открывания; открывающиеся решетки должны запираться не менее, чем двумя замками. Такие открывающиеся изнутри решетки могут использоваться как аварийные выходы при пожаре.

Защитные решетки следует изготовлять из прокатных профилей - квадрата или круга сечением не менее 1,5 см2, с расстоянием между ними не более 150 мм в одном направлении и 300 мм в другом.

8.3. Помещения для хранения ценностей должны быть обустроены согласно ГОСТ Р 50862-96 для обеспечения требуемой устойчивости к взлому.

Кассы, обменные пункты и т.п. должны быть обеспечены дополнительными мерами безопасности в соответствии с ГОСТ Р 50941-96.

8.4. В помещениях, где хранятся материальные ценности, желательно предусматривать дополнительные рубежи защиты, например, ультразвуковые датчики, дающие сигнал тревоги при движении нарушителя и емкостные датчики, устанавливаемые непосредственно на месте хранения ценностей.

Каждый рубеж защиты по своей абонентской телефонной линии следует подключать на самостоятельный номер пульта централизованного наблюдения.

8.5. Требования к строительным конструкциям встроенных банковских учреждений и их дверям, обеспечивающим устойчивость от взлома, а также к окнам и оконным решеткам, обеспечивающим защиту от проникновения в учреждения, следует принимать по ВНП 001-95 и ГОСТ Р 50862-96.

9. ТРЕБОВАНИЯ К ИНЖЕНЕРНО-ТЕХНИЧЕСКИМ РЕШЕНИЯМ

Общие требования

9.1. Встроенные помещения малых предприятий должны быть оборудованы системами хозяйственно-питьевого, горячего и противопожарного водоснабжения, канализации, теплоснабжения, вентиляции, электроснабжения и электроосвещения, телефонной сети и другими системами в соответствии с технологическими требованиями функционирования малых предприятий и разделом 5 МГСН 3.01-01.

Устройства кондиционирования воздуха, системы внутреннего проводного вещания и телевидения, радиовещание и другие виды инженерного обеспечения могут быть предусмотрены дополнительно заданием на проектирование.

9.2. Во встроенных предприятий общественного питания, торговли и бытового обслуживания установка газового оборудования не допускается.

9.3. При разработке инженерных разделов проектов следует предусматривать мероприятия по энергосбережению и обязательной установке приборов регулирования, контроля и учета расхода энергоресурсов в соответствии с МГСН 2.01-99.

9.4. При разработке проектов инженерно-технического обеспечения следует ориентироваться на применение прогрессивных технических решений, конструкций, материалов и методов работ. Разрабатываемые просты должны давать расчетную надежность обеспечения при наибольшей возможной независимости систем, обеспечения жилого здания и встроенных объектов и недопустимости ухудшения условий проживания жильцов.

Разработку проектов инженерно-технического обеспечения рекомендуется вести методом вариантного проектирования с выбором оптимального варианта, характеризующегося наименьшей величиной приведенных затрат.

Водоснабжение

9.5. Водоснабжение встроенных в жилые здания помещений малых предприятий и учреждений должны включать системы хозяйственно-питьевого водопровода холодной и горячей воды и противопожарного водопровода.

Определение расчетных расходов воды в системах водоснабжения и теплоты на нужды горячего водоснабжения рекомендуется производить в соответствии с разделом 3 СНиП 2.04.01-85.

Хозяйственно-питьевой водопровод должен включать ввод в здание, водомерный узел, разводящую сеть, подводки к санитарным приборам и технологическим установкам, а также водоразборную, смесительную, запорную и регулирующую арматуру.

9.6. С целью обеспечения надежности обслуживания ввод в здание, обеспечивающий встроенные малые предприятия, необходимо устраивать отдельным от ввода водопровода, питающего жилую часть здания, с присоединением к наружной водопроводной сети.

При обслуживании малых предприятий, занимающих четыре и более секции жилого здания, рекомендуется предусматривать два таких ввода, присоединенных к разным участкам наружной сети.

9.7. При наличии в жилом здании не более двух блоков помещений, занятых малыми предприятиями, допускается присоединение сети обслуживающих их водопроводов к основным вводам в здание, если расчетное потребление воды в пределах каждого блока не превышает среднего суммарного потребления на соответствующей площади в жилой части здания.

В этом случае присоединение рекомендуется производить в виде ответвления в начале магистральной линии нижней разводки жилого здания. От этого присоединения в техподполье может быть проведена автономная магистральная линия для обслуживания малых предприятий.

9.8. На ответвлениях от магистральной линии нижней разводки для малых предприятий необходимо устанавливать отдельные счетчики потребителей, располагая их в легко доступных помещениях, имеющих освещение и температуру воздуха не ниже 5 °С, с вентилями на входе и выходе и спускным краном для возможности опорожнения и ремонта сети, обслуживающей малые предприятия.

9.9. Прокладку разводящей сети водопровода холодной и горячей воды внутри помещений, занимаемых малыми предприятиями, и установку арматуры следует осуществлять согласно соответствующим разделам СНиП 2.04.01-85.

Прокладка разводящих сетей может осуществляться путем заделки их в цементную стяжку пола или скрытой проводкой в приставных коробах у стен или в бороздах, заделанных штукатуркой.

9.10. Проходящие через помещения малых предприятий, открытые стояки водопровода холодной и горячей воды, снабжающие жилую часть здания, следует оградить стальным каркасом, оштукатуренном по сетке; при этом стояки горячего водоснабжения следует термоизолировать.

Канализация

9.11. Канализация помещений, занимаемых встроенными малыми предприятиями, может включать бытовую канализацию для отведения сточных вод от санитарно-технических приборов и производственную - для отведения производственных сточных вод.

9.12. Системы канализации встроенных малых предприятий следует, проектировать согласно СНиП 2.04.01-85 и, предусматривать, как правило, отдельными от системы канализации жилого здания.

Для малых предприятий непроизводственного характера, при расчетном расходе сточных вод предприятий, расположенных в пределах жилой секции, не превышающем расчетный расход, собираемый с жилого этажа этой секции, допускается присоединять отводные трубопроводы к ближайшим канализационным стоякам жилого здания. При этом присоединение следует проектировать под потолком технического подполья с помощью косых тройников, а выше присоединения предусматривать ревизию.

9.13. Отводные трубопроводы рекомендуется проектировать из пластмассовых труб. Прокладку отводных трубопроводов от раковин, моек, писсуаров и умывальников в уборных, на кухнях, в лечебных кабинетах, лабораториях и т.п. рекомендуется предусматривать над полом в приставных коробах у стен, с устройством облицовки водостойкими плитками. Прокладку отводных трубопроводов от унитазов рекомендуется проектировать под перекрытием - под потолком технического подполья, открыто, с креплением к перекрытию и панелям стен.

9.14. Открытые канализационные стояки в помещениях встроенных малых предприятий, в том числе не используемые для присоединения отводных трубопроводов от санитарно-технических приборов малых предприятий, а также внутренние водостоки с крыш, должны быть ограждены оштукатуренными коробами. Против ревизий на стояках следует предусматривать люки размером 30×40 см.

Теплоснабжение

9.15. Системы отопления встроенных в жилые здания малых предприятий следует проектировать в соответствии с требованиями СНиП 2.04.05-91*.

9.16. Для отопления встроенных малых предприятий рекомендуется применение водяной системы отопления, используемой в жилой части здания.

Для встроенных малых предприятий допустимо применение комбинированной системы отопления, при которой в дополнение к водяному отоплению, покрывающему основную долю теплопотребления, используются электроотопительные приборы, обеспечивающие остальную долю потребления тепла.

9.17. Подключение системы отопления малых предприятий может производиться в виде ответвления от магистральной линии теплоснабжения здания в контрольно-распределительном пункте или в индивидуальном тепловом пункте жилого здания. На ответвлении должны быть установлены раздельные приборы учета расхода тепла потребителями. Такие приборы могут быть установлены также у потребителей, непосредственно в помещениях малых предприятий.

Вентиляция

9.18. Вентиляцию встроенных в жилые здания малых предприятий следует проектировать в соответствии с требованиями СНиП 2.04.05-91* и выполнять, как правило, автономной от системы вентиляции жилого здания.

При повышенных требованиях к качеству воздуха - его составу, чистоте и температуре, в помещениях малых предприятий может быть рекомендовано применение индивидуальных кондиционеров, устанавливаемых снаружи помещений.

9.19. Допускается проектировать с естественной вытяжной вентиляцией, подсоединенной к вентиляционной системе жилого здания:

а) помещения, размещаемые в пределах одной квартиры - нотариальных контор, юридических консультаций, детских учреждений, контор жилищно-эксплуатационных организаций, банковских учреждений, торговых киосков и др., где отсутствуют пожаровзрывоопасные вещества и вредные выделения не превышают нормируемых значений;

б) предприятия со средним числом постоянно пребывающих в помещениях людей (включая посетителей), не превышающим одного человека на каждые 9 кв. м. занимаемой площади, и с деятельностью непроизводственного характера - парикмахерские, мастерские ремонта часов, пункты проката, стоматологические кабинеты, конторы по ремонту квартир и т.п.

9.20. В помещениях малых предприятий медико-оздоровительного и физкультурно-оздоровительного назначения расчетные показатели температуры, влажности и кратности обмена воздуха в зонах нахождения занимающихся и в вспомогательных помещениях следует принимать в соответствии с пособием к СНиП 2.08.02-89* «Проектирование спортивных залов, помещений для физкультурно-оздоровительных занятий и крытых катков с искусственным льдом».

Электроснабжение, электроосвещение и электротехнические устройства

9.21. Электроснабжение и электроосвещение встроенных малых предприятий должны проектироваться в соответствии с требованиями ПУЭ, СНиП 3.05.06-85, и отраслевыми нормами и рекомендациями.

При проектировании электрических сетей в помещениях следует ориентироваться на применение прогрессивных энергосберегающих решений.

Расчетные электрические нагрузки, схемные и конструктивные решения электрических сетей рекомендуется принимать в соответствии с ВСН 59-88.

9.22. Электроприемники помещений встроенных малых предприятий по степени надежности электроснабжения следует относить к 3 категории.

9.23. Подключение электрических сетей, обеспечивающих электроснабжение встроенных малых предприятий рекомендуется производить в вводно-распределительном устройстве (электрощитовой) жилого здания.

Па каждой подводке к электропотребителю (субабоненту) должен устанавливаться электросчетчик. Электросчетчик должен располагаться в легко доступном помещении с освещением и температурой воздуха не ниже 5 °С.

Рекомендуется предусматривать типы электросчетчиков, позволяющих им работать в составе автоматизированных систем учета электроэнергии.

9.24. При наличии на подводке к малому предприятию собственной электрощитовой, не допускается расположение последней непосредственно под помещениями с мокрыми процессами (кроме кухонь квартир) и под жилыми помещениями.

В электрощитовой следует предусматривать электрическое освещение, вентиляцию и температуру не ниже 5 °С.

Учет электроэнергии в таких помещениях рекомендуется производить раздельно по двум тарифам - дневному и ночному.

9.25. Прокладку питающих линий к помещениям малых предприятий рекомендуется проектировать в техподполье на лотках; прокладку групповых сетей в помещениях малых предприятий - в пластмассовых электротехнических плинтусах.

9.26. В случае применения комбинированной системы отопления (включающей водяную систему как основную и электроотопление как дополнительное) учет электроэнергии также рекомендуется осуществлять двухтарифными счетчиками.

Электрическая сеть питания отопительных приборов должна быть отдельной от общей электрической сети с возможностью отключения ее в вводно-распределительном устройстве вне периода отопления.

Следует предусматривать специальное подключение отопительных приборов к электрической сети, исключающее возможность подсоединения других электроприемников.

9.27. Для встроенных малых предприятий и учреждений может проектироваться и применяться рабочее, аварийное и эвакуационное освещение. При необходимости часть светильников может использоваться как дежурное освещение (витрин, при входах и др.).

9.28. Рабочее освещение в зависимости от особенностей рабочих процессов в помещениях может предусматриваться общим и комбинированным, и проектироваться с использованием преимущественно разрядных источников света.

9.29. Для встроенных учреждений, специализирующихся на работе с детьми, пожилыми людьми и инвалидами, следует предусматривать аварийное освещение, дающее освещенность рабочих поверхностей не менее 5 % рабочей освещенности.

На эвакуационных путях таких учреждений следует предусматривать аварийное освещение, дающее на полу проходов освещенность не менее 0,5 лк.

Для аварийного и эвакуационного освещения могут применяться как разрядные источники света, так и лампы накаливания.

Слаботочные устройства

9.30. В помещениях встроенных малых предприятий могут устанавливаться телефонные и радиотрансляционные аппараты и устройства системы внутренней связи и сигнализации.

9.31. Устройства охранной и противопожарной сигнализации должны подключаться к общей электросети с обеспечением автоматического переключения на автономные электроисточники, действующие независимо.

9.32. Питание электроприемников системы противопожарной защиты и охранной сигнализации следует предусматривать от разных вводов, а при одном вводе двумя линиями от этого ввода.

Питающие линии этих устройств следует подключать после вводно-распределительного устройства с устройством автоматического включения резерва питания.

9.33. Каждый рубеж защиты, оборудованный сигнальной аппаратурой в охраняемых помещениях, должен иметь свою абонентскую телефонную линию, подключаемую на самостоятельный номер пульта центрального наблюдения.

Рис. 4.1 Предпочтительность размещения малых предприятий в многоэтажных жилых зданиях (к п. 4.1).

1 Устройство проема для входных дверей путем вырезки подоконной части панели.

2 Устройство проема для входных дверей путем вырезки подоконной части панели и расширения существующего оконного проема.

3 Устройство проема для витраже, глухого или с дверью путем полного демонтажа панели.

4 Крыльцо открытое

5 Крыльцо открытое с пандусом

6 Крыльцо с покрытием

7 Закрытая терраса (блок внешнего транспорта и внутренних коммуникаций)

8 Встроенный тамбур

Рис. 4.2. Примеры устройства входов в помещения малых предприятий, встраиваемых в 1-й этаж жилой блок-секции П44 п. 4.14).

1 Устройства проема для входных дверей путем вырежи подоконной части панели.

2 Устройство проема для входных дверей путем вырезки подоконной части панели и расширения существующего оконного проема.

3 Устройство проема для витража, глухого или с дверью путем полного демонтажа панели.

4 Крыльцо открытое

5 Крыльцо открытое с пандусом

6 Встроенный тамбур

10 Встроенный тамбур на отметке ниже уровня первого этажа

Рис. 4.3. Примеры устройства входов в помещения малых предприятий, встраиваемых в 1-й этаж жилой секции КТЖС-1,2 (типовой проект КОПЭ) (к п. 4.14).

2 Устройство проема для входных дверей путем вырезки подоконной части панели и расширения существующего оконного проема.

3 Устройство проема для витража, глухого или с дверью путей полного демонтажа панели.

4 Крыльцо открытое

5 Крыльцо открытое с пандусом

8 Встроенный тамбур

11 Витрина навесная

Рис. 4.4. Примеры устройства входов в помещения малых предприятий, встраиваемых в 1-й этаж жилой блок-секции Пд-4 (к п. 4.14).

1 Устройство проема для входных дверей путем вырезки подоконной части панели.

2 Устройство проема для входных дверей путем вырезки подоконной части панели и расширения существующего оконного проема.

3 Устройство проема для витража, глухого или с дверью путем полного демонтажа панели.

6 Крыльцо с покрытием

8 Встроенный тамбур

9 Пристроенный тамбур

Рис. 4.5. Примеры устройства входов в помещения малых предприятий, встраиваемых в 1-й этаж секции Т1-6Ю жилого блок-дома серии П30-1/12г* п. 4.14).

1 Устройство проема для входных дверей путем вырезки подоконной части панели.

3 Устройство проема для витража, глухого или с дверью путем полного демонтажа панели.

5 Крыльцо открытое с пандусом

7 Закрытая терраса (блок внешнего транспорта и внутренних коммуникаций)

Рис. 4.6. Примеры устройства входов в помещения малых предприятий, встраиваемых в 1-й этаж торцевой секции Т1-41Ю жилого блок-дома серии П46-2/12В* (к п. 4.14).

А - группа продленного дня на 15-20 мест (с помощью в приготовлении уроков);

Б - мини-детский сад на 15-20 мест (прогулочные группы).

Экспликация помещений:

1 - класс

2 - групповая

3 - комната персонала

4 - кухня

5 - сан. узел

6 - раздевальная

7 - тамбур

Общая площадь 330 кв. м.

Рис. 4.7. Пример планировочного решения частного детского сада и группы продленного дня в жилой секции П44п. 4.50).

А - мини-кафе;

Б - клуб по интересам.

Экспликация помещений:

1 - малый банкетный зал

2 - бар

3 - комната администрации

4 - подсобное помещение

5 - сан. узел

6 - клубная комната

7 - гардероб

8 - закрытая терраса

9 - открытая (летняя) терраса

10 - тамбур

Общая площадь 330 кв. м.

Рис. 4.8. Пример планировочного решения мини-кафе и клуба по интересам в жилой секции П44 (к п. 4.50).

А - пошивочное ателье;

Б - специализированный магазин одежды.

Экспликация помещений:

1 - пошивочное ателье

2 - торговый зал

3 - комната администрации

4 - прием заказов

5 - сан. узел

6 - вестибюль

7 - тамбур

8 - закрытая терраса

Общая площадь 330 кв. м.

Рис. 4.9. Пример планировочного решения пошивочного ателье и специализированного магазина одежды в жилой секции П44 (к п. 4.50).

А - частная аптека;

Б - стоматологический кабинет.

Экспликация помещений:

1 - торговый зал

2 - кабинет

3 - холл и гардероб

4 - комната персонала

5 - подсобное помещение

6 - склад

Общая площадь 235 кв. м.

4.10. Пример планировочного решения частной аптеки и стоматологического кабинета в жилой секции Пд4 (к п. 4.50).

А - парикмахерская;

Б - предприятие медицинско-оздоровительных услуг.

Экспликация помещений:

1 - косметический кабинет

2 - кабинет маникюра и педикюра

3 - парикмахерская на 3-4 места

4 - сушка волос

5 - гардероб верхней одежды

6 - тренажерный зал

7 - массажный кабинет

8 - раздевальная и душевая

Общая площадь 230 кв. м.

Рис. 4.11. Пример планировочного решения парикмахерской и предприятия медицинско-оздоровительных услуг в жилой секции КТЖС-1, КТЖС-2 (серии КОПЭ) (к п. 4.50).

А - комплекс по ремонту квартир;

Б - комплекс по ремонту бытовых вещей.

Экспликация помещений:

1 - ремонт квартир

2 - специализированный промтоварный магазин «Все для дома»

3 - бюро бытовых услуг

4 - ремонт металлоизделий

5 - ремонт обуви с подсобным помещением

6 - мини-прачечные

7 - кабинет администрации

Общая площадь 250 кв. м.

Рис. 4.12. Пример планировочного решения двух комплексов бытовых услуг в жилой секции П 30 (к п. 4.50).

А - мини-маркеты, «удобные магазины» продовольственных товаров;

Б - специализированные и универсальные промтоварные магазины.

Экспликация помещений:

1 - торговый зал

2 - подсобное помещение

3 - кабинет администрации

4 - холл

Общая площадь 250 кв. м.

Рис. 4.13. Пример планировочного решения двух комплексов магазинов в жилой секции П 30 (к п. 4.50).

А - бюро по ремонту квартир;

Б - мастерская ремонта металлоизделий;

В - учреждение платных социальных услуг на дому.

Экспликация помещений:

1 - комната оформления заказов на ремонт квартир

2 - комната мастера

3 - комната приема заказов

4 - комната приема заказов на услуги

5 - кладовая

6 - комната персонала

Общая площадь 230 кв. м.

Рис. 4.14. Пример планировочного решения комплекса малых предприятий в пределах типовой блок-секции Пд 4 (Пд 4-1/12Н1) (к п. 4.50).

Экспликация помещений:

1 - классное помещение

2 - игральная-спальня

3 - помещение для занятий по иностранному языку

4 - рекреационный зал с тренажерным оборудованием

5 - класс-кабинет

6 - кухня-буфет

7 - комната преподавателей

8 - туалет

Общая площадь 400 кв. м.

Рис. 4.15. Пример планировочного решения начальной школы на 2 класса на первом этаже жилого дома серии 11-68-01/16-83 (к п. 4.50).

Экспликация помещений:

1 - раздевалка

2 - душ

3 - туалет

4 - тренажерный зал

5 - зал ЛФК

6 - кабинет мануальной терапии

7 - кабинет врача

8 - процедурная

9 - гардероб

10 - комната персонала

Общая площадь 400 кв. м.

Рис. 4.16. Пример планировочного решения физкультурного и медико-оздоровительного комплекса на первом этаже жилого дома серии 11-68-01/16-83 (к п. 4.50).

Экспликация помещений:

1 - помещение репетиционных занятий

2 - гардероб

3 - комната преподавателей

4 - офис

5 - комната индивидуальных занятий

Общая площадь 400 кв. м.

Рис. 4.17. Пример планировочного решения репетиционной студии на первом этаже жилого дома серии 11-68-01/16-83 (к п. 4.50).

А - Детский сад на 2 прогулочные группы;

Б - Детский сад на 1 разновозрастную группу.

Экспликация помещений:

Детский сад на 2 прогулочные группы

1 - групповая

2 - раздевальные

3 - кухня

4 - кладовая при кухне

5 - комната персонала

Детский сад на 1 разновозрастную группу

6 - групповая

7 - спальня

8 - раздевальная

9 - кухня

10 - комната персонала

11 - медицинская комната

12 - зал для музыкальных и гимнастических занятий

13 - туалеты

Общая площадь 400 кв. м.

Рис. 4.18. Пример планировочного решения двух детских садов - на 2 прогулочные группы и на 1 разновозрастную группу на первом этаже жилого дома серии 11-68-01/18-83 (к п. 4.50).

Экспликация помещений:

1 - фотостудия;

2 - видеопрокат;

3 - ксерокопировочные и переплетные работы;

4 - компьютерное редактирование и графика;

5 - студия звукозаписи, комната для прослушивания;

6 - гардероб, комната персонала;

7 - реставрация и оформление фотографий;

8 - изготовление визиток;

9 - прием заказов на рекламу;

10 - комната ожидания выполнения заказа;

11 - офис.

Общая площадь 510 кв. м.

Рис. 4.19. Пример планировочного решения мини-бытового комплекса в двух жилых секциях П44 (П44-1/17Н1) (к п. 4.50).



Экспликация помещений:

А

1 - комната персонала;

2 - торговый зал;

3 - склад;

Б

4 - торговый зал;

5 - подсобное помещение;

6 - служебно-бытовое помещение;

В

7 - зал на 12 мест;

8 - производственное помещение;

9 - служебно-бытовое помещение;

Г

10 - торговый зал;

11 - складское помещение;

12 - служебно-бытовое помещение;

Д

13 - зал;

14 - косметический кабинет;

15 - комната посетителей;

16 - служебное помещение;

Е

17 - комната приема заказов;

18 - комната персонала.

Общая площадь - 1000 кв. м.

Рис. 4.20. Пример планировочного решения комплекса предприятий малого бизнеса на первом этаже блок-дома П55-24/12 с двумя рядовыми секциями Р1Н1-552-1БИ и торцевой секцией Т1Н1-554-3А со встроенными нежилыми помещениями.

А - аптека; Б - кулинария; В - бар на 24 места; Г - специальный магазин непродовольственных товаров; Д - парикмахерская; Е - служба платных социальных услуг (к п. 4.50).


Экспликация помещений:

1 - кабинет математики;

2 - кабинет физики;

3 - кабинет химии;

4 - кабинет русского языка;

5 - кабинет иностранного языка;

6 - кабинет информатики;

7 - лаборантские;

8 - комнаты преподавателей;

9 - комнаты индивидуальных занятий;

10 - кабинет директора;

11 - кабинет завуча, историч. кабинет;

12 - санузлы;

13 - гардероб;

14 - хозкладовая;

15 - буфет.

Рис. 4.21. Пример планировочного решения мини-лицея для 9-11 (12) классов на 64 учащихся во встроенно-пристроенных помещениях к двум жилым секциям П44 (П44-1/17Н1) (использование помещений пристроенного промтоварного магазина)п. 4.50).


Экспликация помещений:

1 - кабинет математики;

2 - кабинет физики;

3 - кабинет химии;

4 - кабинет русского языка;

5 - спортзал;

6 - раздевальная, душ;

7 - кабинет информатики и вычислительной техники;

8 - кабинет иностранных языков;

9 - лаборантские;

10 - комната преподавателей;

11 - туалеты;

12 - помещение для индивидуальной работы;

13 - кабинет директора;

14 - кабинет завуча, исторический кабинет;

15 - буфет;

16 - хоз. кладовая;

17 - гардероб;

18 - кладовая спортинвентаря.

Общая площадь 2227 м2.

Рис. 4.22. Пример планировочного решения мини-лицея для 9-11 (12) классов на 64 учащихся во встроенно-пристроенных помещениях к двум жилым секциям П44 (П44-1/17Н1) (использование помещений пристроенного продовольственного магазина) (к п. 4.50).

1 - контур существующего окна; 2 - линии реза.

Рис. 5.1. Схемы образования проема для входных дверей в панелях наружной стены (к п. 5.5).

а - путем вырезка подоконной части; б - вырезкой подоконной части и расширением проема; в - вырезкой проема в глухой панели; г - путем полного демонтажа панели с последующей установкой витража.

1 - уголок 100×100×10; 2 - полоса 100×10; 3 - полоса 60×6; 4 - дюбель-втулка диам. 16 мм.

Рис. 5.2. Схема усиления простенка несущей панели стальной обоймой при вырезании дверного проема (к п. 5.5).

а - вид на фасаде; б - разрез А-А.

1 - диафрагмы между наружными слоями панели; 2 - линии реза.

Рис. 5.3. Схема расположения линий реза при вырезании дверного проема в трехслойной панели наружной стены (к п. 5.6).

1 - панель внутренней несущей стены; 2 - проем; 3 - стальная рама из швеллера 22; 4 - затяжка из полосы сечением 90×10; 5 - болты стяжные М16 с анкерными шайбами 100×100×10; 6 - плиты перекрытия; 7 - обетонировка.

Рис. 5.4. Пример конструктивного решения подкрепления панели внутренней несущей степы при вырезке проема (к п. 5.7).

а - общий вид; б - узел А; в - разрез Б-Б.

1 и 2 - панели внутренних несущих стен; 3 - вырезаемая часть плиты перекрытия; 4 - остающиеся опорные участки плиты перекрытия; 5 - подкрепляющая конструкция из L 100×100×6,5; 6 - стяжные болты М16 с шайбами 65×65×10 через 600 мм.

Рис. 5.5. Пример конструктивного решения при вырезании части плиты перекрытия в крупнопанельном здании (к п. 5.9).

а - общий вид в разрезе; б - узел А; в - вид Б-Б.

1 - панели внутренней несущей стены; 2 - плита перекрытия; 3 и 4 - опорные столики; 5 - стяжные болты М16 с шайбами 60×60×10 мм; 6 - стальная балка из швеллера № 20-24.

Рис. 5.6. Пример конструктивного решения крепления балки для опирания плиты перекрытия (к п. 5.10).

а - общий вид; б - узел А; в - вид опорного столика (3).

1 - продольная поддерживающая балка; 2 - поперечная поддерживающая балка; 3 - косоур; 4 - накладка из уголка 100×100×6,5; 5 - опорный столик.

Рис. 5.7. Примеры конструктивного решения опирания косоуров внутренней лестницы (к п. 5.11).

а - фрагмент плана с внутренней лестницей; б - схема опирания косоура на поддерживающую балку; в - схема опирания косоура на внутреннюю стену.

1 - плита перекрытия, требующая подкрепления; 2 - поддерживающая балка из швеллера № 22, опирающаяся на панели стен через опорные столики; 3 - верхний пояс и стойка шпренгельной системы, из уголка 100×100×6,5; 4 - нижний пояс шпренгельной системы из Ø16 мм.

Рис. 5.8. Примеры конструктивных решений усиления плит перекрытия (к п. 5.13).

а - установка поддерживающей балки; б - монтаж шпренгельных конструкций.

1 - поперечная несущая стена здания; 2 - перекрытие над техподпольем здания; 3 - каркас пристраиваемого блока; 4 - перекрытие пристраиваемого блока; 5 - тяж из Ø16 мм; 6 - пластина 100×100×8 мм, 7 - закладная деталь; 8 - распорная дюбель-втулка Ø20 мм.

Рис. 5.9. Схема устройства конструктивных связей между зданием и пристраиваемым блоком (к п. 5.14).

а - общий вид в разрезе; б - схема конструктивной связи между поперечной несущей стеной здания и стойкой каркаса пристраиваемого блока (узел А); в - схема конструктивной связи между перекрытиями здания в пристраиваемого блока (узел Б).

1 - стеновая панель; 2 - объемный блок витрины.

Рис. 5.10. Схемы конструкций витражей и витрин п. 5.25)

а - витраж на месте демонтированной панели наружной стены; б - отдельные объемные блоки, укрепляемые на стеновых панелях; в - единая объемная конструкция ширины на ширину нескольких окон, г - разрез 1-1.

ПРИЛОЖЕНИЕ А

(справочное)

ТЕРМИНЫ И ОПРЕДЕЛЕНИЯ,

применяемые в тексте

Встроенное предприятие обслуживания - предприятие, все помещения которого располагаются в габаритах жилого дома.

Встроенно-пристроенное предприятие - предприятие, помещения которого располагаются в габаритах жилого дома и в объемах, вынесенных за габариты здания.

Малые предприятия - коммерческие организации, в уставном капитале которых доля участия Российской Федерации, ее субъектов, общественных и религиозных организаций (объединений, благотворительных и иных фондов) не превышает 25 %, среднесписочная численность сотрудников которых устанавливается Федеральным законом РФ от 14 июня 1995 года 88-ФЗ «О государственной поддержке малого предпринимательства в Российской Федерации».

Офис - помещение (или группа помещений), предназначенных для организации предпринимательской деятельности в оказании услуг в посреднической, туристической, информационной сферах, в операциях с недвижимостью (сбор и передача информации).

Предприятие питания - организация, оказывающая услуги общественного питания посредством производства кулинарной продукции, ее реализации и организации питания различных групп населения.

Бар - предприятие питания с ограниченным ассортиментом продукции, реализующее алкогольные и безалкогольные напитки, закуски, десерты, мучные кондитерские и булочные изделия; способ реализации - через барную стойку.

Закусочная - предприятие питания с ограниченным ассортиментом блюд несложного приготовления, предназначенное для быстрого обслуживания посетителей. По ассортименту реализуемой продукции закусочные подразделяются на предприятия общего типа и специализированные: пельменные, блинные, пирожковые и т.п.; по типу реализации - закусочные, бистро, кафетерии и т.п.

Кафе - предприятие по организации питания и отдыха посетителей с ограниченным по сравнению с рестораном ассортиментом продукции. По ассортименту реализуемой продукции подразделяются на: кафе-мороженое, кафе-кондитерская, кафе-молочная и др.

Ресторан - предприятие питания с широким ассортиментом блюд сложного приготовления, включая заказные и фирменные, и повышенным уровнем обслуживания в сочетании с организацией отдыха посетителей. По ассортименту реализуемой продукции подразделяются на рыбные, пивные, с национальной кухней и т.д.

Столовая - общедоступное или обслуживающее определенные контингент предприятие питания, производящее и реализующее кулинарную продукцию. По ассортименту реализуемых блюд столовые под разделяются на общего типа и диетические.

Диетическая столовая специализируется на приготовлении и реализации диетических блюд.

Столовая-раздаточная - предприятие питания, реализующее привозимую готовую кулинарную продукцию.

Предприятие питания комплексное - объединение в едином комплексе различных типов предприятий питания, например, ресторан, кафе, закусочная и магазин кулинарии.

Предприятие питания общедоступное - массовые предприятия питания, доступные для всех групп населения, в отличие от предприятий питания, предназначенных для обслуживания определенных учреждений и предприятий (так называемая закрытая сеть).

Пристроенное предприятие - предприятие, непосредственно примыкающее к жилому зданию.

Продовольственный мини-маркет («удобный магазин») - магазин с узким или ограниченным ассортиментом продовольственных товаров.

Расчетный показатель предприятия питания (мощность)

Вместимость - количество мест в обеденном зале.

Производительность - количество блюд, производимых в смену.

Реконструкция - изменение первоначального вида, габаритов и технических показателей или назначения здания; перепрофилирование, пристройка или надстройка, а также изменение и удаление конструкций и инженерных систем.

Сеть предприятий питания - единоуправляемая группа взаимосвязанных организационно и технологически предприятий питания с необходимыми сопутствующими предприятиями (например, «Русское бистро», «Макдональдс», «Сеть школьных столовых» и т.п.)

Система предприятий питания - совокупность предприятий питания в городе или в рассматриваемом административном округе.

Специализированный непродовольственный магазин, «бутик» - эксклюзивный магазин с уникальным ассортиментом непродовольственных товаров.

Учреждения социальных платных услуг - организации, деятельность которых направлена на обслуживание инвалидов и граждан пожилого возраста в сфере социальных услуг на коммерческой основе.

Этаж подвальный - этаж с отметкой пола помещений ниже планировочной отметки земли более, чем на половину высоты этажа.

Этаж цокольный - этаж с отметкой пола помещений ниже планировочной отметки земли менее, чем на половину высоты этажа.

ПРИЛОЖЕНИЕ Б

(рекомендуемое)

ПРЕДПОЧТИТЕЛЬНОЕ РАЗМЕЩЕНИЕ ЖИЛЫХ ЗДАНИЙ СО ВСТРОЕННЫМИ ПРЕДПРИЯТИЯМИ МАЛОГО ПРЕДПРИНИМАТЕЛЬСТВА В ПЛАНИРОВОЧНОЙ СТРУКТУРЕ СЕЛИТЕБНЫХ ТЕРРИТОРИЙ

Тип встраиваемых объектов

(вид деятельности, предприятие, услуги)

Размещение жилых зданий

Зона общественных центров районов

Зона общественных центров крупных жилых комплексов

Вдоль транспортных магистралей городского значения

Вдоль транспортных магистралей районного значения

Вдоль жилых улиц или внутриквартальных проездов

На пешеходных улицах и бульварах

1

Предприятия питания (мини-кафе, мини-рестораны, закусочные, бары, кафе с кулинарией)

2

Продовольственные магазины (мини-маркеты, «удобные магазины»)

3

Специализированные непродовольственные магазины (бутики)

 

 

4

Парикмахерские

5

Мини-бытовой комплекс (фотоработы, ксерокс, видеопрокат, ювелирный и пр.)

 

6

Ремонт обуви

 

 

 

 

7

Ателье

 

 

8

Ремонт часов

 

 

9

Ремонт металлоизделий

 

 

 

 

10

Прокат, обмен детских вещей

 

 

 

11

Ремонт квартир

 

 

 

12

Мини-прачечные

 

 

 

 

13

Стоматологические кабинеты

 

 

 

14

Медико-оздоровительные услуги (тренажерные залы, массаж и т.п.)

 

 

15

Частный детский сад

 

 

 

 

16

Мини-лицей

 

 

 

17

Учреждение платных социальных услуг

 

 

 

 

18

Досуговые учреждения, клубы по интересам

 

 

 

19

Научно-проектно-торгово-посреднические фирмы и т.п.

 

 

 

 

20

Мастерские художественных народных промыслов

 

 

21

Частные аптеки

 

Условные обозначения:

 - наиболее предпочтительное размещение

 - предпочтительное размещение

 - допускаемое размещение

ПРИЛОЖЕНИЕ В

(справочное)

НЕЖИЛЫЕ ПОМЕЩЕНИЯ, ИСПОЛЬЗУЕМЫЕ ДЛЯ МАЛЫХ ПРЕДПРИЯТИЙ В ТИПОВЫХ ПРОЕКТАХ МАССОВЫХ СЕРИЙ ЖИЛЫХ ЗДАНИЙ

Типовые проекты жилых зданий Планировочные схемы нежилых помещений

Площадь нежилых помещений

Конструктивно-планировочная структура здания, высота этажа

Условия использования нежилых помещений

В.1. Первый этаж жилой

1.1. Прямые блок-секции 10, 14 и 17-этажных домов серии П44-1/10, П44-1/14, П44-1/17, (без сквозных проходов по первому этажу).

Общая площадь 219,6 м2

Поперечные внутренние несущие стены с шагом 3,0 и 3,6 м.

Высота этажа 2,8 м.

В составе секции как нежилые помещения могут использоваться 1-, 2-, и 3-х комнатные квартиры. В составе секции:

4 помещения по 19 м2,

4 помещения по 12 м2,

4 помещения по 8-10 м2,

3 санузла.

Использование 1 этажа для нежилых помещений возможно при дополнительной организации наружных входов для персонала и посетителей предприятий малого бизнеса.

1.2. Прямые блок-секции 10, 14 и 17-этажных домов серии П44-1/10, П44-1/14, П44-1/17, (имеющих сквозной проход).

Типы секций: П-1, П-2, П-2ТШ, П-3, 1ЭП-3ТШ.

Общая площадь 220,0 м2;
сквозной проход разделяет секцию на две части 57,8 и 111,8 м2.

Поперечные внутренние несущие стены с шагом 3,0 и 3,6 м.

Высота этажа 2,8 м.

В составе секции как нежилые помещения могут использоваться 1-, 2-, и 3-х комнатные квартиры. В составе секции:

3 помещения по 18-20 м2,

3 помещения по 12-14 м2,

3 помещения по 8-10 м2,

3 санузла по 2-3 м2.

Необходимы проектные изменения для изоляции нежилой части 1-го этажа от лестнично-лифтового узла и милой части дома.

1.3. Рядовые секции 22-этажных домов серии КОПЭ.

Типы КТЖС-1; КТЖС-2; КТЖС-5; КТЖС-9.

Общая площадь секции 425-475 м2

Поперечные внутренние несущие стены с шагом 3,6 м.

Высота этажа 2,8 м.

В составе секции:

4 помещения по 19-20 м2,

3 помещения по 12-14 м2,

4 помещения по 10 м2,

4 санузла.

В структуре первого этажа жилой секции по 4 жилые квартиры с вариантами набора от 1- до 4-х комнатных.

1.4. Типы КТЖС-13; КТЖС-14; КТЖС-15; КТЖС-16

Общая площадь секции 525-615 м2

В составе секции:

4 помещения по 19-20 м2,

10 помещений по 14-15 м2,

8-12 помещений по 10 м2,

8-12 санузлов.

1.5. Секции 22-этажных домов серии КОПЭ.

Типы КТЖС-3 и КТЖС-5.

Общая площадь 400,0 м2

Рабочая площадь 282,0 м2

Поперечные внутренние несущие стены с шагом 3,6 м.

Высота этажа 2,8 м.

В составе секции:

4 помещения по 18-19 м2,

10 помещений по 10-12 м2,

2 санузла.

Не имеет второго входа в помещения первого этажа.

1.6. 22-этажные дома серии КОПЭ.

Типы КОПЭ-4а; КОПЭ-4.

Общая площадь 355,0 м2

Рабочая площадь 272,0 м2

(Площадь подземной части 358 м2)

Поперечные внутренние несущие стены с шагом 3,6 м.

Высота этажа 2,8 м.

В составе секции:

4 помещения по 18-19 м2,

10 помещений по 14-15 м2,

10 помещений по 10 м2;

10 санузлов.

Второй вход в здание может использоваться как вход для посетителей со стороны, противоположной входу в жилой дом.

1.7. Угловые блок-секции серии П3

Общая площадь 120,0 м2

Рабочая площадь 94,0 м2

Поперечные внутренние несущие стены с шагом 3,0 и 3,6 м.

Высота этажа 2,8 м.

В составе секции:

4 помещения по 19-20 м2,

4 помещения по 8-10 м2,

4 санузла.

Секция не имеет сквозного прохода по первому этажу.

1.8. 17-этажные блок-секции серии П3-2/16*.

Общая площадь 230 м2

Рабочая площадь 180,5 м2

Поперечные внутренние несущие стены с шагом 3,0 и 3,6 м.

Высота этажа 2,8 м.

В составе секции:

8 помещений по 18-19 м2,

12 помещений по 12-14 м2,

8 помещений по 8-10 м2,

8 санузлов.

Имеется сквозной проход, который может быть использован как вход для посетителей в нежилую часть первого этажа.

1.9. 9 и 16-этажные прямые блок-секции серии П3М.

Типы секций: П3М-1-1/9ЭП; П3М-1-1/16ЭП; П3М-2-1/9ЭП; П3М-2-1/16ЭП.

Общая площадь 221,5 м2

Рабочая площадь 137,9 м2

Поперечные внутренние несущие стены с шагом 3,6 м.

Высота этажа 2,8 м.

В составе секции:

3 помещения по 18-19 м2,

5 помещений по 13-14 м2,

3 помещения по 8-10 м2;

3 санузла.

Внутренний проход позволяет предусмотреть вход для посетителей со стороны, противоположной входам в жилой дом.

1.10. Блок-секции домов серии П46

Общая площадь 180,0 м2

Рабочая площадь 147,6 м2

Поперечные внутренние несущие стены с шагом 3,0 и 4,2 м.

Высота этажа 2,8 м.

В составе секции:

2 помещения по 20 м2,

2 помещения по 16 м2,

2 помещения по 12 м2,

4 помещения по 10 м2;

4 санузла.

В секции предусмотрен только один вход - в лестнично-лифтовой узел жилого дома.

1.11. 12-этажный блок-дом серии П46 (прямые секции с двумя дополнительными этажами). Типы секций: П46-2/12В*; П46-3/12*; П46-4/12*; П46-5/12*; П47/12*,

5, 7, 9 и 12-этажные дома серии П46М (прямые секции со сквозными проходами).

Общая площадь 141,9 м2

Рабочая площадь 116,4 м2

Сквозной проход разделяет секцию на части 75,6 и 66,2 м2

Поперечные внутренние несущие стены с шагом 3,0 и 4,2 м.

Высота этажа 2,8 м.

В составе секции:

2 помещения по 20 м2,

3-4 помещения по 12-14 м2,

2 помещения по 8 м2

Сквозной проход обеспечивает возможность организации входа для посетителей со стороны, противоположной входам в жилой дом.

1.12. Блок-секции домов серии П30

Общая площадь 225,0 м2

Рабочая площадь 184,6 м2

Поперечные внутренние несущие стены с шагом 3,0 и 4,2 м.

Высота этажа 2,8 м.

В составе секции:

4 помещения по 14-15 м2,

4 помещения по 10-12 м2,

4 помещения по 8-10 м2,

4 санузла.

В секции предусмотрен только один вход - в лестнично-лифтовой узел жилого дома.

1.13. 12-14 этажные панельно-блочные дома серии 11-68;

Общая площадь 142,9 м2

Рабочая площадь 116,6 м2

Сквозной проход разделяет секцию на части 68,3 и 74,6 м2

Поперечные несущие стены с шагом 6,5 м.

Высота этажа 2,8 м.

В составе секции:

4 помещения по 18-20 м2,

6 помещений по 8-10 м2.

Сквозной проход обеспечивает возможность организации входа для посетителей со стороны, противоположной входам в жилой дом.

1.14. 16-этажные панельно-блочные дома серии 11-68.

Общая площадь 298,7 м2

Рабочая площадь 245,0 м2

Сквозной проход разделяет площадь секции на 2 части по 149,3 м2

Поперечные внутренние несущие стены с шагом 6,5 м.

Высота этажа 2,8 м.

В составе секции:

4 помещения по 18,9 м2,

4 помещения по 14,4 м2,

2 помещения по 10 м2,

8 помещений по 8 м2,

8 санузлов.

Удаление ненесущих перегородок создает дополнительную возможность предусмотреть:

4 помещения по 38 м2

4 помещения по 34 м2.

Сквозной проход обеспечивает возможность организации входа для посетителей со стороны, противоположной входам в жилой дом.

В.2. Первый этаж нежилой без конкретной технологии

2.1. 10 и 17 этажные блок-секции П44.

Типы: 1-1; 1-2; 1-3; 1-1П; 1-2П; 1-2ТШ; 1-3ТШ; 1-2ПТШ; 1-Э1; 1-Э2; 1-Э3; 1Э-; 2П; -2ТШ; 1Э-3ТШ; -2ПТШ; П-1; 1ЭП-2; 1ЭП-3; П-2ТШ; П-3ТШ.

(Вариант со встроенными предприятиями общественного обслуживания).

Общая площадь 256,0 м2

Рабочая площадь 181,0 м2

Поперечные несущие стены с шагом 3,0 и 3,6 м.

Высота этажа 3,3 м.

7 помещений по 18-20 м2,

2 помещения по 8 м2.

1-2 входа для посетителей со встроенным тамбуром со стороны, противоположной входам в жилой дом;

1-2 служебных входа со стороны входа в жилой дом.

2.2. 22-этажные дома серии КОПЭ (по проекту предполагается частичное размещение нежилых помещений для работы с населением):

типы секций КТЖС-1 и КТЖС-2;

Общая площадь 232,0 м2, в т.ч. 90 м2 - площадь нежилых помещений

(Площадь подз. части 267 м2)

Поперечные внутренние несущие стены с шагом 3,6 м.

Высота этажа 2,8 м.

В составе секции:

5 помещений по 18-20 м2,

2 помещения по 13-14 м2,

3 помещения по 8-10 м2,

3 санузла.

По первому этажу предусмотрен сквозной проход. Второй вход может использоваться как вход для посетителей, объединяя обе части первого этажа для размещения в нем нежилых помещений.

типы секций КТЖС-5 и КТЖС-9.

Общая площадь 274,0, в т.ч. 90 м2 нежил. пом.

(Площадь подз. части 349 м2)

5 помещений по 18-20 м2,

5 помещений по 13-14 м2,

3 помещения по 8-10 м2,

3 санузла.

2.3. 22-этажные дома серии КОПЭ.

Типы секций КТЖС-1 и КТЖС-2.

Общая площадь 266,0 м2

(Площадь подвальн. помещения 252,0 м2)

Поперечные несущие стены с шагом 3,6 м.

Высота этажа 2,8 м.

6-7 помещений по 18-19 м2,

1-2 помещения по 13-14 м2

Два входа для посетителей. Подвальное помещение на отметке -4,70 с размещением автостоянки на 14 автомобилей и хозяйственных кладовых.

2.4. 9 и 16-этажные прямые жилые блок-секции серии П3М.

Типы секций П3М-1 и П3М-2.

Общая площадь 256,0 м2

(Площадь подземной части 240 м2)

Поперечные внутренние несущие стены с шагом 3,0 и 3,6 м.

Высота этажа 2,8 м.

В составе секции:

4 помещения по 18-20 м2,

8 помещений по 12-14 м2,

2 помещения по 10 м2.

Ряд помещений объединены между собой по 2-3 широкими проемами.

Предусмотрено по два входа для посетителей со стороны, противоположной входам в жилой дом.

2.5. 9 и 16-этажные поворотные блок-секции серии П3М.

Тип секции П3М-3.

Общая площадь 493,0 м2

(Площадь подземной части 411 м2)

Поперечные несущие стены с шагом 3,0 и 3,6 м.

Высота этажа 2,8 м.

В составе секции:

8 помещения по 18-20 м2,

18 помещений по 14-15 м2

Предусмотрено по два входа для посетителей со стороны, противоположной входам в жилой дом.

2.6. 9 и 16-этажные поворотные блок-секции серии П3М.

Тип секции П3М-4.

Общая площадь 448,0 м2

Рабочая площадь 352,0 м2

(Площадь подземной части 417 м2)

Поперечные внутренние несущие стены с шагом 3,0 и 3,6 м.

Высота этажа 2,8 м.

В составе секции:

12 помещений по 18 -20 м2,

8 помещений по 14-15 м2.

Предусмотрено по 4 входа для посетителей со стороны, противоположной входам в жилой дом.

2.7. 12, 14 и 16-этажные блок-секции серии Пд4. Прямые блок-секции Пд4-1/12Н1, Пд4-1/14Н1 и Пд4-1/16Н1.

Общая площадь 194,0 м2

Рабочая площадь 152,0 м2

Площадь секции разделена лестнично-лифтовым узлом на части 84,0 и 110,0 м2

Поперечные несущие стены с шагом 3,0 и 3,6 м.

Высота этажа 3,3 м.

В составе секции:

3-4 помещения по 18-20 м2,

4-6 помещений по 8-10 м2.

Имеются встроенные вестибюли и возможность устройства входа с любого фасада здания: двух входов для посетителей со стороны, противоположной входам в жилой дом. В торцевых секциях возможна организация дополнительного входа для посетителей на углу здания со стороны входов в жилой дом.

2.8. 12, 14 и 16-этажные блок-секции серии Пд4; угловые блок-секции Пд4-4.

Общая площадь 238,6 м2

Рабочая площадь 187,3 м2

Площадь секции разделена лестнично-лифтовым узлом на части 83,6 и 155,0 м2, (типы 4С) и 89,4 и 154,4 (типы 5С)

Поперечные внутренние несущие стены с шагом 3,0 и 3,6 м.

Высота этажа 3,3 м.

В составе секции:

2-3 помещения по 18-20 м2,

7-8 помещений по 14-15 м2.

Предусмотрена возможность организации 2-3 входов для посетителей с противоположной стороны от входов в жилой дом, и 2-х входов служебных.

2.9. Блок-дома серии П55.

Прямые секции типа: Т1Н1-552-2И; Т1Н1-552-3ЭПИ; Т1-552-3АЭПИ; Т1-552-2БИ.

Общая площадь 229,9 м2

Рабочая площадь 188,6 м2

Сквозной проход делит площадь секции на две части по 114,6 м2

Поперечные несущие стены с шагом 3,0 и 4,2 м.

Высота этажа 2,8 м.

В составе секции:

4 помещения по 20 м2,

6 помещений по 14-16 м2.

Предусмотрена возможность организации двух входов для посетителей со стороны входов в жилой дом и двух - с противоположной стороны от входов в жилой дом.

2.10. Прямые блок-секции серии П55М.

Общая площадь 300,3 м2

Рабочая площадь 246,3 м2

Сквозной проход делит площадь секции на две части по 150,1 м2

Поперечные несущие стены с шагом 3,0 и 4,2 м.

Высота этажа 2,8 м.

В составе секции:

4 помещения по 20-22 м,

4 помещения по 18 м,

2 помещения по 14 м.

Предусмотрены два входа для посетителей со стороны входов в жилой дом и два - с противоположной стороны от входов в жилой дом.

2.11. Угловые блок-секции серии П55М.

Общая площадь 180,3 м2

Лестнично-лифтовой узел разделяет секцию на две части - 97,0 и 85,3 м2

Поперечные несущие стены с шагом 3,0 и 4,2 м.

Высота этажа 2,8 м.

В составе секции:

5 помещений по 18-20 м,

В каждую из двух частей предусматривается вход для посетителей со стороны, противоположной входам в жилой дом.

B.3. Первый этаж нежилой с предприятиями с конкретной технологией

17-этажные жилые секции серии П44.

3.1. Приемные пункты химчистки.

Типы 1-1-1-В5; 1-2-1-В5; 1-3-1-В5.

Общая площадь 256,0 м2

Рабочая площадь 181,0 м2

Поперечные несущие стены с шагом 3,0 и 3,6 м.

Высота этажа 3,3 м.

В составе секции:

7 помещений по 18-19 м2,

3 помещения по 8-10 м2,

Входы для посетителей со встроенными тамбурами и вестибюлями.

Предусмотрен вход для посетителей; служебный вход и загрузочная - со стороны входов в жилой дом.

3.2. Приемные пункты прачечной.

Типы 1-1-1-В5; 1-2-1-В5; 1-3-1-В5.

Общая площадь 256,0 м2

Рабочая площадь 175,0 м2

Поперечные несущие стены с шагом 3,0 и 3,6 м.

Высота этажа 3,3 м.

В составе секции:

6 помещений по 18-19 м,

5 помещений по 8-10 м2,

Входы для посетителей со встроенными тамбурами и вестибюлями.

Предусмотрены два входа для посетителей, два служебных входа (загрузочные) со стороны входов в жилой дом.

3.3. Пункты проката.

Типы: 1-1-1-В5; 1-2-1-В5; 1-3-1-В5.

Общая площадь 256,0 м2

Рабочая площадь 201,0 м2

Поперечные несущие стены с шагом 3,0 и 3,6 м.

Высота этажа 3,3 м.

В составе секции:

6-7 помещений по 18-19 м2,

3 помещения по 10-12 м2,

Входы для посетителей со встроенными тамбурами и вестибюлями.

Один вход для посетителей; служебный вход - со стороны входа в жилой дом.

3.4. Пункты проката.

Типы: 1-1-1-В5Э; 1-2-1-В5Э; 1-3-1-В5Э.

Общая площадь 236,0 м2

Рабочая площадь 181,0 м2

Поперечные несущие стены с шагом 3,0 и 3,6 м.

Высота этажа 3,3 м.

В составе секции:

6-7 помещений по 18-19 м2,

3 помещения по 10-12 м2,

Входы для посетителей со встроенными тамбурами и вестибюлями.

Один вход для посетителей; служебный вход - со стороны входа в жилой дом.

3.5. Приемные пункты объединения «ЗАРЯ» (предприятий бытового обслуживания).

Типы: 1-1-2-В5; 1-2-2-В5; 1-3-2-В5.

Общая площадь 510,0 м2

Рабочая площадь 359,0 м2

Поперечные несущие стены с шагом 3,0 и 3,6 м.

Высота этажа 3,3 м.

9-10 помещений по 17-19 м2;

часть помещений объединена по 2-3 дверными проемами;

9 помещений по 8-10 м2.

Два входа для посетителей со встроенными тамбурами и вестибюлями; два входа - служебные.

Нежилые помещения занимают площадь двух смежных секций. Служебные входы - со стороны подъездов к жилому дому.

3.6. Типы: 1-1-2-В5Э; 1-2-2-В5Э; 1-3-2-В5Э; 1-4-2-В5Э.

Общая площадь 490,0 м2

Рабочая площадь 339,0 м2

3.7. Приемно-раздаточные пункты по обслуживанию инвалидов и пенсионеров-надомников.

Типы 1-1-2-В5; 1-2-2-В5; 1-3-2-В5.

Общая площадь 510,0 м2

Рабочая площадь 373,6 м2

Поперечные несущие стены с шагом 3,0 и 3,6 м.

Высота этажа 3,3 м.

9-10 помещений по 17-19 м2,

часть которых объединены по 2-3 дверными проемами;

11 помещений по 8-10 м2.

Два входа для посетителей со встроенными тамбурами и вестибюлями.

1 вход - служебный;

1 - загрузочный.

Нежилые помещения занимают площадь двух смежных секций. Служебный вход и загрузочная - со стороны подъездов к жилому дому.

3.8. Типы: 1-1-2-В5Э; 1-2-2-В5Э; 1-3-2-В5Э; 1-4-2-В5Э.

Общая площадь 490,0 м2

Рабочая площадь 353,6 м2

3.9. Приемные пункты по ремонту часов и по ремонту электроприборов.

Типы 1-1-2-В5; 1-2-2-В5; 1-3-2-В5.

Площадь разделена на две части:

1) Общая площадь 179 м2;

Рабочая площадь 132 м2;

2) Общая площадь 332 м2;

Рабочая площадь 224,8 м2.

Поперечные несущие стены с шагом 3,0 и 3,6 м.

Высота этажа 3,3 м.

12 помещений по 17-19 м2,

часть которых объединены по 2-3 дверными проемами.

10 помещений по 8-10 м2.

Два входа для посетителей со встроенными тамбурами и вестибюлями; два служебных входа.

Один из служебных входов - со стороны подъездов жилого дома.

3.10. 17-этажные жилые секции П44-1/17Н1 со сквозным проходом.

Магазины-киоски «Мороженое» и приемные пункты участков по ремонту квартир.

Сквозной проход разделяет площадь на 2 части:

1) Общая площадь 64,0 м2

Раб. площ. 44,0 м2

2) Общая площадь 147,0 м 2

Раб. площ. 114,0 м2

Поперечные несущие стены с шагом 3,0 и 3,6 м.

Высота этажа 3,3 м.

1 часть:

1 помещение 19 м2,

1 помещение 10 м2;

1 санузел;

1 вход для посетителей.

2 часть:

4 помещения по 18-19 м2,

1 помещение 12 м2,

1 санузел.

Один вход для посетителей, один вход - служебный.

Входы для посетителей. Служебный вход со стороны входа в жилой дом.

В.4. Встроенно-пристроенные нежилые помещения

17-этажные жилые секции серии П44:

4.1. Промтоварный магазин.

Тип 1-4-2-ВП1-Д1.

Общая площадь 1819,0 м2,

в том числе подземной части - 308 м2

Рабочая площадь 1267,0 м2

Площадь торгового зала - 644 м2.

Поперечные несущие стены встроенной части - с шагом 3,0 и 3,6 м.

Пристроенная часть - каркасная с сеткой колонн 12×12 м.

Высота этажа 3,3 м.

Встроенная часть:

14 помещений по 17-19 м2,

6 помещения по 8-10 м2,

Пристроенная часть - 66×15 м с входом для посетителей и загрузочной на две автомашины.

Загрузочная - с торца пристроенного объема;

Служебный вход - со стороны торца здания.

Тип 1-4-2-ВП1-Д2.

Один из служебных входов - со стороны подъездов к жилому дому.

4.2. Продовольственный магазин

Тип 1-4-2-ВП2-Д1.

Общая площадь 3038,0 м2, в том числе подземной части - 811 м2

Рабочая площадь 1820,0 м2

Площадь торгового зала - 792 м2.

Поперечные несущие стены встроенной части - с шагом 3,0 и 3,6 м.

Пристроенная часть - каркасная с сеткой колонн 12×12 м.

Высота этажа 3,3 м.

Встроенная часть:

13 помещений по 17-19 м2,

5 помещений по 8 -10 м2,

Пристроенная часть - 84×15 м с торговым залом и закусочной.

Вход для посетителей со стороны, противоположной входам в жилой дом.

Загрузочная - с торца пристроенного объема.

Служебные входы - с торцов здания.

Тип 1-4-2-ВП2-Д2.

Пристроенная часть - 30×15 м, с подвалом, служебным входом и 8 холодильными камерами по 16 м2.

ПРИЛОЖЕНИЕ Г

(рекомендуемое)

МИНИМАЛЬНЫЕ ПЛОЩАДИ ПОМЕЩЕНИЙ ДЛЯ ПРЕДПРИНИМАТЕЛЬСКОЙ ДЕЯТЕЛЬНОСТИ, ОРГАНИЗУЕМОЙ НА ПЛОЩАДИ ОСНОВНЫХ МАЛЫХ ПРЕДПРИЯТИЙ

Дополнительные виды услуг

Площадь, м2

Раскрой ткани и пошивка штор

12

Мелкая переделка швейных изделий

8

Растяжка обуви и головных уборов

6

Организация досуга детей

15

Хранение детских колясок

10

*Аудио-видеозаписи, их прослушивание и просмотр

6

*Туристические агентства

6

*Транспортные агентства

6

Организация мест отдыха покупателей

10

Кондитерский цех по изготовлению пищевой продукции с ее реализацией

В зависимости от ассортимента, но не менее 20 м2

*Прием заказов на выполнение ремонтно-строительных работ с использованием товаров, приобретенных в различных отделах магазина

6

емонстрация новых товаров

18

*Демонстрация и продажа сопутствующих товаров

8

*Гравировка изделий

3

*Бюро обслуживания покупателей

7

*Пункт приема заказов на изготовление кино- фотопродукции

3

Выполнение заказов на изготовление кино- и фотопродукции

6

*Ксерокопирование

8

Пункты обмена валюты

6

Примечание: Виды услуг, отмеченные «*», допускаются в изолированных помещениях или на площади торговых залов.

ПРИЛОЖЕНИЕ Д

(рекомендуемое)

ПРИМЕРНЫЙ СОСТАВ И ПЛОЩАДИ ПОМЕЩЕНИЙ ПРЕДПРИЯТИЙ МАЛОГО ПРЕДПРИНИМАТЕЛЬСТВА, РАЗМЕЩАЕМЫХ В ЖИЛЫХ ЗДАНИЯХ

Д.1. Предприятия питания

1.1 Мини-кафе (обслуживание с официантом)

№ п.п.

Группы помещений

Ориентировочная площадь, м2 при количестве мест в зале

20

25

40

1

Площади для посетителей,

40

47

72

в т.ч. зал

28

35

56

2

Производственные помещения

54

58

69

3

Помещения приема и хранения продуктов

15

16

21

4

Служебно-бытовые помещения

25

27

32

 

Расчетная площадь

135

149

250

Общая площадь

175

193

325

1.2 Бары (дневные)

№ п.п.

Группы помещений

Ориентировочная площадь, м2 при количестве мест в зале

10

20

25

40

50

1

Помещения для посетителей,

33

46

54

79

96

в т.ч. зал

18

28

35

56

70

2

Производственные помещения

11

14

22

25

29

3

Помещения приема и хранения продуктов

11

14

22

25

29

4

Служебно-бытовые помещения

7

11

13

19

23

 

Расчетная площадь

69

84

111

148

177

Общая площадь

89

109

144

192

230

1.3 Закусочные

№ п.п.

Группы помещений

Ориентировочная площадь, м2 при количестве мест в зале

20

40

1

Площади для посетителей,

в т.ч. зал

39

32

78

64

2

Производственные помещения

43

53

3

Помещения приема и хранения продуктов

14

19

4

Служебно-бытовые помещения

22

28

 

 

Расчетная площадь

118

179

Общая площадь

153

232

1.4 Мини-рестораны (обслуживание с официантом)

№ п.п

Группы помещений

Ориентировочная площадь, м2 при количестве мест в зале

20

25

40

1

Площади для посетителей,

56

70

113

в т.ч. зал

36

45

72

2

Производственные помещения

50

62

100

3

Помещения приема и хранения продуктов

30

38

60

4

Служебно-бытовые помещения

21

26

36

 

Расчетная площадь

158

196

309

Общая площадь

205

255

401

1.5 Кулинария с кафетерием

№ п.п

Типы предприятий, группы помещений

Площадь, м2

Кулинария

 

1

Торговый зал (на 2 рабочих места)

40

2

Подсобное помещение

16

3

Служебно-бытовые помещения

12

Кафетерий

4

Зал с раздаточной

22

5

Подсобное помещение и моечная

8

 

Расчетная площадь

98

Общая площадь

118

Д.2. Продовольственные мини-маркеты, «Удобные магазины»

№ п.п.

Группы помещений

Ориентировочная площадь, м2 при торговой площади

25

50

75

100

1

Помещения приема, хранения и подготовки товаров к продаже*

16

19

22

26

2

Подсобные помещения**

9

11

13

14

3

Служебно-бытовые помещения***

6

8

10

11

 

Расчетная площадь

56

88

120

151

Общая площадь

73

114

155

196

Примечания:

*) В том числе охлаждаемые камеры.

**) Помещения хранения контейнеров обменного фонда, тары, упаковочных материалов, моющих средств, спецодежды; моечная.

***) Контора; комната для приема пищи; помещение охраны; гардеробная; уборная; душевая.

(Площадь каждого помещения, кроме туалетов, следует принимать не менее 6 м2).

Д.3. Специализированные непродовольственные магазины «Бутики»

№ п.п.

Группы помещений

Ориентировочная площадь, м2 при торговой площади

50

100

150

200

1

Помещения приема, хранения и подготовки товаров к продаже

28

37

46

54

2

Подсобные помещения*

14

14

16

17

3

Служебно-бытовые помещения**

8

11

14

17

 

Расчетная площадь

100

162

225

287

Общая площадь

130

211

292

373

Примечания:

*) Помещения хранения контейнеров обменного фонда, тары, упаковочных материалов, моющих средств, спецодежды; моечная

**) Контора; комната для приема пищи; помещение охраны; гардеробная; уборная.

Д.4. Парикмахерские

№ п.п.

Группы помещений

Ориентировочная площадь, м2 при числе рабочих мест

2

3

1

Помещения для посетителей

9

9

2

Производственные помещения

8+6

23

3

Подсобные и кладовые

8

6

4

Служебно-бытовые помещения

8

 

Расчетная площадь

32

46

Общая площадь

42

60

Д.5. Ремонт обуви

№ п.п.

Группы помещений

Ориентировочная площадь, м2 при числе рабочих мест

1

2

1

Помещения для посетителей

9

9

2

Производственные помещения

15

23

3

Подсобные и кладовые

8

12

4

Служебно-бытовые помещения

10

10

 

Расчетная площадь

42

54

Общая площадь

55

70

Д.6. Мини-бытовой комплекс

№ п.п.

Виды обслуживания и помещения

Ориентировочная площадь, м2 по группам помещений

Для посетителей

Производственные

Кладовые и подсобные

Служебно-бытовые

Итого

1

Прием заказов на различные услуги

20

-

15

-

35

2

Фотография

-

8

-

-

8

3

Ксерокопия

-

9

-

-

9

4

Видеопрокат

-

9

-

-

9

5

Ювелирные работы (граверные)

-

6

-

-

6

6

Изготовление визиток

-

8

-

-

8

7

Переплетно-брошюровальные работы

-

15

-

-

15

8

Комната персонала, гардероб, уборная

-

-

-

12

12

 

Расчетная площадь

20

55

15

12

102

Общая площадь

 

 

 

 

133

Д.7. Ателье (изготовление и ремонт одежды)

№ п.п.

Группы помещений

Ориентировочная площадь, м2 при числе рабочих мест

2*

5*

1

Помещения для посетителей

9

9

2

Производственные помещения

21

42

3

Подсобные и кладовые

6

12

4

Служебно-бытовые помещения

8

15

 

Расчетная площадь

44

77

Общая площадь

67

102

Примечания:

*) Участок изготовления одежды и участок закройщика;

**) Участок раскройки, изготовления и ремонта одежды, участок скорняжных работ, утепления одежды и утюжки.

Д.8. Ремонт часов

№ п.п.

Группы помещений

Ориентировочная площадь, м2

1

Помещения для посетителей

12

2

Производственные помещения (на 2 рабочих места)

14

3

Подсобные и кладовые

6

4

Служебно-бытовые помещения

8

 

 

 

Расчетная площадь

39

Общая площадь

47

Примечания:

1. На производственной площади размещается участок ремонта часов;

2. На участке ремонта часов возможна организация рабочего места для граверных и ювелирных работ.

Д.9. Ремонт металлоизделий

№ п.п.

Группы помещений

Ориентировочная площадь, м2

1

Помещения для посетителей

9

2

Производственные помещения

22

3

Подсобные и кладовые

6

4

Служебно-бытовые помещения

6

 

 

 

Расчетная площадь

43

Общая площадь

60

Примечания:

В составе оборудования: верстак, настольный сверлильный станок, токарный станок.

Д.10. Бюро по ремонту квартир

№ п.п.

Наименование помещений

Ориентировочная площадь, м2

1

Комната оформления заказов на ремонт квартир

9

2

Комната мастеров

9

3

Кладовая уборочного инвентаря с умывальником

5 (2+3)

 

Расчетная площадь

23

Общая площадь

30

Примечание: Вместо 2-х помещений п.1 и п.2 допустимо одно помещение площадью 15-18 м2.

Д.11. Пункт проката (на 2-х работающих - приемщик и инструктор)

№ п.п.

Наименование помещений

Ориентировочная площадь, м2

1

Салон, в том числе помещение для посетителей (прием и выдача)

12

2

Помещение хранения предметов проката культурно-бытового и спортивного назначения (кладовая)

30

3

Уборная с умывальником

3

4

Кладовая уборочного инвентаря

2

 

 

 

Расчетная площадь

47

Общая площадь

61

Примечания:

Пункт проката может работать в режиме почасового проката. В этом случае вместо п.1 в таблице следует предусматривать помещения почасового проката:

- музыкальных инструментов (12 м2);

- швейных машин (7 м2);

- пишущих машин (4 м2).

Расчетная площадь всего предприятия соответственно составит 58 м2, а общая - 75 м2.

Д.12. Мини-прачечная (прачечная самообслуживания на 75 кг белья в смену)

№ п.п.

Группы помещений

Ориентировочная площадь, м2

Вариант самообслуживания

Вариант с обслуживанием

1

Помещения для посетителей, (вестибюль, гардероб)

23

-

2

Приемная для оформления и получения заказов

-

9

3

Производственные помещения (стиральное, сушильное и гладильное отделения)

100

100

4

Кладовые и подсобные

23

23

5

Служебно-бытовые помещения:

 

 

- комната персонала с туалетом;

8

-

- контора, душ, туалет, раздевальная и комната приема пищи персонала

-

18

 

Расчетная площадь

154

150

Общая площадь

200

195

Примечания:

1) Стирку, отжим, сушку и глажение допускается размещать в одном помещении,

2) Прачечная оборудуется бытовыми стиральными машинами-автоматами.

Д.13. Стоматологический кабинет

№ п.п.

Наименование помещений

Ориентировочная площадь, м2

1

Стоматологический кабинет

14

2

Приемная-ожидальная

6

3

Служебно-бытовые помещения, туалет

8

 

Расчетная площадь

20

Общая площадь

36

Д.14. Медицинско-оздоровительные услуги

Вариант 1.

№ п.п.

Наименование помещений

Ориентировочная площадь, м2

1

Кабинет врача

12

2

Кабинет (зал) ЛФК

40

3

Раздевальня, душевая, санузел

10+12+6

4

Процедурная

18

5

Кабинет мануальной терапии

12

6

Комната персонала

8

7

Кладовая

4

8

Инвентарная

8

9

Вестибюль, гардероб, места для отдыха

9

 

Расчетная площадь

139

Общая площадь

181

Вариант 2.

№ п.п.

Наименование помещений

Ориентировочная площадь, м2

1

Кабинет компьютерной диагностики

24

2

Кабинет мануальной терапии

12

3

Комната персонала

8

4

Кладовая

4

5

Вестибюль, гардероб, санузел с умывальником, место для отдыха

19

 

Расчетная площадь

67

Общая площадь

86

Вариант 3.

№ п.п.

Наименование помещений

Ориентировочная площадь, м2

1

Кабинет врача

12

2

Зал оздоровительной гимнастики

20

3

Тренажерный зал

25

4

Кабинет общего массажа

12

5

Раздевальные

18 (6+6+6)

6

Душевые при раздевальных

18 (6+6+6)

7

Санузлы при раздевальных

9 (3+3+3)

8

Комната персонала

8

9

Инвентарная

8

10

Кладовая

4

11

Вестибюль, гардероб, места для отдыха

22

 

 

 

Расчетная площадь

156

Общая площадь

190

Примечание.

Раздевальные с душем и туалетом предусматриваются при помещениях пп. 2, 3 и 4.

Вариант 4.

№ п.п.

Наименование помещений

Ориентировочная площадь, м2

1

Тренажерный зал

25

2

Раздевальная, душевая, санузел

16 (10+3+3)

3

Кладовая

6

4

Комната персонала

8

5

Вестибюль, гардероб, место для отдыха

19

 

 

 

 

Расчетная площадь

74

 

Общая площадь

95

Вариант 5.

№ п.п.

Наименование помещений

Ориентировочная площадь, м2

1

Кабинет врача

12

2

Зал ОФП

54

3

Зал аэробики, шейпинга

81

4

Инвентарная

15

5

Инструкторская

12

6

Вестибюль, гардероб

9

7

Уборные, душевые

12 (6+6)

8

Помещение уборочного инвентаря

4

 

 

 

Расчетная площадь

263

Общая площадь

330

Примечание:

При габаритах зала ОФП 18×9 м его следует принимать высотой 3,9 м и размещать в пристройке к жилому зданию.

Д.15. Дошкольные учреждения (частные)

15.1 Детский сад на 1 разновозрастную группу (10 мест)

№ п.п.

Наименование помещений

Ориентировочная площадь, м2

1

Раздевальная-холл

18

2

Групповая

50 (18+32)

3

Буфетная

4

4

Обеденная зона, используемая для занятий

20

5

Спальня

32 (14+18)

6

Туалетная

15

7

Медицинская комната с местом для временного размещения заболевшего ребенка

10

8

Хозкладовая

3

9

Кладовая чистого белья

2

10

Кухня

18

11

Прачечная

8

 

 

 

Расчетная площадь

186

Общая площадь

240

Примечание:

1) Помещения групповой и спальни следует разделять оборудованием или прозрачными перегородками на две подзоны для детей разных возрастов;

2) Прачечную оборудовать бытовыми стиральными машинами-автоматами.

15.2 Детский сад на 2 группы (10+15 мест)

№ п.п.

Наименование помещений

Ориентировочная площадь, м2

1

Холл-раздевальная

36

2

Игральная

100 (50×2)

3

Буфетная

8 (4×2)

4

Спальня

80 (40×2)

5

Туалетная

32 (16×2)

6

Медицинская комната

6

7

Комната заболевшего ребенка (приемная, палата, туалет)

8 (2+4+2)

8

Кабинет заведующего

8

9

Комната персонала

8

10

Хозкладовая

4

11

Кладовая чистого белья

3

12

Класс для занятий

36

13

Кухня

15

14

Заготовочный цех

6

15

Моечная кухонной посуды

4

16

Кладовая сухих продуктов

7

17

Кладовая овощей

4

18

Гардероб, душ, туалет персонала

7

19

Прачечная

10

 

Расчетная площадь

382

Общая площадь

496

Примечание:

Прачечную оборудовать бытовыми стиральными машинами-автоматами.

15.3 Детский сад на 3 группы (10+10+15 мест)

№ п.п.

Наименование помещений

Ориентировочная площадь, м2

1

Вестибюль-холл

16

2

Раздевальные

46 (14+14+18)

3

Групповая

130 (40+40+50)

4

Буфетная

9 (3+3+2)

5

Спальня

112 (36+36+40)

6

Туалетная

48 (16+16+16)

7

Класс для занятий

36

8

Медицинская комната

6

9

Изолятор (приемная, палата, туалет)

8 (2+4+2)

10

Кабинет заведующего

6

11

Комната персонала

2

12

Туалет

6

13

Хозкладовая

8

14

Кладовая чистого белья

2

15

Кухня с раздаточной

15

16

Моечная кухонной посуды

4

17

Кладовая сухих продуктов

7

18

Кладовая овощей

7

19

Гардероб, душ, уборные персонала

10 (6+2+2)

20

Прачечная

12

 

 

 

Расчетная площадь

490

Общая площадь

588

Д.16. Общеобразовательные учреждения (частные)

16.1. Начальная школа на 2 класса по 16 учащихся

п.п.

Наименование помещений

Ориентировочная площадь, м2

помещения

расчетная

общая

1

Классные помещения

120 (60×2)

570

680

2

Спальня (для детей с ослабленным здоровьем)

20

3

Рекреационный зал с тренажерным оборудованием

150

4

Класс-кабинет

75

5

Универсальные помещения (для занятий иностранным языком)

72 (36×2)

6

Комната преподавателей

18

7

Уборные

для детей

14 (7×2)

для преподавателей

4

8

Буфет

18

9

Комната техперсонала

6

10

Вестибюль-гардероб

72

16.2. Начальная школа на 4 класса по 16 учащихся

№ п.п.

Наименование помещений

Ориентировочная площадь, м2

помещения

расчетная

общая

1-е классы

1

Классные помещения

60

1080

1300

2

Спальни

60 (30×2)

3

Игровые

40

4

Рекреации

60

5

Комната преподавателей

18

6

Подсобные помещения

18 (9×2)

7

Вестибюль-гардероб

9

8

Уборные для мальчиков и девочек

6 (3×3)

9

Помещение для сушки одежды и обуви

6

2-4-е классы

10

Классные помещения

180 (6×3)

11

Спальня (для детей с ослабленным здоровьем)

20

12

Рекреационный зал с тренажерным оборудованием

150

13

Класс-кабинет математики и конструирования (для компьютерных игр)

75

14

Класс-кабинет природоведения

60

15

Универсальные помещения

72 (60+12)

16

Комната преподавателей

24

17

Уборные для мальчиков и девочек

14 (7×2)

18

Уборная для преподавателей

4

19

Вестибюль-гардероб с сушкой одежды и обуви

44 (38+6)

20

Комната персонала

6

21

Медицинская комната с процедурным кабинетом

32 (16+16)

22

Буфет

30

23

Кабинет директора, завуча

24 (12+12)

24

Комната преподавателей

36

25

Канцелярия, бухгалтерия

16

26

Помещения персонала с кладовой

16

16.3 Мини-лицей для 9-11(12) классов (на 64 учащихся)

№ п.п.

Наименование помещений

Ориентировочная площадь, м2

помещения

расчетная

общая

1

Учебные кабинеты

120 (30×4)

785

1020

2

Лаборантские при кабинетах

48 (16×3)

3

Учебные помещения для индивидуальных и групповых занятий

24 (12×2)

4

Кабинеты информатики и вычислительной техники

66 (48+16)

5

Лаборатории по естественным наукам

Лаборантские при них

Практикумы при них

192 (48×4)

36 (18×2)

6

Кабинет математики

50

7

Помещения для преподавателей с методическим кабинетом

36 (24+12)

8

Рекреации

65

9

Уборные для мальчиков и девочек

для преподавателей

24 (12+12)

6

10

Вестибюль-гардероб

25

11

Буфет

18

12

Медицинский и прививочный кабинеты

24 (12+12)

13

Кабинет директора, заместителей

28 (16+12)

14

Канцелярия, бухгалтерия

12

15

Помещение техперсонала с хозяйственной кладовой

12

16.4 Репетиторские курсы

№ п. п.

Наименование помещений

Ориентировочная площадь, м2

помещения

расчетная

общая

1

Помещения студийных занятий (изобразительное искусство, музыка и др.)

144 (36×4)

505

660

2

Помещения для групповых занятий

- гардеробы при них

72 (18×4)

48 (18×4)

3

Помещения для индивидуальных занятий

- гардеробы при них

128 (16×8)

48 (6×8)

4

Подсобные помещения

16 (8×2)

5

Комната преподавателей

16

6

Офис

16

7

Уборная

36 (24+12)

8

Комната охраны

12

Д.17 Учреждения социальных платных услуг

№ п.п.

Наименование помещений

Ориентировочная площадь, м2

помещения

расчетная

общая

1

Кабинеты заведующих

36 (12×3)

75

85

2

Комната отдыха персонала

12

3

Кладовые

18

4

Кладовая инвентаря

4

5

Уборная

3

Д.18 Досуговые учреждения

18.1 Зал игровых автоматов

№ п.п.

Наименование помещений

Ориентировочная площадь, м2

помещения

расчетная

общая

1

Помещение игровых автоматов:

 

45

55

 

- зона игровых автоматов

30

 

- зона обслуживающего персонала, в т ч. касса*

9

2

Санитарно-бытовые помещения

3

3

Кладовая уборочного инвентаря

2

*) Между зоной обслуживающего персонала, включая кассу, и зоной игровых автоматов следует предусматривать остекленную перегородку.

18.2 Бильярдная

№ п.п.

Наименование помещений

Ориентировочная площадь, м2

помещения

расчетная

общая

1

Зал

30/72

95/175

120/225

2

Инвентарная

4/8

3

Вестибюль, холл, касса, гардероб

36/48

4

Комната обслуживающего персонала

9/18

5

Туалет

6/9

6

Кладовая уборочного инвентаря

2/4

7

Кафе-бар (бар-стойка)

6/12

Примечание: указаны значения для бильярдных - на 1 стол/на 2 стола.

18.3 Детский центр досуга

№ п.п.

Наименование помещений

Ориентировочная площадь, м2

помещения

расчетная

общая

1

Комната для тихих игр (шахматы, шашки и др.)

20

115

135

2

Детские игровые комнаты (автоматы)

30

3

Зал настольного тенниса

24

4

Комната обслуживающего персонала

9

5

Инвентарная

8

6

Вестибюль, гардероб

9

7

Кладовая

4

8

Туалет для взрослых

для мальчиков

для девочек

3

3

3

18.4 Видеотека и видеосалон

№ п.п.

Наименование помещений

Ориентировочная площадь, м2

помещения

расчетная

общая

1

Зал для посетителей

12/18

70/156

80/180

2

Зона выдачи и приема кассет

6/12

3

Помещение хранения видеокассет

8/12

4

Видеозал на 40 мест

-/48

5

Видеозалы индивидуального назначения (видеокабины на 1 место)

10/-

6

Кабинет заведующего

12

7

Комната отдыха персонала

12/18

8

Уборные

6/12*

9

Кладовая уборочного инвентаря

2/4

10

Кафе-бар

-/18

Примечания: указаны значения для видеотеки/видеосалона;

*) с учетом посетителей.

18.5 Фото- и фонотека

№ п.п.

Наименование помещений

Ориентировочная площадь, м2

помещения

расчетная

общая

1

Кабинет заведующего

12

120

145

2

Фотолаборатория

16

3

Мастерская по обработке фотоматериалов

16

4

Зал для посетителей

12

5

Зона выдачи и приема фотоматериалов

6

6

Фонотека

18

7

Студия звукозаписи

12

8

Кабины для прослушивания

8

9

Комнаты отдыха для персонала

12

10

Уборные

6

11

Кладовые уборочного инвентаря

2

Д.19. Научные, проектные, юридические фирмы и конторы

19.1 Научно-проектная фирма

№ п.п.

Наименование помещений

Ориентировочная площадь, м2

помещения

расчетная

общая

1

Кабинет руководства и финансовой группы

18

160

210

2

Комната для работы с заказчиком

12

3

Помещение компьютерной графики

24

4

Рабочие комнаты сотрудников

54

5

Архив технической документации

18

6

Комната отдыха

12

7

Кладовая

4

8

Вестибюль, гардероб

12

9

Уборные

6

19.2 Нотариальная контора

№ п.п.

Наименование помещений

Ориентировочная площадь, м2

помещения

расчетная

общая

1

Вестибюль-ожидальная

30

80

130

2

Комната нотариусов

48*

3

Архив

18

4

Помещение машинописи (компьютерного набора)

12

5

Комната отдыха

12

6

Уборные

6

7

Кладовая

4

 

*) на 4 человека.

Д.20. Мастерские народных промыслов

№ п.п.

Наименование помещений

Ориентировочная площадь, м2

помещения

расчетная

общая

1

Кабинет руководителя (директора)

12

150-165

200-215

2

Кабинеты

 

 

- ручной вышивки

15-18

 

- золотого шитья

15-18

 

- лоскутной техники

15-18

 

- росписи по ткани

15-18

3

Служебно-бытовые помещения

6

4

Вестибюль, гардероб

12

5

Кладовые готовой продукции и сырья

48 (12×4)

6

Кладовая уборочного инвентаря

2

7

Туалеты

12

Примечания:

1) Группы - по 8-10 человек;

2) Виды деятельности могут быть иными, но обязательно связанными с ручной обработкой.

Д.21. Частные аптеки

№ п.п.

Наименование помещений

Ориентировочная площадь, м2

помещения

расчетная

общая

1

Торговый зал;

 

36/71

46/92

- зона реализации лекарственных средств и изделий медицинского назначения

8/-

- зона реализации готовых лекарственных средств по рецептам;

-/8

- зона реализации готовых лекарственных средств без рецептов и изделий медицинского назначения;

-/8

- зона информации;

-/8

- зона обслуживания населения

10/30

2

Кладовая хозяйственного и уборочного инвентаря

4/8

3

Комната персонала

36/48

4

Туалет

9/18

Примечание:

Указаны значения для аптек с 1 рабочим местом/3 рабочими местами.

БИБЛИОГРАФИЯ

1. Федеральный закон «О государственной поддержке малого предпринимательства в Российской Федерации» от 14 июня 1995 года, 88-ФЗ;

2. Закон города Москвы «Об основах малого предпринимательства в г. Москве» от 28 июня 1998 г., № 14;

3. Постановление Правительства г. Москвы от 16.09.97 № 683 «О проектных предложениях по развитию малого предпринимательства в спальных районах города Москвы»;

4. «Типология и основные характеристики объектов малого предпринимательства для различных градостроительных условий города», утвержденные постановлением Правительства Москвы от 16.09.97, № 683, учитывающие многопрофильный характер малого предпринимательства в столице (Приложение 1);

5. «Положение о целевом фонде нежилых помещений для размещения субъектов малого предпринимательства и инфраструктуре малого бизнеса в г. Москве» (Приложение 3 к постановлению Правительства Москвы от 16.09.97 № 683;

6. Проект концепции государственной политики поддержки и развития малого предпринимательства в Российской Федерации. Рассмотрен Государственным Советом 19 декабря 2001 г.

7. Альбом «Технические решения утепления наружных ограждений домов первых массовых серий», утвержденный и введенный в действие приказом Госстроя России от 10 ноября 1998 года, № 8.




Яндекс цитирования



   Copyright © 2007-2026,  www.tehlit.ru.

[ ѓосты, стандарты, нормативы, инструкции, правила, строительные нормы ]