//
ТехЛит.ру
- крупнейшая бесплатная электронная интернет библиотека для "технически умных" людей.
WWW.TEHLIT.RU - ТЕХНИЧЕСКАЯ ЛИТЕРАТУРА

:: Алготрейдинг::


АЛГОТРЕЙДИНГ
шаг за шагом
с нуля по урокам!

Торговые роботы на PYTHON, BackTrader,
Pandas, Pine Script для TradingView. Связка с брокерами, телеграм и легкими приложениями.


МИНИСТЕРСТВО РОССИЙСКОЙ ФЕДЕРАЦИИ ПО ДЕЛАМ ГРАЖДАНСКОЙ ОБОРОНЫ, ЧРЕЗВЫЧАЙНЫМ СИТУАЦИЯМ И ЛИКВИДАЦИИ ПОСЛЕДСТВИЙ СТИХИЙНЫХ БЕДСТВИЙ

ФЕДЕРАЛЬНОЕ ГОСУДАРСТВЕННОЕ УЧРЕЖДЕНИЕ «ВСЕРОССИЙСКИЙ ОРДЕНА "ЗНАК ПОЧЕТА" НАУЧНО-ИССЛЕДОВАТЕЛЬСКИЙ ИНСТИТУТ ПРОТИВОПОЖАРНОЙ ОБОРОНЫ» (ФГУ ВНИИПО МЧС РОССИИ)

Л.М. Мешман, С.Г. Цариченко, В.А. Былинкин, В.В. Алешин, Р.Ю. Губин

ПРОЕКТИРОВАНИЕ ВОДЯНЫХ И ПЕННЫХ АВТОМАТИЧЕСКИХ УСТАНОВОК ПОЖАРОТУШЕНИЯ

Учебно-методическое пособие

Под общей редакцией Н.П. Копылова

МОСКВА 2002

Содержание

РАЗДЕЛ 1. НОРМЫ И ПРАВИЛА ПРОЕКТИРОВАНИЯ ВОДЯНЫХ И ПЕННЫХ АУП

1. ТРАДИЦИОННЫЕ УСТАНОВКИ ВОДЯНОГО И ПЕННОГО ПОЖАРОТУШЕНИЯ

1.1. Общие положения

1.2. Временные и гидравлические параметры установок пожаротушения водой и пеной низкой и средней кратности

1.3. Особенности проектирования традиционных спринклерных установок пожаротушения

1.4. Особенности проектирования традиционных дренчерных установок пожаротушения

1.5. Особенности проектирования установок пожаротушения высокократной пеной

2. ОСОБЕННОСТИ ПРОЕКТИРОВАНИЯ АУП СТАЦИОНАРНЫХ ВЫСОТНЫХ СТЕЛЛАЖНЫХ СКЛАДОВ

2.1. Общие положения

2.2. Требования к автоматическим установкам пожаротушения в зоне высотного складирования со стационарными стеллажами

2.3. Требования к планировке складов и стеллажей

3. ОСОБЕННОСТИ ПРОЕКТИРОВАНИЯ УСТАНОВОК ПОЖАРОТУШЕНИЯ РАСПЫЛЕННОЙ ВОДОЙ

4. ОСОБЕННОСТИ ПРОЕКТИРОВАНИЯ РОБОТИЗИРОВАННЫХ УСТАНОВОК ПОЖАРОТУШЕНИЯ И УСТАНОВОК ПОЖАРОТУШЕНИЯ СО СТАЦИОНАРНЫМИ ДИСТАНЦИОННО УПРАВЛЯЕМЫМИ ЛАФЕТНЫМИ СТВОЛАМИ

5. НАСОСНЫЕ СТАНЦИИ

6. ТРЕБОВАНИЯ К РАЗМЕЩЕНИЮ И СОДЕРЖАНИЮ КОМПЛЕКТУЮЩЕГО ОБОРУДОВАНИЯ АУП

7. ТРЕБОВАНИЯ К ВОДОСНАБЖЕНИЮ И ПОДГОТОВКЕ ПЕННОГО РАСТВОРА

8. ТРЕБОВАНИЯ К АВТОМАТИЧЕСКОМУ И ВСПОМОГАТЕЛЬНОМУ ВОДОПИТАТЕЛЯМ

9. ТРЕБОВАНИЯ К ТРУБОПРОВОДАМ

9.1. Общие положения

9.2. Особенности использования пластмассовых трубопроводов

10. ЭЛЕКТРОПИТАНИЕ УСТАНОВОК

11. ЭЛЕКТРОУПРАВЛЕНИЕ И СИГНАЛИЗАЦИЯ

РАЗДЕЛ 2. ПОРЯДОК РАЗРАБОТКИ ЗАДАНИЯ НА ПРОЕКТИРОВАНИЕ АУП

1. ИЗУЧЕНИЕ ОСОБЕННОСТЕЙ ЗАЩИЩАЕМОГО ОБЪЕКТА

2. ОБЩИЕ ПОЛОЖЕНИЯ О ПОРЯДКЕ РАЗРАБОТКИ, СОГЛАСОВАНИЯ И УТВЕРЖДЕНИЯ ЗАДАНИЯ НА ПРОЕКТИРОВАНИЕ

3. ОСНОВНЫЕ ТРЕБОВАНИЯ К АУП

4. ПОРЯДОК ИЗЛОЖЕНИЯ ЗАДАНИЯ НА ПРОЕКТИРОВАНИЕ

5. ПОРЯДОК ОФОРМЛЕНИЯ ЗАДАНИЯ НА ПРОЕКТИРОВАНИЕ

6. ПЕРЕЧЕНЬ ДОКУМЕНТАЦИИ, ПРЕДСТАВЛЯЕМОЙ ОРГАНИЗАЦИЕЙ-РАЗРАБОТЧИКОМ ОРГАНИЗАЦИИ-ЗАКАЗЧИКУ

РАЗДЕЛ III. ПОРЯДОК РАЗРАБОТКИ ПРОЕКТА АУП

1. ОБОСНОВАНИЕ ВЫБОРА АУП

1.1. Выбор огнетушащего вещества

1.2. Расчет времени срабатывания АУП

1.3. Расчет критического времени пожара, необходимого для обеспечения своевременной эвакуации людей [38]

1.4. Расчет критического времени для обеспечения снижения ущерба от пожара

1.5. Уточнение способа пожаротушения

1.6. Экономический расчет

2. СОСТАВ ПРОЕКТНО-СМЕТНОЙ ДОКУМЕНТАЦИИ

2.1. Основные понятия

2.2. Общие положения

2.3. Пояснительная записка

2.4. Ведомости

2.5. Сметная документация

2.6. Исходные требования на разработку конструкторской документации

2.7. Состав проектно-сметной документации на стадии проекта

2.8. Состав проектно-сметной документации на стадии рабочего проекта

2.9. Состав проектно-сметной документации на стадии рабочей документации

2.10. Оформление томов проекта, рабочего проекта, рабочей документации

3. РАБОЧИЕ ЧЕРТЕЖИ

3.1. Общие положения

3.2. Общие данные

3.3. Выкопировка из генерального алана, ситуационный план

3.4. Планы и разрезы разводок трубопроводов и расстановки оборудования в защищаемых помещениях, помещениях узлов управления, насосных станциях

3.5. Планы, разрезы (виды) разводок кабелей, проводов и расстановки электрооборудования в защищаемых помещениях, помещениях узлов управления, насосных станций, пожарных постов

3.6. Схемы

3.7. Нанесение размеров, уклонов, отметок, надписей

3.8. Чертежи общих видов нетиповых конструкций и оборудования

3.9. Правила выполнения спецификаций

3.10. Кабельный журнал

3.11. Спецификации оборудования, изделий и материалов

РАЗДЕЛ IV. ГИДРАВЛИЧЕСКИЙ РАСЧЕТ УСТАНОВОК ВОДЯНОГО И ПЕННОГО ПОЖАРОТУШЕНИЯ

1. ГИДРАВЛИЧЕСКИЙ РАСЧЕТ УСТАНОВОК ВОДЯНОГО И ПЕННОГО (НИЗКОЙ И СРЕДНЕЙ КРАТНОСТИ) ПОЖАРОТУШЕНИЯ

1.1. Порядок гидравлического расчета

1.2. Определение необходимого давления у оросителя при заданной интенсивности орошения [2, 3, 26]

1.3. Гидравлические потери давления в трубопроводах

1.4. Гидравлический расчет распределительных и питающих трубопроводов [2, 3, 26]

1.5. Особенности расчета параметров АУП при объемном пожаротушении пеной низкой и средней кратности

1.6. Гидравлический расчет параметров установок пожаротушения высокократной пеной

2. ОПРЕДЕЛЕНИЕ УДЕЛЬНОГО РАСХОДА ОРОСИТЕЛЕЙ ДЛЯ СОЗДАНИЯ ВОДЯНЫХ ЗАВЕС [26]

3. НАСОСНЫЕ УСТАНОВКИ

РАЗДЕЛ V. СОГЛАСОВАНИЕ И ОБЩИЕ ПРИНЦИПЫ ЭКСПЕРТИЗЫ ПРОЕКТОВ АУП

1. СОГЛАСОВАНИЕ ПРОЕКТОВ АУП С ОРГАНАМИ ГОСПОЖНАДЗОРА

2. ОБЩИЕ ПРИНЦИПЫ ЭКСПЕРТИЗЫ ПРОЕКТОВ АУП

РАЗДЕЛ VI. НОРМАТИВНЫЕ ДОКУМЕНТЫ, ТРЕБОВАНИЯ КОТОРЫХ ПОДЛЕЖАТ УЧЕТУ ПРИ РАЗРАБОТКЕ ПРОЕКТА НА ВОДЯНЫЕ И ПЕННЫЕ УСТАНОВКИ ПОЖАРОТУШЕНИЯ

ЛИТЕРАТУРА

ПРИЛОЖЕНИЕ 1 ТЕРМИНЫ И ОПРЕДЕЛЕНИЯ ПРИМЕНИТЕЛЬНО К ВОДЯНЫМ И ПЕННЫМ АУП

ПРИЛОЖЕНИЕ 2 УСЛОВНЫЕ ГРАФИЧЕСКИЕ ОБОЗНАЧЕНИЯ АУП И ИХ ЭЛЕМЕНТОВ

ПРИЛОЖЕНИЕ 3 ОПРЕДЕЛЕНИЕ УДЕЛЬНОЙ ПОЖАРНОЙ НАГРУЗКИ

ПРИЛОЖЕНИЕ 4 ПЕРЕЧЕНЬ ПРОДУКЦИИ, ПОДЛЕЖАЩЕЙ ОБЯЗАТЕЛЬНОЙ СЕРТИФИКАЦИИ В ОБЛАСТИ ПОЖАРНОЙ БЕЗОПАСНОСТИ (средства обеспечения пожарной безопасности)

ПРИЛОЖЕНИЕ 5 ПРОИЗВОДИТЕЛИ СРЕДСТВ ВОДЯНЫХ И ПЕННЫХ АУП

ПРИЛОЖЕНИЕ 6 ТЕХНИЧЕСКИЕ СРЕДСТВА ВОДЯНЫХ И ПЕННЫХ АУП

П6.1. ОСНОВНЫЕ ПАРАМЕТРЫ ОТЕЧЕСТВЕННЫХ ПЕНООБРАЗОВАТЕЛЕЙ [29]

П6.2. ОСНОВНЫЕ ПАРАМЕТРЫ НАСОСНЫХ АГРЕГАТОВ

П6.3. ОСНОВНЫЕ ТЕХНИЧЕСКИЕ ПАРАМЕТРЫ РОБОТИЗИРОВАННОЙ УСТАНОВКИ ПОЖАРОТУШЕНИЯ УПР-1 ОАО "ТУЛЬСКИЙ ЗАВОД "АРСЕНАЛ"

П6.4. КАРТЫ ОРОШЕНИЯ ВОДЯНЫХ ОРОСИТЕЛЕЙ БИЙСКОГО ПО "СПЕЦАВТОМАТИКА"

ПРИЛОЖЕНИЕ 7 СПРАВОЧНИК БАЗОВЫХ ЦЕН НА ПРОЕКТНЫЕ РАБОТЫ ПО ПРОТИВОПОЖАРНОЙ ЗАЩИТЕ ОБЪЕКТОВ

ПРИЛОЖЕНИЕ 8 ПЕРЕЧЕНЬ ЗДАНИЙ, СООРУЖЕНИЙ, ПОМЕЩЕНИЙ И ОБОРУДОВАНИЯ, ПОДЛЕЖАЩИХ ЗАЩИТЕ АВТОМАТИЧЕСКИМИ УСТАНОВКАМИ ПОЖАРОТУШЕНИЯ

ПРИЛОЖЕНИЕ 9 ПРИМЕР РАСЧЕТА СПРИНКЛЕРНОЙ (ДРЕНЧЕРНОЙ) РАСПРЕДЕЛИТЕЛЬНОЙ СЕТИ ВОДЯНЫХ И ПЕННЫХ АУП

ПРИЛОЖЕНИЕ 10 ПРИМЕР РАБОЧЕГО ПРОЕКТА ВОДЯНОЙ АУП

ПРИЛОЖЕНИЕ 11 ПРИМЕР ТЕХНИЧЕСКОГО ЗАДАНИЯ НА РАЗРАБОТКУ РАБОЧЕГО ПРОЕКТА ВОДЯНОЙ АУП

ПРИЛОЖЕНИЕ 12 ПРИМЕР РАБОЧЕГО ПРОЕКТА ВОДЯНОЙ АУП ПРИРЕЛЬСОВОГО СКЛАДА

П.12.1. ПОЯСНИТЕЛЬНАЯ ЗАПИСКА К РАБОЧЕМУ ПРОЕКТУ

П.12.2. ОФОРМЛЕНИЕ РАБОЧИХ ЧЕРТЕЖЕЙ

СПРАВОЧНЫЙ РАЗДЕЛ

Авторы-составители ставили перед собой задачу сосредоточить в небольшом по объему пособии максимум основных положений большого количества нормативных документов, имеющих отношение к проектированию пожарной автоматики.

Приводятся нормы проектирования водяных и пенных АУП. Рассмотрены особенности проектирования модульных и роботизированных установок пожаротушения, а также АУП применительно к высотным механизированным складам.

Особое внимание уделено подробному изложению правил разработки технического задания на проектирование, сформулированы основные положения по согласованию и утверждению этого задания. Детально прописаны содержание и порядок оформления рабочего проекта, в том числе пояснительной записки.

Основной объем учебно-методического пособия и приложения к нему содержат необходимый справочный материал, в частности термины и определения, условные обозначения, рекомендуемую нормативно-техническую документацию и техническую литературу применительно к различным видам водяных и пенных АУП, перечень производителей средств водопенных АУП, примеры проектирования водяных и пенных АУП, в том числе выполнения расчетов и оформления чертежей.

Подробно описываются основные положения действующей отечественной нормативно-технической документации в области водопенных АУП.

Описан алгоритм гидравлического расчета гидравлических сетей АУП, интенсивности орошения, удельного расхода, расхода и давления секции распределительного трубопровода водяных и пенных АУП. Приведен алгоритм расчета удельного расхода водяных завес, создаваемых оросителями общего назначения.

Учебно-методическое пособие соответствует основным положениям действующей НТД в области АУП и может быть полезным для обучения сотрудников организаций, осуществляющих проектирование автоматических установок пожаротушения. Пособие может представлять интерес для руководителей предприятий и инженерно-технического состава, специализирующихся в области автоматической противопожарной защиты объектов.

Авторы-составители признательны ЗАО "Косми" и ЗАО "Инженерный центр - Спецавтоматика" за представленные проектные материалы, которые использованы в приложениях 10 - 12 настоящего пособия.

РАЗДЕЛ 1. НОРМЫ И ПРАВИЛА ПРОЕКТИРОВАНИЯ ВОДЯНЫХ И ПЕННЫХ АУП

1. ТРАДИЦИОННЫЕ УСТАНОВКИ ВОДЯНОГО И ПЕННОГО ПОЖАРОТУШЕНИЯ

1.1. Общие положения

1.1.1. Автоматические установки водяного и пенного пожаротушения (АУП) следует проектировать с учетом ГОСТ 12.1.019, ГОСТ 12.3.046, ГОСТ 12.4.009, ГОСТ 15150, ГОСТ Р 50588, ГОСТ Р 50680, ГОСТ Р 50800, НПБ 03-93, НПБ 88-2001, НПБ 110-99*, СНиП 2.04.02-84*, СНиП 11-01-95, СНиП 21.01-97* и других нормативных документов, действующих в этой области, а также строительных особенностей защищаемых зданий, помещений и сооружений, возможности и условий применения огнетушащих веществ, исходя из характера технологического процесса производства.

1.1.2. Изложенные в настоящем разделе положения не распространяются на проектирование автоматических установок пожаротушения:

- зданий и сооружений, проектируемых по специальным нормам;

- технологических установок, расположенных вне зданий;

- зданий складов с передвижными стеллажами;

- зданий складов для хранения продукции в аэрозольной упаковке;

- зданий складов с высотой складирования грузов более 5,5 м.

1.1.3. Изложенные в настоящем разделе положения не распространяются на проектирование установок пожаротушения, предназначенных для тушения пожаров класса Д (по ГОСТ 27331), а также химически активных веществ и материалов, в том числе:

- реагирующих с огнетушащим веществом со взрывом (алюминийорганические соединения, щелочные металлы);

- разлагающихся при взаимодействии с огнетушащим веществом с выделением горючих газов (литийорганические соединения, азид свинца, гидриды алюминия, цинка, магния);

- взаимодействующих с огнетушащим веществом с сильным экзотермическим эффектом (серная кислота, хлорид титана, термит);

- самовозгорающихся веществ (гидросульфит натрия и др.).

1.1.4. Защита наружных технологических установок с обращением взрывопожароопасных веществ и материалов автоматическими установками пожаротушения определяется ведомственными нормативными документами, согласованными с Главным управлением Государственной противопожарной службы МЧС России и утвержденными в установленном порядке.

1.1.5. Категория зданий и помещений по пожарной опасности определяется в соответствии с НПБ 105-95 и [34].

1.1.6. Установки по надежности электроснабжения должны относиться согласно ПУЭ к токоприемникам I категории.

1.1.7. АУП согласно ГОСТ 12.4.009 должны быть безопасными в эксплуатации, при монтаже и наладке для обслуживающего персонала и лиц, работающих в защищаемой зоне.

1.1.8. Исполнение электрооборудования, входящего в состав АУП, должно соответствовать требованиям эксплуатации и категории защищаемого помещения по пожаро- и взрывоопасности и агрессивности среды согласно ПУЭ-98, ГОСТ 12.2.003, ГОСТ 12.2.007.0, ГОСТ 12.4.009, ГОСТ 12.1.019.

1.1.9. АУП должны обеспечивать:

- срабатывание в течение времени, не превышающего длительность начальной стадии развития пожара (критического времени свободного развития пожара) по ГОСТ 12.1.004;

- необходимую интенсивность орошения или удельный расход огнетушащего вещества;

- тушение пожара с целью его ликвидации или локализацию пожара в течение времени, необходимого для введения в действие оперативных сил и средств;

- требуемую надежность функционирования.

1.1.10. Автоматические установки пожаротушения должны выполнять одновременно и функции автоматической пожарной сигнализации. В спринклерных установках для выполнения этой функции могут быть использованы сигнализаторы потока жидкости, а при отсутствии последних - датчики давления на узлах управления.

1.1.11. Тип установки и огнетушащее вещество необходимо выбирать в зависимости от технологических, конструктивных и объемно-планировочных особенностей защищаемых зданий и помещений, в соответствии с действующими нормативными документами, а также с учетом пожарной опасности и физико-химических свойств производимых, хранящихся и применяемых веществ и материалов, технико-экономического обоснования использования огнетушащих веществ, применение которых может оказать вредное воздействие на материалы, приборы и оборудование, находящиеся в защищаемых помещениях.

1.1.12. Скорость движения воды в питающих и распределительных трубопроводах АУП не должна превышать 10 м/с. Скорость движения воды в трубопроводах пожарных кранов (если водопровод АУП совмещен с внутренним противопожарным водопроводом) должна соответствовать рекомендуемым значениям, приведенным в табл. I.1.1. Допустимая скорость движения воды через пожарные краны не должна превышать 2,5 м/с.

Таблица I.1.1

Скорость движения воды в трубопроводе

Расход воды, л/с

Скорость движения воды, м/с, при диаметре труб, мм

100

125

150

200

250

300

350

400

1

0,130

-

-

-

-

-

-

-

2

0,245

-

-

-

-

-

-

-

3

0,370

0,240

-

-

-

-

-

-

4

0,490

0,315

0,220

-

-

-

-

-

5

0,610

0,390

0,274

-

-

-

-

-

6

0,730

0,470

0,330

-

-

-

-

-

7

0,860

0,550

0,384

0,217

-

-

-

-

8

0,980

0,630

0,440

0,248

-

-

-

-

9

1,100

0,710

0,493

0,279

-

-

-

-

10

1,220

0,790

0,548

0,310

-

-

-

-

12

1,470

0,940

0,660

0,370

0,240

-

-

-

14

1,710

1,100

0,770

0,454

0,278

-

-

-

16

1,960

1,260

0,880

0,500

0,320

0,220

-

-

18

2,200

1,420

0,990

0,560

0,360

0,247

-

-

20

2,450

1,520

1,100

0,620

0,400

0,275

0,205

-

22

2,690

1,730

1,210

0,680

0,440

0,300

0,226

-

24

2,940

1,890

1,320

0,740

0,480

0,330

0,246

-

26

-

2,050

1,430

0,810

0,520

0,357

0,267

0,206

28

-

2,200

1,530

0,870

0,560

0,385

0,287

0,220

30

-

2,360

1,640

0,930

0,600

0,410

0,308

0,237

32

-

2,520

1,750

0,990

0,640

0,440

0,328

0,253

34

-

2,680

1,860

1,050

0,680

0,467

0,349

0,269

36

-

2,830

1,970

1,120

0,720

0,495

0,369

0,285

38

-

2,990

2,080

1,180

0,760

0,520

0,390

0,300

40

-

-

2,190

1,240

0,840

0,550

0,410

0,316

42

-

-

2,300

1,300

0,860

0,580

0,430

0,330

44

-

-

2,410

1,360

0,880

0,600

0,450

0,350

46

-

-

2,520

1,430

0,920

0,630

0,470

0,360

48

-

-

2,630

1,490

0,950

0,660

0,490

0,380

50

-

-

2,740

1,550

0,990

0,690

0,510

0,395

Примечание. Полужирным шрифтом выделены рекомендуемые значения скорости движения воды в трубопроводе.

1.1.13. Воду и водопенные средства нельзя применять для тушения следующих материалов:

- алюминийорганических соединений (реакция со взрывом);

- литийорганических соединений; азида свинца; карбидов щелочных металлов; гидридов ряда металлов - алюминия, магния, цинка; карбидов кальция, алюминия, бария (разложение с выделением горючих газов);

- гидросульфита натрия (самовозгорание);

- серной кислоты, термитов, хлорида титана (сильный экзотермический эффект);

- перекиси натрия, жиров, масел, петролатума (усиление горения в результате выброса, разбрызгивания, вскипания).

1.1.14. При устройстве установок пожаротушения в зданиях и сооружениях с наличием в них отдельных помещений, где по нормам требуется только пожарная сигнализация, вместо нее с учетом технико-экономического обоснования допускается предусматривать защиту этих помещений установками пожаротушения. В этом случае интенсивность подачи огнетушащего вещества следует принимать нормативной.

1.1.15. Если площадь помещений, подлежащих оборудованию установками автоматического пожаротушения, составляет 40 % и более общей площади этажей здания или сооружения, следует предусматривать оборудование здания, сооружения в целом установками автоматического пожаротушения, за исключением помещений:

- с мокрыми процессами (душевые, санузлы, охлаждаемые камеры, помещения мойки и т.п.);

- вентиляционных камер (приточных, а также вытяжных, не обслуживающих производственные помещения категории А или Б), насосных станций водоснабжения, бойлерных и других помещений для инженерного оборудования здания, в которых отсутствуют горючие материалы;

- помещений категорий В4 и Д по пожарной опасности;

- лестничных клеток.

1.1.16. При срабатывании установки пожаротушения должна быть предусмотрена подача сигнала на отключение технологического оборудования в защищаемом помещении в соответствии с технологическим регламентом или требованиями настоящего раздела.

1.2. Временные и гидравлические параметры установок пожаротушения водой и пеной низкой и средней кратности

Основные использованные источники: НПБ 88-2001

1.2.1. Параметры установок пожаротушения следует определять в соответствии с табл. I.1.2 - I.1.4.

1.2.2. Установки водяного и пенного (низкой кратности) пожаротушения подразделяются на спринклерные и дренчерные.

1.2.3. Площадь для расчета расхода и время работы установок, в которых в качестве огнетушащего вещества используется вода с добавкой, определяются так же, как и для установок водяного пожаротушения, по табл. I.1.2.

1.2.4. Оросители следует устанавливать в соответствии с требованиями табл. I.1.2, а также с учетом их технических характеристик и карт орошения.

Таблица I.1.2

Параметры установок пожаротушения

Группа объектов защиты

Интенсивность орошения, л/(с·м2), не менее

Максимальная площадь, контролируемая одним спринклерным оросителем или тепловым замком побудительной системы, м2

Площадь для расчета расходов воды, раствора пенообразователя, м2

Продолжительность работы установок водяного пожаротушения, мин

Максимальное расстояние между спринклерными оросителями или легкоплавкими замками, м

водой

раствором пенопреобразователем

1

0,08

-

12

120

30

4

2

0,12

0,08

12

240

60

4

3

0,24

0,12

12

240

60

4

4.1

0,30

0,15

12

360

60

4

4.2

-

0,17

9

360

60

3

5

По табл. I.1.3

По табл. I.1.3

9

180

60

3

6

То же

То же

9

180

60

3

7

-"-

-"-

9

180

-

3

Примечания:

1. Группы объектов защиты приведены в табл. I.1.5.

2. При оборудовании помещений дренчерными установками площадь для расчета расхода воды, раствора пенообразователя и количества одновременно работающих секций следует определять в зависимости от технологических требований.

3. Продолжительность работы установок пенного пожаротушения с пеной низкой и средней кратности следует принимать:

15 мин - для помещений категорий А, Б, В1 по взрывопожарной опасности;

10 мин - для помещений категорий В2 - В3 по пожарной опасности.

4. Для установок пожаротушения, в которых в качестве средства тушения используется вода с добавкой смачивателя на основе пенообразователя общего назначения, интенсивность орошения принимается в 1,5 раза меньше, чем для водяных.

5. Для спринклерных установок значения интенсивности орошения и площади для расчета расхода воды и раствора пенообразователя приведены для помещений высотой до 10 м, а также для фонарных помещений при суммарной площади фонарей не более 10 % площади. Высоту фонарного помещения при площади фонарей более 10 % следует принимать до покрытия фонаря. Указанные параметры установок для помещений высотой от 10 до 20 м следует принимать по табл. I.1.4.

6. В таблице указаны интенсивности орошения раствором пенообразователя общего назначения.

1.2.5. При устройстве установок пожаротушения в помещениях, в которых технологическое оборудование и площадки, горизонтально или наклонно установленные вентиляционные короба с шириной или диаметром сечения свыше 0,75 м располагаются на высоте не менее 0,7 м от плоскости пола и препятствуют орошению защищаемой поверхности, следует дополнительно под эти площадки, оборудование и короба устанавливать спринклерные или дренчерные оросители с побудительной системой.

Таблица I.1.3

Исходные данные для проектирования АУП для складских помещений при высоте складирования до 5,5 м

Высота складирования, м

Интенсивность орошения, л/ (с·м2), не менее, в зависимости от групп помещений

5

6

7

Вода

Раствор ПО*

Вода

Раствор ПО*

Раствор ПО*

До 1

0,08

0,04

0,16

0,08

0,10

Свыше 1 до 2

0,16

0,08

0,32

0,20

0,20

Свыше 2 до 3

0,24

0,12

0,40

0,24

0,30

Свыше 3 до 4

0,32

0,16

0,40

0,32

0,40

Свыше 4 до 5,5

0,40

0,32

0,50

0,40

0,40

* ПО - пенообразователь.

Примечания:

1. Группы помещений приведены в табл. I.1.5.

2. В группе 6 (см. табл. I.1.5) тушение резины, РТИ, каучука, смол рекомендуется производить водой со смачивателем или низкократной пеной.

3. Для складов с высотой складирования до 5,5 м и высотой помещения более 10 м значения интенсивности и площади для расчета расхода воды и раствора пенообразователя по группам 5 - 7 (см. табл. I.1.5) должны быть увеличены из расчёта 10 % на каждые 2 м высоты помещения.

4. В таблице указаны интенсивности орошения раствором пенообразователя общего назначения.

Таблица I.1.4

Исходные данные для проектирования АУП для помещений высотой до 20 м

Высота помещения, м

Интенсивность орошения, л/(с·м2), не менее, по группам помещений

Площадь для расчета асхода воды, раствора ПО, м2, о группам помещений

1

2

3

4.1

4.2

1

2

3

4.1

4.2

Вода

Вода

Раствор ПО

Вода

Раствор ПО

Вода

Раствор ПО

Раствор ПО

От 10 до 12

0,09

0,13

0,09

0,26

0,13

0,33

0,17

0,20

132

264

264

396

475

Св. 12 до 14

0,10

0,14

0,10

0,29

0,14

0,36

0,18

0,22

144

288

288

432

518

Св. 14 до 16

0,11

0,16

0,11

0,31

0,16

0,39

0,20

0,25

156

312

312

460

552

Св. 16 до 18

0,12

0,17

0,12

0,34

0,17

0,42

0,21

0,27

166

336

336

504

605

Св. 18 до 20

0,13

0,18

0,13

0,36

0,18

0,45

0,23

0,30

180

360

360

540

650

Примечания:

1. Группы помещений приведены в табл. I.1.5.

2. В таблице указаны интенсивности орошения раствором пенообразователя общего назначения.

Таблица I.1.5

Группы помещений (производств и технологических процессов) по степени опасности развития пожара в зависимости от их функционального назначения и пожарной нагрузки сгораемых материалов

Группа помещений

Перечень характерных помещений, производств, технологических процессов

1

Помещения книгохранилищ, библиотек, цирков, хранения сгораемых музейных ценностей, фондохранилищ, музеев и выставок, картинных галерей, концертных и киноконцертных залов, ЭВМ, магазинов, зданий управлений, гостиниц, больниц

2

Помещения деревообрабатывающего, текстильного, трикотажного, текстильно-галантерейного, табачного, обувного, кожевенного, мехового, целлюлозно-бумажного и печатного производств; окрасочных, пропиточных, малярных, смесеприготовительных, обезжиривания, консервации и расконсервации, промывки деталей с применением ЛВЖ и ГЖ; производства ваты, искусственных и пленочных материалов; швейной промышленности; производств с применением резинотехнических изделий; предприятий по обслуживанию автомобилей; гаражи и стоянки, помещения категории В3 (удельная пожарная нагрузка 181 - 1400 МДж/м2)

3

Помещения для производства резинотехнических изделий

4.1

Помещения для производства горючих натуральных и синтетических волокон, окрасочные и сушильные камеры, участки открытой окраски и сушки; краско-, лако-, клееприготовительных производств с применением ЛВЖ и ГЖ, помещения категории В2 (удельная пожарная нагрузка 1401 - 2200 МДж/м2)

4.2

Машинные залы компрессорных станций, станций регенерации, гидрирования, экстракции и помещения других производств, перерабатывающих горючие газы, бензин, спирты, эфиры и другие ЛВЖ и ГЖ, помещения категории В1 (удельная пожарная нагрузка более 2200 МДж/м2)

5

Склады несгораемых материалов в сгораемой упаковке. Склады трудносгораемых материалов

6

Склады твердых сгораемых материалов, в том числе резины, РТИ, каучука, смолы

7

Склады лаков, красок, ЛВЖ, ГЖ

Примечания:

1. Группы помещений определены по их функциональному назначению. В тех случаях, когда невозможно подобрать аналогичные производства, группу следует определять по категории помещения.

2. Категория помещений определяется в зависимости от удельной пожарной нагрузки по НПБ 105-95 и [34].

3. Удельная пожарная нагрузка определяется в соответствии с рекомендуемым приложением 3.

4. Параметры установок водяного и пенного пожаротушения для складских помещений, встроенных в здания, помещения которых относятся к 1-й группе, следует принимать по 2-й группе помещений.

1.2.6. Установки по времени срабатывания должны удовлетворять требованиям, приведенным в табл. I.1.6.

Таблица I.1.6

Время срабатывания АУП

Классификация АУП по быстродействию

Быстродействующие

Среднеинерционные

Инерционные

Время срабатывания tcp, с

Не более 3

Не более 30

30 < tcp < 180

1.2.7. Продолжительность действия установок должна удовлетворять требованиям, приведенным в табл. I.1.7.

Таблица I.1.7

Продолжительность действия АУП

Классификация АУП по продолжительности действия

Продолжительность действия tпр, мин, в зависимости от вида огнетушащего вещества

Вода (по ГОСТ Р 50680-94)

Пена (по ГОСТ Р 50800-95)

Кратковременного действия

-

≤ 10

Средней продолжительности действия

≤ 30

≤ 15

Длительного действия

30 < tпр 60

15 < tпр 25

1.3. Особенности проектирования традиционных спринклерных установок пожаротушения

Основные использованные источники: НПБ 88-2001, ГОСТ Р 50680, ГОСТ Р 50800

1.3.1. Спринклерные установки водяного и пенного пожаротушения в зависимости от температуры воздуха в помещениях следует проектировать:

водозаполненными - для помещений с минимальной температурой воздуха 5°С и выше;

воздушными - для неотапливаемых помещений с минимальной температурой ниже 5°С.

1.3.2. Спринклерные установки следует проектировать для помещений высотой не более 20 м, за исключением установок, предназначенных для защиты конструктивных элементов покрытий зданий и сооружений. В последнем случае параметры установок для помещений высотой более 20 м следует принимать по 1-й группе помещений (см. табл. I.1.5).

1.3.3. Для одной секции спринклерной установки следует принимать не более 800 спринклерных оросителей всех типов. При этом общая емкость трубопроводов каждой секции воздушных установок должна составлять не более 3 м3.

1.3.4. При использовании узла управления с акселератором или эксгаустером емкость трубопроводов воздушных установок может быть увеличена до 4 м3.

1.3.5. Каждая секция спринклерной установки должна иметь самостоятельный узел управления.

1.3.6. При защите нескольких помещений или этажей здания одной спринклерной секцией для выдачи сигнала, уточняющего адрес загорания, а также включения систем оповещения и дымоудаления допускается устанавливать на питающих трубопроводах, исключая кольцевые, сигнализаторы потока жидкости.

Перед сигнализатором потока жидкости допускается установка запорной арматуры с датчиками контроля состояния ее положения "Закрыто" - "Открыто".

1.3.7. В водозаполненных спринклерных АУП в качестве сигнального клапана может использоваться сигнализатор потока жидкости, за которым должен быть установлен обратный клапан.

1.3.8. В зданиях с балочными перекрытиями (покрытиями) класса пожарной опасности K0 и K1 с выступающими частями высотой более 0,32 м, а в остальных случаях - более 0,2 м, спринклерные оросители следует устанавливать между балками, ребрами плит и другими выступающими элементами перекрытия (покрытия) с учетом обеспечения равномерности орошения пола.

1.3.9. Расстояние от розетки спринклерного оросителя, устанавливаемого вертикально, до плоскости перекрытия (покрытия) должно составлять от 0,08 до 0,40 м.

Расстояние от горизонтальной части розетки спринклерного оросителя, устанавливаемого горизонтально относительно своей оси, до плоскости перекрытия (покрытия) должно быть от 0,07 до 0,15 м.

1.3.10. Монтаж оросителей для подвесных потолков должен выполняться в соответствии с требованиями ТД на данный вид оросителей.

1.3.11. В зданиях с односкатными и двухскатными покрытиями, имеющими уклон более 1/3, расстояние по горизонтали от спринклерных оросителей до стен и от спринклер-ных оросителей до конька покрытия должно быть не более 1,5 м при покрытиях с классом пожарной опасности К0 и не более 0,8 м - в остальных случаях.

1.3.12. В местах, где имеется опасность механического повреждения, спринклерные оросители должны быть защищены ограждающими кожухами. Ограждающие кожухи не должны препятствовать нормальному функционированию оросителей, т.е. уменьшать площадь и интенсивность орошения ниже нормативных значений.

1.3.13: Спринклерные оросители водозаполненных АУП устанавливаются вертикально розетками вверх или вниз либо горизонтально, в воздушных АУП - вертикально розетками вверх либо горизонтально.

1.3.14. Монтаж спринклерных оросителей должен быть произведен таким образом, чтобы разбрызгиваемый или распыляемый поток воды сработавшего оросителя не воздействовал непосредственно на смежные оросители.

1.3.15. Максимальную температуру окружающей среды для спринклерных оросителей следует устанавливать согласно табл. I.1.8.

Таблица I.1.8

Предельно допустимая температура окружающей среды

Номинальная температура срабатывания,°С

Предельно допустимая температура окружающей среды,°С

Номинальная температура срабатывания,°С

Предельно допустимая температура окружающей среды,°С

57

38

141

71-100

68

50

163

101-120

72

52

182

101-140

74

52

204

141-162

79

51-58

227

141-185

93

53-70

240

186-200

100

71-77

260

201-220

121

78-80

343

221-300

1.3.16. В пределах одного защищаемого помещения следует устанавливать однотипные оросители с одинаковым диаметром выходного отверстия.

1.3.17. Расстояние между спринклерными оросителями и стенами (перегородками) с классом пожарной опасности K1 не должно превышать половины расстояния между спринклерными оросителями, указанными в табл. I.1.2.

1.3.18. Расстояние между спринклерными оросителями и стенами (перегородками) с ненормируемым классом пожарной опасности не должно превышать 1,2 м.

1.3.19. Расстояние между спринклерными оросителями установок водяного пожаротушения, устанавливаемыми под гладкими перекрытиями (покрытиями), должно быть не менее 1,5 м.

1.3.20. К питающим трубопроводам водозаполненных спринклерных АУП диаметром 65 мм и более допускается присоединять пожарные краны внутреннего противопожарного водопровода.

1.3.21. Продолжительность работы внутренних пожарных кранов, оборудованных ручными водяными или пенными пожарными стволами и подсоединенных к питающим трубопроводам спринклерной установки, следует принимать равной времени работы спринклерной установки.

1.3.22. Проектирование внутренних пожарных кранов следует осуществлять по СНиП 2.04.01-85*.

1.4. Особенности проектирования традиционных дренчерных установок пожаротушения

Основные использованные источники: НПБ 88-2001, ГОСТ Р 50680, ГОСТ Р 50800

1.4.1. Автоматическое включение дренчерных установок следует осуществлять по сигналам от одного из видов технических средств:

- побудительных систем;

- установок пожарной сигнализации;

- датчиков технологического оборудования.

1.4.2. Побудительный трубопровод дренчерных установок, заполненных водой или раствором пенообразователя, следует устанавливать на высоте относительно клапана, не превышающей 1/4 уровня постоянного давления в подводящем трубопроводе, или в соответствии с технической документацией на сигнальный клапан, используемый в узле управления.

1.4.3. Для нескольких функционально связанных дренчерных завес допускается предусматривать один узел управления.

1.4.4. Включение дренчерных завес допускается производить либо автоматически при срабатывании установки пожаротушения, либо вручную (дистанционно или по месту).

1.4.5. Расстояние между оросителями дренчерных завес следует определять из расчета обеспечения расхода воды или раствора пенообразователя 1 л/с на 1 м ширины проема. При устройстве дренчерных завес в две и более линии, расположенные друг от друга на расстоянии не более 0,5 м, суммарный расход воды должен быть не менее 1 л/с на 1 м завесы при продолжительности работы не менее 1 ч.

1.4.6. Расстояние от теплового замка побудительной системы до плоскости перекрытия (покрытия) должно составлять от 0,08 до 0,40 м.

1.4.7. Для повышения быстродействия дренчерных АУП и снижения степени корродирования внутренних поверхностей питающих и распределительных трубопроводов допускается их заполнение водой до уровня наиболее низко расположенного дренчерного оросителя. При наличии у оросителей легкосбрасываемых заглушек или колпачков допускается заполнять водой питающие и распределительные труоопроводы полностью; при этом для удаления воздуха в наиболее высокой точке трубопроводной системы необходимо установить кран с диаметром выходного отверстия не более 10 мм.

1.5. Особенности проектирования установок пожаротушения высокократной пеной

Основные использованные источники: НПБ 88-2001

1.5.1. Установки пожаротушения высокократной пеной применяются для объемного и локально-объемного тушения пожаров классов А и В по ГОСТ 27331.

1.5.2. Установки локально-объемного пожаротушения высокократной пеной применяются для тушения пожаров отдельных агрегатов или оборудования в тех случаях, когда применение установок для защиты помещения в целом технически невозможно или экономически нецелесообразно.

1.5.3. Установки должны соответствовать общим техническим требованиям, установленным ГОСТ Р 50800.

1.5.4. В установках следует использовать только специальные пенообразователи, предназначенные для получения пены высокой кратности.

1.5.5. Установки должны обеспечивать заполнение защищаемого помещения пеной до высоты, превышающей самую высокую точку оборудования не менее чем на 1 м, включая выгороженные в нем участки, в течение не более 10 мин.

При определении общего объема защищаемого помещения объем оборудования, находящегося в помещении, не следует исключать из защищаемого объема помещения.

1.5.6. Оборудование АУП, длину и диаметр трубопроводов необходимо выбирать из условия, что инерционность установки не должна превышать 180 с.

1.5.7. Расход раствора пенообразователя, масса пенообразователя и производительность установок по пене определяются исходя из расчетного объема защищаемых помещений (см. главу IV.1.6). Если установка предназначена для защиты нескольких помещений, то в качестве расчетного принимается то помещение, для которого требуется наибольшее количество раствора пенообразователя.

1.5.8. При поступлении пены в защищаемое помещение должен быть предусмотрен сброс воздуха в верхней части защищаемого помещения, противоположной вводу пены.

1.5.9. При использовании установок локально-объемного пожаротушения защищаемые агрегаты или оборудование ограждаются металлической сеткой с размером ячейки не более 5 мм. Высота ограждающей конструкции должна превышать не менее чем на 1 м высоту защищаемого агрегата или оборудования и находиться от него на расстоянии не менее 0,5 м.

1.5.10. Расчетный объем локального пожаротушения определяется произведением площади основания огораживающей агрегат конструкции на ее высоту. Время заполнения защищаемого объема при локальном тушении не должно превышать 180 с.

1.5.11. В одном помещении необходимо применять генераторы пены только одного типа и конструкции.

1.5.12. Трубопроводы следует проектировать из оцинкованных стальных труб по ГОСТ 3262.

1.5.13. При расположении генераторов пены в местах их возможного механического повреждения должна быть предусмотрена их защита.

1.5.14. В установках, кроме расчетного количества, должен быть 100 %-ный резерв пенообразователя.

1.5.15. Установки должны быть снабжены сетчатыми фильтрами, установленными на распределительных трубопроводах перед генераторами пены; размер фильтрующей ячейки должен быть меньше минимального размера канала истечения оросителя генератора пены.

1.5.16. Если площадь защищаемого помещения превышает 400 м2, то ввод пены необходимо осуществлять не менее чем в двух местах, расположенных в противоположных частях помещения.

1.5.17. В одном помещении должны применяться генераторы пены одного типоразмера и конструкции.

1.5.18. При наличии в помещении принудительной вентиляции следует обеспечить ее отключение в момент запуска установки. При наличии естественной вентиляции рекомендуется ограничить приток воздуха из вентиляционных отверстий.

1.5.19. Генераторы пены с принудительной подачей воздуха должны размещаться в насосной станции или непосредственно в защищаемом помещении. В первом случае пена в защищаемое помещение подается либо непосредственно из выходного патрубка генератора, либо по специальным каналам, диаметр которых должен быть не менее диаметра выходного патрубка генератора, а длина - не более 10 м. Во втором случае должен быть обеспечен забор свежего воздуха или применение пенообразователей, способных образовывать пену в среде продуктов горения.

1.5.20. Каналы для подачи пены генераторами с принудительной подачей воздуха должны соответствовать классу пожарной опасности K0.

1.5.21. Выходное отверстие генераторов высокократной пены с принудительной подачей воздуха или трубопроводы подачи пены в месте выхода их за пределы насосной станции должны быть оборудованы закрывающим устройством. Устройство должно открываться автоматически одновременно с подачей пены. Следует предусмотреть ручное управление этим устройством и наличие указателей положений "Открыто" и "Закрыто".

1.5.22. В верхней части помещений, защищаемых генераторами высокократной пены с принудительной подачей воздуха, должен быть предусмотрен сброс воздуха при поступлении пены.

1.5.23. В установках объемного пожаротушения с генераторами эжекционного типа они размещаются под потолком и распределяются равномерно по площади помещения таким образом, чтобы обеспечить заполнение пеной всего объема помещения, включая выгороженные в нем участки. В установках локально-объемного пожаротушения генераторы эжекционного типа размещаются непосредственно над защищаемым участком помещения или технологическим оборудованием.

2. ОСОБЕННОСТИ ПРОЕКТИРОВАНИЯ АУП СТАЦИОНАРНЫХ ВЫСОТНЫХ СТЕЛЛАЖНЫХ СКЛАДОВ

Основные использованные источники: [37]

2.1. Общие положения

2.1.1. Настоящие положения распространяются на проектирование автоматических установок пожаротушения в высотных складах со стационарными стеллажами с высотой складирования от 5,5 до 25 м.

2.1.2. Настоящие положения не распространяются на проектирование автоматических установок пожаротушения в помещениях складов лаков, красок, ЛВЖ, ГЖ, автошин, каучука, химпродукции, медикаментов, тлеющих материалов (хлопок, табак), продукции в аэрозольной упаковке.

2.1.3. Проектирование спринклерных установок в зоне приемки, упаковки, комплектации и отправки грузов производится в соответствии с требованиями НПБ 88-2001 (см. главу 1 настоящего раздела).

2.1.4. Проектирование автоматических установок пожаротушения в зоне высотного складирования осуществляется согласно требованиям [37] и главы 2 настоящего раздела.

2.1.5. Гидравлический расчет установок пожаротушения, продолжительность их работы, выбор оборудования должны отвечать требованиям НПБ 88-2001, [2 - 5, 26, 32, 39] (см. главу 1 настоящего раздела и раздел IV настоящего пособия).

2.1.6. Водоснабжение и внутренний противопожарный водопровод должны отвечать требованиям НПБ 88-2001, СНиП 2.04.01-85* и СНиП 2.04.02-84*.

2.1.7. Стеллажи оборудуются горизонтальными экранами согласно требованиям пп 2.3.2 - 2.3.4 настоящей главы.

2.1.8. Объемно-планировочные и конструктивные решения складов должны отвечать требованиям СНиП 2.09.02-85 и СНиП 2.11.01-85.

2.1.9. Общий расход воды на внутреннее пожаротушение высотных стеллажных складов следует принимать по наибольшему суммарному расходу в зоне стеллажного хранения или в зоне приемки, упаковки, комплектации и отправки грузов.

2.1.10. В насосной станции для подключения спринклерной установки к передвижной пожарной технике следует предусмотреть трубопроводы с соединительными головками, выведенными наружу; при этом они должны обеспечивать наибольший расчетный расход воды для одной из спринклерных секций.

2.2. Требования к автоматическим установкам пожаротушения в зоне высотного складирования со стационарными стеллажами

2.2.1. В том случае, если стеллажи являются несущими конструкциями здания, размещение спринклерных оросителей под покрытием следует производить над проходами согласно схеме, приведенной на рис. I.2.1. При этом расстояние между оросителями вдоль проходов должно быть не более 2 м.

Рис. I.2.1. Схема размещения оросителей под покрытием склада с несущими стеллажами:

1 - стеллаж; 2 - распределительный трубопровод; 3 - ороситель

2.2.2. Если стеллажи не являются несущими конструкциями, размещение спринклерных оросителей под покрытием производится в соответствии с НПБ 88-2001 (глава 1 настоящего раздела).

2.2.3. Для автоматических установок пожаротушения, размещаемых под покрытием над зоной стеллажного хранения, при высоте складирования до 16 м интенсивность орошения необходимо принимать не менее 0,12 л/(с·м2), свыше 16 м - не менее 0,18 л/(с·м2). Площадь для расчета расхода воды, раствора пенообразователя или воды со смачивателем независимо от вариантов расстановки оросителей - 180 м2.

2.2.4. В складах с несущими стеллажами в автоматических установках пожаротушения под покрытием рекомендуется применять розеточные оросители горизонтального монтажного расположения "Г" (по НПБ 87-2000) в соответствии с табл. I.2.1.

Во внутристеллажном пространстве отапливаемых складов рекомендуется применять розеточные оросители общего назначения вертикального монтажного расположения "В" (по НПБ 87-2000 и ГОСТ Р 51043), но устанавливаемые розеткой вниз (см. табл. I.2.1), в неотапливаемых - розеточные оросители типа "Г" (см. табл. I.2.1).

Возможные варианты установки оросителей во внутристеллажном пространстве показаны на рис. I.2.2 - I.2.4. Допускается применение специальных оросителей различного монтажного расположения, предназначенных для установки во внутристеллажном пространстве и отвечающих требованиям НПБ 87-2000 или проекта ГОСТ Р 51043-2003.

2.2.5. Выбор и размещение оросителей проводятся с учетом требуемой интенсивности и площади орошения. Радиус орошаемой зоны во внутристеллажном пространстве для розе-точных оросителей типа "В" составляет:

с диаметром выходного отверстия 10 мм - 0,8 м;

с диаметром выходного отверстия 15 мм - 0,9 м.

Таблица I.2.1

Основные характеристики оросителей, монтируемых внутри стеллажей

Показатель

Характеристика в зависимости от типа оросителя и условного диаметра выходного отверстия, мм

В

Г

12

15

12

Обозначение по ГОСТ 14630

СВ-12

СВ-15

СН-12

Обозначение по ГОСТ Р 51043

СВВ-12

СВВ-15

СВГ-12

Обозначение по НПБ 87-2000

СВО-0,5РВВо-0,45

СВО-1РВВо-0,71

СВО-0,5РВГо-0,45

Обозначение по проекту ГОСТ Р 51043-2003

СВО0-РНо0,45

СВО0-РНо0,71

СВО1-РГо0,45

Монтажное расположение оросителя во внутристеллажном пространстве независимо от обозначения по стандартам

Розеткой вниз

Горизонтальное

Истинный диаметр выходного отверстия, мм

12,0

15,5

12,0

Конструкция розетки

Выпуклая

Выпуклая

Плоская + фасонная

Резьба штуцера

R1/2

Размеры розетки, мм

Ø44,4

Ø36,0

36×20

Толщина розетки, мм

1,5

1,5

1,5

Количество отверстий в розетке и их диаметр, мм

8 отверстий Ø3

-

Количество лепестков

8

8

7 (на фасонной части)

Ширина лепестка, мм

14

11

-

Длина лепестка, мм

10

6

-

Расстояние от вводного отверстия до основания розетки, мм

52

50

50

Коэффициент производительности, л/(с·м0,5)

0,45

0,71

0,45

Габаритные размеры оросителя, мм

87×58

71×56

100×47

Примечание. Допускается использовать другие конструкции оросителей, обеспечивающие аналогичные коэффициент производительности и интенсивность орошения.

Расчетная площадь орошения для розеточных оросителей типа "Г" с диаметром выходного отверстия 12 мм имеет форму квадрата со стороной а. В зависимости от высоты Н, представляющей собой расстояние от розетки оросителя до защищаемой поверхности, принимаются следующие значения а:

при Н = 0,05 м а = 1,1 м;

при Н = 0,10 м а = 1,3 м;

при Н = 0,20 м а = 1,6 м.

2.2.6. Во внутристеллажном пространстве спринклерные оросители устанавливаются под экраном следующим образом:

- розеточные оросители типа "В" - розеткой вниз; расстояние между розеткой оросителя и верхом хранящихся грузов - не менее 50 мм, расстояние между розеткой и экраном - в пределах 100 - 250 мм;

- розеточные оросители типа "Г" - горизонтально; при этом направляющая лопатка должна находиться в верхнем положении и параллельно плоскости пола;

- в радиусе 150 мм в экранах над оросителями не допускается расположение сквозных отверстии, щелей.

Рис. I.2.2. Примерная схема размещения розеточных оросителей типа "В" во внутристеллажном пространстве спаренного стеллажа:

1 - распределительный трубопровод; 2 - экран; 3 - хранящийся груз; 4 - поддон; 5 - стеллаж

Рис. I.2.3. Примерная схема размещения розеточных оросителей типа "В" в одинарном стеллаже:

1 - стеллаж; 2 -распределительный трубопровод; 3 - розеточный ороситель типа "В"; 4 - экран; 5 - стеновая панель

2.2.7. Давление у "диктующего" оросителя в универсальных (многономенклатурных) складах во внутристеллажном пространстве должно быть не менее 0,1 МПа, в складах резинотехнических изделий - 0,15 МПа.

2.2.8. Общий расход воды на пожаротушение определяется по формуле:

Q = Qст + Qп + Qвпв,

где Qст - расход воды для спринклерной установки во внутристеллажном пространстве; Qп - расход воды для спринклерной установки под покрытием; Qвпв - расход воды для внутреннего противопожарного водопровода.

2.2.9. Расход воды для спринклерной установки во внутристеллажном пространстве определяется по формуле:

где A- длина расчетной секции, м; B- наибольшая ширина совмещенных стеллажей, м; n - количество экранов по высоте; q - интенсивность орошения под экраном, л/(с·м2).

Рис. I.2.4. Схема установки розеточных оросителей типа "Г" на распределительных трубопроводах во внутристеллажном пространстве (вид сверху):

1 -распределительный трубопровод; 2 -розеточный ороситель типа "Г"; 3 - стеллаж

Длина расчетной секции A определяется по табл. I.2.2 в зависимости от конструкции поддонов, применяемых для складирования материалов.

Таблица I.2.2

Длина расчетной секции A

Тип поддона

Длина секции A, м

Плоский

15

Стоечный

12

Металлический ящичный

8

Интенсивность орошения во внутристеллажном пространстве определяется по табл. I.2.3.

Таблица I.2.3

Интенсивность орошения во внутристеллажном пространстве

Складируемые материалы

Интенсивность орошения под экраном, л/(с·м2), не менее, при расстоянии между экранами, м

≤ 7

3

4,5

Твердые сгораемые материалы

0,24

0,36

0,5

Несгораемые материалы в сгораемой упаковке

0,2

0,3

0,4

Резинотехнические изделия

0,4

0,6

0,8

При использовании раствора пенообразователя или воды со смачивателем интенсивность орошения, указанная в табл. I.2.3, может быть снижена в 1,5 раза.

2.2.10. Грузы высотой до 1 м (кроме резинотехнических изделий), размещаемые на верхнем ярусе стеллажей (за исключением несущих) над экраном, допускается защищать спринклерной установкой, расположенной под покрытием помещения склада. При этом интенсивность орошения должна приниматься не менее 0,16 л/(с·м2), а расстояние от верха хранящихся грузов до потолка не должно превышать 10 м.

2.2.11. Спринклерные секции под покрытием и во внутристеллажном пространстве должны иметь отдельные узлы управления.

2.2.12. В качестве вспомогательного водопитателя установки используется гидропневматический бак или совокупность гидравлического и пневматического баков. Объем воды в этом водопитателе определяется расчетом из условия обеспечения работы группы оросителей, расположенных в пределах расчетной секции на одном ярусе, в течение 1 мин, но должен быть не менее 2 м3.

2.3. Требования к планировке складов и стеллажей

2.3.1. В стеллажах должны быть предусмотрены поперечные проходы высотой не менее 2 м и шириной не менее 1,5 м с выходом из помещения хранения через каждые 40 м. Проходы необходимо отделять от конструкций стеллажей противопожарными перегородками 1-го типа по СНиП 21-01-97. Проходы в стеллажах должны совпадать с выходами из помещения хранения.

2.3.2. Горизонтальные экраны в стационарных стеллажах размещаются с шагом по высоте не более 4,5 м. Экраны должны перекрывать все горизонтальное сечение стеллажей, в том числе и зазоры между спаренными стеллажами. Расстояние до первого экрана следует принимать от уровня пола.

2.3.3. Экраны должны быть изготовлены из несгораемого материала. Примерный перечень материалов для изготовления экранов приведен в табл. I.2.4.

Таблица I.2.4

Материалы, применяемые для изготовления экранов

Материал

Толщина, мм, не менее

Сталь листовая

0,6

Цементостружечная плита

10

Листы асбестоцементные плоские

10

2.3.4. Экраны и днища ящичной тары должны иметь отверстия диаметром 10 мм, расположенные равномерно с шагом 150 мм. Отверстия не делают в днищах ящичной тары, имеющей гофрированную поверхность, зиги на которой размещены равномерно, а их количество на одной из сторон при продольном расположении - не менее 3, при поперечном - 4.

2.3.5. Грузы на стеллажах не должны выходить за их пределы.

2.3.6. Сигнальные клапаны должны иметь свободный доступ для обслуживания и ручного пуска.

2.3.7. Спринклерные оросители должны иметь защиту от механических повреждений при погрузочно-разгрузочных операциях.

2.3.8. Экраны и распределительные трубопроводы автоматических установок пожаротушения не должны препятствовать погрузочно-разгрузочным операциям.

2.3.9. Трубчатые несущие конструкции стеллажей могут быть использованы для транспортировки огнетушащего вещества, при этом они должны обладать достаточной прочностью, пропускной способностью и герметичностью.

2.3.10. Высотные стеллажные склады, сблокированные с производственным корпусом, следует размещать в одноэтажном здании и отделять от цеха и других помещений противопожарными стенами 1-го типа по СНиП 21-01-97.

2.3.11. Если склад соединен с производственным корпусом с категориями производства В, Г и Д технологическими проемами, то в них следует предусматривать дренчерную завесу, если - тамбуром, то спринклерную установку. Размеры тамбура и расход воды определяют по п. 2.12 СНиП 2.09.02-85.

2.3.12. Согласно требованиям технологии хранения грузов допускается экспедицию, участки приемки, сортировки и комплектации размещать непосредственно в складских помещениях.

2.3.13. Стеллажи, размещенные непосредственно в цехах и предназначенные для хранения грузов, необходимых для обеспечения непрерывного технологического процесса, следует отделять от других помещений цеха несгораемыми противопожарными стенами и перекрытиями 1-го типа.

3. ОСОБЕННОСТИ ПРОЕКТИРОВАНИЯ УСТАНОВОК ПОЖАРОТУШЕНИЯ РАСПЫЛЕННОЙ ВОДОЙ

Основные использованные источники: НПБ 80-99

3.1. Установки пожаротушения распыленной водой применяются для поверхностного и локального по поверхности тушения очагов пожара классов А и В по ГОСТ 27331-87.

3.2. Нормативные параметры подачи распыленной воды и методика расчета установок принимаются по техническим условиям, разрабатываемым для каждого конкретного объекта и согласованным с ГУГПС или ФГУ ВНИИПО МЧС России.

3.3. Исполнение установок должно соответствовать требованиям НПБ 80-99, НПБ 88-2001, ПБ 10-115-96, ГОСТ 12.2.003, ГОСТ 12.2.037 и ГОСТ 12.4.009.

3.4. Установки пожаротушения распыленной водой могут быть агрегатными или модульными.

3.5. Модули установок могут размещаться в защищаемом помещении или за его пределами.

3.6. При использовании воды с добавками, выпадающими в осадок или образующими раздел фаз при длительном хранении, в установках должны быть предусмотрены устройства для их перемешивания.

3.7. Для модульных установок в качестве газа-вытеснителя могут использоваться воздух, углекислота, азот и другие инертные газы. Сжиженные газы, применяемые в качестве вытеснителей огнетушащего вещества, не должны ухудшать параметров работы установки.

3.8. В установках для вытеснения огнетушащего вещества допускается применять газогенерирующие элементы, прошедшие промышленные испытания и рекомендованные к применению в пожарной технике. Конструкция газогенерирующего элемента должна исключать возможность попадания каких-либо его фрагментов в огнетушащее вещество.

Запрещается применять газогенерирующие элементы в качестве вытеснителей огнетушащего вещества при защите культурных ценностей.

3.9. Установки должны быть работоспособны в диапазоне температур окружающей среды 5 - 50°С.

3.10. Инерционность срабатывания установок при автоматическом пуске (время с момента подачи командного импульса до начала выпуска воды или воды с добавками из наиболее удаленного оросителя) не должна превышать величины, указанной в ТД на изделие.

3.11. Значения расхода воды (воды с добавками) и газа через ороситель (оросители) не должны отличаться от установленных в ТД*.

НПБ 80-99 (пп. 19 - 20) фраза заканчивается словами: "... более чем на ±2,5 %"; в настоящее время готовится новая редакция, в которой указанная фраза отсутствует.

3.12. Продолжительность действия установок не должна отличаться от установленной в ТД*.

3.13. Установки должны обеспечивать тушение на всей площади, заявляемой в ТД, модельных очагов пожара классов А и/или В, указанных в НПБ 80-99 (п. 69):

- класса А - штабели из пяти рядов брусков, сложенных и скрепленных между собой в виде колодца, образующих в горизонтальном сечении квадрат. В каждый ряд укладывают по три бруска, имеющие в поперечном сечении квадрат размером (39 ± 1) мм, длиной (150 ± 5) мм;

- класса В - цилиндрические противни из стали по ГОСТ 5632 с внутренним диаметром (180 ± 20) мм и высотой (70 ± 10) мм, горючая жидкость - н-гептан по ГОСТ 25828 или бензин А-76 по ГОСТ 2084 в количестве (630 ± 15) мл. Время свободного горения горючей жидкости - 1 мин.

В качестве горючего материала используют бруски хвойных пород дерева не ниже 3-го сорта по ГОСТ 8486. Влажность пиломатериала должна быть от 10 до 14 %. Под штабелем устанавливают металлический противень размером 150×150 мм с бензином для поджога древесины. Время с момента поджога очага до начала подачи огнетушащего вещества (время свободного горения) должно составлять (6 ± 1) мин.

3.14. Расчет и проектирование установок проводятся на основе нормативно-технической документации предприятия-изготовителя установок, согласованной в установленном порядке.

3.15. Наружная поверхность модулей (баллонов) должна быть окрашена в красный цвет в соответствии с ГОСТ 12.4.026; по требованию заказчика допускается окраска в тон интерьера.

3.16. В установке, в которой в качестве огнетушащего вещества используются водные растворы, изменяющие в процессе хранения свою физическую однородность, должны быть предусмотрены устройства для их перемешивания.

3.17. Модульные установки пожаротушения распыленной водой (МУПРВ) должны быть оборудованы:

- устройствами слива и наполнения ОТВ из емкостей (баллонов) и трубопроводов для их хранения;

- устройствами контроля уровня или массы ОТВ в емкостях (баллонах) для их хранения;

- вентилем для выпуска газовой фазы из баллонов и трубопроводов;

- штуцером для присоединения манометра;

- предохранительным устройством.

3.18. Оросители должны быть устойчивы к коррозионному и тепловому воздействию. Оросители, изготовленные из материалов, не обладающих коррозионной стойкостью, должны иметь защитные или защитно-декоративные покрытия в соответствии с ГОСТ 9.301, ГОСТ 9.303 и выдерживать в течение не менее 10 мин нагрев при температуре 250°С.

3.19. Сосуды, работающие под давлением, должны быть снабжены предохранительными устройствами, срабатывающими при давлении 1,15Pраб < P < 1,25Pраб, где Pраб - рабочее давление сосуда МУПРВ.

3.20. Сосуды, работающие под давлением, должны выдерживать превышение давления 1,5Pраб.

3.21. МУПРВ закачного типа должны иметь манометр или индикатор давления с рабочим диапазоном, выбранным с учетом соотношения "температура - давление". На шкале индикатора давления должны быть обозначены значения минимального и максимального рабочего давления, установленные в ТД на МУПРВ. Участок шкалы индикатора давления, охватывающий диапазон рабочего давления, должен быть окрашен в зеленый цвет. Участки шкалы вне диапазона рабочего давления должны быть окрашены в красный цвет и иметь надпись:

- "Превышение давления" - для участка шкалы выше максимального рабочего давления;

- "Требуется зарядка" - для участка шкалы от нуля до минимального значения рабочего давления.

Участки шкалы манометра также рекомендуется выделять путем нанесения линий, полос или секторов различного цвета.

Допускаемая основная погрешность манометра во всем диапазоне шкалы должна соответствовать требованию ГОСТ 2405 (класс точности не ниже 2,5).

Максимальная допускаемая основная погрешность индикатора давления не должна превышать 4 %.

3.22. Конструкция АУП должна обеспечивать демонтаж измерительных устройств для их поверки.

3.23. Краны должны быть снабжены указателями (стрелками) направления потока жидкости (газа) и/или надписями "ОТКР" и "ЗАКР".

3.24. Установки должны быть снабжены сетчатыми фильтрами, установленными перед распылителями; размер фильтрующей ячейки должен быть меньше минимального сечения канала истечения распылителя.

3.25. Выходные отверстия распылителей должны быть защищены от загрязняющих факторов внутренней и внешней среды. Защитные мероприятия, устройства, приспособления (фильтры, сетки, декоративные корпуса, колпачки и т.д.) не должны ухудшать параметров работы установки.

3.26. Трубопроводы установок должны быть выполнены из оцинкованной или нержавеющей стали.

4. ОСОБЕННОСТИ ПРОЕКТИРОВАНИЯ РОБОТИЗИРОВАННЫХ УСТАНОВОК ПОЖАРОТУШЕНИЯ И УСТАНОВОК ПОЖАРОТУШЕНИЯ СО СТАЦИОНАРНЫМИ ДИСТАНЦИОННО УПРАВЛЯЕМЫМИ ЛАФЕТНЫМИ СТВОЛАМИ

Основные использованные источники: НПБ 84-2000, [16, 17, 40]

4.1. Давление подачи, расход, дальность и высота подачи огнетушащего вещества, эпюры орошения в зависимости от давления подачи и угла наклона пожарного ствола, кратность пены, расстояние между дистанционным пультом управления и пожарным стволом роботизированной установки пожаротушения (РУП) или стационарным дистанционно управляемым лафетным стволом (ДУЛС) принимаются по ТД на конкретный вид РУП или ДУЛС.

4.2. Каждая точка защищаемой зоны должна орошаться не менее чем двумя пожарными стволами РУП или ДУЛС.

4.3. Перекрытие защищаемой зоны орошения РУП или ДУЛС должно составлять не менее 20 % в каждую сторону.

4.4. Напряжение питания системы управления РУП или ДУЛС - 220 В, привода пожарного ствола РУП или ДУЛС и элементов управления, находящихся на пожарном стволе РУП, - 12 или 24 В.

4.5. РУП должны выполнять в совокупности и/или в отдельности следующие функции:

- автоматическое наведение на очаг пожара, тушение и локализация пожара;

- автоматическое наведение и подача огнетушащего вещества на технологические конструкции и аппараты с целью их охлаждения или защиты от перегрева.

4.6. ДУЛС должны позволять выполнять в совокупности и/или раздельно следующие функции:

- дистанционное наведение на очаг пожара, тушение и локализация пожара;

- дистанционное наведение на технологические конструкции и аппараты с целью их охлаждения и защиты от перегрева.

4.7. Приоритеты управления (по важности):

для РУП: управление вручную - управление с местного пульта управления (МПУ) - управление с дистанционного пульта (ДПУ) - программное сканирование;

для ДУЛС: управление вручную - управление с МПУ -управление с ДПУ.

4.8. Пожарные стволы РУП и ДУЛС должны размещаться таким образом, чтобы в зоне действия струй огнетушащего вещества не находилось преград.

4.9. Расстояние между пожарными стволами РУП или ДУЛС не должно превышать 80 % максимальной дальности подачи огнетушащего вещества пожарным стволом РУП или ДУЛС при установленном минимальном рабочем давлении.

4.10. При монтаже пожарного ствола РУП или ДУЛС необходимо исключить препятствие для его поворота в горизонтальной и вертикальной плоскостях.

4.11. Для РУП или ДУЛС необходимо предусматривать возможность управления ими и вручную (как обычным пожарным стволом), и с местного и дистанционного пульта управления.

4.12. При размещении пожарного ствола РУП (или ДУЛС) на площадке, расположенной на высоте более 1 м от уровня пола, она должна быть оборудована ограждением для обеспечения безопасности персонала. Для доступа на площадку следует предусмотреть маршевую лестницу.

4.13. Площадка, на которой монтируется пожарный ствол РУП или ДУЛС, должна иметь размеры в плане не менее 1,5×1,5 м.

4.14. Перед пожарным стволом РУП должен быть установлен регулятор давления.

4.15. Запорная арматура и регулятор давления должны находиться на расстоянии не более 3 мот пожарного ствола РУП или ДУЛС.

4.16. При наличии устройств внешнего орошения РУП или ДУЛС температура их срабатывания не должна превышать 74°С или должна приниматься согласно требованиям технической документации на данные РУП или ДУЛС.

4.17. Наведение пожарного ствола РУП на очаг пожара или защищаемое технологическое оборудование должно выполняться от установки пожарной сигнализации (аппаратуры обнаружения пожара) или от собственной аппаратуры наведения на очаг пожара

4.18. Предварительное программирование РУП должно осуществляться по лазерной указке с учетом эпюры дальности подачи ВО в зависимости от давления и модели насадка пожарного ствола.

4.19. РУП не должна давать сбоев различного вида от индустриальных помех, присущих защищаемому объекту.

4.20. В РУП должны быть предусмотрены следующие автоматические функции:

- включение устройств внешнего орошения РУП при превышении температуры в зоне пожарного ствола РУП выше допустимой;

- включение запорного устройства (задвижки или затвора);

- наведение на очаг пожара;

- выбор программы сканирования пожарным стволом РУП;

- поддержание постоянства давления у насадка пожарного ствола РУП.

4.21. В РУП должна быть предусмотрена световая сигнализация:

- режима работы РУП (ручной, дистанционный, программный, адаптивный);

- срабатывания РУП;

- вида реализуемой программы сканирования;

- идентификационных меток работающих пожарных стволов РУП;

- срабатывания устройств орошения;

- перегрузки двигателей привода пожарного ствола РУП.

4.22. Для ДУЛС рекомендуется предусматривать световую сигнализацию:

- об использовании ДУЛС в процессе пожаротушения (непосредственно на стволе и ДПУ);

- о срабатывании устройств орошения (на ДПУ).

4.23. В РУП должна быть предусмотрена звуковая сигнализация о срабатывании.

4.24. Пожарные стволы РУП и ДУЛС должны быть окрашены в красный цвет.

4.25. Проекты противопожарной защиты с использованием РУП или ДУЛС для каждого конкретного объекта следует согласовывать с ГУГПС или ФГУ ВНИИПО МЧС России.

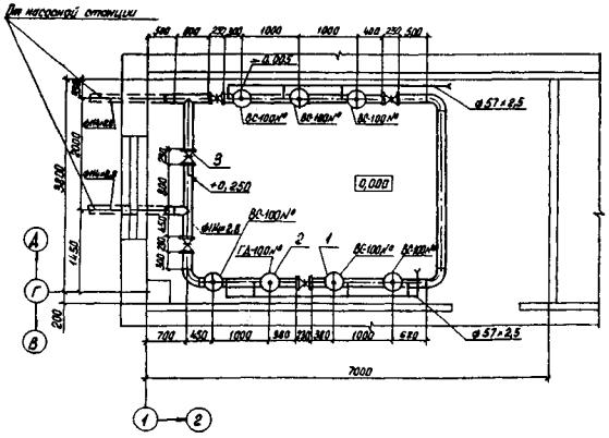
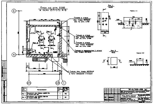
5. НАСОСНЫЕ СТАНЦИИ

Основные использованные источники: СНиП 2.04.01-85*, СНиП 2.04.02-84*, НПБ 88-2001, [8, 10]

5.1. Насосные станции (станции пожаротушения) автоматических установок пожаротушения по степени обеспеченности подачи воды согласно СНиП 2.04.02-84* следует относить к 1-й категории.

5.2. Насосные станции по надежности электроснабжения должны соответствовать 1-й категории согласно ПУЭ.

5.3. В случае невозможности в силу местных условий обеспечить насосные установки питанием по 1-й категории от двух независимых источников электроснабжения допускается применять для этого один источник при условии подключения к разным линиям напряжением 0,4 кВ и к разным трансформаторам двухтрансформаторной подстанции или трансформаторам двух ближайших однотрансформаторных подстанций (с устройством автоматического резервного выключателя).

5.4. При невозможности обеспечения необходимой надежности электроснабжения насосных установок допускается устанавливать резервные насосы с приводом от двигателей внутреннего сгорания. При этом не допускается размещать их в подвальных помещениях.

5.5. Насосные станции допускается располагать в производственных зданиях, при этом помещение насосной станции должно быть отделено от других помещений противопожарными перегородками и перекрытиями с пределом огнестойкости REI 45 по СНиП 21-01-97*.

5.6. Насосные станции следует размещать в отдельном помещении зданий на первых, в цокольных и подвальных этажах; они должны иметь отдельный выход наружу или на лестничную клетку, имеющую выход наружу. Допускается размещать насосные станции в отдельно стоящих зданиях или пристройках.

5.7. Температура воздуха в помещении насосной станции должна быть от 5 до 35°С, относительная влажность воздуха - не более 80 % при 25°С.

5.8. Насосные станции должны проектироваться, как правило, с управлением без постоянного обслуживающего персонала. При автоматическом или дистанционном (телемеханическом) управлении обязательно следует предусматривать местное управление.

5.9. Одновременно с включением пожарных насосов должны автоматически выключаться все насосы другого назначения, запитанные в данную магистраль и не входящие в АУП.

5.10. Выбор типа насосов и количества рабочих насосных агрегатов надлежит производить на основе совместной работы насосов, с учетом максимальных значений рабочего расхода и давления.

5.11. Рабочее и аварийное освещение следует принимать согласно СНиП 23-05-95.

5.12. Помещение станции должно быть оборудовано телефонной связью с помещением пожарного поста.

5 13. У входа в помещение насосной станции должно находиться световое табло "Насосная станция".

5.14. Размеры машинного зала насосной станции надлежит определять с учетом требований СНиП 2.04.02-84* (раздел 12).

5.15. Для уменьшения габаритов станции в плане допускается устанавливать насосы с правым и левым вращением вала, при этом рабочее колесо должно вращаться только в одном направлении.

5.16. При определении площади помещений насосных станций ширину проходов следует принимать не менее:

- между насосами или электродвигателями - 1 м;

- между насосами или электродвигателями и стеной в заглубленных помещениях - 0,7 м, в прочих - 1 м (при этом ширина прохода со стороны электродвигателя должна быть достаточной для демонтажа ротора);

- между компрессорами или воздуходувками - 1,5 м, между ними и стеной - 1 м,

- между неподвижными выступающими частями оборудования - 0,7 м;

- перед распределительным электрическим щитом - 2 м.

Примечания:

1. Проходы вокруг оборудования, регламентируемые заводом-изготовителем, следует принимать по паспортным данным.

2. Для насосных агрегатов с диаметром нагнетательного патрубка до 100 мм включительно допускается:

- установка агрегатов у стены или на кронштейнах;

- установка двух агрегатов на одном фундаменте при расстоянии между выступающими частями агрегатов не менее 0,25 м с обеспечением вокруг сдвоенной установки проходов шириной не менее 0,7 м.

5.17. Отметку оси насосов следует определять, как правило, исходя из условий установки корпуса насосов под заливом:

в емкости - от верхнего уровня воды (определяемого от дна) пожарного объема при одном пожаре, среднего - при двух и более пожарах;

в водозаборной скважине - от динамического уровня подземных вод при максимальном водоотборе;

в водотоке или водоеме - от минимального уровня воды в них: при максимальной обеспеченности расчетных уровней воды в поверхностных источниках - 1 %, при минимальной - 91%.

5.18. При определении отметки оси насосов следует учитывать допустимую вакуумметрическую высоту всасывания (от расчетного минимального уровня воды) или требуемый заводом-изготовителем необходимый подпор со стороны всасывания, а также потери давления (напора) во всасывающем трубопроводе, температурные условия и барометрическое давление.

5.19. В заглубленных и полузаглубленных насосных станциях должны быть предусмотрены меры против возможного затопления агрегатов при аварии в пределах машинного зала на самом крупном по производительности насосе, а также на запорной арматуре или трубопроводе путем:

- расположения электродвигателей насосов на высоте не менее 0,5 м от пола машинного зала;

- самотечного выпуска аварийного количества воды в канализацию или на поверхность земли с установкой клапана или задвижки;

- откачки воды из приямка специальными или основными насосами производственного назначения.

5.20. Для стока воды полы и каналы машинного зала надлежит проектировать с уклоном к сборному приямку. На фундаментах под насосы следует предусматривать бортики, желобки и трубки для отвода воды; при невозможности самотечного отвода воды из приямка следует предусматривать дренажные насосы.

5.21. Насосные станции размером машинного зала 6×9 м и более должны оборудоваться внутренним противопожарным водопроводом с расходом воды 2,5 л/с.

Кроме того, следует предусматривать:

- при установке электродвигателей напряжением 1000 В и менее - два ручных пенных огнетушителя, а при двигателях внутреннего сгорания до 221 кВт - четыре огнетушителя;

- при установке электродвигателей напряжением свыше 1000 В или двигателей внутреннего сгорания мощностью более 221 кВт - дополнительно два углекислотных огнетушителя, бочку с водой вместимостью 250 л, два куска войлока, асбестового полотна или кошмы размером 2×2 м.

5.22. В отдельно расположенной насосной станции для производства мелкого ремонта следует предусматривать установку верстака.

5.23. В насосных станциях с двигателями внутреннего сгорания допускается размещать расходные емкости с жидким топливом (бензин - 250 л, дизельное топливо - 500 л) в помещениях, отделенных от машинного зала несгораемыми конструкциями с пределом огнестойкости не менее REI 120.

5.24. Для эксплуатации насосного оборудования, арматуры и трубопроводов в помещениях следует предусматривать подъемно-транспортное оборудование:

- при массе груза до 5 т - ручную таль или ручную подвесную кран-балку;

- при массе груза более 5 т - ручной мостовой кран;

- при подъеме груза на высоту более 6 м или при длине подкранового пути более 18 м - электрическое крановое оборудование.

Примечания:

1. Предусматривать грузоподъемные краны, необходимые только при монтаже технологического оборудования (напорных фильтров и др.), не требуется.

2. Для перемещения оборудования и арматуры массой до 0,3 т допускается применение такелажных средств.

5.25. При заборе воды из запасного резервуара следует предусматривать установку насосов "под залив". В случае размещения насосов выше уровня воды в резервуаре следует предусматривать устройства для заливки насосов или устанавливать самовсасывающие насосы.

5.26. В помещении насосной станции для подключения установки пожаротушения к передвижной пожарной технике следует предусматривать трубопроводы с выведенными наружу патрубками, оборудованными соединительными головками. Трубопроводы должны обеспечивать наибольший расчетный расход в "диктующей" секции установки пожаротушения.

Снаружи помещения насосной станции соединительные головки необходимо размещать с расчетом подключения одновременно не менее двух пожарных автомобилей.

5.27. Виброизолирующие основания и виброизолирующие вставки в пожарных насосных установках допускается не предусматривать.

5.28. При аварийном отключении рабочего насосного агрегата должно быть предусмотрено автоматическое включение резервного агрегата, запитанного в данную магистраль.

5.29. При использовании в АУП не более трех узлов управления насосные установки проектируются с одним вводом и одним выходом, в остальных случаях - с двумя вводами и двумя выходами.

5.30. Время выхода пожарных насосов (при автоматическом или ручном включении) на рабочий режим не должно превышать 10 мин.

5.31. Монтаж насосов следует выполнять в соответствии с ВСН 394-78.

5.32. В насосных станциях следует предусматривать, независимо от количества рабочих агрегатов, один резервный пожарный насосный агрегат.

5.33. Если в пенных АУП требуются насосы-дозаторы, то их количество в помещении насосной станции должно быть не менее двух (в том числе один резервный).

5.34. Количество всасывающих линий к насосной станции, независимо от числа и групп установленных насосов, должно быть не менее двух. Каждая всасывающая линия должна быть рассчитана на пропуск полного расчетного расхода воды.

5.35. Размещение запорной арматуры на всех всасывающих и напорных трубопроводах должно обеспечивать возможность замены или ремонта любого из насосов, обратных кла панов и основной запорной арматуры, а также проверки характеристики насосов.

5.36. На всасывающих линиях каждого насоса запорную арматуру следует устанавливать у насосов, расположенных под заливом или присоединенных к общему всасывающему коллектору.

5.37. Всасывающие и напорные коллекторы с запорной арматурой следует располагать в здании насосной станции, если это не вызывает увеличения пролета машинного зала.

5.38. Трубопроводы в насосных станциях, как правило, следует выполнять из стальных труб на сварке.

5.39. Всасывающий трубопровод, как правило, должен иметь непрерывный подъем к насосу с уклоном не менее 0,005. В местах изменения диаметров трубопроводов следует применять несоосные переходы.

5.40. На напорной линии у каждого насоса следует предусматривать обратный клапан, задвижку и манометр, а на всасывающей - задвижку и манометр.

При работе насоса без подпора на всасывающей линии задвижку и манометр на ней устанавливать не требуется.

Примечания:

1. Сигнал автоматического или дистанционного пуска должен поступать на насосные агрегаты после автоматической проверки давления воды в системе При достаточном давлении в системе пуск насоса должен автоматически отменяться до момента снижения давления требующего включения насосного агрегата.

2. При срабатывании спринклерного оросителя, включении (ручном или автоматическом) дренчерной установки, а также при открытии пожарного крана (при водопроводе АУП, совмещенном с внутренним противопожарным водопроводом) одновременно с сигналом автоматического или дистанционного пуска пожарных насосов должен поступать сигнал для открытия электрической задвижки на обводной линии водомера (если таковой имеется) на вводе водопровода.

5.41. При установке монтажных вставок их следует размещать между запорной арматурой и обратным клапаном.

5.42. В конструкциях сооружений следует предусматривать закладные детали, проемы, камеры и т.п. для установки средств электрооборудования и автоматизации.

5.43. Диаметр труб, фасонных частей и арматуры следует принимать на основании технико-экономического расчета, исходя из рекомендуемых скоростей движения воды в пределах, указанных в табл. I.5.1.

Таблица I.5.1

Рекомендуемые скорости движения воды в трубопроводах насосных станций

Диаметр труб, мм

Скорость движения воды, м/с, в трубопроводах насосных станций

всасывающих

напорных

До 250

0,6 - 1,0

0,8 - 2,0

Св. 250 до 800

0,8 - 1,5

1,0 - 3,0

Св. 800

1,2 - 2,0

1,5 - 4,0

5.44. При давлении в наружной сети водопровода менее 0,05 МПа перед насосной установкой следует предусматривать устройство приемного резервуара, вместимость которого следует определять согласно разделу 13 СНиП 2.04.01-85*.

5.45. Задвижки на трубопроводах, наполняющих запасной резервуар водой, следует устанавливать в помещении насосной станции.

5.46. При автоматическом и дистанционном включении пожарных насосов необходимо подавать сигналы (световой и звуковой) в помещение пожарного поста или другое помещение с круглосуточным пребыванием обслуживающего персонала.

5.47. В насосных станциях следует предусматривать измерение давления в напорных водопроводах и у каждого насосного агрегата, температуры подшипников агрегатов (при необходимости), аварийного уровня затопления (появления воды в машинном зале на уровне фундаментов электроприводов).

5.48. Насосные агрегаты и узлы управления согласно ГОСТ 12.4.009 должны быть окрашены в красный цвет.

6. ТРЕБОВАНИЯ К РАЗМЕЩЕНИЮ И СОДЕРЖАНИЮ КОМПЛЕКТУЮЩЕГО ОБОРУДОВАНИЯ АУП

Основные использованные источники: НПБ 83-99, НПБ 88-2001, ГОСТ Р 51052

6.1. Узлы управления установок следует размещать в помещениях насосных станций, пожарных постов, в защищаемых помещениях, имеющих температуру воздуха 5°С и выше, таким образом, чтобы к ним был обеспечен удобный и безопасный доступ обслуживающего персонала.

6.2. Узлы управления, размещаемые в защищаемых помещениях, следует отделять противопожарными перегородками и перекрытиями с пределом огнестойкости не менее REI 45 и дверями с пределом огнестойкости не ниже EI 30.

6.3. Узлы управления, размещаемые вне защищаемых помещений, следует выделять остекленными или сетчатыми перегородками.

6.4. Узлы управления должны обеспечивать:

- подачу воды (пенных растворов) на тушение пожаров;

- заполнение питающих и распределительных трубопроводов водой;

- слив воды из питающих и распределительных трубопроводов;

- компенсацию утечек из гидравлической системы АУП;

- проверку сигнализации об их срабатывании;

- сигнализацию при срабатывании сигнального клапана;

- измерение давления до и после узла управления.

6.5. В узлах управления спринклерных установок для исключения ложных сигналов о срабатывании допускается предусматривать перед сигнализатором давления камеру задержки.

6.6. При расположении оросителей и генераторов пены в местах их возможного механического повреждения должна быть предусмотрена их защита.

6.7. АУП должны быть обеспечены запасом оросителей в количестве не менее 10 % от числа смонтированных оросителей и не менее 2 % от этого же числа для проведения испытаний.

6.8. Конструкция запорной арматуры (задвижек, затворов), применяемой в установках пожаротушения, должна обеспечивать визуальный контроль ее состояния в положении "Закрыто"-"Открыто". Целесообразно использовать датчики контроля положения запорной арматуры.

6.9. В пенных спринклерных установках пожаротушения наряду с задвижкой, устанавливаемой до узла управления, допускается установка задвижки выше узла управления.

6.10. При высоте расположения устройств управления оборудованием, электроприводами и маховиков задвижек (затворов) более 1,4 м от пола следует предусматривать специальные площадки или мостики. При этом расстояние по высоте от площадки или мостика до устройств управления не должно превышать 1 м. Допускается предусматривать уширение фундаментов оборудования.

6.11. Установка оборудования и арматуры под монтажной площадкой или площадками обслуживания допускается при высоте от пола (или мостика) до низа выступающих конструкций не менее 1,8 м. При этом над оборудованием и арматурой следует предусматривать съемное покрытие площадок или проемы.

6.12. Задвижки (затворы) на трубопроводах любого диаметра при дистанционном или автоматическом управлении должны быть с электроприводом. Допускается применение пневматического, гидравлического или электромагнитного привода.

6.13. В спринклерных водозаполненных установках на питающих трубопроводах диаметром 65 мм и более допускается размещение пожарных кранов, расстановку которых следует проектировать согласно СНиП 2.04.01-85*. При этом установка кнопок дистанционного пуска пожарных насосов у внутренних пожарных кранов не требуется.

6.14. Устройства пуска АУП должны быть защищены от случайных срабатываний.

6.15. Конструкция АУП должна обеспечивать демонтаж измерительных устройств для их поверки.

6.16. Комплектующее оборудование и элементы АУП (кроме оросителей и трубопроводов) согласно ГОСТ 12.4.009 должны быть окрашены в красный цвет.

7. ТРЕБОВАНИЯ К ВОДОСНАБЖЕНИЮ И ПОДГОТОВКЕ ПЕННОГО РАСТВОРА

Основные использованные источники: НПБ 88-2001, СНиП 2.04.01-85*, СНиП 2.04.02-84*, [29, 31]

7.1. В качестве источника водоснабжения установок водяного пожаротушения следует использовать открытые водоемы, пожарные резервуары или водопроводы различного назначения.

В случае если гидравлические параметры водопровода (давление, расход) не обеспечивают расчетных параметров установки, должна быть предусмотрена насосная установка для повышения давления.

7.2. Источником водоснабжения установок пенного пожаротушения должны служить водопроводы непитьевого назначения, при этом качество воды должно удовлетворять требованиям технических документов на применяемые пенообразователи. Допускается использование питьевого трубопровода при наличии устройства, обеспечивающего разрыв струи (потока) при отборе воды.

7.3. Расчетное количество воды для установок водяного пожаротушения допускается хранить в резервуарах различного назначения, где следует предусматривать устройства, не допускающие расхода указанного объема воды на другие нужды.

7.4. Объем пожарных резервуаров и водоемов надлежит определять исходя из расчетных расходов воды и продолжительности тушения пожаров.

7.5. При определении вместимости резервуара для установок водяного пожаротушения следует учитывать возможность автоматического пополнения резервуаров водой в течение всего времени тушения пожара.

7.6. Количество пожарных резервуаров или водоемов должно быть не менее двух, при этом в каждом из них должно храниться 50 % объема воды, требуемого для пожаротушения. При этом подача воды в любую точку пожара должна обеспечиваться из двух соседних резервуаров или водоемов.

7.7. При расчетном объеме воды 1000 м3 и менее допускается хранить воду в одном резервуаре.

7.8. К пожарным резервуарам, водоемам и проемным колодцам должен быть обеспечен свободный проезд пожарных машин с облегченным усовершенствованным покрытием дорог.

7.9 У мест расположения пожарных резервуаров и водоемов должны быть предусмотрены указатели по ГОСТ 12.4.009-83.

7.10. Пенообразователи, используемы в АУП, должны отвечать требованиям ГОСТ Р 50588.

7.11. При использовании раствора пенообразователя должны быть предусмотрены устройства для его перемешивания.

7.12. В системе дозирования с насосом-дозатором должно быть предусмотрено два насоса - рабочий и резервный.

7 13. Для установок пенного пожаротушения необходимо предусматривать 100 %-ный резерв пенообразователя.

7.14. Пенная АУП должна быть оборудована специальным насосом с ручным включением для перекачивания пенообразователя из транспортной тары в резервуар, предназначенный зля раствора пенообразователя.

7.15. Пенообразователи всех типов рекомендуется хранить в концентрированном виде в закрытых емкостях (ПО-3АИ и ПО-3НП можно хранить в виде 50 %-ных водных растворов, из них наименее стойким при длительном хранении является пенообразователь ПО-3АИ).

7.16. Температура в помещениях хранения пенообразователей должна быть не выше 40 и не ниже 5°С. С повышением средней температуры на каждые 10°С срок их хранения уменьшается в 2 раза. Оптимальная температура хранения пенообразователей составляет 20°С.

7.17. Наилучшая сохранность пенообразователей обеспечивается при их хранении в емкостях из нержавеющей стали или полимерных материалов, в том числе в стальных емкостях с внутренним полимерным покрытием. В этих условиях срок хранения пенообразователей составляет не менее 10 лет. Допускается хранение пенообразователей (кроме фторированных) в емкостях из углеродистой стали (марка Ст 3), однако при этом снижаются сроки их хранения.

7.18. Срок хранения концентратов пенообразователей в емкостях из стали Ст 3 при температуре 20°С составляет не менее: 5 лет - для ТЭАС, ПО-6ТС, ПО-6НП, САМПО; 4 года - для ПО-3АИ, ПО-3НП.

7.19. Фторированные пенообразователи следует хранить в алюминиевых емкостях или бидонах из полимерных материалов.

7.20. Железобетонные емкости, используемые для хранения растворов пенообразователей, должны быть покрыты изнутри полимерным или другими составами, обеспечивающими недопустимость контакта между раствором пенообразователя и железобетонной поверхностью резервуара.

7.21. Для содержания рабочих растворов пенообразователей в стационарных установках пожаротушения рекомендуется использовать емкости, покрытые изнутри полимерным материалом или изготовленные из нержавеющей стали. При отсутствии таких емкостей необходимо стабилизировать раствор пенообразователя и проверять качество раствора каждые 6 месяцев.

7.22. Длительное хранение (более 1 месяца) пенообразователей в виде рабочих растворов в емкостях из углеродистой стали не допускается. При использовании емкостей из стекла, пластмассы или нержавеющей стали срок хранения пенных растворов составляет 3 года. Пенообразователи САМПО и ПО-6НП запрещается хранить в виде раствора.

7.23. При хранении или при тушении в случае необходимости допускается смешивать биологически "мягкие" пенообразователи всех типов; при этом нормативные показатели подачи пены выбирают по наименее эффективному при тушении пенообразователю.

7.24. Рекомендуется хранить пенообразователь ПО-3АИ при рН не менее 8, а ТЭАС и ПО-6ТС - не менее 7,3. Контроль за рН при хранении пенообразователей следует осуществлять с помощью универсальной индикаторной бумаги или потенциометрическим методом.

7.25. При хранении готового раствора пенообразователя в резервуаре для его перемешивания следует предусматривать перфорированный трубопровод, проложенный по периметру резервуара на 0,1 м ниже расчетного уровня воды в нем.

7.26. При определении количества раствора пенообразователя для установок пенного пожаротушения следует дополнительно учитывать вместимость трубопроводов установки пожаротушения.

7.27. В подземных сооружениях, как правило, необходимо предусматривать устройства для отвода воды при пожаре.

7.28. Для слива пенообразователя или его раствора в случае проведения ремонтно-профилактических работ в пенных АУП, как правило, необходимо предусматривать резервные емкости.

7.29. Помещения для хранения пенообразователя должны соответствовать ГОСТ 12.1.005 и СНиП 2.04.05-91.

8. ТРЕБОВАНИЯ К АВТОМАТИЧЕСКОМУ И ВСПОМОГАТЕЛЬНОМУ ВОДОПИТАТЕЛЯМ

Основные использованные источники: НПБ 88-2001, СНиП 2.04.01-85*

8.1. В качестве автоматического водопитателя могут быть использованы подпитывающий насос (жокей-насос) с промежуточной мембранной емкостью объемом не менее 40 л без резервирования, гидропневматический бак или совокупность гидравлических и пневматических баков либо водопроводы различного назначения с гарантированным давлением, равным расчетному или превышающим его.

8.2. При проектировании гидравлических, пневматических и гидропневматических баков (сосудов, емкостей и т.п.) следует учитывать требования "Правил устройства и безопасной эксплуатации сосудов, работающих под давлением" Госгортехнадзора.

8.3. Сосуды, на которые распространяются "Правила устройства и безопасной эксплуатации сосудов, работающих под давлением" Госгортехнадзора, до пуска их в работу должны быть зарегистрированы в органах Госгортехнадзора.

8.4. Регистрации в органах Госгортехнадзора не подлежат:

- баки (сосуды, емкости и т.п.) 1-й группы, работающие при температуре стенки не выше 200°С, у которых произведение давления в МПа (кгс/см2) на вместимость в м3 (л) не превышает 0,05 (500), а также баки (сосуды, емкости и т.п.) 2, 3, 4-й групп, работающие при указанной выше температуре, у которых произведение давления в МПа (кгс/см2) на вместимость в м3 (л) не превышает 1 (10000) (группа сосудов определяется по табл. I.8.1);

- баллоны вместимостью не более 100 л, установленные стационарно.

Таблица I.8.1

Группа сосуда в зависимости от расчетного давления, температуры стенки и характера среды

Группа сосуда

Расчетное давление, МПа (кгс/см2)

Температура стенки,°С

Характер рабочей среды

1

Свыше 0,07 (0,7)

Независимо

Взрывоопасная, или пожароопасная, или 1, 2-го классов опасности по ГОСТ 12.1.007-76

2

До 2,5 (25)

Ниже минус 70, выше 400

Любая, за исключением указанной для 1-й группы сосудов

Свыше 2,5 (25) до 4 (40)

Ниже минус 70, выше 200

Свыше 4 (40) до 5 (50)

Ниже минус 70, выше 200

Свыше 5 (50)

Независимо

3

До 1,6 (16)

От минус 70 до минус 20; от 200 до 400

Любая, за исключением указанной для 1-й группы сосудов

Свыше 1,6 (16) до 2,5 (25)

От минус 70 до 400

Свыше 2,5 (25) до 4 (40)

От минус 70 до 200

Свыше 4 (40) до 5 (50)

От минус 40 до 200

4

До 1,6 (16)

от минус 20 до 200

 

8.5. Гидропневматические баки следует проектировать с переменным давлением.

8.6. Гидравлические, пневматические и гидропневматические баки надлежит устанавливать в помещениях с огнестойкостью не менее REI 45, где расстояние от верха баков до перекрытия и стен, а также между баками должно быть не менее 0,6 м.

8.7. Помещения с гидравлическими, пневматическими и гидропневматическими баками не допускается располагать непосредственно рядом, сверху или снизу с помещениями, где возможно одновременное пребывание большого числа людей - 50 чел. и более (зрительный зал, сцена, гардеробная и т.п.).

8.8. Гидропневматические баки допускается располагать на технических этажах, а пневматические баки - и в неотапливаемых помещениях.

8.9. В спринклерных и дренчерных установках следует предусматривать автоматический водопитатель, как правило сосуд (сосуды), заполненный водой (не менее 0,5 м3) и сжатым воздухом.

8.10. В качестве автоматического водопитателя могут быть использованы водопроводы различного назначения с давлением, равным расчетному или выше его, обеспечивающим срабатывание узлов управления.

8.11. В спринклерных установках с подсоединенными пожарными кранами для зданий высотой более 30 м объем воды или раствора пенообразователя в автоматическом водопитателе должен быть не менее 1 м3.

8.12. Подпитывающий насос (жокей-насос) комплектуется нерезервированной промежуточной емкостью, как правило мембранной, с объемом воды не менее 40 л.

8.13. Все установки с пожарными насосами, включаемыми вручную, должны иметь вспомогательный водопитатель, обеспечивающий работу установки с расчетными давлением и расходом воды или раствора пенообразователя в течение не менее 10 мин.

8.14. Автоматический и вспомогательный водопитатели должны отключаться при включении основных насосов.

8.15. В зданиях высотой более 30 м вспомогательный водопитатель рекомендуется размещать на верхних технических этажах.

8.16. Объем воды вспомогательного водопитателя рассчитывается из условия обеспечения расхода, необходимого для дренчерной установки (всего количества оросителей) и/или спринклерной установки (на пять оросителей).

8.17. Гидропневматические баки должны быть оборудованы поплавковыми клапанами (либо управляемыми задвижками или затворами), предохранительными клапанами, манометрами, визуальными уровнемерами, датчиками уровня, трубопроводами для заполнения их водой и выпуска ее при тушении пожаров и устройствами, необходимыми для создания в них требуемого давления воздуха.

8.18. Пополнение запаса воздуха в пневматическом или гидропневматическом баке надлежит осуществлять, как правило, компрессорами с автоматическим или ручным пуском либо от общезаводской компрессорной станции.

8.19. Гидропневматические баки и емкости должны быть окрашены в красный цвет.

8.20. Пневматические трубопроводы, входящие в обвязку гидропневматических баков, должны быть окрашены в синий цвет, а гидравлические - в зеленый.

9. ТРЕБОВАНИЯ К ТРУБОПРОВОДАМ

Основные использованные источники: ГОСТ 14202-69, ГОСТ 12.4.026-76, НПБ 88-2001, СНиП 2.04.01-85*, СНиП 2.04.02-84*, СНиП 3.05.04-84, СНиП 3.05.05-84

9.1. Общие положения

9.1.1. Трубопроводы следует проектировать из стальных труб: по ГОСТ 10704 - со сварными и фланцевыми соединениями, по ГОСТ 3262 - со сварными, фланцевыми, резьбовыми соединениями, а также по ГОСТ Р 51737-2001 - с разъемными трубопроводными муфтами только для водозаполненных спринклерных установок. Муфты трубопроводные разъемные по ГОСТ Р 51737 могут применяться для труб диаметром не более 200 мм.

9.1.2. Трубопроводы пенных установок пожаротушения следует проектировать из оцинкованных стальных труб по ГОСТ 3262.

9.1.3. При прокладке трубопроводов за несъемными подвесными потолками, в закрытых штробах и в других подобных случаях их монтаж следует производить только на сварке.

9.1.4. Подводящие трубопроводы (наружные и внутренние), как правило, необходимо проектировать кольцевыми. Подводящие трубопроводы допускается проектировать тупиковыми для трех и менее узлов управления, при этом длина наружного тупикового трубопровода не должна превышать 200 м.

9.1.5. Кольцевые подводящие трубопроводы (наружные и внутренние) следует разделять на ремонтные участки задвижками; число узлов управления на одном участке должно быть не более трех. При гидравлическом расчете трубопроводов выключение ремонтных участков кольцевых сетей не учитывается; при этом диаметр кольцевого трубопровода должен быть не менее диаметра подводящего трубопровода к узлам управления.

9.1.6. Подводящие трубопроводы (наружные) установок водяного пожаротушения и трубопроводы противопожарного, производственного или хозяйственно-питьевого водопровода, как правило, могут быть общими.

9.1.7. Присоединение производственного и санитарно-технического оборудования к питающим трубопроводам установок пожаротушения не допускается.

9.1.8. Питающие и распределительные трубопроводы дренчерных АУП допускается заполнять водой или водным раствором до отметки наиболее низко расположенного оросителя в данной секции.

9.1.9. При наличии у дренчерных оросителей колпачков или заглушек допускается заполнять водой или водным раствором полностью все питающие и распределительные трубопроводы. При срабатывании сигнального клапана дренчерной АУП колпачки и заглушки должны освобождать выходное отверстие оросителей под давлением воды или водного раствора.

9.1.10. Секция спринклерной установки с тремя и более узлами управления или 12 и более пожарными кранами должна иметь два ввода. В качестве второго ввода в секцию может быть использована обводная линия у узла управления, соединяющая подводящий и питающий трубопроводы. На обводной линии следует устанавливать задвижку с ручным приводом.

Для спринклерных установок с двумя секциями и более второй ввод с задвижкой допускается осуществлять от смежной секции. При этом над узлами управления должна быть предусмотрена установка задвижки с ручным приводом, подводящий трубопровод должен быть закольцован, и между этими узлами управления установлена разделительная задвижка.

9.1.11. На одной ветви распределительного трубопровода установок, как правило, следует устанавливать не более шести оросителей с диаметром выходного отверстия до 12 мм включительно и не более четырех оросителей с диаметром выходного отверстия более 12 мм.

9.1.12. К питающим трубопроводам спринклерных установок допускается присоединять дренчерные оросители с побудительной системой включения дренчерного сигнального клапана.

9.1.13. Диаметр побудительного трубопровода дренчерной установки должен быть не менее 15 мм.

9.1.14. Тупиковые и кольцевые питающие трубопроводы должны быть оборудованы промывочными задвижками, затворами или кранами с диаметром условного прохода не менее 50 мм. Все эти запорные устройства должны быть снабжены заглушками.

В тупиковых трубопроводах промывочная задвижка, затвор или кран с заглушкой устанавливается в конце участка, в кольцевых - в наиболее удаленном от узла управления месте.

9.1.15. Задвижки или затворы, монтируемые на кольцевых трубопроводах, должны пропускать воду в обоих направлениях.

9.1.16. Не допускается установка запорной арматуры на питающих и распределительных трубопроводах, за исключением случаев, предусмотренных пп. 1.3.7, 6.13, 9.1.10 и 9.1.14 настоящего раздела.

Допускается установка пробковых кранов в верхних точках сети трубопроводов спринклерных установок в качестве устройств для выпуска воздуха и установка крана под манометр для контроля давления перед самым удаленным и наиболее высоко расположенным оросителем.

9.1.17. Трубопроводы в зданиях и сооружениях, как правило, следует укладывать над поверхностью пола (на опорах или кронштейнах) с устройством мостков над трубопроводами и обеспечением прохода и обслуживания оборудования и арматуры.

Допускается укладка трубопроводов в каналах, перекрываемых съемными плитами, или в подвалах.

9.1.18. Размеры каналов трубопроводов следует принимать следующими:

- при диаметре труб до 400 мм - ширину на 600 мм, глубину на 400 мм больше диаметра;

- при диаметре труб 500 мм и выше - ширину на 800 мм, глубину на 600 мм больше диаметра.

9.1.19. В местах установки фланцевой арматуры минимальные расстояния до внутренних поверхностей колодца следует принимать согласно СНиП 2.04.02-84*:

от стенок труб при их диаметре до 400 мм - 0,3 м, от 500 до 600 мм - 0,5 м, более 600 мм - 0,7 м;

от плоскости фланца при диаметре труб до 400 мм - 0,3 м, более 400 мм - 0,5 м;

от края раструба, обращенного к стене, при диаметре труб до 300 мм - 0,4 м, более 300 мм - 0,5 м;

от низа трубы до дна при диаметре труб до 400 мм - 0,25 м, от 500 до 600 мм - 0,3 м, более 600 мм - 0,35 м;

от верха штока задвижки с выдвижным шпинделем - 0,3 м, от маховика задвижки с невыдвижным шпинделем - 0,5 м.

Высота рабочей части колодцев должна быть не менее 1,5 м.

9.1.20. Уклон дна каналов к приямку следует принимать не менее 0,005.

9.1.21. Монтаж и крепление трубопроводов и оборудования при их монтаже следует осуществлять в соответствии с требованиями СНиП 3.05.04-84, СНиП 3.05.05-84, ВСН 25-09.67-85 и ВСН 2661-01-91.

9.1.22. Трубопроводы должны крепиться держателями непосредственно к конструкциям здания, при этом не допускается их использование в качестве опор для других конструкций.

9.1.23. Трубопроводы допускается крепить к конструкциям технологических устройств в зданиях только в порядке исключения. При этом нагрузка на конструкции технологических устройств принимается не менее двойной расчетной для элементов крепления.

9.1.24. Узлы крепления труб должны устанавливаться с шагом не более 4 м. Для труб с условным проходом более 50 мм допускается увеличение шага между узлами крепления до 6 м при условии наличия двух взаимонезависимых узлов крепления, прикрепленных к конструкциям здания.

9.1.25. Стояки и отводы на распределительных трубопроводах длиной более 1 м должны крепиться дополнительными держателями. Расстояние от держателя до оросителя на стояке (отводе) должно составлять не менее 0,15 м.

9.1.26. Расстояние от держателя до последнего оросителя на распределительном трубопроводе для труб с диаметром условного прохода 25 мм и менее должно составлять не более 0,9 м, с диаметром более 25 мм - 1,2 м.

9.1.27. В случае прокладки трубопроводов через гильзы и пазы конструкции зданий расстояние между опорными точками без дополнительных креплений должно составлять не более 6 м.

9.1.28. Питающие и распределительные трубопроводы воздушных спринклерных установок следует прокладывать с уклоном в сторону узла управления или спускных устройств, равным:

- 0,01 - для труб с наружным диаметром менее 57 мм;

- 0,005 - для труб с наружным диаметром 57 мм и более.

9.1.29. При необходимости следует предусматривать мероприятия, предотвращающие повышение давления в питающих трубопроводах АУП более 1,0 МПа.

9.1.30. Направление потока воды, пенообразователя или раствора пенообразователя, транспортируемого по трубопроводам, должно указываться острым концом маркировочных щитков (ГОСТ 14202) или стрелками, наносимыми непосредственно на трубопроводы.

9.1.31. В зависимости от содержимого установок пожаротушения (водяных или пенных) следует предусматривать для разных групп трубопроводов отличительную опознавательную окраску или цифровое обозначение:

- вода: цвет - зеленый или цифра - 1;

- воздух: цвет - синий или цифра - 3;

- пенообразователь, водный раствор пенообразователя: цвет - коричневый или цифра - 9.

9.1.32. В воздушных спринклерных установках подводящий трубопровод окрашивается в зеленый цвет, питающий и распределительный трубопроводы - в синий.

9.1.33. Пневматические линии побудительного трубопровода дренчерных АУП должны быть окрашены в синий цвет, гидравлические линии - в зеленый.

9.1.34. Опознавательную окраску трубопроводов следует выполнять сплошной по всей поверхности коммуникаций или отдельными участками.

Окраску трубопроводов участками рекомендуется выполнять в цехах с большим числом и большой протяженностью коммуникаций, а также в тех случаях, когда по условиям работы из-за повышенных требований к цветопередаче и характеру архитектурного решения интерьера нежелательна концентрация ярких цветов.

Опознавательную окраску по всей поверхности трубопроводов рекомендуется применять при небольшой длине и относительно небольшом числе коммуникаций, если она не ухудшает условий работы в цехах.

9.1.35. При нанесении опознавательной окраски участками на трубопроводы, находящиеся внутри производственных помещений, остальную поверхность коммуникаций рекомендуется окрашивать в цвет стен, перегородок, потолков и прочих элементов интерьеров, на фоне которых находятся трубопроводы. При этом не допускается окрашивать трубопроводы между участками опознавательной окраской, принятой для обозначения других укрупненных групп веществ по ГОСТ 14202.

9.1.36. При прокладке коммуникаций в непроходимых каналах и при бесканальной прокладке коммуникаций опознавательную окраску участками на трубопроводах следует наносить в пределах камер и смотровых колодцев.

9.1.37. Опознавательная окраска участками должна наноситься с учетом местных условий в наиболее ответственных пунктах коммуникаций (на ответвлениях; у мест соединений; у фланцев; в местах прохода трубопроводов через стены, перегородки, перекрытия; на вводах и выводах из производственных зданий и т.п.) не реже чем через 10 м внутри производственных помещений и на наружных установках.

9.1.38. Ширина участков опознавательной окраски должна приниматься в зависимости от наружного диаметра трубопроводов (с учетом изоляции):

до 300 мм - не менее четырех диаметров;

свыше 300 мм - не менее двух диаметров.

При большом числе параллельно расположенных коммуникаций участки опознавательной окраски на всех трубопроводах рекомендуется принимать одинаковой ширины и с одинаковыми интервалами.

9.1.39. Противопожарные трубопроводы (независимо от их содержимого - воды, пенообразователя или водного раствора пенообразователя) спринклерных и дренчерных установок на участках запорно-регулирующей арматуры (сигнальные клапаны, задвижки, затворы, краны и т.п.) и в местах присоединения пожарных кранов согласно ГОСТ 14202 должны окрашиваться в красный сигнальный цвет.

9.1.40. В отапливаемых и вентилируемых производственных помещениях без агрессивных сред опознавательную окраску трубопроводов рекомендуется выполнять пентафталевыми эмалями марок ПФ-115 по ГОСТ 6465-76, ПФ-133 по ГОСТ 926-82 или других марок по технической документации, утвержденной в установленном порядке.

9.2. Особенности использования пластмассовых трубопроводов

Основные использованные источники: НПБ 88-2001, СП 40-101-96, СН 478-80, СН 550-82

9.2.1. Применение пластмассовых труб, прошедших соответствующие испытания в ФГУ ВНИИПО МЧС России, допускается только в водозаполненных АУП. Проектирование таких трубопроводов должно осуществляться по техническим условиям, разрабатываемым для конкретного объекта и согласованным с ГУГПС МЧС России.

9.2.2. В водозаполненных установках пожаротушения допускается использовать трубы и соединительные детали, изготовленные, например, из полипропилена "Рандом сополимер" (товарное название PPRC) на номинальное давление 2 МПа или аналогичных ему материалов.

9.2.3. Трубопроводы из пластмассовых труб могут применяться в помещениях категорий В, Г и Д.

9.2.4. Трубопроводы из пластмассовых труб не должны использоваться в установках наружного пожаротушения.

9.2.5. Срок службы пластмассовых трубопроводов в установках пожаротушения должен быть не менее 20 лет.

9.2.6. Проектирование систем трубопроводов связано с выполнением гидравлического расчета и выбором диаметра труб, соединительных деталей и арматуры, выбором способа прокладки, соединений трубопроводов и условий, обеспечивающих компенсацию тепловых изменений длины трубы без перенапряжения материала и деформации мест установки спринклерных оросителей.

9.2.7. При расчете и проектировании систем трубопроводов с применением труб и соединительных деталей из пластмассы необходимо руководствоваться физико-химическими параметрами, расчетными зависимостями и номограммами, представленными в соответствующих нормативных документах на данный вид пластмассовых труб.

9.2.8. Компенсирующая способность элементов трубопроводов должна обеспечиваться правильной расстановкой опор, наличием отводов в трубопроводах в местах поворотов, других гнутых элементов и установкой температурных компенсаторов. Неподвижные крепления труб должны обеспечивать удлинение труб в сторону этих элементов.

9.2.9. Диапазон температур в помещениях, в которых могут быть установлены пластмассовые трубопроводы, должен составлять от 5 до 50°С.

9.2.10. Температура воды при расчете прочности и ресурса работы трубопроводов принимается равной 50°С. Гидравлические расчеты трубопроводов выполняются из расчета температуры воды 20°С.

9.2.11. На ветвях распределительных пластмассовых трубопроводов следует предусматривать спринклерные оросители с температурой срабатывания не более 68°С.

9.2.12. В помещениях категорий В1 и В2 на ветвях распределительных пластмассовых трубопроводов должны устанавливаться спринклерные оросители с диаметром разрывных колб не более 3 мм, для помещений категорий В3 и В4 - не более 5 мм.

9.2.13. Проводку пластмассовых труб допускается предусматривать как открытую, так и скрытую (в пространстве фальшпотолков).

9.2.14. При скрытой установке спринклерных оросителей трубопроводы должны быть закрыты потолочными панелями из негорючих материалов с огнестойкостью не менее EI 15.

9.2.15. При открытой установке спринклерных оросителей расстояние между ними не должно превышать 3 м. При открытой установке настенных спринклерных оросителей расстояние между ними не должно превышать 2,5 м.

9.2.16. Трубопроводы из пластмассовых труб допускается прокладывать на эстакадах и опорах совместно с другими трубопроводами (стальными, стеклянными и пр.), имеющими на поверхности труб температуру не выше 50°С. При необходимости параллельной прокладки пластмассовых трубопроводов с другими трубопроводами, имеющими на поверхности температуру выше 50°С, для пластмассовых трубопроводов следует предусматривать установку защитных тепловых экранов, тепловой изоляции из несгораемых материалов или увеличение расстояний между трубопроводами. При этом трубопроводы из пластмассовых труб следует располагать, как правило, ниже стальных.

9.2.17. Трубопроводы из пластмассовых труб не допускается крепить к трубопроводам, транспортирующим легковоспламеняющиеся жидкости, горючие жидкости и горючие газы.

9.2.18. Внутрицеховые трубопроводы, прокладываемые по стенам зданий, следует располагать на 0,5 м выше или ниже оконных проемов.

9.2.19. Не допускается транзитная прокладка внутрицеховых трубопроводов из пластмассовых труб через административные, бытовые и хозяйственные помещения, распределительные устройства, помещения электроустановок, щиты системы контроля и автоматики, вентиляционные камеры, тепловые пункты, лестничные клетки, коридоры и т.п.

9.2.20. Для обеспечения возможности проведения осмотра и ремонта трубопроводов необходимо предусматривать: в коробах - съемную верхнюю часть, а в галереях - проходы шириной не менее 1,0 м.

При совместной прокладке в галереях трубопроводов из пластмассовых труб со стальными пластмассовые трубы следует размещать, как правило, ниже стальных и ближе к проходу.

Короба и галереи, в которых предусматривается прокладка пластмассовых труб, должны выполняться из несгораемых материалов.

9.2.21. Трубопроводы, прокладываемые в местах возможного их повреждения, должны быть заключены в металлические футляры или кожуха. Концы кожухов или футляров должны выступать не менее чем на 0,5 м от зоны возможного повреждения. Внутренний диаметр или высота и ширина футляра или кожуха должны быть на 100 - 200 мм больше наружного диаметра трубопровода или высоты и ширины (с учетом изоляции).

9.2.22. Пожарные запорные устройства установок пожаротушения должны иметь неподвижное крепление к строительным конструкциям для того, чтобы усилия, возникающие при функционировании арматуры, не передавались на пластмассовые трубопроводы.

9.2.23. Над дверными проемами и под окнами не допускается размещать арматуру, компенсаторы, дренажные устройства и разъемные соединения.

9.2.24. Расстояние в свету между пластмассовыми трубами и строительными конструкциями должно быть не менее 20 мм.

9.2.25. При проходе пластмассовых трубопроводов через стены и перегородки должно быть обеспечено свободное продольное перемещение трубы с помощью огнезадерживающих футляров или гильз, огнестойкость которых не должна быть ниже огнестойкости пересекаемой строительной конструкции. Футляры или гильзы, как правило, изготавливаются из стальных труб, концы которых должны выступать на 20 - 50 мм за края пересекаемой поверхности. Зазор между трубопроводом и стенкой гильзы должен быть не менее 10 - 20 мм и тщательно уплотнен негорючим материалом, допускающим перемещение трубопровода вдоль его продольной оси.

9.2.26. Расположение стыков пластмассовых труб в футлярах или гильзах не допускается.

9.2.27. При прокладке пластмассовых труб вблизи труб отопления или горячего водоснабжения расстояние между ними в свету следует предусматривать:

- в местах параллельной прокладки - не менее 100 мм (если иное не оговорено нормативным документом на данный вид пластмассовых труб) и обязательно ниже труб отопления и горячего водоснабжения;

- в местах их пересечений - не менее 50 мм.

9.2.28. Расстояние между опорами при горизонтальной прокладке пластмассовых трубопроводов определяется по табл. I.9.1.

Таблица I.9.1

Расстояние между опорами при горизонтальной прокладке пластмассовых трубопроводов

Номинальный диаметр трубы, мм

16

20

25

32

40

50

63

75

90

Расстояние между опорами, мм

500

600

700

800

900

1100

1300

1400

1500

9.2.29. При проектировании вертикальных пластмассовых трубопроводов опоры устанавливаются не реже чем через 1000 мм для труб с наружным диаметром до 32 мм и не реже чем через 1500 мм - для труб большего диаметра.

9.2.30. Для выполнения неразъемных соединений необходимо использовать трубы и фасонные части из однородного полимерного материала. Применение труб и фасонных частей из разнородных материалов для выполнения неразъемных соединений не допускается.

9.2.31. Основными способами соединений пластмассовых труб при монтаже установок пожаротушения являются:

- контактная сварка в раструб;

- соединение на свободных фланцах.

9.2.32. Монтаж спринклерных оросителей производится по резьбовому соединению в комбинированный тройник, угольник или муфту, соответствующие требованиям нормативных документов на данный вид пластмассовых труб.

9.2.33. Смонтированную трубопроводную систему следует испытывать при положительной температуре и не ранее чем через 16 ч после сварки последнего соединения.

9.2.34. Рабочее давление пластмассового трубопровода должно быть не менее 1 МПа.

10. ЭЛЕКТРОПИТАНИЕ УСТАНОВОК

Основные использованные источники: НПБ 88-2001

10.1. По степени обеспечения надежности электроснабжения электроприемники установок следует относить к I категории согласно "Правилам устройства электроустановок" (ПУЭ), за исключением электродвигателей компрессоров, дренажных насосов и насосов подкачки пенообразователя, относящихся к III категории, а также случаев, указанных в п. 10.2 настоящего раздела.

10.2. При наличии одного источника электроснабжения (на объектах III категории по надежности электроснабжения) следует предусматривать привод резервного пожарного насоса от двигателя внутреннего сгорания, включаемого вручную.

В этом случае для запуска двигателя внутреннего сгорания, а также для электропитания устройств сигнализации установок следует предусматривать аккумуляторные батареи. Емкость аккумуляторной батареи должна обеспечивать, помимо расхода на запуск двигателя, питание электроприемников устройств сигнализации установок в течение 24 ч в дежурном режиме и не менее 3 ч при срабатывании АУП, т.е. в режиме "Тревога".

10.3. При невозможности по местным условиям обеспечить питание электроприемников, указанных в п. 10.1, от двух независимых источников допускается по согласованию с заказчиком проектно-сметной документации осуществлять питание их от одного источника: от разных трансформаторов двухтрансформаторной подстанции или от двух близлежащих однотрансформаторных подстанций, подключенных к разным питающим линиям, проложенным по разным трассам, с устройством автоматического ввода резерва (АВР), как правило, на стороне низкого напряжения.

10.4. Для электроприемников I категории по надежности электроснабжения, имеющих автоматически включающийся технологический резерв (при наличии одного рабочего и одного резервного насосов), устройство АВР не требуется.

10.5. Место размещения устройства АВР - централизованно на вводах установки или децентрализованно у электроприемников I категории по надежности электроснабжения - определяется в зависимости от взаимного расположения и условий прокладки питающих линий до удаленных электроприемников.

10.6. В случае питания электроприемников I категории от резервного ввода допускается при необходимости обеспечивать их электропитание за счет отключения на объекте электроприемников II и III категорий по надежности электроснабжения.

10.7. Защиту электрических цепей необходимо выполнять в соответствии с ПУЭ.

Не допускается устройство тепловой и максимальной защиты в цепях управления, отключение которых может привести к отказу подачи огнетушащего вещества к очагу пожара.

10.8. Защитное заземление и зануление электрооборудования должно соответствовать ГОСТ 21130 и ПУЭ.

10.9. Вывод проводов и кабелей, а также способ их прокладки следует выполнять согласно техническим характеристикам кабельно-проводниковой продукции в соответствии с ПУЭ и ГОСТ 12.4.009.

10.10. Взаиморезервирующие кабельные линии, питающие электроэнергией установки, следует прокладывать по разным трассам во избежание одновременного выхода из строя этих линий при загорании.

10.11. Допускается совместная прокладка указанных кабельных линий при условии прокладки их по стенам помещений при расстоянии между ними в свету не менее 1 м или прокладки одной из них в коробе (канале), выполненном из несгораемых материалов, с пределом огнестойкости не менее EI 45.

11. ЭЛЕКТРОУПРАВЛЕНИЕ И СИГНАЛИЗАЦИЯ

11.1. Автоматические установки пожаротушения должны иметь местное и дистанционное управление (за исключением спринклерных установок).

11.2. Электроуправление установок должно обеспечивать:

- автоматический пуск рабочих насосов (пожарных и насосов-дозаторов);

- автоматический пуск резервных насосов (пожарного и насоса-дозатора) в случае отказа или невыхода рабочего насоса на режим в течение установленного времени;

- автоматическое включение запорной арматуры с электроприводом;

- автоматический пуск и отключение жокей-насоса;

- автоматический пуск и отключение дренажного насоса;

- местное и при необходимости дистанционное управление насосами;

- местное управление устройствами компенсации утечки огнетушащего вещества и сжатого воздуха из трубопроводов и гидропневматических емкостей автоматического и вспомогательного водопитателей;

- автоматическое переключение цепей управления и сигнализации (кроме цепей управления местным пуском насосов и световой сигнализации о наличии напряжения на вводах электропитания) с основного ввода электроснабжения при исчезновении на нем напряжения на резервный с последующим переключением на основной ввод при восстановлении на нем напряжения;

- возможность отключения и восстановления режима автоматического пуска насосов;

- автоматический контроль исправности электрических цепей электрозадвижек и электрозатворов, приборов, регистрирующих срабатывание узлов управления и формирующих командный импульс на автоматическое включение пожарных насосов, насосов-дозаторов, сигнальных клапанов, световых и звуковых оповещателей и т.п.;

- автоматический контроль аварийного уровня в автоматическом или вспомогательном водопитателе, дренажном приямке, емкости с пенообразователем;

- автоматический контроль давления в гидропневмобаке автоматического или вспомогательного водопитателя;

- контроль исправности звуковой и световой сигнализации (по вызову);

- отключение звуковой сигнализации при сохранении световой сигнализации;

- формирование командного импульса (устройство потенциальных или беспотенциальных, контактных или бесконтактных элементов на выходах аппаратуры пожаротушения или пожарной сигнализации) для управления технологическим и электротехническим оборудованием объекта, а также системами оповещения о пожаре;

- формирование команды на управление технологическим оборудованием и инженерными системами объекта (при необходимости);

- временную задержку на запуск установки пожаротушения (при необходимости).

11.3. Формирование командного импульса для автоматического пуска дренчерной АУП необходимо осуществлять одним из перечисленных ниже устройств или любой их совокупностью:

- аппаратурой электрической пожарной сигнализации;

- сигнализаторами давления или сигнализаторами потока жидкости;

- электроконтактными манометрами;

- технологическими датчиками.

11.4. Для формирования командного импульса автоматического пуска АУП следует предусматривать:

- для дренчерной АУП (в том числе насосной установки) -два автоматических пожарных извещателя, соединенных по логической схеме конъюкции «И»;

- только для насосной установки дренчерной АУП - два сигнализатора давления или два электроконтактных манометра, соединенных по логической схеме дизъюнкции «ИЛИ»;

- для спринклерной АУП (насосной установки) - два сигнализатора давления или два электроконтактных манометра, соединенных по логической схеме дизъюнкции «ИЛИ».

11.5. Формирование командного импульса автоматического пуска насоса-дозатора осуществляется элементами электроуправления, фиксирующими пуск пожарного насоса.

11.6. Устройства местного пуска и остановки насосов следует размещать в насосной станции. Допускается осуществлять пуск и остановку пожарных насосов из помещения пожарного поста.

11.7. Устройства местного пуска и остановки компрессора следует располагать в насосной станции или в помещении узлов управления в зависимости от размещения компрессора.

11.8. Устройства отключения и восстановления режима автоматического пуска установок должны быть расположены в помещении дежурного поста или другом помещении с персоналом, ведущим круглосуточное дежурство.

11.9. В установках объемного пенного пожаротушения для защищаемых помещений с возможным пребыванием людей следует предусматривать устройства переключения автоматического пуска установки на дистанционный.

11.10. Помещения, защищаемые установками пенного объемного пожаротушения, должны быть оборудованы самозакрывающимися дверями.

11.11. Устройства восстановления режима автоматического пуска установок должны быть расположены в помещении пожарного поста или в другом помещении с персоналом, ведущим круглосуточное дежурство.

11.12. Для помещений, в которых имеется электрооборудование со степенью защиты оболочки от проникновения воды ниже "4" по ГОСТ 14254, находящееся под напряжением, при водяном и пенном пожаротушении следует предусматривать автоматическое отключение электроэнергии перед началом подачи огнетушащего вещества в очаг пожара.

11.13. В помещениях, защищаемых установками объемного пенного пожаротушения, и перед входами в них должна предусматриваться звуковая и световая сигнализация на табло

в соответствии с ГОСТ 12.4.009: "Пена - Уходи!". Смежные помещения, имеющие выход только через защищаемые помещения, должны быть оборудованы аналогичной сигнализацией.

11.14. У входа в помещения, защищаемые установками объемного пенного пожаротушения, должен появляться световой сигнал на табло в соответствии с ГОСТ 12.4.009: "Пена - не входить!".

11.15. Устройства ручного пуска установок объемного пенного (кроме локального объемного) пожаротушения должны располагаться вне защищаемого помещения вблизи эвакуационных выходов с обеспечением свободного доступа к ним.

11.16. Устройства ручного пуска установок локального пожаротушения должны находиться вне возможной зоны горения на безопасном от нее расстояния. При этом должна быть обеспечена возможность дистанционного включения установки вне защищаемого помещения.

11.17. Устройства ручного пуска установок пожаротушения должны быть обеспечены защитой от случайного приведения их в действие или механического повреждения.

11.18. Перед входами в защищаемые помещения необходимо предусмотреть сигнализацию об отключении автоматического пуска установки.

11.19. В помещении насосной станции следует предусматривать световую сигнализацию:

- о наличии напряжения на рабочем и резервном вводах электроснабжения (по вызову);

- об отключении автоматического пуска пожарных насосов, насосов-дозаторов, дренажного насоса;

- о неисправности электрических цепей приборов, регистрирующих срабатывание узлов управления и выдающих командный импульс на включение установки и запорных устройств (по вызову с расшифровкой по направлениям);

- о неисправности электрических цепей управления задвижками запорных устройств с электроприводом в режиме подачи команды на их открытие (с расшифровкой по направлениям);

- о неисправности электрических цепей управления электровентиляторами (с расшифровкой по направлениям по вызову); допускается визуальная индикация;

- об отсутствии полного открытия задвижек запорных устройств с электроприводом в режиме подачи команды на их открытие (по вызову с расшифровкой по направлениям);

- об аварийном уровне в пожарном резервуаре, емкости с пенообразователем, дренажном приямке (общий сигнал).

Если электрозадвижки установлены не в помещении насосной станции, то световые сигналы выдаются по месту установки электрозадвижек.

11.20. В помещении пожарного поста или другом помещении с персоналом, ведущим круглосуточное дежурство, необходимо предусматривать:

1) световую и звуковую сигнализацию:

- о возникновении пожара (с расшифровкой по направлениям или помещениям в случае применения адресных систем пожарной сигнализации);

- о пуске насосов (звуковой сигнал - кратковременный);

- о начале работы установки с указанием направления, по которому подается огнетушащее вещество, или помещений (с расшифровкой по направлениям или помещениям) (звуковой сигнал - кратковременный);

- об отключении автоматического пуска насосов;

- о неисправности установки, об исчезновении напряжения на вводах электроснабжения, о падении давления в гидропневматической емкости, неисправности цепей электропитания аппаратуры пожарной сигнализации (при отсутствии указанной сигнализации на аппаратуре пожарной сигнализации), заклинивании электрозадвижек, неисправности цепей электроуправления запорных устройств (общий сигнал);

- об аварийном уровне воды, раствора пенообразователя, пенообразователя в резервуаре или емкости, дренажном приямке (общий сигнал);

2) световую сигнализацию:

- о наличии напряжения на основном и резервном вводах электроснабжения, подведенных к оборудованию установки;

- об отключении звуковой сигнализации о пожаре (при отсутствии автоматического восстановления сигнализации);

- об отключении звуковой сигнализации о повреждении (при отсутствии автоматического восстановления);

- о положении задвижек или затворов "Открыто" - "Закрыто" (рекомендуемое).

11.21. Звуковые сигналы о пожаре, пуске пожарных насосов и срабатывании установок должны отличаться тональностью (ревуны, сирены) от звуковых сигналов о неисправности (звонки).

11.22. Помещения пожарного поста или другие помещения с персоналом, ведущим круглосуточное дежурство, должны быть оборудованы телефонной связью со станцией пожаротушения и с пожарной охраной.

11.23. Перечень зданий и помещений, которые целесообразно оборудовать пожарной автоматикой с передачей сигнала о пожаре по радиокоммуникационной системе на центральный узел связи "01" Государственной противопожарной службы, определяется УГПС (ОГПС) МЧС субъекта Российской Федерации, исходя из их технических возможностей.

11.24. Нормы и требования к освещению мест установки узлов управления следует принимать в соответствии с требованиями СНиП 23-05-95.

11.25. Устройства ручного пуска установок пенного объемного (кроме локального) пожаротушения должны располагаться вне защищаемого помещения у эвакуационных выходов с обеспечением свободного доступа к ним.

Устройства ручного пуска установок пенного локального пожаротушения должны находиться вне возможной зоны горения на безопасном от нее расстоянии. При этом должна обеспечиваться возможность дистанционного включения установок вне защищаемого помещения.

11.26. Устройства дистанционного пуска установок в соответствии с ГОСТ 12.4.009 должны быть разделены и защищены от случайного приведения их в действие или механического повреждения.

11.27. Защитное заземление и зануление электрооборудования должны соответствовать ПУЭ и ГОСТ 12.1.030-81.

РАЗДЕЛ 2. ПОРЯДОК РАЗРАБОТКИ ЗАДАНИЯ НА ПРОЕКТИРОВАНИЕ АУП

Основные использованные источники: СНиП 11-01-95, РД 25.952-90

1. ИЗУЧЕНИЕ ОСОБЕННОСТЕЙ ЗАЩИЩАЕМОГО ОБЪЕКТА

1.1. Перед началом проектных работ необходимо ознакомиться с проектной документацией на объект защиты, а если строительство объекта завершено, то необходимо обследовать объект с целью установить его соответствие проектной строительной документации. При этом определяется соответствие геометрических характеристик защищаемых зданий и помещений фактическим.

1.2. Устанавливаются огнестойкость строительных конструкций, геометрические размеры защищаемых объектов (вплоть до каждого помещения), эксплуатационные условия (температура и химическая агрессивность окружающей среды, влажность, вибрационные нагрузки, влияние огнетушащего вещества на окружающую среду, равномерность распределения пожарной нагрузки по объекту - сосредоточенная, рассредоточенная).

1.3. При изучении проектной документации на объект защиты или при его обследовании необходимо обратить внимание на следующие характеристики как объекта в целом, так и отдельных его помещений, а также на характеристики пожароопасных материалов.

1.3.1. Характеристика объекта защиты и пожароопасных материалов:

- наименование помещения или отдельного технологического оборудования, агрегата, подлежащих защите (этаж, оси, ряды, отметки, номер чертежа);

- площадь объекта (помещения), допустимая площадь пожара, площадь для расчета расхода вода или пенообразователя в спринклерных установках;

- объем объекта (помещения), высота, длина, ширина объекта (помещения), высота рабочей зоны, защищаемая площадь;

- начальная освещенность путей эвакуации, коэффициент отражения (альбедо) предметов на путях эвакуации;

- огнестойкость строительных конструкций, категория по взрывопожарной и пожарной опасности по НПБ 105-95;

- класс взрывопожароопасности по ПУЭ;

- диапазон предельно допустимых температур;

- рабочая температура наружного воздуха (максимальная и минимальная), относительная влажность, скорость воздушных потоков;

- тип вентиляции, наличие вибраций, запыленность, агрессивность окружающей среды;

- стоимость материальных ценностей в помещении;

- наименование пожароопасных материалов, общая загрузка (количество горючего материала на защищаемом объекте);

- величина и характер распределения пожарной нагрузки на объекте (сосредоточенная, рассредоточенная), вид хранения (напольное, в штабелях, в таре, на стеллажах, навалом), высота складирования;

- вид упаковки (сгораемая, несгораемая);

- возможность разлива ЛВЖ, площадь разлива;

- группа помещения по НПБ 88-2001;

- первичный признак пожара, который может быть использован для автоматической регистрации загорания: тепло, дым, пламя и т.п.

1.3.2. Информационно-справочные данные:

- время установления стационарного режима выгорания жидкости;

- пожарная нагрузка, низшая теплота сгорания, удельная массовая скорость выгорания горючих материалов, линейная скорость распространения пламени по поверхности горючего материала, линейная скорость распространения пламени по поверхности условной древесины, среднее значение горизонтальной скорости распространения пламени по поверхности материала, среднее значение вертикальной скорости распространения пламени по поверхности материала;

- перпендикулярный направлению движения пламени размер зоны горения;

- дымообразующая способность горящего материала;

- температура вспышки, температура кипения ЛВЖ;

- критическая продолжительность пожара по повышенной температуре, по потере видимости, по пониженному содержанию кислорода, по каждому из газообразных токсичных продуктов горения;

- продолжительность начальной стадии пожара, критическое время пожара до момента самовоспламенения пожарной нагрузки, время выхода АУП на рабочий режим с момента обнаружения пожара чувствительным элементом (быстродействие);

- необходимая масса (объем) воды и/или пенного раствора для тушения пожара на объекте;

- интенсивность подачи ОТВ (воды и/или пенного раствора), нормативное время тушения (время подачи воды и/или пенного раствора);

- необходимое время эвакуации людей из помещения.

1.4. Полученные сведения по характеристикам защищаемых помещений и пожароопасных материалов целесообразно свести в табл. II.1.1, II.1.2.

Таблица II. 1.1

Характеристика защищаемых помещений

Наименование помещения или отдельного технологического оборудования, агрегата, подлежащих защите (этаж, оси, ряды, отметки, номер чертежа)

Характеристика защищаемого помещения

Защищаемая площадь, м2

Высота помещения, м

Объем помещения, м3

Категория по взрывопожарной и пожарной опасности по НПБ 105-95

Класс взрывопожарности по ПУЭ

Относительная влажность, %, при ___ºC

Скорость воздушных потоков, м/с

Диапазон предельно допустимых температур, ºC

Степень огнестойкости строительных конструкций

Тип вентилятора

Налличие вибраций

Запыленность, наличие дыма, агрессивность сред

 

 

 

 

 

 

 

 

 

 

 

 

 

 

 

 

 

 

 

 

 

 

 

 

 

 

 

 

 

 

 

 

 

 

 

 

 

 

 

Таблица II.1.2

Характеристика пожароопасных материалов

Наименование помещения или отдельного технологического оборудования, агрегата, подлежащих защите (этаж, оси, ряды, отметки, номер чертежа)

Характеристика пожароопасных материалов

Вид хранения (напольное, в штабелях, в таре, на стелажах, навалом)

Высота хранения, м

Общая загрузка, кг

Плотность загрузки кг/м2

Удельная пожарная нагрузка, МДж/м2

Вид упаковки (сгораемая, несгораемая)

Возможность разлива ЛВЖ, площадь разлива, м2

Группа помещений по НПБ 88-2001 (см. табл. I.1.5)

 

 

 

 

 

 

 

 

 

 

 

 

 

 

 

 

 

 

 

 

 

 

 

 

 

 

 

2. ОБЩИЕ ПОЛОЖЕНИЯ О ПОРЯДКЕ РАЗРАБОТКИ, СОГЛАСОВАНИЯ И УТВЕРЖДЕНИЯ ЗАДАНИЯ НА ПРОЕКТИРОВАНИЕ

2.1. Проектирование АУП должно осуществляться применительно как к новым строительным сооружениям, так и к реконструируемым зданиям, помещениям с размещенными в них АУП и внутренним противопожарным водопроводом.

2.2. Средствами пожарной автоматики оборудуются здания, сооружения, отдельные помещения, оборудование, включенное в НПБ 110-99* (приложение 4), а также в специальные перечни, разработанные и утвержденные ведомствами и согласованные с ГУГПС МЧС России.

2.3. При проектировании АУП наряду с НПБ 110-99* необходимо руководствоваться ведомственными (отраслевыми) нормативными документами, утвержденными в установленном порядке и согласованными с органами Госпожнадзора или ВНИИПО МЧС РФ.

2.4. В случае если предлагаемый к противопожарной защите объект не вписывается в характеристику зданий, помещений, сооружений и оборудования, приведенных в НПБ 110-99* и в ведомственных нормах, можно воспользоваться рекомендациями ВНИИПО [7, 23].

2.5. Тип автоматической установки пожаротушения (АУП), способ тушения, вид оборудования установок пожарной автоматики определяются организацией-проектировщиком в зависимости от технологических, конструктивных и объемно-планировочных особенностей защищаемых объектов.

2.6. Основным документом, регулирующим правовые и финансовые отношения, взаимные обязательства и ответственность сторон, является договор (контракт), заключаемый заказчиком с привлекаемыми им для разработки проектной документации проектными, проектно-строительными организациями, другими юридическими и физическими лицами.

2.7. Неотъемлемой частью договора (контракта) должно быть задание на проектирование.

2.8. Проектирование должно осуществляться юридическими и физическими лицами, получившими на это право (лицензию) в установленном порядке.

2.9. Заказчик может делегировать соответствующие права на договорной основе юридическим или физическим лицам, возложив на них ответственность за разработку и реализацию проекта.

2.10. Проектная документация разрабатывается преимущественно на конкурсной основе, в том числе через торги подряда (тендер).

2.11. Задание на проектирование составляет организация-заказчик с привлечением организации-разработчика.

2.12. Задание на проектирование утверждается руководством организации-заказчика и согласовывается с руководством организации-разработчика.

2.13. Подписи должностных лиц, утверждающих задание на проектирование, а также лиц, с которыми оно согласовывается, должны быть заверены печатями.

2.14. Задание на проектирование должно разрабатываться в соответствии со СНиП 11-01-95 и РД 25.952-90 и содержать:

- наименование разработки;

- исходные сведения о защищаемом объекте (здания, сооружения, технологические процессы, оборудование, подлежащие защите, краткая характеристика объекта, при необходимости - данные о сейсмичности района, источниках энерго-и водоснабжения с их техническими характеристиками и пр.);

- выходные технико-экономические и эксплуатационные параметры проектируемых установок;

- требования по составу комплекта проектно-сметной документации;

- необходимые приложения, описание строительной части объекта, рекомендуемые к применению технические средства, габаритно-согласовательные чертежи и т.д.

2.15. При проектировании АУП для особо сложных и уникальных зданий и сооружений заказчиком совместно с соответствующими научно-исследовательскими и специализированными организациями должны разрабатываться специальные технические условия, отражающие специфику их проектирования, монтажа и эксплуатации.

2.16. Как на суоподряде, так и по прямым договорам с заказчиком разрабатываются:

1) задания, выдаваемые проектной организацией генпроектировщику (заказчику), перечень которых должен быть определен в задании на проектирование;

2) техническая документация для заводов-изготовителей на производство комплектных низковольтных устройств (при необходимости).

Примечание. Указанную документацию необходимо отправить генпроектировщику (заказчику) с сопроводительным письмом.

2.17. По согласованию с заказчиком в задание на проектирование могут вноситься изменения и уточнения.

2.18. Проектно-сметная документация, не содержащая отступлений, затрагивающих вопросы пожарной безопасности, а также документация, разработанная в соответствии с государственными стандартами, нормами, правилами (далее - нормы проектирования), что должно быть удостоверено соответствующей записью главного инженера проекта, не подлежит согласованию с органами Государственного пожарного надзора.

2.19. Обоснованные отступления от требований нормативных документов допускаются только при наличии разрешений органов, которые утвердили и (или) ввели в действие эти документы.

2.20. При наличии в проектно-сметной документации отступлений от норм проектирования или проектных решений, на которые отсутствуют нормы проектирования, главным инженером проекта приводится полный перечень таких проектных решений и указывается орган государственного надзора, с которым они согласованы.

2.21. Ответственность за качество разработанной проектной документации несет главный инженер проекта.

2.22. К проектированию АУП могут быть привлечены зарубежные фирмы, имеющие соответствующие лицензии (ГУГПС, Госстрой и т.п.).

2.23. При внедрении проектов АУП, выполненных зарубежными фирмами, не имеющими лицензии Главного управления Государственной противопожарной службы (ГУГПС) на проведение данного вида работ (комплексная поставка защищаемого оборудования и монтаж), необходимо руководствоваться требованием п. 6.1 НПБ 04-93.

Технико-экономические обоснования и проектная документация на строительство объектов иностранными фирмами должны отвечать противопожарным требованиям действующих в Российской Федерации государственных стандартов, строительных норм и правил. При отсутствии отечественных норм проектирования допускается при разработке проектов использовать зарубежные нормативные документы. В этом случае проектная документация подлежит согласованию с соответствующими организациями и высшим органом Государственного противопожарного надзора в установленном порядке. При этом заказчик обязан представить в соответствующий орган Государственного пожарного надзора полный комплект зарубежных норм, а также сертификаты на конструкции и материалы, применяемые в строительстве, в оригинале и переводе на русский язык.

3. ОСНОВНЫЕ ТРЕБОВАНИЯ К АУП

3.1. Конструктивные и проектные решения АУП должны удовлетворять требованиям ГОСТ 12.3.046, ГОСТ Р 50680, ГОСТ Р 50800, ГОСТ Р 51043, ГОСТ Р 51052, НПБ 80-99, НПБ 83-99, НПБ 84-2000, НПБ 87-2000, НПБ 88-2001.

3.2. При выборе конструктивных решений АУП должно учитываться следующее:

- категория производства по пожаро- и взрывоопасности;

- агрессивность окружающей среды;

- требования ГОСТ 15150 - в части категорий исполнения по устойчивости к климатическим воздействиям;

- требования СНиП 2.04.02 и ГОСТ 12.1.012 - в части сейсмичности и вибрации;

- требования СНиП 3.05.05, ГОСТ 356 и ГОСТ 9544 -в части прочности и герметичности;

- расположение и работа технологического и подъемно-транспортного оборудования для исключения механических повреждений и ложных срабатываний АУП, а также возможность сопряжения с технологической автоматикой защищаемого объекта;

- пожарная опасность и физико-химические свойства веществ и материалов, находящихся на защищаемом объекте, что

необходимо учитывать при выборе АУП и огнетушащего вещества (ОТВ);

- совместимость используемых в АУП ОТВ (воды, водных растворов, в том числе пенных) с технологическими и горючими материалами;

- строительные особенности защищаемого объекта, возможности и условия применения ОТВ, характер технических процессов производства;

- выполнение АУП функции автоматической установки пожарной сигнализации (УПС);

- наличие сертификатов соответствия и сертификатов на пожарную безопасность оборудования, изделий, материалов и ОТВ, закладываемых в проект АУП, в соответствии с действующим перечнем ГУГПС [30],

- для пенных АУП наличие 100 %-ного запаса ОТВ по отношению к расчетному.

4. ПОРЯДОК ИЗЛОЖЕНИЯ ЗАДАНИЯ НА ПРОЕКТИРОВАНИЕ

4.1. Задание на проектирование должно быть оформлено в соответствии с общими требованиями к текстовым документам по ГОСТ 2.105, к форматам - по ГОСТ 2.301.

4.2. Задание на проектирование должно быть пригодно для неоднократного снятия копий.

4.3. Учет и хранение подлинника задания на проектирование осуществляет организация-разработчик проекта в порядке, установленном ГОСТ 21.203.

4.4. Задание на проектирование должно содержать следующие разделы:

1) общие сведения;

2) технические требования к проектируемой установке;

3) исходные данные для проектирования;

4) данные для составления сметной документации;

5) перечень документации, представляемой организацией-разработчиком организации-заказчику.

4.5. Отдельные разделы могут быть представлены в виде приложения к проекту; при этом они должны быть заверены утверждающей подписью ответственного представителя заказчика и согласованы с главным инженером проекта.

5. ПОРЯДОК ОФОРМЛЕНИЯ ЗАДАНИЯ НА ПРОЕКТИРОВАНИЕ

5.1. Форма первой страницы задания на проектирование автоматических установок пожаротушения

5.2. Содержание и текстовая форма задания на проектирование

1. ОБЩИЕ СВЕДЕНИЯ

1.1. Заказчик проекта ___________________________________________________________

(наименование организации заказчика, адрес, телефон)

1.2. Основание для проектирования:

1)____________________________________________________________________________

(номер договора)

2)____________________________________________________________________________

(другие документы)

1.3. Вид защищаемого объекта: новый, реконструкция, техническое перевооружение,

расширение______________________________________________________________________

(ненужное зачеркнуть)

1.4. Генеральная проектная организация ___________________________________________

(наименование организации, адрес, телефон)

1.5. Срок проектирования:

Начало_______________________________________________________________________

(месяц, год)

Окончание____________________________________________________________________

(месяц, год)

1.6. Стадии проектирования: проект, рабочий проект,________________________________

рабочая документация_____________________________________________________________

(ненужное зачеркнуть)

1.7. При проектировании проектно-сметной документации следует руководствоваться действующими нормативными документами по строительству, а также ведомственными и прочими документами, представляемыми заказчиком:

1)____________________________________________________________________________

(наименование документов)

2)____________________________________________________________________________

3)____________________________________________________________________________

4)____________________________________________________________________________

1.8. Особые условия строительства:_______________________________________________

(климатические условия, группа просадочности грунта,

________________________________________________________________________________

глубина промерзания грунта, сейсмичность, глубина залегания вод и др.)

1.9. Прочие сведения ___________________________________________________________

2. ИСХОДНЫЕ ДАННЫЕ ДЛЯ ПРОЕКТИРОВАНИЯ

2.1. Место выдачи сигналов АУП:

1) сигналы установки выдать в помещение ________________________________________

(наименование помещения)

расположенное на отметке_________________________________________________________

обеспеченное круглосуточным дежурством обслуживающего персонала;

2) дублирующие сигналы выдать_________________________________________________

(наименование помещения)

2.2. Дополнительные данные:

________________________________________________________________________________

________________________________________________________________________________

2.3. Проектирование установки __________________________________________________

(наименование системы)

осуществлять по чертежам, разработанным __________________________________________

(наименование организации)

и прилагаемым к данному заданию на проектирование.

2.4. Перечень чертежей, необходимых для проектирования АУП:

2.4.1. Генплан или выкопировка из генплана с указанием защищаемых помещений, помещений для размещения оборудования проектируемых установок, помещений выдачи сигналов, резервуаров: ____________________________________________________________

________________________________________________________________________________

(номера чертежей)

2.4.2. Чертежи архитектурно-строительные: планы, разрезы с указанием размеров элементов конструкций (плит, балок, колонн)

________________________________________________________________________________

(номера чертежей)

2.4.3. Чертежи вентиляции и отопления с указанием размеров вентиляционных коробов и с их отметками __________________________________________________________________

(номера чертежей)

2.4.4. Чертежи электроосвещения с указанием расположения светильников, их размеров и привязок, а также высоты подвеса __________________________________________________

(номера чертежей)

2.4.5. Чертежи с нанесением ориентировочных трасс прокладки трубопроводов и кабелей_________________________________________________________________________

(номера чертежей)

2.4.6. Конструктивные чертежи фальшполов и подвесных потолков с указанием размеров элементов _______________________________________________________________________

(номера чертежей)

2.4.7. Конструктивные чертежи технологического оборудования, подлежащего защите (агрегаты, камеры и др.) ___________________________________________________________

________________________________________________________________________________

(номера чертежей)

а также чертежи других инженерных коммуникаций ________________________________

________________________________________________________________________________

2.4.8. Чертежи помещения для размещения приемно-контрольных приборов (планы, разрезы)________________________________________________________________________

(номера чертежей)

2.4.9. Чертежи генерального плана площадки (горизонтальная и вертикальная планировка) с нанесением инженерных сетей ____________________________________________________

(номера чертежей)

2.4.10. Прочие чертежи _________________________________________________________

(наименование и номера чертежей)

2.4.11. При проектировании руководствоваться_____________________________________

(перечень документов: предписание органов пожарной охраны,

_____________________________________________________________________________

акты обследования, письма, протоколы и др.)

2.4.12. В защищаемом здании осуществляется______________________________________

________________________________________________________________________________

(наименование вида производства, краткое описание технологического процесса

________________________________________________________________________________

и оборудования, подлежащего защите)

2.5. Исходными данными для проектирования являются:

2.5.1. Источник водоснабжения системы пожаротушения, его параметры ________________________________________________________________________________

(давление, расход, вместимость, размещение)

Примечание. Если источником водоснабжения являются водопроводные сети, то данные, приведенные в п. 2.5.1, должны быть подтверждены справкой водопроводного хозяйства (за исключением случаев проектирования на субподряде).

2.5.2. Узлы управления системы разместить в______________________________________

________________________________________________________________________________

________________________________________________________________________________

2.5.3. Наличие открытых токоведущих конструкций в защищаемых помещениях_____________________________________________________________________

2.5.4. Электроснабжение АУП принять от двух_____________________________________

с глухозаземленной изолированной нейтралью, обеспечивающих прямой пуск насосных двигателей с короткозамкнутым ротором мощностью ________________ кВт, напряжением _____В, трехфазного/однофазного переменного тока частотой

50 Гц.

Примечание. Данные, приведенные в п. 2.5.4, должны быть подтверждены справкой об источниках электроснабжения организациями Горэнерго.

2.5.5. В схеме электроуправления предусмотреть выходы для формирования командного импульса на отключение вентиляции и технологического оборудования по каждому направлению при пожаре.

2.6. Характеристики защищаемых помещений, пожароопасных материалов и требования к АУП могут быть представлены в виде табл. II.5.1.

2.7. Дополнительные условия ____________________________________________________

3. РАЗРАБОТКА СМЕТНОЙ ДОКУМЕНТАЦИИ

Данные для составления сметной документации:

3.1. Местонахождение объекта (в соответствии с территориальным делением) __________

3.2. Территориальный район _____________________________________________________

________________________________________________________________________________

3.3. Районный коэффициент _____________________________________________________

________________________________________________________________________________

3.4. Накладные расходы на строительные работы для генподрядчика __________________

________________________________________________________________________________

3.5. Коэффициент к накладным расходам для определения нормативной условно-чистой продукции (НУЧП) _______________________________________________________________

________________________________________________________________________________

3.6. Наличие условий, снижающих производительность труда рабочих при производстве монтажных работ (стесненность или вредные условия труда) ___________________________

________________________________________________________________________________

3.7. Привязанные к местным условиям единичные расценки на строительные работы (в табличной форме):

Номера расценок

Единица измерения

Прямые затраты по району строительства с учетом стоимости местных материалов

 

 

 

 

 

 

 

 

 

3.8. Сметы выполнить: объектную, сводную, локальную_____________________________

(ненужное зачеркнуть)

3.9. Дополнительные особые условия для учета в сметах_____________________________

________________________________________________________________________________


Таблица II. 5.1

Характеристика защищаемых помещений, пожароопасных материалов и требования к АУП

Наименование помещения или отдельного технологического оборудования, агрегата, подлежащих защите (этаж, оси, ряды, отметки, номер чертежа)

Характеристика защищаемого помещения

Защищаемая площадь, м2

Высота помещения, м

Объем помещения, м3

Категория по взрывопожарной и пожарной опасности по НПБ 105-95

Класс взрывопожароопасности по ПУЭ

Относительная влажность, %, при ___ºC

Скорость воздушных потоков, м/с

Диапазон предельно допустимых температур, ºС

Степень огнестойкости строительных конструкций

Тип вентиляции

1

2

3

4

5

6

7

8

9

10

11

 

 

 

 

 

 

 

 

 

 

 

 

 

 

 

 

 

 

 

 

 

 

Продолжение таблицы II. 5.1

Характеристика защищаемого помещения

Характеристика пожароопасных материалов

Требования к АУП

Наличие вибраций

Запыленность, наличие дыма, агрессивных сред

Наименование пожарных материалов. Вид хранения (напольное, в штабелях, в таре, на стеллажах, навалом). Высота хранения, м. Общая загрузка, кг. Плотность загрузки, кг/м2. Удельная пожарная нагрузка, МДж/м2. Вид упаковки (сгораемая, несгораемая). Возможность разлива ЛВЖ, площадь разлива, м2. Группа помещения по НПБ 88-2001

Первичный признак пожара: Т - тепло, Д - дым, П - пламя

Тип системы пожаротушения: С - спринклерная, Д - дренчерная

Тип извешателя: М - механический, Т - тепловой, Э - электрический, С - световой, Д - дымовой

Способ тушения: О - объемный, Лп - локальный по площади, Ло - локальный по объему, З - завеса

Огнетушашее средство: В - вода, ВС - вода со смачивателем, П - пенный раствор

Дополнительные сведения и требования к АУП, необходимость установки пожарных кранов, отключения электрооборудования до пуска АУП, наличие открытых токоведущих частей и другие сведения

12

13

14

15

16

17

18

19

20

 

 

 

 

 

 

 

 

 

 

 

 

 

 

 

 

 

 


6. ПЕРЕЧЕНЬ ДОКУМЕНТАЦИИ, ПРЕДСТАВЛЯЕМОЙ ОРГАНИЗАЦИЕЙ-РАЗРАБОТЧИКОМ ОРГАНИЗАЦИИ-ЗАКАЗЧИКУ

6.1. Организация-разработчик представляет организации-заказчику:

- комплект проектно-сметной документации в соответствии со СНиП 11-01-95;

- задания, выдаваемые организацией-разработчиком организации-заказчику (выбирается при необходимости):

1. Строительное задание на помещения, в которых размещается оборудование АУП (насосные станции, узлы управления, оборудование пожарной и охранной сигнализации), и оборудование их инженерными сетями и коммуникациями.

2. Строительное задание на устройство закладных деталей для крепления трубопроводов, кабелей, пробивку отверстий и борозд под трубопроводы и кабели.

3. Задание на наружные трубопроводы и кабельные трассы.

4. Задание на удаление огнетушащего вещества после пожара.

5. Задание на вентиляцию аккумуляторных помещений.

6. Задание на использование контактов электросхемы для формирования командного импульса на отключение вентиляции и технологического оборудования, задействования противодымной защиты системы оповещения о пожаре, на размножение контактов и их усиление. Размножение контактов и кабельные связи от контактов в схемах АУП до вентиляционного, технологического и другого оборудования обеспечивает заказчик.

7. Задание на подвод воды.

8. Задание на устройство заземления.

9. Задание на электроснабжение систем (подвод линий питания к электрошкафам и приборам систем).

10. Задание на размещение заказов на изготовление щитов и пультов.

11. Задание на разработку рабочей документации и изготовление нестандартного оборудования.

12. Задание на подвод электропитания к электроприемникам АУП.

13. Задание на телефонизацию помещения автономной охраны и радиооповещения.

6.2. Заказчик __________________________________________________________________

(наименование организации-заказчика)

гарантирует выполнение работ по заданиям, выдаваемым организацией-разработчиком организации-заказчику.

6.3. Форма последней страницы задания на проектирование (обязательная)

РАЗДЕЛ III. ПОРЯДОК РАЗРАБОТКИ ПРОЕКТА АУП

1. ОБОСНОВАНИЕ ВЫБОРА АУП

1.1. Выбор огнетушащего вещества

Основные использованные источники: [7]

1.1.1. Необходимость применения АУП определяется НПБ 110-99*, а также отраслевыми стандартами и положениями. В том случае, если в приведенных документах отсутствуют аналоги объектов защиты, для определения области пожарной автоматики (АУП или УПС) в целях обеспечения безопасности людей или снижения материальных потерь от пожара можно использовать "точечный метод", основанный на присвоении предельных числовых значений каждому из рассматриваемых показателей [23].

1.1.2. Схема алгоритма выбора типа АУП приведена на рис. III.1.1. На первом этапе заполняются таблицы исходных характеристик и выбираются все необходимые для расчета информационно-справочные данные для конкретного объекта. На втором этапе производится выбор типа АУП.

1.1.3. При выборе АУП учитываются:

- возможные типы АУП в зависимости от применяемых ОТВ и быстродействия установок;

- стоимость материальных ценностей на объекте (в помещениях);

- капитальные вложения и текущие затраты на АУП.

1.1.4. При выборе вида ОТВ и способа тушения учитываются:

- характеристика объекта и микроклимат в нем;

- характеристика горючих веществ и материалов (вид, физико-химические свойства, характер распределения пожарной нагрузки и др.);

- применимость ОТВ и параметры тушения (совместимость их с горючей нагрузкой; интенсивность и концентрация, расход и время подачи ОТВ, влияние их на окружающую среду и др.).

Рис. III.1.1 (лист 1 из 2-х). Алгоритм по выбору типа АУП

Рис. III.1.1 (лист 2 из 2-х). Алгоритм по выбору типа АУП


Таблица III.1.1

Применимость огнетушащих веществ в АУП для различных классов пожара

Класс пожара

Подкласс

Горючие вещества и материалы (объекты)

Разбрызгиваемая вода

Распыляемая вода

Разбрызгиваемая вода со смачивателем

Воздушно-механическая пена

кратностью

Форетол универсальный

низкой

средней

высокой

А

А1

Твердые тлеющие вещества, смачиваемые водой (дерево и т.п.)

А2

Твердые тлеющие вещества, не смачиваемые водой (хлопок, торф и т.п.)

А3

Твердые нетлеющие вещества (пластмассы и т.п.)

А4

Резинотехнические изделия

А5

Музеи, архивы, библиотеки и т.п.

-

-

-

-

В

В1

Предельные и непредельные углеводороды (гептан и т.п.)

Для ЛВЖ и ГЖ с Твсп < 90°С:

В2

Предельные и непредельные углеводороды (бензин и т.п.)

В3

Спирты водорастворимые (С1 - С3)

-

-

-

-

В4

Спирты водонерастворимые (С4 и выше)

 

 

 

В5

Кислоты - ограниченно водорастворимые / водорастворимые

Для ЛВЖ и ГЖ с Твсп > 90°С:

-/

-/

-/

В6

Эфиры простые и сложные (диэтиловый и т.п.)

-

В7

Альдегиды и кетоны (ацетон и т.п.)

-

С

С1

Углеводородные газы (метан и т.п.)

-

-

-

-

-

-

-

С2

Газы, образующие при реакции вещества с водой (ацетилен и т.п.)

-

-

-

-

-

-

-

С3

Водород

-

-

-

-

-

-

-

Д

Д1

Легкие металлы (магний, алюминий и т.п.)

-

-

-

-

-

-

-

Д2

Щелочные металлы (калий, натрий и т.п.)

-

-

-

-

-

-

-

Д3

Алюминийорганические соединения

-

-

-

-

-

-

-

Д4

Литийорганические соединения

-

-

-

-

-

-

-

Е*

Е1

ЭВЦ

Е2

Телефонные узлы

Е3

Электроцентрали

Е4

Трансформаторные подстанции

Е5

Электроника

Примечание. Условные обозначения:  - подходит отлично;  - подходит хорошо;  - подходит, но не рекомендуется; «-» не подходит; «*» - электрооборудование под напряжением; Твсп, Ткип - температуры соответственно вспышки и кипения.


1.1.5. В зависимости от вида горючих веществ и материалов, обращающихся на объекте защиты, определяются класс и подклассы вероятного пожара и в соответствии с этим выбираются возможные ОТВ (см. табл. III.1.1). Дисперсность применяемой для тушения ЛВЖ и ГЖ воды зависит от температуры их вспышки.

1.1.6. Водопенные средства нельзя применять для тушения следующих материалов:

- алюминийорганичееких соединений (реакция со взрывом);

- литийорганических соединений; азида свинца; карбидов щелочных металлов; гидридов ряда металлов - алюминия, магния, цинка; карбидов кальция, алюминия, бария (разложение с выделением горючих газов);

- гидросульфита натрия (самовозгорание);

- серной кислоты, термитов, хлорида титана (сильный экзотермический эффект);

- битума, перекиси натрия, жиров, масел, петролатума (усиление горения в результате выброса, разбрызгивания, вскипания).

1.1.7. Пенообразователи целевого назначения используются как для тушения конкретных веществ (например, пенообразователь ПО-1С -для метанола и этанола, ПО-11 -для диэтилового эфира; ПО-6ЦТ и ПО-6НП особенно эффективны при тушении нефтепродуктов), так и для специфических условий (например, пенообразователь "Морозко" - для условий Крайнего Севера, пенообразователь "Морпен" - для получения пены кратностью от 10 до 1000 с применением морской заборной воды; пленкообразующий фторсинтетический пенообразователь ПО-6A3F совместим с пресной, оборотной и морской водой и со стандартным пожарным оборудованием).

1.1.8. Для исходных расчетов используются объемно-планировочные решения объекта, сведения о распределении в нем горючей нагрузки (табл. III.1.2) и информационно-справочные данные по скорости распространения пожара и интенсивности орошения [7, 11, 14, 26 - 28, 31, 33, 39].

Таблица III.1.2

Исходные сведения по объему защиты

Наименование

Значения по помещениям

Примечание

1

. . .

N*

Перечень горючих веществ (материалов) в помещении и соответствующих им подклассов пожара

 

 

 

По данным объекта

Величина и характер распределения пожарной нагрузки:

сосредоточенная

рассредоточенная

 

 

 

То же

Площадь объекта (помещения)

 

 

 

-"-

Высота, длина, ширина

 

 

 

-"-

Объем

 

 

 

-"-

Площади открытых проемов

 

 

 

-"-

Температура наружного воздуха:

максимальная

минимальная

 

 

 

-"-

Температура в защищаемом помещении до загорания

 

 

 

-"-

Температура вспышки ЛВЖ, ГЖ <90°С или > 90°С

 

 

 

По справочным данным (по паспорту)

Температура кипения ЛВЖ < 50°С

 

 

 

Высота отметки зоны нахождения людей над полом помещения

 

 

 

По данным объекта

Разность высот пола

 

 

 

То же

Тип расчетной схемы развития пожара

 

 

 

-"-

Стоимость материальных ценностей объекта (помещения)

 

 

 

-"-

*N - количество помещений.

1.1.9. Проверяются противопоказания к использованию воды и пенного раствора (т.е. нельзя применять при тушении пожаров):

- для воды - веществ, вступающих во взаимодействие с водой, взрывоопасных и пирофорных;

- для пенного раствора - веществ, вступающих во взаимодействие с водой, взрывоопасных и пирофорных, летучих жидкостей с Ткип < 50°С.

1.1.10. Устанавливается возможность применения водопенных ОТВ по величине минимальной температуры воздуха в защищаемом помещении (не ниже 5°С).

1.1.11. Для отобранных ОТВ выбираются соответствующие им нормы тушения [7, 14, 33], которые конкретизируются для каждого объекта защиты, а при их отсутствии принимаются максимальные значения интенсивности подачи ОТВ согласно табл. I.1.2 - I.1.4 настоящего пособия.

1.1.12. Согласно НПБ 88-2001 и [7] определяется характер распределения пожарной нагрузки на объекте (в помещении), соответствующий ему класс помещения и в зависимости от этого предполагаемый способ тушения (табл. III.1.3).

Таблица III.1.3

Классификация помещений по характеру распределения пожарной нагрузки (для выбора способа тушения*)

* Способ тушения окончательно определяется после уточнения Sдоп.

Характер распределения пожарной нагрузки в помещении

Класс помещения

Ограничения по площади, объему

Суммарная площадь открытых проемов Fоп, %

Рекомендуемый способ тушения

Помещения крупных объектов, пожарная нагрузка в которых сосредоточена и горение может развиваться на отдельных ограниченных разобщенных участках Sдоп без развития пожара по всей площади S

I

Sдоп << S

Fоп без ограничений

Локальный по площади

II

V > 1500 м3

Sдоп << S

Fоп < 10

Локальный по объему

Помещения, пожарная нагрузка в которых рассредоточена по всей площади таким образом, что горение может происходить с развитием пожара по всей площади S

III

Sдоп без ограничений

Fоп без ограничений

По площади

IV

V ≤ 1500 м3

Fоп < 10

По объему

1.1.13. Определяются возможные виды АУП в зависимости от выбранных ОТВ и вероятного способа тушения пожара (табл. III.1.4).

Таблица III.1.4

Возможные виды АУП в зависимости от применяемых огнетушащих веществ и способа тушения

Способ тушения

Применяемое ОТВ

Вид АУП

Локальный по площади

Вода (разбрызгиваемая или распыляемая, с добавками или без добавок)

Водяная

Пена (средней или низкой кратности)

Пенная

Локальный по объему

Пена (высокой или средней кратности)

Пенная

По площади

Вода (разбрызгиваемая или распыляемая, с добавками или без добавок)

Водяная

Пена (средней или низкой кратности)

Пенная

По объему

Пена (высокой или средней кратности)

Пенная

1.2. Расчет времени срабатывания АУП

1.2.1. При расчете времени начала тушения учитываются:

- характеристика объекта (геометрические размеры, огнестойкость строительных конструкций и др.);

- вид и характер распределения пожарной нагрузки и схемы возможного развития пожара;

- показатели пожарной опасности горючих веществ и материалов, обращающихся на объекте защиты;

- ориентировочное значение быстродействия АУП.

1.2.2. При расчете требуемого быстродействия АУП используются следующие выражения [23]:

- для обеспечения безопасности людей:

                                                                                                          (III.1.1)

где  - время, необходимое для эвакуации людей; Kб - коэффициент безопасности;  - критическая продолжительность пожара для рассматриваемого опасного фактора пожара;

- для обеспечения снижения ущерба после пожара:

                                                                                              (III.1.2)

где  - время срабатывания АУП, обеспечивающее минимизацию распространения пожара;  - критическая продолжительность пожара с планируемым ущербом от него.

1.2.3. Окончательный выбор АУП производится из условия минимизации разницы ∆ между ущербом от пожара У и затратами на АУП для конкретного объекта З [25]:

= У - З.                                                                                                  (III.1.3)

1.3. Расчет критического времени пожара, необходимого для обеспечения своевременной эвакуации людей [38]

1.3.1. Определяются геометрические характеристики защищаемого помещения. К ним относятся его геометрический объем, приведенная высота и высота каждой из рабочих зон.

Геометрический объем определяется на основе размеров и конфигурации помещения. Приведенная высота вычисляется как отношение геометрического объема к площади горизонтальной проекции помещения. Высота рабочей зоны h рассчитывается по формуле

h = hотм + 1,7 - 0,5δ,                                                                                (III.1.4)

где hотм - высота отметки зоны нахождения людей над полом помещения; δ - разность высот пола; δ = 0 - при его горизонтальном расположении.

1.3.2. Выбирается расчетная схема развития пожара.

Время возникновения опасных для человека факторов пожара в помещении зависит от вида горючих веществ и материалов и площади горения, которая, в свою очередь, обуславливается свойствами самих материалов, а также способом их укладки и размещения. Каждая расчетная схема развития пожара в помещении характеризуется значениями параметров А и n, которые зависят от формы поверхности горения, характеристик горючих веществ и материалов и определяются следующим образом.

1.3.2.1. Для горения легковоспламеняющихся и горючих жидкостей, разлитых на площади S:

- при горении жидкости с установившейся скоростью горения:

А = ψS, n = 1,                                                                                           (III.1.5)

где ψ - удельная массовая скорость выгорания; S - площадь объекта (помещения); n - расчетный параметр;

- при горении жидкости с неустановившейся скоростью горения:

                                                                      (III.1.6)

где τст - время установления стационарного режима выгорания жидкости.

Значение τст принимается в зависимости от температуры кипения жидкости:

- до 100°С - 180 с;

- от 101 до 150°С - 240 с;

- более 150°С - 360 с.

1.3.2.2. Для кругового распространения пламени по поверхности равномерно распределенного в горизонтальной плоскости горючего материала:

                                                                               (III.1.7)

где υл - линейная скорость распространения пламени по поверхности горючего материала.

1.3.2.3. Для вертикальной или горизонтальной поверхности горения в виде прямоугольника, одна из сторон которого увеличивается в двух направлениях за счет распространения пламени (например, горизонтальное направление огня по занавесу после охвата его пламенем по всей высоте):

A = ψSυлb, n = 2,                                                                                      (III.1.8)

где b - размер зоны горения, перпендикулярный направлению движения пламени.

1.3.2.4. Для вертикальной поверхности горения, имеющей форму прямоугольника (горение занавеса, одиночных декораций, горючих или облицовочных материалов стен при воспламенении снизу до момента достижения пламенем верхнего края материала):

A = 0,667ψυгυв, n = 3,                                                                               (III.1.9)

где υг - среднее значение горизонтальной скорости распространения пламени; υв - среднее значение вертикальной скорости распространения пламени.

1.3.2.5. Для поверхности горения, имеющей форму цилиндра (горение пакета декораций или тканей, размещенных с зазором):

A = 2,09ψυгυв, n = 3.                                                                                 (III.1.10)

1.3.3. Каждой рассматриваемой расчетной схеме присваивается порядковый номер (индекс j), и определяется критическая продолжительность пожара для выбранной схемы его развития ().

1.3.4. Расчет  проводится в такой последовательности. Находятся значения комплексов B и z:

B = 9130PV/Qн;                                                                                        (III.1.11)

                                                                                  (III.1.12)

где P - давление в помещении; V - объем объекта (помещения); Qн - низшая теплота сгорания; z - расчетный параметр; h - высота рабочей зоны; H - высота объекта.

1.3.5. Определяется критическая продолжительность пожара для данной j-й схемы развития по каждому из опасных факторов:

- повышенной температуре:

                                             (III.1.13)

где Т0 - начальная температура в помещении до начала пожара;

- потере видимости:

                                                   (III.1.14)

где α - коэффициент отражения (альбедо) предметов на путях эвакуации; E - начальная освещенность путей эвакуации; D - дымообразующая способность горящего материала.

При отсутствии специальных требований значения α и E принимаются равными соответственно 0,3 и 50 лк;

- пониженному содержанию кислорода:

                                             (III.1.15)

где  - расход кислорода на 1 кг горящего металла;

- предельно допустимому содержанию газообразных токсичных продуктов горения:

                                                                (III.1.16)

1.3.6. Определяются наиболее опасная схема развития пожара и критическая продолжительность пожара для данной расчетной схемы:

                                                                  (III.1.17)

1.3.7. Находится количество выгоревшего к моменту  материала

                                                                                           (III.1.18)

Каждое значение mj в выбранной j-й схеме сравнивается с общей массой горючего материала на защищаемом объекте M. Расчетные схемы, для которых mj > M, исключаются из дальнейшего рассмотрения.

Из оставшихся расчетных схем выбирается наиболее опасная, т.е. та, для которой критическая продолжительность пожара минимальна:

                                                                                    (III.1.19)

Полученное значение τкр и есть критическая продолжительность пожара.

1.3.8. Определяется время, необходимое для эвакуации людей:

                                                                         (III.1.20)

1.4. Расчет критического времени для обеспечения снижения ущерба от пожара

1.4.1. Определяется критическое время пожара τкр [25]. За критическое время пожара τкр, по истечении которого тушение его малоэффективно, принимается время повышения среднеобъемной температуры до температуры самовоспламенения пожарной нагрузки  или время обрушения строительных конструкций .

1.4.2. Удельная пожарная нагрузка, приведенная к древесине, рассчитывается по формуле

q = 4,83·103GQнψ,                                                                                    (III.1.21)

где G - пожарная нагрузка, кг/м2; Qн - низшая теплота сгорания, кДж/кг; ψ - удельная массовая скорость выгорания, кг/(с·м2).

При q < 150 кг/м2 и защищаемой площади менее 100 м2 критическое время пожара (начальная стадия пожара) определяется по ГОСТ 12.1.004.

При q > 150 кг/м2 значение приведенного критического времени τпк в зависимости от приведенной пожарной нагрузки q и высоты помещения принимается по табл. III.1.5.

1.4.3. Время повышения среднеобъемной температуры до температуры самовоспламенения пожарной нагрузки  рассчитывается по формуле:

                                                                                      (III.1.22)

где  - линейная скорость распространения пламени по поверхности условной древесины.

Для ГЖ и ЛВЖ υл принимается максимальной, т.е. 6 м/мин (табл. III.1.6), или равной скорости пролива жидкости.

1.4.4. Время обрушения строительных конструкций  определяется с учетом высоты помещения, линейной скорости горения и огнестойкости конструкций (см. табл. III.1.6).

1.4.5. Из двух полученных значений т:  и  выбирается минимальное:

                                                                                 (III.1.23)

1.4.6. По ГОСТ 12.1.004 вычисляется продолжительность приведенной начальной стадии пожара  в зависимости от объема или площади помещения и количества приведенной пожарной нагрузки q (рис. III.1.2 - III.1.4).

Таблица III.1.5

Приведенное критическое время пожара до момента самовоспламенения пожарной нагрузки

Площадь S, м2

Приведенное критическое время τпк, мин, при пожарной нагрузке, приведенной к древесине, кг/м2

150

300

450

600

750

900

1050

1200

1350

1500

Н = 4,0 м

100

11,3

9,3

8,2

7,5

6,9

6,5

6,2

5,9

5,7

5,5

500

19,2

15,8

14,0

12,7

11,8

П,1

10,5

10,0

9,6

9,3

1000

24,4

20,1

17,7

16,1

15,0

14,1

13,3

12,7

12,2

11,8

1500

28,2

23,2

20,4

18,6

17,2

16,2

15,4

14,7

14,1

13,5

2000

31,2

25,7

22,6

20,6

19,1

17,9

17,0

16,2

15,6

15,0

2500

33,8

27,8

24,5

22,3

20,7

19,4

18,4

17,6

16,9

16,2

3000

36,1

29,7

26,2

23,8

22,1

20,7

19,6

18,7

18,0

17,3

Н = 5,0 м

100

12,0

9,9

8,7

7,9

7,3

6,9

6,5

6,2

6,0

5,8

500

20,1

16,6

14,6

13,3

12,4

11,6

11,0

10,5

10,1

9,7

1000

25,4

21,0

18,5

16,8

15,6

14,7

13,9

13,3

12,8

12,3

1500

29,2

24,1

21,3

19,4

18,0

16,9

16,0

15,3

14,7

14,1

2000

32,4

26,7

23,5

21,4

19,9

18,7

17,7

16,9

16,2

15,6

2500

35,0

28,9

25,5

23,2

21,5

20,2

19,2

18,3

17,5

16,9

3000

37,3

30,8

27,1

24,7

22,9

21,5

20,4

19,5

18,7

18,0

Н = 6,0 м

100

2,5

10,4

9,1

8,3

7,7

7,2

6,9

6,6

6,3

6,1

500

20,9

17,3

15,2

13,9

12,9

12,1

11,5

11,0

10,5

10,1

1000

26,3

21,8

19,2

17,5

16,2

15,3

14,5

13,8

13,3

12,8

1500

30,3

25,0

22,0

20,1

18,6

17,5

16,6

15,9

15,2

14,7

2000

33,4

27,6

24,3

22,2

20,6

19,3

18,4

17,5

16,8

16,2

2500

36,2

29,8

26,3

24,0

22,3

20,9

19,8

18,9

18,2

17,5

3000

38,5

ЗУ

28,0

25,5

23,7

22,3

21,1

20,2

19,7

19,4

Н = 7,0 м

100

13,1

10,8

9,5

8,7

8,0

7,6

7,2

6,9

6,6

6,3

500

21,6

17,9

15,8

14,4

13,4

12,6

11,9

11,4

10,9

10,5

1000

27,2

22,5

19,8

18,1

16,8

15,8

15,0

14,3

13,7

13,2

1500

31,2

25,8

22,8

20,7

19,3

18,1

17,2

16,4

15,8

15,2

2000

34,4

28,4

25,1

22,9

21,2

20,0

19,0

18,1

17,4

16,8

2500

37,2

30,7

27,1

24,7

23,0

21,6

20,5

19,6

18,8

18,1

3000

39,6

32,7

28,9

26,3

24,4

23,0

21,8

20,8

20,0

19,3

Н = 8,0 м

100

13,6

11,2

9,9

9,0

8,4

7,9

7,5

7,1

6,8

6,6

500

22,3

18,5

16,3

14,9

13,8

13,0

12,3

11,8

11,3

10,9

1000

28,0

23,2

20,5

18,7

17,3

16,3

15,5

14,8

14,2

13,7

1500

32,1

26,5

23,4

21,4

19,8

18,7

17,7

16,9

16,2

15,7

2000

35,4

29,3

25,8

23,5

21,9

20,6

19,5

18,6

17,9

17,3

2500

38,2

31,6

27,9

25,4

23,6

22,2

21,1

20,1

19,3

18,6

3000

40,6

33,6

29,7

27,0

25,1

23,6

22,4

21,4

20,6

19,8

Таблица III.1.6

Критическое время пожара до момента обрушения строительных конструкций

Высота помещения Н, м

Линейная скорость горения υл, м/мин

Время обрушения строительных конструкций, , мин, имеющих огнестойкость строительных конструкций Ок, ч

0,25

0,50

0,75

1,0

4

0,6

6

12

27

36

1,2

5

11

25

35

2,4

4

9

23

33

3,6

3

9

21

32

4,8

3

8

21

30

6,0

3

7

19

30

5

0,6

7

13

28

36

1,2

5

11

26

35

2,4

4

11

23

33

3,6

4

9

22

33

4,8

3

8

20

32

6,0

3

7

20

32

6

0,6

7

13

28

38

1,2

5

11

27

37

2,4

5

10

25

36

3,6

4

10

24

36

4,8

3

8

22

33

6,0

3

8

21

32

7

0,6

8

15

29

40

1,2

6

13

27

39

2,4

6

11

24

37

3,6

5

10

23

35

4,8

4

10

21

34

6,0

4

9

21

33

8

0,6

9

18

31

40

1,2

7

15

29

39

2,4

6

13

27

37

3,6

5

12

26

35

4,8

5

11

24

33

6,0

4

10

22

33

9

0,6

10

19

32

41

1,2

9

17

30

39

2,4

7

15

27

38

3,6

7

13

25

36

4,8

6

11

24

34

6,0

5

11

23

33

10

0,6

10

22

34

43

1,2

8

19

31

40

2,4

8

16

29

37

3,6

7

14

27

37

4,8

7

13

25

35

6,0

6

11

24

34

1.4.7. Используя полученное значение , в качестве τпк, определим  по формуле (III.1.22).

1.4.8. Рассчитывается значение необходимого времени начала тушения пожара

                                                                                     (III.1.24)

где τАУП - время срабатывания (собственное время срабатывания) АУП.

1.4.9. АУП со временем срабатывания более  из расчетов исключаются. При расчете ожидаемого ущерба в дальнейшем используются значения τАУП выбранных установок.

1.5. Уточнение способа пожаротушения

1.5.1. Рассчитывается допустимая площадь пожара

                                                                                       (III.1.25)

1.5.2. Уточняются способы тушения по величине Sдоп (см. табл. III.1.3).

1.5.3. Возможность применения спринклерной установки (по показателю инерционности) определяется выражением:

                                                                                             (III.1.26)

где τдоп - предельно допустимое время включения установки, с; Sр - расчетная площадь орошения спринклерного оросителя, м2; υл - линейная скорость распространения пожара, м/с.

Рис. III.1.2. Критическое время пожара для помещений высотой:

а - 4 м; б - 5 м; в -6 м; г - 7 м; д - 8 м;

1 - q = 150 кг/м2; 2 - q = 300 кг/м2;

3 - q = 450 кг/м2; 4 - q = 600 кг/м2;

5 - q = 750 кг/м2; 6 - q = 900 кг/м2;

7 - q = 1050 кг/м2; 8 - q = 1200 кг/м2;

9 - q = 1350 кг/м2; 10 - q = 1500 кг/м2

Рис. III. 1.3. Продолжительность начальной стадии пожара в помещении объемом до 80000 м3:

Н = 4,8м (): 5 - q = (68 ÷ 70) кг/м2;

Н = 6,6 м (): l - q = (2,4 ÷ 14) кг/м2; 2 - q = (67 ÷ 119) кг/м2; 3 - q = 640кг/м2;

Н = 7,2 м (): l - q = (60 ÷ 66) кг/м2; 2 - q = (82 ÷ 155) кг/м2; 3 - q = 200 кг/м2;

Н = 8,0м (): l - q = 60кг/м2; 2 - q = (140 ÷ 160) кг/м2; 3 - q = (210 ÷ 250) кг/м2; 4 - q = (500+550) кг/м2;

НСП - начальная стадия пожара; Н - высота; q - пожарная нагрузка

Рис. III.1.4. Продолжительность начальной стадии пожара в помещении объемом до 3000 м3:

1 - Н = 3 м; 2 - Н = 6 м; 3 - Н = 12 м;

НСП - начальная стадия пожара; Н - высота

1.5.4. Выполняется расчет параметров распределительных и питающих трубопроводов и водопитателя в соответствии с алгоритмом, изложенным в разделе IV настоящего пособия.

1.6. Экономический расчет

1.6.1. Приведенные затраты на АУП определяются по методике [25]:

ЗАУП = ЕнK + И,                                                                                        (III.1.27)

где Ен - нормативный коэффициент эффективности капитальных вложений; K - капитальные вложения на единицу АУП; И - эксплуатационные издержки потребителя при использовании единицы АУП.

1.6.2. Капитальные вложения на единицу АУП рассчитываются по формуле

K = Kоб + Kотв + Kпотр + Kп,                                                                     (III.1.28)

где Kоб - капитальные вложения в АУП (оборудование); Kотв - капитальные вложения на приобретение ОТВ; Kпотр - сопутствующие капитальные затраты потребителя; Kп - предпроизводственные затраты.

1.6.3. Капитальные вложения на ОТВ рассчитываются исходя из необходимого количества огнетушащих веществ.

1.6.4. Текущие затраты на АУП определяются по формуле

И = Иауп + Исоор,                                                                                     (III.1.29)

где Иауп - текущие расходы на эксплуатацию аУП; Исоор - текущие расходы на эксплуатацию зданий, сооружений и устройств, обеспечивающих работу АУП.

1.6.5. Расчет предполагаемого ущерба для выбранного типа АУП проводится по формуле

                                                                            (III.1.30)

где Сп - стоимость материальных ценностей в помещении; f - частота возникновения пожаров; S - площадь объекта.

1.6.6. Разность между предполагаемым ущербом от пожара и затратами на установку определяется следующим выражением:

                                                                                         (III.1.31)

1.6.7. Окончательный выбор типа АУП производится из условия

i = min{∆1, ∆2, . . . , ∆n}.                                                                          (III.1.32)

Подробный пример расчета по выбору типа АУП приведен в [7].

2. СОСТАВ ПРОЕКТНО-СМЕТНОЙ ДОКУМЕНТАЦИИ

Основные использованные источники: ГОСТ 21.101, СНиП 11-01-95, ОСТ 25 1271-87

2.1. Основные понятия

2.1.1. Выполнение работ на субподряде - выполнение работ по договорам, которые заключаются между ведущей проектной организацией - генеральным подрядчиком, принявшей на себя выполнение комплекса проектных и изыскательских работ, и специализированной проектной организацией, принимающей на себя выполнение отдельных видов проектных работ.

2.1.2. Прямой договор с заказчиком - договор, который заключается непосредственно между организацией-заказчиком, являющейся распорядителем средств, выделенных для выполнения проектных работ, и специализированной проектной организацией, принимающей на себя выполнение проектных работ.

2.1.3. Нетиповая конструкция - конструкция, которая серийно не производится заводами и чертежи для изготовления которой не определены стандартами, типовыми проектами.

2.2. Общие положения

2.2.1. Приведенные ниже положения не распространяются на проектно-сметную документацию на АУП в случае строительства за границей при техническом содействии России, строительства объектов, выполняемых по особым требованиям, а также на типовую проектную документацию.

2.2.2. При выполнении проектной, рабочей и другой технической документации, предназначенной для строительства предприятий, зданий и сооружений, следует руководствоваться требованиями соответствующих стандартов системы проектной документации для строительства (СПДС), а также стандартов Единой системы конструкторской документации (ЕСКД).

2.2.3. Состав, порядок разработки, согласования и утверждения проектно-сметной документации на установки должны соответствовать СНиП 11-01-95 и ОСТ 25 1271-87.

2.2.4. В состав рабочей документации на строительство здания или сооружения в общем случае включают:

- рабочие чертежи, предназначенные для производства строительных и монтажных работ;

- рабочую документацию на строительные изделия по ГОСТ 21.501;

- эскизные чертежи общих видов нетиповых изделий по ГОСТ 21.114 (выполняют при необходимости);

- спецификации оборудования, изделий и материалов по ГОСТ 21.110;

- другую прилагаемую документацию, предусмотренную соответствующими СПДС;

- сметную документацию по установленным формам.

2.3. Пояснительная записка

2.3.1. Проектные решения должны состоять из пояснительной записки и основных чертежей.

2.3.2. В общем случае пояснительная записка должна содержать следующие разделы:

1) основание для разработки проекта (задание на проектирование, протоколы, письма, задания на смежные части проекта, выдаваемые исполнителем заказчику, и т.д.);

2) исходные данные для проектирования (полученные чертежи с указанием сопроводительных документов и разработчика);

3) перечень нормативно-технических документов, в соответствии с которыми разработан проект;

4) сведения о проведенных дополнительных согласованиях проектных решений;

5) характеристики строительной и технологической частей помещений, оборудуемых установками пожаротушения (наименование защищаемого помещения, площадь, высота, категория по пожарной опасности, класс по ПУЭ, диапазон рабочих температур, степень огнестойкости строительных конструкций, наименование основных горючих материалов и т.п.);

6) сведения о пусковых комплексах;

7) принятые основные проектные решения и их обоснование (тип АУП - спринклерная или дренчерная, водяная или пенная, водозаполненная или воздушная; вид огнетушащего вещества; источники водоснабжения и/или пеноснабжения, электроснабжения; нормативные значения интенсивности орошения или удельного расхода и т.п.);

8) назначение, основные параметры и принципы работы АУП (наименование защищаемых помещений, группа помещений по НПБ 88-2001, расчетные значения интенсивности орошения, удельного расхода, расхода и давления, тип секции, тип оросителя, тип узла управления и т.п.);

9) порядок гидравлического расчета АУП (расчет распределительного и питающего трубопроводов АУП, расчет вспомогательного водопитателя, сводная таблица результатов расчетов; при расчете на ЭВМ допускается указывать только конечные результаты);

10) насосная станция (марки и параметры принятых насосных агрегатов и их работа, гидравлический расчет насосной установки, оборудование насосной станции и др.);

11) электротехническая часть (назначение, основные решения, принятые в проекте, принцип работы, сигнализация, электропитание, размещение электрооборудования, кабельные связи, защитное заземление или зануление и т.п.);

12) перечень типовых и повторно применяемых экономичных проектов с их краткой характеристикой;

13) сведения об использованных в проекте изобретениях;

14) оценка технико-экономического уровня проектных решений (металлоемкость, трудоемкость, стоимость строительно-монтажных работ);

15) сведения об организации производства и ведении монтажных работ;

16) результаты расчетов численности профессионально-квалификационного состава обслуживающего персонала;

17) основные требования техники безопасности.

Примечание. Содержание пояснительной записки допускается уточнять в зависимости от особенностей защищаемого объекта.

2.4. Ведомости

2.4.1. Ведомости должны состоять из ведомостей, составленных применительно к форме спецификаций оборудования, установленной ГОСТ 21.110-95 на серийно изготавливаемое оборудование (включая общезаводское), приборы, арматуру, кабельные и другие изделия серийного производства и нестандартизированное оборудование.

2.5. Сметная документация

2.5.1. Сметная документация должна включать:

1) пояснительную записку;

2) локальные сметные расчеты;

3) смету на проектные работы;

4) ведомость сметной стоимости строительства объектов, входящих в пусковой комплекс;

5) сводку сметных расчетов.

2.6. Исходные требования на разработку конструкторской документации

2.6.1. Исходные требования на разработку конструкторской документации должны содержать чертежи общих видов нетиповых конструкций, оборудования и технические требования к ним.

2.7. Состав проектно-сметной документации на стадии проекта

2.7.1. Структурная схема состава проектно-сметной документации на АУП и АУП с автоматической установкой пожарной, охранной и охранно-пожарной сигнализации (АУОПС) на стадии проекта (П) приведена на рис. III.2.1.

2.7.2. Параллельно с проектно-сметной документацией разрабатывают задания, выдаваемые проектной организацией генпроектировщику (заказчику), перечень которых должен быть определен в задании на проектирование.

Рис. III.2.1. Состав проекта АУП

2.8. Состав проектно-сметной документации на стадии рабочего проекта

2.8.1. Состав проектно-сметной документации на стадии рабочего проекта (РП) приведен на следующих схемах:

1) АУП и АУП с АУОПС без выделения утверждаемой части при выполнении работ на субподряде - рис. III.2.2;

2) АУП и АУП с АУОПС без выделения утверждаемой части по прямым договорам с заказчиком -рис. III.2.3;

3) АУП и АУП с АУОПС с выделением утверждаемой части при выполнении работ на субподряде - рис. III.2.4;

4) АУП и АУП с АУОПС с выделением утверждаемой части пускового комплекса при выполнении работ на субподряде - рис. III.2.5.

Примечание. Утверждаемая часть заполняется по требованию заказчика.

2.8.2. Параллельно с проектно-сметной документацией при выполнении рабочих проектов как на субподряде, так и по прямым договорам с заказчиком разрабатываются:

- задания, выдаваемые проектной организацией генпроектировщику (заказчику), перечень которых должен быть определен в задании на проектирование;

- техническая документация (для заводов-изготовителей) на изготовление низковольтных комплектных устройств (при необходимости);

- обоснование на применение проводов и кабелей с медными жилами (при их наличии).

Указанную документацию необходимо отправлять генпроектировщику (заказчику) с сопроводительным письмом.

2.8.3. Паспорт рабочего проекта выполняется в соответствии с документацией, утвержденной в установленном порядке.

Рис. III.2.2. Состав рабочего проекта АУП и АУП с АУОЛС без выделения утверждаемой части (на субподряде)

Рис. III.2.3 (лист 1 из 2-х). Состав рабочего проекта АУП и АУП с АУОПС без выделения утверждаемой части (по прямым договорам с заказчиками)

Рис. III.2.3 (лист 2 из 2-х). Состав рабочего проекта АУП и АУП с АУОПС без выделения утверждаемой части (по прямым договорам с заказчиками)

Рис. III.2.4 (лист 1 из 2-х). Состав рабочего проекта АУП и АУП с АУОПС с выделением утверждаемой части (на субподряде)

Рис. III.2.4 (лист 2 из 2-х). Состав рабочего проекта АУП и АУП с АУОПС с выделением утверждаемой части (на субподряде)

Рис. III.2.5 (лист 1 из 3-х). Состав рабочего проекта АУП и АУП с АУОПС с выделением утверждаемой части и пускового комплекса (на субподряде):

а - утверждаемая часть

Рис. III.2.5 (лист 2 из 3-х). Состав рабочего проекта АУП и АУП с АУОПС с выделением утверждаемой части и пускового комплекса (на субподряде):

б - рабочая документация на все предприятие (объект)

Рис. III.2.5 (лист 3 из 3-х). Состав рабочего проекта АУП и АУП с АУОПС с выделением утверждаемой части и пускового комплекса (на субподряде):

в - проектно-сметная документация на пусковой комплекс (том 8 - 12)

2.9. Состав проектно-сметной документации на стадии рабочей документации

2.9.1. Состав проектно-сметной документации на стадии рабочей документации (Р) приведен на следующих схемах:

1) АУП и АУП с АУОПС без выделения пускового комплекса при выполнении работ на субподряде - рис. III.2.6;

2) АУП и АУП с АУОПС с выделением утверждаемой части пускового комплекса при выполнении работ на субподряде - рис. III.2.5, б (без локальных схем) и рис. III.2.5, в.

2.9.2. Рабочие чертежи основных компонентов, спецификации оборудования и ведомости потребности в материалах для всех видов установок следует выполнять согласно ГОСТ 21.101, ГОСТ 21.110 и ОСТ 25 1241-86.

2.10. Оформление томов проекта, рабочего проекта, рабочей документации

2.10.1. Проектную документацию, предназначенную для утверждения (стадия - проект, утверждаемая часть рабочего проекта), комплектуют в тома, как правило, по отдельным разделам, предусмотренным строительными нормами и правилами. Каждый том нумеруют арабскими цифрами.

Пример: Том 1 - Пояснительная записка

Том 2 - Рабочие чертежи

2.10.2. При необходимости тома делят на части. В этом случае тома нумеруют по типу: Том 1.1, Том 1.2.

2.10.3. Текстовые и графические материалы, включаемые в том, комплектуют, как правило, в следующем порядке:

- обложка;

- титульный лист;

- содержание;

- состав проекта;

- пояснительная записка;

- основные чертежи, предусмотренные строительными

нормами и правилами.

Примечание. Содержание тома, включающего основные комплекты чертежей, допускается не выполнять.

Рис. III.2.6. Состав рабочей документации АУП и АУП с АУОПС без выделения пускового комплекса (на субподряде)

2.10.4. Обложку каждого сброшюрованного документа оформляют в соответствии с формой III.2.1. Обложку не нумеруют и не включают в общее количество страниц.

Форма III.2.1

Примечание. Наименование органа управления указывают для государственных организаций.

2.10.5. Первым листом текстового (графического) документа или нескольких сброшюрованных документов является титульный лист. Титульный лист выполняют по форме III.2.2.

2.10.6. Титульные листы проектных документов оформляют подписями:

- руководителя или главного инженера организации;

- главного инженера (архитектора) проекта.

2.10.7. Титульные листы рабочих документов оформляют подписью ответственного лица - главного инженера (архитектора) проекта.

2.10.8. Допускается не выполнять титульный лист и не брошюровать текстовые рабочие документы небольшого объема. В этом случае первый лист документа оформляют основной надписью по форме III.2.3, следующие - по форме III.2.4.

2.10.9. Все листы сброшюрованного документа, начиная с титульного, должны иметь сквозную нумерацию страниц. При этом титульный лист не нумеруют.

2.10.10. Номер страницы на листах текстовых и графических документов указывают в правом верхнем углу рабочего поля листа.

2.10.11. В основной надписи текстовых и графических документов, включенных в том, альбом или выпуск и имеющих самостоятельное обозначение, указывают порядковый номер листа и общее количество листов в пределах документа с одним обозначением.

2.10.12. При комплектовании нескольких документов в виде тома, альбома или выпуска после титульного листа приводят содержание, которое выполняют по форме III.2.5.

2.10.13. Первый лист «Содержания» оформляют основной надписью по форме III.2.6, следующие - по форме III.2.4. «Содержанию» присваивают обозначение, состоящее из обозначения документа и шифра «С».

Пример: 25/02.2002 - АПТ.С, 2003/18 - АПЖ.С.

Форма III.2.2

Примечание. Наименование органа управления указывают для государственных организаций.

* Обозначение тома указывается по поисковому обозначению, принятому в проектной организации.

** Указывается только для томов, содержащих пояснительную записку или сметную документацию.

Форма III.2.3

Форма III.2.4

Форма III.2.5

Форма III.2.6

2.10.14. Состав проекта приводят в ведомости, выполняемой по форме III.2.7.

В ведомости указывают последовательный перечень томов проектной документации.

Форма III.2.7

2.10.15. Первый лист ведомости оформляют основной надписью по форме III.2.6, следующие - по форме III.2.4.

2.10.16. Ведомости присваивают обозначение, состоящее из базового обозначения документа и через дефис - шифра «СП».

Пример: 25/02.2002 - АПТ - СП, 2003/18 - АПЖ - СП.

2.10.17. Каждому текстовому и графическому документу, включенному в том, присваивают обозначение, которое указывают на титульном листе и в основных надписях.

2.10.18. В состав обозначения включают базовое обозначение, устанавливаемое согласно действующей в организации системе, и через дефис - марку и/или шифр раздела проекта.

Пример: 2003/18 - АПЖ - ПЗ Раздел «Общая пояснительная записка»,

где 2003/18 - номер договора (контракта); АПЖ - марка документа; ПЗ - шифр раздела проекта.

2.10.19. Каждый лист текстового и графического документов должен иметь основную надпись и дополнительные графы к ней. Основные надписи и указания по их заполнению приведены в формах III.2.6 и III.2.4.

2.10.20. В проектной и рабочей документации основную надпись оформляют:

а) на листах основных комплектов рабочих чертежей и на основных чертежах проектной документации - по форме III.2.3;

б) на первом листе чертежей строительных изделий - по форме III.2.8;

в) на первых листах текстовых документов и эскизных чертежей общих видов нетиповых изделий - по форме III.2.6;

г) на следующих листах чертежей строительных изделий, текстовых документов и эскизных чертежей общих видов - по форме III.2.4.

Форма III.2.8

2.10.21. Основную надпись на первом листе чертежа строительного изделия допускается выполнять по форме III.2.6.

2.10.22. Основные надписи, дополнительные графы к ним и рамки выполняют сплошными толстыми основными и сплошными тонкими линиями по ГОСТ 2.303 в соответствии с формами III.2.3 - III.2.4, III.2.6 и III.2.8.

3. РАБОЧИЕ ЧЕРТЕЖИ

Основные использованные источники: ГОСТ 21.101, ГОСТ 21.110, ОСТ 25 1241-86

3.1. Общие положения

3.1.1. В состав рабочих чертежей установок пожаротушения входят рабочие чертежи, предназначенные для производства строительно-монтажных работ, - основной комплект рабочих чертежей.

3.1.2. Рабочие чертежи, предназначенные для производства строительно-монтажных работ по обеспечению пожарной защиты, объединяют в комплекты (далее - основные комплекты) по рекомендуемым маркам (ПТ - пожаротушение, ПС - пожарная сигнализация, ОС - охранная и охранно-пожарная сигнализация). Организации, проектирующие системы пожарной защиты, чаще используют свои, присущие данной организации, марки рабочих чертежей, например АПЖ, АПТ, АСУ и др.

3.1.3. Основные комплекты рабочих чертежей допускается разделять на несколько основных комплектов по видам пожаротушения и сигнализации, по очередям строительства, а также по видам монтажных работ (монтаж технологического оборудования и трубопроводов, монтаж электротехнического оборудования и проводок).

В этих случаях в обозначения основных комплектов рабочих чертежей к маркам следует добавлять порядковый номер (ПТ1 - ПТ2; АПТ1 - АПТ4; АПЖ1 - АПЖ3; АЖН1 - АЖН3).

3.1.4. Каждому основному комплекту рабочих чертежей присваивают обозначение, в состав которого включают базовое обозначение, устанавливаемое по действующей в организации системе, и через дефис - марку основного комплекта.

Примеры: 2003.18 - АПЖ; 25/02.2002 - АПТ,

где 2003.18 и 25/02.2002 - номер договора (контракта) или шифр объекта строительства; АПЖ и АПТ - марки основных комплектов рабочих чертежей.

3.1.5. Допускается объединять рабочие чертежи автоматических установок пожаротушения и пожарной сигнализации. Допускается также включать в основные комплекты рабочие чертежи внутреннего и наружного освещения, силового электрооборудования.

3.1.6. Условные графические обозначения оборудования, приборов, трубопроводов, кабельных проводок и других элементов на чертежах выполняют в соответствии с требованиями ГОСТ 2.721, ГОСТ 2.755, ГОСТ 2.782, ГОСТ 2.784, ГОСТ 2.785, ГОСТ 12.1.114, ГОСТ 21.206, ГОСТ 21.404 и РД 25.953-90.

3.1.7. Чертежи выполняют в оптимальных масштабах с учетом их сложности и насыщенности информацией.

Масштабы на чертежах не указывают, за исключением чертежей изделий и других случаев, предусмотренных в соответствующих стандартах СПДС.

3.1.8. В состав основных комплектов рабочих чертежей включают общие данные по рабочим чертежам, а также чертежи и схемы, предусмотренные соответствующими стандартами СПДС.

3.1.9. В состав рабочих чертежей основных комплектов входят:

1. Общие данные.

2. *Выкопировка из генерального плана, ситуационный план.

3. Планы помещений станции пожаротушения и узлов управления.

4. *Планы защищаемых зданий, помещений и сооружений со сложными разводками трубопроводов и кабельных проводок.

5. Планы защищаемых зданий, сооружений и помещений с нанесением наружных трасс трубопроводов.

6. Планы разводок трубопроводов, кабелей, проводов и расстановки оборудования в защищаемых помещениях.

7. Планы разводок трубопроводов, кабелей и проводов и расстановки оборудования в помещениях узлов управления.

8. Планы разводок трубопроводов, кабелей и проводов и расстановки оборудования в насосных станциях и в помещениях пожарных постов.

9. *План заземления.

10. Разрезы, сечения, виды по планам.

11. *Схемы трубопроводов и оборудования насосных станций, помещений узлов управления и наиболее сложных разводок.

12. Принципиальная электрическая схема управления и контроля.

13. Схема электрических соединений.

14. Схема электрических подключений.

15. *Общие электрические схемы пожарной сигнализации.

16. Кабельный журнал.

17. *Схемы АУП структурные или функциональные.

18. Трубозаготовительная ведомость.

19. *Ведомость заполнения труб кабелями.

20. *Чертежи общих видов нетиповых конструкций и оборудования.

Примечания:

1. Документ, обозначенный *, выполняется при необходимости.

2. При наличии проекта-аналога и по согласованию с заказчиком чертежи проектных решений допускается не выполнять.

3.2. Общие данные

3.2.1. Общие положения

3.2.1.1. Общие данные выполняют согласно требованиям ГОСТ 21.101 и настоящей главы.

3.2.1.2. Общие данные приводят на первом (заглавном) листе основного комплекта рабочих чертежей каждой марки.

При большом объеме общие данные допускается размещать на нескольких листах.

Если общие данные размещены на нескольких листах, то в основных надписях после наименования "Общие данные" записывают: на первом листе - "(начало)", на следующих листах - "(продолжение)", а на последнем - "(окончание)".

3.2.1.3. В состав общих данных включают:

- ведомость рабочих чертежей основного комплекта;

- ведомость ссылочных и прилагаемых документов;

- ведомость основных комплектов рабочих чертежей;

- ведомость спецификаций;

- условные обозначения и изображения, не установленные государственными стандартами и не указанные на других листах основного комплекта рабочих чертежей;

- общие указания;

- другие данные, предусмотренные соответствующими стандартами СПДС.

3.2.1.4. Пример выполнения листа "Общие данные" приведен на рекомендуемом черт. III.3.1.

3.2.1.5. В левом нижнем углу первого листа общих данных каждого основного комплекта рабочих чертежей в прямоугольной рамке помещают запись главного инженера проекта, удостоверяющую соответствие проекта действующим нормам и правилам, безопасную эксплуатацию их при соблюдении предусмотренных проектом мероприятий, а также перечень согласованных с соответствующим органом Государственного пожарного надзора частичных обоснованных отступлений от действующих норм и правил с обязательным указанием документов, в соответствии с которыми эти согласования проведены.

Черт. III.3.1. Пример выполнения листа "Общие данные"

3.2.2. Ведомость рабочих чертежей основного комплекта

3.2.2.1. Ведомость рабочих чертежей основного комплекта содержит последовательный перечень листов основного комплекта.

3.2.2.2. Ведомость рабочих чертежей основного комплекта составляют по форме, соответствующей табл. III.3.1.

Таблица III.3.1

Ведомость рабочих чертежей основного комплекта . . . - АПЖ1

3.2.2.3. В ведомости указывают:

- в графе "Лист" - порядковый номер листа рабочих чертежей;

- в графе "Наименование" - наименование листа в полном соответствии с его наименованием, приведенным в основной надписи;

- в графе "Примечание" - дополнительные сведения, например сведения об изменениях, вносимых в рабочие чертежи основного комплекта.

3.2.3. Ведомость ссылочных и прилагаемых документов

3.2.3.1. Ведомость ссылочных и прилагаемых документов составляют по разделам:

- ссылочные документы;

- прилагаемые документы.

3.2.3.2. Наименование разделов записывают в виде заголовка в графе "Наименование" и подчеркивают. Документы в каждом разделе группируют по видам.

3.2.3.3. В разделе "Ссылочные документы" ведомости указывают документы, на которые приведены ссылки в рабочих чертежах, в том числе:

- отраслевые стандарты (например, отраслевой стандарт на условные графические обозначения установок пожаротушения);

- государственные стандарты на пожарное оборудование;

- чертежи типовых конструкций, изделий и узлов, например типовых узлов крепления трубопроводов установок автоматического пожаротушения, с указанием наименования и обозначения серии и номера выпуска.

3.2.3.4. В разделе "Ссылочные документы" ведомости не указывают:

- строительные нормы и правила;

- стандарты на строительные и другие материалы, прокат, крепежные изделия и т.п.

3.2.3.5. В разделе "Прилагаемые документы" ведомости приводятся документы, разработанные в дополнение к рабочим чертежам основного комплекта, в том числе:

- повторно применяемые чертежи конструкций, изделий и узлов;

- чертежи общих видов нетиповых конструкций и нестандартизированного оборудования, разработанные для данного объекта;

- ведомости потребности в материалах;

- спецификации оборудования и изделий;

- локальная смета;

- другие документы, предусмотренные соответствующими стандартами СПДС.

3.2.3.6. Ведомость ссылочных и прилагаемых документов составляют по форме, соответствующей табл. III.3.2.

Таблица III.3.2

Ведомость ссылочных и прилагаемых документов

3.2.3.7. В ведомости ссылочных и прилагаемых документов указывают:

- в графе "Обозначение" - обозначение документа и при необходимости наименование и шифр организации, выпустившей документ;

- в графе "Наименование" - наименование документа в полном соответствии с наименованием, указанным на титульном листе или в основной надписи;

- в графе "Примечание" - дополнительные сведения, в том числе сведения об изменениях, вносимых в примененные чертежи.

3.2.4. Ведомость основных комплектов рабочих чертежей

3.2.4.1. При наличии нескольких основных комплектов ведомость основных комплектов рабочих чертежей составляют по форме, соответствующей табл. III.3.3, и помещают в общих данных для каждого из этих комплектов рабочих чертежей.

Таблица III.3.3

Ведомость основных комплектов рабочих чертежей

3.2.4.2. При наличии нескольких основных комплектов рабочих чертежей одной марки (например, нескольких основных комплектов рабочих чертежей железобетонных конструкций) в общих данных первого или последнего основного комплекта рабочих чертежей этой марки помещают ведомость указанных основных комплектов рабочих чертежей.

3.2.4.3. В ведомости основных комплектов рабочих чертежей указывают:

- в графе "Обозначение" - обозначение основного комплекта рабочих чертежей и при необходимости наименование и шифр организации, выпустившей документ;

- в графе "Наименование" - наименование основного комплекта рабочих чертежей по типу: "Автоматическая установка пенного пожаротушения. Технологический раздел", "Автоматическая установка пенного пожаротушения. Электротехнический раздел", "Автоматическая установка охранной сигнализации";

- в графе "Примечание" - дополнительные сведения.

3.2.5. Ведомость спецификаций

3.2.5.1. Ведомость спецификаций составляют по форме, соответствующей табл. III.3.4, при наличии более пяти спецификаций на листах основного комплекта.

Таблица III.3.4

Ведомость спецификаций

3.2.5.2. В ведомости спецификаций указывают:

- в графе "Лист" - номер листа основного комплекта рабочих чертежей, на котором помещена спецификация;

- в графе "Наименование" - наименование спецификации в полном соответствии с ее наименованием, указанным на чертеже;

- в графе "Примечание" - дополнительные сведения.

3.2.5.3. При отсутствии на чертеже наименования спецификации в графе "Наименование" ведомости указывают: "Спецификация к листу . . . ".

3.2.6. Условные обозначения и изображения

3.2.6.1. Принятые в рабочих чертежах основного комплекта условные обозначения и изображения, не установленные государственными стандартами, приводят при необходимости по форме, соответствующей табл. III.3.5.

Таблица III.3.5

Условные обозначения и изображения

3.2.7. Основные технические показатели АУП

3.2.7.1. Основные технические показатели АУП выполняют по форме, соответствующей табл. III.3.6.

Таблица III.3.6

Основные технические показатели проекта (автоматической установки пожаротушения)

3.2.8. Общие указания

3.2.8.1. Общие указания на листе "Общие данные" должны иметь тематический заголовок "Общие указания", который записывают строчными буквами (кроме первой прописной) и не подчеркивают.

3.2.8.2. В общих указаниях приводят:

- исходные данные для разработки рабочей документации (задание на проектирование, утвержденный проект);

- отметку по топографической съемке, принятую в проекте здания или сооружения условно за 0,000 (как правило, приводят на архитектурно-строительных чертежах);

- мероприятия по антикоррозионной защите конструкций и оборудования (при отсутствии соответствующего основного комплекта рабочих чертежей или необходимых данных на чертежах);

- запись о результатах проверки на патентоспособность и патентную чистоту впервые примененных или разработанных в проекте технологических процессов, оборудования, приборов, конструкций материалов и изделий, а также номера авторских свидетельств и заявок, по которым приняты решения о выдаче авторских свидетельств на используемые в проекте изобретения;

- запись о соответствии рабочих чертежей действующим нормам, правилам и стандартам;

- ссылки на Строительные нормы и правила, на основании которых приведен расчет установки пожаротушения;

- обоснование изменений, допущенных в рабочих чертежах по отношению к проекту;

- особые требования к установкам пожаротушения;

- перечень проектных работ, выполняемых заказчиком по заданиям организации, разрабатывающей рабочие чертежи установок пожаротушения;

- перечень скрытых работ;

- сведения о том, кому принадлежит данная интеллектуальная собственность (при необходимости);

- другие необходимые указания.

В общих указаниях не допускается повторять технические требования, указанные на других листах основного комплекта рабочих чертежей, и давать описание принятых в рабочих чертежах технических решений.

3.3. Выкопировка из генерального алана, ситуационный план

3.3.1. На чертеже выкопировки из генерального плана или ситуационном плане показывают:

- взаимное расположение всех защищаемых объектов, сооружений и установок пожаротушения с необходимыми привязками их к ближайшим зданиям и сооружениям (наименование зданий и сооружений указывают непосредственно на их изображении или приводят в экспликации);

- трассы трубопроводов пожаротушения, вводы в защищаемые здания с необходимыми привязками и указанием диаметров трубопроводов;

- расположение помещений узлов управления на защищаемых объектах с указанием координационных осей и нумерации помещений.

3.3.2. Если изображение (например, план) не помещается на листе принятого формата, то его делят на несколько участков, располагая их на отдельных листах. В этом случае на каждом листе, где показан участок изображения, приводят схему целого изображения с необходимыми координационными осями и условным обозначением (штриховкой) показанного на данном листе участка изображения (черт. III.3.2).

Если чертежи участков изображения расположены в разных основных комплектах рабочих чертежей, то над номером листа указывают обозначение соответствующего основного комплекта.

Черт. III.3.2. Общая схема изображения, выполненного на отдельных листах

3.3.3. Если планы этажей многоэтажного здания имеют незначительные отличия, то полностью выполняют план одного из этажей, а для других этажей - только те части плана, которые необходимы для показа отличия от плана, изображенного полностью. Под наименованием частично изображенного плана приводят запись: «Остальное см. план (наименование полностью изображенного плана)».

3.3.4. В названиях планов этажей здания или сооружения указывают отметку "чистого" пола, номер этажа или обозначение соответствующей секущей плоскости.

Примеры: План на отм. 0,000; план 2 - 9 этажей; план 3 - 3.

3.3.5. При выполнении части плана в названии указывают оси, ограничивающие эту часть плана.

Пример: План на отм. 0,000; между осями 1 - 8 и А - Д

3.3.6. Допускается в названии плана этажа указывать назначение помещений, расположенных на этаже.

3.3.7. В названиях разрезов здания (сооружения) указывают обозначение соответствующей секущей плоскости.

Пример: Разрез 1 - 1

3.4. Планы и разрезы разводок трубопроводов и расстановки оборудования в защищаемых помещениях, помещениях узлов управления, насосных станциях

3.4.1. Количество планов, разрезов (видов), выносных элементов на чертежах должно быть минимальным, но достаточным для увязки установок пожаротушения со строительными конструкциями, технологическим и другим оборудованием и обеспечения возможности правильного выполнения монтажных работ.

3.4.2. На планах, разрезах (видах) указывают:

- оборудование, трубопроводы, арматуру и другие элементы установки пожаротушения;

- позиционные обозначения оборудования, приборов и арматуры;

- строительные конструкции (условно), координационные оси здания (сооружения) и расстояния между ними;

- отметки уровней "чистого" пола этажей, площадок и других строительных конструкций, осей трубопроводов;

- конструктивные элементы покрытия и перекрытий здания (условно);

- вентиляционное и технологическое оборудование, как подлежащее защите, так и то, с которым должны быть увязаны трубопроводы и оборудование установок пожаротушения;

- размерные привязки трубопроводов и оборудования установок пожаротушения к координационным осям здания или элементам строительных конструкций;

- диаметры трубопроводов, стояки, места креплений трубопроводов.

На планах, кроме того, указывают наименование всех изображенных помещений и категорию производств по взрывной, взрывопожарной и пожарной опасности (в прямоугольнике размером 5×8 мм).

3.4.3. Элементы установок пожаротушения, в том числе трубопроводы, на чертежах показывают сплошной основной линией, а строительные конструкции и технологическое оборудование - сплошной тонкой линией по ГОСТ 2.303.

3.4.4. Планы, размеры, виды защищаемых помещений выполняют в масштабе 1:100 или 1:200, узлы и фрагменты планов, разрезов, видов - в масштабе 1:10 - 1:100 по ГОСТ 2.303.

3.4.5. Планы и разрезы помещений узлов управления выполняют в масштабе 1:50 или 1:100, узлы и фрагменты -в масштабе 1:2 по ГОСТ 2.303.

3.4.6. Сложные участки изображения показывают упрощенно, без детальных размеров, вынося изображение этих участков со всеми данными в более крупном масштабе в виде фрагментов.

3.4.7. Многократно повторяющиеся элементы изображения показывают 1 - 2 раза в начале и конце изображения, избегая их повтора посредством обрыва.

3.4.8. Трубопроводы, расположенные друг над другом, на планах условно изображают параллельными линиями.

Трубопровод диаметром более 100 мм на планах насосных станций, помещений узлов и фрагментах, выполняемых в масштабе 1:50 и крупнее, показывают двумя линиями.

3.4.9. Обозначение диаметра трубопровода на плане наносят над полкой линии-выноски либо непосредственно над изображением трубопровода.

Для трубопроводов из стальных водогазопроводных труб указывают диаметр условного прохода в мм (черт. III.3.3 а).

Для трубопроводов из стальных электросварных и других типов труб указывают наружный диаметр и толщину стенки в мм (черт. III.3.3 б).

Черт. III.3.3. Обозначение диаметров трубопроводов:

а - из стальных водогазопроводных труб; б - из стальных электросварных и других типов труб

3.4.10. Стояки (вертикальные трубопроводы) обозначают на плане один раз в том месте, где стояк берет начало. В буквенно-цифровое обозначение стояка входят условные обозначения:

- стояка - «ст»;

- направления движения огнетушащего вещества вверх - «вв», вниз - «вн»;

- обозначение диаметра трубопровода стояка ъ мм а высоты стояка в м.

Обозначение стояка на плане указывают над полкой линии-выноски (черт. III.3.4).

Черт. III.3.4. Обозначение стояка

3.4.11. При сложном многоярусном расположении трубопроводов и оборудования установки пожаротушения на одном этаже для наглядности их взаимосвязи выполняют планы на различных уровнях в пределах этажа.

3.4.12. Примеры выполнения планов и разреза приведены на черт. III.3.5 - III.3.7 (для упрощения примера чертежи приведены без рамок и штампов).

3.5. Планы, разрезы (виды) разводок кабелей, проводов и расстановки электрооборудования в защищаемых помещениях, помещениях узлов управления, насосных станций, пожарных постов

3.5.1. Планы, разрезы (виды) выполняют согласно пп. 3.4.1, 3.4.3 - 3.4.17 настоящей главы.

3.5.2. На планах, разрезах (видах) указывают:

- электрооборудование и электрические проводки;

- позиционные обозначения электрооборудования, приборов и т.п.;

- строительные конструкции (условно), координационные оси здания (сооружения) и расстояния между ними;

- отметки уровней "чистого" пола этажей, площадок и других строительных конструкций;

- вентиляционное, технологическое и другое оборудование (условно), влияющее на прокладку электрических проводок и расстановку оборудования;

Черт. III.3.5. Пример плана защищаемого помещения

Черт. III.3.6. Пример плана размещения узлов управления

Черт. III.3.7. Пример выполнения разреза

- привязку электрооборудования и электрических проводок к координационным осям здания, элементам строительных конструкций и технологического оборудования;

- наименование всех изображенных помещений, классы взрыво- и пожароопасных зон.

3.5.3. Электрооборудование, электрические проводки и другие элементы обозначают в виде условных графических изображений по ГОСТ 2.755 и РД 25.953-90.

3.5.4. Допускается не указывать привязку одиночных аппаратов и изделий (выключателей, переключателей, кнопок, штепсельных розеток и т.п.).

3.5.5. Трубы скрытой прокладки (в полах, земле, фундаментах) должны быть привязаны с обеих сторон и иметь отметки заложения и выхода.

3.5.6. Трубы, подходящие к щитам, шкафам и т.п., как правило, следует привязывать к строительным координационным осям, а трубы, подходящие к двигателям, манометрам и т.п., - к элементам технологического оборудования (установок).

3.5.7. Классы взрыво- и пожароопасных зон, категорию и группу взрывоопасных смесей для взрывоопасных зон указывают по "Правилам устройства электроустановок" в прямоугольнике размером 8×12 мм.

3.5.8. Каждому комплектному устройству или одиночному электрическому аппарату присваивают цифровое позиционное обозначение (номер позиции по спецификации), проставляемое над полкой линии-выноски; под полкой указывают буквенно-цифровое обозначение электрооборудования по принципиальной схеме, например:

3.5.9. Каждому электроприемнику на плане расположения присваивают обозначение по ГОСТ 2.755.

3.5.10. На планах указывают обозначение кабелей и проводов по ГОСТ 2.755 и их порядковые номера по кабельному журналу, для трубных проводок - номер трубы по трубозаготовительной ведомости.

3.5.11. Планы разводки кабелей, проводов и расстановки оборудования совмещают с планами заземления и зануления (если при этом не усложняется чтение чертежа).

3.5.12. Пример плана приведен на черт. III.3.8.

Черт. III.3.8. Пример плана разводки кабелей, проводов и расстановки оборудования в насосной станции

3.6. Схемы

3.6.1. Схемы наиболее сложных разводок, насосных станций, помещений узлов управления выполняют в аксонометрической (предпочтительно), фронтальной или изометрической проекции по ГОСТ 2.317 без масштаба.

3.6.2. На схемах указывают:

- оборудование, арматуру, другие элементы установок пожаротушения, трубопроводы; диаметры и длины горизонтальных и вертикальных участков обозначают соответственно над и под полкой линии-выноски (см. черт. III.3.3 и III.3.4);

- контрольно-измерительные приборы;

- отметки уровней осей трубопроводов;

- уклоны трубопроводов;

- размеры горизонтальных участков трубопроводов при наличии разрывов.

3.6.3. Элементы установок пожаротушения на схемах указывают условными графическими обозначениями, на аксонометрических схемах - в аксонометрическом изображении, а оборудование, на которое отсутствуют условные графические обозначения, - упрощенным графическим изображением.

3.6.4. Пример схемы элементов установок пожаротушения в аксонометрическом изображении приведен на черт. III.3.9.

3.6.5. Принципиальные электрические схемы соединений и подключения выполняют в соответствии с требованиями ГОСТ 2.701, ГОСТ 2.702 и ОСТ 25 1241-86.

3.6.6. Каждый элемент или устройство, изображенные на электрической схеме, должны иметь буквенно-цифровое обозначение по ГОСТ 2.710.

Буквенно-цифровые обозначения элементов, конкретизирующие вид элементов по соответствующим признакам или функциональному назначению, не указанные в ГОСТах, расшифровываются в таблице "Условные обозначения и изображения" на листе "Общие данные" (см. табл. III.3.5 настоящей главы).

3.6.7. В перечне элементов наименование элементов (устройств), устанавливаемых в низковольтном комплектном устройстве индивидуального изготовления напряжением до 1000 В, записывают формализованным языком; при этом стандарты, технические условия и другие документы, на основании которых применен этот элемент (устройство), допускается не записывать.

Черт. III.3.9. Пример схемы элементов установки пожаротушения

3.7. Нанесение размеров, уклонов, отметок, надписей

3.7.1. Размерную линию на ее пересечении с выносными линиями, линиями контура или осевыми линиями ограничивают засечками в виде толстых основных линий длиной 2 - 4 мм, проводимых с наклоном вправо под углом 45° к размерной линии; при этом размерные линии должны выступать за крайние выносные линии на 1 - 3 мм.

При нанесении размера диаметра или радиуса внутри окружности, а также углового размера размерную линию ограничивают стрелками. Стрелки применяют также при нанесении размеров радиусов и внутренних округлений.

3.7.2. Отметки уровней (высоты, глубины) элементов конструкций, оборудования, трубопроводов, воздуховодов и других от уровня отсчета (условной "нулевой" отметки) обозначают условным знаком и указывают в метрах с тремя десятичными знаками, отделенными от целого числа запятой (черт. III.3.10).

Черт. III.3.10. Обозначение условного знака отметки уровней (высоты, глубины)

3.7.3. "Нулевую" отметку, принимаемую, как правило, для поверхности какого-либо элемента конструкций здания или сооружения, расположенного вблизи планировочной поверхности земли, указывают без знака, отметки выше нулевой - со знаком "+", ниже нулевой - со знаком "-".

3.7.4. На видах (фасадах), разрезах и сечениях отметки указывают на выносных линиях или линиях контура (черт. III.3.11), на планах - в прямоугольнике (черт. III.3.12), за исключением случаев, оговоренных в соответствующих стандартах СПДС.

Черт. III.3.11. Обозначение отметок на видах (фасадах), разрезах и сечениях

Черт. III.3.12. Обозначение отметок на планах

3.7.5. На планах направление уклона плоскостей указывают стрелкой, над которой при необходимости проставляют величину уклона в процентах (черт. III.3.13) или в виде отношения высоты и длины (например, 1:7).

Черт. III. 3.13. Обозначение направления уклона плоскостей

При необходимости допускается величину уклона указывать в промилле или в долях единицы (в виде десятичной дроби с точностью до третьего знака). На чертежах и схемах перед размерным числом, определяющим величину уклона, наносят знак "Ð", острый угол которого должен быть направлен в сторону уклона.

Обозначение уклона наносят непосредственно над линией контура или над полкой линии-выноски.

3.7.6. Выносные надписи к многослойным конструкциям следует выполнять в соответствии с черт. III.3.14.

Примечание. Цифрами условно обозначена последовательность расположения слоев конструкций и надписей на полках линий-выносок.

Черт. III.3.14. Обозначение выносных надписей

3.7.7. Номера позиций (марки элементов) наносят над полками линий-выносок, проводимых от изображений составных частей предмета, рядом с изображением без линии-выноски или в пределах контуров изображенных частей предмета (черт. III.3.15).

Черт. III.3.15. Обозначение номеров позиций

При мелкомасштабном изображении линии-выноски заканчивают без стрелки и точки.

3.7.8. Размер шрифта для обозначения координационных осей и позиций (марок) должен быть на один-два номера (кегля) больше, чем размер шрифта, принятого для размерных чисел на том же чертеже.

3.8. Чертежи общих видов нетиповых конструкций и оборудования

3.8.1. Чертежи общих видов нетиповых конструкций и оборудования выполняют по правилам в соответствии с требованиями ГОСТ 2.119 в объеме, необходимом для разработки конструкторской документации по ГОСТ 2.103.

3.8.2. Чертеж общего вида низковольтного комплектного устройства должен содержать изображение конструкции (виды спереди и сверху), количество и порядок расположения панелей, габаритные размеры, текстовые указания и надписи, необходимые для общего представления об устройстве.

3.8.3. Чертежи общих видов нетиповых конструкций и оборудования выполняют в масштабе, как правило, 1:10, 1:20, 1:50 по ГОСТ 2.302.

3.9. Правила выполнения спецификаций

3.9.1. Технологические элементы установок пожаротушения указывают в спецификации в последовательности: оборудование, приборы, арматура, трубопроводы по каждому диаметру, стандартные изделия, материалы.

3.9-2. Электротехнические элементы установок пожаротушения записывают в спецификации в следующем порядке: электрооборудование, изделия заводов, конструкции, стандартные изделия, материалы.

3.9.3. Последовательность записи наименований в разделах принимают по группам одноименных элементов в порядке возрастания цифр, входящих в наименование, тип или основные параметры. Наименование разделов не указывают.

3.9.4. В спецификации к схеме расположения указывают (табл. III.3.7 - III.3.8):

- в графе "Марка, поз." - позиции (марки) элементов сборной конструкции установок;

- в графе "Обозначение" - обозначение основных документов на записываемые в спецификацию элементы конструкций, оборудование и изделия или стандартов (технических условий) на них. Допускаются при необходимости ссылки на заводские чертежи или технические условия. Для монолитных участков указывают обозначение основного комплекта рабочих чертежей и номера листов, на которых они разработаны;

- в графе "Наименование" - наименования элементов конструкций, оборудования, изделий и их марки. На группу одноименных элементов допускается указывать наименование один раз и его подчеркивать. После наименования элемента сборной конструкции указывают марку, присвоенную в рабочих чертежах этому элементу. Если в качестве элемента сборной конструкции принято стандартное изделие, то в графе указывают наименование и марку этого элемента, принятые в стандарте на данное изделие. При необходимости в графе "Наименование" после наименования и типа элемента сборной конструкции приводят его краткую техническую характеристику;

- в графе "Кол." - количество элементов сборной конструкции по схеме расположения;

- в графе "Масса ед., кг" - массу одного элемента сборной конструкции в килограммах. Допускается, приводить массу в тоннах, но с указанием единицы измерения. Для монолитных участков графу не заполняют;

- в графе "Примечание" допускается указывать единицу измерения и дополнительные сведения, относящиеся к записанным в спецификацию элементам сборной конструкции.

Таблица III.3.7

Спецификация узла управления

Таблица III.3.8

Спецификация электротехнических элементов

Марка, поз.

Обозначение

Наименование

Кол.

Масса ед., кг

Примечание

1

ТУ …

Выключатель автоматический

 

 

 

 

 

АП50 - 3МТУ3

 

 

 

 

 

Iотс = 3,5Iр Iр = 10 А

1

 

 

2

ТУ ...

Извещатель пожарный

 

 

 

 

 

ДИП-2

10

 

 

 

ГОСТ ...

Резистор

 

 

 

3

 

МЛТ - 0,25 - 4,3кОм ± 10%

5

 

 

4

 

МЛТ - 0,25 - 6,8кОм ± 5%

1

 

 

5

ТУ ...

Шкаф телефонный

 

 

 

 

 

распределительный ШРП - 150

1

 

 

6

ГОСТ ...

Бокс БКТ 30×2

2

 

 

 

ГОСТ ...

Кабель

 

 

 

 

 

АКВВГ 14×2,5 660 В

100

 

м

 

 

АКВВГ 37×2,5 660 В

150

 

м

 

 

 

 

 

 

 

ГОСТ ...

Провод

 

 

 

 

 

ПВ1 1,0 380 В

560

 

м

 

 

ПВ3 1,0 380 В

800

 

м

3.9.5. В спецификации принимают следующие единицы измерения:

для трубопроводов, кабелей, проводов - м;

для оборудования, приборов, арматуры и других изделий - шт.;

для материалов - кг.

3.9.6. На две или несколько аналогичных схем расположения элементов сборной конструкции выполняют групповую спецификацию по правилам, изложенным в пп. 3.9.1 - 3.9.5, с учетом следующих особенностей: в графе "Кол. ..." записывают: "по схеме" или "на этаж", а ниже - порядковые номера схем расположения или этажей.

Пример выполнения групповой спецификации к схемам расположения элементов сборной конструкции приведен в табл. III.3.9.

3.9.7. Спецификации к схемам расположения элементов размещают на листе с соответствующими схемами расположения или на отдельных листах.

3.9.8. Допускается выполнять одну спецификацию по форме, соответствующей табл. III.3.10, к нескольким схемам расположения; при этом наименование конструкций по каждой схеме расположения или наименование схем расположения указывают в виде заголовка в графе "Наименование" и подчеркивают. Правила заполнения такой спецификации соответствуют пп. 3.9.1 - 3.9.5.

3.9.9. Над спецификацией помещают ее наименование, в котором указывают наименование соответствующей схемы расположения и при необходимости номер листа, на котором расположена схема.

Таблица III.3.9

Групповая спецификация к двум аналогичным схемам расположения элементов сборной конструкции

Таблица III.3.10

Групповая спецификация к нескольким схемам расположения элементов сборной конструкции

Марка, поз.

Обозначение

Наименование

Кол.

Масса ед., кг

Примечание

 

 

Колонны

 

 

 

К1

КЭ-01-49, вып. 1

КП I-7

34

7100

 

К2

КЭ-01-49, вып. 1

КП I-9

60

9200

 

К3

492-2-КЖИ-КП I-7

КП I-7-01

8

7100

 

К4

-КП I-7

КП I-7-02

2

7100

 

К5

-КП I-9

КП I-9-01

8

9200

 

К6

-КП I-9

КП I-9-02

16

9200

 

К7

-КП I-9

КП I-9-03

4

9200

 

 

 

 

 

 

 

 

 

Балки подкрановые

 

 

 

БК1

КЭ-01-50, вып.1

БКНА6-1c

180

2930

 

БК2

КЭ-01-50, вьш.1

БКНА6-1m

20

2930

 

 

 

 

 

 

 

 

 

Связи вертикальные

 

 

 

ВС1

КЭ-01-49, вып. 1

СВ-2

4

359

 

ВС2

КЭ-01-49, вып. 1

СВ-3

8

423

 

3.10. Кабельный журнал

3.10.1. Кабельный журнал выполняют по форме, соответствующей табл. III.3.11.

3.10.2. Силовые кабели, как правило, группируют по проводам (числу жил, сечению жил), роду тока, напряжению и т.п. и записывают по направлению распространения энергии.

Силовые и контрольные кабели указывают в порядке возрастания их обозначения.

3.10.3. Кабельный журнал не выполняют, если вся информация о кабелях и проводах (начало, конец, марка, сечение и длина) имеется на схеме подключения.

3.10.4. Сводку кабелей и проводов составляют на основании кабельного журнала или другого документа (чертежа), в котором приведена информация о кабелях и проводах.

В сводке указывают суммарные длины кабелей и проводов с разделением по маркам, количеству и сечению жил.

3.10.5. Сводку кабелей и проводов составляют по форме, соответствующей табл. III.3.12, и помещают на последнем листе кабельного журнала, а при отсутствии последнего - на схеме подключения или других чертежах, на которых приведена информация о кабелях и проводах.

3.10.6. Трубозаготовительную ведомость составляют при прокладке проводов и кабелей в трубах.

3.10.7. Трубозаготовительную ведомость выполняют по форме, соответствующей табл. III.3.13.

3.10.8. Трубозаготовительную ведомость допускается не составлять, если провода и кабели прокладывают в полиэтиленовых или в проложенных открыто винипластовых трубах.

3.10.9. Для несложных объектов с небольшим количеством кабелей и проводов, проложенных в трубах, составляют кабельный журнал, совмещенный с трубозаготовительной ведомостью, по форме, соответствующей табл. III.3.14.

3.10.10. Ведомость заполнения труб кабелями составляют по форме, соответствующей табл. III.3.15.

Таблица III.3.11

Кабельный журнал

Таблица III.3.12

Сводка кабелей и проводов

Таблица III.3.13

Трубозаготовительная ведомость

Таблица III.3.14

Кабельный журнал, совмещенный с трубозаготовительной ведомостью

Таблица III.3.15

Ведомость заполнения труб кабелями

Примечание. В графе "Труба" указывают обозначение трубы по стандарту или ТУ и через дефис - ее условный проход.

3.11. Спецификации оборудования, изделий и материалов

3.11.1. Спецификацию оборудования, изделий и материалов ко всем основным комплектам рабочих чертежей (кроме основных комплектов рабочих чертежей строительных конструкций) выполняют по форме, соответствующей табл. III.3.16.

3.11.2. В спецификацию включают все оборудование, изделия и материалы, предусмотренные рабочими чертежами соответствующего основного комплекта. Спецификацию щитов и пультов выполняют отдельно.

3.11.3. Спецификацию, как правило, составляют по разделам (подразделам), состав которых и последовательность записи в них оборудования, изделий и материалов регламентируются соответствующими стандартами СПДС.

Наименование каждого раздела (подраздела) записывают в виде заголовка в графе 2 табл. III.3.16 и подчеркивают.

3.11.4. В спецификацию не включают отдельные виды изделий и материалы, номенклатуру и количество которых определяет строительно-монтажная организация, исходя из действующих технологических и производственных норм.

3.11.5. В спецификации (см. табл. III.3.16) указывают:

в графе 1 - позиционные обозначения оборудования, изделия, предусмотренные рабочими чертежами соответствующего основного комплекта;

в графе 2 - наименование оборудования, изделия, материала, их техническую характеристику в соответствии с требованиями стандартов, технических условий и другой технической документации, а также другие необходимые сведения. При записи материала указывают его условное обозначение, усыновленное в стандарте или другом нормативном документе;

в графе 3 - тип, марку оборудования, изделия, обозначение стандарта, технических условий или другого документа, а также обозначение опросного листа;

в графе 4 - код оборудования, изделия, материала в соответствии с классификатором продукции;

в графе 5 - наименование завода - изготовителя оборудования (для импортного оборудования - страну, фирму);

в графе 6 - обозначение единицы измерения;

Таблица III.3.16

Спецификация оборудования, изделий и материалов

в графе 7 - количество оборудования, изделий, материалов;

в графе 8 - массу единицы оборудования, изделия в килограммах. Для тяжелого оборудования допускается указывать массу в тоннах. Для оборудования (массой до 25 кг), не требующего при монтаже применения подъемно-транспортных средств, графу допускается не заполнять;

в графе 9 - дополнительные сведения.

3.11.6. В спецификации при записи оборудования и изделий индивидуального изготовления графы 4 и 5 не заполняют, а в графе 8 указывают ориентировочную массу единицы оборудования.

3.11.7. Спецификацию оборудования, изделий и материалов оформляют в качестве самостоятельного документа, которому присваивают обозначение, состоящее из обозначения соответствующего основного комплекта рабочих чертежей по ГОСТ 21.101 и шифра "С", указанного через точку.

Пример: 2003.18 - АПЖ.С, 25/02.2002 - АПТ.С.

3.11.8. Первым листом спецификации является титульный лист.

3.11.9. Титульный лист спецификации заполняется по форме III.3.1.

Форма III.3.1

Примечание. Наименование министерства (ведомства) допускается не указывать.

3.11.10. Допускается титульный лист не выполнять. В этом случае на первом листе спецификации выполняют основную надпись по форме III.2.3.

3.11.11. Спецификацию оборудования, изделий и материалов включают в ведомость ссылочных и прилагаемых документов (форма III.2.5), в раздел "Прилагаемые документы" и выдают заказчику в количестве, установленном для рабочих чертежей.

3.11.12. В подразделах спецификации оборудования к технологической части установок пожаротушения записи ведут в последовательности:

- общезаводское оборудование;

- подъемно-транспортное оборудование;

- нестандартизированное оборудование;

- пожарная техника;

- трубопроводная арматура;

- сигнальные клапаны узлов управления;

- задвижки;

- регуляторы давления;

- оросители;

- фланцы;

- контрольно-измерительные приборы;

- пенообразователи.

3.11.13. В подразделах спецификации оборудования к электротехнической части установок пожаротушения и установок сигнализации записи ведут в следующем порядке:

- приборы и средства автоматизации;

- электрооборудование;

- кабели и провода;

- электромонтажные изделия.

3.11.14. Оборудование и материалы записывают в спецификацию оборудования в порядке возрастания параметров технических характеристик.

3.11.15. Спецификацию щитов и пультов выполняют по разделам:

- щиты (пульты);

- аппаратура (приборы), поставляемая комплектно со щитами (пультами).

РАЗДЕЛ IV. ГИДРАВЛИЧЕСКИЙ РАСЧЕТ УСТАНОВОК ВОДЯНОГО И ПЕННОГО ПОЖАРОТУШЕНИЯ

1. ГИДРАВЛИЧЕСКИЙ РАСЧЕТ УСТАНОВОК ВОДЯНОГО И ПЕННОГО (НИЗКОЙ И СРЕДНЕЙ КРАТНОСТИ) ПОЖАРОТУШЕНИЯ

1.1. Порядок гидравлического расчета

Гидравлический расчет спринклерной или дренчерной сети имеет своей целью: определение расхода воды, т.е. интенсивности орошения или удельного расхода, у "диктующих" оросителей; сравнение удельного расхода (интенсивности орошения) с требуемым (нормативным), а также определение необходимого давления (напора) у водопитателей и наиболее экономных диаметров труб.

Расчету сети предшествует выполнение аксонометрической схемы с указанием на ней размеров и диаметров участков труб. Расчет сети производят исходя из характеристик (истечения из оросителя, трения в трубопроводе и др.) для двух режимов работы основного водопитателя (1-й режим - работа вспомогательного водопитателя в течение 10 мин, 2-й режим - работа основного водопитателя в течение нормативного времени) и одного режима работы основного водопитателя при наличии автоматического водопитателя.

Гидравлический расчет противопожарного водопровода АУП сводится к решению трех основных задач:

1. Определение давления на входе в противопожарный водопровод (на оси выходного патрубка насоса или иного водопитателя), если заданы расчетный расход воды, схема трассировки трубопроводов, их длина и диаметр, а также тип арматуры. В данном случае расчет начинается с определения потерь давления при движении воды (при заданном расчетном расходе) в зависимости от диаметра трубопроводов, схемы их трассировки, типа установленной арматуры и т.д. Заканчивается расчет выбором марки насоса (или другого вида водопитателя) по расчетному расходу воды и давлению в начале установки.

2. Определение расхода воды по заданному давлению в начале противопожарного трубопровода. Расчет начинается с определения гидравлических сопротивлений всех элементов трубопровода и заканчивается установлением расчетного расхода воды в зависимости от заданного давления в начале противопожарного водопровода.

3. Определение диаметров трубопроводов и других элементов противопожарного трубопровода по расчетному расходу воды и давлению в начале противопожарного трубопровода. Диаметры арматуры противопожарного водопровода выбирают исходя из заданного расхода воды и потерь давления по длине трубопровода и на используемой арматуре.

Прежде чем выполнять гидравлический расчет установок пожаротушения, необходимо убедиться, что в соответствии с НПБ 110-99* и действующими отраслевыми нормативными документами данный объект защиты действительно подлежит оснащению АУП. Если объект защиты не подходит под перечень зданий, помещений, сооружений и оборудования, приведенных в НПБ 110-99*, необходимо пользоваться действующими ведомственными правилами или рекомендациями.

В соответствии с НПБ 88-2001 гидравлическому расчету должно предшествовать определение требуемой интенсивности орошения.

Для этого прежде всего по табл. I.1.5 в соответствии с перечнем характерных помещений, производств или технологических процессов, которым удовлетворяет защищаемый объект, устанавливают группу подлежащих защите помещений.

Если ни одно из характерных помещений или производственных процессов не подпадает под данный перечень, то необходимо пользоваться действующими ведомственными документами.

Алгоритм расчета АУП сводится к следующему.

1. По табл. III.1.1 настоящего пособия устанавливается эффективность тушения горючих материалов, сосредоточенных в защищаемых объектах, водой, водным или пенным раствором.

2. С учетом пожароопасности (скорость распространения пламени) выбирается вид установки пожаротушения - спринклерная, дренчерная или модульная.

3. В зависимости от температуры эксплуатации устанавливается тип спринклерной установки пожаротушения - водозаполненная или воздушная.

4. С учетом выбранной группы объекта защиты (см. табл. I.1.5) по табл. I.1.2 - I.1.4 настоящего пособия принимают интенсивность орошения и площадь, защищаемую одним оросителем, площадь для расчета расхода воды и расчетное время работы установки. Для помещений складов (5, 6 и 7-я группы объекта защиты) интенсивность орошения определяют в зависимости от высоты складирования материалов (см. табл. I.1.4).

5. По паспортным данным оросителя с учетом коэффициента полезного использования расходуемой воды устанавливают давление, которое необходимо обеспечить у "диктующего" оросителя (наиболее удаленного или высоко расположенного), и расстояние между оросителями.

6. Расчетный расход воды в спринклерных установках определяют из условия одновременной работы всех спринклерных оросителей на защищаемой площади (см. раздел I, табл. I.1.2 и I.1.4), с учетом коэффициента полезного использования расходуемой воды и того обстоятельства, что расход оросителей, установленных вдоль распределительных труб, возрастает по мере удаления от "диктующего" оросителя.

Расход воды для дренчерных установок рассчитывают из условия одновременной работы всех дренчерных оросителей в защищаемом складском помещении (5, 6 и 7-я группы объекта защиты). Площадь помещений 1, 2, 3 и 4-й групп для определения расхода воды и числа одновременно работающих секций находят в зависимости от технологических данных, а при их отсутствии - по табл. I.1.2 настоящего пособия.

7. Для зоны приемки, упаковки и отправки грузов в складских помещениях высотой от 10 до 20 м с высотным стеллажным хранением значения интенсивности и защищаемой площади для расчета расхода воды, раствора пенообразователя по группам 5, 6 и 7, приведенные в табл. I.1.2 - I.1.4, должны быть увеличены из расчета 10 % на каждые 2 м высоты.

8. В соответствии с выбранным типом оросителя, его расходом, интенсивностью орошения и защищаемой им площадью прорабатывают планы размещения оросителей и трассировку трубопроводной сети.

Для наглядности трассировки по объекту защиты изображают (необязательно в масштабе) аксонометрическую схему сети.

9. Проводят гидравлический расчет противопожарного водопровода АУП.

1.2. Определение необходимого давления у оросителя при заданной интенсивности орошения [2, 3, 26]

В СССР основным производителем оросителей являлся Одесский завод "Спецавтоматика", который выпускал три вида оросителей, монтируемых розеткой вверх или вниз, с условным диаметром выходного отверстия 10; 12 и 15 мм.

По результатам всесторонних испытаний для этих оросителей были построены эпюры орошения в широком диапазоне давлений и высоты установки. В соответствии с полученными данными и были установлены в СНиП 2.04.09-84 нормативы по их размещению (в зависимости от пожарной нагрузки) на расстоянии 3 или 4 м друг от друга. Эти нормативы без изменения внесены в НПБ 88-2001.

В настоящее время основной объем оросителей поступает из-за рубежа, так как российские производители ПО "Спецавтоматика" (г. Бийск) и ЗАО "Ропотек" (г. Москва) не в состоянии полностью обеспечить потребность в них отечественных потребителей.

В проспектах на зарубежные оросители, как правило, отсутствуют данные по большинству технических параметров, регламентируемых отечественными нормами. В связи с этим провести сравнительную оценку показателей качества однотипной продукции, выпускаемой различными фирмами, не представляется возможным.

Сертификационными испытаниями не предусматривается исчерпывающая проверка исходных гидравлических параметров, необходимых для проектирования, например эпюр интенсивности орошения в пределах защищаемой площади в зависимости от давления и высоты установки оросителя. Как правило, эти данные отсутствуют и в технической документации, однако без этих сведений не представляется возможным корректное выполнение проектных работ по АУП.

В частности, важнейшим параметром оросителей, необходимым для проектирования АУП, является интенсивность орошения защищаемой площади в зависимости от давления и высоты установки оросителя.

В зависимости от конструкции оросителя площадь орошения по мере повышения давления может оставаться неизменной, уменьшаться или увеличиваться [5, 26 - 28].

Например, эпюры орошения универсального оросителя типа CU/P, установленного розеткой вверх, практически слабо изменяются от давления подачи в пределах 0,07 - 0,34 МПа (рис. IV.1.1). Напротив, эпюры орошения оросителя этого типа, установленного розеткой вниз, при изменении давления подачи в тех же пределах изменяются более интенсивно.

Если орошаемая площадь оросителя при изменении давления остается неизменной, то в пределах площади орошения 12 м2 (круг R ~ 2 м) можно расчетным путем установить давление Pт, при котором обеспечивается требуемая по проекту интенсивность орошения iт:

                                                                                               (IV.1.1)

где Рн и iн - давление и соответствующее ему значение интенсивности орошения согласно ГОСТ Р 51043-94 и НПБ 87-2000.

Значения iн и Рн зависят от диаметра выходного отверстия.

Если с возрастанием давления площадь орошения уменьшается, то интенсивность орошения возрастает более существенно по сравнению с уравнением (IV.1.1), однако при этом необходимо учитывать, что должно сокращаться и расстояние между оросителями.

Если с возрастанием давления площадь орошения увеличивается, то интенсивность орошения может несколько повышаться, оставаться неизменной или существенно уменьшаться. В этом случае расчетный метод определения интенсивности орошения в зависимости от давления неприемлем, поэтому расстояние между оросителями можно определить пользуясь только эпюрами орошения.

Отмечаемые на практике случаи отсутствия эффективности тушения АУП нередко являются следствием неправильного расчета гидравлических цепей АУП (недостаточной интенсивности орошения).

Приведенные в отдельных проспектах зарубежных фирм эпюры орошения характеризуют видимую границу зоны орошения, не являясь числовой характеристикой интенсивности орошения, и только вводят в заблуждение специалистов проектных организаций. Например, на эпюрах орошения универсального оросителя типа CU/P границы зоны орошения не обозначены числовыми значениями интенсивности орошения (см. рис. IV.1.1) [26 - 28].

Предварительную оценку подобных эпюр можно произвести следующим образом.

По графику q = f(K, P) (рис. IV.1.2) определяется расход из оросителя при коэффициенте производительности K, указанном в технической документации, и давлении на соответствующей эпюре.

Для оросителя при K = 80 и P = 0,07 МПа расход составляет qP = 0,07 ~ 67 л/мин (1,1 л/с).

Согласно ГОСТ Р 51043-94 и НПБ 87-2000 при давлении 0,05 МПа оросители концентричного орошения с диаметром выходного отверстия от 10 до 12 мм должны обеспечивать интенсивность не менее 0,04 л/(с·м2).

Определяем расход из оросителя при давлении 0,05 МПа:

qP = 0,05 = 0,845qP = 0,07 = 0,93 л/с.                                                            (IV.1.2)

Рис. IV.1.1. Эпюры орошения универсальным оросителем типа CU/P при его монтажном расположении:

а - розеткой вверх; б - розеткой вниз

Рис. IV. 1.2. Зависимость расхода оросителей с различным диаметром выходного отверстия в зависимости от коэффициента производительности и давления:

1 - d = 10мм, K = 59; 2 - d = 15мм, K = 80; 3 - d = 20мм, K = 115

Допуская, что орошение в пределах указанной площади орошения радиусом R ≈ 3,1 м (см. рис. IV.1.1, а) равномерное и все огнетушащее вещество распределяется только на защищаемую площадь, определяем среднюю интенсивность орошения:

                                                                   (IV.1.3)

Таким образом, данная интенсивность орошения в пределах приведенной эпюры не соответствует нормативному значению (необходимо не менее 0,04 л/(с·м2). Для того чтобы установить, удовлетворяет ли данная конструкция оросителя требованиям ГОСТ Р 51043-94 и НПБ 87-2000 на площади 12 м2 (радиус ~ 2 м), требуется проведение соответствующих испытаний.

Для квалифицированного проектирования АУП в технической документации на оросители должны быть представлены эпюры орошения в зависимости от давления и высоты установки. Подобные эпюры универсального оросителя типа РПТК приведены на рис. IV.1.3, а оросителей, производимых ПО "Спецавтоматика" (г. Бийск), - в приложении 6.

Согласно приведенным эпюрам орошения для данной конструкции оросителей можно сделать соответствующие выводы о влиянии давления на интенсивность орошения.

Например, если ороситель РПТК установлен розеткой вверх, то при высоте установки 2,5 м интенсивность орошения практически не зависит от давления. В пределах площади зоны радиусами 1,5; 2 и 2,5 м интенсивность орошения при повышении давления в 2 раза возрастает на 0,005 л/(с·м2), т.е. на 4,3 - 6,7 %, что свидетельствует о значительном увеличении площади орошения. Если при повышении давления в 2 раза площадь орошения останется неизменной, то интенсивность орошения должна увеличиться в 1,41 раза.

При установке оросителя РПТК розеткой вниз интенсивность орошения возрастает более существенно (на 25 - 40 %), что свидетельствует о незначительном увеличении площади орошения (при неизменной площади орошения интенсивность должна была бы увеличиться на 41 %).

Рис. IV.1.3. Эпюры орошения оросителем СВУ10-Р68 типа РПТК мод. А, установленным на высоте 0,7 и 2,5м:

а, б - розеткой вверх; в, г - розеткой вниз; о, в - давление подачи у оросителя 0,4 МПа; б, г - то же, 0,2 МПа

1.3. Гидравлические потери давления в трубопроводах

В общем случае требуемое давление в начале установки (после пожарного насоса) складывается из следующих составляющих (рис. IV.1.4):

Ртр = Рг + Рв + ∑Рм + Руу + Ро + Z,                                                         (IV.1.4)

где Рг - потери давления на горизонтальном участке трубопровода АБ; Рв - потери давления на вертикальном участке трубопровода БД; Рм - потери давления в местных сопротивлениях (фасонных деталях Б и Д); Руу - местные сопротивления в узле управления (сигнальном клапане, задвижках, затворах); Ро - давление у "диктующего" оросителя; Z - геометрическая высота "диктующего" оросителя над осью насоса.

Рис. IV.1.4. Расчетная схема установки водяного пожаротушения:

1 - водопитатель; 2 - ороситель; 3 - узлы управления; 4 - подводящий трубопровод; Рг - потери давления на горизонтальном участке трубопровода АБ; Рв - потери давления на вертикальном участке трубопровода БД; Рм - потери давления в местных сопротивлениях (фасонных деталях Б и Д); Руу - местные сопротивления в узле управления (сигнальном клапане, задвижках, затворах); Ро - давление у "диктующего " оросителя; Z - геометрическая высота "диктующего " оросителя над осью насоса

Гидравлические потери давления P в трубопроводах определяют по формуле

P = Ill,                                                                                                     (IV.1.5)

где l - длина трубопровода, м; Il - потери давления на единицу длины трубопровода, или гидравлический уклон;

Il = AQ2 = Q2/Kт,                                                                                      (IV.1.6)

A - удельное сопротивление, зависящее от диаметра и шероховатости стенок, с26; Kт -удельная характеристика трубопровода, л62; Q - расход воды, л/с.

Как показывает опыт эксплуатации, характер изменения шероховатости труб зависит от состава воды, растворенного в ней воздуха, режима эксплуатации, срока службы и т.п.

Удельное сопротивление и удельная гидравлическая характеристика трубопроводов для труб различного диаметра приведены в табл. IV.1.1 и IV.1.2.

Таблица IV.1.1

Удельное сопротивление при различной степени шероховатости труб

Диаметр, мм

Удельное сопротивление A, с26, при шероховатости труб

условный

расчетный

наибольшей

средней

наименьшей

20

20,25

1,643

1,15

0,98

25

26

0,4367

0,306

0,261

32

34,75

0,09386

0,0656

0,059

40

40

0,04453

0,0312

0,0277

50

52

0,01108

0,0078

0,00698

70

67

0,002893

0,00202

0,00187

80

79,5

0,001168

0,00082

0,000755

100

105

0,0002674

0,000187

-

125

130

0,00008623

0,0000605

-

150

155

0,00003395

0,0000238

-

Таблица IV.1.2

Удельная гидравлическая характеристика трубопроводов

Трубы

Диаметр условного прохода, мм

Диаметр наружный, мм

Толщина стенки, мм

Удельная характеристика трубопровода Kт, л62

Стальные электросварные (ГОСТ 10704-91)

15

18

2,0

0,0755

20

25

2,0

0,75

25

32

2,2

3,44

32

40

2,2

13,97

40

45

2,2

28,7

50

57

2,5

110

65

76

2,8

572

80

89

2,8

1429

100

108

2,8

4322

100

108

3,0

4231

100

114

2,8

5872

100

114*

3,0*

5757

125

133

3,2

13530

125

133*

3,5*

13190

125

140

3,2

18070

150

152

3,2

28690

150

159

3,2

36920

150

159*

4,0*

34880

200

219*

4,0*

209900

250

273*

4,0*

711300

300

325*

4,0*

1856000

350

377*

5,0*

4062000

Стальные водогазопроводные (ГОСТ 3262-75)

15

21,3

2,5

0,18

20

26,8

2,5

0,926

25

33,5

2,8

3,65

32

42,3

2,8

16,5

40

48

3,0

34,5

50

60

3,0

135

65

75,5

3,2

517

80

88,5

3,5

1262

90

101

3,5

2725

100

114

4,0

5205

125

140

4,0

16940

150

165

4,0

43000

Примечание. Трубы с параметрами, отмеченными знаком "*", применяются в сетях наружного водоснабжения.

Практика эксплуатации существующих спринклерных систем на действующих объектах со значительным сроком службы трубопроводов показывает, что трубы в большинстве случаев имеют среднюю шероховатость. Трубопроводы спринклерных сетей через 20 - 30 лет эксплуатации приобретают наибольшую шероховатость.

В приближенных расчетах местные сопротивления принимают равными 20 % сопротивления сети трубопроводов. В пенных АУП при концентрации пенообразователя 10 % и более необходимо учитывать вязкость раствора.

Диаметры питающих и распределительных всасывающих и напорных трубопроводов АУП следует определять гидравлическим расчетом, при этом скорость движения воды во всасывающих трубопроводах должна составлять не более 2,8 м/с, а в нагнетательных трубопроводах скорость движения воды и раствора пенообразователя не должна превышать 10 м/с. Рекомендуемые СНиП 2.04.01-85* значения скорости движения воды приведены в табл. I.1.1 и I.5.1 настоящего пособия.

1.4. Гидравлический расчет распределительных и питающих трубопроводов [2, 3, 26]

Гидравлический расчет трубопроводов следует выполнять при условии водоснабжения этих установок от основного водопитателя.

Расчетный расход воды (раствора пенообразователя) q (л/с) через "диктующий" ороситель (генератор пены) определяется по формуле

                                                                                            (IV.1.7)

где K - коэффициент производительности оросителя (генератора пены), принимаемый по технической документации на изделие; P -давление перед оросителем (генератором пены), МПа.

Величина давления принимается из условия обеспечения требуемой интенсивности орошения (в соответствии с табл. I.1.2 - I.1.4 настоящего пособия).

Максимальное допустимое давление для оросителей (спринклерных или дренчерных) при эксплуатации составляет 1 МПа.

Интенсивность орошения традиционными розеточными оросителями, формирующими концентричный водяной поток, в пределах орошаемой зоны неравномерна, причем, как правило, на периферии этой зоны интенсивность орошения минимальна.

Поэтому в том случае, когда необходимо обеспечить орошение защищаемой площади с заданной интенсивностью орошения, необходимо учитывать, что не вся диспергируемая вода поступает непосредственно в защищаемую зону.

На рис. IV.1.5 приведена эпюра орошения оросителем защищаемой площади. На площади зоны радиусом Ri, обеспечивается требуемое или нормативное значение интенсивности орошения, а на площади радиусом Rорош распределяется все огнетушащее вещество, диспергируемое оросителем.

Рис. IV.1.5. Схема, характеризующая распределение интенсивности орошения из оросителя с вертикальной подачей огнетушащего вещества

При расчете суммарного расхода установки необходимо учитывать коэффициент использования расхода (полезного использования воды) f:

                                                                                                    (IV.1.8)

где qi - расход оросителя, приходящийся на площадь с заданной интенсивностью орошения; q - полный расход оросителя, соответствующий принятому давлению.

Взаимную расстановку оросителей можно представить в шахматном или квадратном порядке (рис. IV.1.6) [5].

Рис. IV.1.6. Способы взаимной расстановки оросителей:

а - шахматный; б - квадратный

Оросители необходимо размещать таким образом, чтобы обеспечить наиболее эффективное орошение защищаемой зоны.

Если линейные размеры защищаемой зоны кратны радиусу Ri или остаток больше 0,5Ri и практически весь расход оросителя приходится на защищаемую зону, то при равном количестве оросителей и при одинаковой защищаемой площади наиболее выгодно размещать оросители в шахматном порядке.

В этом случае конфигурация расчетной площади представляет собой вписанный в окружность шестиугольник, в наибольшей степени приближающийся по форме к орошаемой площади зоны. При этом достигается более интенсивное орошение боковых сторон, ограниченных стенами. Однако при квадратном расположении оросителей увеличивается зона взаимного действия (заштрихованная область).

Согласно НПБ 88-2001 (см. табл. I.1.2 настоящего пособия) расстояние между оросителями зависит от групп защищаемых помещений и составляет для одних групп не более 4 м, для других - не более 3 м.

Рассмотрим схему, в которой оросители расположены на расстоянии 4 м друг от друга, а паспортные сведения об эпюрах орошения отсутствуют (рис. IV.1.7) [5, 26]. Если допустить, что требуемая интенсивность орошения наблюдается на площади 12 м2 (Ri ≈ 2 м), то на площади CEGF интенсивность орошения не определена. Каждая четвертая часть этой площади (площадь ABCD) может находиться в зоне действия двух, трех или четырех оросителей (в зависимости от размеров Rорош).

Рис. IV.1.7. Схема эпюр интенсивности орошения при расстановке оросителей на расстоянии 4 м:

Если площадь ABCD находится в зоне взаимодействия только двух оросителей, то интенсивность орошения каждого оросителя в поясе шириной АВ ≈ 0,4 м должна составлять ~50 % от требуемой интенсивности орошения.

При уменьшении расстояния между оросителями на 0,4 м площадь зоны ABCD (рис. IV.1.8) становится почти в 4 раза меньше зоны ABCD (см. рис. IV.1.7). Кроме того, в поясе зоны

орошения шириной АВ ≈ 0,4 м взаимодействуют все четыре оросителя, и, следовательно, интенсивность орошения каждого оросителя в этой зоне может составить всего 25 % от требуемого значения. При данном расположении оросителей (непосредственно у стен W) более интенсивное орошение наблюдается в пристеночной (граничной) области.

Рис. IV.1.8. Схема эпюр интенсивности орошения при расстановке оросителей на расстоянии 3,6 м

В общем случае распределение интенсивности орошения и значение коэффициента полезного использования воды в орошаемой зоне варьируются в зависимости от давления и высоты установки оросителя. В зависимости от конструкции оросителя интенсивность орошения и коэффициент полезного использования воды могут увеличиваться, оставаться неизменными или даже уменьшаться.

Расстояние между оросителями L при условии обеспечения заданной интенсивности орошения всей защищаемой зоны можно принять:

L = 2Ri.                                                                                                     (IV.1.9)

При f ≤ 0,85 можно допустить, что в зонах ABCD интенсивность орошения будет близка к допускаемой по ГОСТ Р 51043 и НПБ 87-2000 (на площади орошения с заданной нормативной интенсивностью iн допускаются отдельные участки с интенсивностью не менее 50 % от нормативного значения):

iABCD > 0,5i.                                                                                               (IV.1.10)

На практике возможны три схемы компоновки оросителей на распределительном трубопроводе: симметричная, симметричная закольцованная и несимметричная (рис. IV.1.9).

Для каждой секции пожаротушения определяется самая удаленная или наиболее высоко расположенная защищаемая зона, и гидравлический расчет проводится именно для этой зоны.

В симметричной секции A давление P1 у "диктующего" оросителя 1 должно быть не менее

                                                                              (IV.1.11)

где q - расход через ороситель; K - коэффициент производительности; Pмин раб - минимальное допустимое давление для данного типа оросителя.

Расход первого оросителя 1 является расчетным значением Q1-2 на участке l1-2 между первым и вторым оросителями. Потери давления P1-2 на участке l1-2 определяются по формуле

                                                                             (IV.1.12)

Следовательно, давление у оросителя 2

P2 = P1 + P1-2.                                                                                           (IV.1.13)

Расход оросителя 2 составит:

                                                                                          (IV.1.14)

Расчетный расход на участке между вторым оросителем и точкой с, т.е. на участке 2 - а, будет равен:

Q2-a = q1 + q2.                                                                                            (IV.1.15)

Диаметр трубопровода d (м) определяют по формуле

                                                                                            IV.1.16)

где υ - скорость движения воды, м/с.

Рис. IV.1.9. Схемы распределительной сети спринклерной или дренчерной АУП:

А - секция с симметричным расположением оросителей;

Б - секция с несимметричным расположением оросителей;

В - секция с закольцованным питающим трубопроводом;

I, II, III - рядки распределительного трубопровода;

a, b, . . . , n, m - узловые расчетные точки

Диаметр трубопровода выражают в миллиметрах и увеличивают до ближайшего значения, указанного в ГОСТ 8732-70 или ГОСТ 10704-76.

По расходу воды Q2-a определяют потери напора на участке 2 - a:

                                                                           (IV.1.17)

Напор в точке а составит:

Pa = P2 + P2-a.                                                                                           (IV.1.18)

Таким образом, для левой ветви рядка I секции А (см. рис. IV.1.9) требуется обеспечить расход Q2-a при давлении Pa. Правая ветвь рядка симметрична левой, поэтому расход для этой ветви тоже будет равен Q2-a, а следовательно, и давление в точке а будет равно Pa.

В итоге для рядка I имеем давление, равное Pa, и расход воды

QI = 2Q2-a.                                                                                            (IV.1.19)

Правая часть секции Б (см. рис. IV.1.9) несимметрична левой, поэтому левую ветвь рассчитывают отдельно, определяя для нее Pa и Q'3-a.

Если рассматривать правую часть 3 - а рядка (один ороситель) отдельно от левой 1 - а (два оросителя), то давление в правой части Р'а должно быть меньше давления Ра в левой части.

Так как в одной точке не может быть двух разных давлений, то принимают большее значение давления Ра и определяют исправленный (уточненный) расход для правой ветви Q3-a:

                                                                                 (IV.1.20)

Суммарный расход воды из рядка I

Q1 = Q2-a + Q3-a.                                                                                        (IV.1.21)

Потери давления на участке а - b находят по формуле

                                                                                           (IV.1.22)

Давление в точке b составит:

Pb = Pa + Pa-b.                                                                                           (IV.1.23)

Рядок II рассчитывают по гидравлической характеристике

B = Km/li,                                                                                                   (IV.1.24)

где li - длина расчетного участка трубопровода, м.

Так как гидравлические характеристики рядков, выполненных конструктивно одинаково, равны, характеристику рядка II определяют по обобщенной характеристике расчетного участка трубопровода

BPI = QI2/Pa.                                                                                              (IV.1.25)

Расход воды из рядка II определяют по формуле

                                                                                           (IV.1.26)

Расчет всех следующих рядков до получения расчетного расхода воды ведется аналогично расчету рядка II.

Общий расход подсчитывается из условия расстановки необходимого количества оросителей, обеспечивающих защиту расчетной площади, в том числе и в случае необходимости монтажа оросителей под технологическим оборудованием, площадками или вентиляционными коробами, если они препятствуют орошению защищаемой поверхности. Расчетная площадь принимается в зависимости от группы объектов (см. табл. I.1.2). В общем случае количество оросителей, монтируемых на расчетной площади, может быть больше указанных в табл. I.1.2.

Поскольку давление у каждого оросителя различно (самое низкое давление у наиболее удаленного или высоко расположенного оросителя), необходимо учитывать и различный расход из каждого оросителя при соответствующем коэффициенте полезного использования воды.

Поэтому расчетный расход АУП должен определяться по формуле

                                                                       (IV.1.27)

где Qауп - расчетный расход АУП, л/с; qn - расход n-го оросителя, л/с; fn - коэффициент использования расхода при расчетном давлении у n-го оросителя; in -средняя интенсивность орошения n-м оросителем (не менее интенсивности орошения, приведенной в соответствии с группой помещения в табл. I.1.2 - I.1.4); Fn - нормативная площадь орошения каждым оросителем с интенсивностью не менее приведенной в табл. I.1.2 - I.1.4.

Кольцевую сеть (см. рис. IV.1.9, секция В) рассчитывают аналогично тупиковой сети, но при 50 % расчетного расхода воды по каждому полукольцу.

От точки m до водопитателей вычисляют потери давления в трубах по длине и с учетом местных сопротивлений, в том числе в узлах управления (сигнальных клапанах, задвижках, затворах).

Потери напора в узлах управления установок Руу (м) определяются по формуле

Руу = γQ2,                                                                                                  (IV.1.28)

где γ - коэффициент потерь давления в узле управления (принимается по технической документации на узел управления в целом или на каждый сигнальный клапан, затвор или задвижку индивидуально); Q - расчетный расход воды или раствора пенообразователя через узел управления.

Расчет ведут таким образом, чтобы давление у узла управления не превышало 1 МПа.

Ориентировочно диаметры распределительных рядков можно выбирать по числу установленных на трубопроводе оросителей. В табл. IV.1.3 указана взаимосвязь между наиболее часто используемыми диаметрами труб распределительных рядков, давлением и числом установленных спринклерных оросителей.

Таблица IV.1.3

Взаимосвязь между наиболее часто используемыми диаметрами труб распределительных рядков, давлением и числом установленных спринклерных оросителей

Давление

Число оросителей при условном диаметре труб, мм

20

25

32

40

50

70

80

100

125

150

Высокое

1

3

5

9

18

28

46

80

150

> 150

Низкое

-

2

3

5

10

20

36

75

140

> 140

Наиболее распространенной ошибкой при гидравлическом расчете распределительных и питающих трубопроводов является определение расхода Q по формуле

Q = iFop,                                                                                                    (IV. 1.29)

где i и Fop - соответственно интенсивность и площадь орошения для расчета расхода, принимаемые по НПБ 88-2001 (см. табл. I.1.2 - I.1.4).

Однако в установках с большим числом оросителей при их одновременном действии возникают значительные потери давления в системе трубопроводов. Поэтому и расход, а значит, и интенсивность орошения каждого оросителя различны [2, 26]. Это приводит к тому, что ороситель, установленный ближе к питающему трубопроводу, имеет большее давление и, соответственно, больший расход. Неравномерность орошения хорошо иллюстрирует результаты гидравлических расчетов рядков, состоящих из последовательно расположенных оросителей (рис. IV.1.10, табл. IV.1.4).

Рис. IV.1.10. Расчетная схема несимметричной секции пожаротушения с семью оросителями в рядке:

d - диаметр, мм; l - длина трубопровода, м; 1 - 14 - порядковые номера оросителей; a, b, c - узловые точки

Таблица IV.1.4

Значения расхода и давления в рядках

Вариант расчетной схемы порядков

Диаметр труб участков, мм

Давление, м

Расход, л/с

q4/q1

Суммарный расход рядка, л/с

1 - 2

2 - 3

3 - 4

4 - 5

5 - 6

6 - 7

P1

Pa

q1

q4

Qa

Q = 7q1

Qa/Q

1

20

25

25

32

25

20

0,03

0,12

0,78

1,84

9,62

2,35

5,46

1,76

2

20

25

25

32

25

20

0,05

0,26

1,00

2,15

11,59

2,15

7,00

1,66

3

20

25

25

32

25

20

0,05

0,31

1,00

2,36

12,24

2,36

7,00

1,75

4

25

25

32

32

25

25

0,05

0,15

1,00

1,58

9,38

1,58

7,00

1,34

5

25

25

32

32

25

25

0,11

0,20

1,00

1,28

8,14

1,28

7,00

1,16

6

32

32

32

32

32

32

0,11

0,16

1,00

1,16

7,90

1,126

7,00

1,12

Примечания:

1. Варианты 1 - 4 -коэффициент производительности K = 0,47, варианты 5 - 6 - K = 0,3.

2. Вариант 2 - расстояние между оросителями li = 2,5 м, в остальных li = 3,0 м.

3. P1 и Pa - давление соответственно перед крайним оросителем и в точке а.

4. q1, q4 и Qa - соответственно расход через первый и четвертый оросители, а также суммарный расход в точке а.

Согласно данным табл. IV.1.4 расход оросителя q4 превышает расход из крайнего оросителя q1 причем с увеличением расстояния между оросителями и уменьшением диаметров трубопроводов между оросителями возрастает и соотношение q4/q1.

Если расход из всех оросителей будет одинаков, то суммарный расход рядка можно найти умножением расхода воды оросителя на число оросителей в рядке:

Q = nq1,                                                                                                    (IV.1.30)

где n - количество оросителей в рядке; q1 - расход "диктующего" оросителя.

Например, для вариантов 2 - 6 суммарный расход воды можно было найти умножением расхода воды q1 "диктующего" оросителя на число оросителей в рядке: Q = 1·7 = 7 л/с.

Однако ввиду того, что давление и расход из каждого последующего оросителя заметно отличаются, фактический суммарный расход рядка также будет отличаться от рассчитанного по формуле (IV.1.30).

Реально для вариантов 2 - 6 при расходе из "диктующего" оросителя q1 = 1 л/с расход воды q4 из четвертого оросителя (расположенного около питающего трубопровода) больше, чем расход воды q1 из "диктующего" оросителя. При различных расходах воды из оросителей суммарный расход воды рассчитывается последовательным суммированием расходов каждого оросителя:

                                                                                              (IV.1.31)

где qn - расход из каждого оросителя.

Этот расход в зависимости от варианта расчета колеблется в пределах Qa = 7,90÷12,24 л/с, что на 12 - 75 % больше Q.

Таким образом, соотношение фактического расхода и рассчитанного по формуле (IV.1.30) в зависимости от коэффициента производительности оросителей и диаметров трубопроводов на различных участках распределительного рядка для рассмотренных вариантов составляет Qa/Q = 1,12÷1,75, т.е. практически реальный расход по отношению к рассчитанному по формуле (IV.1.30) должен быть увеличен в 1,12 - 1,75 раза.

При определенных параметрах распределительной сети (особенно когда определяется расход двух и более рядков) соотношение Qa/Q может достигать 2 и более (см. приложение 9).

Так как оросители имеют одинаковые отверстия истечения, повышенное давление перед оросителем вызывает увеличение расхода по сравнению с производительностью "диктующего" оросителя. Неоправданное увеличение расхода тех оросителей, перед которыми отмечается более высокое давление, ведет к дополнительному повышению потерь давления в подводящих трубопроводах сети и тем самым к еще большему увеличению суммарного расхода и неравномерности орошения.

Таким образом, если количество спринклерных оросителей, которые предположительно сработают при пожаре, или общее количество дренчерных оросителей не превышает трех, то для упрощения расчетов можно использовать формулу (IV.1.30), увеличив суммарный расход на 5 - 15 %, в противном случае необходимо проводить полный расчет расхода по формуле (IV.1.31).

Имеющиеся на практике случаи отсутствия эффективности тушения АУП нередко являются следствием неправильного расчета распределительных сетей АУП (недостаточный расход воды).

Диаметры трубопроводов сети оказывают существенное влияние не только на падение давления в сети, но и на расчетный расход воды. Увеличение расхода воды водопитателя при неравномерной работе оросителей приводит к повышению в значительной мере строительных затрат на водопитатель, которые, как правило, являются решающими в определении стоимости установки.

Равномерный расход из оросителей, а следовательно, и равномерное орошение защищаемой поверхности при давлениях, изменяющихся по длине трубопроводов, могут быть достигнуты различными способами, например устройством диафрагм, применением оросителей с изменяющимися по длине трубопровода выходными отверстиями и т.п.

Однако существующими нормами (НПБ 88-2001) в пределах одного защищаемого помещения не допускается использование оросителей с разными выходными отверстиями (если более точно, то должны устанавливаться только однотипные оросители с одинаковыми выходными отверстиями).

Использование перед оросителями диафрагм разного диаметра, обеспечивающих одинаковый расход из каждого оросителя, никаким нормативным документом не регламентировано. Применение таких диафрагм нецелесообразно, так как в процессе эксплуатации АУП не исключена вероятность их перестановки, вследствие чего существенно нарушается равномерность орошения.

Поскольку каждый ороситель и рядок имеют постоянный расход, расчет питающих трубопроводов, от диаметров которых зависят потери давления в системе, выполняют независимо от давления, числа оросителей в рядке и расстояний между ними. Это обстоятельство в значительной мере упрощает расчет системы.

Расчет сводится к определению зависимости падения давления на участках сети от диаметров труб. При выборе диаметров отдельных участков трубопроводов следует придерживаться условия, при котором потери давления на единицу длины мало отличаются от среднего гидравлического уклона:

I = ∑100P/L,                                                                                             (IV.1.32)

где I - средний гидравлический уклон; Р - потери давления линии от водопитателя до "диктующего" оросителя, МПа; L - длина водопроводной сети, м.

Расчеты показывают, что установочная мощность агрегатов, приходящаяся на преодоление потерь давления в системе при использовании оросителей с одинаковым расходом, уменьшается в 4,7 раза, а объем неприкосновенного запаса воды в резервуарах основного водопитателя снижается в 2,1 раза. Металлоемкость трубопроводов при этом уменьшается на 28 %.

Для раздельных противопожарных водопроводов (внутреннего противопожарного по СНиП 2.04.01-85* и автоматических установок пожаротушения по НПБ 88-2001) допустима установка одной группы насосов при условии обеспечения этой группой расхода Q, равного сумме потребности каждого водопровода:

Q = QВПВ + QАуп,                                                                                      (IV.1.33)

где QВПВ, QАуп - расходы, необходимые соответственно для внутреннего противопожарного водопровода и водопровода АУП.

В случае присоединения пожарных кранов к питающим трубопроводам суммарный расход определяется по формуле

Q = QпК + QАуп,                                                                                       (IV.1.34)

где QпК - допустимый расход из пожарных кранов (принимается по СНиП 2.04.01-85*, табл. 1 - 2).

Продолжительность работы внутренних пожарных кранов, оборудованных ручными водяными или пенными пожарными стволами и подсоединенных к питающим трубопроводам спринклерной установки, следует принимать равной времени работы спринклерной установки.

Для ускорения и повышения точности гидравлических расчетов спринклерных и дренчерных АУП целесообразно использовать вычислительную технику.

1.5. Особенности расчета параметров АУП при объемном пожаротушении пеной низкой и средней кратности

Расчет параметров АУП при объемном пожаротушении пеной низкой и средней кратности проводится по методике, изложенной в НПБ 88-2001.

Объем раствора пенообразователя Vn 3) при объемном пожаротушении определяется по формуле

                                                                                                (IV.1.35)

где kp - коэффициент объемного разрушения пены; принимается по табл. IV.1.5; V - защищаемый объем, м3; k - кратность пены.

Таблица IV.1.5

Коэффициент разрушения пены и продолжительность работы установок

Горючие материалы защищаемого производства

Коэффициент объемного разрушения пены kp

Продолжительность работы установки, мин

Твердые

3

25

Жидкие

4

15

Число одновременно работающих генераторов пены n определяется по формуле

                                                                                                (IV.1.36)

где qn - производительность одного генератора по раствору пенообразователя, л/с; V - защищаемый объем, м3; τ - продолжительность работы установки с пеной средней кратности, с (принимается по табл. IV.1.5).

1.6. Гидравлический расчет параметров установок пожаротушения высокократной пеной

Гидравлический расчет параметров установок пожаротушения высокократной пеной проводится по методике, изложенной в НПБ 88-2001 (с дополнительной расшифровкой коэффициента объемного разрушения пены kp).

Определяется расчетный объем V защищаемого помещения или объем локального пожаротушения. За расчетный объем помещения принимается его внутренний геометрический объем, за исключением величины объема сплошных (непроницаемых) строительных несгораемых элементов (колонны, балки, фундаменты и т.д.).

Выбирается тип (марка) генератора высокократной пены и устанавливается его производительность по пене qn.

Определяется расчетное количество генераторов высокократной пены n по формуле

                                                                                            (IV.1.37)

где kp - коэффициент объемного разрушения пены; τ - максимальное время заполнения пеной защищаемого объема, мин; k - кратность пены.

Коэффициент kp рассчитывается по формуле

kp = K1K2K3,                                                                                             (IV.1.38)

где K1 - коэффициент, учитывающий усадку пены, принимается равным 1,2 при высоте помещения до 4 м и 1,5 - при высоте помещения до 10 м; K2 - коэффициент, учитывающий возможные утечки пены через сетку и щели неплотно закрытых проемов, принимается равным 1,2 (для герметичных помещений принимается равным 1); K3 - коэффициент, учитывающий влияние дымовых газов на разрушение пены; для пены, получаемой с использованием чистого воздуха, принимается равным 1, а с использованием дымовых газов, образующихся при сгорании горючих материалов, - 1,5.

Максимальное время заполнения пеной объема защищаемого помещения принимается не более 10 мин.

Определяется расход АУП по раствору пенообразователя Q.

Если количество одновременно работающих пеногенераторов не превышает трех, то для упрощения расчетов можно использовать формулу

Qp = nqn,                                                                                                   (IV.1.39)

увеличив суммарный расход на 5 - 15 %.

В противном случае необходимо проводить полный расчет расхода по формуле

                                                                                               (IV.1.40)

По технической документации на пенообразователь устанавливается объемная концентрация пенообразователя в растворе с (%).

Определяется расчетный объем пенообразователя VПО по формуле

VПО = сQpτ.                                                                                               (IV.1.41)

2. ОПРЕДЕЛЕНИЕ УДЕЛЬНОГО РАСХОДА ОРОСИТЕЛЕЙ ДЛЯ СОЗДАНИЯ ВОДЯНЫХ ЗАВЕС [26]

В отечественной практике создание водяных завес, как правило, осуществляется оросителями общего назначения. Основные требования к оросителям для создания водяных завес и методы их испытаний приведены в НПБ 87-2000 и включены в проект ГОСТ Р 51043-2003.

При выборе гидравлических параметров оросителя (давление, расход) необходимо провести перерасчет интенсивности орошения, определенной по ГОСТ Р 51043-94 или по НПБ 87-2000, в удельный расход, т.е. расход, приходящийся на 1 м ширины завесы.

Допустим, зона орошения традиционным оросителем общего назначения представляет собой площадь круга радиусом R со средней интенсивностью i (рис. IV.2.1)

Расход, приходящийся на ширину завесы l = 2а в пределах площади прямоугольника ABCD, вписанного в круг (без учета сегментов АВ и CD), определяется по формуле

Q iS ≈ 4iab 4iR2sinαcosα,                                                                   (IV.2.1)

где i - средняя интенсивность орошения в пределах зоны радиусом R, л/(с·м2); S - площадь, орошаемая завесой со средней интенсивностью i, м2; α - угол, определяющий ширину орошаемой зоны, в пределах которой рассчитывается минимальный удельный расход завес, град.

Рис. IV.2.1. Эпюра удельного расхода при орошении одним оросителем общего назначения, формирующим концентричное орошение, при вертикальном направлении потока:

R - радиус зоны орошения, внутри которой обеспечивается средняя интенсивность орошения i и требуемый удельный расход qα; l - ширина завесы; ABCD - площадь проекции завесы; А1В1 - эпюра удельного расхода завесы qα

Минимальное значение удельного расхода qα по ширине завесы l в пределах прямоугольника ABCD (определяемого углом α) рассчитывают по формуле

                                                    (IV.2.2)

где l - ширина орошаемой зоны в пределах плоскости, ограниченной отрезками AD и ВС, со средним удельным расходом завесы не менее qα, м; l = 2Rcosα.

Согласно ГОСТ Р 51043 сведения об интенсивности орошения для оросителей общего назначения, установленных на высоте 2,5 м от пола, приведены для площади 12 м2, что соответствует радиусу R ≈ 2 м, следовательно,

qα ≈ 4isinα;                                                                                                IV.2.3)

l ≈ 4cosα.                                                                                                  IV.2.4)

Тогда согласно НПБ 88-2001 при удельном расходе qα = 1 л/(с·м) интенсивность орошения должна составлять

                                                                                               (IV.2.5)

Угол, определяющий защищаемую зону при qα = 1 л/(с·м), находят из уравнения

                                                                                           (IV.2.6)

Таким образом, если орошаемая зона находится в пределах круга радиусом 2 м, то, чтобы удовлетворять условию qα ≥ 1 л/(с·м), интенсивность орошения должна быть значительно больше 0,25 л/(с·м2).

Увеличить ширину водяной завесы с требуемым значением удельного расхода можно тремя способами:

1) снижением высоты установки оросителя над полом (или расстояния между оросителем и защищаемой вертикальной плоскостью);

2) повышением давления подачи воды (при допущении, что форма водяного потока оросителя практически сохраняется неизменной);

3) увеличением количества оросителей по ширине защищаемой зоны (при неизменном давлении).

Увеличение ширины завесы за счет снижения высоты H установки оросителя (или расстояния между оросителем и защищаемой вертикальной плоскостью) можно обеспечить только при условии наличия соответствующих эпюр орошения, математических или графических зависимостей удельного расхода от H. Данная зависимость для оросителей общего назначения носит, как правило, гиперболический характер и чаще всего устанавливается экспериментально.

Увеличение ширины завесы посредством повышения давления подачи воды рассчитывают исходя из следующих соображений.

Расход из оросителя при расчетном давлении и давлении, при котором обеспечивается нормативное (требуемое) значение, определяют из следующих выражений:

                                                                                             (IV.2.7)

                                                                                              (IV.2.8)

                                                                                              (IV.2.9)

где Pp - расчетное давление; qp - расход ОТВ при Pp; qн - нормативный (или требуемый) расход; Рн - давление, при котором обеспечивается нормативное (или требуемое) значение расхода qн.

При этом принимают следующие допущения:

- в заданном диапазоне давлений (Pр - Pн) коэффициент производительности неизменен;

- средняя интенсивность орошения по ширине завесы сохраняется неизменной (реально в зависимости от конструкции оросителя интенсивность орошения от оси оросителя к периферии может как возрастать, так и уменьшаться);

- коэффициент использования воды (отношение массы воды, приходящейся на защищаемую зону в единицу времени, к массе воды, диспергируемой за то же время из оросителя) сохраняется неизменным, а защищаемая концентричная площадь по прежнему равна 12 м2 (радиус R 2 м).

Увеличение ширины завесы за счет совокупного действия нескольких оросителей можно обеспечить в двух случаях:

а) при недостаточной интенсивности орошения каждым из оросителей в пределах его площади орошения (CR);

б) при обеспечении каждым из оросителей требуемого удельного расхода в пределах l(C < 2R).

Вариант "а" (рис. IV.2.2), когда интенсивность орошения каждым из оросителей явно недостаточна для получения q1 л/(с·м), расстояние между оросителями С должно быть менее R. Причем чем больше интенсивность орошения, тем больше может быть расстояние между оросителями; при этом ширина завесы также возрастает.

При взаимном перекрытии орошаемой зоны двумя однотипными оросителями с R 2 м на границах завесы шириной l = С = АВ

q = 4i(sinα1 + sinα2);                                                                                  (IV.2.10)

                                                                               (IV.2.11)

При проектировании водяных завес должны использоваться однотипные оросители; расстояние между ними принимают чаще всего 1 м (при этом α = 60°).

В этом случае, чтобы на участке С = АВ обеспечивался удельный расход 1 л/(с·м), интенсивность орошения каждым оросителем должна составлять согласно (IV.2.11) i ≥ 0,144 л/(с·м2), а расход через каждый ороситель, рассчитанный по формуле

q = i·Fор/k,                                                                                                (IV.2.12)

должен быть не менее

q = 0,144·12/(0,8÷0,9) ≈ (1,9÷2,2) л/с,                                                    (IV.2.13)

где k - коэффициент использования воды (относительная масса воды, диспергируемая оросителем и приходящаяся на площадь 12 м2).

Рис. IV.2.2. Эпюры удельного расхода при орошении двумя оросителями общего назначения с концентричным орошением при расстоянии между оросителями CR (недостаточная интенсивность орошения каждым оросителем):

1, 2 - эпюры удельного расхода каждого из оросителей; 12 - эпюра удельного расхода при совместном действии оросителей 1 и 2; R - радиус зоны орошения со средней интенсивностью орошения i; С - расстояние между оросителями; l - ширина завесы; О1, О2 - центры окружностей радиусом R

Значение коэффициента использования воды для конкретного типа оросителя можно установить, зная экспериментальные значения расхода Qэкс и интенсивности орошения i:

                                                                                                  (IV.2.14)

В случае варианта "б" (рис. IV.2.3) расчет сводится к тому, что задают ширину завесы l, обеспечиваемую одним оросителем, и рассчитывают необходимую интенсивность орошения i либо задают i и определяют l.

Расстояние между оросителями C подбирают таким образом, чтобы по ширине всей завесы удельный расход составлял q ≥ 1 л/(с∙м), при этом C < 2R.

Например, если удельный расход обеспечивается каждым оросителем по ширине завесы l = 2a, то

C = R + a,                                                                                            (IV.2.15)

или

C = R(l + cosα).                                                                                         (IV.2.16)

Выражения (IV.2.15) и (IV.2.16) свидетельствуют о том, что на практике зона орошения радиусом R с нормативной интенсивностью одного оросителя должна примыкать к зоне орошения с нормативным удельным расходом другого оросителя.

В области совместного действия двух оросителей (кривая 12) удельный расход несколько превышает нормативное значение. Общая ширина завесы с нормативным удельным расходом при действии двух оросителей:

L = 2l + (R - а) = 0,5l(3 + cosα),                                                              (IV.2.17)

или

L = 4Rcosα + (R - Rcosα) = R(3cosα + 1).                                                (IV.2.18)

При C = 1,5R (что соответствует а = а1 = а2 = 60°) общая ширина завесы L с нормативным удельным расходом составит 5 м; при этом интенсивность орошения i должна быть согласно (IV.2.11) не менее 0,289 л/(см2), а расход каждого оросителя согласно (IV.2.10) - q(3,85 + 4,34) л/с.

Рис. IV.2.3. Эпюры удельного расхода при орошении двумя оросителями общего назначения с концентричным орошением при расстоянии между оросителями С < 2R (при обеспечении каждым оросителем требуемого удельного расхода):

1, 2 - эпюры удельного расхода каждого из оросителей; 12 - эпюра удельного расхода при совместном действии оросителей 1 и 2; R - радиус зоны орошения (со средней интенсивностью орошения i), внутри которой на длине l обеспечивается нормативное значение удельного расхода; C - расстояние между оросителями; L = А1В2 - ширина завесы, образуемой двумя оросителями; l = A1B1 = А2В2 - ширина завесы, образуемой каждым оросителем в отдельности; О1, О2 - центры окружностей радиусом R

Таким образом, если используется два оросителя, интенсивность орошения каждого из которых недостаточна для создания завесы с удельным нормативным расходом (вариант "а"), то с учетом (IV.2.12) при суммарном расходе 3,8 - 4,4 л/с ширина водяной завесы составит 1 м.

Если же каждый из двух оросителей обеспечивает определенную ширину завесы l < 2R с удельным нормативным расходом, то с учетом (IV.2.12) при суммарном расходе 7,7 - 8,7 л/с ширина водяной завесы составит 5 м.

В табл. IV.2.1 приведены ориентировочные расчетные значения давления подачи для двух рассмотренных вариантов "а" и "б" в зависимости от коэффициента производительности Kрасч (или диаметра выходного отверстия оросителя).

Таблица IV.2.1

Расчетные значения давления в зависимости от коэффициента производительности

Вариант

Значения давление подачи, МПа, в зависимости от коэффициента Kрасч/диаметра выходного отверстия d, мм

0,33/10

0,48/12

0,76/15

а

0,30 - 0,37

0,14 - 0,17

0,06 - 0,07

б

1,40 - 1,78

0,66 - 0,84

0,26 - 0,34

Следовательно, вариант "б" размещения оросителей более предпочтителен по расходу, так как при увеличении расхода примерно в 2,2 раза ширина водяной завесы возрастает в 5 раз (однако при этом давление необходимо увеличивать приблизительно в 4,7 раза).

Требуемую интенсивность орошения в любой зоне совместного действия нескольких оросителей определяют по формуле

                                                            (IV.2.19)

При межцентровом расстоянии 1 м < C < R в зоне совместного действия оказываются три оросителя (рис. IV.2.4), а при C = 1 м - четыре (рис. IV.2.5).

Рис. IV.2.4. Эпюры удельного расхода при орошении четырьмя оросителями общего назначения с концентричным орошением при 1 м< C < R

1, 2, 3, 4 - эпюры удельного расхода каждого из оросителей; 12, 23, 34, 123, 234 - эпюры удельного расхода при совместном действии оросителей соответственно 1 и 2; 2 и 3; 3 и 4; 1, 2 и 3; 2, 3 и 4; C - расстояние между оросителями; L = О1О4 - ширина завесы; R - радиус зоны орошения (со средней интенсивностью орошения i), внутри которой на длине L обеспечивается нормативное значение удельного расхода; О1, О2, О3, О4 - центры окружностей радиусом R

Рис. IV.2.5. Эпюры удельного расхода при орошении п оросителями общего назначения с концентричным орошением при C = 1 м:

1, 2, 3, ..., 4(n - 2), n - 1, n - эпюры удельного расхода каждого из оросителей; 12, 123 - эпюры удельного расхода при совместном действии оросителей соответственно 1 и 2; 1, 2 и 3; 1234, ..., 234(n - 2), ..., 4(n - 2)(n - 1)n - эпюры удельного расхода при совместном действии четырех оросителей; R - радиус зоны орошения (со средней интенсивностью орошения i), внутри которой на длине L обеспечивается нормативное значение удельного расхода; О1, О2, ...., Оn-1, Оn - центры окружностей радиусом R; I, II, ..., (N - l), N - зоны с различными значениями удельного расхода

Рассматривая орошаемую зону при расположении оросителей общего назначения через 1 м, можно отметить несколько зон с различными значениями удельного расхода (см. рис. IV.2.5):

- зона I - зона действия только крайнего левого оросителя О1 с переменным удельным расходом от 0 до q1;

- зона II - зона совместного действия двух оросителей О1 и О2 с переменным удельным расходом от q1 до q2, суммарный удельный расход возрастает почти в 2 раза;

- зона III - зона совместного действия трех оросителей О1, О2 и О3 с переменным удельным расходом от q2 до q3, суммарный удельный расход возрастает почти на ту же величину, что и в зоне II;

- зона IV - зона действия четырех оросителей О1 - О4 с переменным значением удельного расхода от q3 до q4.

При дальнейшем последовательном увеличении количества оросителей характер изменения расхода циклически повторяется аналогично зоне IV, в зонах N - 2, N - l и N характер изменения расхода аналогичен соответственно зонам III, II и I.

При нескольких последовательно расположенных оросителях n и C = 1 м зона их совместного действия с требуемым значением удельного расхода определяется из выражения 1 = (n - 2)C.

Нормативный удельный расход обеспечивается при q3. Для данной схемы интенсивность орошения каждого оросителя согласно (IV.2.19) должна составлять:

                                   (IV.2.20)

Расход каждого оросителя составляет q = (1,20÷1,35) л/с.

Следует отметить, что границы ширины водяной завесы с требуемым удельным расходом соответствуют центрам О2 и Оn-1 т.е. ширина водяной завесы L = О2Оn-1.

При расположении оросителей между собой на расстоянии 1 м интенсивность орошения в зонах взаимодействия их капельно-струйных потоков должна соответствовать данным, приведенным в табл. IV.2.2.

Таблица IV.2.2

Интенсивность орошения в зонах взаимодействия различного количества оросителей

Зона совместного взаимодействия оросителей

1 - 2

1 - 3

1 - 4

2 - 5

(N - 2) - N

(N - l) - N

Интенсивность орошения, л/(см2):

 

 

 

 

 

 

минимальная

0,134

0,092

0,077

0,077

0,092

0,134

максимальная

0,290

0,134

0,092

0,092

0,134

0,290

Примечание. N - последний в ряду ороситель.

Выбор конкретных оросителей должен осуществляться по их эпюрам орошения, соответствующим набору дискретных значений давления подачи и высоты установки.

3. НАСОСНЫЕ УСТАНОВКИ

Насосные установки выполняют роль основного водопитателя и предназначены для обеспечения водяных и пенных АУП необходимым давлением и расходом огнетушащего вещества.

По своему назначению насосные установки подразделяются на основные и вспомогательные.

Вспомогательные насосные установки используются как частный случай, например в спринклерных установках на период, пока срабатывают не более 2 - 3 оросителей, т.е. функционируют в течение времени, пока не требуется значительного расхода. В случае если пожар принимает угрожающие масштабы, то в работу включаются основные насосные агрегаты (в нормативной технической документации они часто упоминаются как основные пожарные насосы или пожарные насосы), обеспечивающие требуемый расход. В дренчерных АУП используются, как правило, только основные пожарные насосные установки.

Насосные установки состоят из насосных агрегатов, шкафа управления и системы обвязки гидравлическим и электромеханическим оборудованием.

Насосный агрегат состоит из привода, соединенного через передаточную муфту с насосом (или блоком насосов), и фундаментной плиты (или основания). В зависимости от требуемого расхода в АУП может использоваться один или несколько рабочих насосных агрегатов. Независимо от количества рабочих агрегатов в насосной установке должен быть предусмотрен один резервный насосный агрегат.

При использовании в АУП не более трех узлов управления насосные установки допускается проектировать с одним вводом и одним выходом, в остальных случаях - с двумя вводами и двумя выходами.

Принципиальная схема насосной установки с двумя насосами, одним вводом и одним выходом приведена на рис. IV.3.1; с двумя насосами, двумя вводами и двумя выходами - на рис. IV.3.2; с тремя насосами, двумя вводами и двумя выходами - на рис. IV.3.3.

Рис. IV.3.1. Схема обвязки пожарного насоса при одном вводе и одном выходе

Рис. IV.3.2. Схема обвязки двух пожарных насосов при двух вводах и двух выходах

Рис. IV.3.3. Схема обвязки трех пожарных насосов при двух вводах и двух выходах

Независимо от числа насосных агрегатов схема насосной установки должна обеспечивать подачу воды в подающий трубопровод АУП от любого ввода путем переключения соответствующих задвижек или затворов:

- напрямую через обводную линию, минуя насосные агрегаты;

- от любого насосного агрегата;

- от любой совокупности насосных агрегатов.

С целью обеспечения проведения регламентных или ремонтных работ насосных агрегатов без нарушения работоспособности АУП перед и после каждого насосного агрегата монтируются задвижки (затворы). Для исключения обратного перетока воды через насосные агрегаты или обводную линию на выходе насосов и обводной линии устанавливаются обратные клапаны, которые можно монтировать и за задвижкой (затвором). В этом случае при демонтаже задвижки (затвора) для ее ремонта не будет необходимости производить слив воды из подводящего трубопровода.

Насосные установки монтируются в обособленном здании или обособленном помещении, называемом насосной станцией (станцией пожаротушения). Общий вид насосной станции приведен на рис. IV.3.4. Во многих случаях в насосной станции монтируются узлы управления АУП. Размещение узлов управления в насосной станции представлено на рис. IV.3.5.

Рис. IV.3.4. Общий вид насосной станции

Рис. IV.3.5. Размещение узлов управления в насосной станции

Как правило, в АУП используются центробежные насосы. Подходящий тип насоса подбирают по характеристикам Q - H, имеющимся в каталогах. При этом учитываются следующие данные: требуемые напор и подача (по результатам гидравлического расчета сети), габаритные размеры насоса и взаимная ориентация всасывающих и напорных патрубков (это определяет условия компоновки), масса насоса.

Например, необходимо подобрать насос для спринклерной установки, схематически изображенной на рис. IV.3.6.

Общий расход спринклерной АУП составляет 30,2 м3/ч.

Рис. IV.3.6. Принципиальная схема водяной дренчерной (спринклерной) АУП:

1 - насос; 2 - распределительный трубопровод; 3 - питающий трубопровод; 4 - ороситель; 5 - узел управления; 6 - подводящий трубопровод

Требуемый напор, который должна обеспечить насосная установка, определяется по формуле

P = Po + Pz + Pm + Ps + Pyy + Pн - Pм,

где Po - давление у "диктующего" оросителя, МПа; Pz - давление, эквивалентное геометрической высоте "диктующего" оросителя, МПа; Pm - линейные потери давления в трубопроводе, МПа; Ps - местные потери давления в трубопроводе, МПа; Ps = 0,2 Pm; Pyy - потери давления в спринклерном узле управления, МПа; Pн - потери давления в насосной установке, МПа; Pм - давление подпора магистральной сети перед насосом, МПа.

Давление у наиболее удаленного и/или высоко расположенного оросителя Po = 0,20 МПа.

Давление, эквивалентное геометрической высоте "диктующего" оросителя, Pz = 6,5 м = 0,065 МПа.

Линейные потери давления в трубопроводе Pm = 0,145 МПа (в том числе до узла управления P'm = 0,04 МПа).

Местные потери давления в трубопроводе Ps = 0,029 МПа (в том числе до узла управления P's = 0,008 МПа).

Потери давления в спринклерном узле управления Pyy = 0,033 МПа.

Потери давления в насосной установке Pн = 0,065 МПа.

Давление подпора магистральной сети перед насосом Pм = 0,2 МПа.

Таким образом, давление подачи насоса с учетом давления подпора магистральной сети должно составлять не менее 0,537 МПа.

В соответствии с рабочими характеристиками (рис. IV.3.7) выбираем центробежный насос фирмы "GRUNDFOS" типа NK 40-200 (с числом оборотов n = 2900 об/мин).

Точка А на рис. IV.3.7 соответствует подаче насоса 30,2 м3/ч и напору 0,537 МПа. Поскольку эта точка лежит выше кривой, соответствующей диаметру рабочего колеса 198 мм, то приемлемо будет выбрать насос с диаметром рабочего колеса 209 мм. При расчетном расходе 30,2 м3/ч напор насоса этой конфигурации составит 0,55 МПа, а потребляемая мощность - 7 кВт.

Рис. IV.3.7. Рабочие характеристики насоса NK 40-200

Н - напор; Q - подача; Р - мощность; NPSH - высота столба жидкости под всасывающим патрубком насоса

Узел управления находится в насосной станции практически на одной геометрической высоте с насосом. Рабочее давление перед узлом управления с учетом давления подпора магистральной сети Pм и суммарных потерь давления от насоса до узла управления (P'm, P's и Pн) составляет 0,437 МПа.

При различных геометрических высотах расположения насоса и узла управления учитывается разница этих высот. Например, если узел управления находится на высоте 10 м над насосом, то напор насоса должен быть увеличен на 0,1 МПа.

Геометрическая высота отсчитывается от оси насоса до фланца задвижки (затвора) узла управления, установленной перед сигнальным клапаном.

Подбор электродвигателя для привода насоса проводится по каталогам в зависимости от необходимой мощности Nдв:

                                                                                     (IV.3.1)

где K - коэффициент запаса мощности, принимаемый по электротехническим справочникам; K = 1,1÷1,5; Q - расчетная подача насоса, м3/с; H - расчетный напор насоса, м; ηн - к.п.д. насоса при данных значениях Q и H; ηn - к.п.д. передачи (ηn = 1, если насос и двигатель на одном валу, ηn = 0,98 - при муфтовом соединении вала насоса и двигателя).

Фактическое значение к.п.д. насосного агрегата η в рабочей точке характеристики определяется по формуле

                                                                                        (IV.3.2)

где Q - подача в рабочей точке характеристики, м3/ч; P - напор в рабочей точке характеристики, МПа; Nдв - потребляемая насосом мощность в рабочей точке характеристики, кВт.

Продолжительность выхода насоса на рабочий режим τ на участке от насоса до "диктующего" оросителя для трубопровода одинакового диаметра в сухотрубных установках с достаточной для практических целей точностью может быть определена по формуле [1]:

                                                                                                 (IV.3.3)

                                                                                                  (IV.3.4)

где L - длина трубопровода от насоса до "диктующего" спринклерного оросителя; υ - скорость движения потока в трубопроводе, м/с; Q - расход воды в трубопроводе, м3/с; d - внутренний диаметр трубопровода, м.

Для трубопроводов переменного сечения в формулу (IV.3.4) подставляется среднее значение диаметра

                                                                                          (IV.3.5)

где Li, di - соответственно длина и диаметр участка трубопровода, м.

В настоящее время заводы-изготовители предлагают потребителям насосные агрегаты, т.е. насосы, укомплектованные электродвигателями.

Основными российскими производителями насосных агрегатов, которые применяются в водяных и пенных установках пожаротушения, являются ОАО "Ясногорский машзавод", ОАО "Электронасосный агрегат" (г. Щелково) и др.

Основные параметры насосных агрегатов отечественных и зарубежных производителей приведены в. приложении 6.

РАЗДЕЛ V. СОГЛАСОВАНИЕ И ОБЩИЕ ПРИНЦИПЫ ЭКСПЕРТИЗЫ ПРОЕКТОВ АУП

1. СОГЛАСОВАНИЕ ПРОЕКТОВ АУП С ОРГАНАМИ ГОСПОЖНАДЗОРА

1.1. Рассмотрение и согласование с органами Госпожнадзора отступлений от норм проектирования и проектных решений АУП, на которые отсутствуют нормы проектирования, должно осуществляться в порядке, установленном НПБ 03-93, при наличии рекомендаций или заключения специализированной научно-исследовательской организации по указанному отступлению.

1.2. С органами Государственного пожарного надзора согласовываются:

- проектные решения в проектно-сметной документации на строительство объектов, на которые отсутствуют нормы проектирования, утвержденные в установленном порядке;

- обоснованные отступления от противопожарных требований действующих норм проектирования;

- изменения ранее согласованных проектных решений, возникающие в процессе проектирования, строительства и эксплуатации объектов.

1.3. Право согласовывать проектно-сметную документацию в органах Государственного пожарного надзора предоставлено:

- Главному управлению Государственной противопожарной службы МЧС России (высший орган);

- Управлениям (отделам) Государственной противопожарной службы МЧС России;

- подразделениям и иным органам управления Государственной противопожарной службы (местные органы).

1.4. В компетенцию высшего органа Государственного пожарного надзора Российской Федерации входит согласование проектных решений, на которые отсутствуют нормы проектирования, и отступлений от норм проектирования в проектно-сметной документации объектов, сооружаемых по иностранным лицензиям, на основе соглашений и контрактов с иностранными фирмами в различных регионах страны.

1.5. В компетенцию территориальных органов Государственного пожарного надзора Российской Федерации входит согласование проектных решений, на которые отсутствуют нормы проектирования, отступлений от норм проектирования в проектах, разрабатываемых для соответствующей республики, края, области, автономного образования, города, а также в типовых проектах, разрабатываемых или распространяемых проектными организациями, расположенными на обслуживаемой территории.

1.6. Компетенция местных органов Государственного пожарного надзора Российской Федерации устанавливается территориальным органом Государственного пожарного надзора.

1.7. Рассмотрение вопросов, связанных с согласованием проектных решений, на которые отсутствуют нормы проектирования, отступлений от норм проектирования, органами Государственного пожарного надзора производится на основании представления заказчиком подготовленной генеральным проектировщиком необходимой документации (обоснований, расчетов, чертежей, схем и инженерно-технических и организационных мероприятий, направленных на обеспечение пожаробезопасной эксплуатации объекта и безопасности людей, в том числе дополнительных мероприятий, компенсирующих отступления от норм).

1.8. Согласование должно производиться до утверждения проектно-сметной документации.

1.9. Согласование с органами Государственного пожарного надзора производится в одной инстанции в срок до 15 дней. По проектам, на которые отсутствуют нормы проектирования или по которым требуется проработка отдельных технических вопросов с участием специалистов предприятий и учреждений, срок согласования по решению председателя экспертного совета может быть продлен до 30 дней.

1.10. По выявленным государственным инспектором отступлениям и нарушениям требований пожарной безопасности в проектно-сметной документации генеральному проектировщику (проектировщику) вручается предписание. При необходимости копия предписания для сведения направляется заказчику, генеральному подрядчику и в вышестоящий орган управления ГПС

Государственные инспекторы при рассмотрении проектной документации не должны делать какие-либо записи и ставить штампы на технической документации проекта. Заключение о соответствии представленной на рассмотрение проектной документации требованиям пожарной безопасности оформляется в письменном виде.

2. ОБЩИЕ ПРИНЦИПЫ ЭКСПЕРТИЗЫ ПРОЕКТОВ АУП

2.1. При экспертизе проектов или обследовании смонтированной АУП целесообразно использовать таблицу, в которую необходимо внести проверяемые технические решения по форме, представленной в табл. V.2.1.

Таблица V.2.1

Данные экспертизы соответствия принятых технических решений АУП нормативным документам

Проверяемое техническое решение

Предусмотрено проектом

Требуется по нормам (НПБ, ГОСТ, СНиП, ОСТ, рекомендациям и другим нормативным документам)

Вывод

 

 

 

 

2.2. При экспертизе проектных материалов для АУП проверке подлежат следующие позиции:

1) соответствие технического задания и технического проекта требованиям НПБ 88-2001, ГОСТ 12.3.046, ГОСТ 12.4.009, ГОСТ 12.4.026, ГОСТ 14202, ГОСТ Р 50680, ГОСТ Р 50800, СНиП 2.04.01-85*, СНиП 2.04.02-84*, РД 25.952-90, РД 25.953-90, рекомендациям Главного управления Государственной противопожарной службы (ГУГПС), ФГУ ВНИИПО и другим документам, утвержденным в установленном порядке;

2) соответствие принятой в задании на проектирование группы помещений по степени пожарной опасности требованиям НПБ 105-95. Проверку соответствия необходимо осуществлять по методам, изложенным в Пособии [34];

3) соответствие типа автоматического пуска установки особенностям пожарной опасности и объемно-планировочным решениям защищаемого помещения. Тросовый пуск или пуск от термочувствительных нитей целесообразен в небольших по объему помещениях (до 120 м3), в том числе с производствами категорий А и Б, в которых возможно быстрое нарастание температуры при пожаре. В пожаровзрывоопасных помещениях больших объемов с производствами категорий А и Б допускается только пневматический пуск, гидропуск или пуск от термочувствительных нитей (электропуск возможен, если пожарные извещатели имеют взрывозащищенное исполнение, а линии связи проложены в соответствии с требованиями ПУЭ). Если помещение характеризуется повышенной пожарной опасностью и возможностью быстрого объемного развития пожара, применяются системы с электрическим пуском. Во взрывоопасных помещениях больших объемов целесообразно применять пневмо- или гидропуск либо пуск от термочувствительных нитей. Эти виды пуска используются и в других помещениях, в которых для питания системы пуска отсутствуют резервные электрофидеры;

4) правильность выбора вида пожарной автоматики в зависимости от категории возможного пожара (УПС или АПС - при продолжительности свободного развития пожара τсв > 10 мин, АУП - при τсв10 мин);

5) правильность выбора типа установки для данного объекта в зависимости от характера развития возможного пожара, объемно-планировочных решений защищаемого помещения, категории по пожарной опасности, определяющего признака пожара и условий производственной среды (водозаполненная или воздушная спринклерная либо дренчерная, пенная поверхностного или объемного тушения);

6) соответствие расчетных показателей надежности для установки в целом (вероятности безотказного срабатывания, коэффициента готовности или оперативной готовности, коэффициента технического использования) нормативным значениям и требованиям, заданным в ТЗ;

7) соответствие инерционности установки особенностям пожарной опасности защищаемого помещения. В помещениях с производствами категорий А и Б должны использоваться установки со временем срабатывания не более 30 с; в помещениях с производством категории В допускается использовать установки со временем срабатывания до 3 мин;

8) наличие в спецификации АУП ЗИПов на узлы управления, насосные установки и т.п., а также резерва и запаса огнетушащего вещества;

9) соответствие исполнения узлов и элементов АУП (сигнальные клапаны с электроприводом и электрозатворы, сигнализаторы давления и потока жидкости, электроконтактные манометры и т.п.) категории производства;

10) соответствие требованиям ПУЭ проектных решений по устройству защитного заземления (зануления);

11) соответствие принятого в проекте огнетушащего средства и способа его подачи в защищаемое помещение характеру обращающихся в помещении горючих; совместимость воды, водных или пенных растворов и эффективность тушения горючих веществ, имеющихся в защищаемой зоне (например, спирты, ацетон и органические вещества тушатся пеной на основе специального пенообразователя; твердые, волокнистые и сыпучие материалы, химически не взаимодействующие с водой, - разбрызгиваемой водой или разбрызгиваемой водой со смачивателем; хлопок и другие волокнистые материалы - разбрызгиваемой водой со смачивателем);

12) соответствие размещения оросителей или генераторов пены конструктивно-планировочным решениям защищаемого помещения;

13) соответствие выбранных типов оросителей или генераторов пены расстоянию между ними, монтажному положению и требуемым нормам по интенсивности орошения или удельному расходу;

14) расчетное значение интенсивности орошения или удельного расхода в "диктующем" оросителе с картой орошения при соответствующем давлении, монтажном положении, высоте установки и расстоянии между оросителями или генераторами пены;

15) обеспечение равномерности распределения ОТВ (по объему, площади, высоте защищаемого объекта);

16) соответствие принятого количества огнетушащего средства заданным параметрам тушения (интенсивности орошения или удельному расходу и нормативному времени тушения); правильность предусмотренного запаса (резерва) огнетушащего средства: в установках пенного пожаротушения внутри зданий - 100 %-ный запас и резерв пенообразователя; в пенных установках для защиты резервуаров с углеводородным горючим - трехкратный запас пенообразователя; в водяных спринклерных и дренчерных установках, питающихся от резервуаров, запас воды принимают из условия подачи расчетного расхода в течение 30 - 60 мин (в зависимости от группы помещений по степени опасности развития пожара);

17) правильность трассировки трубопроводов для подачи огнетушащего средства, трубопроводов водяной или пневматической побудительной сети и электрических линий связи;

18) правильность выбора количества и условий размещения узлов управления и щитов управления;

19) правильность определения расчетного расхода воды или раствора пенообразователя, а также соответствие подачи и давления (напора) насоса расчетному расходу и требуемому давлению;

20) правильность расчета диаметров питающих и распределительных трубопроводов;

21) обеспечение выполнения команд и выдачи сигналов электроуправления в соответствии с требованиями ГОСТ 12.4.009 и НПБ 88-2001;

22) высота защищаемых помещений (не должна превышать 20 м);

23) соответствие типа спринклерной установки (водозаполненная или воздушная) температуре воздуха в защищаемом помещении;

24) соответствие выбранных огнетушащих средств особенностям развития пожара, обусловленным характером горения веществ, особенностям технологического процесса, конструктивного и объемно-планировочного решений помещения;

25) огнетушащее вещество, принятое для применения в АУП, должно:

- обладать эффективностью тушения горючих веществ, имеющихся на объекте (например, спирты, ацетон и органические вещества тушат пенным раствором на основе специального пенообразователя; твердые, волокнистые и сыпучие материалы, химически не взаимодействующие с водой, - водой или водой со смачивателями и т.д.);

- иметь совместимость с материалами и оборудованием (в том числе электрооборудованием) защищаемого объекта и быть безопасным для них;

- быть безопасным для персонала защищаемого объекта с учетом условий применения ОТВ и возможности эвакуации персонала;

- соответствовать требованиям охраны окружающей среды;

26) огнетушащие и физические свойства добавок к воде или пенообразователя, которые позволяют их хранить и обеспечивать эффективное применение в диапазоне температур эксплуатации объекта в течение срока службы соответствующего средства пожаротушения;

27) соответствие' расчетного времени подачи огнетушащих средств в очаг пожара нормативным значениям в зависимости от вида огнетушащего средства и характеристики защищаемого помещения. Нормативное время подачи воды при поверхностном тушении внутри зданий - 30 - 60 мин (в зависимости от степени опасности развития пожара), а пенного раствора при тушении резервуаров - 10 мин, при объемном тушении огнеопасных жидкостей - 15 мин, твердых материалов - 25 мин;

28) правильность гидравлического расчета установок проверяется по методам, описанным в разделе IV;

29) запланированный объем раствора пенообразователя в резервуарах (в установках с заранее приготовленным раствором) из условия обеспечения подачи расчетного расхода на один пожар в течение расчетного времени тушения;

30) соответствие метода тушения (объемный, поверхностный, локальный или комбинированный) особенностям технологии производства (при пожаре на нескольких аппаратах возможно локальное тушение или затопление пеной поверх аппаратов и т.п.), а также соответствие метода тушения объемно-планировочному решению защищаемого помещения (объемное тушение высокократной пеной - при объеме помещения до 3000 м3, кроме кабельных туннелей, для которых объем не должен превышать 1300 м3);

31) соответствие питания электрических приемников АУП 1-й категории по ПУЭ (от двух независимых фидеров);

32) количество насосов, которое не должно быть менее двух (один - рабочий, другой - резервный). В отдельных случаях по согласованию с надзорными органами ГПС допускается установка одного насоса с автоматическим пуском, а второго, дизельного, - с ручным пуском. Привод насосов должен осуществляться от электродвигателей. Каждый насос должен быть рассчитан на подачу полного расчетного расхода воды;

33) наличие автоматизации электроуправления насосной установкой: пуска рабочего насоса, пуска резервного насоса в случае отказа или невыхода на режим рабочего насоса, открытия запорной арматуры с электроприводом, переключения цепей управления с рабочего на резервный ввод (фидер), формирования командного импульса на отключение технологического оборудования (в случае необходимости);

34) наличие устройств автоматического отключения вентиляции и подачи предупредительных звуковых и световых сигналов для персонала защищаемого помещения при включении установок пенного объемного пожаротушения;

35) обеспечение взаимодействия пожарной автоматики с инженерным оборудованием объекта (отключение электропитания, обеспечение необходимого времени эвакуации, отключение вентиляции, закрытие заслонок и т.д.);

36) правильность мест прокладки электрических линий автоматизации АУП (во избежание их повреждения огнем до подачи средств тушения, в противном случае они должны быть защищены от повреждения огнем, например, посредством заключения в газовые трубы);

37) наличие устройств для автоматического отключения вентиляции и подачи предупредительных сигналов для персонала защищаемого помещения при включении установок пенного объемного пожаротушения;

38) правильность принятых решений по окраске трубопроводов, узлов и элементов установки:

- трубопроводов (подводящих и питающих) в дренчерных и водозаполненных спринклерных установках - в зеленый цвет;

- трубопроводов (подводящих и питающих) в спринклерных воздушных установках - в зеленый цвет до узла управления и синий - после него;

- водяных трубопроводов пенных установок - в зеленый цвет, растворопроводов - в коричневый;

- трубопроводов водяных побудительных систем - в зеленый цвет;

- пожарных насосов, емкостей, входящего в узлы управления комплектующего оборудования (сигнальные клапаны, затворы, задвижки, краны, сигнализаторы давления), сигнализаторов потока жидкости, дозирующих устройств, кнопок ручного пуска, щитов управления, сигнальных устройств и т.п., а также трубопроводов на участках, примыкающих к запорно-регулирующей аппаратуре, - в красный цвет;

- всех пневматических коммуникаций и емкостей под давлением (гидропневматические сосуды, трубы, баллоны, трубопроводы пневматических побудительных систем и т.п.) - в синий цвет;

39) наличие ручного дублирующего пуска - дистанционного и по месту расположения установок. Устройства ручного пуска размещают вне защищаемого помещения при объемном тушении и в безопасном месте защищаемого помещения в случае применения установок локального тушения;

40) правильность размещения помещения насосной станции - станции пожаротушения (как правило, самостоятельного помещения): встроенные помещения не связывают с пожаровзрывоопасными помещениями; наличие отдельного выхода наружу или лестничную клетку, имеющую выход наружу.

РАЗДЕЛ VI. НОРМАТИВНЫЕ ДОКУМЕНТЫ, ТРЕБОВАНИЯ КОТОРЫХ ПОДЛЕЖАТ УЧЕТУ ПРИ РАЗРАБОТКЕ ПРОЕКТА НА ВОДЯНЫЕ И ПЕННЫЕ УСТАНОВКИ ПОЖАРОТУШЕНИЯ

ППБ 01-93**. Правила пожарной безопасности в Российской Федерации.

НПБ 03-93. Порядок согласования органами Государственного пожарного надзора Российской Федерации проектно-сметной документации на строительство.

НПБ 04-93. Порядок государственного пожарного надзора за строительством объектов иностранными фирмами на территории Российской Федерации.

НПБ 59-97. Установки водяного и пенного пожаротушения. Пеносмесители пожарные и дозаторы. Номенклатура показателей. Общие технические требования. Методы испытаний.

НПБ 61-97. Пожарная техника. Установки пенного пожаротушения. Генераторы пены низкой кратности для подслойного тушения резервуаров. Общие технические требования. Методы испытаний.

НПБ 62-97. Установки водяного и пенного пожаротушения. Оповещатели пожарные звуковые гидравлические. Общие технические требования. Методы испытаний.

НПБ 63-97. Установки пенного пожаротушения автоматические. Дозаторы. Общие технические требования. Методы испытаний.

НПБ 68-98. Оросители водяные спринклерные для подвесных потолков. Огневые испытания.

НПБ 72-98. Извещатели пожарные пламени. Общие технические требования. Методы испытаний.

НПБ 80-99. Модульные установки пожаротушения тонкораспыленной водой автоматические. Общие технические требования. Методы испытаний.

НПБ 83-99. Установки водяного и пенного пожаротушения. Узлы управления. Общие технические требования. Методы испытаний.

НПБ 84-2000. Установки водяного и пенного пожаротушения роботизированные. Общие технические требования. Методы испытаний.

НПБ 87-2000. Установки водяного и пенного пожаротушения автоматические. Оросители. Общие технические требования. Методы испытаний.

НПБ 88-2001. Установки пожаротушения и сигнализации. Нормы и правила проектирования.

НПБ 104-95. Проектирование систем оповещения людей о пожаре в зданиях и сооружениях.

НПБ 105-95. Определение категорий помещений и зданий по взрывопожарной и пожарной опасности.

НПБ 110-99*. Перечень зданий, сооружений, помещений и оборудования, подлежащих защите автоматическими установками пожаротушения и автоматической пожарной сигнализацией.

НПБ 111-98*. Автозаправочные станции. Требования пожарной безопасности (с учетом изменений №1, 2, 3).

СНиП 2.01.02-85*. Противопожарные нормы.

СНиП 2.04.01-85*. Внутренний водопровод и канализация зданий.

СНиП 2.04.02-84*. Водоснабжение. Наружные сети и сооружения.

СНиП 2.04.05-91 Отопление, вентиляция и кондиционирование воздуха.

СНиП 2.08.01-89. Жилые здания.

СНиП 2.08.02-89*. Общественные здания и сооружения.

СНиП 2.09.02-85*. Производственные здания.

СНиП 2.11.01-85. Складские здания.

СНиП 2.11.03-93. Склады нефти и нефтепродуктов. Противопожарные нормы.

СНиП 3.01.04-87. Приемка в эксплуатацию законченных строительством объектов. Основные положения.

СНиП 3.05.04-85. Наружные сети и сооружения водоснабжения и канализации.

СНиП 3.05.05-84. Технологическое оборудование и технологические трубопроводы.

СНиП 3.05.06-85. Электротехнические устройства.

СНиП 3.05.07-85. Система автоматизации.

СНиП 10-01-94. Система нормативных документов в строительстве. Основные положения.

СНиП 11-01-95. Инструкция о порядке разработки, согласования, утверждения и составе проектной документации на строительство предприятий, зданий и сооружений.

СНиП 21-01-97. Пожарная безопасность зданий и сооружений.

СНиП 23-05-95. Естественное и искусственное освещение.

ВСН 25-09.67-85. Правила производства и приемки работ. Автоматические установки пожаротушения.

ВСН 25.09.67-85. Правила разработки проектов производства работ на монтаж автоматических установок пожаротушения и установок охранной, пожарной и охранно-пожарной сигнализации.

ВСН 116-87. Инструкция по проектированию линейно-кабельных сооружений связи.

МГСН 4.04-94. Многофункциональные здания и комплексы.

СН 478-80. Инструкция по проектированию и монтажу сетей водоснабжения и канализации из пластмассовых труб.

СН 550-82. Инструкция по проектированию технологических трубопроводов из пластмассовых труб.

СП 21-101-98. Система нормативных документов в строительстве. Свод правил. Обеспечение безопасности людей при пожаре.

СП 40-101-96. Проектирование и монтаж трубопроводов из полипропилена "рандом сополимер".

ГОСТ 2.101-68. ЕСКД. Виды изделий.

ГОСТ 2.102-68. ЕСКД. Виды и комплектность конструкторских документов.

ГОСТ 2.103-68. ЕСКД. Стадии разработки.

ГОСТ 2.105-95. ЕСКД. Общие требования к текстовым документам.

ГОСТ 2.106-96. ЕСКД. Текстовые документы.

ГОСТ 2.109-73. ЕСКД. Основные требования к чертежам.

ГОСТ 2.113-75. ЕСКД. Групповые и базовые конструкторские документы.

ГОСТ 2.114-95. ЕСКД. Технические условия.

ГОСТ 2.119-73. ЕСКД. Эскизный проект.

ГОСТ 2.301-68. ЕСКД. Форматы.

ГОСТ 2.302-68. ЕСКД. Масштабы.

ГОСТ 2.303-68. ЕСКД. Линии.

ГОСТ 2.304-81. ЕСКД. Шрифты чертежные.

ГОСТ 2.305-68. ЕСКД. Изображения - виды, разрезы, сечения.

ГОСТ 2.306-68. ЕСКД. Обозначения графические материалов и правила их нанесения на чертежах.

ГОСТ 2.307-68. ЕСКД. Нанесение размеров и предельных отклонений.

ГОСТ 2.308-79. ЕСКД. Указание на чертежах допусков форм и расположения поверхностей.

ГОСТ 2.309-73. ЕСКД. Обозначения шероховатости поверхностей.

ГОСТ 2.311-68. ЕСКД. Изображения резьбы.

ГОСТ 2.312-72. ЕСКД. Условные изображения и обозначения швов сварных соединений.

ГОСТ 2.313-82. ЕСКД. Условные изображения и обозначения неразъемных соединений.

ГОСТ 2.315-68. ЕСКД. Изображения упрощенные и условные крепежных деталей.

ГОСТ 2.316-68. ЕСКД. Правила нанесения на чертежах надписей, технических требований и таблиц.

ГОСТ 2.317-69. ЕСКД. Аксонометрические проекции.

ГОСТ 2.410-68. ЕСКД. Правила выполнения чертежей металлических конструкций.

ГОСТ 2.411-72. ЕСКД. Правила выполнения чертежей труб, трубопроводов и трубопроводных систем.

ГОСТ 2.601-95. ЕСКД. Эксплуатационные документы.

ГОСТ 2.602-95. ЕСКД. Ремонтные документы.

ГОСТ 2.603-68. ЕСКД. Внесение изменений в эксплуатационную и ремонтную документацию.

ГОСТ 2.701-84. ЕСКД. Схемы. Виды и типы. Общие требования к выполнению.

ГОСТ 2.702-75. ЕСКД. Правила выполнения электрических схем.

ГОСТ 2.709-89. ЕСКД. Обозначения условные проводов и контактных соединений электрических элементов, оборудования и участков цепей в электрических схемах.

ГОСТ 2.710-81. ЕСКД. Обозначения буквенно-цифровые в электрических схемах.

ГОСТ 2.721-74. ЕСКД. Обозначения условные графические в схемах. Обозначения общего применения.

ГОСТ 2.722-68. ЕСКД. Обозначения условные графические в схемах. Машины электрические.

ГОСТ 2.725-68. ЕСКД. Обозначения условные графические в схемах. Устройства коммутирующие.

ГОСТ 2.729-68. ЕСКД. Обозначения условные графические в схемах. Приборы электроизмерительные.

ГОСТ 2.747-68. ЕСКД. Обозначения условные графические в схемах. Размеры условных графических обозначений.

ГОСТ 2.755-87. ЕСКД. Обозначения условные графические в электрических схемах. Устройства коммуникационные и контактные соединения.

ГОСТ 2.782-96. ЕСКД. Обозначения условные графические. Машины гидравлические и пневматические.

ГОСТ 2.784-96. ЕСКД. Обозначения условные графические. Элементы трубопроводов.

ГОСТ 2.785-70. ЕСКД. Обозначения условные графические. Арматура трубопроводная.

ГОСТ 9.032-74. ЕСЗКС. Покрытия лакокрасочные. Группы, технические требования и обозначения.

ГОСТ 9.104-79*. ЕСЗКС. Покрытия лакокрасочные. Группы условий эксплуатации.

ГОСТ 9.301-86. ЕСЗКС. Покрытия металлические и неметаллические неорганические. Общие требования.

ГОСТ 9.303-84. ЕСЗКС. Покрытия металлические и неметаллические неорганические. Общие требования к выбору.

ГОСТ 12.1.004-91. ССБТ. Пожарная безопасность. Общие требования.

ГОСТ 12.1.005-88. ССБТ. Общие санитарно-гигиенические требования к воздуху рабочей зоны.

ГОСТ 12.1.007-76. ССБТ. Вредные вещества. Классификация и общие требования безопасности.

ГОСТ 12.1.009-76. ССБТ. Электробезопасность. Термины и определения.

ГОСТ 12.1.012-90. ССБТ. Вибрационная безопасность. Общие требования.

ГОСТ 12.1.019-79. ССБТ. Электробезопасность. Общие требования и номенклатура видов защиты.

ГОСТ 12.1.030-81. ССБТ. Электробезопасность. Защитное заземление, зануление.

ГОСТ 12.1.044-89. ССБТ. Пожаровзрывоопасность веществ и материалов. Номенклатура показателей и методы их определения.

ГОСТ 12.1.114-82. ССБТ. Пожарные машины и оборудование. Обозначения условные графические.

ГОСТ 12.2.003-91. ССБТ. Оборудование производственное. Общие требования безопасности.

ГОСТ 12.2.007.0-75. ССБТ. Изделия электротехнические. Общие требования безопасности.

ГОСТ 12.2.037-78. ССБТ. Техника пожарная. Требования безопасности.

ГОСТ 12.2.047-86. ССБТ. Пожарная техника. Термины и определения.

ГОСТ 12.2.063-81. ССБТ. Арматура промышленная трубопроводная. Общие требования безопасности.

ГОСТ 12.2.085-82. ССБТ. Сосуды, работающие под давлением. Клапаны предохранительные. Требования безопасности.

ГОСТ 12.3.046-91. ССБТ. Установки пожаротушения автоматические. Общие технические требования.

ГОСТ 12.4.009-83*. ССБТ. Пожарная техника для защиты объектов. Основные виды. Размещение и обслуживание.

ГОСТ 12.4.026-76. ССБТ. Цвета сигнальные и знаки безопасности.

ГОСТ 21.101-97. СПДС. Основные требования к проектной и рабочей документации.

ГОСТ 21.110-95. СПДС. Правила выполнения спецификаций оборудования, изделий и материалов.

ГОСТ 21.114-95. СПДС. Правила выполнения эскизных чертежей общих видов нетиповых изделий.

ГОСТ 21.203-78. СПДС. Правила учета и хранения подлинников проектной документации.

ГОСТ 21.204-93. СПДС. Условные графические обозначения и изображения элементов генеральных планов и сооружений транспорта.

ГОСТ 21.206-93. СПДС. Условные обозначения трубопроводов.

ГОСТ 21.401-88. СПДС. Технология производства. Основные требования к рабочим чертежам.

ГОСТ 21.403-80. СПДС. Обозначения условные графические в схемах. Оборудование энергетическое.

ГОСТ 21.404-85. СПДС. Автоматизация технологических процессов. Обозначения условные приборов и средств автоматизации в схемах.

ГОСТ 21.501-93. СПДС. Правила выполнения архитектурно-строительных рабочих чертежей.

ГОСТ 21.601-79. СПДС. Водопровод и канализация. Рабочие чертежи.

ГОСТ 21.604-82. СПДС. Водоснабжение и канализация. Наружные сети. Рабочие чертежи.

ГОСТ 21.608-84. СПДС. Внутреннее электрическое освещение. Рабочие чертежи.

ГОСТ 21.613-88. СПДС. Силовое электрооборудование. Рабочие чертежи.

ГОСТ 21.614-88. СПДС. Изображения условные графические электрооборудования и проводок на планах.

ГОСТ 27.002-89. Надежность в технике. Основные понятия. Термины и определения.

ГОСТ 356-80. Арматура и детали трубопроводов. Давления условные пробные и рабочие. Ряды.

ГОСТ 926-82. Эмаль ПФ-133. Технические условия.

ГОСТ 2405-88. Манометры, вакуумметры, мановакуумметры, напоромеры, тягомеры и тягонапоромеры. Общие технические условия.

ГОСТ 3262-75. Трубы стальные водогазопроводные. Технические условия.

ГОСТ 6134-87. Насосы динамические. Методы испытаний.

ГОСТ 6211-81. Основные нормы взаимозаменяемости. Резьба трубная коническая.

ГОСТ 6357-81. Основные нормы взаимозаменяемости. Резьба трубная цилиндрическая.

ГОСТ 6465-76. Эмали ПФ-115. Технические условия.

ГОСТ 6527-68. Концы муфтовые с трубной цилиндрической резьбой. Размеры.

ГОСТ 8732-78. Трубы стальные бесшовные горячедеформированные. Сортамент.

ГОСТ 8734-75. Трубы стальные бесшовные холодно-деформированные. Сортамент.

ГОСТ 10704-91*. Трубы стальные электросварные прямошовные. Сортамент.

ГОСТ 12521-89. Затворы дисковые. Основные параметры.

ГОСТ 12815-80. Фланцы арматуры, соединительных частей и трубопроводов на Ру от 0,1 до 20,0 МПа (от 1 до 200 кгс/см2). Типы. Присоединительные размеры и размеры уплотнительных поверхностей.

ГОСТ 14202-69. Трубопроводы промышленных предприятий. Опознавательная окраска, предупреждающие знаки и маркировочные щитки.

ГОСТ 14254-96. Степени защиты, обеспечиваемые оболочками (код IP).

ГОСТ 15150-69. Машины, приборы и другие технические изделия. Исполнения для различных климатических районов. Категории, условия эксплуатации, хранения и транспортирования в части воздействия климатических факторов внешней среды.

ГОСТ 16093-81. Основные нормы взаимозаменяемости. Резьба метрическая. Допуски. Посадки с зазором.

ГОСТ 17335-79. Насосы объемные. Правила приемки и методы испытаний.

ГОСТ 21130-75. Изделия электротехнические. Зажимы заземляющие и знаки заземления. Конструкция и размеры.

ГОСТ 21752-76. Система "человек-машина". Маховики управления и штурвалы. Общие эргономические требования.

ГОСТ 21753-76. Система "человек-машина". Рычаги управления. Общие эргономические требования.

ГОСТ 23852-79. Покрытия лакокрасочные. Общие требования к выбору по декоративным свойствам.

ГОСТ 24193-80. Хомуты накидные. Конструкция.

ГОСТ 24705-81. Основные нормы взаимозаменяемости. Резьба метрическая. Основные размеры.

ГОСТ 24856-81. Арматура трубопроводная промышленная. Термины и определения.

ГОСТ 26070-83. Фильтры и сепараторы для жидкостей. Термины и определения.

ГОСТ 27331-87. Пожарная техника. Классификация пожаров.

ГОСТ 28130-89. Пожарная техника. Огнетушители, установки пожаротушения и пожарной сигнализации. Обозначения условные графические.

ГОСТ Р 50073-92. Соединения трубопроводов разъемные фланцевые. Технические условия.

ГОСТ Р 50408-92. Пеносмесители. Технические условия.

ГОСТ Р 50409-92. Генераторы пены средней кратности. Технические условия.

ГОСТ Р 50588-93. Пенообразователи для тушения пожаров. Общие технические требования и методы испытаний.

ГОСТ Р 50680-94. Установки водяного пожаротушения автоматические. Общие технические требования. Методы испытаний.

ГОСТ Р 50800-95. Установки пенного пожаротушения автоматические. Общие технические требования. Методы испытаний.

ГОСТ Р 51043-97. Установки водяного и пенного пожаротушения автоматические. Оросители спринклерные и дренчерные. Общие технические требования. Методы испытаний.

ГОСТ Р 51043-2002. Установки водяного и пенного пожаротушения автоматические. Оросители спринклерные и дренчерные. Общие технические требования. Методы испытаний.

ГОСТ Р 51052-97. Установки водяного и пенного пожаротушения автоматические. Клапаны узлов управления. Общие технические требования. Методы испытаний.

ГОСТ Р 51052-2002. Установки водяного и пенного пожаротушения автоматические. Узлы управления. Общие технические требования. Методы испытаний.

ГОСТ Р 51737-01. Муфты трубопроводные разъемные.

РД 009-01-96. Система руководящих документов по пожарной автоматике. Установки пожарной автоматики. Правила технического содержания.

РД 25.952-90. Системы автоматические пожаротушения, охранной и охранно-пожарной сигнализации. Порядок разработки задания на проектирование.

РД 25.953-90. Системы автоматического пожаротушения, пожарной, охранной и охранно-пожарной сигнализации. Обозначения условные графические элементов связи.

ОСТ 5.50005-83. Система водяного пожаротушения. Правила и нормы проектирования.

ОСТ 25 1241-86. Установки автоматические пожаротушения, охранной и охранно-пожарной сигнализации. Рабочие чертежи.

ОСТ 25 1282-87. Установки охраны и охранно-пожарной сигнализации автоматические. Требования к содержанию, согласованию и утверждению задания на проектирование.

ПУЭ-98. Правила устройства электроустановок.

ПБ 10-115-96. Правила устройства и безопасной эксплуатации сосудов, работающих под давлением.

Правила технической эксплуатации электроустановок потребителей. - Госэнергонадзор, Энергосервис. - М., 1997. - 285 с.

Правила техники безопасности при эксплуатации электроустановок потребителей. - Госэнергонадзор, Энергосервис. - М., 1998. - 140 с.

СПДС. Правила оформления внесения изменений в рабочую документацию.

ВЭН-45-74. Инструкция по техническому обслуживанию водопитателей автоматических систем пожаротушения.

ISO 6182-1. Противопожарная защита. Спринклерные установки. Часть 1: Требования и методы испытания оросителей.

ISO 6182-7. Противопожарная защита. Спринклерные установки. Часть 7: Требования и методы испытания быстродействующих оросителей для предупреждения взрывов.

ISO 6182-9. Противопожарная защита. Спринклерные установки. Часть 9: Распылители.

ISO 6182-10. Противопожарная защита. Спринклерные установки. Часть 10: Требования и методы испытания оросителей для жилых помещений.

ISO 6182-13. Противопожарная защита. Спринклерные установки. Часть 13: Требования и методы испытания оросителей с повышенной площадью орошения.

ISO 6790. Средства пожарной защиты и борьбы с огнем. Условные графические обозначения для планов пожарной защиты. Технические условия.

ЛИТЕРАТУРА

1. Автоматизированная информационно-справочная система по требованиям пожарной безопасности в строительстве / "Библиотека ПБ". Компакт-диск. ФГУ ВНИИПО МЧС РФ.

2. Баратов Л.Н., Иванов Е.Н. Пожаротушение на предприятиях химической и нефтеперерабатывающей промышленности. - М.: Химия, 1979. - 368 с.

3. Бубырь Н.Ф., Бабуров В.П., Мангасаров, В. И. Пожарная автоматика. - М.: Стройиздат, 1984. - 209 с.

4. Бубырь Н.Ф., Бабуров В.П., Потапов В.А. Производственная и пожарная автоматика. Часть II. ВИПТШ. - М., 1986. - 294 с.

5. Веселов А.И., Мешман Л.M. Автоматическая пожаро- и взрывозащита предприятий химической и нефтехимической промышленности. - М.: Химия, 1975. - 280 с.

6. Вешников В.Б. и др. Применение роботов вертикального перемещения в противопожарных операциях. Препринт № 469. ИПМ АН СССР. - М., 1990. - 44 с.

7. Выбор типа автоматических установок пожаротушения. Рекомендации. ВНИИПО МВД СССР. - М., 1991. - 110 с.

8. Гидравлика и противопожарное водоснабжение. / Под ред. Ю.А. Кошмарова. ВИПТШ МВД СССР. - М., 1985. - 383 с.

9. Дополнения и изменения к каталогу "Лопастные и роторные насосы". - Орел: Труд, 1997. - 22 с.

10. Иванов Е.Н. Противопожарное водоснабжение. - М.: Стройиздат, 1986. - 316 с.

11. Использование оросителей общего назначения для создания водяных завес. / Л.М. Мешман, С.Г. Цариченко, В.В. Алешин и др. И Пожарная безопасность. - 2001. - № 3. - С. 90 - 96.

12. Каталог насосного оборудования. Часть I: Россия и СНГ. Гидромашсервис. - 48 с.

13. Каталог насосов 2000 - 2003. ОАО "Ясногорский машзавод". - Ясногорск, 2002. - 71 с.

14. Корольченко А.Я. Пожаровзрывоопасность веществ и материалов и средства их тушения. Справочник в 2-х томах. Ассоциация "Пожнаука". - М., 2000. - Т.1 - 709 с, т. 2 - 757 с.

15. Лопастные и роторные насосы. Каталог АО "Ливгидромаш". - Орел: Труд, 1995. - 85 с.

16. Мешман Л.М. и др. Пожарная робототехника: состояние и перспективы использования. Обзорная информация. - Вып. 7. ВНИИПО МВД РФ. - М., 1992. - 81 с.

17. Мешман Л.М., Верещагин С.Н. Современная пожарная робототехника. Обзорная информация. Вып. 1/88. ГИЦ МВД СССР. - М., 1988. - 40 с.

18. Многоступенчатые центробежные насосы CR, CRN, CRT, CV, CPV, CHV, CH, CHI. Каталог фирмы "Grundfos". - 172 с. (русск.).

19. Насосы с сухим ротором: ТР серии 100, ТР и TPD серии 200, LM LP, LMD, LPD, CLM, CDM, DNM, DNP, NK. Каталог фирмы "Grundfos". - 180 с. (русск.).

20. Необходимость совершенствования нормативной базы в области оросителей АУП /Л.М. Мешман, С. Г. Цариченко, В.В. Алешин и др. // Пожарная безопасность. - 2001. - № 3. - С. 80 - 89.

21. Номенклатурный перечень производства насосов 2002 - 2003. ОАО "Электронасосный агрегат". - Щелково, 2001. - 28 с.

22. Общий обзор производственной программы. Насосы и насосные установки для инженерного обеспечения зданий, водоснабжения, промышленности, защиты окружающей среды. Проспект фирмы "Grundfos". - 12 с. (русск.).

23. Определение области применения автоматических установок пожарной сигнализации и пожаротушения. Рекомендации. ВНИИПО МВД СССР. - М., 1987. - 17 с.

24. Определение области применения автоматических установок пожаротушения и пожарной сигнализации для складских зданий и помещений системы Госснаба СССР. Методические рекомендации. ВНИИПО МВД СССР. - М., 1985. - С. 5.

25. Определение экономической эффективности применения автоматических установок пожаротушения. Временные методические рекомендации. ВНИИПО МВД СССР. - М., 1989. - 128 с.

26. Оросители водяных и пенных автоматических установок пожаротушения. Учебно-методическое пособие. / Л.М. Мешман, С.Г. Цариченко, В.А. Былинкин и др. Под общ. ред. Я.Л. Копылова. ВНИИПО МЧС РФ. - М., 2002. - 315 с.

27. Оросители общего назначения водяных АУП. Ч.1 // Пожаровзрывобезопасность. - 2001. - № 1. - С. 18- 35.

28. Оросители общего назначения водяных АУП. Ч.2 / Л.М. Мешман, С. Г. Цариченко, В. В. Алешин и др. // Пожаровзрывобезопасность. - 2001. - № 2. - С. 65 - 75.

29. Пенообразователи для пожаротушения 2002 - 2003. Проспект. ОАО "Ивхимпром", г. Иваново. - 9 с.

30. Перечень продукции, подлежащей обязательной сертификации в области пожарной безопасности в Российской Федерации. ВНИИПО МЧС России. - М., 2002. - 46 с.

31. Пешков В.В. Порядок применения пенообразователей для тушения пожаров. ВНИИПО МВД РФ. - М., 1996. - 28 с.

32. Пожарная автоматика. / Н.Ф. Бубырь, А.Ф. Иванов, В.П. Бабуров и др. ВИПТШ МВД СССР. - М., 1977. - 296 с.

33. Пожаровзрывоопасность веществ и материалов и средства их тушения. Справочное издание в 2-х кн. / А.Н. Баратов, А.Я. Корольченко, Г.Н. Кравчук и др. - М.: Химия, 1990. - Т.1 - 496 с, т. 2 - 384 с.

34. Пособие по применению НПБ 105-95 "Определение категорий помещений и зданий по взрывопожарной и пожарной опасности" при рассмотрении проектно-сметной документации. ВНИИПО МВД РФ. - М., 1998. - 119 с.

35. Практическое пособие по применению справочника базовых цен на проектные работы для строительства. Системы противопожарной и охранной защиты. - М.: Госстрой России, 1999. - 11 с.

36. Приложение к номенклатурному перечню производства насосов. Раздел 1: Насосы для водотеплоснабжения и коммунального хозяйства. ОАО "Электронасосный агрегат". - Щелково, 2001. - 30 с.

37. Проектирование автоматических установок пожаротушения в высотных стеллажных складах. Рекомендации. ВНИИПО МВД СССР. - М., 1987. - 24 с.

38. Расчет необходимого времени эвакуации людей из помещений при пожаре. Рекомендации. ВНИИПО МВД СССР. - М., 1989. - 22 с.

39. Рекомендации по определению расчетных расходов воды для спринклерных систем. ЦНИИПО МООП РСФСР. - М., 1965. - 14 с.

40. Роботизированные пожарные лафетные стволы. / С.Г. Цариченко, Л.М. Мешман, В.В. Алешин и др. // Пожарная безопасность. - 2000. - № 4. - С. 135 - 141.

41. Собурь СВ. Установки пожаротушения автоматические. / Справочник. - М.: Спецтехника, 2001. - 352 с.

42. Современные средства обеспечения пожарной безопасности и ведения аварийно-спасательных работ. Каталог. - М.: ЗАО "Бизон-95", 1998. - 288 с.

43. Справочник базовых цен на проектные работы для строительства. Системы противопожарной и охранной защиты. - М: Госстрой России, 1999.

44. Стандартный автоматический спринклер S 15. Проспект фирмы "Spraysafe". -2 с. (русск.).

45. Тепловые замки. Ч.1 / Л.М. Мешман, С.Г. Цариченко, В.В. Алешин и др. // Пожаровзрывобезопасность. - 2001. - № 4. - С. 38 - 46.

46. Тепловые замки. Ч.2 / Л.М. Мешман, С.Г. Цариченко, В.В. Алешин и др. // Пожаровзрывобезопасность. -2001. - № 5. - С. 50 - 61.

47. Центробежные консольные насосы общего назначения для воды. Каталог. ЦИНТИХИМНЕФТЕМАШ. - М., 1989. - 25 с.

48. Saer Elettropompe in the world. Проспект фирмы "Saer Elettropompe". - 12 p. (Ital.).

ПРИЛОЖЕНИЕ 1

ТЕРМИНЫ И ОПРЕДЕЛЕНИЯ ПРИМЕНИТЕЛЬНО К ВОДЯНЫМ И ПЕННЫМ АУП

Автоматизированная установка пожаротушения - см. Установка пожаротушения автоматизированная.

Автоматический водопитатель - см. Водопитатель автоматический.

Автоматическая установка пожаротушения - см. Установка пожаротушения автоматическая.

Автоматический пожарный извещатель - см. Извещатель пожарный автоматический.

Автономная установка пожаротушения - см. Установка пожаротушения автономная.

Агрегат насосный - агрегат, состоящий из насоса или нескольких насосов и приводящего двигателя, соединенных между собой.

Акселератор - устройство, обеспечивающее при срабатывании оросителя сокращение времени срабатывания спринклерного воздушного сигнального клапана.

Бак гидравлический (гидробак) - герметичный сосуд, заполненный водой или водным раствором.

Бак гидропневматический (гидропневмобак) - герметичный сосуд, частично заполненный водой или водным раствором и находящийся под избыточным давлением сжатого воздуха.

Бак пневматический (пневмобак) - герметичный сосуд, находящийся под избыточным давлением воздуха.

Ветвь - участок распределительного трубопровода с установленными на нем оросителями (насадками, распылителями), начинающимися от питающего трубопровода.

Вещество огнетушащее - вещество, обладающее физико-химическими свойствами, позволяющими создать условия для прекращения горения.

Винтовой ороситель - см. Ороситель винтовой.

Включение (пуск) водяной или пенной установки местное - ручное включение (пуск) от пусковых элементов, устанавливаемых в помещении насосной станции или непосредственно вблизи узла управления.

Водовоздушная спринклерная установка пожаротушения - см. Установка пожаротушения спринклерная водовоздушная.

Водопитатель автоматический - водопитатель, автоматически обеспечивающий расчетное давление в питающих и распределительных трубопроводах установок водяного и пенного пожаротушения, необходимое для срабатывания узлов управления, а также для восполнения незначительных утечек из гидравлической системы АУП в процессе ее длительной эксплуатации.

Водопитатель вспомогательный - водопитатель, автоматически обеспечивающий давление в трубопроводах, необходимое для срабатывания узлов управления, а также расчетные расход и напор воды и/или водного раствора до выхода на рабочий режим основного водопитателя.

Водопитатель основной - водопитатель, обеспечивающий работу установки пожаротушения с расчетным расходом и давлением воды и/или водного раствора в течение установленного времени.

Водяная завеса - см. Завеса водяная.

Время срабатывания номинальное - нормативное значение времени срабатывания спринклерного оросителя и оросителя с внешним приводом, указанное в настоящем стандарте или в ТД на данный вид изделия.

Время срабатывания спринклерного оросителя статическое условное (условное время срабатывания) - время с момента помещения спринклерного оросителя в термостат с температурой, превышающей номинальную температуру срабатывания на 30°С, до срабатывания теплового замка спринклерного оросителя.

Время срабатывания установки - время с момента принятия установкой фактора пожара до момента начала истечения огнетушащего вещества из самого удаленного и высоко расположенного оросителя установки.

Вспомогательный водопитатель - см. Питатель вспомогательный.

Гидравлический бак - см. Бак гидравлический (гидробак).

Гидропневматическая установка - см. Установка гидропневматическая.

Гидропневматический бак - см. Бак гидропневматический (гидропневмобак).

Гидроускоритель - устройство, обеспечивающее сокращение времени срабатывания дренчерного сигнального клапана с гидроприводом.

Глубина завесы - перпендикулярная ширине завесы протяженность защищаемой площади, в пределах которой обеспечивается заданное значение расхода на 1 м (по ТД на данный вид оросителя).

Дежурный режим - см. Режим дежурный.

Диафрагменный (каскадный) ороситель - см. Ороситель диафрагменный (каскадный).

Дистанционный пуск установки - см. Пуск установки дистанционный.

Дозатор - устройство, предназначенное для дозирования пенообразователя (добавок к воде) в установках пожаротушения.

Дренажный клапан - см. Клапан дренажный.

Дренчерная установка пожаротушения - см. Установка пожаротушения дренчерная.

Дренчерный ороситель - см. Ороситель дренчерный.

Завеса водяная - поток воды или ее растворов, препятствующий распространению через него пожара и/или способствующий предупреждению прогрева технологического оборудования до предельно допустимых температур.

Завеса контактная - поток, направленный оросителем непосредственно на преграду, с которой жидкость в раздробленном (капельном или струйном) виде падает вниз под действием гравитационных сил в атмосфере окружающей среды, и обеспечивающий условия, неприемлемые для распространения через него пожара.

Завеса объемная - пленочный, капельный или струйный поток, направленный оросителем непосредственно на вертикальную плоскость защищаемого пространства, обеспечивающий условия, неприемлемые для распространения пожара.

Завеса поверхностная - поток, направленный оросителем непосредственно на преграду, по которой жидкость в раздробленном (капельном или струйном) либо пленочном виде стекает вниз под действием гравитационных сил по защищаемой поверхности, и способствующий предупреждению прогрева технологического оборудования до предельно допустимых температур.

Завеса пространственная (обминая) - пленочный, капельный или струйный поток, направленный оросителем непосредственно по вертикальной плоскости защищаемого пространства, обеспечивающий условия, неприемлемые для распространения через него пожара.

Замок тепловой - устройство, состоящее из термочувствительного элемента, удерживающего запорный орган спринклерного оросителя, и срабатывающее при достижении температуры, равной температуре срабатывания термочувствительного элемента.

Запас огнетушащего вещества - требуемое количество огнетушащего вещества, хранящееся на объекте в целях оперативного восстановления расчетного количества и резерва огнетушащего вещества.

Запорно-пусковое устройство - см. Устройство запорно-пусковое.

Защищаемая площадь орошения - см. Площадь орошения защищаемая.

Зона защищаемая - участок площади, объем помещения или оборудования, на (в) который подается огнетушащее вещество с расчетными параметрами.

Извещатель пожарный - устройство для формирования извещения о пожаре.

Извещатель пожарный автоматический - пожарный извещатель, реагирующий на факторы, сопутствующие пожару.

Импульсное устройство - см. Устройство импульсное.

Импульс управляющий - воздействие, оказываемое одной составной частью установки на другую для побуждения последней к выполнению заданной функции.

Инерционность установки - время с момента достижения контролируемым фактором пожара порога срабатывания чувствительного элемента до момента начала истечения огнетушащего вещества из самого удаленного и высоко расположенного оросителя установки.

Примечание. Для установок пожаротушения, в которых предусмотрена задержка огнетушащего вещества при эвакуации людей из защищаемого помещения и остановка технологического оборудования, это время не входит в их инерционность.

Интенсивность орошения огнетушащим веществом - количество (масса) огнетушащего вещества, подаваемое на единицу площади (объема) в единицу времени.

Интенсивность подачи огнетушащего вещества нормативная - интенсивность подачи огнетушащего вещества, установленная в нормативной документации.

Камера задержки - устройство, установленное на линии сигнализатора давления и предназначенное для сведения к минимуму вероятности подачи ложных сигналов тревоги, вызываемых приоткрыванием сигнального клапана вследствие резких колебаний давления источника водоснабжения.

Клапан дренажный - нормально открытое запорное устройство, автоматически перекрывающее дренажную линию при срабатывании сигнального клапана.

Клапан сигнально-пусковой (сигнальный клапан) - нормально закрытое запорное устройство, предназначенное для пуска огнетушащего вещества при срабатывании оросителя или пожарного извещателя и выдачи командного импульса.

Компенсатор - устройство с фиксированным отверстием, предназначенное для сведения к минимуму вероятности ложных срабатываний сигнального клапана, вызываемых утечками в питающем и/или распределительном трубопроводах.

Контактная завеса - см. Завеса контактная.

Коэффициент производительности - относительная величина, характеризующая пропускную способность оросителя по подаче огнетушащих веществ (ОТВ).

Линия соединительная - провод и кабель, обеспечивающие соединение между компонентами системы пожарной сигнализации.

Лопаточный ороситель - см. Ороситель лопаточный.

Местное включение (пуск) водяной или пенной установки - см. Включение (пуск) водяной или пенной установки местное.

Местный пуск установки - см. Пуск установки местный.

Модуль пожаротушения - устройство, в корпусе которого совмещены функции хранения и подачи огнетушащего вещества при воздействии пускового импульса на привод модуля.

Насадок - устройство для выпуска и распределения огнетушащего вещества.

Насос - машина для создания потока жидкой среды.

Насосная установка - см. Установка насосная.

Насосный агрегат - см. Агрегат насосный.

Номинальная температура срабатывания - см. Температура срабатывания номинальная.

Номинальное время срабатывания - см. Время срабатывания номинальное.

Нормативная интенсивность подачи - см. Интенсивность подачи нормативная.

Объемная завеса - см. Завеса объемная.

Огнетушащее вещество - см. Вещество огнетушащее.

Оповещатель пожарный - устройство, не входящее в состав приемно-контрольного прибора и предназначенное для выдачи сигналов, предупреждающих о пожаре, например звуковых или световых.

Ороситель - устройство, предназначенное для тушения, локализации или блокирования пожара путем разбрызгивания или распыления воды и/или водных растворов.

Ороситель винтовой - ороситель, у которого формирование струи распыленной воды осуществляется по поверхности конической винтовой спирали.

Ороситель диафрагменный (каскадный) - ороситель, у которого формирование струи распыленной воды осуществляется по поверхности цилиндрических колец, убывающих по диаметру по мере удаления от отверстия корпуса-штуцера.

Ороситель двустороннего направления потока - ороситель, формирующий неконцентричный поток воды или водного раствора по двум направлениям.

Ороситель для водяной завесы - ороситель, предназначенный для локализации пожара путем создания водяных завес.

Ороситель для жилых домов - ороситель, предназначенный для тушения пожаров в жилом секторе.

Ороситель для пневмо- и массопроводов - ороситель, предназначенный для предотвращения распространения пожара по пневмо-, массокоммуникациям.

Ороситель для подвесных потолков и стеновых панелей - ороситель общего назначения, монтируемый в подвесных потолках или стеновых панелях.

Ороситель для предупреждения взрывов - ороситель, предназначенный для предотвращения возможности возникновения взрывоопасной ситуации.

Ороситель для стеллажных складов - ороситель, предназначенный для тушения пожаров во внутристеллажном пространстве.

Ороситель дренчерный - ороситель с открытым выходным отверстием.

Ороситель лопаточный - ороситель, у которого поток воды из корпуса-штуцера изменяет направление под определенным углом (чаще всего 90°) по лопатке, расположенной под отверстием корпуса-штуцера, и разбрызгивается плоской струей.

Ороситель общего назначения - розеточный ороситель традиционной конструкции, устанавливаемый под потолком или на стене и предназначенный для тушения или локализации пожара в зданиях и помещениях различного назначения.

Ороситель одностороннего направления потока - ороситель, формирующий неконцентричный поток воды или водного раствора в одном направлении.

Ороситель потайной - ороситель для подвесных потолков и стеновых панелей, у которого корпус, дужки и частично термочувствительный элемент находятся в углублении потолка или стены.

Ороситель розеточный - ороситель, у которого формирование водяного или пенного факела осуществляется посредством розетки, на которую направляется из корпуса-штуцера струя воды или пенного раствора.

Ороситель симметричного направления потока - ороситель, формирующий симметричный (концентричный, эллипсный и т.п.) поток воды или водного раствора в вертикальной плоскости.

Ороситель скрытый - ороситель для подвесных потолков и стеновых панелей, устанавливаемый заподлицо с подвесным потолком или стеной, скрытый термочувствительной декоративной крышкой.

Ороситель специального назначения - ороситель, предназначенный для выполнения специальной задачи по тушению, локализации или блокированию распространения пожара.

Ороситель спринклерный - ороситель с запорным устройством выходного отверстия, вскрывающимся при срабатывании теплового замка.

Ороситель с управляемым приводом - ороситель с запорным устройством выходного отверстия, вскрывающимся при подаче внешнего управляющего воздействия (электрического, гидравлического, пневматического, пиротехнического или комбинированного).

Ороситель углубленный - ороситель для подвесных потолков и стеновых панелей, у которого корпус или дужки частично находятся в углублении потолка или стены.

Ороситель щелевой - ороситель, у которого формирование водяного потока осуществляется через щелевые(ое) отверстия), полость которых может находиться параллельно, перпендикулярно или под любым углом к полости оси оросителя.

Ороситель эвольвентный (центробежный) - ороситель, которые формирует распыленный факел воды или пенного раствора благодаря центробежным усилиям, воздействующим на струю воды.

Основной водопитатель - см. Водопитатель основной.

Пенообразователь - раствор поверхностно-активных веществ, предназначенный для получения пены или растворов смачивателей, используемых при тушении пожаров.

Питающий трубопровод - см. Трубопровод питающий.

Площадь орошения защищаемая - площадь, средняя интенсивность и равномерность орошения которой не менее нормативной или установленной в ТД.

Пневматический бак - см. Бак пневматический (пневмобак).

Побудительная система - см. Система побудительная.

Поверхностная завеса - см. Завеса поверхностная.

Подводящий трубопровод - см. Трубопровод подводящий.

Пожарное запорное устройство - см. Устройство запорное пожарное.

Пожарный извещатель - см. Извещатель пожарный.

Пожарный оповещатель - см. Оповещатель пожарный.

Пожарный пост - см. Пост пожарный.

Пожарный прибор управления - см. Прибор управления пожарный.

Пожарный сигнализатор - см. Сигнализатор пожарный.

Пост пожарный - специальное помещение объекта с круглосуточным пребыванием дежурного персонала, оборудованное приборами контроля состояния средств пожарной автоматики.

Потайной ороситель - см. Ороситель потайной.

Прибор приемно-контрольный пожарный - устройство, предназначенное для приема сигналов от пожарных извещателей, обеспечения электропитанием активных (токопотребляющих) пожарных извещателей, выдачи информации на световые, звуковые оповещатели и пульты централизованного наблюдения, а также формирования стартового импульса запуска пожарного прибора управления.

Прибор приемно-контрольный и управления пожарный - устройство, совмещающее в себе функции прибора приемно-контрольного пожарного и пожарного прибора управления.

Примечание. В установках пожаротушения, в которых предусмотрена задержка выпуска огнетушащего вещества для эвакуации людей из защищаемого помещения и остановка технологического оборудования, это время не входит в их инерционность.

Прибор управления - устройство, обеспечивающее при получении стартового импульса запуска от пожарного приемно-контрольного прибора формирование сигналов управления средствами противопожарной защиты, контроль их состояния, управление оповещателями и информационными табло.

Прибор управления пожарный - устройство, предназначенное для формирования сигналов управления автоматическими средствами пожаротушения, контроля их состояния, управления световыми и звуковыми оповещателями, а также различными информационными табло и мнемосхемами.

Пространственная (объемная) завеса - см. Завеса пространственная (объемная).

Пуск установки дистанционный - ручной пуск установки путем подачи с некоторого расстояния командного импульса на первичный, управляющий пуском установки элемент.

Пуск установки местный - пуск установки путем подачи командного импульса на первичный, управляющий пуском установки элемент непосредственно с места расположения первичного элемента.

Рабочий режим - см. Режим рабочий.

Разбрызгиватель - ороситель, предназначенный для разбрызгивания воды или водных растворов (диаметр капель в разбрызгиваемом потоке не регламентируется).

Распределительный трубопровод - см. Трубопровод распределительный.

Распылитель - ороситель, предназначенный для распыления воды или водных растворов (средний диаметр капель в распыляемом потоке не более 150 мкм).

Расход для поверхностных завес удельный - расход, приходящийся на 1 м длины завесы.

Расход для пространственных и контактных завес удельный - расход, приходящийся на 1 м ширины завесы или проема.

Режим дежурный - состояние готовности узла управления к срабатыванию.

Режим рабочий - выполнение узлом управления своего функционального назначения при срабатывании.

Резерв огнетушащего вещества - требуемая масса огнетушащего вещества, готовое к немедленному применению в случаях повторного воспламенения или невыполнения установкой пожаротушения своей задачи.

Роботизированная установка пожаротушения - см. Установка пожаротушения роботизированная.

Розеточный ороситель - см. Ороситель розеточный.

Сигнализатор давления - сигнальное устройство, предназначенное для приема командного гидравлического импульса, выдаваемого узлом управления, и преобразования его в логический командный импульс.

Сигнализатор пожарный - устройство для формирования сигнала о срабатывании установок пожаротушения и/или запорных устройств.

Сигнализатор потока жидкости - сигнальное устройство, предназначенное для преобразования определенного расхода жидкости в трубопроводе в логический командный импульс.

Сигнально-пусковой клапан - см. Клапан сигнально-пусковой.

Система побудительная - совокупность тепловых замков с тросом или трубопроводом, заполненным водой, водным раствором или сжатым воздухом, предназначенная для автоматического и дистанционного включения дренчерных установок пожаротушения.

Скрытый ороситель - см. Ороситель скрытый.

Система пожарной сигнализации - совокупность установок пожарной сигнализации, смонтированных на одном объекте и контролируемых с общего пожарного поста.

Соединительная линия - см. Линия соединительная.

Спринклерная водозаполненная установка пожаротушения - см. Установка пожаротушения спринклерная водозаполненная.

Спринклерная воздушная установка пожаротушения - см. Установка пожаротушения спринклерная воздушная.

Спринклерная установка пожаротушения - см. Установка пожаротушения спринклерная.

Спринклерный ороситель - см. Ороситель спринклерный.

Срабатывание установки - выполнение установкой всей последовательности операций, предусмотренной ее функциональным назначением.

Станция пожаротушения - сосуды и оборудование установок пожаротушения, размещенные в специальном помещении.

Степень негерметичности помещения - выраженное в процентах отношение суммарной площади постоянно открытых проемов к общей площади поверхности помещения.

Струя (факел) воды тонкораспыленная - вода, получаемая в результате дробления водяной струи на капли, среднеарифметический диаметр которых не более 150 мкм.

Температура срабатывания номинальная - номинальное значение температуры спринклерного оросителя, при котором должно обеспечиваться срабатывание его термочувствительного элемента.

Тепловой замок - см. Замок тепловой.

Термочувствительный элемент - см. Элемент термочувствительный.

Тонкораспыленная струя (факел) воды - см. Струя (факел) воды тонкораспыленная.

Трубопровод питающий - трубопровод, соединяющий узел управления с распределительными трубопроводами.

Трубопровод подводящий - трубопровод, соединяющий источник огнетушащего вещества с узлами управления.

Трубопровод распределительный - трубопровод, на котором монтируются оросители.

Углубленный ороситель - см. Ороситель углубленный.

Удельный расход для поверхностных завес - см. Расход для поверхностных завес удельный.

Удельный расход для пространственных и контактных завес - см. Расход для пространственных и контактных завес удельный.

Узел управления - совокупность устройств (трубопроводной арматуры, запорных и сигнальных устройства, ускорителей их срабатывания, устройств, снижающих вероятность ложных срабатываний, измерительных приборов и пр.), которые расположены между подводящим и питающим трубопроводами и пенного пожаротушения, предназначенных для контроля состояния и проверки работоспособности указанных установок в процессе эксплуатации, а также для пуска огнетушащего вещества, выдачи сигнала для формирования командного импульса на управление элементами пожарной автоматики (насосами, системой оповещения, отключением вентиляторов и технологического оборудования и др.).

Управляющий импульс - см. Импульс управляющий.

Условное статическое время срабатывания спринклерного оросителя (условное время срабатывания) - см. Время срабатывания спринклерного оросителя статическое условное (условное время срабатывания).

Установка водяного пожаротушения - установка пожаротушения, в которой в качестве огнетушащего вещества используют воду и/или водные растворы.

Установка гидропневматическая - совокупность гидро- и пневмобаков или гидропневмобаков, оснащенных устройствами для поддержания в них соответствующего избыточного давления и объема воды или водного раствора.

Установка локального пожаротушения по объему - установка объемного пожаротушения, воздействующая на часть объема помещения и/или на отдельную технологическую единицу.

Установка локального пожаротушения по поверхности - установка поверхностного пожаротушения, воздействующая на часть площади помещения и/или на отдельную технологическую единицу.

Установка насосная - насосный агрегат с комплектующим оборудованием, смонтированным по определенной схеме, обеспечивающей работу насоса.

Установка объемного пожаротушения - установка пожаротушения для создания среды, не поддерживающей горение в объеме защищаемого помещения (сооружения).

Установка пенного пожаротушения - установка пожаротушения, в которой в качестве огнетушащего вещества используют воздушно-механическую пену, получаемую из водного раствора пенообразователя.

Установка поверхностного пожаротушения - установка пожаротушения, воздействующая на горящую поверхность.

Установка пожарной сигнализации - совокупность технических средств для обнаружения пожара, обработки, представления в заданном виде извещения о пожаре, специальной информации и/или выдачи команд на включение автоматических установок пожаротушения и технологических устройств.

Установка пожаротушения - совокупность стационарных технических средств для тушения пожара за счет выпуска огнетушащего вещества.

Установка пожаротушения автоматизированная - установка пожаротушения, автоматически обнаруживающая загорание, выдающая извещение о нем и приводимая в действие вручную.

Установка пожаротушения автоматическая - совокупность стационарных технических средств для тушения пожара за счет выпуска огнетушащего вещества, выполняющая функции обнаружения, управления, контроля сигнализации и тушения без участия человека.

Установка пожаротушения автоматическая малоинерционная - автоматическая установка пожаротушения с инерционностью не более 3 с.

Установка пожаротушения автоматическая повышенной инерционности - автоматическая установка пожаротушения с инерционностью более 180 с.

Установка пожаротушения автоматическая среднеинерционная - автоматическая установка пожаротушения с инерционностью от 3 до 180 с.

Установка пожаротушения автономная - установка, осуществляющая тушение пожара независимо от внешних источников питания и систем управления.

Установка пожаротушения дренчерная - установка пожаротушения, оборудованная дренчерными оросителями.

Установка пожаротушения модульная - установка пожаротушения, состоящая из одного или нескольких модулей пожаротушения, размещенных в защищаемом помещении или рядом с ним и объединенных единой системой обнаружения пожара и приведения их в действие.

Установка пожаротушения роботизированная - стационарный пожарный робот, смонтированный на неподвижном основании, в состав которого входит пожарный ствол, имеющий несколько степеней подвижности, система приводов и устройства программного управления.

Установка пожаротушения ручная - установка пожаротушения, приводимая в действие только ручным способом.

Установка пожаротушения спринклерная - автоматическая установка пожаротушения, оборудованная спринклерными оросителями.

Установка пожаротушения спринклерная водовоздушная - спринклерная установка пожаротушения, работающая в теплый период года как водозаполненная, а в холодный - как воздушная.

Установка пожаротушения спринклерная водозаполненная - спринклерная установка пожаротушения, все трубопроводы которой заполнены водой (водным раствором).

Установка пожаротушения спринклерная воздушная - спринклерная установка пожаротушения, подводящий трубопровод которой заполнен водой (водным растворов), остальные - воздухом под давлением.

Устройство запорно-пусковое - запорное устройство, устанавливаемое на сосуде (баллоне) и обеспечивающее выпуск из него огнетушащего вещества.

Устройство запорное пожарное - устройство, предназначенное для подачи, регулирования и перекрытия потока огнетушащего вещества.

Устройство импульсное - устройство, обеспечивающее расчетное давление в трубопроводах спринклерных и подводящих трубопроводах дренчерных установок, необходимое для срабатывания узлов управления.

Фактор пожара - физико-химическое проявление процесса горения.

Чувствительный элемент - см. Элемент чувствительный.

Ширина завесы - фронтальная протяженность защищаемой площади, в пределах которой обеспечивается заданное значение расхода на 1 м.

Щелевой ороситель - см. Ороситель щелевой.

Эвольвентный (центробежный) ороситель - см. Ороситель эвольвентный (центробежный).

Эксгаустер - устройство, обеспечивающее при срабатывании спринклерного оросителя ускорение срабатывания спринклерного воздушного сигнального клапана путем активного сброса давления воздуха из питающего трубопровода.

Элемент термочувствительный - устройство, разрушающееся или меняющее свою первоначальную форму при заданной температуре.

Элемент чувствительный - элемент, реагирующий на изменение контролируемого фактора (факторов) пожара.

ПРИЛОЖЕНИЕ 2

УСЛОВНЫЕ ГРАФИЧЕСКИЕ ОБОЗНАЧЕНИЯ АУП И ИХ ЭЛЕМЕНТОВ

Наименование

Обозначение

ГОСТ 2.721-74.

ЕСКД. Обозначения условные графические в схемах. Обозначения общего применения

Поток жидкости:

 

а) в одном направлении (например, вправо)

б) в обоих направлениях

Поток газа (воздуха):

 

а) в одном направлении (например, вправо)

б) в обоих направлениях

Примечания:

 

1. Если необходимо уточнить рабочую среду в трубопроводах, то следует применять обозначения по нормативному документу.

2. При выполнении схем автоматизированным способом допускается вместо зачернения применять наклонную штриховку (например, поток жидкости)

ГОСТ 28130-89.

Пожарная техника. Огнетушители, установки пожаротушения и пожарной сигнализации. Обозначения условные графические

ISO 6790.

Средства пожарной зашиты и борьбы с огнем. Условные графические обозначения для планов пожарной защиты. Технические условия

Стационарная установка пожаротушения.

Общая защита помещения

Стационарная установка пожаротушения.

Локальная защита

Пожарный трубопровод

Различное пожарное оборудование

Приемно-контрольный прибор

Извещатель (точечный, ручной или автоматический)

Линейный извещатель (оповещатель)

Пожарный извещатель

Естественная вентиляция

Подпор воздуха (противодымная защита)

Вода

Пена или пенный раствор

Вода с добавками

Установка пенного пожаротушения (общая защита помещения)

Установка водяного пожаротушения с ручным пуском (общая защита помещения)

Сухотрубный стояк, впуск без клапана

Водозаполненный стояк, выпуск с клапаном

Выпуск

Впуск

Тепло

Дым

Пламя

Ручное управление (пуск)

Звонок

Сирена

Световая сигнализация

Водяной пар

Громкоговоритель

ГОСТ 2.782-96.

ЕСКД. Обозначения условные графические. Машины гидравлические и пневматические

Компрессор

Насос нерегулируемый:

 

- с нереверсивным потоком

- с реверсивным потоком

Насос регулируемый:

 

- с нереверсивным потоком

- с реверсивным потоком

Насос-дозатор

Вентилятор:

 

- центробежный

- осевой

ГОСТ 2.784-96.

ЕСКД. Обозначения условные графические. Элементы трубопроводов

Трубопровод:

 

- линии всасывания, напора, слива

- линии управления, дренажа, выпуска воздуха, отвода конденсата

Соединение трубопроводов

Пересечение трубопроводов без соединения

Место присоединения (для отбора энергии или измерительного прибора):

 

- несоединенное (закрыто)

- соединенное

Трубопровод с вертикальным стояком

Трубопровод гибкий, шланг

Изолированный участок трубопровода

Трубопровод в трубе (футляре)

Трубопровод в сальнике

Соединение трубопроводов разъемное:

 

- общее обозначение

- фланцевое

- штуцерное резьбовое

- муфтовое резьбовое

- муфтовое эластичное

Поворотное соединение, например:

 

- однолинейное

- трехлинейное

Конец трубопровода под разъемное соединение:

 

- общее обозначение

- фланцевое

- штуцерное резьбовое

- муфтовое резьбовое

- муфтовое эластичное

Конец трубопровода с заглушкой (пробкой):

 

- общее обозначение

- фланцевый

- резьбовой

Детали соединений трубопроводов:

 

- тройник

- крестовина

- отвод (колено)

- разветвитель, коллектор, гребенка

Переход, патрубок переходной:

 

- общее обозначение

- фланцевый

- штуцерный

Опора трубопровода:

 

- неподвижная

- подвижная (общее обозначение)

- шариковая

- направляющая

- скользящая

- катковая

- упругая

Подвеска:

 

- неподвижная

- направляющая

- упругая

ГОСТ 2.785-70.

Обозначения условные графические. Арматура трубопроводная

Вентиль (клапан) запорный:

 

- проходной

- угловой

Вентиль (клапан) трехходовой

Вентиль, клапан регулирующий:

 

- проходной

- угловой

Клапан обратный (клапан невозвратный):

 

- проходной

- угловой

Примечание: Движение рабочей среды направлено от белого треугольника к черному

 

Клапан предохранительный:

 

- проходной

- угловой

Клапан дроссельный

Клапан редукционный

Примечание: Вершина треугольника направлена в сторону повышенного давления

 

Клапан воздушный автоматический (вантуз)

Задвижка

Затвор поворотный

Кран:

 

- проходной

- угловой

Кран трехходовой:

 

- общее обозначение

- с Т- или L-образной пробкой

Кран четырехходовой

Кран концевой:

 

- полное обозначение

- упрощенное обозначение

РД 25.953-90.

Системы автоматические пожаротушения, пожарной, охранной и охранно-пожарной сигнализации. Обозначения условные графические элементов связи

Ороситель водяной спринклерный, устанавливаемый вертикально; поток ОТВ из корпуса направлен вверх

Ороситель водяной спринклерный, устанавливаемый вертикально; поток ОТВ из корпуса направлен вниз

Ороситель водяной спринклерный, устанавливаемый горизонтально; поток ОТВ из корпуса направлен вдоль направляющей лопатки (розетки)

Ороситель водяной дренчерный, устанавливаемый вертикально; поток ОТВ из корпуса направлен вверх

Ороситель водяной дренчерный, устанавливаемый вертикально; поток ОТВ из корпуса направлен вниз

Ороситель водяной дренчерный с направляющей лопаткой

Ороситель пенный спринклерный розеточный

Ороситель пенный дренчерный розеточный

Ороситель эвольвентный

Генератор четырехструйный сеточный

Генератор пены средней кратности

Узел управления водозаполненной спринклерной АУП

Узел управления дренчерной АУП

Ороситель водяной спринклерный, устанавливаемый вертикально лопаткой (розеткой) вниз; разбрызгивание одностороннее вдоль горизонтальной направляющей лопатки (розетки)

Ороситель водяной спринклерный, устанавливаемый вертикально лопаткой (розеткой) вверх; разбрызгивание одностороннее вдоль горизонтальной направляющей лопатки (розетки)

Ороситель водяной дренчерный, устанавливаемый вертикально лопаткой (розеткой) вниз; разбрызгивание одностороннее вдоль горизонтальной направляющей лопатки (розетки)

Ороситель водяной дренчерный, устанавливаемый вертикально лопаткой (розеткой) вверх; разбрызгивание одностороннее вдоль горизонтальной направляющей лопатки (розетки)

ПРИЛОЖЕНИЕ 3

Рекомендуемое

ОПРЕДЕЛЕНИЕ УДЕЛЬНОЙ ПОЖАРНОЙ НАГРУЗКИ

1. Удельную пожарную нагрузку P (МДж/м2) (далее - пожарная нагрузка) вычисляют по формуле

P = Pn + Ps,                                                                                              (1)

где Pn - временная пожарная нагрузка (средняя), МДж/м2; Ps - постоянная пожарная нагрузка (средняя), МДж/м2.

2. Во временную пожарную нагрузку включаются обращающиеся в производствах вещества и материалы, способные гореть, в том числе технологическое и санитарно-техническое оборудование, изоляция, материалы, находящиеся в расходных складах, мебель и т.п.

3. В постоянную пожарную нагрузку включаются находящиеся в строительных конструкциях вещества и материалы, способные гореть, за исключением материалов, содержащихся в конструкциях классов K0 и K1.

4. Временную и постоянную пожарную нагрузку вычисляют по формулам:

                                                                                        (2)

                                                                                         (3)

где Mi - масса i-го вещества или материала, кг; Hi - количество тепла, выделяемого при сгорании 1 кг i-го вещества или материала, МДж/кг; S - площадь зданий и сооружений или их частей, м2; j - число видов веществ и материалов временной пожарной нагрузки; R - число видов веществ и материалов постоянной пожарной нагрузки.

ПРИЛОЖЕНИЕ 4

ПЕРЕЧЕНЬ ПРОДУКЦИИ, ПОДЛЕЖАЩЕЙ ОБЯЗАТЕЛЬНОЙ СЕРТИФИКАЦИИ В ОБЛАСТИ ПОЖАРНОЙ БЕЗОПАСНОСТИ (средства обеспечения пожарной безопасности)

п/п

Наименование продукции

Код ОКП

Код ТН ВЭД

Нормативные документы, регламентирующие требования к проведению сертификации

1

Узлы управления автоматических установок водяного и пенного пожаротушения

48 9290

8481 80

НПБ 83

2

Клапаны узлов управления, пожарные запорные устройства

48 5484,

48 9270

8481 30 910,

8481 30 990,

8481 40 100,

8481 80 610,

8481 80 710,

8481 80 81

ГОСТ Р 51052, НПБ 83

3

Сигнализаторы давления и потока жидкости пожарные автоматических установок водяного и пенного пожаротушения

48 5480,

48 5484,

48 9270

8481 40 100

НПБ 83

4

Оросители водяные спринклерные и дренчерные

48 5484,

48 9290

8424 89 800,

8424 90

ГОСТ Р 51043, НПБ 68, НПБ 87

5

Оросители пенные спринклерные и дренчерные

48 5484,

48 9290

8424 89 800,

8424 90

ГОСТ Р 51043, НПБ 68, НПБ 87

6

Оповещатели пожарные звуковые гидравлические

48 5484

8479 89 950

НПБ 62

7

Пеносмесители пожарные и дозаторы

48 5400

Из 8413 81

НПБ 59

8

Пенообразователи для тушения пожаров

025810

025812

241279

248121

248130

248132

248140

248161

248163

248210

248229

248311

248312

248350

(кроме

248351,

248352,

248353)

248381

248382

3402 11 000,

3402 12 000,

3402 13 000,

3402 19 000

ГОСТ Р 50588

Примечание: После введения в действие ГОСТ Р 51052-2002 обязательной сертификации будет подлежать все комплектующее оборудование узлов управления (сигнальные, дренажные и обратные клапаны, задвижки, затворы, краны, акселераторы, эксгаустеры, гидроускорители, сигнализаторы давления и потока жидкости, фильтры, компенсаторы и камеры задержки).

ПРИЛОЖЕНИЕ 5

ПРОИЗВОДИТЕЛИ СРЕДСТВ ВОДЯНЫХ И ПЕННЫХ АУП

Наименование предприятия, адрес, средства связи

Выпускаемая и осваиваемая продукция

Регистрационный номер сертификата (дата регистрации)

ЗАО ПО "Спецавтоматика"

659316, Алтайский край, г. Бийск, ул. Лесная, д. 10

Тел.: (3854) 23-52-20, 25-26-86, 25-67-69

Факс: (3854) 24-68-87

E-mail: info@sauto.biysk.iu

URL: www.biysk.nsu.ru/sauto

Оросители спринклерные водяные

 

СВНо10-Р68.О3

ССПБ.RU.УП001.В00664 (27.11.98 - 27.11.01)

 

РОСС RU.ББ02.В00181 (21.01.00 - 27.11.01)

СВНо12-Р68.О3

ССПБ.RU.УП001.В00803 (05.04.99 - 05.04.02)

 

РОСС RU.ББ02.В00182 (21.01.00 - 05.04.02)

СВНо15-Р68.О3

ССПБ.RU.УП001.В00803 (05.04.99 - 05.04.02)

 

РОСС RU.ББ02.В00182 (21.01.00 - 05.04.02)

СВВо10-Р68.О3

ССПБ.RU.УП001.В01281 (28.02.00 - 28.02.03)

 

РОСС RU.ББ02.В00220 (28.02.00 - 28.02.03)

СВВо12-Р68.О3

ССПБ.RU.УП001.В01281 (28.02.00 - 28.02.03)

 

РОСС RU.ББ02.В00220 (28.02.00 - 28.02.03)

СВВо15-Р68.О3

ССПБ.RU.УП001.В01281 (28.02.00 - 28.02.03)

 

РОСС RU.ББ02.В00220 (28.02.00 - 28.02.03)

Оросители дренчерные водяные

 

ДВНо10-О3

ССПБ.RU.УП001.В00663 (27.11.98 - 27.11.01)

 

РОСС RU.BB02.B00183 (21.01.00 - 27.11.01)

ДВНо12-О3

ССПБ.RU.УП001.В00663 (27.11.98 - 27.11.01)

 

РОСС RU.ББ02.В00183 (21.01.00 - 27.11.01)

ДВНо15-О3

ССПБ.RU.УП001.В00663 (27.11.98 - 27.11.01)

 

РОСС RU.ББ02.В00183 (21.01.00 - 27.11.01)

ДВВо10-О3

ССПБ.RU.УП001.В01282 (28.02.00 - 28.02.03)

 

РОСС RU.ББ02.В00221 (28.02.00 - 28.02.03)

ДВВо12-О3

ССПБ.RU.УП001.В01282 (28.02.00 - 28.02.03)

 

РОСС RU.ББ02.В00221 (28.02.00 - 28.02.03)

ДВВо15-О3

ССПБ.RU.УП001.В01282 (28.02.00 - 28.02.03)

 

РОСС RU.ББ02.В00221 (28.02.00 - 28.02.03)

 

Ороситель спринклерный пенный универсальный

 

СПУо15-Р68.О1

ССПБ.RU.УП001.B01570 (25.08.00 - 24.08.03)

 

РОСС RU.BB02.B00253 (25.08.00 - 24.08.03)

Ороситель дренчерный пенный универсальный

 

ДПУо15-О1

ССПБ.RU.УП001.В01571 (25.08.00 - 24.08.03)

 

РОСС RU.BB02.B00254 (25.08.00 - 24.08.03)

Сигнальные клапаны узлов управления

 

КСД 100/1,2 К-УУ.01;

ССПБ.RU.УП001.B01326 (07.04.00 - 07.04.03)

КСД 150/1,2 К-УУ.01

РОСС RU.BB02.B00229 (07.04.00 - 07.04.03)

Сигнализатор давления универсальный

 

СДУ-М

ССПБ.RU.УП001.B01224 (01.02.00 - 01.02.03)

 

РОСС RU.BB02.B00196 (01.02.00 - 01.02.03)

Клапан мембранный универсальный типа КМУ

 

КСД 100/1,2 К-УУ.01

ССПБ.RU.УП001.B01326 (07.04.00 - 07.04.03)

ГОСТ Р 51052-97,

РОСС RU.BB02.B00229 (07.04.00 - 07.04.03)

КСД 150/1,2 К-УУ.01

 

ГОСТ Р 51052-97

 

(ТУ 4854-029-00226827-98, КД ДАЭ 100.209.000, ДАЭ 100.209.000-01)

 

ЗАО ПО "Спецавтоматика"

659316, Алтайский край, г. Бийск, ул. Лесная, д. 10

Тел.: (3854) 23-52-20, 25-26-86, 25-67-69

Факс: (3854) 24-68-87

E-mail: info@sauto.biysk.iu

URL www.biysk.nsuru/6auto

Распылитель центробежный

 

ДО-0,6ЦВПа24-0,18/93 "РЦ-180" (ТУ 4854-042-00226827-00, КД ДАЭ 100.240.000)

ССПБ.RU.УП001.В02462 (17.04.02 - 16.04.05)

РОСС RU.ББ02.Н01311

ФЦДТ "Союз"

140056, Московская обл., г. Дзержинский, ул. Советская, д. 6

Тел.: (095) 551-76-00 Факс: (095) 551-11-44

E-mail: soyuz@avallon.ru

URL: http://www.vimi.ru/fcdt

Модули водяного пожаротушения

Продукция находится на стадии освоения

УПАТ-60

УПАТ-1700

УПАТ-7500

ЗАО "НПО СОПОТ"

196070, г. Санкт-Петербург, Московский пр., д. 181, оф. 401

Тел.: (812) 108-48-66, 448-96-82, 123-27-98; (095) 183-26-80

Факс: (812) 108-48-66

E-mail: kssopot@spb.citiline.ru

Установки комбинированного тушения пожаров

 

УКТП "Пурга 5"

ССПБ.RU.On002.H.00570 (04.05.00 - 04.05.03)

УКТП "Пурга 10"

ССПБ.RU.on002.H.00571 (04.05.00 - 04.05.03)

УКТП "Пурга 10.20.30"

ССПБ.RU.ОП002.Н.00572 (04.05.00 - 04.05.03)

УКТП "Пурга 20.40.60"

ССПБ.RU.ОП002.Н.00573 (04.05.00 - 04.05.03)

Предприятие комплектно-блочного строительства - филиал ОАО "Спецстроймонтаж"

141112, Московская обл., г. Щёлково, ул. Московская, д. 77

Тел.: (095) 526-98-41, 526-94-16

Факс: (095) 526-98-41

Установки автоматического пенного пожаротушения газогенерирующих агрегатов

Продукция находится на стадии освоения

1690-31 УБ12, 1772-18

Установка комбинированного (пенного и газового) пожаротушения

1772-17

ЗАО "МЭЗ Спецавтоматика"

123007, Москва,

ул. Шеногина, д. 4а

Тел.: (095) 259-34-26,

259-28-12, 269-65-56

Факс: (095) 259-72-66, 259-33-54

E-mail: mezplant@citiline.ru

Модули пожаротушения тонкораспыленной водой

Продукция находится на стадии освоения

МПВ-100,

 

МПВ-160

 

ЗАО "Научно-производственный комплекс "Противопожарная автоматика"

103031, Москва, ул. Кузнецкий мост, д. 3

Тел.: (095) 292-98-95

Факс: (095) 292-98-95

E-mail: spf@mail.ru

Модуль пожаротушения тонкораспыленной водой

Продукция находится на стадии освоения

МУПТВ-60-Г-ГВ

ООО "Внедренческая фирма "Аспект"

197198, Ленинградская обл., Всеволожский район, пос. Кузьмоловский, опытный завод

Тел.: (812) 536-93-66, 973-23-32

Факс: (812) 327-48-21

Модули пожаротушения тонкораспыленной водой

Продукция находится на стадии освоения

МУПРВ-40-Г-В,

МУПРВ-60-Г-В,

МУПРВ-80-Г-В,

МУПРВ-100-Г-В

ООО "Научно-производственная фирма "Безопасность"

198188, г. Санкт-Петербург, ул. Новостроек, д. 12 "Б"

Тел.: (812) 183-53-88

Факс: (812) 184-28-41

E-mail: trv@lek.ru

Модули пожаротушения тонкораспыленной водой

Продукция находится на стадии освоения

МУПТВ-12-Г-ВД,

МУПТВ-27-Г-ВД,

МУПТВ-50-Г-ВД

ОАО "Минский завал "Спецавтоматика"

220024, Республика Беларусь, г. Минск, ул. Стебенева, д. 12

Тел.: (1037517) 275-61-12

Факс: (1037517) 275-13-15

Телетайп: 300342 БЕРИЛЛ

E-mail: spetcavtomatika@mail.belpak.by

ООО "Лакита"

123056, Москва, ул. 2-я Брестская, д. 37/39

Тел./факс: 371-99-14

Клапаны запорные универсальные

ССПБ.BY.УПО01.В01583 (25.08.00 - 24.08.03)

КЗУ-100,

РОСС BY.BB02.B00256 (25.08.00-24.08.03)

КЗУ-150

 

АО "Пастор Инженеринг",

113093, Москва, ул. Большая Серпуховская, д. 31, корп. 1.

Тел.: 236-05-97

Факс: 235-15-86

Ороситель водяной спринклерный

 

"Univerzalna" СП 421.551R, R 1/2", 68 "С, колба 4 мм "Day-Impex LTD" (устанавливается розеткой вниз)

ССПБ.HR.УП001.B01924

РОСС HR.ББ02.B00311

Ороситель спринклерный водяной

 

"SPRAY VISECA" СП 421.600R, R 1/2", 68°С, колба 4 мм "Day-Impex LTD"

ССПБ.HR.УП001.B01923

РОСС HR.ББ02.B00310

Ороситель спринклерный водяной

 

"SPRAY STOJECA", R 1/2", 68°С, колба 4 мм ("Day-Impex LTD")

ССПБ.HR.УП001.В01952

РОСС HR.ББ02.B00316

АО "Пастор Инженеринг",

113093, Москва, ул. Большая Серпуховская, д. 31, корп. 1

Тел.: 236-05-97

Факс: 235-15-86

Клапан спринклерный с обвязкой

 

"MOKRA SPRINKLER STANICA NO 150"

ССПБ.HR.УП001.В01921

РОСС HR.ББ02.B00308

Клапан дренчерный с обвязкой

 

"DALJNSKI UPRAVLJANA VENTILSKA STANICA" (3", 6")

ССПБ.HR.УП001.В01922

РОСС HR.ББ02.B00309

Многопрофильный кооператив ТМИН"

117296, Москва, ул. Вавилова, д. 56, корп. 1

Тел./факс: 959-40-29

Клапаны спринклерные

 

КС 100/1,2-ПО 4 ГОСТ 51052-97,

ССПБ.RU.УП001.B02444

КС 100/1,2-ПО 4 ГОСТ 51052-97

РОСС RU.ББ02.B00391

(ТУ 4854-001-27551745-00, КД ТВС-100.00.000, КД ТВС-150.00.000)

ОАО "ЭНА" (электронасосвый агрегат)

141101, Московская обл., г. Щёлково, ул. Заводская, 14

Тел.: 526-41-83, 526-41-65, 745-05-13, 745-05-19

Телетайп: 346-385 "Насос"

Факс:

- для Москвы и Московской обл.: (095) 745-05-12, (256) 2-81-90 для иногородних:

- (09656) 2-81-90

E-mail: market@ena.ru

Насосные агрегаты

Сертификации не подлежат

КМ (14 типоразмеров)

К 65-40-250-СД-П

К 65-40-250а-СД-П

К 80-50-250-СД-П

К 80-50-250а-СД-П

АО "Ливгидромаш"

303800, Орловская обл., г. Ливны, ул. Гражданская, д. 23

Тел./факс: 2-27-17

Насосные агрегаты

Сертификации не подлежат

ЦН 90-100

ЦН 90-100а

ЦН 160-112

ЦН 160-112а

ЦН 160-1126

ЗАО "Л М Гидронасос"

127055, Москва, 2-й Вышеславцев пер., д. 17, стр. 2

Тел.: 911-91-01

Факс: 973-92-98

E-mail: lmoil@mail.ru

200-90

1Д 200-90а

1Д 200-906

1Д 315-71

1Д 315-71а

ОАО "Ясногорский машзавод"

301030, Тульская обл., г. Ясногорск, ул. Заводская, д. 3

Тел./факс: (08766) 2-42-72, 2-38-86, 2-31-66

Насосные агрегаты

Сертификации не подлежат

ЦНСА-13

ЦНСА-38

ЦНСА-60

ОАО "Спецавтоматика"

FIREMATIC

129626, Москва, ул. 1-я Мытищинская, д. 3

Тел.: (095) 287-31-25

Факс: (095) 287-10-17

Клапан спринклерныи сигнальный

 

"Alarm Valve", модель G (4"-6"),

с обвязкой (оповещатель "Water Motor Gong", задвижка "OS&Y")

ССПБ.US.УП001.B01218

РОСС US.ББ02.В00192

ОАО "Спецавтоматика"

FIREMATIC

129626, Москва, ул. 1-я Мытищинская, д. 3

Тел.: (095) 287-31-25

Факс: (095) 287-10-17

Ороситель спринклерный

 

"Model UF "Astra" series Pendent Bub Sprinkler, 5 mm Bulb, 1/2", 155 F, 68 °C (bronze, chrome, white)"

ССПБ.US.УП001.В01215

РОСС US.BB02.B00189

 

Ороситель спринклерный

 

"Model UF "Astra" series Upright Bulb Sprinkler, 5 mm Bulb, 1/2", 155 F, 68 °C (bronze, chrome, white)"

ССПБ.US.УП001.В01216

РОСС US.ББ02.B00190

 

Ороситель спринклерный настенный

 

"Model U Horizontal Side wall Bulb Sprinkler (HSW)", 5 mm Bulb, 1/2", 155 F, 68 °C (bronze, chrome, white)"

ССПБ.US.УП001.В01217

РОСС US.ББ02.B00191

Сигнализаторы давления

 

EPS 10-2,

ССПБ.Ш.УП001.В01220

EPS 40-2,

РОСС US.ББ02.B00194

EPS 120-2

Сигнализатор потока

 

WFD

ССПБ.US.УП001.B01219

РОСС US.ББ02.B00193

"Potter Electric Signal Company"

2081 Craig Road St. Louis

Missouri 63146-4161 USA

Тел.: (1) 314 878 4321

Факс: (1) 314 878 7264

Сигнализатор потока жидкости

 

 

"Vane Type Waterflow Alarm Switch with Retard" model VSR-SF Г; VSR-F 2" to 6" (коммутация напряжения не более 24 В)

ССПБ.US.УП001.В02280

РОСС US.ББ02.B00375

 

Сигнализаторы давления

 

PS10-2A,

ССПБ.US.УП001.В01229

PS40-2A,

РОСС US.ББ02.В00199

PS100-2A,

PS120-2A

"AVK INTERNATIONAL A/S"

Bizonvej 1, Skovby, DK-8464

Gatten, Denmark

Тел.: + 0045 86 94 60 66

Факс: + 0045 86 94 62 38

 

Фланцевые шиберные задвижки с маховиком и индикатором положения запорного органа

 

"Flange Gate Valve with Pin Indicator and Handwheel Series 06/35" Range:

ССПБ.DK.УП001.В02331

РОСС DK.ББ02.B00382

DN 50 - DN 300

 

THE VIKING CORPORATION

210N, Industrial Park Road Hastings, Michigan 49058, USA

Тел.: 352/583737

Факс: 352/583736

Дозатор пенный автоматический

 

"Concentrate Controller for Foam Concentrate Proportioning Systems"

ССПБ.US.УП001.B01353 (18.04.00 - 18.04.03)

РОСС US.ББ02.H00727 (18.04.00 - 18.04.03)

THE VIKING CORPORATION

210N, Industrial Park Road Hastings, Michigan 49058, USA

Тел.: 352/583737

Факс: 352/583736

Дозаторы пенные автоматические дифференциальные

 

"LFF In Line Balanced Pressure Proportioner" DN 3", 4", 6" и 8"

ССПБ.US.УП001.B01354 (18.04.00 - 18.04.03)

РОСС US.ББ02.Н00728 (18.04.00 - 18.04.03)

Клапаны для дренчерной системы

 

"Deluge Valve Е-1, Е-2, Е-3" с обвязкой Dy 42 мм - Dy 150 мм

ССПБ.US.УП001.В02272 (11.12.01 - 24.11.03)

РОСС US.BB02.B00373 (11.12.01 - 24.11.03)

Сигнализаторы давления

 

"Pressure Switch 09471, 09473"

ССПБ.US.УП001.В02271 (11.12.01 - 18.12.03)

РОСС US.ББ02.В00372 (11.12.01 - 18.12.03)

Насадки дренчерные эвольвентного типа

 

"SPRAY NOZZLE", 1/2", (30, 60, 90, 120, 140)°С

ССПБ.US.УП001.В02270 (11.12.01 - 24.11.03)

РОСС US.ББ02.В00371 (11.12.01 - 24.11.03)

Клапаны контрольно-сигнальные для воздушной спринклерной системы

 

"Dry Valve F-l" с обвязкой Dy 80 мм - Dy 150 мм

CCIIB.US.УП001.B02273 (11.12.01 - 24.11.03)

РОСС US.ББ02.В00374 (11.12.01 - 24.11.03)

Оповешатель пожарный звуковой гидравлический

 

"MODEL F 2 WATER MOTOR ALARM"

ССПБ.US.УП001.В01246 (21.02.00 - 21.02.03)

РОСС US.ББ02.В00203 (21.02.00 - 21.02.03)

THE VIKING CORPORATION

210N, Industrial Park Road Hastings, Michigan 49058, USA

Тел.: 352/583737

Факс: 352/583736

Клапаны обратные

 

D-l; G-1; Е-3 Swing Check Valve

ССПБ.US.УП001.В01245 (21.02.00 - 21.02.03)

DN 65, 80, 100, 150, 200

РОСС US.ББ02.В00202 (21.02.00 - 21.02.03)

Клапан соленоидный

 

"High Pressure Solenoid Valve"

ССПБ.US.УП001.В01244 (21.02.00 - 21.02.03)

РОСС US.ББ02.B00201 (21.02.00 - 21.02.03)

Ороситель спринклерный скрытого типа

 

"Mirage", 1/2", 74°С

ССПБ.US.УП001.В00645 (11.12.01 - 24.11.03)

РОСС US.ББ02.В00153 (11.12.01 - 24.11.03)

Оросители спринклерные водяные и пенные с вогнутой розеткой

 

"Micromatic Model М Standard Response", 5 mm bulb type, 3/4", SSU, (68, 93, 141) °C

ССПБ.US.УП001.В02265 (11.12.01 - 24.11.03)

РОСС US.ББ02.В00366 (11.12.01 - 24.11.03)

Оросители спринклерные водяные и пенные с плоской розеткой

 

"Micromatic Model М Standard Response", 5 mm bulb type, 1/2", SSP, (68, 93, 141) °C

ССПБ.US.УП001.В02266 (11.12.01 - 24.11.03)

РОСС US.ББ02.B00367 (11.12.01 - 24.11.03)

THE VIKING CORPORATION

210N, Industrial Park Road Hastings, Michigan 49058, USA

Тел: 352/583737

Факс: 352/583736

Оросители спринклерные водяные и пенные с вогнутой розеткой

 

"Micromatic Model М Standard Response" 5 mm bulb type, 1/2", SSU, (68, 93, 141) °C

ССПБ.US.УП001.В02264 (11.12.01 - 24.11.03)

РОСС US.ББ02.В00365 (11.12.01 - 24.11.03)

Оросители спринклерные водяные и пенные с плоской розеткой

 

"Micromatic Model М Standard Response", 5 mm bulb type, 3/4", SSP, (68, 93, 141) °C

ССПБ.US.УП001.В02267 (11.12.01 - 24.11.03)

РОСС US.ББ02.В00368 (11.12.01 - 24.11.03)

Ороситель дренчерный

 

"Window Sprinkler Model C-l", 1/2"

ССПБ.US.УП001.B02269 (11.12.01 - 24.11.03)

РОСС US.ББ02.В00370 (11.12.01 - 18.12.03)

Grinnell Sales & Distribution BV

Kopersteden 1, 7547 TJ, Enschede, Holland

Клапаны дренчерные

 

F470 с обвязкой Dy 4" (100 мм), Dy 6" (150 мм)

ССПБ.US.УП001.В01223 (28.01.00 - 28.01.03)

РОСС US.ББ02.B00195 (28.01.00 - 28.01.03)

Клапаны обратные двустворчатые

 

"FLO-CHECK", Dy 2"-8"

ССПБ.US.УП001.В01227 (28.01.00 - 28.01.03)

РОСС US.ББ02.В00198 (28.01.00 - 28.01.03)

Grinnell Sales & Distribution BV

Kopersteden 1, 7547 TJ, Enschede, Holland

Задвижки шиберные

 

"Gate Valve, Figure 05-47

Non Rising Stem" Size 2" to 12"

ССПБ.Е5.УП001.В01431 (07.06.00-07.06.03)

РОСС ES.ББ02.B00245 (07.06.00 - 07.06.03)

Клапаны сигнальные спринклерные водяные

 

"Alarm Valve" F20, F200, F2001 Dy 4" (100 мм), Dy 6" (150 мм), Dy 8" (200 mm)

ССПБ.ES.УП001.В01431 (28.01.00-28.01.03)

РОСС ES.ББ02.B00200 (28.01.00 - 28.01.03)

Затворы дисковые

 

"BUTTERFLY VALVE" JM A Dy 2, 6, 8" (50, 150, 200 мм); JM С Dy 6" (150 мм)

ССПБ.FR.УП001.B01472 (14.07.00 - 14.07.03)

РОСС FR.ББ02.B01230 (14.07.00 - 14.07.03)

Затворы дисковые

 

"BUTTERFLY VALVE JM (A/C) SERIES DI BODY; EPDM SEAT WITH AND WITHOUT SWITCH; SIZE 2 TO 8"

ССПБ.FR.УП001.B01670

РОСС FR.ББ02.BO0267

Клапаны спринклерные воздушные

 

"DRY PIPE VALVE F302" Dy 4" (100 мм), Dy 6" (150 мм)

ССПБ.US.УП001.В01370

РОСС US.ББ02.B00234

Grinnell Sales & Distribution BV

Kopersteden 1, 7547 TJ, Enschede, Holland

Оросители спринклерные водяные универсальные

 

"Conventional (Old Style) Sprinklers Universal Model A" 1/2" (K-Factor 80,7), 3/4" (K-Factor 116,8), NPT; Quick Response, 3 мм Bulb (Job F3): (57, 68, 79, 93) °C; Standard Response, 5 мм Bulb (G): (57, 68, 79, 93, 141, 182) °C

ССПБ.US.УП001.В01322

РОСС US.ББ02.B00225

Оросители спринклерные водяные с плоской розеткой

 

"Pendent Sprinklers Universal Model А" 3/4" NPT 15 мм Orifice, K-Factor 115; Quick Response 3 мм Bulb (Job F3): (57, 68, 79, 93) °C; Standard Response 5 мм Bulb (G): (57, 68, 79, 93, 141, 182) °C

ССПБ.US.УП001.В01418

РОСС US.ББ02.B00243

Оросители спринклерные водяные и пенные с плоской розеткой

 

"Pendent Sprinklers Universal Model A", 1/2" NPT Orifice 15 мм K-Factor 80,7; Quick Response 3 мм Bulb (Job F3): (57, 68, 79, 93) °C; Standard Response 5 мм Bulb (G): (57, 68, 79, 93, 141, 182) °C

ССПБ.US.УП001.В01376

РОСС US.ББ02.B00236

Grinnell Sales & Distribution BV

Kopersteden 1, 7547 TJ, Enshede, Holland

Оросители спринклерные водяные розеткой вверх

 

"Upright Sprinklers Universal Model A" 3/8" SSU, K-Factor 57, 10 mm Orifice; Quick Response, 3 мм Bulb (Job F3): (57, 68, 79, 93) °C; Standard Response, 5 мм Bulb (G): (57, 68, 79, 93, 141, 182) °C

ССПБ.US.УП001.B01324

РОСС US.ББ02.B00227

Оросители спринклерные водяные розеткой вниз, скрытые

 

"Concealed pendent sprinkler Model F 690, F 692", Quick Response, K-Factor 80,6, 1/2" Orifice, 1/2" NPT; 3 мм Bulb (Job F3), 68 °C; 4 мм Bulb (Job F4), 68 °C

ССПБ.US.УП001.B01473

РОСС US.ББ02.B00251

Оросители спринклерные водяные с вогнутой розеткой

 

"Upright Sprinklers Universal Model A" 3/4" NPT 15 мм Orifice, K-Factor 115; Quick Response, 3 мм Bulb (Job F3): (57, 68, 79, 93) °C; Standard Response, 5 мм Bulb (G): (57, 68, 79, 93, 141, 182) °C

ССПБ.US.УП001.В01416

РОСС US.ББ02.B00241

Grinnell Sales & Distribution BV

Kopersteden 1, 7547 TJ, Enschede, Holland

Ороситель спринклерный горизонтальный

 

"Horizontal Sidewall Sprinklers Universal Model A" 1/2" NPT Orifice 15 mm K-Factor 80,7; Quick Response 3 мм Bulb (Job F3), (57, 68, 79, 93) °C; Standard Response 5 мм Bulb (G), 57, 68, 79, 93, 141, 182) °C

ССПБ.US.УП001.В01417

РОСС US.ББ02.B00242

Сигнализаторы потока жидкости

 

Flow Switch mod. VSR-F for Pipe Diameter 2" to 8" (замедляющее устройство в положении "0")

ССПБ.US.УП001.В01226

РОСС US.ББ02.B00197

Сигнализатор давления

 

"Pressure Alarm Switches" PS40-10A, PS40-2A, PS100-2A, PS100-1A, PS120-2A, PS120-1A for Pipe Diameter 2" to 8" (для контроля давления в трубопроводах); PS10-1A, PS10-2A (для контроля срабатывания сигнального клапана)

ССПБ.US.УП001.В01229

РОСС US.ББ02.B00199

Minimax GmbH Industriestrasse

10/12, D-23840 Bad Oldesloe Deutschland, Германия

Тел.: +49 (4531) 803 102

Факс: +49 (4531) 803 555

Ороситель дренчерный водяной

 

"DUSE RD" 1/2", 68°С, колба 5 мм

ССПБ.DE.УП001.В02134 (21.09.01 - 20.09.04)

РОСС DE.ББ02.B00350 (21.09.01- 20.09.04)

Minimax GmbH Industriestrasse

10/12, D-23840Bad Oldesloe Deutschland, Германия

Тел.: +49 (4531) 803 102

Факс: +49 (4531) 803 555

Сигнализатор давления

 

"Pressure switch РМА-3" art. Nr. 116512

ССПБ.DE.УП001.В02132 (21.09.01 - 20.09.04)

РОСС DE.ББ02.B00348 (21.09.01 -20.09.04)

Сигнализатор давления

 

"Pressure switch PMU-3" art. Nr. 792183, 810564

ССПБ.DE.УП001.В02133 (21.09.01 -20.09.04)

РОСС DE.ББ02.B00349 (21.09.01 - 20.09.04)

Клапаны сигнальные дренчерные водяные

 

с обвязкой "FSV" DN 50, 80, 100, 150 с пневматическим, гидравлическим или электрическим пусковым устройством

ССПБ.DE.УП001.В01323 (21.04.00 - 1.04.03)

РОСС DE.ББ02.B00226 (21.04.00 - 21.04.03)

Клапаны спринклерные с обвязкой

 

"NAV-NMX/RK-VZ- UWA" (4", 6", 8")

ССПБ.DE.УП001.В02131

РОСС DE.ББ02.B00355

Оповещатель пожарный звуковой гидравлический

 

"WATER MOTOR ALARM MODEL AG-2" art Nr. 772473

ССПБ.DE.УП001.В02131

РОСС DE.ББ02.B00347

Ороситель спринклерный водяной

 

"Sprinkler MX-SP" 1/2", 68 °C, колба 5 мм

ССПБ.DE. УП001.B01951

РОСС DE.ББ02.B00315

Grundfos Представительство в Москве - АО "Гидроланс"

129085, Москва а/я 753

Тел.: 7(095) 287-05-62, 278-19-60, 215-68-73, 215-83-26, 217-48-25

Факс: 7(095) 287-58-30

Е-mail: hydrolance@yahoo.com

Насосные агрегаты

Сертификации не подлежат

UPE серии 100, 2000

 

UPED серии 2000

 

CH

 

CHI

 

CHIE

 

CR

 

CRN

 

CV

 

CPV

 

Насосные установки

Сертификации не подлежат

Hydromulti CHI и Hydro 2000

 

 

NK 40-250

 

NK 65-315

 

Насосные установки пожаротушения высокого давления

Сертификации не подлежат

Hydropac (совместно с автоматическим водопитателем)

 

Saer Elettropompe

Via Circonvallazione, 22. 42016 Guastalla-RE-Italy

Тел.: 0522.83.09.41 r.a.

Телекс: 53.08.88 SAERP I

Факс: 0522/82/69/48

Насосные агрегаты

Сертификации не подлежат

IR

IR4P

NCB

NCBZ-2p

NCBZ-4p

CWM

 

ПРИЛОЖЕНИЕ 6

ТЕХНИЧЕСКИЕ СРЕДСТВА ВОДЯНЫХ И ПЕННЫХ АУП

П6.1. ОСНОВНЫЕ ПАРАМЕТРЫ ОТЕЧЕСТВЕННЫХ ПЕНООБРАЗОВАТЕЛЕЙ [29]

Параметр

Пенообразователь

ПО-6ТС

ПО-6ЦТ

ПО-6МТ

ПО-6ТС-В

ПО-6ТС-М

ПО-6ТФ

ПО-6ТФ-У

марка А

марка В

Внешний вид

Прозрачная однородная жидкость без осадка и расслоения

Однородная жидкость без осадка и расслоения

Плотность при 20°С, кг/м3

1000 - 1200

1000 - 1200

1000 - 1200

1000 - 1200

1000 - 1200

1000 - 1200

1000 - 1200

Водородный показатель (рН)

7,3 - 8,0

8,0 - 10,0

7,0 - 10,0

7,0 - 10,0

7,0 - 10,0

7,0 - 10,0

6,5 - 10,0

6,5 - 10,0

Кинематическая вязкость при 20°С, мм2/с, не более

40

100

100

100

200

100

200

200

Температура застывания,°С, не выше

Минус 3

Минус 8

Минус 20

Минус 5

Минус 5

Минус 5

Минус 5

Кратность пены 6 %-ного (об.) рабочего раствора:

 

 

 

 

 

 

 

- низкая, не более

-

-

-

-

-

20

20

- средняя, не менее

60

60

60

60

60

40

40

- высокая, не менее

-

-

-

500

500

500

-

Устойчивость пены, с, не менее:

 

 

 

 

 

 

 

- разрушение 50 % объема пены средней кратности в 200-л емкости

720(1)

2100(1)

1200(1)

720

720

1200

1200

- выделение 50 % объема жидкости из пены средней кратности, полученной на стендовой установке

220

600

170

150

150

200

200

- выделение 50 % объема жидкости из пены высокой кратности, полученной на стендовой установке

-

-

-

160

150

-

-

Время тушения н-гептана (бензин А-76) 6 %-ным (об.) рабочим раствором при интенсивности подачи (0,032±0,002) л/(с·м2), с, не более

300(2)

150

300

300

300

300(3)

300

300 (120(4))

Показатель смачивающей способности рабочего раствора с объемной долей 2 %, с, не более

8

8

-

-

-

-

-

-

Степень биоразложения, %

Более 90

Более 80

Примечания:

(1) - подача пены из ГПС-100;

(2) - при интенсивности подачи раствора не более (0,042±0,002) л/(с·м2);

(3) - время тушения н-гептана пеной средней кратности 6 %-ным (об.) рабочим раствором на морской воде;

(4) - время тушения ацетона.

П6.2. ОСНОВНЫЕ ПАРАМЕТРЫ НАСОСНЫХ АГРЕГАТОВ

6.2.1. Основные параметры насосных агрегатов АО "ЛИВГИДРОМАШ" [15]

Марка насосного агрегата

Подача, м3

Напор, м

Число оборотов, об/мин

Потребляемая мощность, кВт

Допустимый кавитационный запас, м

Масса, кг

Габаритные размеры, мм

ЦН 90-100

90

100

2900

55

4,8

720

1625×710×875

ЦН 90-100а

80

80

2900

55

4,8

720

1625×710×875

1Д200-90

200

90

2900

90

5,5

780

1727×557×795

1Д200-90а

180

74

2900

75

5,8

740

1687×557×850

1Д200-90б

160

62

2900

55

5,9

607

1582×530×810

1Д315-71

315

71

2900

110

6,5

1096

1912×660×910

1Д315-71а

300

60

2900

90

7,0

827

1727×600×880

ЦН 160-112

160

112

2900

90

4,8

920

1850×820×885

ЦН 160-112а

150

100

2900

75

4,8

960

1850×820×885

ЦН 160-112б

135

80

2900

55

4,8

720

1625×710×875

6.2.2. Основные параметры насосных агрегатов ОАО "Ясногорский машзавод" [13]

Марка насосного агрегата

Подача, м3

Напор, м

Число оборотов, об/мин

К.п.д насоса, %

Допустимый кавитационный запас, м

Потребляемая мощность, кВт

Рабочая температура перекачиваемой воды,°С

Масса, кг

Габаритные размеры, мм

ЦНСА-13

13

От 70 до 350

2950

48 или 49

3,0

От 11 до 55

45

От 335 до 649

От 1387×450×562 до 2077×450×640

ЦНСА-38

38

От 44 до 220

2950

67 или 69

3,6

От 11 до 30

45

От 326 до 692

От 1387×450×578 до 2195×455×685

ЦНСА-60

60

От 66 до 330

2950

67 или 70

4,5

От 18,5 до 110

45

От 474 до 1346

От 1540×522×676 до 2470×557×790

6.2.3. Основные параметры пожарных насосных агрегатов ОАО "Электронасосный агрегат'' [21, 36]

Марка насосного агрегата

Подача, м3

Напор, м

Число оборотов, об/мин

Допустимый кавитационный запас, м

Потребляемая мощность, кВт

Масса, кг

Габаритные размеры, мм

КМ (32 типоразмера)

160

До 45

1450 и 2900

От 3 до 8

От 2,2 до 19,5

От 38 до 290

От 454×210×278 до 800×420×510

К 65-40-250-СД-П

25

80

2900

4,5

15

232

1240×590×588

К 65-40-250а-СД-П*

25

65

2900

4,5

11

178

1240×590×588

К 80-50-250-СД-П

50

80

2900

4,5

22

265

1240×590×588

К 80-50-250а-СД-П*

50

65

2900

4,5

18,5

232

1240×590×588

*Условное обозначение рабочего колеса с обточкой, обеспечивающей работу агрегата в средней части поля "Q - H".

Примечание. Рабочая температура насосных агрегатов типа КМ - от 0 до 105°С, избыточное давление на входе - не более 0,8 МПа, размер примесей - не более 0,2 мм, сальниковое уплотнение - двойное.

6.2.4. Основные параметры насосных агрегатов Катайского насосного завода [47]

Марка насосного агрегата

Подача, м3

Напор, м

Число оборотов, об/мин

Допустимый кавитационный запас, м

Потребляемая мощность, кВт

К.п.д. насоса, %

Масса, кг

Габаритные размеры, мм

К 80-50-200

50 (13,9)

50

3000

3,5

15

65

250

1127×458×430

К 100-65-200

100 (27,8)

50

3000

4,5

30

72

376

1310×498×475

К 100-65-250

100 (27,8)

80

3000

4,5

45

67

485

1390×568×520

КМ 80-50-200

50 (13,9)

50

3000

3,5

15

65

195

825×358×360

КМ 100-65-200

100 (27,8)

50

3000

4,5

30

72

260

850×400×405

6.2.5. Основные параметры насосных агрегатов фирмы "GRUNDFOS" [18, 19, 22]

Марка насосного агрегата

Подача, м3

Максимально рабочее давление, МПа

Потребляемая мощность, кВт

Число оборотов, об/мин

Максимальная рабочая температура перекачиваемой воды,°С

UPE серии 100, 2000; UPED серии 2000

90

1,0

 

 

110

СН, CHI, CHIE

До 14

1,0

 

 

90

CR,CRN

До 120

До 4,5

 

 

120

CV, CPV

До 210

До 2,0

 

 

120

Насосные установки "Hydromulti CHI" и "Hydro 2000"

До 720

До 1,6

 

 

 

NK 40-250

41,8

0,77

15

2900

 

NK 65-315

41,8

1,28

37

 

 

Жокей-насосные агрегаты CR 4-100

2

0,94

2,2

2900

 

Жокей-насосные агрегаты CR 4-160

2

1,5

3

2900

 

Насосные установки пожаротушения высокого давления "Hydropac" (совместно с автоматическим водопитателем)

120

2,5

 

 

70

6.2.6. Основные параметры насосных агрегатов фирмы "SAER ELETTROPOMPE" [48]

Наименование насосного агрегата

Подача, м3

Максимальное рабочее давление, МПа

Число оборотов, об/мин

Максимальная рабочая температура перекачиваемой воды,°С

IR

От 4 до 225

1,0

2900

120

IR4P

От 3 до 450

1,0

1450

120

NCB

От 4 до 400

1,0

2900

120

От 3 до 600

1,0

1450

120

NCBZ-2p

От 4 до 400

1,0

2900

120

NCBZ-4p

От 3 до 600

1,0

1450

120

CWM

От 0,8 до 110

От 1,3 до 3,4

 

От 50 до 120

П6.3. ОСНОВНЫЕ ТЕХНИЧЕСКИЕ ПАРАМЕТРЫ РОБОТИЗИРОВАННОЙ УСТАНОВКИ ПОЖАРОТУШЕНИЯ УПР-1 ОАО "ТУЛЬСКИЙ ЗАВОД "АРСЕНАЛ"

Наименование параметра

Показатель

Расход воды при давлении 0,6 МПа, л/с, не менее

20

Дальность подачи, м, не менее:

 

- сплошной водяной струи при номинальном давлении воды в пожарной магистрали 0,6 МПа

40

- при максимальном угле распыла (70°) и рабочем давлении 0,6 МПа на входе лафетного ствола

8

Перемещение лафетного ствола в вертикальной плоскости относительно горизонтального положения насадка, град

От минус 45 до 90

Перемещение лафетного ствола в горизонтальной плоскости, град

180 (от крайнего левого положения)

Угловая скорость перемещения лафетного ствола в вертикальной и горизонтальной плоскостях в режиме подачи огнетушащего вещества, град/с

"1" - 7±2;

"2"-9+3-2;

"3" - 12+3-2

Мощность, потребляемая установкой от сети переменного однофазного тока 220 В, 50 Гц с колебанием напряжения от 10 до минус 15 %, В·А, не более:

 

- в дежурном режиме

50

- в рабочем режиме

750

Погрешность позиционирования лафетного ствола при движении, град, не более

2

Время непрерывной работы установки:

 

- в дежурном режиме, сут, не более

10

- в рабочем режиме, ч, не менее

1

Напряжение питания, В

220

Масса установки, кг

100

Габаритные размеры, мм, не более:

 

- лафетный ствол в транспортируемом состоянии

1200×600×400

- пульт управления

500×350×250

- блок управления приводами

400×350×250

П6.4. КАРТЫ ОРОШЕНИЯ ВОДЯНЫХ ОРОСИТЕЛЕЙ БИЙСКОГО ПО "СПЕЦАВТОМАТИКА"

ПРИЛОЖЕНИЕ 7

СПРАВОЧНИК БАЗОВЫХ ЦЕН НА ПРОЕКТНЫЕ РАБОТЫ ПО ПРОТИВОПОЖАРНОЙ ЗАЩИТЕ ОБЪЕКТОВ

Основные использованные источники: [43]

1. ОСНОВНЫЕ ПОЛОЖЕНИЯ

1.1. Справочник базовых цен на проектные работы для строительства* рекомендуется для определения базовых цен с целью последующего формирования договорных цен на разработку проектной документации систем противопожарной и охранной защиты предприятий, зданий, сооружений.

*Далее - справочник.

1.2. Справочник предназначен для применения организациями различных организационно-правовых форм, имеющими лицензию на выполнение соответствующих проектных работ для строительства и статус юридического лица согласно законодательству Российской Федерации.

1.3. Базовые цены в справочнике установлены в зависимости от натуральных показателей: площади, объема, количества защищаемых объектов проектирования без учета налога на добавленную стоимость.

1.4. Цены в справочнике учитывают все затраты, включаемые в состав себестоимости в соответствии с "Методическими рекомендациями по составу и учету затрат, включаемых в себестоимость проектной и изыскательной продукции (работ, услуг) для строительства, и формированию финансовых результатов", утвержденными Госстроем России 6 апреля 1994 года, и прибыль (кроме затрат на служебные командировки).

1.5. В справочнике приведены цены на индивидуальное проектирование вновь создаваемых систем противопожарной и охранной защиты на предприятиях, в зданиях и сооружениях, а также в отдельных помещениях зданий и сооружений.

1.6. Цены установлены применительно к порядку разработки, согласования, утверждения и составу проектной документации, регламентированным в установленном порядке.

1.7. Ценами справочника не учитываются:

- разработка альтернативных (возможных) вариантов проекта (рабочего проекта) или отдельных технологических, конструктивных, архитектурных и других решений, предусматриваемых в задании на проектирование;

- разработка рабочих чертежей на специальные вспомогательные сооружения, приспособления, устройства и установки для производства строительно-монтажных работ;

- внесение изменений в проектную документацию, связанных с введением новых нормативных документов, заменой заказчиком оборудования более прогрессивным, внесением изменений в задание на проектирование и т.п. (за исключением исправления ошибок, допущенных проектной организацией);

- разработка деталировочных чертежей металлических конструкций (КМД) и технологических трубопроводов заводского изготовления;

- обследование и обмерные работы на объектах, подлежащих оснащению системами противопожарной и охранной защиты;

- разработка конструкторской документации на оборудование индивидуального изготовления, в том числе щитов и пультов, за исключением составления исходных требований на конструирование этого оборудования;

- разработка технических заданий заводами на изготовление щитов автоматизации, электрического питания и сигнализации систем противопожарной и охранной защиты;

- изготовление демонстрационных макетов;

- осуществление авторского надзора;

- научно-исследовательские и опытно-экспериментальные работы, в том числе создание имитационного оборудования, отделочных средств, программ и методик испытаний;

- затраты на служебные командировки;

- разработка технической документации на проектирование автоматизированных систем управления технологическими процессами (АСУТП) противопожарной и охранной защиты;

- затраты на оплату работ по согласованию намечаемых проектных решений с органами местного самоуправления (администрациями), государственного надзора, в том числе противопожарной службы, и другими контролирующими организациями;

- затраты проектных организаций, связанные с осуществлением функции генпроектировщика, в том числе курирование проектных работ, выполняемых другими проектными организациями (допускается в размере 2 % от базовой цены работ, передаваемых на субподряд);

- затраты на передачу заказчику по его просьбе дополнительного количества проектной документации (сверх 4-х экз.)

1.8. Кроме того, ценами справочника не учитывается стоимость проектирования:

- внутриплощадочных сетей, относящихся к установкам пожаротушения, пожарной и охранной сигнализации (кроме сетей периметральной охранной сигнализации);

- зданий и сооружений, предназначенных для систем противопожарной и охранной защиты;

- удаления огнетушащих веществ после пожара и их очистки;

- решений по отключению (блокировке) при пожаре или несанкционированном проникновении: технологических процессов, оборудования, систем энерго- и жизнеобеспечения.

2. ПОРЯДОК ОПРЕДЕЛЕНИЯ БАЗОВЫХ ЦЕН НА ПРОЕКТНЫЕ РАБОТЫ

2.1. Базовая цена* разработки проектной документации (проект + рабочая документация) определяется по формуле

Ц = СKi,

где Ц - цена разработки проектной документации; С - цена проектной документации, определенная по таблицам, тыс. руб.; Ki - повышающий коэффициент**, отражающий инфляционные процессы на момент определения цены.

*Далее - цена.

**Значение повышающего коэффициента Ki изменяется ежеквартально. За справками необходимо обращаться в Госстрой России по адресу: г. Москва, ГСП, 119991, ул. Строителей, 8, корп. 2, тел. 930-55-02, тел./факс 157-39-42.

Уровень цен, содержащихся в таблицах, установлен по состоянию на 01.01.95 г. в масштабе цен, принятом с 1 января 1998 г.

2.2. Цена проектирования систем противопожарной и охранной защиты следующих предприятий, зданий и сооружений определяется по соответствующим таблицам с применением коэффициентов:

- объектов специального назначения - 1,4;

- технологических установок, расположенных вне здания, - 1,2;

- подземных выработок горнодобывающей промышленности - 1,2;

- ангаров технологического оборудования самолетов высотой более 20 м - 1,1;

- зданий, представляющих архитектурную и историческую ценность, - 1,3.

2.3. Цена разработки проектной документации рассчитывается исходя из суммарной защищаемой площади зданий и сооружений, входящих в состав объекта.

При этом, если объект имеет в своем составе идентичные здания и сооружения, защищаемая площадь этих зданий и сооружений, кроме одного, принимается с коэффициентом 0,5.

2.4. При использовании в проектной документации импортного оборудования, приборов и других технических средств, если они применяются проектной организацией впервые, цена проектирования определяется по соответствующим таблицам настоящего справочника с коэффициентом до 1,3.

2.5. Цена разработки проектной документации для защиты объектов принимается с коэффициентом:

- с наличием взрывоопасных производств и зон - 1,3;

- с наличием высоких (≥ 60°С) или низких (≤ минус 45°С) рабочих температур - 1,2;

- при необходимости выноса пожарного оборудования, оборудования системы оповещения и управления из здания (уличная установка) - 1,1.

2.6. Цена проектирования систем противопожарной и охранной защиты предприятий, зданий и сооружений, находящихся в сложных геолого-климатических условиях, определяется по ценам справочника с применением к ним коэффициентов, приведенных в табл. П7.1.

Таблица П7.1

Факторы, усложняющие проектирование

Коэффициент

Вечномерзлые, просадочные, набухающие грунты; карстовые и оползневые явления; расположение площадки строительства над горными выработками, в подтапливаемых зонах и т.п.

1,15

Сейсмичность 7 баллов

1,15

Сейсмичность 8 баллов

1,2

Сейсмичность 9 баллов

1,3

При наличии двух и более усложняющих факторов коэффициенты применяются за каждый фактор.

2.7. Распределение цены проектной документации, определяемой по справочнику на разработку проекта и рабочей документации, осуществляется согласно табл. П7.2 и может уточняться по соглашению между исполнителем и заказчиком.

Таблица П7.2

Вид документации

Процент от базовой цены

Проект (П)

25

Рабочая документация (Р)

75

Итого

100

Примечание. Цена рабочего проекта (РП) составляет 90 % от обшей цены.

2.8. Относительная стоимость проектной документации (в % от базовых цен) приведена в табл. П7.3.

Таблица П7.3

Объект проектирования

Стадия проектирования

Принципиальные решения, технико-экономический анализ

Технологическая часть

Автоматика и сигнализация

Сметная документация

Спринклерные установки

П

20

62

15

3

РП

20

59

14

7

Р

10

68

16

6

Дренчерные установки:

 

 

 

 

 

- с гидравлическим пуском

П

20

62

15

3

 

РП

20

59

14

7

 

Р

10

68

16

6

- с электрическим пуском

П

20

44

33

3

 

РП

20

42

31

7

 

Р

10

48

36

6

Насосные станции пожаротушения

П

-

48

49

3

РП

-

46

47

7

Р

-

46

48

6

Привязка типовых проектов резервуаров хранения огнетушащих веществ

П

-

72

25

3

РП

-

70

23

7

Р

-

70

24

6

3. ЦЕНЫ НА РАЗРАБОТКУ ПРОЕКТНОЙ ДОКУМЕНТАЦИИ

3.1. За объект принимается общая защищаемая площадь комплекса зданий и сооружений, находящихся на одной промплощадке предприятия и подлежащих оборудованию установками пожаротушения (водяные, газовые, модульные и импульсного действия). При наличии в защищаемых помещениях технологических площадок, фальшпотолков и фальшполов их площадь суммируется с основной площадью этих помещений.

3.2. Цена проектирования установок пожаротушения для зданий и сооружений со скрытой прокладкой инженерных коммуникаций определяется с коэффициентом 1,2.

3.3. Автоматические установим водяного пожаротушения

3.3.1. Цены на проектирование автоматических установок пожаротушения приведены в табл. П7.4.

Таблица П7.4

№ п/п

Площадь защищаемого объекта, м2

Цена разработки проектной документации, тыс. руб.

Спринклерные установки водяного пожаротушения

1

До 200

1,126

2

Св. 200 до 400

1,332

3

Св. 400 до 600

1,484

4

Св. 600 до 1000

1,894

5

Св. 1000 до 1500

2,228

6

Св. 1500 до 2000

2,532

7

Св. 2000 до 4000

3,226

8

Св. 4000 до 6000

4,378

9

Св. 6000 до 8000

5,528

10

Св. 8000 до 11000

6,680

11

Св. 11000 до 14000

7,832

12

Св. 14000 до 18000

9,214

13

Св. 18000 до 23000

10,596

14

Св. 23000 до 28000

11,978

15

Св. 28000 до 33000

13,362

16

Св. 33000 до 38000

14,746

17

Св. 38000 до 44000

16,382

18

Св. 44000 до 50000

17,764

Дренчерные установки водяного пожаротушения

19

До 25

1,024

20

Св. 25 до 50

1,178

21

Св. 50 до 100

1,588

22

Св. 100 до 150

2,048

23

Св. 150 до 200

2,300

24

Св. 200 до 400

3,326

25

Св. 400 до 600

4,350

26

Св. 600 до 800

5,374

27

Св. 800 до 1200

6,398

28

Св. 1200 до 1600

7,722

29

Св. 1600 до 2000

8,446

30

Св. 2000 до 2500

9,470

31

Св. 2500 до 3000

10,496

32

Св. 3000 до 3500

11,520

33

Св. 3500 до 4500

12,544

34

Св. 4500 до 5500

13,566

35

Св. 5500 до 6500

14,590

36

Св. 6500 до 8000

15,870

37

Св. 8000 до 9500

17,150

38

Св. 9500 до 12000

18,430

3.3.2. Ценами, приведенными в табл. П7.4, учитывается:

- выполнение проектных работ, связанных с обеспечением тушения пожара и автоматизацией установки;

- проектирование сигнализации о срабатывании спринклерных установок и дренчерных установок с гидравлическим пуском.

3.3.3. Ценами, приведенными в табл. П7.4, не учитывается:

- проектирование установок пожарной сигнализации для дренчерных АУП с электрическим пуском;

- проектирование средств оповещения о пожаре для установок со всеми способами пуска.

3.3.4. Цена проектирования установок пенного пожаротушения определяется с коэффициентом 1,3.

3.3.5. Цена проектирования спринклерных установок пожаротушения, совмещенных с внутренним противопожарным водопроводом (пожарными кранами или ручными пенными стволами), определяется с коэффициентом 1,1 к цене проекта и 1,15 - к цене рабочей документации и рабочего проекта.

3.3.6. Цена проектирования дренчерных установок пожаротушения с ручным управлением, завес, лафетных стволов, пожарных гидрантов определяется с коэффициентом 0,7.

3.3.7. При определении цены проектирования спринклерных установок, защищающих объект площадью свыше 50 тыс. м2, дополнительно к цене, приведенной в поз. 18 табл. П7.4, прибавляется 0,230 тыс. руб. на каждые 1000 м2 защищаемой площади.

3.3.8. При определении цены проектирования дренчерных установок, защищающих объект площадью свыше 12 тыс. м2, дополнительно к цене, приведенной в поз. 38 табл. П7.4, прибавляется 0,512 тыс. руб. на каждые 1000 м2 защищаемой площади.

3.3.9. Цена проектирования внутреннего противопожарного водопровода (с ручными пожарными кранами или ручными пенными стволами) на отдельной сети определяется в зависимости от площади с применением коэффициента 0,3.

3.3.10. Цена проектирования установок пожаротушения для складских помещений с высотным стеллажным складированием определяется с коэффициентом 1,19; при этом общая защищаемая площадь определяется как сумма защищаемых площадей под перекрытием (покрытием) и экранами внутри стеллажного пространства. В случае идентичности защищаемых стеллажных площадок сумма их определяется с коэффициентом 0,5.

3.3.11. Цена проектирования установок пожаротушения, предусмотренных одновременно и для защиты от пожара технологического оборудования, определяется с коэффициентом 1,15.

3.3.12. Цена проектирования дренчерных установок пожаротушения с применением для узлов управления запорной арматуры с электроприводом определяется с коэффициентом 1,14.

3.3.13. Цена проектирования дренчерных установок объемного пенного пожаротушения устанавливается с коэффициентом 1,16.

3.3.14. Цена проектирования воздушных спринклерных установок пожаротушения определяется с коэффициентом 1,3.

3.4. Насосные станции пожаротушения

3.4.1. Ценой, приведенной в табл. П7.5, учитывается проектирование насосной станции с одной группой пожарных агрегатов, включая резервный (имеющих одну характеристику, двигатель напряжением до 400 В), гидропневмобаками, автоматическим пуском насосов. При напряжении свыше 400 В на проектирование автоматики включения насосов вводится коэффициент 1,4.

Таблица П7.5

№ п/п

Объект проектирования

Цена разработки проектной документации, тыс. руб.

1

Насосные станции пожаротушения

2,048

3.4.2. Цена проектирования насосной станции определяется с коэффициентом:

1.1 - с двумя группами пожарных насосов, насосов-дозаторов или устройств для регулируемого введения пенообразующих веществ;

1.2 - с тремя группами пожарных насосов, насосов-дозаторов или устройств для регулируемого введения пенообразующих веществ;

1.3 - с четырьмя группами пожарных насосов, насосов-дозаторов или устройств для регулируемого введения пенообразующих веществ.

3.4.3. Цена проектирования насосной станции с двумя группами пожарных насосов при количестве более двух (включая резервные) в каждой группе определяется с коэффициентом 1,2.

3.4.4. Цена проектирования насосной станции установок пожаротушения с двигателем внутреннего сгорания определяется с коэффициентом 1,1.

3.4.5. Цена проектирования гидропневматических установок, станций для хранения и подачи огнетушащего вещества определяется с коэффициентом 0,6.

3.5. Цена разработки проектной документации по привязке типовых проектов резервуаров хранения огнетушащего вещества для установок водяного и пенного пожаротушения приведена в табл. П7.6.

Таблица П7.6

№ п/п

Количество резервуаров для хранения огнетушащих веществ автоматических установок пожаротушения

Цена разработки проектной документации, тыс. руб.

1

1

0,488

2

2

0,666

ПРИЛОЖЕНИЕ 8

ПЕРЕЧЕНЬ ЗДАНИЙ, СООРУЖЕНИЙ, ПОМЕЩЕНИЙ И ОБОРУДОВАНИЯ, ПОДЛЕЖАЩИХ ЗАЩИТЕ АВТОМАТИЧЕСКИМИ УСТАНОВКАМИ ПОЖАРОТУШЕНИЯ

(Использованы материалы НПБ 110-99*)

1. ОБЩИЕ ПОЛОЖЕНИЯ

1.1. В настоящем перечне использованы следующие термины и определения.

Здание - здание в целом или часть здания (пожарный отсек), выделенная противопожарными стенами 1-го типа.

Площадь помещения - часть здания или сооружения, выделенная ограждающими конструкциями, отнесенными к противопожарным преградам с пределом огнестойкости не менее 1,75 ч (перегородки EI 45, стены и перекрытия REI 45).

1.2. Тип автоматической установки пожаротушения, способ тушения, вид огнетушащих средств, тип оборудования установок пожарной автоматики определяются организацией-проектировщиком в зависимости от технологических, конструктивных и объемно-планировочных особенностей защищаемых зданий и помещений с учетом требований действующих нормативно-технических документов.

1.3. В зданиях и сооружениях следует защищать соответствующими автоматическими установками все помещения независимо от площади, кроме помещений:

- с мокрыми процессами (душевые, санузлы, охлаждаемые камеры, помещения мойки и т.п.);

- вентиляционных камер (приточных, а также вытяжных, не обслуживающих производственные помещения категории А или Б), насосных станций водоснабжения, бойлерных и других помещений для инженерного оборудования здания, в которых отсутствуют горючие материалы;

- помещений категорий В4 и Д по пожарной опасности;

- лестничных клеток.

1.4. Если площадь помещений, подлежащих оборудованию системами автоматического пожаротушения, составляет 40 % и более от общей площади этажей здания, сооружения, следует предусматривать оборудование здания, сооружения в целом системами автоматического пожаротушения, за исключением помещений, перечисленных в п. 1.3.

1.5. Категория зданий и помещений определяется в соответствии с НПБ 105-95.

1.6. Защита наружных технологических установок с обращением взрывопожароопасных веществ и материалов автоматическими установками пожаротушения определяется ведомственными нормативными документами, согласованными с Главным управлением Государственной противопожарной службы МЧС России и утвержденными в установленном порядке.

1.7. Здания, сооружения и помещения, не вошедшие в настоящий Перечень, оборудуются установками пожаротушения в соответствии с требованиями отраслевых (ведомственных) нормативных документов, утвержденных в установленном порядке.

1.8. Согласование проектов систем автоматической противопожарной защиты зданий, сооружений, помещений и оборудования в подразделениях Государственной противопожарной службы проводится в соответствии со СНиП 11-01 и НПБ 03-93.

1.9. Нумерация последующих пунктов приведена согласно соответствующим пунктам НПБ 110-99*.

2. ПЕРЕЧЕНЬ ЗДАНИЙ, ПОДЛЕЖАЩИХ ЗАЩИТЕ АВТОМАТИЧЕСКИМИ УСТАНОВКАМИ ПОЖАРОТУШЕНИЯ

Объект защиты

Нормативный показатель

2.1. Здания складов целлулоида и изделий из него, спичек, щелочных металлов

Независимо от площади и этажности

2.2. Здания складов шерсти, меха, драгоценных металлов и камней

То же

2.3. Здания складов фото-, кино-, аудиопленки на ацетатной основе при хранении 200 кг и более, а на горючей основе - независимо от количества

-"-

2.4. Здания складов полупроводниковых материалов, микросхем и других радиокомплектующих

-"-

2.5. Здания складов расходного запаса двигателей и агрегатов машин с наличием в них топлива и масел

-"-

2.6. Здания складов каучука, резины и резинотехнических изделий:

 

2.6.1. Одноэтажные

750 м2 и более1)

2.6.2. Двухэтажные и более

Независимо от площади

2.7. Здания складов категории В по пожарной опасности с высотой складирования на стеллажах 5,5 м и более

Независимо от площади и этажности

2.8. Здания складов категории В по пожарной опасности высотой два этажа и более (кроме указанных в пп. 2.1 - 2.7)

Независимо от площади

2.9. Здания хранения архивов, уникальных изданий, отчетов, рукописей и другой документации особой ценности

То же

2.10. Здания и сооружения для автомобилей:

 

2.10.1. Для хранения

По СНиП 21-02-99

2.10.2. Для технического обслуживания и ремонта

По ВСН 01-89

2.11. Здания высотой более 30 м (за исключением жилых зданий и производственных зданий категорий Г и Д по пожарной опасности)2)

Независимо от площади

2.12. Жилые здания3):

 

2.13. Одноэтажные здания из легких металлических конструкций с полимерными горючими утеплителями:

 

2.13.1. Общественного назначения

800 м2 и более

2.13.2. Административно-бытового назначения

1200 м2 и более

2.16. Здания предприятий торговли4);

 

2.16.1. Одноэтажные (за исключением п. 2.13):

 

2.16.1.1. При размещении торгового зала и подсобных помещений в цокольном или подвальном этажах

200 м2 и более

1)Здесь и далее в этой таблице указана общая площадь помещения.

2)Высота здания определяется в соответствии с требованиями СНиП 21-01-97 "Пожарная безопасность зданий и сооружений".

3)Помещения квартир и общежитий следует оборудовать автономными оптико-электронными дымовыми пожарными извещателями согласно СНиП 2.08.01.

4)Наряду с помещениями, указанными в п.1.4 настоящих норм, не следует предусматривать автоматические установки в помещениях хранения и подготовки к продаже мяса, рыбы, фруктов и овощей (в негорючей упаковке), металлической посуды, негорючих строительных материалов.

2.16.1.2. При размещении торгового и подсобных помещений зала в надземной части здания

При площади здания 3500 м2 и более

2.16.2. Двухэтажные:

 

2.16.2.1. Общей торговой площадью

3500 м2 и более

2.16.2.2. При размещении торгового зала в цокольном или подвальном этажах

Независимо от величины торговой площади

2.16.3. Трехэтажные и более

То же

2.16.4. Здания специализированных предприятий торговли по продаже легковоспламеняющихся и горючих жидкостей (за исключением п. 2.17 и расфасованного товара в таре вместимостью не более 20 л)

Независимо от площади

2.17. Автозаправочные станции (в том числе контейнерного типа), а также палатки, магазины и киоски, относящиеся к ним

По НПБ 111-98

2.19. Здания выставочных павильонов:

 

2.19.1. Одноэтажные (за исключением п. 2.12)

1000 м2 и более

2.19.2. Двухэтажные и более

Независимо от площади

3. ПЕРЕЧЕНЬ СООРУЖЕНИЙ, ПОДЛЕЖАЩИХ ЗАЩИТЕ АВТОМАТИЧЕСКИМИ УСТАНОВКАМИ ПОЖАРОТУШЕНИЯ

Объект защиты

Нормативный показатель

3.1. Кабельные сооружения1) электростанций

Независимо от площади

3.2. Кабельные сооружения подстанций напряжением, кВ:

 

3.2.1. 500 и выше

То же

3.3. Кабельные сооружения подстанций глубокого ввода напряжением 110 кВ с трансформаторами мощностью, MB·А:

 

3.3.1. 63 и выше

-"-

1)Кабельное сооружение - тоннели, каналы, подвалы, шахты, этажи, двойные полы, галереи, камеры, используемые для прокладки электрокабелей (в том числе совместно с другими коммуникациями.)

3.4. Кабельные сооружения промышленных и общественных зданий

Более 100 м3

3.5. Комбинированные тоннели производственных и общественных зданий при прокладке в них кабелей и проводов напряжением 220 В и выше в количестве, шт.:

 

3.5.1. Объемом более 100 м3

12 и более

3.9. Емкостные сооружения (резервуары) для наземного хранения легковоспламеняющихся и горючих жидкостей

По СНиП 2.11.03-93

3.11. Пространства за подвесными потолками и двойными полами при прокладке в них коммуникаций с изоляцией из горючих и трудногорючих материалов2)*:

 

3.11.1. Воздуховодов, трубопроводов или кабелей (проводов), в том числе при их совместной прокладке, с числом кабелей (проводов) более 12 напряжением 220 В и выше

Независимо от площади и объема

2)*1. Пространства за подвесными потолками и под двойными полами, кабельные сооружения автоматическими установками не оборудуются (за исключением пп. 3.1 - 3.3):

а) при прокладке кабелей (проводов) в стальных водогазопроводных трубах;

б) при прокладке трубопроводов и воздухопроводов с негорючей изоляцией;

в) при прокладке кабельных трасс с числом кабелей и проводов менее 5 напряжением 220 В и выше с изоляцией из горючих и трудногорючих материалов.

2. В пространствах за подвесными потолками в жилых и общественных зданиях с наличием в них только распределительных и групповых электрических сетей с числом кабелей (проводов) более 12 (напряжением 220 В и. выше), на которые распространяются требования гл. 7.1 ПУЭ, допускается использовать автоматическую пожарную сигнализацию при условии, что здание (помещение) в целом не подлежит защите автоматическим пожаротушением.

4. ПЕРЕЧЕНЬ ПОМЕЩЕНИЙ, ПОДЛЕЖАЩИХ ЗАЩИТЕ АВТОМАТИЧЕСКИМИ УСТАНОВКАМИ ПОЖАРОТУШЕНИЯ

Объект защиты

Нормативный показатель

Помещения складского назначения

4.1. Категорий А и Б по взрывопожарной опасности1)

300 м2 и более

4.2. Для хранения каучука, целлулоида и изделий из него, спичек, щелочных металлов, пиротехнических изделий и материалов, изделий радиоэлектронной техники и их комплектующих

Независимо от площади

4.3. Для хранения шерсти, меха и изделий из него; фото-, кино- и аудиопленки на горючей основе

То же

4.4. Категории В1 по пожарной опасности (кроме указанных в пп. 4.2, 4.3) при их размещении в этажах1):

 

4.4.1. Цокольном и подвальном

Независимо от площади

4.4.2. Надземных

300 м2 и более

4.5. Категорий В2 - В3 по пожарной опасности (кроме указанных в пп. 4.2, 4.3)2) при их размещении в этажах:

 

4.5.1. Цокольном и подвальном

300 м2 и более

4.5.2. Надземных

1000 м2 и более

Производственные помещения

4.6. Категорий А и Б по взрывопожарной опасности с обращением: легковоспламеняющихся и горючих жидкостей, сжиженных горючих газов, горючих пылей и волокон (кроме указанных в п. 4.11)1)

300 м2 и более

4.7. С наличием щелочных металлов при размещении в этажах:

 

4.7.1. Цокольном

300 м2 и более

4.7.2. Надземных

500 м2 и более

1) Требования не распространяются на помещения, расположенные в зданиях и сооружениях по переработке и хранению зерна.

2) Площадь помещений категории В3 допускается увеличивать на 20 %.

4.8. Категории В1 по пожарной опасности при размещении в этажах1):

 

4.8.1. Цокольном и подвальном

Независимо от площади

4.8.2. Надземных (кроме указанных в пп. 4.11 - 4.21)

300 м2 и более

4.9. Категорий В2 - В3 по пожарной опасности (кроме указанных в пп. 4.10 - 4.21) при их размещении в этажах1), 2):

 

4.9.1. Цокольном и подвальном:

 

4.9.1.1. Не имеющих выходов непосредственно наружу

300 м2 и более

4.9.1.2. Имеющих выходы непосредственно наружу

700 м2 и более

4.9.2. Надземных

1000 м2 и более

4.10. Маслоподвалы

Независимо от площади

4.11. Помещения для приготовления: суспензии из алюминиевой пудры, резиновых клеев; на основе ЛВЖ и ГЖ: лаков, красок, клеев, мастик, пропиточных составов. Помещения окрасочных, полимеризации синтетического каучука, компрессорных с газотурбинными двигателями, огневых подогревателей нефти, помещения с генераторами с приводом от двигателей, работающих на жидком топливе

То же

4.12. Помещения высоковольтных испытательных залов; помещения, экранированные горючими материалами

-"-

Помещения связи

4.17. Необслуживаемые и обслуживаемые без вечерних и ночных смен технические цеха оконечных усилительных пунктов, помещения промежуточных радиорелейных станций, передающих и приемных радиоцентров

Независимо от площади

1) Требования не распространяются на помещения, расположенные в зданиях и сооружениях по переработке и хранению зерна.

2) Площадь помещений категории В3 допускается увеличивать на 20 %.

Необслуживаемые аппаратные базовых станций сотовой системы подвижной радиосвязи и аппаратные радиорелейных станций сотовой системы подвижной радиосвязи

24 м2 и более

4.18. Помещения главных касс, бюро контроля переводов и зональных вычислительных центров почтамтов, городских и районных узлов почтовой связи общим объемом зданий:

 

4.18.1. 40 тыс. м3 и более

То же

4.19. Автозалы АТС, где устанавливается коммутационное оборудование квазиэлектронного и электронного типов совместно с ЭВМ, используемой в качестве управляющего комплекса, устройствами ввода-вывода, помещения электронных коммутационных станций, узлов, центров документальной электросвязи емкостью:

 

4.19.1. 10 тыс. и более номеров, каналов или точек подключения

Независимо от площади

4.20. Выделенные помещения управляющих устройств на основе ЭВМ автоматических междугородных телефонных станций при емкости станций:

 

4.20.1. 10 тыс. междугородных каналов и более

24 м2 и более

4.21. Помещения обработки, сортировки, хранения и доставки посылок, письменной корреспонденции, периодической печати, страховой почты

500 м2 и более

Помещения транспорта

4.22. Электромашинные, аппаратные, ремонтные, тележечные и колесные, разборки и сборки вагонов, ремонтно-комплектовочные, электровагонные, подготовки вагонов, дизельные, технического обслуживания подвижного состава, контейнерных депо, производства стрелочной продукции, горячей обработки цистерн, тепловой камеры обработки вагонов для нефтебитума, шпалопропиточные, цилиндровые, отстоя пропитанной древесины

Независимо от площади

4.23. Надземные и подземные помещения и сооружения метрополитенов и подземных скоростных трамваев

По нормативным документам субъектов Российской Федерации, утвержденным в установленном порядке

4.24. Помещения контрольно-диспетчерского пункта с автоматической системой, центра коммутации сообщений, дальних и ближних приводных радиостанций с радиомаркерами

Независимо от площади

4.25. Помещения демонтажа и монтажа авиадвигателей, воздушных винтов, шасси и колес самолетов и вертолетов

То же

4.26. Помещения самолетного и двигателеремонтного производств

-"-

4.27. Помещения для хранения транспортных средств, размещаемые в зданиях иного назначения (за исключением индивидуальных жилых домов) при их расположении:

-"-

4.27.1. В подвальных и подземных этажах (в том числе под мостами)

-"-

4.27.2. В цокольных и надземных этажах

При хранении 3 и более автомобилей

Помещения общественного назначения

4.29. Помещения для хранения и выдачи уникальных изданий, отчетов, рукописей и другой документации особой ценности (в том числе архивы операционных отделов)

Независимо от площади

4.30. Помещения хранилищ и для хранения служебных каталогов и описей в библиотеках и архивах с общим фондом хранения:

 

4.30.1. 500 тыс. единиц и более

То же

4.31. Выставочные залы3)

1000 м2 и более

4.32. Помещения для хранения музейных ценностей3)

Независимо от площади

3) Данное требование не распространяется на помещения:

- временно используемые для выставок (фойе, вестибюли и т.д.);

- где хранение ценностей производится в металлических сейфах.

4.33. Помещения в зданиях культурно-зрелищного назначения:

 

4.33.1. В кинотеатрах и клубах с эстрадами при вместимости зала более 700 мест при наличии колосников4)

Независимо от площади

4.33.2. В клубах со сценами размерами (м) 12,5×7,5; 15×7,5; 18×9 и 21×12 при вместимости зала менее 700 мест4)

То же

4.33.3. В клубах со сценами размерами (м) 18×9; 21×12 при вместимости зрительного зала более 700 мест, со сценами 18×12 и 21×15 независимо от вместимости, а также в театрах4), 5)

-"-

4.33.4. В концертных и киноконцертных залах филармоний вместимостью 800 мест и более

-"-

4.33.5. В складах декораций, бутафории и реквизита, столярных мастерских, фуражных, инвентарных и хозяйственных кладовых, помещениях хранения и изготовления рекламы, помещениях производственного назначения и обслуживания сцены, помещениях для животных, чердачном подкупольном пространстве над зрительным залом

-"-

4.34. Помещения хранилищ ценностей:

 

4.34.1. В банках

По ВНП 001-95/Банк России

4.34.2. В ломбардах

Независимо от площади

4.35. Съемочные павильоны киностудий

1000 м2 и более

4) Дренчеры устанавливаются под колосниками сцены и арьерсцены, под нижним ярусом рабочих галерей и соединяющими их нижними переходными мостиками, в сейфах скатанных декораций и во всех проемах сцены, включая проемы портала, карманов и арьерсцены, а также в части трюма, занятой конструкциями встроенного оборудования сцены и подъемно-опускных устройств.

5) Спринклерными установками оборудуются: покрытия сцены и арьерсцены, все рабочие галереи и переходные мостики, кроме нижних, трюм (кроме встроенного оборудования сцены), карманы сцены, арьерсцена, а также складские помещения, кладовые, мастерские, помещения станковых и объемных декораций, камера пылеудаления

4.36. Помещения (камеры) хранения багажа ручной клади (кроме оборудованных автоматическими ячейками) и склады горючих материалов в зданиях вокзалов (в том числе аэровокзалов) в этажах:

 

4.36.1. Цокольном и подвальном

Независимо от площади

4.36.2. Надземных

300 м2 и более

4.37. Помещения для хранения горючих материалов или негорючих материалов в горючей упаковке при расположении их:

 

4.37.1. Под трибунами любой вместимости в крытых спортивных сооружениях

100 м2 и более

4.37.2. В зданиях крытых спортивных сооружений вместимостью 800 и более зрителей

То же

4.37.3. Под трибунами вместимостью 3000 и более зрителей при открытых спортивных сооружениях

-"-

4.38. Помещения для размещения ЭВМ, связных процессоров и телекоммуникационных узлов сетей, архивов магнитных и бумажных носителей, графопостроителей, сервисной аппаратуры, системных программистов, систем подготовки данных, а также пространства под съемными полами и за подвесными потолками (за исключением персональных ЭВМ, размещаемых на рабочих местах пользователей и не требующих выделения зон обслуживания)

Независимо от площади

4.39. Помещения предприятий торговли, встроенные в здания другого назначения:

 

4.39.1. Подвальные и цокольные этажи

200 м2 и более

4.39.2. Надземные этажи

500 м2 и более

4.40. Помещения производственного и складского назначения, расположенные в научно-исследовательских учреждениях и других общественных зданиях

Оборудуются в соответствии с требованиями настоящей таблицы

5. ПЕРЕЧЕНЬ ОБОРУДОВАНИЯ, ПОДЛЕЖАЩЕГО ЗАЩИТЕ АВТОМАТИЧЕСКИМИ УСТАНОВКАМИ ПОЖАРОТУШЕНИЯ

Объект защиты

Нормативный показатель

5.1. Окрасочные камеры с применением ЛВЖ и ГЖ

Независимо от типа

5.2. Сушильные камеры

То же

5.3. Циклоны (бункеры) для сбора горючих отходов

-"-

5.4. Трансформаторы и реакторы:

 

5.4.1. Напряжением 500 кВ и выше

Независимо от мощности

5.4.2. Напряжением 220 - 330 кВ и выше, мощностью

200 MB·А и выше

5.4.3. Напряжением 110 кВ и выше, установленные у зданий гидроэлектростанций, с единичной мощностью

63 MB·А и выше

5.4.4. Напряжением 110 кВ и выше, установленные в камерах закрытых подстанций глубокого ввода и в закрытых распределительных установках электростанций и подстанций мощностью

63 МВ·А и выше

5.5. Масляные выключатели, установленные в закрытых распределительных устройствах

При массе масла 60 кг и более

5.6. Испытательные станции передвижных электростанций и агрегатов с дизель- и бензоэлектрическими агрегатами, смонтированными на автомашинах и прицепах

Независимо от площади

5.7. Стеллажи высотой более 5,5 м для хранения горючих и негорючих материалов в горючей упаковке

То же

5.8. Масляные емкости для закаливания

3 м3 и более

ПРИЛОЖЕНИЕ 9

ПРИМЕР РАСЧЕТА СПРИНКЛЕРНОЙ (ДРЕНЧЕРНОЙ) РАСПРЕДЕЛИТЕЛЬНОЙ СЕТИ ВОДЯНЫХ И ПЕННЫХ АУП

Подробный расчет распределительных сетей выполняется по алгоритму, описанному в разделе IV настоящего пособия.

Общий расход распределительной сети рассчитывается исходя из условия расстановки необходимого количества оросителей, обеспечивающих защиту расчетной площади, в том числе и в случае необходимости монтажа оросителей под технологическим оборудованием, площадками или вентиляционными коробами, если они препятствуют орошению защищаемой поверхности. Расчетная площадь принимается согласно НПБ 88-2001 в зависимости от группы помещений (см. табл. I.1.2 - I.1.4 настоящего пособия).

Рассмотрим пример противопожарной защиты помещения супермаркета с шириной торгового зала 21 м. Согласно НПБ 88-2001 торговые залы по степени пожарной опасности и функциональному назначению относятся к группе помещений I (см. табл. I.1.5 настоящего пособия). Нормативная интенсивность орошения таких помещений согласно НПБ 88-2001 составляет 0,08 л/(с·м2), а площадь для расхода воды - 120 м2 (см. табл. I.1.2 настоящего пособия).

Выбор оросителей производится в соответствии с техническими параметрами и эпюрами орошения. Предпочтение необходимо отдавать тем оросителям, которые имеют:

- при наименьшем давлении - наиболее близкую к нормативному значению эпюру орошения в пределах защищаемой площади;

- при разных давлениях - наибольшее отношение интенсивности орошения аналогичных эпюр защищаемой площади.

В пределах одного помещения должны использоваться только однотипные оросители с одинаковыми диаметрами выходных отверстий.

Из всего многообразия оросителей, выпускаемых ПО "Спецавтоматика" (г. Бийск), этим условиям наилучшим образом отвечают оросители СВН-10 (ДВН-10) при защищаемой площади 7,1 м2 (радиус 1,5 м). Эпюры орошения оросителей, выпускаемых ПО "Спецавтоматика"(г. Бийск), приведены в приложении 6 (подразд. П6.4).

Поэтому в качестве оросителей используем оросители типа СВН-10 (ДВН-10) (диаметр выходного отверстия 10 мм, коэффициент производительности K = 0,35). Количество оросителей в левой части рядка - 4, в правой - 3. Расстояние между оросителями li - принимается равным 3 м. Высота установки оросителей от пола - 4 м.

Так как орошение оросителем СВН-10 (ДВН-10) не ограничивается площадью зоны орошения Fор = 7,1 м2, то с учетом взаимного перекрытия периферийных областей условно предполагаем, что в пределах, близких к заданной интенсивности орошения, каждый ороситель защищает площадь, имеющую форму квадрата:

Fор =3·3 = 9 м2.

Расчет распределительной сети должен проводиться из условия срабатывания всех оросителей, наиболее удаленных от водопитателя и смонтированных на площади 120 м2, хотя при этом общая площадь защищаемого помещения может быть во много раз больше, а количество оросителей - достигать 800 (на одну секцию).

Схема и план распределительного трубопровода применительно к торговому залу супермаркета представлены соответственно на рис. П9.1 и П9.2.

Поскольку расстояние между оросителями и стенами не должно превышать половины расстояния между спринклерными оросителями (а точнее - половины расстояния, указанного в табл. I.1.2 настоящего пособия), количество оросителей, наиболее удаленных от водопитателя, защищающих зону площадью 120 м2, согласно рис. П9.2 составляет 14.

Рис. П9.1. Принципиальная схема водяной спринклерной и дренчерной АУП:

1 - насос; 2 - распределительный трубопровод; 3 - питающий трубопровод; 4 - ороситель; 5 - узел управления, 6 - подводящий трубопровод

Рис. П9.2. Распределительная сеть с семью оросителями типа СВН-10 (ДВН-10):

1 - 14 - оросители; li - расстояние между оросителями в рядке, lр - расстояние между рядками; SА - расстояние от крайних оросителей до стены А или В (по НПБ 88-2001 SАli/2); SБ - расстояние от наиболее удаленного рядка до стены Б (SБ = li/2); S - максимальная защищаемая площадь согласно распределительной сети

В идеальном случае, если площадь орошения не изменяется в зависимости от давления, то интенсивность орошения можно определить из соотношения

где iн - нормативное значение интенсивности орошения; iо, Pо - фиксированные значения интенсивности орошения и давления подачи, принятые по эпюре орошения оросителя; Qо - расход оросителя, соответствующий принятому фиксированному давлению эпюры орошения; Q, P - соответственно расход и давление подачи, обеспечивающие нормативное значение интенсивности орошения.

На практике, как правило, с изменением давления меняется и площадь орошения, причем чаще всего с повышением давления площадь орошения увеличивается.

Следовательно, по одному фиксированному значению iо при соответствующем Pо нельзя пользоваться вышеприведенной формулой - необходимо иметь набор эпюр орошения для варьируемых значений давления и высоты монтажа оросителя над полом.

Эпюры орошения и график реального расхода оросителя типа СВН-10 (ДВН-10) приведены в приложении 6 (подразд. П6.4) настоящего пособия [26].

Как следует из эпюр орошения, при повышении давления в 10 раз (с 0,05 до 0,5 МПа) интенсивность орошения в пределах площади, ограниченной радиусом 1,5 м, увеличивается с 0,045 до 0,150 л/(с·м2), или в

Методом интерполяции определяется давление, при котором средняя интенсивность орошения на площади Fор = 7,1 м2 (радиус R = 1,5 м2) составит iP = 0,08 л/(с·м2).

Интерполяцию проводим как по максимальному значению давления Pмакс = 0,5 МПа, так и по минимальному - Рмин = 0,05 МПа:

Принимаем значение давления подачи у "диктующего" оросителя P = 0,1 МПа.

По графику Q = f(P), приведенному в приложении 6 (подразд. П6.4) настоящего пособия, расход оросителя при давлении P = 0,1 МПа будет соответствовать ~ 1,2 л/с.

Уточняем расход из оросителя

что вполне удовлетворительно согласуется с графиком.

Поскольку согласно графику кривая на начальном участке (до 0,2 МПа) имеет больший угол наклона, то, следовательно, на этом участке и коэффициент производительности K должен иметь несколько большее значение, вследствие чего принимаем q = 1,2 л/с.

Таким образом, получаем начальные расчетные гидравлические параметры у "диктующего" оросителя:

q1 = Q = 1,2 л/с; P1 = 1,0 МПа.

При расходе оросителя q1 = 1,2 л/с расход, приходящийся на площадь Fор = 9 м2, составит:

qS=9 = iS = 0,08·9 = 0,72 л/с,

т.е. коэффициент полезного использования расхода при данном оросителе на площади Fор = 9 м2

Потери давления P на каком-либо участке li распределительного трубопровода определяются по формуле

P = AQ2li,

где A - удельное гидравлическое сопротивление трубопровода.

Значения удельного гидравлического сопротивления при различной степени шероховатости приведены в табл. IV.1.1, а удельной гидравлической характеристики - в табл. IV.1.2 настоящего пособия.

При проектировании распределительных, питающих и подводящих сетей необходимо исходить из тех соображений, что водяные и пенные АУП эксплуатируются, как правило, довольно длительное время без замены трубопроводов. Поэтому, если ориентироваться на удельное гидравлическое сопротивление новых труб, через определенное время их шероховатость увеличится, вследствие чего распределительная сеть уже не будет соответствовать расчетным параметрам по расходу и давлению.

В связи с этим принимается средняя шероховатость труб.

Ориентировочно диаметры распределительных рядков можно выбирать по числу установленных на трубопроводе оросителей. Взаимосвязь между наиболее часто используемыми диаметрами труб распределительных рядков, давлением и числом установленных спринклерных оросителей приведена в табл. IV.1.3 настоящего пособия.

Для левой ветви распределительного трубопровода в соответствии с данными табл. IV.1.3 принимаем следующие диаметры трубопроводов:

участок 1 - 2: d = 20 мм;

участок 2 - 3: d = 25 мм;

участок 3 - 4: d = 25мм;

участок 4 - a: d = 32 мм.

Расход первого оросителя 1 является расчетным значением Q1-2 на участке l1-2 между первым и вторым оросителями.

Таким образом, падение давления на участке l1-2 составит:

P1-2 = Ad20Q2i-2l1-2 = 1,15·(1,2)2·3 = 4,96 м = 0,05 МПа.

Давление у оросителя 2

P2 = P1 + P1-2 = 0,1 + 0,05 = 0,15 МПа.

Расход оросителя 2

Расчетный расход на участке между первым и вторым оросителями, т.е. на участке l1-2, составит:

Q1-2 = q1 + q2 = 1,2 + 1,36 = 2,56 л/с.

По расходу воды Q1-2 определяются потери давления на участке l2-3:

P2-3 = Ad25Q21-2l2-3 = 0,306·(2,56)2·3 = 6,01 м = 0,06 МПа.

Давление у оросителя 3

P3 = P2 + P2-3 = 0,15 + 0,06 = 0,21 МПа.

Расход оросителя 3

Расчетный расход на участке - между первым и третьим оросителями, т.е. на участке l1-3, составит:

Q1-3 = q1 + q2 + q3 = 1,2 + 1,36 + 1,6 = 4,16 л/с.

По расходу воды Q1-3 определяются потери давления на участке l3-4:

P3-4 = Ad25Q21-3l3-4 = 0,306·(4,16)2·3 = 15,9 м = 0,16 МПа.

Потери давления на участке трубопровода l3-4 при d = 25 мм очень высокие, поэтому на участке l3-4 принимаем диаметр трубопровода d = 32 мм. Тогда

P3-4 = Ad32Q21-3l3-4 = 0,066·(4,16)2·3 = 3,4 м = 0,034 МПа.

Давление у оросителя 4

P4 = P3 + P3-4 = 0,21 + 0,03 = 0,24 МПа.

Расход оросителя 4

Расчетный расход на участке между первым и четвертым оросителями, т.е. на участке l1-4, составит:

Q1-4 = q1 + q2 + q3 + q4 = 1,2 + 1,36 + 1,6 + 1,71 = 5,87 л/с.

По расходу воды Q1-4 определяются потери давления на участке l4-a(l4-a = 1,5 м):

P4-a = Ad32Q21-4l4-a = 0,066·(5,87)2·1,5 = 3,41 м = 0,04 МПа.

Давление в точке а

Pa = P4 + P4-a = 0,24 + 0,04 = 0,28 МПа.

В рядке I правая ветвь несимметрична левой ветви, поэтому последнюю рассчитывают отдельно и определяют для нее Qа-7.

Удельное гидравлическое сопротивление Aа-7 (или удельная гидравлическая характеристика Kа-7) правой ветви распределительного трубопровода зависит от диаметров участков трубопровода между оросителями 7 - 6, 6 - 5 и между оросителем 5 и точкой а(5 - а).

Давление правой ветви рядка I с оросителями 5 - 7 в точке а должно быть равно давлению левой ветви рядка I с оросителями 1 - 4, т.е. Pa = 0,28 МПа.

Расход воды в правой ветви рядка I при давлении 0,28 МПа составит:

где Ba-7 - гидравлическая характеристика правой ветви рядка I.

Участок l5-7 принимаем аналогичным участку l1-3, т.е. диаметры и длина трубопроводов будут равны:

участок a - 5: d = 32 мм, la-5 = 1,5 м;

участок 5 - 6: d = 25 мм, l5-6 = 3 м;

участок 6 - 7: d = 20 мм, l6-7 = 3 м.

При условной симметричности левой и правой ветвей рядка I (по три оросителя в каждой ветви) расход Q5-7 должен быть аналогичен расходу Q1-3, т.е. Q5-7 = 4,16 л/с.

По расходу Q5-7 воды определяются потери давления на участке la-5:

Pa-5 = Ad32Q25-7la-5 = 0,066·(4,16)2·1,5 = 1,71 м = 0,02 МПа.

Давление у оросителя 5 аналогично давлению у оросителя 3, т.е. Р5 = 0,21 МПа

Тогда давление в точке а для правой ветви рядка I составит:

Pa = P5 + Pa-5 = 0,21 + 0,02 = 0,23 МПа.

Гидравлическая характеристика правой ветви рядка I

Таким образом, расчетный расход правой части рядка I составит:

Общий расход рядка I

Принимается диаметр питающего трубопровода на участке la-b d = 40 мм.

По расходу Qa определяются потери давления на участке la-b:

Pa-b = Ad40Q2ala-b = 0,03·(10,47)2·3 = 9,86 м = 0,099 МПа.

Поскольку потери давления на участке la-b достаточно велики, то принимаем диаметр питающего трубопровода d = 50 мм. Тогда потери давления на участке la-b составят:

Pa-b = Ad50Q2ala-b = 0,008·(10,47)2·3 = 2,6 м = 0,03 МПа.

Давление в точке b составит:

Pb = Pa + Pa-b = 0,28 + 0,03 = 0,31 МПа.

Так как гидравлические характеристики рядков, выполненных конструктивно одинаково, равны, характеристика рядка II определяется по обобщенной характеристике расчетного участка трубопровода рядка I:

Расход воды из рядка II определяется по формуле:

Расчет всех следующих рядков, если они выполнены конструктивно одинаково, не проводится, так как при расчете общего расхода распределительной сети учитывается только то количество оросителей, которое расположено на защищаемой площади, равной нормативной.

Кольцевую сеть (см. рис. IV.1.9 настоящего пособия) рассчитывают аналогично тупиковой сети, но при 50 %-ном расчетном расходе воды по каждому полукольцу.

Результаты расчетов распределительной сети сведены в табл. П.9.1 (вариант 2).


Таблица П.9.1

Расчетные гидравлические параметры распределительных сетей

Вариант расчета

Рядок

Тип оросителя

Количество оросителей

Расстояние между оросителями в рядке li, м

Расстояние между рядками lр, м

Расстояние от оросителей до стены A (B) SA, м

Расстояние от рядка I до стены Б SБ, м

Диаметр трубопровода на участке одного рядка, мм

Давление, МПа

Расход воды из оросителей, л/с

m = ∑/Q

1 - 2

2 - 3

3 - 4

4 - 5

5 - 6

6 - 7

a - b

P1

Pa

Pb

Левая ветвь

л

n

p

1

2

3

4

1

I

СВН-10

(ДВН-10)

7

3

3

1,50

1,50

20

25

25

32/25

25

20

40

0,10

0,41

 

1,20

1,36

1,60

2,13

6,29

4,95

11,24

24,02

2,50

II

20

25

25

32/25

25

20

 

 

0,53

 

 

 

 

 

 

12,78

2

I

СВН-10

(ДВН-10)

7

3

3

1,50

1,50

20

25

32

32

25

20

50

0,10

0,28

 

1,20

1,36

1,60

1,71

5,87

4,60

10,47

21,48

2,24

II

20

25

32

32

25

20

 

 

0,31

 

 

 

 

 

 

11,01

3

I

СВН-10

(ДВН-10)

7

3

3

1,50

1,50

32

32

32

32

32

32

50

0,10

0,17

 

1,20

1,23

1,28

1,32

5,03

4,21

9,24

18,54

1,93

II

32

32

32

32

32

32

 

 

0,19

 

 

 

 

 

 

9,30

4

I

СВН-10

(ДВН-10)

5

4

4

2,50*

2

20

25

32

20

 

 

50

0,25

0,56

 

1,75

2,20

2,69

 

6,64

4,56

11,20

22,79

2,37

II

20

25

32

20

 

 

 

 

0,60

 

 

 

 

 

 

11,59

5

I

СВН-10

(ДВН-10)

5

4

4

2,50*

2

32

32

32

32

 

 

50

0,25

0,32

 

1,75

1,78

1,88

 

5,41

3,65

9,06

18,52

1,93

II

32

32

32

32

 

 

 

 

0,36

 

 

 

 

 

 

9,46

6

I

СВН-10

(ДВН-10)

6

3,5

4

1,75

2

32

32

32

32

32

 

50

0,25

0,33

 

1,75

1,78

1,88

 

5,41

5,41

10,82

22,59

2,28

II

32

32

32

32

32

 

 

 

0,37

 

 

 

 

 

 

11,77

7

I

CBB-12

(ДВВ-12)

6

3,5

4

1,75

2

32

32

32

32

32

 

50

0,11

0,167

 

1,58

1,60

1,75

 

4,93

4,93

9,86

20,60

2,15

II

32

32

32

32

32

 

 

 

0,20

 

 

 

 

 

 

10,74

8

I

CBB-12

(ДВВ-12)

6

3,5

4

1,75

2

20

25

32

25

20

 

50

0,11

0,41

 

1,58

2,15

2,82

 

6,55

6,55

13,1

26,98

2,81

II

20

25

32

25

20

 

 

 

0,46

 

 

 

 

 

 

13,88

9

I

CBH-12

(ДВН-12)

6

3,5

4

1,75

2

32

32

32

32

32

 

50

0,21

0,32

 

2,15

2,20

2,43

 

6,78

6,78

13,56

28,32

2,95

II

32

32

32

32

32

 

 

 

0,38

 

 

 

 

 

 

14,76

Примечания:

1 л - суммарный расход левой ветви рядка; n - суммарный расход правой ветви рядка; p - общий расход рядка; - общий расход распределительной сети.

2. Интенсивность орошения "диктующего" оросителя подбирается методом интерполяции по эпюрам орошения площади радиусом R = lp.

3. По НПБ 88-2001 не допускается установка пяти оросителей в рядке для помещения шириной 21 м, так как расстояние от оросителя до стены А или стены В (SA или SB) не должно превышать 2 м или 50 %  от расстояния /, между оросителями в рядке (см. рис. П9.3).


Основные гидравлические параметры распределительной сети по варианту 2: давление Pb = 0,31 МПа, коэффициент увеличения расхода m = 2,24 (отношение рассчитанного по данной методике расхода к расходу, определенному по НПБ 88-2001), общий расход ∑ = 21,48 л/с.

Для сравнения в табл. П.9.1 сведены результаты расчетов при изменении диаметров некоторых участков распределительного и питающего трубопроводов, типа оросителей и их количества (и соответственно расстояния между ними).

На практике при четырех оросителях на одной из ветвей диаметры трубопроводов между оросителями выбираются по схеме 20 - 25 - 25 - 32 - а, а диаметр питающего трубопровода между последним и предпоследним рядками - da-b = 40 мм. Если используется такая схема распределительного трубопровода 20 - 25 - 25 - 32 - а - 25 - 25 - 20, то давление Pb = 0,53 МПа, коэффициент увеличения расхода m = 2,5, общий расход ∑ = 24,02 л/с (см. табл. П.9.1, вариант 1).

При изменении диаметра трубопровода между рядками I и II с da-b = 40 мм на da-b = 50 мм, а также диаметров трубопроводов на участке между оросителями 3 и 4, между точкой а и оросителем 5 с d = 25 мм на d = 32 мм (схема 20 - 25 - 32 - 32 - а - 32 - 25 - 20), несколько снижается коэффициент увеличения расхода m = 2,24, общий расход ∑ = 21,48 л/с, но особенно заметно уменьшается давление - Pb = 0,31 МПа (вариант 2).

Таким образом, даже незначительное изменение спецификации распределительного и питающего трубопроводов в сторону уменьшения диаметра приводит к достаточно существенному изменению давления, что требует использования пожарного насоса с большим напором подачи.

Наибольший эффект по снижению общего расхода и давления наблюдается, если реализовывается вариант, в котором все участки трубопроводов между оросителями распределительной сети выполнены из труб диаметром d = 32 мм. В этом случае Pb = 0,19 МПа, m = 1,93 и ∑ = 18,54 л/с (вариант 3).

Если использовать в рядке только пять оросителей с одинаковым диаметром труб d = 32 мм на всех участках распределительного трубопровода между оросителями (рис. П9.3, вариант 5), то общий расход практически аналогичен варианту 3 (m = 1,93, ∑ = 18,52 л/с), однако давление значительно выше - 0,36 МПа против 0,19 МПа (по варианту 3).

Рис. П9.3. Распределительная сеть с пятью оросителями типа СВН-10 (ДВН-10):

1 - 10 - оросители; li - расстояние между оросителями в рядке; lр - расстояние между рядками; Sa - расстояние от крайних оросителей до стены А или В (по НПБ 88-2001 SАli/2); SБ - расстояние от наименее удаленного рядка до стены Б (SБ = li/2); S - максимальная защищаемая расчетная площадь

Если использовать вариант 4, отличающийся от варианта 5 различным диаметром трубопроводов на различных участках распределительной сети (20 - 25 - 32 - 32 - а - 32 - 20), то и давление, и расход существенно возрастают: Pb = 0,60 МПа, m = 2,37, ∑ = 22,79 л/с.

При шести оросителях в рядке расстояние между ними оставляет li = 3,5 м, между стеной Б и наиболее удаленным рядком - Sб = 2 м, между стеной А (стеной В) и крайними оросителями в рядках - SА = 1,75 м, между рядками - Sa-b = 4 м.

Поскольку расстояние между рядками принимается Sa-b = 4 м, то рассматриваем эпюру орошения на площади зоны радиусом R = 2 м, т.е. защищаемая каждым оросителем площадь принимается не Fор = 12 м2, a Fор = 3,5·4 = 14 м2.

Если использовать вариант 6 (рис. П9.4) с шестью оросителями аналогичного типа СВН-10 (ДВН-10), то по сравнению с вариантом 3 (отличающимся от варианта 6 только количеством оросителей: 7 против 6) давление возрастает почти в 2 раза, а расход - на 4 л/с: Pb = 0,37 МПа, m = 2,28 и Q = 22 л/с.

Рис. П9.4. Распределительная сеть с шестью оросителями типа СВН-10 (ДВН-10), СВВ-12 (ДВВ-12) или СВН-12 (ДВН-12):

1 - 12 - оросители; li - расстояние между оросителями в рядке; lр - расстояние между рядками; Sa - расстояние от крайних оросителей до стены А или В (по НПБ 88-2001 SАli/2); SБ -расстояние от наименее удаленного рядка до стены Б (SБ = li/2); S - максимальная защищаемая расчетная площадь

Если использовать шесть оросителей типа СВВ-12 (ДВВ-12) (диаметр выходного отверстия 12 мм, коэффициент производительности m - 0,47) с одинаковым диаметром трубопроводов между оросителями d = 32 мм (вариант 7), то давление подачи практически аналогично варианту 3 (семь оросителей типа СВН-10 или ДВН-10), а расход отличается приблизительно на 2 л/с: Pb = 0,20 МПа, m = 2,15, ∑ = 20,60 л/с.

При использовании таких же оросителей, при различных диаметрах трубопроводов и прочих равных условиях (вариант 8) существенно возрастают и давление, и расход: Pb = 0,46 МПа, m = 2,81, ∑ =26,98 л/с.

Эпюры орошения оросителей СВН-10 (ДВН-10) и СВВ-12 (ДВВ-12) близки к идеальным, так как отношение их интенсивности орошения при давлениях 0,5 и 0,05 МПа близко к идеальному:

Если выбрать ороситель, у которого это отношение меньше, например ороситель СВН-12 или ДВН-12 (при R = 1,5 м ; при R = 2 м: ), то и гидравлические параметры распределительной сети будут значительно хуже.

Например, при одинаковом диаметре распределительного трубопровода d = 32 мм и использовании оросителя СВН-12 или ДВН-12 (варианта 9), у которого коэффициент производительности и диаметр выходного отверстия аналогичны оросителям СВВ-12 или ДВВ-12 (соответственно K = 0,47, a d = 12 мм), гидравлические параметры распределительной сети наихудшие: Pb = 0,38 МПа, m = 2,95, ∑ = 28,32 л/с.

Суммарный расход распределительной сети не зависит от того, сколько на ней смонтировано оросителей (по НПБ 88-2001 допускается до 800). Если расход определять как произведение нормативной интенсивности орошения на площадь для расчета расхода воды (см. табл. I.1.2), то расход составит:

Qн = i0,08S120 = 0,08·120 = 9,6 л/с,

т.е., как следует из табл. П.9.1, расчетный расход, определенный по приведенной методике, превышает более чем в 2 раза нормативное значение, регламентируемое НПБ 88-2001 (колонка т = I/QHnE).

Оптимизацию распределительной сети можно проводить по количеству оросителей, расходу или давлению.

Согласно табл. П.9.1 наилучшие гидравлические параметры для рассматриваемой защищаемой площади присущи распределительной сети, выполненной по вариантам 3 и 6. Вариант 3 проигрывает варианту 6 по количеству оросителей.

Если в секции (например, дренчерной АУП) находится небольшое количество оросителей, то целесообразно реализовать вариант 3, так как в этом случае требуется меньший расход.

Если количество оросителей в секции велико (например, спринклерной АУП), то целесообразнее использовать вариант 6, поскольку в этом случае достигается существенное преимущество за счет уменьшения общего количества оросителей.

ПРИЛОЖЕНИЕ 10

ПРИМЕР РАБОЧЕГО ПРОЕКТА ВОДЯНОЙ АУП

ОБЪЕКТ:

РЕКОНСТРУКЦИЯ ГОСТИНИЦЫ "ТУРИСТ"

г. Щекавцево Московской области

СТАДИЯ:

РАБОЧИЙ ПРОЕКТ 25/02-2001 АПТ

РАЗДЕЛ:

АВТОМАТИЧЕСКАЯ УСТАНОВКА СПРИНКЛЕРНОГО ПОЖАРОТУШЕНИЯ

 

1. ФАЗА РЕКОНСТРУКЦИИ

Главный инженер проекта

ЛИЦЕНЗИЯ №

"Технические решения, принятые в проекте, соответствуют требованиям экологических, санитарно-гигиенических, противопожарных и других норм, действующих на территории Российской Федерации, и обеспечивают безопасную для жизни и здоровья людей эксплуатацию объекта при соблюдении предусмотренных в проекте мероприятий".

МОСКВА 2001

СОДЕРЖАНИЕ

ПОЯСНИТЕЛЬНАЯ ЗАПИСКА

АВТОМАТИЧЕСКАЯ УСТАНОВКА ВОДЯНОГО ПОЖАРОТУШЕНИЯ

1. Общие данные

2. Назначение автоматической установки пожаротушения

3. Насосная станция

4. Основные принципы работы установки пожаротушения

4.1. Исходные данные

4.2. Принципиальная схема работы насосной станции

4.3. Работа спринклерной установки

4.4. Работа дренчерной установки

5. Расчет установки

5.1. Общие положения

5.2. Гидравлический расчет спринклерной установки пожаротушения (зона 1)

5.3. Гидравлический расчет спринклерной установки пожаротушения (зона 2, секция 1)

6. Сведения об организации производства и ведении монтажных работ насосной станции установки водяного пожаротушения. Мероприятия по охране труда и технике безопасности

1. ОБЩИЕ ДАННЫЕ

Проектно-сметная документация выполнена в соответствии с действующими нормативно-техническими документами:

- СНиП 2.04.01-85*. Внутренний водопровод и канализация зданий.

- СНиП 11.01-95. Инструкция о порядке разработки, согласования, утверждения и составе проектной документации на строительство предприятий, зданий и сооружений.

- СНиП 2.08.02-89*. Общественные здания и сооружения.

- СНиП 2.01.02-85*. Противопожарные нормы.

- НПБ 88-2001. Установки пожаротушения и сигнализации. Нормы и правила проектирования.

- НПБ 110-99*. Перечень зданий, сооружений, помещений и оборудования, подлежащих защите автоматическими установками пожаротушения и автоматической пожарной сигнализацией.

- ППБ 01-93**. Правила пожарной безопасности в Российской Федерации.

- ВСН 25-09.67-85. Правила производства и приемки работ. Автоматические установки пожаротушения.

Согласно нормам Государственной противопожарной службы НПБ 110-99* все реконструируемые помещения объекта оборудуются автоматической установкой пожаротушения за исключением:

- помещений с мокрым процессом (душевые, санузлы, охлаждаемые камеры, помещения мойки и т.д.);

- вентиляционных камер, насосных водоснабжения, бойлерных и других помещений инженерного оборудования здания, в которых отсутствуют горючие материалы;

- лестничных клеток.

Воротные и дверные проемы между помещениями, где предусмотрена система автоматического водяного пожаротушения, и внутренними помещениями блокируются дренчерными завесами.

В качестве огнетушащего вещества принята вода.

Источником водоснабжения проектируемого объекта служит городской водопровод.

Проект автоматической установки спринклерного пожаротушения разработан для 1-й фазы реконструкции объекта, включающей в себя защиту помещений 1, 16, 17, 18 и 19-го этажей здания гостиницы.

Насосная установка разработана с учетом обеспечения водоснабжением комплектного объекта.

2. НАЗНАЧЕНИЕ АВТОМАТИЧЕСКОЙ УСТАНОВКИ ПОЖАРОТУШЕНИЯ

2.1. Спринклерная установка пожаротушения предназначена для обнаружения и тушения пожара с одновременной сигнализацией в помещение дежурного персонала о начале работы установки и для включения звукового оповещения о пожаре.

Защищаемые отапливаемые помещения оборудованы принудительной вентиляцией.

По степени опасности развития пожара комплектное здание относится к 1-й группе (см. табл. I.1.2 настоящего пособия):

- интенсивность орошения - 0,08 л/(с·м2);

- площадь для расчета расхода воды - 120 м2;

- продолжительность работы - 30 мин. Предусматривается водозаполненная спринклерная установка.

В установке применены сигнальные клапаны диаметром 80 мм в комплекте с обвязкой фирмы "VIKING".

Установка принимается из двух зон, каждая из которых обслуживается отдельной группой повысительных пожарных насосов, а именно:

- зона 1 - помещения нижнего подвала, цокольного этажа, 1, 2, 3 и 4-го этажей;

- зона 2 - 5 - 21-й этажи включительно.

Кроме этого, каждый этаж оборудуется сигнализаторами потока жидкости типа VSR-F "VIKING". В качестве оросителей приняты:

- водяные оросители с плоской розеткой фирмы "VIKING" типа "Micromatic Model М Standard Response" с колбой 5 мм, 1/2", 68°С, K = 79 (установка розеткой вниз);

- настенные оросители фирмы "VIKING" типа "Micromatic Model М Horizontal Sidewall" с колбой 5 мм, 1/2", 68°С, K = 79 с площадью орошения до 12 м2;

- водяные дренчерные оросители фирмы "VIKING" с плоской розеткой типа "Micromatic Window Sprinkler Model С-1", 1/2", K = 84.

Планировка оросителей и их количество принимаются из расчета обеспечения необходимой интенсивности орошения в защищаемых помещениях. Расстояния между оросителями принимаются с учетом нормативных требований, конструкции перекрытия, расположения вентиляции и светильников, но не более 2 м от стен и не более 4 м между оросителями.

В каждой секции не превышается максимальное нормативное количество оросителей - 800 на один сигнальный клапан.

2.2. Водяные дренчерные завесы дверных, лестничных и воротных проемов предназначены для предотвращения распространения пожара из защищаемого помещения. Завесы устанавливаются только с внутренней стороны защищаемых помещений.

В качестве оросителей приняты водяные дренчерные оросители типа 1/2", K = 79 с плоской розеткой, устанавливаемые розетками вниз под углом 45° к плоскости защищаемого проема. Дренчерные оросители для орошения дверных проемов устанавливаются из расчета интенсивности орошения не менее 1 л/с на 1 м ширины проема (см. таблицу).

Наименование защищаемого помещения

Зона

Секция

Интенсивность орошения, л/(с·м2)

Количество оросителей

спринклерных настенных

спринклерных розеткой вниз

дренчерных розеткой вниз

1 этаж

№ 1

1

0,08

0

120

3

16 этаж

№ 2

2, 3

0,08

66

38

0

17 этаж

№ 2

4, 5

0,08

66

38

0

18 этаж

№ 2

6, 7

0,08

66

38

0

19 этаж

№2

8, 9

0,08

66

38

0

Итого

1

0,08

0

120

3

№ 2

0,08

264

154

0

№ 1 + № 2

0,08

264

272

3

3. НАСОСНАЯ СТАНЦИЯ

Для обеспечения потребных давлений воды в системе спринклерного пожаротушения комплектного здания гостиницы предусмотрена насосная станция, размещенная в помещении № 6 цокольного этажа здания.

Помещение станции отделено от других помещений противопожарными перегородками с пределом огнестойкости 0,75 ч. Выход из помещения станции предусмотрен наружу.

Температура воздуха в станции составляет 5 - 35°С, относительная влажность воздуха - не более 80 % при 25°С; освещение не менее 100 лк соединяется с аварийным освещением.

Станция оборудуется телефонной связью с диспетчерским помещением, в котором несет круглосуточное дежурство дежурный персонал.

У входа в станцию предусматривается световое табло "Насосная станция" (соединяется с аварийным освещением).

Водоснабжение разделяется на две зоны:

зона 1 охватывает помещения нижнего подвала, цокольного этажа и этажи с 1-го по 4-й включительно;

зона 2 охватывает этажи с 5-го по 21-й включительно, причем 2-я зона разбита на три секции:

секция 3 - 5, 6, 7, 8, 9 и 10-й этажи;

секция 2 - 11, 12, 13, 14 и 15-й этажи;

секция 1 - 16, 17, 18, 19, 20 и 21-й этажи.

Сигнальные спринклерные клапаны фирмы "VIKING" установлены соответственно:

- в помещении насосной станции - для обслуживания зоны 1;

- на 5-м этаже - для обслуживания секции 3 зоны 2 (2-я фаза реконструкции);

- на 11-м этаже - для обслуживания секции 2 зоны 2;

- на 16-м этаже - для обслуживания секции 1 зоны 2.

Для каждой зоны предусматриваются по два насоса (один рабочий и один резервный), подсоединенные к городскому водопроводу - два ввода Dy = 80. Диаметр городского водопровода составляет Dy = 200 мм. Минимальное давление водопроводной сети составляет 0,1 МПа. Из-за возможности колебаний давления на напорных трубопроводах устанавливаются регулирующие клапаны, которые беспрерывно обеспечивают расчетное давление для 1-й и 2-й зон соответственно.

Производительность насосных установок 1-й и 2-й зон принята из учета обеспечения расхода воды Q = 46,8 м3/ч.

В помещении насосной станции устанавливается следующее оборудование:

- спринклерный сигнальный клапан фирмы "VIKING" Dy = 80 мм для секции 1;

- два насоса фирмы "GRUNDFOS" марки NK 40-250 (расход Q = 46,8 м3/ч, давление подачи P = 0,63 МПа, число оборотов n = 2900 об/мин) с электродвигателем мощностью N = 15 кВт - для насосной установки 1-й зоны;

- два насоса фирмы "GRUNDFOS" марки NK 65-315 (расход Q = 46,8 м3/ч, давление подачи Р = 1,3 МПа, число оборотов n = 2900 об/мин) с электродвигателем мощностью N = 37 кВт - для насосной установки 2-й зоны;

- жокей-насос фирмы "GRUNDFOS" марки CR 4-100, мощностью N = 2,2 кВт - для насосной установки 1-й зоны;

- жокей-насос фирмы "GRUNDFOS" марки CR 4-160, мощностью N = 3 кВт - для насосной установки 2-й зоны;

- мембранные напорные гидробаки фирмы "GRUNDFOS" на выходе установки 1-й и 2-й зон вместимостью 18 л;

- четыре клапана-регулятора давления Model 127-3FC;

- шкафы электроуправления;

- запорная арматура.

В случае необходимости предусматривается подача воды в сеть установки водяного пожаротушения мобильными средствами.

Для присоединения рукавов передвижных пожарных насосов (мотопомп) и пожарных машин от напорной линии насосной станции автоматического пожаротушения выведены наружу два патрубка (для каждой зоны) диаметром 80 мм со стандартными соединительными напорными пожарными головками ГМ-80 для пожарного оборудования. Внутри станции на этих трубопроводах установлены обратные клапаны, а снаружи - задвижки.

4. ОСНОВНЫЕ ПРИНЦИПЫ РАБОТЫ УСТАНОВКИ ПОЖАРОТУШЕНИЯ

4.1. Исходные данные

Автоматическая установка пожаротушения состоит из следующих основных элементов:

- насосной станции автоматического пожаротушения с системой входных (всасывающих) и подводящих (напорных) трубопроводов;

- узлов управления с системой питающих и распределительных трубопроводов с установленными на них спринклерными оросителями.

4.2. Принципиальная схема работы насосной станции

В дежурном режиме эксплуатации питающие и распределительные трубопроводы спринклерных установок постоянно заполнены водой и находятся под давлением, обеспечивающим постоянную готовность к тушению пожара. Жокей-насос 1-й зоны включается при срабатывании сигнализатора давления при давлении в подводящем трубопроводе Р = 0,74 МПа и выключается при давлении Р = 0,79 МПа. Жокей-насос 2-й зоны включается при Р = 0,57 МПа и выключается при Р = 0,62 МПа.

При пожаре, когда давление на жокей-насосе (в питающем трубопроводе) 1-й зоны (2-й зоны) падает до 0,69 (0,52) МПа, при срабатывании сигнализатора давления включается рабочий пожарный насос, обеспечивающий полный расход. Одновременно при включении пожарного насоса подается сигнал пожарной тревоги в систему пожарной безопасности объекта.

Если электродвигатель рабочего пожарного насоса не включается или насос не обеспечивает расчетного давления (0,84 МПа - 1-я зона и 0,67 МПа - 2-я зона), то через 10 с включается электродвигатель резервного пожарного насоса. Импульс на включение резервного насоса подается от сигнализатора давления, установленного на напорном трубопроводе рабочего насоса.

При включении рабочего пожарного насоса жокей-насос автоматически отключается.

После ликвидации очага пожара прекращение подачи воды в систему производится вручную, для чего отключаются пожарные насосы и закрывается задвижка перед узлом управления.

4.3. Работа спринклерной установки

При возникновении загорания в помещении, защищаемом спринклерной секцией, и повышении температуры воздуха более 68°С разрушается тепловой замок (стеклянная колба) спринклерного оросителя. Вода, находящаяся в распределительных трубопроводах под давлением, выталкивает клапан, перекрывающий выходное отверстие спринклера, и он вскрывается.

Вода из спринклерного оросителя поступает в помещение; давление в сети падает. При падении давления на 0,1 МПа срабатывают сигнализаторы давления, установленные на напорном трубопроводе, подается импульс на включение рабочего насоса.

Насос забирает воду из городской водопроводной сети, минуя водомерный узел, и подает ее в систему трубопроводов установки пожаротушения. При этом жокей-насос автоматически отключается.

Сигнализаторы потока жидкости фирмы "VIKING" типа VSR-F при возникновении пожара на одном из этажей дублируют сигналы о срабатывании установки водяного пожаротушения (тем самым идентифицируя место загорания) и одновременно отключают систему энергопитания соответствующего этажа.

Одновременно с автоматическим включением установки пожаротушения в помещение пожарного поста с круглосуточным пребыванием оперативного персонала передаются сигналы о пожаре, включении насосов и начале работы установки в соответствующем направлении. При этом световая сигнализация сопровождается звуковой.

4.4. Работа дренчерной установки

При возникновении пожара создание дренчерной завесы осуществляется путем открытия крана ручного включения, установленного на побудительной сети дренчерной установки дверных и воротных проемов.

При открывании крана ручного включения давление воды в сети падает. Дальнейшая работа установки аналогична описанной выше (см. п. 4.3).

Краны ручного включения монтируются непосредственно у защищаемых проемов на высоте 1,35 м от пола. Каждый кран ручного включения оборудуется приспособлением для опломбирования и биркой с запрещением его открывать в эксплуатационном режиме.

5. РАСЧЕТ УСТАНОВКИ

5.1. Общие положения

Для выбора оборудования и схемы спринклерной АУП производится расчет расхода воды на эти нужды и необходимого давления.

Гидравлический расчет выполняется на ЭВМ в соответствии с требованиями НПБ 88-2001. По результатам расчета определяются диаметры распределительных, питающих и подводящих трубопроводов, общий расход воды и давление возле узлов управления и оросителей.

Суммарный расчетный расход воды на спринклерную установку и на две водяные завесы с учетом неравномерности давления перед оросителями составляет 13 л/с (46,8 м3/ч).

Гидравлический расчет сети производится на самый удаленный и высоко расположенный ("диктующий") ороситель.

Расчетный расход Q (л/с) через "диктующий" ороситель определяется по формуле:

где K - коэффициент производительности оросителя; Р - давление перед оросителем, МПа.

Расход через следующие оросители, расположенные на этой же и следующих ветвях распределительного трубопровода, определяется с учетом расчетного давления соответствующего оросителя.

Суммарный расход определяется по формуле:

Q = ∑qi

где qi - расход через каждый соответствующий ороситель.

Потери давления P(МПа) на расчетном участке трубопроводов определяются по формуле:

где Q - расход воды, м3/с; Bm - характеристика трубопроводов, л6/(с2·м).

Характеристика трубопроводов определяется по формуле:

где l - длина расчетного участка, м; Km - удельная характеристика трубопровода, принимаемая в зависимости от диаметра трубопровода, л62.

Потери давления Р (МПа) в спринклерном сигнальном клапане определяются по формуле:

P = 100εQ2,

где ε - коэффициент потерь давления в спринклерном сигнальном клапане; Q - расход воды через сигнальный клапан, л/с.

Требуемое давление, которое должна обеспечивать насосная установка, определяется по формуле:

P = P1+ P2+ P3+ P4+ P5+ P6- Pм,

где P1 - давление у "диктующего" оросителя; P2 _ давление, эквивалентное геометрической высоте "диктующего" оросителя; P3 - линейные потери давления в трубопроводе; P4 - местные потери давления в трубопроводе: P4 = 0,2P3; P5 - потери давления в спринклерном сигнальном клапане; P6 - потери давления в насосной установке, Pм - давление подпора магистральной сети перед насосом.

5.2. Гидравлический расчет спринклерной установки пожаротушения (зона 1)

Давление у "диктующего" оросителя P1 = 0,210 МПа.

Давление, эквивалентное геометрической высоте "диктующего" оросителя, P2 = 20,5 м = 0,205 МПа.

Линейные потери давления в трубопроводе P3 = 0,245 МПа (в том числе до узла управления 0,075 МПа).

Местные потери давления в трубопроводе P4 = 0,049 МПа (в том числе до узла управления 0,015 МПа).

Потери давления в спринклерном сигнальном клапане P5 = 0,011 МПа.

Потери давления в насосной установке P6 = 0,065 МПа.

Давление подпора магистральной сети перед насосом Pм = 0,2 МПа.

Давление подачи насоса с учетом давления подпора магистральной сети должно составлять не менее 0,59 МПа.

Выбираем центробежный насос фирмы "GRUNDFOS" типа NK 40-250 с рабочим колесом диаметром 247 мм и числом оборотов n = 2900 об/мин (при расходе Q = 46,8 м3/ч давление подачи Р = 0,63 МПа, а потребляемая мощность N = 14,7 кВт).

Рабочее давление перед узлом управления с учетом давления подпора магистральной сети и потерь давления до узла управления составляет 0,69 МПа.

Время работы установки - 30 мин.

Гидравлический расчет спринклерной установки пожаротушения (зона 2, секция 1)

Давление у "диктующего" оросителя P1 = 0,21 МПа.

Давление, эквивалентное геометрической высоте "диктующего" оросителя, P2 = 70,5 м = 0,705 МПа.

Линейные потери давления в трубопроводе P3 = 6,8 м = 0,068 МПа (в том числе до узла управления 0,0075 МПа).

Местные потери давления в трубопроводе P4 = 5,36 м = 0,0536 МПа (в том числе до узда управления 0,012 МПа),

Потери давления в спринклерном сигнальном клапане

P5 = 1,3м = 0,013 МПа.

Потери давления в насосной установке P6 = 7,6 м = 0,076 МПа.

Давление подпора магистральной сети перед насосом Pм = 0,2 МПа

Давление подачи насоса с учетом давления подпора магистральной сети должно составлять не менее 1,126 МПа.

Выбираем центробежный насос фирмы "GRUNDFOS" типа NK 65-315 с рабочим колесом диаметром 311 мм и числом оборотов n = 2900 об/мин (при расходе Q = 46,8 м3/ч давление подачи Р = 1,26 МПа, а потребляемая мощность N = 26 кВт).

Время работы установки - 30 мин.

При выборе насосов для 1-й и 2-й зон учитывается минимальное давление на вводе городского водопровода, составляющее 0,2 МПа.

Выбранные насосы обеспечивают нормальную работу спринклерной АУП.

В качестве автоматического водопитателя (жокей-насосов) применены центробежные насосы фирмы "GRUNDFOS":

- для 1-й зоны - CR 4-100 (мощность N = 22 кВт, расход Q = 2 м3/ч, давление подачи P = 0,94 МПа, число оборотов n = 2900 об/мин);

- для 2-й зоны - CR 4-160 (мощность N = 3,0 кВт, расход Q = 2 м3/ч, давление подачи P = 1,50 МПа, число оборотов n = 2900 об/мин).

6. СВЕДЕНИЯ ОБ ОРГАНИЗАЦИИ ПРОИЗВОДСТВА И ВЕДЕНИИ МОНТАЖНЫХ РАБОТ В НАСОСНОИСТАНЦИИ УСТАНОВКИ ВОДЯНОГО ПОЖАРОТУШЕНИЯ. МЕРОПРИЯТИЯ ПО ОХРАНЕ ТРУДА И ТЕХНИКЕ БЕЗОПАСНОСТИ

К монтажу насосной установки необходимо приступать при полной строительной готовности (после возведения перегородок и фундаментов под пожарные насосные агрегаты).

Монтажные, строительные и пуско-наладочные работы необходимо производить в соответствии с планом производства работ.

Монтаж насосной установки рекомендуется проводить в такой последовательности: подготовительные работы, установка насосных агрегатов, монтаж входных и напорных трубопроводов, установка щитов электроуправления, линейных адресных блоков фирмы "HONEUWELL", монтаж электропроводок, гидравлические испытания трубопроводов, окраска трубопроводов.

К подготовительным работам относится подготовка рабочих мест и монтажных материалов, уточнение и разметка мест установки и крепления пожарных насосов, щитов электроуправления и адресных блоков.

Состояние кабелей перед прокладкой должно быть проверено наружным осмотром. Кроме этого, должна быть проверена целостность изоляции жил.

После монтажа все трубопроводы промываются. Работы по промывке оформляются актом, предъявляемым при сдаче установки в эксплуатацию.

Регламент обслуживания электроустановок должен быть разработан заказчиком на месте и в соответствии с действующими правилами и инструкциями заводов-изготовителей.

К обслуживанию установки допускаются люди, прошедшие инструктаж по технике безопасности. Прохождение инструктажа отмечается в журнале.

Монтаж и демонтаж производить только:

- при отсутствии давления в ремонтируемых трубопроводах;

- исправным инструментом.

При испытании повышенными давлениями лица, производящие испытание, должны находиться в безопасном месте.

Гидравлические и пневматические испытания должны проводиться в соответствии с Правилами Госгортехнадзора.

Монтажные и ремонтные работы в электрических сетях и устройствах (или вблизи них), а также работы по присоединению и отсоединению проводов должны выполняться при отключенном напряжении.

Электромонтеры, обслуживающие электроустановки, должны быть снабжены защитными средствами, прошедшими соответствующие лабораторные испытания.

Выполнение всех электромонтажных работ, обслуживание электроустановок, периодичность и методы испытания защитных средств должны соответствовать "Правилам технической эксплуатации электроустановок потребителей" и "Правилам техники безопасности при эксплуатации электроустановок потребителей".

Трубопроводы монтируются на сварке из стальных электросварных труб по ГОСТ 10704-91*.

После монтажа и гидравлического испытания трубы в местах сварных соединений покрываются антикоррозионным составом, после чего поверхность труб окрашивается масляной краской в два слоя.

Питающие и распределительные трубопроводы прокладываются с уклоном в сторону узла управления или спускных устройств, равным:

- 0,01 - для труб с наружным диаметром менее 57 мм;

- 0,005 - для труб с наружным диаметром 57 мм и более.

ПРИЛОЖЕНИЕ 11

ПРИМЕР ТЕХНИЧЕСКОГО ЗАДАНИЯ НА РАЗРАБОТКУ РАБОЧЕГО ПРОЕКТА ВОДЯНОЙ АУП

СОГЛАСОВАНО

УТВЕРЖДАЮ

Организация-исполнитель

Организация-заказчик

Генеральный директор

Генеральный директор

____________________

___________________

           (Ф.И.О.)          

           (Ф.И.О.)          

____________________200_г.

______________200_г.

М.П.

 

РАЗРАБОТКА РАБОЧЕГО ПРОЕКТА АВТОМАТИЧЕСКОЙ УСТАНОВКИ ВОДЯНОГО ПОЖАРОТУШЕНИЯ ДЛЯ ПРОТИВОПОЖАРНОЙ ЗАЩИТЫ ПРИРЕЛЬСОВОГО СКЛАДА

Техническое задание

Москва 200 __ г.

1. ОБЩИЕ СВЕДЕНИЯ

1.1. Наименование и назначение проектируемой установки и защищаемого объекта: установка водяного пожаротушения для противопожарной зашиты прирельсового склада.

1.2. Заказчик проекта, его почтовый индекс, адрес, телефон:__________________________

1.3. Основание для проектирования: договор № РП-02/2000.

1.4. Вид строительства: реконструкция.

1.5. Стадийность проектирования: рабочий проект.

1.6. При проектировании руководствоваться НПБ 88-2001, НПБ 110-99**, СНиП 2.04.01-85*, СНиП 2.04.02-84*, СНиП 2.04.02-84*, ПУЭ (Правила устройства электроустановок).

2. ИСХОДНЫЕ ДАННЫЕ ДЛЯ ПРОЕКТИРОВАНИЯ

2.1. Документация:

- генплан объекта с указанием защищаемых зданий, помещений для размещения узлов управления установки;

- архитектурно-строительные чертежи, планировки, разрезы защищаемых помещений;

- чертежи систем вентиляции с разводкой вентиляционных коробов, указанием их размеров и отметок;

- чертежи с размещением светильников;

- краткая характеристика защищаемых объектов и основные пожароопасные материалы, температура воздуха в помещениях и другие сведения (табл. П11.1).

2.2. Дополнительные данные:

- для установок водяного пожаротушения применять технологическое и насосное оборудование отечественного производства;

- в здании склада готовой продукции по оси 1/1 предусмотрена противопожарная стена с пределом огнестойкости REI 45.

3. ЗАДАНИЯ НА СМЕЖНЫЕ ЧАСТИ ПРОЕКТА, ВЫДАВАЕМЫЕ ИСПОЛНИТЕЛЕМ ЗАКАЗЧИКУ

Заказчик гарантирует выполнение следующих проектных заданий, выдаваемых исполнителем.

3.1. Строительное задание на помещение насосной станции, оборудование его инженерными сетями, а также на устройство закладных деталей для крепления трубопроводов, кабелей, пробивку отверстий и борозд.

3.2. Задание на электроснабжение установки водяного пожаротушения (подвод линий питания к электрошкафам и приборам установки).

3.3. Задание на использование контактов электросхемы установки пожаротушения для отключения вентиляционного и технологического оборудования, а также на размножение контактов и их усиление (размножение контактов и кабельные связи от контактов в электросхеме установки до вентиляционного, технологического и другого оборудования проектирует заказчик).

3.4. Задание на заземление (зануление) оборудования установок водяного пожаротушения.

3.5. Задание на водоснабжение установки.

_____________________________________      __________      _____________________

(должность ответственного представителя)        (подпись)          (инициалы, фамилия)

_____________________________________________________________________________

                                     (наименование организации-заказчика)

_____________________________________       ___________       ______________________

(должность ответственного представителя)           (подпись)            (инициалы, фамилия)

_____________________________________________________________________________

                                      (наименование организации-исполнителя)


Таблица П11.1

Характеристика защищаемых объектов и требования к АУП

Наименование защищаемого здания, помещения, оборудования, агрегата, этажа, отметки, оси, номера чертежей

Характеристика защищаемых помещений

Защищаемая площадь, м2

Высота помещения, м

Категория взрывопожароопасности

Класс взрывопожароопасности по ПУЭ

Относительная влажность по ПУЭ

Скорость воздушных потоков, м/с

Пределы температур,°С

Степень огнестойкости строительных конструкций

1

2

3

4

5

6

7

8

9

Склад готовой продукции на отм.:

 

 

 

 

 

 

 

 

1,200 м

450

4,8

В1

П-IIa

60

До 1 м/с

Не ниже 5°С

II

6,000 м

432

4,8

В1

П-IIa

60

До 1 м/с

Не ниже 5°С

II

10,800 м

432

4,2

В1

П-IIa

60

До 1 м/с

Не ниже 5°С

II

Продолжение таблицы П11.1

Характеристика защищаемых помещений

Характеристика пожароопасных материалов

Требования к установке

Тип вентиляции

Запыленность, задымленность, агрессивные среды

Наименование пожароопасных материалов, вид, их хранение (напольное, навалом, в штабелях, в таре, на стеллажах), высота складирования материалов, общее количество, вид упаковки (сгораемая, несгораемая), возможная площадь разлива, м2; удельная пожарная нагрузка МДж/м2; группа помещений по НПБ 88-2001

 

 

 

Огнетушащее вещество: В - вода, ВС - вода со смачивателем, П - воздушно-механическая пена

Дополнительные сведения и требования к АУП, необходимость установки пожарных кранов, отключения электрооборудования до пуска АУП

10

11

12

13

14

15

16

17

 

 

 

 

 

 

 

 

Придаточно-вытяжная

В пределах нормы

Сахар в сгораемой упаковке Нскл = 3 м

Т

С

П

В

На всех этажах установить пожарные краны

То же

То же

То же

Т

С

П

В

То же

-"-

-"-

-"-

Т

С

П

В

-"-

Ответственный представитель заказчика:


ПРИЛОЖЕНИЕ

ИСХОДНЫЕ ДАННЫЕ ДЛЯ ПРОЕКТИРОВАНИЯ УСТАНОВКИ ВОДЯНОГО ПОЖАРОТУШЕНИЯ СКЛАДА ГОТОВОЙ ПРОДУКЦИИ дог. № РП-02/2000

1. Источник водоснабжения установки пожаротушения (его параметры, расход, вместимость, размещение): водопровод предприятия, обеспечивающий на вводе в насосную станцию расход 82 л/с при напоре 20 - 30 м вод. ст. Проектируемую насосную станцию разместить в здании склада готовой продукции на отм. +1,200 м в осях 2/1 - 1/1, А - Б.

2. Узлы управления разместить: в насосной станции.

3. Наличие открытых токоведущих частей: нет.

4. Электроснабжение установки пожаротушения принять от двух независимых источников с глухозаземленной нейтралью, обеспечивающих прямой пуск насосных двигателей с короткозамкнутым ротором мощностью 90 кВт, напряжением 380/660 В, трехфазного переменного тока частотой 50 Гц.

5. В схеме электроуправления предусмотреть контакты для командного импульса на управление инженерными системами при пожаре по каждому направлению.

ПРИЛОЖЕНИЕ 12

ПРИМЕР РАБОЧЕГО ПРОЕКТА ВОДЯНОЙ АУП ПРИРЕЛЬСОВОГО СКЛАДА

П.12.1. ПОЯСНИТЕЛЬНАЯ ЗАПИСКА К РАБОЧЕМУ ПРОЕКТУ

УТВЕРЖДАЮ

_________________________

(должность руководителя)

________________________________________

(наименование предприятия-разработчика)

________________________________________

(Ф.И.О.)

«____»___________200_ г

Объект:                                                                                                             Договор № РП-02/200

РАБОЧИЙ ПРОЕКТ

Автоматической установки водяного пожаротушения для противопожарной защиты прирельсового склада

ПОЯСНИТЕЛЬНАЯ ЗАПИСКА

РП-02/2000-АПЖ-ПЗ

Том 1

Главный инженер проекта

______________________

              (Ф.И.О.)

«____»____________200__г.

2002

1. ОБЩАЯ ЧАСТЬ

1.1. Настоящий проект выполнен на основании договора № РП-02/2000 и в соответствии с техническим заданием на проектирование, выданным заказчиком.

1.2. Основные технические решения, принятые в проекте, отвечают требованиям следующих нормативных документов:

- СНиП 11-01-95. Инструкция о порядке разработки согласования и утверждения проектной сметной документации на строительство предприятий, зданий и сооружений;

- НПБ 88-2001. Установки пожаротушения и сигнализации. Нормы и правила проектирования;

- СНиП 2.04.01-85*. Внутренний водопровод и канализация зданий;

- ПУЭ-98. Правила устройства электроустановок.

1.3. Технические решения, принятые в рабочих чертежах, соответствуют требованиям санитарно-гигиенических, экологических, противопожарных и других норм, действующих на территории Российской Федерации, и обеспечивают безопасную для жизни и здоровья людей эксплуатацию объекта при соблюдении предусмотренных рабочими чертежами мероприятий.

2. ХАРАКТЕРИСТИКА СТРОИТЕЛЬНОЙ И ТЕХНОЛОГИЧЕСКОЙ ЧАСТИ ПОМЕЩЕНИЙ, ОБОРУДУЕМЫХ УСТАНОВКАМИ ВОДЯНОГО ПОЖАРОТУШЕНИЯ

2.1. Характеристика строительной и технологической части помещений, оборудуемых установками водяного пожаротушения, представлена в табл. П12.1.

Таблица П12.1

Характеристика строительной и технологической части помещений, оборудуемых установками водяного пожаротушения

п/п

Наименование защищаемого помещения

Площадь, м2

Высота H, м

Категория по пожарной опасности

Класс по ПУЭ

Предел температур, °C

Тип вентиляции

Степень огнестойкости строительных конструкций

Наименование основных горючих материалов

 

Склад готовой продукции

 

 

 

 

 

 

 

 

1

На отм. 1,2 м

450

4,8

В1

П-IIА

Не ниже 5

Приточно-вытяжная

II

Сахар в сгораемой упаковке Нскл = 3,0 м

2

На отм. 6,0 м

-432

4,8

В1

П-IIА

Не ниже 5

То же

II

То же

3

На отм. 10,8 м

432

4,8

В1

П-IIА

Не ниже 5

-"-

II

-"-

3. ОСНОВНЫЕ ТЕХНИЧЕСКИЕ РЕШЕНИЯ УСТАНОВКИ ВОДЯНОГО ПОЖАРОТУШЕНИЯ, ПРИНЯТЫЕ В ПРОЕКТЕ

3.1. Источником водоснабжения принят водопровод предприятия, обеспечивающий на вводе в насосную станцию расход 400 м3/ч при напоре 20 - 30 м вод. ст.

3.2. Для обеспечения потребных давлений в системе пожаротушения проектом предусмотрена насосная станция, расположенная в здании склада готовой продукции на отм. 0,000 в осях 2/1 - 1/1, А - Б.

3.3. Автоматическое включение рабочего насоса спринклерной установки производится по сигналу электроконтактных манометров (ЭКМ), расположенных на напорном трубопроводе автоматического водопитателя - подпитывающего насоса (жокей-насоса).

3.4. Сигналы о пожаре выдаются от сигнализаторов потока жидкости, установленных на питающих трубопроводах в каждом из защищаемых помещений склада готовой продукции.

3.5. Остальные технические решения конкретно по защищаемым помещениям сведены в табл. П12.2.

3.6. Узел управления расположен в насосной станции.

3.7. Сигналы о пожаре и состоянии установки выдаются на пульты сигнализации ПДП (AS8) и ППК-2, установленные в помещении охраны, которое расположено в КПП.

3.8. Управление пожарными насосами осуществляется со шкафов управления AS3 - AS5

4. ПРИНЦИП ДЕЙСТВИЯ УСТАНОВКИ ВОДЯНОГО ПОЖАРОТУШЕНИЯ

4.1. Вся система до пожара находится под давлением 0,4 МПа, создаваемым автоматическим водопитателем, установленным в насосной станции.

4.2. При возникновении загорания в помещениях склада готовой продукции, защищаемых спринклерной установкой, и повышении температуры воздуха более 68°С разрушается тепловой замок спринклерного оросителя. При этом давление над сигнальным клапаном падает, клапан срабатывает, и вода поступает в очаг пожара.

Таблица П12.2

Основные параметры водяной АУП

№ п/п

Наименование защищаемого помещения

Группа помещений по НПБ 88-2001

Огнетушащее вещество

Интенсивность орошения, л/(с·м2)

Расчетный расход, л/с

Тип секции

Тип оросителя

Тип узла управления

1

Склад готовой продукции

VI

Вода

0,4

82,8 + 10

(ПК) + 2,3

(дренчерная завеса)

Спринклерная

Спринклерный ороситель

K = 0,71

T = 68°С

Спринклерный КСД Ø150 мм, "Спецавтоматика" (г. Бийск)

2

Склад готовой продукции

VI

То же

0,4

То же

То же

То же

То же

3

Склад готовой продукции

VI

-"-

0,4

-"-

-"-

-"-

-"-

4.3. Одновременно со срабатыванием сигнального клапана от универсальных сигнализаторов давления (СДУ), установленных на узле управления, выдается сигнал на отключение вентиляционного оборудования, а от сигнализатора потока жидкости - сигнал о пожаре. После срабатывания сигнального клапана давление в подводящем трубопроводе падает, и при достижении значения 0,3 МПа от ЭКМ, установленных на автоматическом водопитателе, и от сигнализатора давления выдается сигнал на включение рабочего пожарного насоса. При невыходе рабочего пожарного насоса на режим включается резервный пожарный насос.

5. ГИДРАВЛИЧЕСКИЙ РАСЧЕТ УСТАНОВОК ВОДЯНОГО ПОЖАРОТУШЕНИЯ

5.1. Гидравлический расчет трубопроводов проводится в соответствии с НПБ 88-2001 на ЭВМ по программам, оптимизирующим капитальные затраты на монтаж установки.

5.2. Суммарный расчетный расход спринклерных и дрен-черных секций по НПБ 88-2001 и пожарных кранов по СНиП 2.04.01-85* составляет 342 м3/ч.

Время работы установки - 1 ч.

Наибольшее рабочее давление в установке - 1 МПа.

5.3. Результаты расчетов сведены в табл. "Основные технические показатели установки" (см. раздел П12.2 настоящего приложения, лист "Общие данные" из комплекта чертежей марки РП-02/2000-АПЖ1).

6. НАСОСНАЯ СТАНЦИЯ

6.1. Для обеспечения требуемого давления воды проектом предусмотрена насосная станция, размещенная на отм. 0,000 в осях 2/1 - 1/1, А - Б.

6.2. В помещении насосной станции устанавливается следующее оборудование:

- два насоса марки 1Д315-71 с электродвигателем мощностью N = 90 кВт;

- жокей-насос марки CR 2-50 с электродвигателем мощностью N = 0,55 кВт (данные типы насосов поставлялись до июля 2001 г.);

- контрольно-измерительные приборы;

- шкафы электроуправления.

6.3. Давление в подводящих, питающих и распределительных трубопроводах АУП составляет 0,4 МПа.

6.4. В случае утечки и падения давления в установке до 0,35 МПа от ЭКМ, установленных на автоматическом водопитателе (на напорном патрубке жокей-насоса), выдается сигнал об утечке и одновременно сигнал на включение подпитывающего насоса (жокей-насоса). При восстановлении давления в установке до 0,4 МПа подпитывающий насос отключается.

6.5. В случае пожара и продолжения падения давления в установке до 0,3 МПа от сигнализатора давления выдается сигнал на включение рабочего пожарного насоса.

6.6. При невыходе рабочего пожарного насоса на рабочий режим от ЭКМ, установленного на напорном патрубке рабочего пожарного насоса, включается резервный пожарный насос.

7. ГИДРАВЛИЧЕСКИЙ РАСЧЕТ НАСОСНОЙ УСТАНОВКИ

7.1. Для обеспечения нормальной работы насосной установки необходимо, чтобы:

P1 + P2P3 + P4,

где P1 - давление, обеспечиваемое насосом при заданном расходе 92 л/с, P1 = 0,65 МПа; P2 - подпор городского водопровода, P2 = 0,2 МПа; P3 - суммарные потери в трубопроводах насосной станции и подводящем трубопроводе, P3 = 0,07 МПа; P4 - расчетное давление перед сигнальным клапаном, P4 = 0,73 МПа.

7.2. Подставляя полученные значения в формулу, имеем:

0,65 + 0,2 > 0,07 + 0,73.

Следовательно, выбранные насосы обеспечивают нормальную работу установки.

8. ЭЛЕКТРОСНАБЖЕНИЕ И ЗАЩИТНОЕ ЗАЗЕМЛЕНИЕ (ЗАНУЛЕНИЕ)

8.1. Согласно ПУЭ установки водяного пожаротушения и пожарной сигнализации в части обеспечения надежности электроснабжения отнесены к электроприемникам 1-й категории, поэтому электропитание установки водяного пожаротушения осуществляется от двух независимых сетевых источников переменного тока.

8.2. Для обеспечения безопасности людей должно быть предусмотрено надежное заземление (зануление) электрооборудования установок водяного пожаротушения (в соответствии с требованиями ПУЭ и паспортными данными на используемое электрооборудование).

9. СВЕДЕНИЯ ОБ ОРГАНИЗАЦИИ ПРОИЗВОДСТВА И ВЕДЕНИИ МОНТАЖНЫХ РАБОТ

9.1. Работы по монтажу установки водяного пожаротушения должны осуществляться в три этапа:

- на первом - проверка наличия закладных устройств, проемов и отверстий в строительных конструкциях и элементах зданий; разметка трасс и установка опорных конструкций для трубопроводов, кронштейнов для щитов, пультов и т.д.; закладка труб в сооружаемые фундаменты, стены, полы и перекрытия;

- на втором - монтаж трубопроводов, оросителей, щитов, арматуры, насосов и т.д. и подключение к ним электрических проводок;

- на третьем - индивидуальная и комплексная наладка автоматических установок пожаротушения.

9.2. При выполнении монтажа трубопроводов должны быть обеспечены:

- прочность и герметичность соединений труб и присоединения их к арматуре и приборам;

- надежность закрепления труб на опорных конструкциях, возможность их осмотра, а также промывки и продувки.

9.3. Для установки оросителей в трубопроводах просверливаются отверстия и привариваются муфты или ниппели в зависимости от места установки оросителей, прожиг отверстий не допускается.

9.4. После монтажа все трубопроводы промываются. Работы по промывке оформляются актами, предъявляемыми при сдаче установки в эксплуатацию.

9.5. Состояние кабелей перед прокладкой должно быть проверено наружным осмотром. Кроме этого, должна быть проверена целостность изоляции жил.

9.6. Крепление шкафов управления должно выполняться на стенах только разъемными соединениями.

9.7. Регламенты обслуживания электроустановок должны быть разработаны заказчиком на месте и в соответствии с действующими правилами и инструкциями заводов-изготовителей.

10. МЕРОПРИЯТИЯ ПО ОХРАНЕ ТРУДА И ТЕХНИКЕ БЕЗОПАСНОСТИ УСТАНОВКИ ВОДЯНОГО ПОЖАРОТУШЕНИЯ

10.1. К обслуживанию установки допускаются лица, прошедшие инструктаж по технике безопасности. Прохождение инструктажа отмечается в журнале.

10.2. Монтаж и демонтаж оборудования АУП следует производить только:

- при отсутствии давления на ремонтируемом участке;

- исправным инструментом.

10.3. При испытании АУП повышенными давлениями лица, производящие испытания, должны находиться в безопасном месте.

10.4. Гидравлические и пневматические испытания должны производиться в соответствии с Правилами Госгортехнадзора.

10.5. Монтажные и ремонтные работы в электрических сетях и устройствах (или вблизи них), а также работы по присоединению и отсоединению проводов должны проводиться при снятом напряжении. Электромонтеры, обслуживающие электроустановки, должны быть снабжены защитными средствами, прошедшими соответствующие лабораторные испытания.

10.6. Все электромонтажные работы, обслуживание электроустановок, периодичность и методы испытания защитных средств должны выполняться с соблюдением "Правил технической эксплуатации электроустановок потребителей" и "Правил техники безопасности при эксплуатации электроустановок потребителей" Госэнергонадзора.

11. РАБОЧАЯ ДОКУМЕНТАЦИЯ

11.1. Отдельные фрагменты спецификаций и рабочих чертежей приведены в разделе П12.2 настоящего приложения.

П.12.2. ОФОРМЛЕНИЕ РАБОЧИХ ЧЕРТЕЖЕЙ

СПРАВОЧНЫЙ РАЗДЕЛ

(Подготовили: А.В. Галкин, В.Г. Жарков, А.И. Майоров)

ПРЕДПРИЯТИЯ, ВЫПОЛНЯЮЩИЕ РАБОТЫ (УСЛУГИ) В ОБЛАСТИ ПОЖАРНОЙ БЕЗОПАСНОСТИ (РЕКВИЗИТЫ, ВИДЫ РАБОТ)

ОАО "Тульский завод "Арсенал"

300002, г. Тула, ул. Комсомольская, 47

Тел.: (0872) 77-86-27, 77-03-20, 77-40-23; факс (0872) 77-85-63

Производство и поставка: установка пожаротушения роботизированная УПР-1, установка пожаротушения с дистанционным управлением во взрывобезопасном исполнении УПД-1В

"КОСМИ" Группа предприятий

111024, г. Москва, ул. Авиамоторная, 53

Тел.: (095) 273-92-41, 273-98-68; факс: (095) 273-21-65, 273-24-56

E-mail: cosmi@dol.ru

http://www.cosmi.ru

Оснащение объектов автоматическими установками водяного, водопенного, газового, порошкового пожаротушения и охранно-пожарной сигнализацией. Выполнение проектных, монтажных и пусконаладочных работ. Проведение технического обслуживания. Поставка оросителей, узлов управления фирмы Tyco Building Services Products (GRINNELL), регуляторов давления фирмы CLA-VAL. Производство шкафов управления насосами, клапанов угловых, первичных средств пожаротушения, экологически чистых газовых огнетушащих составов. Поставка и техническое обслуживание огнетушителей. Проведение экспертизы, разработка концепции противопожарной защиты объектов. Выполнение функции Генерального подрядчика и Заказчика.

ФГУП "НПП "Контакт"

410033, г. Саратов, 8-я Дачная, ул. им. Спицына Б.В., 1

Тел.: (8452) 37-53-11, 37-53-98; тел./факс (8452) 36-74-67

E-mail: Kontakt@renet.ru

www. Kontakt- Saratov. ru

Извещатель пожарный дымовой ИП 212-26 (ДИП-У), извещатель пожарный дымовой оптико-электронный ИП 212-46, ППКОП02-128 "АРГУС-4", приборы приемно-контрольные охранно-пожарные ППКОП "РУБИН-6Г", ППКОП 01049-2/3-1 "РУБИН-2", ППКОП 041-24-01 "РУБИН-18А"

АО "Пастор инженеринг"

115093, г. Москва, ул. Б. Серпуховская, д. 31, к. 1, офис 22Б

Тел. (095) 236-05-97, факс (095) 236-41-25

E-mail: pastor-inzenjering@mtu-net.ru

ПРИБОР ПРИЕМНО-КОНТРОЛЬНЫЙ ПОЖАРНЫЙ "INTAL"

Назначение: служит для сигнализации о пожаре и для управления пожаротушением.

Характеристика: исполнение - стандартный вариант: 1 петля, 126 датчиков или блоков подключения; расширение: до 16 петель (макс. 2016 адресов); дисплей; принтерная распечатка

КЛАПАН СПРИНКЛЕРНЫЙ ВОДЯНОЙ

Назначение: используется для управления потоком воды в спринклерных системах.

Характеристика: размер: dy = 150 мм

ОРОСИТЕЛЬ СПРИНКЛЕРНЫЙ ВОДЯНОЙ

Назначение: применяется для распыления воды и распределения ее по защищаемой площади в целях тушения очагов пожара.

Характеристика: исполнение - розеткой вниз (SPRAY VISECA), розеткой вверх (SPREY STOJECA), универсальный (UNIVERZALNA) резьба: R1/2; K - фактор: 80; диаметр стеклянной колбы: 4 мм; температура срабатывания: 68°С

КЛАПАН ДРЕНЧЕРНЫЙ

Назначение: используется для управления потоком воды в дренчерных системах.

Характеристика: размер: 3" и 6"; способ пуска: электрический, ручной

МОДУЛЬ ГАЗОВОГО ПОЖАРОТУШЕНИЯ

Назначение: предназначен для хранения и пуска газовых огнетушащих составов. Применяется для комплектации модульных и централизованных автоматических установок газового пожаротушения.

Характеристика: вместимость баллона: тип As (9 л), Bs (18 л), Cs (30 л), Ds (45 л), Es (67 л), Fs (80 л);

максимальное давление, МПа (кгс/см2): до 4,0 (40);

использование хладонов: 318Ц, 125, 227еа, 114В;

способ пуска: электрический, механический;

устройство электропуска: пиропатрон

Вся продукция имеет сертификаты пожарной безопасности и сертификаты соответствия.

Фирма получила сертификат ISO 9001 от SGS International Certification Services AG. Лицензии № 000667 и № 000668

НПО "Пульс" г. Москва, ул. Русаковская, 28-1а (м. "Сокольники")

г. Москва, ул. Кожевническая, 14 (м. "Павелецкая")

Тел.: (095) 231-21-10, 231-21-30, 235-84-58

E-mail: avto@center01.ru info@center01.ru

ДВЕРИ ПРОТИВОПОЖАРНЫЕ

- предел огнестойкости (EI) 30, 60, 90; остекление

- изготовление по размерам заказчика

ШКАФЫ ПОЖАРНЫЕ

- 7 типоразмеров, 56 моделей, в т. ч. квартирные

ПОЖАРНОЕ ОБОРУДОВАНИЕ

- огнетушители, рукава, стволы, головки, снаряжение

СРЕДСТВА ОХРАНЫ ТРУДА

АВТОМАТИЧЕСКАЯ ПОЖАРНАЯ ЗАЩИТА

УЗЛЫ УПРАВЛЕНИЯ:

- спринклерными водозаполненными, водовоздушными системами пожаротушения

- дренчерными установками пожаротушения с гидропуском и электропуском (на базе клапанов (КСД типа КМУ и КС "Класс" с диаметром условного прохода 100 и 150 мм)

Производство ЗАО ПО "Спецавтоматика", г. Бийск

ОРОСИТЕЛИ ВОДЯНЫЕ:

- спринклерные, дренчерные, горизонтальные - розеткой вниз, розеткой вверх

- с диаметром выходного отверстия 10, 12, 15 мм

- латунные, хромированные, белые

Производство ЗАО ПО "Спецавтоматика", г. Бийск

ОРОСИТЕЛИ ПЕННЫЕ:

- спринклерные, дренчерные

- латунные, хромированные, белые

Производство ЗАО ПО "Спецавтоматика", г. Бийск

ОРОСИТЕЛИ:

- центробежный для формирования тонкораспыленного водяного потока "РЦ-180"

- эвольвентный для формирования плотного потока воды или пенного раствора

Производство ЗАО ПО "Спецавтоматика", г. Бийск

ООО "Лакита"

109377, г. Москва, ул. Академика Скрябина, д. 1, корп. 2

Тел./факс: (095) 371-99-14, 709-27-67

E-mail: lakita-95@mtu-net.ru, info@lakita.ru

http://www.lakita.ru

Фирма ООО "Лакита" выполняет работы по комплектации и монтажу насосных станций водяного и пенного пожаротушения, монтажно-наладочные работы по всем системам противопожарной зашиты; охранно-пожарной сигнализации; связи, телевидения и видеонаблюдения; водоснабжения и отопления.

Фирма "Лакита" реализует водосигнальные клапаны КЗУ-100 и КЗУ-150, шкафы автоматики и сигнализации для системы водяного пожаротушения и защитные устройства для спринклерных оросителей.

Имеет свои перспективные разработки спринклерных оросителей. Серийный выпуск намечен на 2-е полугодие 2002 г.

ЗАО ПО "Спецавтоматика"

659316, Алтайский край, г. Бийск, ул. Лесная, 10

Тел.: (3854) 23-52-20, 25-26-86, 25-08-31

Факс (3854) 24-68-87

E-mail: info@sauto.biysk.ru

URL: www.sauto.biysk.ru

Предприятие производит:

- извещатели

- оповещатели

- приемно-контрольные приборы

- спринклерные и дренчерные оросители

- клапаны, узлы управления и сигнализаторы давления для систем пожаротушения

- коммутационные и установочные изделия

Предприятие осуществляет:

- проектирование, монтаж, наладку и обслуживание систем пожарной, охранной сигнализации и пожарной автоматики, в том числе во взрывозашищенном исполнении

- проектирование, монтаж, наладку и обслуживание систем контроля и учета тепла, холодной и горячей воды

ЗАО "МЭЗ Спецавтоматика"

123007, г. Москва, ул. Шеногина, 4, корп. 1

Тел./факс: (095) 259-23-21, 256-70-52, 259-33-54;

тел.: (095) 259-28-12, 259-56-65

E-mail: info@mezplant.ru

http://www.mezplant.ru

1. Проектирование, монтаж, пуск-наладка, сдача в эксплуатацию и техническое обслуживание систем автоматического пожаротушения.

2. Изготовление модулей и батарей для установок автоматического газового пожаротушения и модульных установок пожаротушения тонкораспыленной водой.

3. Производство насадков-распылителей и монтажных изделий для систем пожаротушения.

4. Техническое освидетельствование баллонов и их зарядка огнетушащими веществами.

5. Поставка узлов управления и оросителей фирмы GLOBE Fire Sprinkler Corporation (США) для спринклерных и дренчерных установок водяного пожаротушения.

6. Поставка пожарно-технической продукции.

ОАО НПП "Спецавтоматика"

344082, г. Ростов-на-Дону, ул. Шаумяна, 36а

Тел.: (8632) 40-96*60, 40-44-66

E-mail: ROSA@don.sitek.net

Проектирование, монтаж, наладка и сдача в эксплуатацию автоматических систем пожаротушения (вода, пена, порошок, аэрозоль, эле газ, углекислый газ, хладоны), пожарной и охранной сигнализации.

ЗАО "ЭКСПРОД 2"

115191, г. Москва, Холодильный пер., дом 1, корп. 3

Тел.: (095) 955-27-77, 955-27-15

Тел./факс: (095) 954-18-32, 955-27-84

E-mail: exprod2@cityline.ru

http://www.exprod2.da.ru

Проектирование, монтаж, наладка, сдача в эксплуатацию, техническое обслуживание систем пожаротушения, пожарной сигнализации, противодымной зашиты, оповещения о пожаре.

Изготовление шкафов автоматики установок пожаротушения по индивидуальным проектам.

Поставка оборудования.

Предлицензионная подготовка материалов соискателей лицензий ГУГПС, УГПС.

Представительство Бийского ЗАО ПО "Спецавтоматика" в г. Москве

ООО «Пожарная автоматика холдинг»

109129, г. Москва, 8-я ул. Текстильщиков, д. 18, корп. 3

Тел.: (095) 179-84-44, 179-02-89

Факс (095) 179-67-61

E-mail: npopas@online.ru

Качественный состав сотрудников нашего предприятия и их профессиональная подготовка позволяют выполнять целый комплекс работ по обеспечению пожарной безопасности и созданию автоматических систем противопожарной защиты объектов различного назначения.

Мы проводим экспертизу технических и организационных решений по обеспечению пожарной безопасности.

Мы выполняем проектные работы.

Мы поставляем оборудование, материалы, приборы, используемые в области пожарной безопасности, по прямым поставкам с фирм-производителей.

Мы производим монтажные и пусконаладочные работы автоматических систем противопожарной защиты, а также их ремонт и техническое обслуживание.

На все виды работ имеются лицензии ГУГПС МЧС России № 11003550, № 11003549, № 11003551.

Мы всегда готовы сотрудничать с Вами.

Наименование программ обучения в учебном центре ФГУ ВНИИПО МЧС России

Сокращенное

Полное

"Директор"

Пожарная безопасность

"Монтажник"

Проектирование, монтаж, наладка, ремонт и техобслуживание оборудования и систем противопожарной защиты

"Проектировщик"

Автоматизация работ по проектированию систем противопожарной защиты и управления

"Огнезащита"

Огнезащита строительных материалов, конструкций, кабельных изделий и проходок

"Огнетушитель"

Техническое обслуживание и ремонт огнетушителей

"Испытатель"

Методы определения параметров пожаровзрывоопасности веществ и материалов на испытательном оборудовании, выпускаемом ВНИИПО

"Энергетик"

Пожарная безопасность объектов энергетики

"Прыжок"

Подготовка инструкторов по использованию комплекта спасательного снаряжения (КСС)

"Тактик"

Современные технологии пожаротушения

"Эксперт-лицензирование"

Организация работы центров обеспечения лицензионной деятельности

"Доброволец"

Пожарно-тактическая подготовка добровольных пожарных

Проект программы проведения обучения в учебном центре ФГУ ВНИИПО МЧС России Оформление заявок: (095) 529-81-60, 521-91-33, 529-80-32. E-mail: bissa2@rol.ru http://www.vniipo.ru

Программа обучения

Часы

Стоимость, руб.

Период проведения обучения**

(дни)

полная

льготная*

январь

февраль

март

апрель

май

 

"Директор"

80

 

Пожарная безопасность (базовая программа обучения)

10

5700

4700

 

4-15

 

8-19

 

 

"Проектировщик"

72

 

Автоматизация работ по проектированию систем противопожарной зашиты и управления

9

5200

4300

28.01-07.02

 

 

 

13-23

 

"Монтажник''

80

 

Проектирование, монтаж, наладка, ремонт и техническое обслуживание оборудования и систем противопожарной зашиты

10

5700

4700

14-25

25.02-07.03

25.03-05.04

15-26

13-24, 27.05-07.06

 

"Огнезащита"

72

 

Огнезащита строительных материалов, конструкций, кабельных изделий и проходок

9

5200

4300

21-31

 

18-28

 

13-23

 

"Директор"

80

 

Пожарная безопасность (базовая программа обучения)

10

5700

4700

17-28

 

16-27

14-25

25.11-06.12

 

 

"Проектировщик"

72

 

Автоматизация работ по проектированию систем противопожарной защиты и управления

9

5200

4300

 

 

2-12

7-17

 

 

 

"Монтажник"

80

 

Проектирование, монтаж, наладка, ремонт и техническое обслуживание оборудования и систем противопожарной защиты

10

5700

4700

17-28

1-12

02-13

07-18

11-22

16-27

 

"Огнезащита"

72

 

Огнезащита строительных материалов, конструкций, кабельных изделий и проходок

9

5200

4300

24.06-04.07

 

23.09-03.10

 

 

16-26

* Для сотрудников (работников) органов ГПС.

** При условии формирования учебной группы численностью не менее 15 человек.

Оформление заявок: (095) 529-81-60, 521-91-33, 529-80-32. E-mail: bissa2@rol.ru kurs@vniipo.ru http://www.vniipo.ru

ЗАЯВКА НА ОБУЧЕНИЕ

Начальнику ФГУ ВНИИПО МЧС России

143903, Московская обл., Балашихинский р-н,

пос. ВНИИПО, д. 12.

Факс: (095) 529-81-60, 521-91-33, 529-80-32.

Тел. 524-82-41

E-mail: bissa2@rol.ru kurs@vniipo.ru

http://www.vniipo.ru

Прошу Вас зачислить следующих специалистов в группу по программе обучения________

________________________________________________________________________________

                            (указать сокращенное наименование программы)

Ф.И.О. слушателя

Должность слушателя

 

 

 

 

 

 

Период обучения с _____________ по _______________ г.

Подпись руководителя ___________________

                                                          МП.

Реквизиты Заказчика для договора

Заказчик услуг: ________________________________________________________________

                                           (наименование организации)

Руководитель организации-заказчика услуг:

Должность __________________ Ф.И.О. __________________________

Адрес организации:____________________________________________________________

                                                    (индекс, юридический адрес)

Телефон (____________)____________________факс________________________________

                  (код города)

E-mail _______________________________________________________________________

Банк _________________________________________________________________________

Р/с __________________________________________________________________________

К/с __________________________________________________________________________

ИНН____________________________ БИК ________________________________________

ОКПО_________________________ ОКОНХ _______________________________________

Контактный телефон (____________)___________________факс_______________________

                                        (код города)

РАБОТЫ И УСЛУГИ, ВЫПОЛНЯЕМЫЕ ФГУ ВНИИПО МЧС РОССИИ

№ п/п

Наименование работ (услуг)

1

Разработка мероприятий по обеспечению пожарной безопасности, научно-техническое консультирование по вопросам пожарной безопасности (лицензия ГУГПС МЧС России № 11004658)

2

Обучение мерам пожарной безопасности (лицензия ГУГПС МЧС России № 11004663), образовательная деятельность: повышение квалификации в области пожарной безопасности; пожарная и промышленная безопасность (послевузовское образование) (лицензия Минобразования РФ № 244-0768 от 15 мая 2002 г.). Тел.: (095) 529-81-60, 521-91-33, 524-82-41 E-mail: bissa2@rol.ra kurs@vniipo.ru

3

Проведение экспертизы организационных и технических решений по обеспечению пожарной безопасности (лицензия ГУГПС МЧС России № 11004659)

4

Производство, проведение испытаний, поставка пожарной техники и огнетушащих средств (лицензия ГУГПС МЧС России № 11004660). Тел. 529-85-66

5

Монтаж, наладка, ремонт и техническое обслуживание оборудования и систем противопожарной защиты (за исключением отнесенных к строительной деятельности) (лицензия ГУГПС МЧС России № 11004661)

6

Проведение испытаний веществ, материалов, изделий, оборудования и конструкций на соответствие требованиям пожарной безопасности (лицензия ГУГПС МЧС России № 11004662)

7

Опубликование и поставка нормативных документов в области пожарной безопасности

8

Полиграфическая деятельность (лицензия Госкомитета РФ по печати ПЛР № 020096 от 4 июня 1998 г.)

9

Издательская деятельность (лицензия Госкомитета РФ по печати ЛР № 021300 от 25 июня 1998 г.)

 




Яндекс цитирования



   Copyright © 2007-2026,  www.tehlit.ru.

[ ѓосты, стандарты, нормативы, инструкции, правила, строительные нормы ]