//
|
|
СИСТЕМА НОРМАТИВНЫХ ДОКУМЕНТОВ В СТРОИТЕЛЬСТВЕ
СТРОИТЕЛЬНЫЕ НОРМЫ И ПРАВИЛА РОССИЙСКОЙ ФЕДЕРАЦИИ
ТЕРРИТОРИАЛЬНЫЕ СТРОИТЕЛЬНЫЕ НОРМЫ НОВОСИБИРСКОЙ ОБЛАСТИ
ЭНЕРГОСБЕРЕЖЕНИЕ В ЖИЛЫХ И ОБЩЕСТВЕННЫХ ЗДАНИЯХ НОРМАТИВЫ ПО ТЕПЛОПОТРЕБЛЕНИЮ И ТЕПЛОЗАЩИТЕ
ТСН 23-317-2000 НСО
Москва 2005
ПРЕДИСЛОВИЕ
1. РАЗРАБОТАНЫ: НИИ строительной физики (НИИСФ), г.Москва (Матросов Ю.А., Бутовский И.Н., Климова Г.К.); СибАДИ, г.Омск (Апатин С.Н., Кривошеий А.Д., Пахотин Г.А.), ОАО "Омскгражданпроект" (Фролов П.Г.). СИБНИИСТРОЙ (Белан В.И., Череватый Г.В.), СИБЗНИИЭП (Конов B . C .), Центр энергетической эффективности (ЦЭНЭФ), г.Москва (Матросов Ю.А.); Общество защиты природных ресурсов (Гольдштейн Д.). В основу нормативного документа положены МГСН 2.01-99, работы НИИСФ, ЦЭНЭФ, СибАДИ, СИБНИИСТРОЙ, СИБЗНИИЭП, Общества защиты природных ресурсов. 2. ВНЕСЕНЫ Ассоциацией строителей и инвесторов г. Новосибирска и Новосибирской области и "СибНИИстрой", 3. СОГЛАСОВАНЫ с ЦГСЭН и УГПС УВД Новосибирской области. 4. ИЗДАНЫ по постановлению Главы администрации Новосибирской области от 26.06.2001 г. № 572 5. ПРИНЯТЫ И ВВЕДЕНЫ В ДЕЙСТВИЕ впервые с 1 июля 2001 г. приказом Управления строительства и архитектуры Новосибирской области от 28.06.2001 г. № 8 6. ЗАРЕГИСТРИРОВАНЫ Госстроем России, письмо № 9-29/647 от 14.12.2000 г. Содержание
ТЕРРИТОРИАЛЬНЫЕ СТРОИТЕЛЬНЫЕ НОРМЫ НОВОСИБИРСКОЙ ОБЛАСТИ ЭНЕРГОСБЕРЕЖЕНИЕ В ЖИЛЫХ И ОБЩЕСТВЕННЫХ ЗДАНИЯХ НОРМАТИВЫ ПО ТЕПЛОПОТРЕБЛЕНИЮ И ТЕПЛОЗАЩИТЕ ТСН 23-317-2000 НСО Energy conservation in dwelling and public buildings. Heat Consumption and Thermal Protection Standard Дата введения 2001-07-01 ВВЕДЕНИЕТерриториальные строительные нормы по теплопотреблению и теплозащите жилых и общественных зданий разработаны по заданию Управления строительства и архитектуры Новосибирской области и Ассоциации строителей и инвесторов г. Новосибирска и Новосибирской области, Территориальные строительные нормы разработаны на основании Закона Российской Федерации "Об энергосбережении" № 28-ФЗ от 3.04.96 г., постановления Правительства РФ № 1087 от 2.11.95 г. "О неотложных мерах по энергосбережению", Указа Президента РФ № 472 от 7.05.95 г. "Основные направления энергетической политики Российской Федерации на период до 2010 года" и Федеральной целевой программы "Энергосбережение России", принятой постановлением Правительства РФ № 80 от 24.01.98 г., и в соответствий с требованиями федеральных нормативных документов: СНиП 10-01, СНиП 23-01, СНиП II -3, СНиП 2.08.01, СНиП 2.08.02, СНиП 2.04.07, СНиП 2.04.05 и ГОСТ 30494, и обеспечивают согласно этим требованиям снижение уровня энергопотребления на отопление зданий с 2001 г. не менее чем на 20%. Требования настоящего нормативного документа преследуют цель проектирования жилых зданий и зданий общественного назначения с эффективным использованием энергии путем выявления суммарного эффекта энергосбережения от использования архитектурных, строительных и инженерных решений, направленных на экономию энергетических ресурсов. Нормативы 2001 г. в настоящих нормах установлены по второму этапу повышения теплозащиты из условия энергосбережения согласно СНиП II -3-79, учитывают особенности базы стройиндустрии Новосибирской области, местной промышленности стройматериалов, систем теплоснабжения и типологии проектных решений для массового жилищно-гражданского строительства. В нормах также заложена возможность дальнейшего повышения уровня тепловой защиты зданий с учетом возможностей областной строительной индустрии и более рационального (эффективного) использования выпускаемой продукции. Основные термины и их определения приведены в обязательном приложении А. При разработке настоящих норм использованы Московские городские нормы МГСН 2.01 (ТСН 23-304-99 г, Москвы) и типовые строительные нормы по теплозащите зданий для регионов РФ "Энергетическая эффективность в зданиях", разработанные ЦЭНЭФ, НИИСФ и Обществом защиты природных ресурсов, а также проект СНиП 2.01.03 "Энергосберегающая теплозащита зданий", разработанный НИИСФ, Ассоциацией инженеров по отоплению, вентиляции, кондиционированию воздуха, теплоснабжению и строительной теплофизике и Главным управлением стандартизации, технического нормирования и сертификации Госстроя России. 1. ОБЛАСТЬ ПРИМЕНЕНИЯ1.1. Настоящие нормы разработаны в соответствии с требованиями СНиП 10-01 и распространяются на проектирование новых и реконструкцию существующих жилых и общественных зданий и предназначены для обеспечения эффективного использования энергетических ресурсов с учетом возможностей базы строительной индустрии региона. 1.2. Нормы должны соблюдаться на территории Новосибирской области при проектировании новых, реконструируемых, капитально ремонтируемых отапливаемых жилых зданий (многоквартирных и одноквартирных) и зданий общественного назначения (дошкольных, общеобразовательных, лечебных учреждений и поликлиник, учебных, зрелищных, административно-бытовых и спортивных), а также других зданий общественного назначения с нормируемой температурой и относительной влажностью внутреннего воздуха. 1.3. Нормы обязательны для применения юридическими лицами независимо от организационно-правовой формы и формы собственности, принадлежности и государственности, гражданами (физическими лицами), занимающимися индивидуальной трудовой деятельностью или осуществляющими индивидуальное строительство, а также иностранными юридическими и физическими лицами, осуществляющими деятельность в области проектирования и строительства на территории Новосибирской области, если иное не предусмотрено федеральным законом. 1.4. Нормы устанавливают обязательные минимальные требования по энергопотреблению и теплозащите зданий, исходя из требований по снижению их энергопотребления, санитарно-гигиенических, противопожарных требований и требуемых комфортных условий. При проектировании зданий допускается применять более жесткие требования, устанавливаемые конкретным заказчиком и направленные на достижение более высокого энергосберегающего эффекта. 1.5. Нормы не распространяются на мобильные (передвижные) жилые здания, временные здания и сооружения, которые находятся на одном месте не более двух отопительных сезонов, на надувные оболочки, палатки и шатры, а также здания и сооружения, отапливаемые сезонно не более четырех месяцев в году. Возможность применения настоящих норм для зданий, имеющих архитектурно-историческое значение, определяется на основании согласования с органами государственного контроля, охраны и использования памятников истории и культуры Новосибирской области в каждом конкретном случае. 2. ЗАКОНОДАТЕЛЬНАЯ ОСНОВА И НОРМАТИВНЫЕ ССЫЛКИ2.1. Настоящие нормы разработаны согласно Федеральному закону "Об энергосбережении", где содержится требование введения в нормативные документы показателей их эффективного использования, а также показателей расхода энергии на отопление и вентиляцию зданий. 2.2. Правовая основа разработки настоящих норм для Новосибирской области как субъекта Российской Федерации предусмотрена разделом 5 СНиП 10-01. 2.3. В настоящих нормах использованы следующие документы; СНиП 10-01-94* "Система нормативных документов в строительстве. Основные положения"; СНиП II -3-79* "Строительная теплотехника"; СНиП 21-01-97* "Пожарная безопасность зданий и сооружений"; СНиП 23-01-99 "Строительная климатология": СНиП 23-05-95 "Естественное и искусственное освещение"; СНиП 2.01.02-85 ''Противопожарные нормы"; СНиП 2.04.05-91* "Отопление, вентиляция и кондиционирование"; СНиП 2.04.07-86* "Тепловые сети": СНиП 2.08.01-89* "Жилые здания"; СНиП 2.08.02-89* "Общественные здания и сооружения"; МГСН 2.01-99 (ТСН 23-304-99) "Энергосбережение в зданиях. Нормативы по теплозащите и тепловодоэлектроснабжению": ГОСТ Р 1.0-92 "Государственная система стандартизации Российской Федерации. Основные положения"; ГОСТ Р 1.5-92 "Государственная система стандартизации Российской Федерации. Общие требования к построению, изложению, оформлению и содержанию стандартов"; ГОСТ 12.1.044-89 ССБТ "Пожаровзрывоопасность веществ и материалов. Номенклатура показателей и методы их определения"; РДС 10-231-93* "Система сертификации ГОСТ Р. Основные положения сертификации в строительстве"; РДС 10-232-94* "Система сертификации ГОСТ Р. Порядок проведения сертификации продукции в строительстве"; ГОСТ 7025-91 "Кирпич и камни керамические и силикатные. Методы определения водопоглощения, плотности и контроля морозостойкости"; ГОСТ 7076-99 "Материалы и изделия строительные. Методы определения теплопроводности и термического сопротивления при стационарном тепловом режиме"; ГОСТ 17177-94 "Материалы и изделия строительные теплоизоляционные. Методы контроля"; ГОСТ 21718-84 "Материалы строительные. Диэлькометрический метод измерения влажности"; ГОСТ 23250-78 "Материалы строительные. Метод определения удельной теплоемкости"; ГОСТ 24816-81 "Материалы строительные. Методы определения сорбционной влажности"; ГОСТ 25380-82 "Здания и сооружения. Метод измерения тепловых потоков, проходящих через ограждающие конструкции"; ГОСТ 25609-83 "Материалы полимерные рулонные и плиточные для полов. Метод определения показателя теплоусвоения"; ГОСТ 25891-83 "Здания и сооружения. Методы определения сопротивления воздухопроницанию ограждающих конструкций"; ГОСТ 25898-83 "Материалы и изделия строительные. Методы определения сопротивления паропроницанию"; ГОСТ 26253-84 "Здания и сооружения. Методы определения теплоустойчивости ограждающих конструкций"; ГОСТ 26254-84 "Здания и сооружения. Методы определения сопротивления теплопередаче ограждающих конструкций"; ГОСТ 26602.1-99 "Оконные и дверные блоки. Методы определения сопротивления теплопередаче"; ГОСТ 26602.2-99 "Оконные и дверные блоки. Методы определения воздуховодопроницаемости"; ГОСТ 26629-85 "Здания и сооружения. Метод тепловизионного контроля качества теплоизоляции ограждающих конструкций"; ГОСТ 30244-94 "Материалы строительные. Методы испытаний на горючесть"; ГОСТ 30247.1-94 "Конструкции строительные. Методы испытания на огнестойкость. Несущие и ограждающие конструкции"; ГОСТ 30256-94 "Материалы и изделия строительные. Метод определения теплопроводности цилиндрическим зондом"; ГОСТ 30290-94 "Материалы и изделия строительные, Метод определения теплопроводности поверхностным преобразователем"; ГОСТ 30402-96 "Конструкции строительные. Методы испытания на воспламеняемость"; ГОСТ 30403-96 "Конструкции строительные. Метод определения пожарной опасности"; ГОСТ 30444-97 (ГОСТ Р 51032-97) "Материалы строительные. Метод испытания на распространение пламени"; ГОСТ 30494-96 "Здания жилые и общественные. Параметры микроклимата в помещениях": ВСН 58-88(р) Госкомархитектуры "Положение об организации, проведении реконструкции, ремонта и технического обслуживания жилых зданий, объектов коммунального хозяйства и социально-культурного назначения"; СП 12-101-98 "Технические правила производства наружной теплоизоляции зданий с тонкой штукатуркой по утеплителю". Совместное письмо Управления стандартизации, технического нормирования и сертификации Госстроя России № 9-18/294 от 18.06.99 г. и ГУ ГПС МВД России № 20/2.2/1756 от 18.06.99 г. 3. ТЕПЛОЗАЩИТА ЗДАНИЙ3.1. ОБЩИЕ ПОЛОЖЕНИЯ3.1.1. Настоящие нормы предназначены для обеспечения основного требования - рационального использования энергетических ресурсов путем выбора соответствующего уровня теплозащиты здания с учетом эффективности систем теплоснабжения и обеспечения микроклимата, рассматривая здание и системы его обеспечения как единое целое. 3.1.2. Выбор теплозащитных свойств здания следует осуществлять по одному из двух альтернативных подходов: - потребительскому, когда теплозащитные свойства определяются по нормативному значению удельного энергопотребления здания в целом или его отдельных замкнутых объемов - блок секций, пристроек и прочего; - предписывающему, когда нормативные требования предъявляются к отдельным элементам теплозащиты здания. Выбор подхода разрешается осуществлять заказчику и проектной организации. 3.1.3. При выборе потребительского подхода теплозащитные свойства наружных ограждающих конструкций следует определять согласно подразделу 3.3 настоящих норм. Расчетная величина удельного расхода тепловой энергии на отопление здания, определяемому согласно подразделу 3.5 настоящих норм, может быть снижена за счет: а) изменения объемно-планировочных решений, обеспечивающих наименьшую площадь наружных ограждений, уменьшение числа наружных углов, увеличение ширины зданий, а также использования ориентации и рациональной компоновки много секционных зданий; предварительный выбор объемно-планировочных решений жилых и общественных зданий рекомендуется осуществлять с учетом обязательного приложения Б ; б) снижения площади световых проемов жилых зданий до минимально необходимой по требованиям естественной освещенности; в) использования эффективных теплоизоляционных материалов и рационального расположения их в ограждающих конструкциях, обеспечивающего более высокую теплотехническую однородность и эксплуатационную надежность наружных ограждений, а также повышения степени уплотнения стыков и притворов открывающихся элементов наружных ограждений; г) повышения эффективности авторегулирования систем обеспечения микроклимата, применения эффективных видов отопительных приборов и более рационального их расположения; д) выбора более эффективных систем теплоснабжения; е) утилизации тепла удаляемого внутреннего воздуха и поступающей в помещение солнечной радиации. 3.1.4. При выборе предписывающего подхода теплозащитные свойства наружных ограждающих конструкций следует определять согласно подразделу 3.4 настоящих норм. 3.1.5. Выбор окончательного проектного решения при использовании одного из двух подходов, поименованных в п.3.1. 2 , следует выполнять на основе сравнения вариантов с различными конструктивными, объемно-планировочными и инженерными решениями по наименьшему значению удельного расхода тепловой энергии системой теплоснабжения на отопление здания, определяемому согласно подразделу 3.5 настоящих правил. 3.1.6. При разработке проекта здания и его последующей сертификации следует составлять согласно разделу 6 энергетический паспорт здания, характеризующий его уровень теплозащиты и энергетическое качество и доказывающий соответствие проекта здания данным нормам. 3.2. ИСХОДНЫЕ ДАННЫЕ ДЛЯ ПРОЕКТИРОВАНИЯ ТЕПЛОЗАЩИТЫ3.2.1. Среднюю температуру наружного воздуха за отопительный период Таблица 3.1 Расчетные температуры наружного воздуха в холодный период года t ext и средней за отопительный период
Примечание : Для районов строительства, не указанных в таблице, расчетные температуры наружного воздуха следует принимать по наиболее близко расположенному пункту. 3.2.2. Оптимальные параметры внутреннего воздуха помещений зданий следует принимать согласно ГОСТ 30494 для соответствующих типов зданий и в соответствии с табл.3.2. Таблица 3.2 Расчетная температура, относительная влажность и температура точки росы внутреннего воздуха помещений, принимаемые при теплотехнических расчетах ограждающих конструкций в соответствии с ГОСТ 30494
Примечание : Для зданий, не указанных в таблице, температуру воздуха внутри зданий t int , относительную влажность воздуха j int и соответствующую им температуру точки росы следует принимать согласно ГОСТ 30494 и нормам проектирования соответствующих зданий. 3.2.3. Градусосутки отопительного периода D d ,°С·сут, следует принимать в соответствии с СНиП 23-01 и согласно табл.3.3. Таблица 3.3 Градусосутки и продолжительность отопительного периода
Примечание : Для районов строительства, не указанных в таблице, градусосутки и продолжительность отопительного периода следует принимать по наиболее близко расположенному пункту. 3.2.4. Среднюю за отопительный период величину суммарной солнечной радиации на горизонтальную и вертикальные поверхности различной ориентации при действительных условиях облачности I , МДж/м 2 , следует принимать по табл. 3.4. Таблица 3.4 Средняя величина суммарной солнечной радиации на горизонтальную и вертикальные поверхности при действительных условиях облачности I , МДж/м 2 , за отопительный период
Примечание : Для районов строительства, не указанных в таблице, величину солнечной радиации следует принимать по наиболее близко расположенному пункту. 3.2.5. При проектировании теплозащиты используются следующие расчетные показатели строительных материалов конструкций для условий эксплуатации А согласно СНиП II -3: - коэффициент теплопроводности l , Вт/(м·°С ); - коэффициент теплоусвоения (при периоде 24 ч) s , Вт/(м 2 ·°С); - удельная теплоемкость (в сухом состоянии) c 0 , кДж/(кг·°С); - коэффициент паропроницаемости m мг/(м·ч·Па) или сопротивление паропроницанию R vr , м 2 ·ч·Па/мг; - воздухопроницаемость G , кг/(м 2 ·ч) или сопротивление воздухопроницанию R a , м 2 ·ч·Па/кг или м 2 ·ч· /кг (для окон и балконных дверей при D p =10 Па); - коэффициент поглощения солнечной радиации наружной поверхностью ограждения r 0 . Примечания : 1 . Расчетные показатели эффективных теплоизоляционных материалов (минераловатных, стекловолокнистых и полимерных), а также материалов, не приведенных в СНиП II -3, следует принимать для условий эксплуатации А согласно теплотехническим испытаниям, выполненным аккредитованными Госстроем России испытательными лабораториями с учетом расчетного массового отношения влаги в материале, приведенного для соответствующего материала в приложении 3* СНиП II -3. 2 . Показатели пожарной опасности эффективных теплоизоляционных материалов, не имеющих сертификата пожарной безопасности и (или) протоколов натурных огневых испытаний, следует принимать согласно результатам испытаний, проведенных ГПС МВД РФ или другими аккредитованными ГПС лабораториями. В сертификате или протоколе испытаний в обязательном порядке необходимо указывать следующие пожарно-технические характеристики: горючесть по ГОСТ 30244, воспламеняемость по ГОСТ 30402, распространение пламени по поверхности по ГОСТ 30444 и ГОСТ Р 51032, дымообразующая способность по ГОСТ 12.1.044 (п.2.14.2 и п.4.18), токсичность по ГОСТ 12.1.044 (п.2.16.2 и п.4.20). Применение теплоизоляционных материалов без вышеуказанных сертификатов или протоколов испытаний (заключений) запрещается. Для горючих материалов должны быть указаны все без исключения вышеперечисленные характеристики. 3 . Применение систем наружного утепления зданий на основе горючих утеплителей, не прошедших натурных огневых испытаний, не допускается (Совместное письмо Управления стандартизации, технического нормирования и сертификации Госстроя России № 9-18/294 от 18.06.99 г. и ГУ ГПС МВД России № 20/2.2/1756 от 18.06.99 г.) 3.2.6. При проектировании пароизоляции ограждающих конструкций отапливаемых зданий за расчетное значение принимается среднее парциальное давление водяного пара наружного воздуха за годовой период и период месяцев с отрицательными среднемесячными температурами. 3.2.7. При расчетах теплоэнергетических показателей зданий согласно разделу 3.5 следует руководствоваться следующими правилами: а) Отапливаемую площадь здания следует определять как площадь этажей (в т.ч. мансардного, отапливаемого цокольного и подвального) здания, измеряемую в пределах внутренних поверхностей наружных стен. При этом площадь лестничных клеток и лифтовых шахт включается в площадь этажа. Площадь антресолей, галерей и балконов зрительных и других залов следует включать в отапливаемую площадь здания. В отапливаемую площадь здания не включается площадь технических этажей, неотапливаемого подвала (подполья), а также чердака или его части, не занятой под мансарду. б) При определении площади мансардного этажа учитывается площадь с высотой до наклонного потолка 1,2 м при наклоне 30° к горизонту; 0,8 м - при 45°-60°; при 60° и более площадь измеряется до плинтуса (Приложение 2 СНиП 2.08.01). в) Площадь жилых помещений здания подсчитывается как сумма площадей всех общих комнат (гостиных) и спален. г) Отапливаемый объем здания определяется как произведение площади этажа на внутреннюю высоту, измеряемую от поверхности пола первого этажа до поверхности потолка последнего этажа. При сложных формах внутреннего объема здания отапливаемый объем определяется как объем пространства, ограниченного внутренними поверхностями наружных ограждений (стен, покрытия или чердачного перекрытия, цокольного перекрытия). Для определения объема воздуха, заполняющего здание, отапливаемый объем умножается на коэффициент 0,85. д) Площадь наружных ограждающих конструкций определяется по внутренним размерам здания. Общая площадь наружных стен (с учетом оконных и дверных проемов) определяется как произведение периметра наружных стен по внутренней поверхности на внутреннюю высоту здания, измеряемую от поверхности пола первого этажа до поверхности потолка последнего этажа. Суммарная площадь окон определяется по размерам проемов в свету. Площадь наружных стен (непрозрачной части) определяется как разность общей площади наружных стен и площади окон. е) Площадь горизонтальных наружных ограждений (покрытия, чердачного и цокольного перекрытия) определяется как площадь этажа здания (в пределах внутренних поверхностей наружных стен). При наклонных поверхностях потолков последнего этажа площадь покрытия, чердачного перекрытия определяется как площадь внутренней поверхности потолка. 3. 3. ТРЕБОВАНИЯ ПО ТЕПЛОЗАЩИТЕ ЗДАНИЯ В ЦЕЛОМ – ПОТРЕБИТЕЛЬСКИЙ ПОДХОД3.3.1. Проект здания следует разрабатывать на основе требуемой
величины удельного расхода тепловой энергии на отопление проектируемого здания
3.3.2. Расчетный удельный (на 1 м 2 отапливаемой площади здания [или на 1 м 3 отапливаемого объема])
расход тепловой энергии на отопление проектируемого здания
где
h dec - расчетный коэффициент энергетической эффективности систем отопления и децентрализованного теплоснабжения, определяемый согласно разделу 4;
Таблица 3.5а Требуемый удельный
расход тепловой энергии на отопление жилых одноквартирных отдельно стоящих и
блокированных зданий
Таблица 3.5б Требуемый
удельный расход тепловой энергии на отопление жилых многоквартирных и общественных зданий
3.3.3.
Минимально допустимое сопротивление теплопередаче непрозрачных ограждающих
конструкции
где n - коэффициент, принимаемый по табл.3* СНиП II -3; t int - расчетная температура внутреннего воздуха, °С, принимаемая по табл.3.2; t ext - расчетная температура наружного воздуха в холодный период года, °С, принимаемая по табл.3.1; D t n - нормативный температурный перепад, °С, принимаемый по табл.2* СНиП II -3 в зависимости от вида здания и ограждающей конструкции; a int - коэффициент теплообмена внутренней поверхности ограждающей конструкции, Вт/( м 2 · ° С), принимаемый по табл.4 СНиП II -3. Примечания . 1. При определении минимально допустимого сопротивления теплопередаче внутренних ограждающих конструкций (кроме чердачных и цокольных перекрытий) в формуле (3.3) следует принимать n =1 и вместо t ext - расчетную температуру воздуха более холодного помещения; 2. Для чердачных и цокольных перекрытий теплых чердаков и подвалов с температурой воздуха в них t c большей t ext , но меньшей t int , коэффициент n следует определять по формуле n =( t in t - t c )/( t int - t ext ) . Температуру t c следует принимать по расчету теплового баланса (но не менее плюс 2 °С для подвалов при расчетных условиях и не более плюс 15 °С для чердаков и подвалов). 3.3.4.
Требуемое сопротивление теплопередаче - для окон, балконных дверей и витражей по табл.1б* СНиП II -3 согласно градусосуткам по 2 табл.3.3; 0,81 м 2 · ° С/Вт для глухой части балконных дверей; - 0,43 м 2 · ° С/ BT для входных дверей в квартиры, расположенные выше первого этажа: - 1,5 м 2 · ° С/ BT для входных дверей в одноквартирные здания и квартиры, расположенные на первых этажах многоэтажных зданий. Требуемое
сопротивление теплопередаче - 0,66 м 2 · ° С/Вт для окон поликлиник, лечебных учреждений, домов-интернатов, детских дошкольных учреждений; - 0,61 м 2 · ° С/Вт для окон остальных общественных зданий; - 0,42 м 2 · ° С/Вт для фонарей: -
для наружных дверей не менее произведения 0,6 3.3.5.
Приведенное сопротивление теплопередаче непрозрачных и светопрозрачных
ограждающих конструкции 3.3.6. Температура внутренней поверхности ограждающей конструкции в зоне теплопроводных включений (диафрагм, сквозных швов из раствора, стыков панелей, ребер и гибких связей в многослойных панелях, жестких связей облегченной кладки и др.), в углах и оконных откосах должна быть не ниже температуры точки росы внутреннего воздуха, принимаемой согласно табл.3.2. Температура внутренней поверхности вертикального остекления должна быть не ниже плюс 3 °С при расчетных условиях. 3.3.7.
Воздухопроницаемость ограждающих конструкций зданий 3.3.8 Требуемое сопротивление паропроницанию наружных ограждающих конструкций следует определять согласно разделу 6 СНиП II -3. 3.3.9. Поверхность пола жилых и общественных зданий должна иметь показатель теплоусвоения Y f , Вт/(м 2 · ° С), не более нормативных величин, указанных в СНиП II -3. 3.3.10.
Суммарная площадь окон жилых зданий согласно СНиП II -3 должна быть не более 18%
от суммарной площади светопрозрачных и непрозрачных ограждающих конструкций
стен, если приведенное сопротивление теплопередаче светопрозрачных конструкции Площадь светопрозрачных конструкций в общественных зданиях следует определять из условия обеспечения нормативного значения КЕО согласно СНиП 23-05. 3.4. ПОЭЛЕМЕНТНЫЕ ТРЕБОВАНИЯ К ТЕПЛОЗАЩИТЕ ОГРАЖДАЮЩИХ КОНСТРУКЦИЙ - ПРЕДПИСЫВАЮЩИЙ ПОДХОД3.4.1. Наружные ограждающие конструкции здания согласно предписывающему подходу должны удовлетворять следующим требованиям по: - допустимому приведенному сопротивлению теплопередаче в соответствии с п.3.4.2; - минимальным допустимым температурам внутренней поверхности в соответствии с п.3.3.6; - максимально допустимой воздухопроницаемости отдельных конструкций ограждений в соответствии с п.3.3.7; - минимально допустимому пределу огнестойкости и классу конструктивной пожарной опасности здания (пределу распространения огня); Процесс теплотехнического проектирования ограждающих конструкций до удовлетворения требования п.3.4.2 рекомендуется осуществлять согласно подразделу 3.6. 3.4.2.
Приведенное сопротивление теплопередаче ( - значений, приведенных в п.2.1* СНиП II -3 для градусосуток по табл.3.3 согласно второму этапу повышения уровня теплозащиты из условий энергосбережения для наружных непрозрачных ограждающих конструкций в зависимости от вида здания и помещения; допускается определять эти значения по методике экономической оптимизации согласно справочному приложению Г, но не менее значений, приведенных в 2.1* СНиП II -3; для чердачных и цокольных перекрытий теплых чердаков и подвалов эти значения следует умножать на коэффициент n , определяемый согласно примечанию 2 к п.3.3.3; - произведения 0,03 на разность температур воздуха между помещениями для внутренних ограждений, в случае, если разность температур равна или больше 6 °С; - значений, приведенных в п.3.3,4 для светопрозрачных конструкций и входных дверей. Приведенное
сопротивление теплопередаче Примечание . Допускается применение конструкций наружных стен с
приведенным сопротивлением теплопередаче (за исключением светопрозрачных) не
более, чем на 5% ниже, указанного в п.2.1* СНиП II -3, при обязательном увеличении
сопротивления теплопередаче наружных горизонтальных ограждений с тем, чтобы
приведенный трансмиссионный коэффициент теплопередачи совокупности
горизонтальных и вертикальных наружных ограждений, определяемый по формуле
(3.9), был не выше значения 3.4.3. Требуемое сопротивление воздухопроницанию и паропроницанию ограждающих конструкций, а также показатель теплоусвоения пола следует определять согласно пп.3.3.8- 3.3.10 соответственно. 3.4.4. Площадь светопрозрачных ограждающих конструкций следует определять в соответствии с п.3.3.11. 3.5 . ТЕПЛОЭНЕРГЕТИЧЕСКИЕ ПАРАМЕТРЫ3.5.1.
Показатель компактности здания
где V h - отапливаемый объем здания, равный объему, ограниченному внутренними поверхностями наружных ограждений здания, м 3 . Расчетный
показатель компактности здания - 0,25 для зданий 16 этажей и выше; - 0.29 для зданий от 10 до 15 этажей включительно; - 0,32 для зданий от 6 до 9 этажей включительно; - 0,36 для 5-этажных зданий; - 0,43 для 4-этажных зданий: - 0,54 для 3-этажных зданий; - 0,61; 0,54; 0,46 для двух-, трех- и четырехэтажных блокированных и секционных домов соответственно; - 0,9 для двухэтажных и одноэтажных домов с мансардой; - 1,1 для одноэтажных домов. 3.5.2.
Расчетный удельный расход тепловой энергии системой отопления здания
где A h - отапливаемая площадь здания, м 2 ; V h - то же, что и формуле (3.4), м 3 ; D d - количество градусосуток отопительного периода, определяемое согласно п.3.2.3, ° С·сут. 3.5.3.
Потребность в тепловой энергии на отопление здания в течение отопительного
периода а) при автоматическом регулировании теплоотдачи нагревательных приборов в системе отопления по формуле
б) при отсутствии автоматического регулирования теплоотдачи нагревательных приборов в системе отопления по формуле
где Q h - общие теплопотери здания через наружные ограждающие конструкции, МДж. определяемые по формуле
K m - общий коэффициент теплопередачи здания, Вт/(м 2 · ° С), определяемый по формуле
где b - коэффициент, учитывающий дополнительные теплопотери, связанные с ориентацией ограждений по сторонам горизонта, с ограждениями угловых помещений, с поступлением холодного воздуха через входы в здание: для жилых зданий, b =3,13, для прочих зданий b =1,1; A w , A F , A ed , A c , A f - площадь соответственно стен, заполнений светопроемов (окон, фонарей) наружных дверей и ворот, покрытий (чердачных перекрытий), цокольных перекрытий, м 2 ;
n - коэффициент, принимаемый в зависимости от положения наружной поверхности ограждающей конструкции по отношению к наружному воздуху согласно табл.3* СНиП II -3;
где c - удельная теплоемкость воздуха, равная 1 кДж/(кг·°С); n a - средняя кратность воздухообмена здания за отопительный период, 1/ч, принимаемая по нормам проектирования соответствующих зданий: для жилых зданий - исходя из удельного нормативного расхода воздуха 3 м 3 /ч на 1 м 2 жилых помещений и кухонь; для общеобразовательных учреждений - 16-20 м 3 /ч на 1 чел.; в дошкольных учреждениях -1,5 на 1/ч, в больницах-2 на 1/ч. В общественных зданиях, функционирующих не круглосуточно, среднесуточная кратность воздухообмена определяется по формуле
z w - продолжительность рабочего времени в учреждении, ч;
b v - коэффициент снижения объема воздуха в здании, учитывающий наличие внутренних ограждающих конструкций. При отсутствии данных принимать b v = 0,85; V h - то же, что в формуле (3.4), м 3 ;
k - коэффициент учета влияния встречного теплового потока в конструкциях, равный 0,7 для стыков панелей стен и окон с тройными переплетами, 0,8 - для окон и балконных дверей с двумя раздельными переплетами и 1,0 - для одинарных окон, окон и балконных дверей со спаренными переплетами и открытых проемов;
Q int - бытовые теплопоступления в течение отопительного периода, МДж, определяемые по формуле Q int =0,0864q int · z ht · A I , (3.13) где q int - величина бытовых тепловыделений на 1 м 2 полезной площади (площади жилых помещении) здания, Вт/м 2 , принимаемая по расчету, но не менее 10 Вт/м 2 для жилых и административных зданий; для общественных и административных зданий бытовые тепловыделения учитываются по проектному числу людей (90 Вт/чел), освещения (по установочной мощности) и оргтехники (10 Вт/м 2 ) с учетом рабочих часов в сутках; z ht - средняя продолжительность отопительного периода, сут, принимаемая по табл.3.3; A I - полезная площадь здания, м 2 , равная площади пола всех отапливаемых помещении здания; для жилых зданий - площадь жилых помещений; Q s - теплопоступления через окна от солнечной радиации в течение отопительного периода, МДж, для четырех фасадов зданий, ориентированных по четырем направлениям, определяемые по формуле Q s = t F k F (A F1 I 1 + A F2 I 2 + A F3 I 3 + A F4 I 4 ) + t scy k scy A scy I hor , (3.14) где t F , t scy - коэффициенты, учитывающие затенение светового проема соответственно окон и зенитных фонарей непрозрачными элементами заполнения, принимаемые по проектным данным; при отсутствии данных - следует принимать по табл.3.6; k F , k scy - коэффициенты относительного проникания солнечной радиации соответственно для светопропускающих заполнений окон и зенитных фонарей, принимаемые по паспортным данным соответствующих светопропускающих изделий; при отсутствии данных - следует принимать по табл.3.6; Таблица 3.6 Значения коэффициентов затенения светового проема t F и t scy и относительного проникания солнечной радиации k F и k scy соответственно окон и зенитных фонарей
A F 1 , A F 2 , A F 3 , A F 4 - площадь светопроемов фасадов здания, соответственно ориентированных по четырем направлениям, м 2 ; Примечание . Для промежуточных направлений величину солнечной радиации следует определять по интерполяции; A scy - площадь светопроемов зенитных фонарей здания, м 2 ; I 1 , I 2 , I 3 , I 4 – средняя за отопительный период величина солнечной радиации на вертикальные поверхности при действительных условиях облачности, соответственно ориентированные по четырем фасадам здания, МДж/м 2 , принимается по табл.3.4: I hor - средняя за отопительный период величина солнечной радиации на горизонтальную поверхность при действительных условиях облачности, мДж/м 2 , принимается по табл.3.4; v - коэффициент, учитывающий способность ограждающих конструкций помещений зданий аккумулировать или отдавать тепло; рекомендуемое значение v =0,8; b h - коэффициент, учитывающий дополнительное теплопотребление системы отопления, связанное с дискретностью номинального теплового потока номенклатурного ряда отопительных приборов и дополнительными теплопотерями через зарадиаторные участки ограждений, теплопотерями трубопроводов, проходящих через неотапливаемые помещения: для многосекционных и других протяженных зданий b h = 1,13, для зданий башенного типа b h = 1,11. 3.6. ПРОЦЕДУРА ВЫБОРА УРОВНЯ ТЕПЛОЗАЩИТЫ3.6.1. Выбор уровня теплозащиты здания в целом (по потребительскому подходу) выполняют в ниже приведенной последовательности: а) выбирают требуемые климатические параметры согласно подразделу 3.2; б) выбирают параметры воздуха внутри здания и условия комфортности в соответствии с ГОСТ 30494, согласно подразделу 3.2 и назначению здания; в)
разрабатывают объемно-планировочные и компоновочные решения здания,
рассчитывают его геометрические размеры и показатель компактности г)
определяют согласно подразделу 3.3 требуемое
значение удельного расхода тепловой энергии на отопление здания д)
определяют требуемые сопротивления теплопередаче е) назначают требуемый воздухообмен согласно СНиП 2.08.01, СНиП 2.08.02 и другим нормам проектирования соответствующих зданий и сооружений, и проверяют обеспечение этого воздухообмена по помещениям; ж) проверяют принятые конструктивные решения наружных ограждений на удовлетворение требований приложению Б; з)
рассчитывают согласно подразделу 3.5 удельные расходы тепловой энергии на
отопление здания и) если
расчетное значение 1. изменение объемно-планировочного решения здания (размеров и формы); 2. понижение (или повышение) уровня теплозащиты отдельных ограждений здания; 3. выбор более эффективных систем теплоснабжения, а также отопления и вентиляции и способов их регулирования; 4. комбинирование предыдущих вариантов, используя принцип взаимозаменяемости. 3.6.2. Выбор уровня теплозащиты здания на основе поэлементных требований выполняют в нижеприведенной последовательности: а) начинают проектирование согласно позициям (а-в) п.3.6.1; б)
определяют согласно подразделу 3.4
требуемое сопротивление теплопередаче в)
разрабатывают или выбирают конструктивные решения наружных ограждений, при этом
определяют их приведенное сопротивление теплопередаче г) проверяют принятые конструктивные решения наружных ограждений на удовлетворение требований приложению Б; д)
рассчитывают удельное энергопотребление системой отопления здания е) проверку условия согласно формуле (3.1) в этом случае производить не следует. 3.6.3. Светопрозрачные ограждающие конструкции следует подбирать по следующей методике: а)
требуемое сопротивление теплопередаче б)
при отсутствии сертифицированных данных допускается использовать при
проектировании значения в) при проверке требования по обеспечению минимальной температуры на внутренней поверхности t int светопрозрачных ограждений и их несветопрозрачных элементов температуру t int следует определять согласно п.3.3.6. Если в результате расчета окажется, что условия п.3.3.6 нарушены при расчетных условиях, то следует выбрать другое конструктивное решение заполнения светопроема с целью обеспечения этих требований; г)
требуемое сопротивление воздухопроницанию
где G n - нормативная воздухопроницаемость светопрозрачной конструкции, кг/(м 2 ·ч), принимаемая по табл.12* СНиП II -3 при D p = 10 Па; D p - разность давлений воздуха на наружной и внутренней поверхности светопрозрачной конструкции. Па, определяемая согласно п.5.2* СНиП II -3, D p O =10 Па - разность давлений воздуха на наружной и внутренней поверхности светопрозрачной конструкции, при которой определялась воздухопроницаемость сертифицируемого образца; д) сопротивление воздухопроницанию выбранного типа светопрозрачной конструкции R a , м 2 ·ч/кг, определяют по формуле R a = (1/ G s )( D p / D p O ) n , (3.16) где G s - воздухопроницаемость светопрозрачной конструкции, кг/(м 2 ·ч), при D p =10 Па, полученная в результате сертификационных испытаний; n - показатель режима фильтрации светопрозрачной конструкции, полученный в результате сертификационных испытаний. е) в
случае В случае R a < ж) c ветопрозрачные ограждающие конструкции должны обеспечивать беспрепятственное спасение людей пожарными подразделениями в случае пожара. 3.6.4. Проверяют принятые конструктивные решения наружных ограждений на удовлетворение требований СНиП II -3 по теплоустойчивости и паропроницаемости, обеспечивая, при необходимости, конструктивными изменениями выполнение этих требований. 3.6.5. Определяют категорию энергетической эффективности здания в соответствии с разделом 5. 4. УЧЕТ ЭФФЕКТИВНОСТИ СИСТЕМ ТЕПЛОСНАБЖЕНИЯРасчетный
коэффициент энергетической эффективности систем отопления и централизованного
теплоснабжения здания
где h 1 - расчетный коэффициент теплопотерь в системах отопления здания; e 1 - расчетный коэффициент эффективности регулирования в системах отопления зданий; h 2 - расчетный коэффициент теплопотерь распределительных сетей и оборудования тепловых (центральных и индивидуальных) и распределительных пунктов; e 2 - расчетный коэффициент эффективности регулирования оборудования тепловых (центральных и индивидуальных) и распределительных пунктов; h 3 - расчетный коэффициент теплопотерь магистральных тепловых сетей и оборудования системы теплоснабжения от источника теплоснабжения до теплового или распределительного пункта; e 3 - расчетный коэффициент эффективности регулирования оборудования системы теплоснабжения от источника теплоснабжения до теплового или распределительного пункта; h 4 - расчетный коэффициент теплопотерь оборудования источника теплоснабжения; e 4 - расчетный коэффициент эффективности регулирования оборудования источника теплоснабжения. Расчетный коэффициент энергетической эффективности систем отопления и децентрализованного (поквартирной, индивидуальной и автономной системы) теплоснабжения здания h dec определяется по формуле
где h 1 , e 1 , h 4 , e 4 - то же, что в формуле (4.1). Значения коэффициентов, входящих в формулы (4.1) и (4.2), следует принимать с учетом требований СНиП 2.04.05 и СНиП 2.04.07 и по осредненным за отопительный период данным проекта. При отсутствии
данных о системах теплоснабжения принимают равным: 5. КОНТРОЛЬ ТЕПЛОТЕХНИЧЕСКИХ И ЭНЕРГЕТИЧЕСКИХ ПОКАЗАТЕЛЕЙ5.1. Контроль теплотехнических и энергетических показателей при проектировании и экспертизе проектов теплозащиты зданий на их соответствие настоящим нормам следует выполнять с помощью энергетического паспорта согласно разделу 6. 5.2. Контроль теплотехнических и энергетических показателей при эксплуатации зданий и оценка соответствия теплозащиты здания и отдельных его элементов настоящим нормам следует осуществлять путем экспериментального определения основных показателей на основе государственных стандартов на методы испытаний строительных материалов, конструкций и объектов в целом. 5.3. Сертификация элементов теплозащиты и всей системы теплозащиты здания в целом осуществляется на основании комплекта организационно-методических документов системы сертификации, утвержденной Госстроем России постановлением от 17.03.98 № 11, включающей: СНиП 10-01, РДС 10-231, РДС 10-232, "Номенклатуру продукции и услуг (работ), подлежащих обязательной сертификации в области строительства с 1 октября 1998 г.", утвержденную постановлением Госстроя России от 29.04.98 № 18-43 "Об обязательной сертификации продукции и услуг (работ) в строительстве", постановление Правительства РФ от 13.08.97 № 1013 "Об утверждении перечня товаров, подлежащих обязательной сертификации", приказ ГУГПС МВД РФ от 17.11.98 № 73 "Об утверждении перечня продукции, подлежащей обязательной сертификации в области пожарной безопасности", приказ Минздрава России от 20.07.98 № 217 "О гигиенической оценке производства, поставки и реализации продуктов и товаров". 5.4. Определение теплофизических показателей (теплопроводности, теплоусвоения, влажности, сорбционных характеристик, паропроницаемости, водопоглощения, морозостойкости) материалов теплозащиты производится в соответствии с требованиями федеральных стандартов: ГОСТ 7076, ГОСТ 30256, ГОСТ 30290. ГОСТ 23250, ГОСТ 25609, ГОСТ 21718, ГОСТ 24816, ГОСТ 25898, ГОСТ 7025, ГОСТ 17177. При определении показателей пожарной опасности ограждающих конструкций зданий (предела огнестойкости и класса пожарной опасности) следует проводить натурные огневые испытания фрагментов конструкций в ГПС МВД РФ или других аккредитованных ГПС испытательных лабораториях. 5.5. Определение теплотехнических характеристик (сопротивления теплопередаче и воздухопроницанию, теплоустойчивости, теплотехнической однородности) отдельных конструктивных элементов теплозащиты выполняют в натурных условиях, либо в лабораторных условиях в климатических камерах, а также методами математического моделирования температурных полей на ЭВМ, согласно требованиям следующих стандартов: ГОСТ 26253, ГОСТ 26254, ГОСТ 26602.1, ГОСТ 26602.2, ГОСТ 25891, ГОСТ 25380, ГОСТ 26629. 5.6. Согласно ГОСТ Р 1.0 и СНиП 10-01 добровольной сертификации подлежат здания, построенные по проектам повторного применения, индустриально изготавливаемые здания и типовые индустриальные ограждающие конструкции для этих зданий с целью установления их соответствия нормативным требованиям и присвоения зданию категории энергетической эффективности. 5.7.
Категория теплоэнергетической эффективности здания присваивается по данным натурных
теплотехнических испытаний после гарантийного периода, установленного ВСН
58- 88(р). Присвоение категории уровня теплоэнергетической эффективности
производится по степени снижения или повышения удельного расхода энергии на
отопление здания Таблица 5.1 Категории теплоэнергетической эффективности зданий
5.8.
При проектном энергопотреблении здания 6. ТРЕБОВАНИЯ К ЭНЕРГЕТИЧЕСКОМУ ПАСПОРТУ ПРОЕКТА ЗДАНИЯ6.1. Общая часть6.1.1. Энергетический паспорт здания предназначен для подтверждения соответствия показателей энергосбережения и энергетической эффективности здания по теплотехническим и энергетическим критериям, установленным СНиП 10-01 и в настоящем документе, путем использования его показателей в процессе разработки проектной и технической документации, при экспертизе проекта, в процессе строительства и ввода в эксплуатацию при осуществлении функций инспекцией ГАСН и контроле фактических показателей при эксплуатации здания. 6.1.2. Энергетический паспорт следует заполнять при разработке проектов новых, реконструируемых, капитально ремонтируемых зданий, а также в процессе эксплуатации построенных зданий. С его помощью обеспечивается последовательный контроль качества при проектировании, строительстве и эксплуатации здания. 6.2. Основные положения6.2.1. Энергетический паспорт здания следует заполнять: - на стадии разработки проекта после привязки к условиям конкретной площадки – проектной организацией; - на стадии сдачи строительного объекта в эксплуатацию - организациями, имеющими аттестат аккредитации в качестве испытательной лаборатории строительной продукции (по параметрам, определяющим теплотехническую и энергетическую эффективность); - на стадии эксплуатации - организацией, эксплуатирующей здание, после годичной эксплуатации здания. 6.2.2. Для существующих зданий теплоэнергетический паспорт здания следует разрабатывать по заданиям организаций, осуществляющих эксплуатацию жилого фонда и зданий общественного назначения. При этом на здания, исполнительная документация на строительство которых не сохранилась, энергетические паспорта здания составляются на основе материалов Бюро Технической Инвентаризации, натурных технических обследований и измерений, выполняемых квалифицированными специалистами, имеющими лицензию на выполнение соответствующих работ. 6.2.3. Для жилых зданий с встроенно-пристроенными нежилыми помещениями в нижних этажах энергетические паспорта следует составлять раздельно по жилой части и каждому встроенно-пристроенному нежилому блоку; для встроенных нежилых помещений в первый этаж жилых зданий, не выходящих за проекцию жилой части здания, энергетический паспорт составляется как для одного здания. 6.2.4. Контроль качества и соответствие теплозащиты зданий и отдельных его элементов действующим нормам осуществляется путем определения теплотехнических и энергетических показателей эксплуатируемых зданий в соответствии с разделом 5. 6.2.5. Ответственность за достоверность данных энергетического паспорта проекта здания несет проектная организация, осуществляющая его заполнение в процессе проектирования, или организация, оформляющая энергетический паспорт эксплуатируемого здания. 6.2.6. Несоответствие энергетических характеристик здания и его элементов требованиям СНиП РФ и настоящим нормам может являться основанием для подачи собственником или эксплуатирующей организацией судебного иска к организации-заказчику или генеральному подрядчику о возмещении ущерба. 6.2.7. Энергетический паспорт гражданского здания не предназначен для расчетов за коммунальные и другие услуги, оказываемые владельцам зданий, квартиросъемщикам и владельцам квартир. 6.2.8. Энергетический паспорт следует составлять в 4-х экземплярах. Один экземпляр должен храниться в проектной организации, второй - в папке ГАСН, третий экземпляр передается заказчику, в дальнейшем - собственнику, четвертый - организации, эксплуатирующей здание. 6.3. Состав показателей энергетического паспорта6.3.1. Энергетический паспорт здания должен содержать сведения о: - общей информации о проекте; - расчетных условиях, устанавливаемых согласно подразделе 3.2; - функциональном назначении и типе здания; - объемно-планировочных и компоновочных показателях здания; - расчетных энергетических показателях здания, в том числе: теплотехнические показатели, энергетические показатели. - сопоставлении с нормативными требованиями; - рекомендациях по повышению энергетической эффективности здания; - результатах измерения энергопотребления и уровня теплозащиты здания после годичного периода его эксплуатации; - установлении категории энергетической эффективности здания согласно разделу 5; 6.3.2. Здания следует различать по функциональному назначению - на жилые и общественные (отдельно стоящие или пристраиваемые к другим зданиям), по типу - малоэтажные до трех этажей включительно и многоэтажные, и по конструктивным решениям – крупнопанельные железобетонные, монолитные, кирпичные, деревянные и др. 6.3.3. Внутренние и наружные расчетные условия должны содержать сведения о расчетной температуре и относительной влажности внутреннего воздуха, расчетной температуре наружного воздуха, градусосуток и продолжительности отопительного периода. Нормируемые величины следует принимать согласно СНиП 23-01, ГОСТ 30494, настоящим нормам и нормам проектирования соответствующих зданий и сооружений. 6.3.4. Объемно-планировочные и компоновочные параметры здания должны содержать данные о геометрических параметрах здания (отапливаемых объеме и площади здания, высоте этажей и количестве квартир для жилых зданий), о площадях помещений общественных зданий, площадях жилых помещений и кухонь жилых зданий, о площадях наружных ограждающих конструкций (стен, окон, балконных и входных дверей, покрытий, чердачных перекрытий и перекрытий над не отапливаемыми подвалами и подпольями, проездами, над и под эркерами, полов по грунту), определяемых согласно п.3.2.7, о коэффициентах остекленности фасада здания и компактности здания, сведения о компоновочных решениях. 6.3.5. Нормативные теплотехнические и энергетические параметры должны содержать данные о требуемом сопротивлении теплопередаче и воздухопроницаемости наружных ограждающих конструкций (стен, окон и балконных дверей, покрытий, чердачных перекрытий, перекрытий над проездами и эркерами, перекрытий над неотапливаемыми подвалами и подпольями, входных дверей и ворот), о требуемом удельном расходе тепловой энергии системами отопления и теплоснабжения здания. Нормируемые величины следует принимать согласно СНиП II -3 и настоящим нормам. 6.3.6. Расчетные теплотехнические показатели здания должны содержать данные о приведенном сопротивлении теплопередаче и сопротивлении воздухопроницанию наружных ограждающих конструкций (стен по продольным фасадам и торцевых, окон и наружных дверей, покрытий, чердачных перекрытий, фонарей, перекрытий над проездами и эркерами, перекрытий над не отапливаемыми подвалами и подпольями, входных дверей и ворот), о приведенном трансмиссионном и инфильтрационном (условном), а также общем коэффициенте теплопередачи здания. 6.3.7. Расчетные энергетические показатели здания должны содержать данные о потребности тепловой энергии на отопление здания за отопительный период, об удельном расходе тепловой энергии на отопление на один м 2 отапливаемой площади (или на один м 3 отапливаемого объема) здания, приходящемся на одни градусосутки, и об удельном расходе тепловой энергии системой теплоснабжения на отопление здания. 6.3.8. Результаты измерений теплотехнических и энергетических показателей согласно подразделу 3.6 должны содержать данные о фактических значениях величин, поименованных в пп.6.3.5-6.3.7. Результаты фактических измерений должны быть приведены к расчетным условиям. 6.3.9. Энергетический паспорт должен содержать проверку проектных и эксплуатационных показателей, поименованных в пп.6.3.5-6.3.7, на соответствие их нормативным требованиям. По результатам измерений энергопотребления здания следует установить категорию энергетической эффективности согласно разделу 5. 6.3.10. Рекомендации по повышению энергоэффективности здания с указанием сроков их реализации следует разрабатывать: - на стадии проекта в случае несоответствия энергетических показателей требованиям данных норм - проектной организацией; - на стадии эксплуатации в случае присвоения зданию "пониженной" категории энергетической эффективности - организацией, эксплуатирующей здание. 6.3.11. Форма и пример заполнения энергетического паспорта приведены в подразделе 6.4. Методика заполнения и расчета параметров энергетического паспорта приведена в обязательном приложении В. 6.4. Форма и пример заполнения энергетического паспорта зданияДвухэтажный коттедж с размерами в плане 10,4 на 11 м предназначен для строительства в г. Новосибирске. Стены трехслойные кирпичные со средним слоем из пенополистирола и гибкими связями из стеклопластиковых стержней. Окна с заполнением двухкамерными стеклопакетами (внутреннее стекло с твердым селективным покрытием) в пластмассовых переплетах. Чердак - холодный, чердачное перекрытие железобетонное с верхним теплоизоляционным слоем из минераловатных прошивных матов. Подвал - отапливаемый, полы - бетонные по грунту, стены подвала - такие же, как наружные стены выше отметки 0,0 м. Здание подключено к централизованной системе теплоснабжения. Высота отапливаемого объема 8,5 м. Степень огнестойкости II , класс конструктивной безопасности здания С1. Общая информация о проекте
Расчетные условия
Энергетические показатели
7. СОСТАВ И СОДЕРЖАНИЕ РАЗДЕЛА ПРОЕКТА "ЭНЕРГОЭФФЕКТИВНОСТЬ"7.1 Общие положения7.1.1. Проект здания должен содержать раздел "Энергоэффективность". В этом разделе должны быть представлены сводные показатели энергоэффективности проектных решений в соответствующих частях проекта здания. Сводные показатели энергоэффективности должны быть сопоставлены с нормативными показателями данных норм. Указанный раздел выполняется на утверждаемых стадиях предпроектной и проектной документации. 7.1.2. Разработка раздела "Энергоэффективность" проекта здания осуществляется за счет средств заказчика. 7.1.3. При необходимости к разработке раздела "Энергоэффективность" заказчиком и проектировщиком привлекаются соответствующие специалисты и эксперты из других организаций. 7.1.4. Органы экспертизы должны осуществлять проверку соответствия данным нормам предпроектной и проектной документации в составе комплексного заключения. 7.2 Содержание раздела "Энергоэффективность"7.2.1. Раздел "Энергоэффективность" должен содержать энергетический паспорт здания, информацию о присвоении категории энергетической эффективности здания в соответствии с разделом 5 настоящих норм, заключение о соответствии проекта здания требованиям настоящих норм и рекомендации по повышению энергетической эффективности в случае необходимости доработки проекта. 7.2.2. Пояснительная записка раздела должна содержать: - общую энергетическую характеристику запроектированного здания; - сведения о проектных решениях, направленных на повышение эффективности использования энергии; - описание технических решений ограждающих конструкций с расчетом приведенного сопротивления теплопередаче (за исключением светопрозрачных) с приложением протоколов теплотехнических испытаний, подтверждающих принятые расчетные теплофизические показатели строительных материалов, отличающихся от СНиП II -3, и сертификата соответствия для светопрозрачных конструкций; - принятые виды пространства под первым и над последним этажами с указанием температур внутреннего воздуха, принятых в расчет, наличие мансардных этажей, используемых для жилья, тамбуров входных дверей и отопления вестибюлей, остекления лоджий; - принятые системы отопления, вентиляции и кондиционирования воздуха, сведения о наличии приборов учета и регулирования, обеспечивающих эффективное использование энергии; - специальные приемы повышения энергоэффективности здания: устройства по пассивному использованию солнечной энергии, системы утилизации тепла вытяжного воздуха, теплоизоляция трубопроводов отопления и горячего водоснабжения, проходящих в холодных подвалах, применение тепловых насосов и прочее; - информацию о выборе и размещении источников теплоснабжения для объекта. В необходимых случаях приводится технико-экономическое обоснование энергоснабжения от автономных источников вместо централизованных; - сопоставление проектных решений и технико-экономических показателей в части энергопотребления с требованиями данных норм; - заключение. ПРИЛОЖЕНИЕ А
| ||||||||||||||||||||||||||||||||||||||||||||||||||||||||||||||||||||||||||||||||||||||||||||||||||||||||||||||||||||||||||||||||||||||||||||||||||||||||||||||||||||||||||||||||||||||||||||||||||||||||||||||||||||||||||||||||||||||||||||||||||||||||||||||||||||||||||||||||||||||||||||||||||||||||||||||||||||||||||||||||||||||||||||||||||||||||||||||||||||||||||||||||||||||||||||||||||||||||||||||||||||||||||||||||||||||||||||||||||||||||||||||||||||||||||||||||||||||||||||||||||||||||||||||||||||||||||||||||||||||||||||||||||||||||||||||||||||||||||||||||||||||||||||||||||||||||||||||||||||||||||||||||||||||||||||||||||||||||||||||||||||||||||||||||||||||||||||||||||||||||||||||||||||||||||||||||||||||||||||||||||||||||||||||||||||||||||||||||||||||||||||||||||||||||||||||||||||||||||||||||||||||||||||||||||||||||||||||||||||||||||||||||||||||||||||||||||||||||||||||||||||||||||||||||||||||||||||||||||||||||||||||||||||||||||||||||||||||||||||||||||||||||||||||||||||||||||||||||||||||
|
Термин |
Обозначение |
Характеристика термина |
Размерность единицы величины |
|||
|
1 |
2 |
3 |
4 |
|||
|
А1. Общие положения |
||||||
|
А1.1. Здание с эффективным использованием энергии |
|
Здание и оборудование, использующие тепловую энергию для поддержания в здании нормируемых параметров; должны быть спроектированы и возведены таким образом, чтобы было обеспечено заданное энергосбережение, и чтобы здание и названное оборудование использовалось так, чтобы было обеспечено это энергосбережение
|
- |
|||
|
А1.2. Тепловой режим здания |
|
Совокупность всех факторов и процессов, определяющих тепловой режим помещений здания
|
- |
|||
|
А1.3. Теплозащита зданий |
|
Свойство оболочки здания сопротивляться переносу теплоты между помещениями и наружной средой, а также между помещениями с различной температурой воздуха
|
- |
|||
|
А1.4. Энергетический паспорт здания |
|
Документ, содержащий геометрические, энергетические и теплотехнические характеристики существующих и проектируемых зданий и их ограждающих конструкций и устанавливающий соответствие их требованиям нормативных документов
|
- |
|||
|
А1.5. Градусосутки |
D d |
Показатель, представляющий собой температурно-временную характеристику района строительства здания и используемый для расчетов потребления топлива и отопительной нагрузки здания в течение отопительного периода
|
°С·сут |
|||
|
А1.6. Коэффициент остекленности фасада здания |
p |
Отношение площади вертикального остекления к общей площади наружных стен
|
- |
|||
|
А1.7. Показатель компактности здания |
|
Отношение общей площади поверхности наружных ограждающих конструкции здания к заключенному в них отапливаемому объему
|
1/м
|
|||
|
А1.8. Отапливаемая площадь здания |
A h |
Суммарная площадь этажей (в т.ч., мансардного, отапливаемого цокольного и подвального) здания, измеряемая в пределах внутренних поверхностей наружных стен, включая площадь лестничных клеток и лифтовых шахт; для общественных зданий включается площадь антресолей, галерей и балконов зрительных залов
|
м 2 |
|||
|
А1.9. Полезная площадь (для общественных зданий) |
A I |
Сумма площадей всех отапливаемых помещений здания
|
м 2 |
|||
|
А1.10. Площадь жилых помещений |
A I |
Сумма площадей всех общих комнат (гостиных) и спален
|
м 2 |
|||
|
А1.11. Отапливаемый объем |
V h |
Объем, ограниченный внутренними поверхностями наружных ограждений здания (стен, покрытий, (чердачных перекрытий), перекрытий пола первого этажа)
|
м 3 |
|||
|
А1.12. Пожарная опасность |
- |
Возможность возникновения и/или развития пожара, заключенная в каком-либо веществе, состоянии или процессе
|
- |
|||
|
А1.13. Огнестойкость |
- |
Свойство строительной конструкции сопротивляться воздействию пожара и распространению его опасных факторов
|
- |
|||
|
А1.14. Сертификат пожарной безопасности |
- |
Документ, выданный в соответствии с правилами пожарной безопасности системы сертификации в области пожарной безопасности, для подтверждения соответствия сертифицируемой продукции установленным требованиям пожарной безопасности
|
|
|||
|
А2. Показатели энергоэффективности |
||||||
|
А2.1. Потребность в тепловой энергии на отопление здания |
|
Количество теплоты за отопительный период, необходимое для поддержания в здании нормируемых параметров теплового комфорта
|
МДж |
|||
|
А2.2. Расчетный удельный расход тепловой энергии на отопление здания |
|
Количество теплоты, необходимое для поддержания в здании нормируемых параметров теплового комфорта, отнесенное к единице общей отапливаемой площади здания или его объему и градусосуткам отопительного периода
|
кДж/(м 2 ·ºС-сут), кДж/(м 3 ·ºС-сут) |
|||
|
А2.3. Требуемый удельный расход тепловой энергии на отопление здания |
|
Нормируемое значение удельного расхода тепловой энергии на отопление здания |
кДж/(м 2 ·ºС-сут), кДж/(м 3 ·ºС-сут) |
|||
|
А2.4. Расчетный коэффициент энергетической эффективности систем отопления и централизованно го теплоснабжения здания |
|
Коэффициент, учитывающий потери в системах отопления и централизованного теплоснабжения здания и степень автоматизации регулирования их оборудования |
- |
|||
|
А2.5. Расчетный коэффициент энергетической эффективности систем отопления и децентрализован ного теплоснабжения здания |
h dec |
Коэффициент, учитывающий потери в системах отопления и децентрализованного теплоснабжения здания и степень автоматизации регулирования их оборудования |
- |
|||
Б.1. При проектировании теплозащиты зданий различного назначения следует применять, как правило, типовые конструкции и изделия полной заводской готовности, в том числе конструкции комплектной поставки, со стабильными теплоизоляционными свойствами, достигаемыми применением эффективных теплоизоляционных материалов с минимумом теплопроводных включений и стыковых соединений в сочетании с надежной гидроизоляцией, не допускающей проникновения влаги в жидкой фазе и максимально сокращающей проникновение водяных паров в толщу теплоизоляции.
При применении в ограждающих конструкциях горючих утеплителей эти конструкции должны сопровождаться протоколами огневых натурных испытаний и (или) сертификатами пожарной безопасности и разрешениями к применению на территории Новосибирской области. При выборе типа ограждающей конструкции следует учитывать класс функциональной пожарной опасности здания и степень огнестойкости.
Б.2. Для наружных ограждений следует предусматривать, как правило, многослойные конструкции. Для обеспечения лучших эксплуатационных характеристик в многослойных конструкциях зданий с теплой стороны следует располагать слои большей теплопроводности и увеличенным сопротивлением паропроницанию.
Б.З. Тепловую изоляцию наружных стен следует стремиться проектировать непрерывной в плоскости фасада здания. При применении горючих утеплителей необходимо предусматривать горизонтальные рассечки из негорючих материалов по высоте не более высоты этажа и не более 6 м, а также в соответствии требований, действующих на территории РФ нормативных документов по утеплению наружных стен зданий. Такие элементы ограждений, как внутренние перегородки, колонны, балки, вентиляционные каналы и другие, не должны нарушать целостности слоя теплоизоляции. Воздуховоды, вентиляционные каналы и трубы, которые частично проходят в толще наружных ограждений, следует заглублять до теплой поверхности теплоизоляции. Следует обеспечить плотное примыкание теплоизоляции к сквозным теплопроводным включениям. При этом приведенное сопротивление теплопередаче конструкции с теплопроводными включениями должно быть не менее требуемых величин.
Б.4.
При проектировании трехслойных панелей толщина утеплителя, как правило, должна
быть не более 200 мм. В трехслойных бетонных панелях следует предусматривать
конструктивные или технологические мероприятия, исключающие попадание раствора
в стыки между плитами утеплителя, по периметру окон и самих панелей.
Рекомендуемые конструкции трехслойных панелей индустриального изготовления и их
приведенные сопротивления теплопередаче
приведены в табл. Б.
Таблица Б
Рекомендуемые конструкции трехслойных панелей индустриального изготовления
|
Наружные стены |
Приведенное
сопротивление теплопередаче |
|
1 |
2 |
|
Из трехслойных железобетонных панелей с утеплителем из пенополистирола плотностью 40 кг/м 3 и гибкими металлическими связями ( r =0,7) толщиной 350 мм 400 мм |
3,0 3,7 |
|
Из трехслойных железобетонных панелей с утеплителем из минераловатных плит плотностью 100 кг/м 3 и гибкими металлическими связями ( r =0,7) толщиной 400 мм 450 мм |
2,7 3,2 |
|
Из трехслойных железобетонных панелей с утеплителем из пенополистирола плотностью 40 кг/м 3 и железобетонными шпонками ( r =0,6) толщиной 350 мм 400 мм |
2,5 3,1 |
|
Из трехслойных железобетонных панелей с утеплителем из минераловатных плит плотностью 100 кг/м 3 и железобетонными шпонками ( r =0,6) толщиной 450 мм |
2,7 |
|
Из трехслойных панелей на деревянном каркасе с утеплителем из минераловатных прошивных матов плотностью 125 кг/м 3 и обшивками из водостойкой фанеры или твердых древесноволокнистых плит ( r =0,7) толщиной 250 мм 300 мм |
2,5 3,0 |
Б.5. При наличии в конструкции теплозащиты теплопроводных включений необходимо учитывать следующее:
- несквозные включения целесообразно располагать ближе к теплой стороне ограждения;
- в сквозных, главным образом, металлических включениях (профилях, стержнях, болтах, оконных рамах) следует предусматривать вставки (разрывы мостиков холода) из материалов с коэффициентом теплопроводности не выше 0,35 Вт/(м·°С).
Б.6. Коэффициент теплотехнической однородности r с учетом теплотехнических неоднородностей, оконных откосов и примыкающих внутренних ограждений проектируемой конструкции для:
- панелей индустриального изготовления должен быть не менее нормативных величин, установленных в табл.6а СНиП II -3;
- для стен жилых зданий из кирпича с утеплителем должен быть не менее 0,74 при толщине стены 510 мм, 0,69 при толщине стены 640 мм и 0,64 при толщине стены 780 мм.
Значение коэффициента r проектируемой конструкции следует определять на основе расчета температурных полей или экспериментально. Если в проектируемой конструкции ограждения достигнуть нормативных величин r не удается, то такую конструкцию следует снять с дальнейшего проектирования.
Б.7. Для повышения уровня теплозащиты наружных ограждений целесообразно введение в их конструкцию замкнутых невентилируемых воздушных прослоек с размещением на одной из ее поверхностей тепло отражающей теплоизоляции. При проектирования этих воздушных прослоек следует руководствоваться следующими рекомендациями:
- размер прослойки по высоте не должен быть более высоты этажа и не более 6 м, размер по толщине - не менее 60 мм и не более 100 мм; допускается толщина воздушной прослойки 40 мм в случае обеспечения гладких поверхностей внутри прослойки;
- воздушные прослойки между ограждающими конструкциями и горючим утеплителем следует разделять глухими диафрагмами на участки размерами не более Зм 2 ;
- воздушные прослойки рекомендуется располагать ближе к холодной стороне ограждения.
Б.8. При проектировании стен с вентилируемой воздушной прослойкой (стены с вентилируемым фасадом) следует руководствоваться следующими рекомендациями:
- воздушная прослойка должна быть толщиной не менее 60 и не более 150 мм и ее следует размещать между наружным слоем и теплоизоляцией;
- поверхность теплоизоляции, обращенную в сторону прослойки, следует закрывать стеклосеткой с ячейками не более 4x4 мм или стеклотканью;
- наружный слой стены должен иметь вентиляционные отверстия, суммарная площадь которых определяется из расчета 7500 мм 2 на 20 м 2 площади стен, включая площадь окон;
- при использовании в качестве наружного слоя плитной облицовки горизонтальные швы должны быть раскрыты (не должны заполняться уплотняющим материалом);
- нижние (верхние) вентиляционные отверстия, как правило, следует совмещать с цоколями (карнизами), причем для нижних отверстий предпочтительно совмещение функций вентиляции и отвода влаги;
- при применении для теплоизоляции ограждающих конструкций горючего утеплителя вентилируемую воздушную прослойку предусматривать не следует.
Б.9. При проектировании новых и реконструкции существующих зданий следует применять теплоизоляцию из эффективных материалов (с коэффициентом теплопроводности не более 0,1 Вт/(м·°С)), размещая ее с наружной стороны ограждающей конструкции в соответствии с требованиями СП 12-101. Как правило, не следует применять теплоизоляцию с внутренней стороны.
Б.10. Все притворы окон и балконных дверей должны содержать уплотнительные прокладки (не менее двух) из силиконовых материалов или морозостойкой резины. Установку стекол в окнах и балконных дверях рекомендуется производить с применением силиконовых мастик. Глухие части балконных дверей следует утеплять теплоизоляционными материалами.
Б.11. Оконные коробки в деревянных или пластмассовых переплетах независимо от слоев остекления следует размещать в оконном проеме на глубину обрамляющей "четверти" (50-120 мм) от плоскости фасада теплотехнически однородной стены или посередине теплоизоляционного слоя в многослойных конструкциях стен, заполняя пространство между оконной коробкой и внутренней поверхности четверти, как правило, вспенивающимся теплоизоляционным материалом на основе пенополиуретана. При выполнении теплоизоляционного слоя из горючих материалов это пространство должно заполняться негорючим теплоизоляционным материалом толщиной (глубиной) слоя не менее 50 мм. Оконные блоки следует закреплять на более прочном (наружном или внутреннем) слое стены.
При выборе окон в пластмассовых переплетах следует отдавать предпочтение конструкциям, имеющим более уширенные коробки (не менее 100 мм).
Варианты установки и применения оконных и дверных блоков в пластмассовых переплетах должны исключать их выпадение наружу в случае пожара.
Б.12. С целью организации требуемого воздухообмена следует предусматривать специальные приточные отверстия (клапаны) в ограждающих конструкциях при использовании окон в пластмассовых или алюминиевых переплетах в случаях, если результаты сертификационных испытаний этих окон на воздухопроницаемость ниже нормируемых значений в 1,5 и более раз.
Б.13. Плоскости откосов наклонных светопроемов в мансардных этажах следует проектировать под углом 135 град, к поверхности остекления.
Б.14. При проектировании зданий для повышения пределов огнестойкости внутренней и наружной поверхностей стен следует предусматривать устройство облицовки из негорючих материалов или штукатурки с учетом степени огнестойкости здания, этажности и класса пожарной опасности, а для защиты от воздействия влаги и атмосферных осадков -дополнительно окраску водоустойчивыми составами, выбираемыми в зависимости от материала стен и условий эксплуатации.
Ограждающие конструкции, контактирующие с грунтом, следует предохранять от грунтовой влаги путем устройства гидроизоляции согласно п.1.4 СНиП II -3.
При устройстве мансардных окон следует предусматривать надежную в эксплуатации гидроизоляцию примыкания кровли к оконному блоку.
Б.15. При проектировании вентилируемых подполий с целью улучшения теплового комфорта рекомендуется предусматривать напольное отопление в первых этажах жилых зданий.
Б.16. В целях сокращения расхода теплоты на отопление зданий в холодный и переходный периоды года следует предусматривать:
а) объемно-планировочные решения, обеспечивающие наименьшую площадь наружных конструкций для зданий одинакового объема, размещение более теплых и влажных помещений у внутренних стен здания;
б) блокирование зданий;
в) устройство тамбурных помещений за входными дверями в многоэтажных зданиях;
г) как правило, меридиональную или близкую к ней ориентацию продольного фасада здания;
д) рациональный выбор эффективных теплоизоляционных материалов с предпочтением материалов меньшей теплопроводности и пожарной опасности;
е) конструктивные решения равноэффективных в теплотехническом отношении ограждающих конструкций, обеспечивающие их высокую теплотехническую однородность;
ж) эксплуатационно надежную герметизацию стыковых соединений и швов наружных ограждающих конструкций и элементов, а также межквартирных ограждающих конструкций;
и) размещение отопительных приборов под светопроемами и применение за ними теплоотражательной теплоизоляции.
Б. 17. При разработке объемно-планировочных решений следует избегать размещения окон по обеим наружным стенам угловых комнат. В ванных комнатах, не оборудованных системами механической приточно-вытяжной вентиляцией, проектировать окна не следует. С целью обеспечения требований п.3.3.11 рекомендуется использовать следующие приемы: уменьшение глубины помещений и размещение светопроемов с ориентацией их на незатененные участки небосвода.
B . I . Перед заполнением формы энергетического паспорта следует привести краткое описание проекта здания. При этом указывается этажность здания, количество и типы секций, количество квартир и место строительства. Приводится характеристика наружных ограждающих конструкций: стен, окон, покрытия или чердака, подвала, подполья, а при отсутствии пространства под первым этажом - полов по грунту. Указывается источник теплоснабжения здания и характер разводки трубопроводов отопления и горячего водоснабжения.
В. II . В разделе "Общая информация о проекте" приводится следующая информация:
Адрес здания - Город или населенный пункт Новосибирской области, название улицы и номер здания;
Тип здания - в соответствии с п.6.3.2;
Разработчик проекта - название головной проектной организации;
Адрес и телефон разработчика - почтовый адрес, номер телефона и факса дирекции;
Шифр проекта - номер проекта повторного применения или индивидуального проекта, присвоенный проектной организацией.
В. III . В разделе "Расчетные условия" приводятся климатические данные для города или пункта строительства здания и принятые температуры помещений (здесь и далее нумерация приведена согласно п.6.4 настоящих норм):
1. Расчетная температура внутреннего воздуха t int принимается по табл.3.2. Для жилых зданий t int =21 °С.
2. Расчетная температура наружного воздуха t ext . Принимается значение средней температуры наиболее холодной пятидневки обеспеченностью 0,92 по табл.3.1. Для г. Новосибирска t ext = - 39 °С.
3.
Расчетная температура теплого чердака
для многоэтажных
зданий. Принимается равной 15 °С, исходя из расчета теплового баланса системы,
включающей теплый чердак и ниже расположенные жилые помещения.
4.
Расчетная температура "теплого" подвала
. При наличии в подвале труб систем отопления и горячего
водоснабжения эта температура принимается
равной плюс 2 °С, исходя из расчета теплового баланса системы, включающей
подвал и выше расположенные жилые помещения. Отапливаемый подвал включается в
отапливаемый объем здания, а его площадь - в отапливаемую площадь здания.
5. Продолжительность отопительного периода z ht . Принимается по табл.3.3. Для г. Новосибирска z ht =230 сут.
6. Средняя
температура наружного воздуха за отопительный период
. Принимается
по табл.3.1. Для г. Новосибирска
= - 8,7 °С.
7. Градусосутки отопительного периода D d принимаются по табл.3.3. Для г. Новосибирска D d =6831 °С·сут.
В. IV . В разделе "Функциональное назначение, тип и конструктивное решение здания" приводятся данные, характеризующие здания.
8-11. Все характеристики по этим пунктам принимаются по проекту здания.
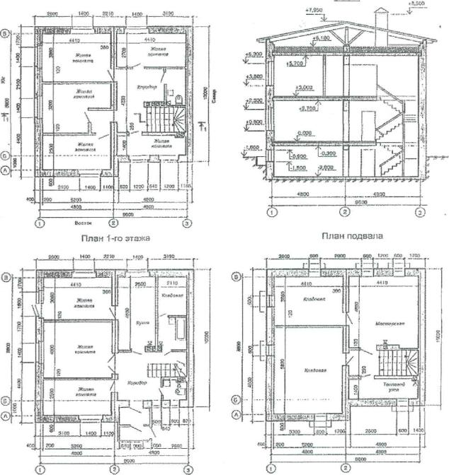
B . V . В разделе "Объемно-планировочные параметры здания" вычисляют в соответствии с требованиями п.3.2.7 площадные и объемные характеристики и объемно-планировочные показатели (см. рис.В):
План 2-го этажа 1-1

Рис.В Схематичные планы этажей и разрез дома
12. Общая
площадь наружных ограждающих конструкции
здания
, устанавливается
по внутренним размерам "в свету" (расстояния между внутренними поверхностями наружных
ограждающих конструкций, противостоящих друг другу).
Площадь стен, включающих окна, балконные и входные двери в здание, витражи, A w + F + ed , м 2 , определяется по формуле
A w+F+ed = p st · H h , ( В .1)
где p st - длина периметра внутренней поверхности наружных стен этажа, м;
H h - высота отапливаемого объема здания, м.
A w+F+ed = 38·8,5 = 323 м 2 ,
в том числе, подземной части - 38·6,7+7·1,2·0,8=261,3 м 2 ,
стен подвала - 38 · 1,8-7 · 1,2 · 0,8 = 61,7 м 2 .
Площадь наружных стен A w , м 2 , определяется по формуле
A w = A w+F+ed – A F – A ed , ( В .2)
где A F - площадь окон, определяется как сумма площадей всех оконных проемов.
Для рассматриваемого здания A F = 30,8 м 2 ,
A ed - площадь входных дверей, м 2 , для рассматриваемого здания A ed = 2м 2 .
Тогда A w = 261,3-30,8-2 = 228,5 м 2 .
Площадь чердачного перекрытия A c , м 2 , и площадь пола подвала по грунту A f , м 2 , равны площади этажа A st
A c = A f = A st = 85,4 м 2 ,
Общая площадь
наружных ограждающих конструкции
определяется по
формуле
м 2 , (В.3)
13-14. Отапливаемая площадь здания A h площадь жилых помещений A I определяются по проекту
A h = 256,1 м 2 ; A I = 99,7 м 2
15. Отапливаемый объем здания V h , м 3 , вычисляется как произведение площади этажа, A st , м 2 , (площади, ограниченной внутренними поверхностями наружных стен) на высоту Н h , м, этого объема, представляющую собой расстояние от пола первого этажа (в нашем случае подвала) до потолка последнего этажа.
V h = A st · H h = 85,4·8,5 = 725,6 м 3 , ( В .4)
16-17. Показатели объемно-планировочного решения здания определяются по формулам:
- коэффициент остекленности фасадов здания p
p = A F / A w+F+ed = 30,8/261,3 = 0,12< p req = 0,18 ( В .5)
-
показатель компактности здания ![]()
( В .6)
В . VI. Раздел "Энергетические показатели" включает теплотехнические и теплоэнергетические показатели.
Теплотехнические показатели
18. Согласно
СНиП II -3 приведенное сопротивление теплопередаче наружных ограждений
, м 2 ·°С/Вт, должно приниматься не ниже требуемых
значений
, которые
устанавливаются по табл.16 СНиП II -3 в зависимости от
градусосуток отопительного периода. Для D d =6831 °С·сут требуемое сопротивление теплопередаче
равно для:
-
стен
= 3,79 м 2 ·°С/Вт;
-
окон и балконных дверей
= 0,642 м 2 ·°С/Вт;
-
покрытия
= 5,62 м 2 ·°С/Вт;
- перекрытия
первого этажа
= 4,97 м 2 ·°С/Вт.
Согласно
настоящим нормам в случае удовлетворения главному требованию
по удельному
энергопотреблению приведенное сопротивление теплопередаче
для отдельных
элементов наружных ограждений может приниматься ниже требуемых значений. В
рассматриваемом случае для стен здания приняли
= 2,5 м 2 ·°С/Вт,
что ниже требуемых значений, для стен подвала расчетом получили
= 4,75 м 2 ·°С/Вт, для
чердачного перекрытия -
= 5 м 2 ·°С/Вт, для пола
подвала по грунту -
= 4,5 м 2 ·°С/Вт.
Для заполнения оконных и балконных проемов приняли окна с трехслойным
(двухкамерный стеклопакет с тепло отражающим покрытием) остеклением в
пластмассовых переплетах
= 0,63 м 2 ·°С/Вт.
19.
Приведенный трансмиссионный коэффициент теплопередачи здания
, Вт/(м 2
·°С), определяется согласно формуле (3.9)
= 1,1 3·(2б1,3/2,5 + 30,8/0,63 + 2/1,5 + 61,7/4,75 + 0,9·85,4/5
+ 85,4/4,5)/493,8 = 0,432Вт/(м 2 · °С)
20.
Воздухопроницаемость наружных ограждений G m , кг/(м 2 ·ч), принимается по табл.12*
СНиП II -3. Согласно этой таблице воздухопроницаемость стен, покрытия,
перекрытия первого этажа
кг/(м 2 ·ч),
окон в пластмассовых переплетах и балконных дверей
кг/(м 2 ·ч).
21. Требуемая кратность воздухообмена жилого здания n a , 1/ч, согласно СНиП 2.08.01 устанавливается из расчета 3 м 3 /ч удаляемого воздуха на один кв.м жилых помещений по формуле
n a = 3· A r ·/( b v V h ) ( В .7)
где A r - жилая площадь, м 2 ;
b v - коэффициент, учитывающий долю внутренних ограждающих конструкций в отапливаемом объеме здания, принимаемый равным 0,85;
V h - отапливаемый объем здания, м .
n a = 3·99,7·/(0,85·725,6 )= 0,485 1/ч
22. Приведенный инфильтрационный (условный) коэффициент теплопередачи здания K inf , Вт/(м 2 ·°С), определяется по формуле (3.10)
K inf = 0,28 · 1 · 0,485-0,85 · 725,6 · 1,336 · 1,0/493,8) = 0,227 Вт/(м 2 ·°С)
23. Общий коэффициент теплопередачи здания К т , Вт/(м 2 ·°С), определяется по формуле (3.8)
К т = 0,432 + 0,227 = 0,659 Вт/(м 2 ·°С)
Теплоэнергетические показатели
24. Общие теплопотери через ограждающую оболочку здания за отопительный период Q h , МДж, определяются по формуле (3,7)
Q h = 0,0864 · 0,659 · 6831 · 493,8 = 192039 МДж.
25. Удельные бытовые тепловыделения q int , Вт/м 2 , следует устанавливать исходя из расчетного удельного электро- и газопотребления здания, но не менее 10 Вт/м 2 . В нашем случае принято 10 Вт/м 2 .
26. Бытовые теплопоступления в здание за отопительный период Q int , МДж, определяются по формуле (3.12)
Q int = 0,08б4 · 10 · 230 · 99,7 = 19812 МДж.
27. Теплопоступления в здание от солнечной радиации за отопительный период Q s , МДж, определяются по формуле (3.13)
Q s = 0,78 · 0,51 · (1318 · 10,7 + 2074 · 10,1 + 1318 · 10) = 19186 МДж.
28.
Потребность в тепловой энергии на отопление здания за отопительный период
, МДж, определяется по формуле (3.6а)
= [192039 - (19812 + 19186) · 0,8] · 1 , 13 = 178533
МДж.
29.
Удельный расход тепловой энергии на отопление здания
, кДж/(м 2 ·
С · сут), определяется по формуле (3.5)
= 178533 ·10 3 /(256,1 · 6831) = 102,05 кДж/(м
2 · С · сут).
30.
Расчетный коэффициент энергетической эффективности системы отопления и
централизованного теплоснабжения здания от источника теплоты
вычисляется согласно
разделу 4. В рассматриваемом случае здание подключено к существующей системе
централизованного теплоснабжения, поэтому
принимают
= 0,5.
31. Расчетный коэффициент энергетической эффективности системы отопления и децентрализованного теплоснабжения здания от источника теплоты h dec вычисляется согласно разделу 4. В рассматриваемом случае принимают h dec = 0,5 с тем, чтобы получить при расчете по формуле (3.2) h =1.
32. Требуемый удельный расход тепловой
энергии на отопление здания,
, кДж/(м 2 · С · сут) , принимается в соответствии с табл.3.5а равным 105 кДж/(м 2 · С · сут) .
Следовательно, проект здания соответствует требованиям настоящих норм.
Методика экономической оптимизации сопротивления теплопередаче ограждающих конструкций зданий разработана с учетом особенностей рыночной экономики согласно методическим рекомендациям по оценке эффективности инвестиционных проектов, утвержденных Министерством экономики РФ, Министерством финансов РФ, Госстроем РФ (№ ВК 477 от 21.06.1999г.)
Под
экономической оптимизацией сопротивления теплопередаче наружных ограждающих
конструкций в данном случае понимается определение их экономически
целесообразных значений (
) из условия сведения к минимуму приведенных затрат ( Р ), складывающихся из затрат
единовременных ( С des ), в качестве которых
принимается сметная стоимость 1 м 2 этих конструкций в текущих
ценах, и эксплуатационных, в качестве которых принимаются суммарные будущие
затраты в прогнозных ценах на компенсацию теплопотерь через 1 м 2 этих
конструкций ( C h t ) за расчетный срок их
эксплуатации ( Т ), приведенные к текущему уровню цен.
Основные положения методики экономической оптимизации сопротивления теплопередаче ограждающих конструкций здания включают:
1.
Предварительное определение приближенного значения экономически целесообразного
сопротивления теплопередаче
(для любых однослойных и многослойных
наружных ограждающих конструкций, за исключением свето-прозрачных):
, (Г.1)
где 8,64·10 -5
- коэффициент согласования размерностей (24 · 3600/10 9 );
t int – расчетная температура
внутреннего воздуха помещений,
°С, принимаемая по нормам проектирования соответствующих зданий;
и z ht - средняя температура, °С
, и продолжительность, сут.,
отопительного периода, принимаемые по СНиП 23-01; C h
- стоимость тепловой энергии, руб./ГДж; К - коэффициент
пересчета годовых затрат на компенсацию теплопотерь через 1 м 2 рассматриваемой
ограждающей конструкции в
текущих ценах в суммарные будущие затраты за расчетный срок ее эксплуатации (Т)
в прогнозных ценах и обратного приведения их к уровню текущих цен, определяемый
в соответствии с п.Г.2; С u - сметная стоимость в текущих ценах, руб./м 2 ,
единичной термическим
сопротивлением R u
=1 м 2 ·°С/Вт (однослойной
ограждающей конструкции или теплоизоляционного слоя многослойной конструкции),
определяемая с учетом затрат на устройство располагающихся в нем крепежных, связевых
и прочих подобных конструктивных элементов и их влияния на его теплозащитные
качества в соответствии с п.Г.3.
2. Определение коэффициента ( K ) пересчета годовых затрат на компенсацию теплопотерь через 1 м 2 рассматриваемой ограждающей конструкции в текущих ценах в суммарные будущие затраты за расчетный срок ее эксплуатации Т в прогнозных ценах и обратного приведения их к уровню текущих цен - в зависимости от прогнозных значений ежегодного темпа изменения стоимости тепловой энергии ( е , %) и ежегодной нормы дисконта ( Е , %), а также расчетного значения Т по формуле
, (Г.2)
где N - разрыв во времени, лет, между моментом начала затрат на компенсацию теплопотерь через ограждающую конструкцию и моментом затрат на ее возведение.
Расчетные значения е и E следует принимать по данным официальных прогнозов на долговременную перспективу.
В случае невозможности получения официального прогнозного значения е можно использовать официальные прогнозные значения ежегодного темпа изменения оптовых цен промышленности или ежегодного темпа общей инфляции.
Аналогичным образом в случае невозможности получения официального прогнозного значения Е можно использовать значения возможного уровня доходности общедоступных финансовых механизмов (банки, финансовые компании и т.п.).
Расчетные значения Т следует принимать по приложению 3 ВСН 58-88(р) и другим нормативным документам.
Расчетные значения К для отдельных значений Т (10, 15, 20, 25, 30, 40 и 50 лет) представлены в приложении Д (для е от 0 до 20% и Е от 0 до 25%).
3. Расчетные значения сметной стоимости в текущих ценах единичной теплоизоляции ( С u , руб./м 2 ) следует определять по предлагаемой ниже формуле, позволяющей учесть затраты на устройство располагающихся в них крепежных, связевых и прочих подобных конструктивных элементов и обусловленное ими снижение эффективности теплоизоляции
C u = (C des(max) – C des(min) )/(R O(max) – R O(min) ) , ( Г .3)
где R O ( max ) и R O ( min ) - расчетные значения приведенного сопротивления теплопередаче, м 2 · °С/Вт, вариантов рассматриваемой ограждающей конструкции, подобранных из предпосылки обеспечения соответственно максимальных (исходя из условия энергосбережения) и минимальных (исходя из санитарно-гигиенических и комфортных условий) требований к теплозащите зданий, устанавливаемых действующей редакцией СНиП II -3;
C des ( max ) и C des ( min ) - сметная стоимость, руб/м 2 , вариантов рассматриваемой ограждающей конструкции соответственно с максимальным ( R O ( max ) ) и минимальным ( R O ( min ) ) уровнем теплозащиты, определенная в текущих ценах по действующим сметным нормам.
Значения С u целесообразно определять по специально выбираемым фрагментам рассматриваемых ограждающих конструкций, включающих основные конструктивные элементы, оказывающие влияние на стоимость и теплозащитные качества их теплоизоляционных слоев (связи, детали крепления, деформационные и противопожарные швы, стыки панелей и крупных блоков, швы кладки из легкобетонных камней и т.п.). Размеры расчетных фрагментов ограждающих конструкций в данном случае следует выбирать таким образом, чтобы весомость учитываемых наряду с теплоизоляцией их прочих конструктивных элементов, оказывающих влияние на ее технико-экономические показатели, в пределах выбранных фрагментов была такой же, как для этих конструкций в целом.
Например, в качестве расчетных фрагментов наружных стен зданий наиболее целесообразно принимать их участки, по высоте, соответствующие их полной высоте от фундаментов до карниза, а по длине, ограниченные принятым шагом проемов.
4.
Окончательные значения экономически целесообразных сопротивлений теплопередаче
ограждающих конструкций зданий (
) следует
определять путем сравнения их вариантов, отличающихся уровнем теплозащитных
качеств, по приведенным затратам ( Р ),
складывающимся из единовременных затрат на их устройство ( C des ) и затрат эксплуатационных
( С е = С ht )
P = C des + C e , ( Г .4)
За
окончательные значения
следует принимать
приведенные значения сопротивления теплопередаче вариантов ограждающих
конструкций, отличающихся от прочих минимумом приведенных затрат Р .
В качестве единовременных затрат ( C des ) следует принимать пересчитанные из расчета на 1 м 2 значения сметной стоимости различных вариантов расчетного фрагмента рассматриваемой ограждающей конструкции, определяемые в текущих ценах в соответствии с действующими сметными нормами, с добавлением в случае необходимости дополнительных затрат, обусловленных увеличением толщины теплоизоляционного слоя относительно минимального из рассматриваемых значений (например, затрат на устройство фундаментов или затрат, обусловленных необходимостью изменения оснастки или необходимостью применения более дорогостоящих несущих элементов).
В качестве эксплуатационных затрат в данном случае следует принимать суммарные будущие затраты в прогнозных ценах на компенсацию теплопотерь через 1 м 2 сравниваемых вариантов ограждающих конструкций за расчетный срок их эксплуатации (Т), приведенные к текущему уровню цен ( С ht ), определяемые по формуле
, (Г.5)
где 8,64·10 -5
, t int ,
, z ht , C h , K - имеют те же значения, что и
в формуле (Г.1), определяемые в соответствии с пп.Г.2-Г.4;
- приведенное
сопротивление теплопередаче рассматриваемого варианта ограждающей конструкции.
Технико-экономические показатели сравниваемых вариантов ограждающих конструкций следует определять для их расчетных фрагментов, включающих все конструктивные элементы, оказывающие влияние на их стоимость и теплозащитные качества (связи, детали крепления, деформационные и противопожарные швы, стыки панелей и крупных блоков, швы кладки из легкобетонных камней и т.п.). Выбор расчетных фрагментов ограждающих конструкций следует производить в соответствии с рекомендациями, изложенными в п.Г.3.
В качестве первого
из сравниваемых вариантов ограждающей конструкции следует принимать ее
конструктивное решение с приведенным сопротивлением теплопередаче (
), наиболее близко соответствующим предварительно
определенному по формуле (Г.1) приближенному значению
. В качестве двух последующих следует принимать варианты с
минимально возможным отличием толщины их теплоизоляционных слоев от
соответствующего значения 1 варианта. Далее рассматриваются варианты
ограждающей конструкции с толщиной теплоизоляционного слоя, изменяющейся с
минимально возможным шагом, в направлении, обуславливающем снижение приведенных
затрат Р до значения, при котором
произойдет их повышение. Предыдущее этому значение толщины теплоизоляции можно
считать оптимальным, а соответствующее ему значение
искомым
окончательным значением экономически целесообразного сопротивления
теплопередаче
рассматриваемой ограждающей
конструкции.
Таблица Д.1
Расчетные значения коэффициента пересчета ( K ) годовых затрат на компенсацию теплопотерь через ограждающие конструкции зданий в текущих ценах на момент оптимизации теплозащиты в суммарные будущие затраты в прогнозных ценах за расчетный срок их эксплуатации ( Т = 10 лет) с приведением к текущему уровню цен в зависимости от прогнозных значений ежегодного темпа изменения стоимости тепловой энергии ( е ) и ежегодной нормы дисконта ( Е ) при фиксированном значении разрыва во времени ( N = 1 год) между моментом начала затрат на компенсацию теплопотерь через ограждающие конструкции и моментом затрат на их возведение
|
Е, % |
0 |
1 |
2 |
3 |
4 |
5 |
6 |
7 |
8 |
9 |
10 |
11 |
12 |
13 |
14 |
15 |
|
0 |
10,00 |
10,57 |
11,17 |
11,81 |
12,49 |
13,21 |
13,97 |
14,78 |
15,65 |
16,56 |
17,53 |
18,56 |
19,65 |
20,81 |
22,04 |
23,35 |
|
1 |
9,47 |
10,00 |
10,56 |
11,16 |
11,79 |
12,46 |
13,17 |
13,92 |
14,73 |
15,58 |
16,48 |
17,43 |
18,45 |
19,52 |
20,66 |
21,87 |
|
2 |
8,98 |
9,48 |
10,00 |
10,56 |
11,14 |
11,77 |
12,43 |
13,13 |
13,88 |
14,67 |
15,51 |
16,39 |
17,34 |
18,33 |
19,39 |
20,51 |
|
3 |
8,53 |
8,99 |
9,48 |
10,00 |
10,55 |
11,13 |
11,75 |
12,41 |
13,10 |
13,83 |
14,61 |
15,44 |
16,32 |
17,24 |
18,22 |
19,27 |
|
4 |
8,11 |
8,54 |
9,00 |
9,49 |
10,00 |
10,54 |
11,12 |
11,73 |
12,38 |
13,06 |
13,79 |
14,56 |
15,37 |
16,24 |
17,15 |
18,12 |
|
5 |
7,72 |
8,13 |
8,56 |
9,01 |
9,49 |
10,00 |
10,54 |
11,11 |
11,71 |
12,35 |
13,03 |
13,75 |
14,51 |
15,31 |
16,16 |
17,06 |
|
6 |
7,36 |
7,74 |
8,14 |
8,57 |
9,02 |
9,50 |
10,00 |
10,53 |
11,10 |
11,70 |
12,33 |
13,00 |
13,71 |
14,46 |
15,25 |
16,09 |
|
7 |
7,02 |
7,38 |
7,76 |
8,16 |
8,58 |
9,03 |
9,50 |
10,00 |
10,53 |
11,09 |
11,68 |
12,30 |
12,97 |
13,67 |
14,41 |
15,19 |
|
8 |
6,71 |
7,05 |
7,40 |
7,78 |
8,17 |
8,59 |
9,04 |
9,50 |
10,00 |
10,52 |
11,08 |
11,66 |
12,28 |
12,93 |
13,63 |
14,36 |
|
9 |
6,42 |
6,73 |
7,07 |
7,42 |
7,79 |
8,19 |
8,60 |
9,04 |
9,51 |
10,00 |
10,52 |
11,07 |
11,65 |
12,26 |
12,90 |
13,59 |
|
10 |
6,14 |
6,44 |
6,76 |
7,09 |
7,44 |
7,81 |
8,20 |
8,62 |
9,05 |
9,51 |
10,00 |
10,51 |
11,06 |
11,63 |
12,23 |
12,87 |
|
11 |
5,89 |
6,17 |
6,47 |
6,78 |
7,11 |
7,46 |
7,83 |
8,22 |
8,63 |
9,06 |
9,52 |
10,00 |
10,51 |
11,05 |
11,61 |
12,21 |
|
12 |
5,65 |
5,92 |
6,20 |
6,49 |
6,80 |
7,13 |
7,48 |
7,85 |
8,23 |
8,64 |
9,07 |
9,52 |
10,00 |
10,50 |
11,04 |
11,60 |
|
13 |
5,43 |
5,68 |
5,94 |
6,22 |
6,52 |
6,83 |
7,15 |
7,50 |
7,86 |
8,25 |
8,65 |
9,08 |
9,53 |
10,00 |
10,50 |
11,03 |
|
14 |
5,22 |
5,45 |
5,71 |
5,97 |
6,25 |
6,54 |
6,85 |
7,17 |
7,52 |
7,88 |
8,26 |
8,66 |
9,08 |
9,53 |
10,00 |
10,50 |
|
15 |
5,02 |
5,24 |
5,48 |
5,73 |
6,00 |
6,27 |
6,56 |
6,87 |
7,20 |
7,54 |
7,90 |
8,27 |
8,67 |
9,09 |
9,53 |
10,00 |
|
16 |
4,83 |
5,05 |
5,27 |
5,51 |
5,76 |
6,02 |
6,30 |
6,59 |
6,89 |
7,22 |
7,55 |
7,91 |
8,29 |
8,68 |
9,10 |
9,54 |
|
17 |
4,66 |
4,86 |
5,08 |
5,30 |
5,54 |
5,78 |
6,05 |
6,32 |
6,61 |
6,91 |
7,23 |
7,57 |
7,93 |
8,30 |
8,69 |
9,11 |
|
18 |
4,49 |
4,69 |
4,89 |
5,10 |
5,33 |
5,56 |
5,81 |
6,07 |
6,35 |
6,63 |
6,94 |
7,25 |
7,59 |
7,94 |
8,31 |
8,70 |
|
19 |
4,34 |
4,52 |
4,72 |
4,92 |
5,13 |
5,35 |
5,59 |
5,84 |
6,10 |
6,37 |
6,66 |
6,96 |
7,27 |
7,61 |
7,96 |
8,33 |
|
20 |
4,19 |
4,37 |
4,55 |
4,74 |
4,95 |
5,16 |
5,38 |
5,62 |
5,86 |
6,12 |
6,39 |
6,68 |
6,98 |
7,29 |
7,62 |
7,97 |
Таблица Д.2
Расчетные значения коэффициента пересчета ( K ) годовых затрат на компенсацию теплопотерь через ограждающие конструкции зданий в текущих ценах на момент оптимизации теплозащиты в суммарные будущие затраты в прогнозных ценах за расчетный срок их эксплуатации ( Т = 15 лет) с приведением к текущему уровню цен в зависимости от прогнозных значений ежегодного темпа изменения стоимости тепловой энергии ( е ) и ежегодной нормы дисконта ( Е ) при фиксированном значении разрыва во времени ( N = 1год) между моментом начала затрат на компенсацию теплопотерь через ограждающие конструкции и моментом затрат на их возведение
|
Е, % |
0 |
1 |
2 |
3 |
4 |
5 |
6 |
7 |
8 |
9 |
10 |
11 |
12 |
13 |
14 |
15 |
|
0 |
15,00 |
16,26 |
17,64 |
19,16 |
20,82 |
22,66 |
24,67 |
26,89 |
29,32 |
32,00 |
34,95 |
38,19 |
41,75 |
45,67 |
49,98 |
54,72 |
|
1 |
13,87 |
15,00 |
16,24 |
17,61 |
19,11 |
20,76 |
22,56 |
24,55 |
26,73 |
29,12 |
31,75 |
34,65 |
37,82 |
41,31 |
45,15 |
49,36 |
|
2 |
12,85 |
13,88 |
15,00 |
16,23 |
17,58 |
19,06 |
20,69 |
22,47 |
24,43 |
26,57 |
28,93 |
31,51 |
34,35 |
37,46 |
40,88 |
44,64 |
|
3 |
11,94 |
12,87 |
13,89 |
15,00 |
16,22 |
17,56 |
19,02 |
20,62 |
22,38 |
24,31 |
26,42 |
28,74 |
31,28 |
34,06 |
37,12 |
40,47 |
|
4 |
11,12 |
11,96 |
12,89 |
13,90 |
15,00 |
16,21 |
17,53 |
18,97 |
20,56 |
22,29 |
24,19 |
26,27 |
28,55 |
31,05 |
33,78 |
36,78 |
|
5 |
10,38 |
11,15 |
11,99 |
12,91 |
13,91 |
15,00 |
16,20 |
17,50 |
18,93 |
20,49 |
22,21 |
24,08 |
26,13 |
28,37 |
30,82 |
33,51 |
|
6 |
9,71 |
10,41 |
11,18 |
12,01 |
12,92 |
13,92 |
15,00 |
16,18 |
17,48 |
18,89 |
20,43 |
22,12 |
23,97 |
25,98 |
28,19 |
30,61 |
|
7 |
9,11 |
9,75 |
10,45 |
11,21 |
12,04 |
12,94 |
13,93 |
15,00 |
16,17 |
17,45 |
18,85 |
20,37 |
22,04 |
23,86 |
25,85 |
28,02 |
|
8 |
8,56 |
9,15 |
9,79 |
10,48 |
11,24 |
12,06 |
12,96 |
13,94 |
15,00 |
16,16 |
17,43 |
18,81 |
20,31 |
21,96 |
23,75 |
25,71 |
|
9 |
8,06 |
8,60 |
9,19 |
9,82 |
10,52 |
11,27 |
12,09 |
12,98 |
13,94 |
15,00 |
16,15 |
17,40 |
18,77 |
20,26 |
21,88 |
23,65 |
|
10 |
7,61 |
8,10 |
8,64 |
9,23 |
9,86 |
10,55 |
11,30 |
12,11 |
12,99 |
13,95 |
15,00 |
16,14 |
17,38 |
18,73 |
20,20 |
21,80 |
|
11 |
7,19 |
7,65 |
8,15 |
8,68 |
9,26 |
9,90 |
10,58 |
11,32 |
12,13 |
13,01 |
13,96 |
15,00 |
16,13 |
17,36 |
18,69 |
20,14 |
|
12 |
6,81 |
7,23 |
7,69 |
8,19 |
8,72 |
9,30 |
9,93 |
10,61 |
11,35 |
12,15 |
13,03 |
13,97 |
15,00 |
16,12 |
17,33 |
18,65 |
|
13 |
6,46 |
6,85 |
7,28 |
7,73 |
8,23 |
8,76 |
9,34 |
9,97 |
10,64 |
11,38 |
12,18 |
13,04 |
13,98 |
15,00 |
16,11 |
17,31 |
|
14 |
6,14 |
6,51 |
6,90 |
7,32 |
7,78 |
8,27 |
8,80 |
9,38 |
10,00 |
10,68 |
11,41 |
12,20 |
13,06 |
13,99 |
15,00 |
16,10 |
|
15 |
5,85 |
6,18 |
6,55 |
6,94 |
7,36 |
7,82 |
8,31 |
8,84 |
9,41 |
10,03 |
10,71 |
11,43 |
12,22 |
13,07 |
14,00 |
15,00 |
|
16 |
5,58 |
5,89 |
6,23 |
6,59 |
6,98 |
7,40 |
7,86 |
8, 35 |
8,88 |
9,45 |
10,07 |
10,74 |
11,46 |
12,24 |
13,09 |
14,01 |
|
17 |
5,32 |
5,62 |
5,93 |
6,27 |
6,63 |
7,02 |
7,45 |
7,90 |
8,39 |
8,92 |
9,49 |
10,10 |
10,77 |
11,48 |
12,26 |
13,10 |
|
18 |
5,09 |
5,37 |
5,66 |
5,97 |
6,31 |
6,67 |
7,07 |
7,49 |
7,94 |
8,43 |
8,95 |
9,52 |
10,13 |
10,80 |
11,51 |
12,28 |
|
19 |
4,88 |
5,13 |
5,41 |
5,70 |
6,01 |
6,35 |
6,72 |
7,11 |
7,53 |
7,98 |
8,47 |
8,99 |
9,56 |
10,17 |
10,82 |
11,54 |
|
20 |
4,68 |
4,92 |
5,17 |
5,45 |
5,74 |
6,06 |
6,39 |
6,76 |
7,15 |
7,57 |
8,02 |
8,50 |
9,03 |
9,59 |
10,20 |
10,85 |
Таблица Д.3
Расчетные значения коэффициента пересчета ( K ) годовых затрат на компенсацию теплопотерь через ограждающие конструкции зданий в текущих ценах на момент оптимизации теплозащиты в суммарные будущие затраты в прогнозных ценах за расчетный срок их эксплуатации ( T = 20 лет) с приведением к текущему уровню цен в зависимости от прогнозных значений ежегодного темпа изменения стоимости тепловой энергии ( е ) и ежегодной нормы дисконта ( Е ) при фиксированном значении разрыва во времени ( N = 1 год) между моментом начала затрат на компенсацию теплопотерь через ограждающие конструкции и моментом затрат на их возведение
|
Е, % |
0 |
1 |
2 |
3 |
4 |
5 |
6 |
7 |
8 |
9 |
10 |
11 |
12 |
13 |
14 |
15 |
|
0 |
20,00 |
22,24 |
24,78 |
27,68 |
30,97 |
34,72 |
38,99 |
43,87 |
49,42 |
55,76 |
63,00 |
71,27 |
80,70 |
91,47 |
103,77 |
117,81 |
|
1 |
18,05 |
20,00 |
22,22 |
24,73 |
27,59 |
30,83 |
34,52 |
38,72 |
43,51 |
48,96 |
55,16 |
62,24 |
70,31 |
79,51 |
90,00 |
101,96 |
|
2 |
16,35 |
18,06 |
20,00 |
22,19 |
24,68 |
27,50 |
30,70 |
34,33 |
38,46 |
43,16 |
48,50 |
54,58 |
61,51 |
69,39 |
78,37 |
88,59 |
|
3 |
14,88 |
16,38 |
18,08 |
20,00 |
22,17 |
24,63 |
27,41 |
30,56 |
34,14 |
38,20 |
42,82 |
48,06 |
54,02 |
60,79 |
68,50 |
77,26 |
|
4 |
13,59 |
14,92 |
16,41 |
18,10 |
20,00 |
22,15 |
24,58 |
27,32 |
30,43 |
33,96 |
37,96 |
42,49 |
47,63 |
53,47 |
60,10 |
67,64 |
|
5 |
12,46 |
13,64 |
14,96 |
16,44 |
18,12 |
20,00 |
22,13 |
24,53 |
27,24 |
30,31 |
33,78 |
37,71 |
42,17 |
47,22 |
52,94 |
59,44 |
|
6 |
11,47 |
12,51 |
13,69 |
15,00 |
16,47 |
18,13 |
20,00 |
22,10 |
24,48 |
27,16 |
30,19 |
33,61 |
37,48 |
41,86 |
46,82 |
52,43 |
|
7 |
10,59 |
11,53 |
12,57 |
13,73 |
15,04 |
16,50 |
18,15 |
20,00 |
22,08 |
24,43 |
27,08 |
30,07 |
33,44 |
37,25 |
41,55 |
46,42 |
|
8 |
9,82 |
10,65 |
11,58 |
12,62 |
13,78 |
15,08 |
16,53 |
18,16 |
20,00 |
22,06 |
24,39 |
27,00 |
29,95 |
33,27 |
37,02 |
41,26 |
|
9 |
9,13 |
9,88 |
10,71 |
11,63 |
12,67 |
13,82 |
15,11 |
16,56 |
18,18 |
20,00 |
22,04 |
24,34 |
26,92 |
29,83 |
33,11 |
36,81 |
|
10 |
8,51 |
9,19 |
9,93 |
10,76 |
11,69 |
12,72 |
13,87 |
15,15 |
16,59 |
18,20 |
20,00 |
22,02 |
24,30 |
26,85 |
29,72 |
32,95 |
|
11 |
7,96 |
8,57 |
9,24 |
9,99 |
10,82 |
11,74 |
12,77 |
13,91 |
15,19 |
16,62 |
18,21 |
20,00 |
22,00 |
24,25 |
26,78 |
29,61 |
|
12 |
7,47 |
8,02 |
8,63 |
9,30 |
10,05 |
10,87 |
11,79 |
12,82 |
13,95 |
15,22 |
16,64 |
18,23 |
20,00 |
21,99 |
24,21 |
26,71 |
|
13 |
7,02 |
7,53 |
8,08 |
8,69 |
9,36 |
10,10 |
10,93 |
11,84 |
12,86 |
14,00 |
15,26 |
16,67 |
18,24 |
20,00 |
21,97 |
24,17 |
|
14 |
6,62 |
7,08 |
7,58 |
8,13 |
8,74 |
9,41 |
10,16 |
10,98 |
11,90 |
12,91 |
14,04 |
15,29 |
16,69 |
18,26 |
20,00 |
21,95 |
|
15 |
6,26 |
6,68 |
7,13 |
7,64 |
8,19 |
8,80 |
9,47 |
10,21 |
11,03 |
11,95 |
12,96 |
14,08 |
15,33 |
16,72 |
18,27 |
20,00 |
|
16 |
5,93 |
6,31 |
6,73 |
7,19 |
7,69 |
8,24 |
8,85 |
9,52 |
10,27 |
11,09 |
12,00 |
13,00 |
14,12 |
15,36 |
16,75 |
18,28 |
|
17 |
5,63 |
5,98 |
6,36 |
6,78 |
7,24 |
7,75 |
8,30 |
8,91 |
9,58 |
10,32 |
11,14 |
12,04 |
13,05 |
14,16 |
15,40 |
16,77 |
|
18 |
5,35 |
5,68 |
6,03 |
6,41 |
6,83 |
7,29 |
7,80 |
8,35 |
8,96 |
9,63 |
10,37 |
11,19 |
12,09 |
13,09 |
14,20 |
15,43 |
|
19 |
5,10 |
5,40 |
5,73 |
6,08 |
6,46 |
6,89 |
7,35 |
7,85 |
8,41 |
9,02 |
9,69 |
10,43 |
11,24 |
12,14 |
13,14 |
14,24 |
|
20 |
4,87 |
5,15 |
5,45 |
5,77 |
6,13 |
6,52 |
6,94 |
7,40 |
7,91 |
8,46 |
9,07 |
9,74 |
10,48 |
11,29 |
12,19 |
13,18 |
Таблица Д.4
Расчетные значения коэффициента пересчета ( K ) годовых затрат на компенсацию теплопотерь через ограждающие конструкции зданий в текущих ценах на момент оптимизации теплозащиты в суммарные будущие затраты в прогнозных ценах за расчетный срок их эксплуатации ( Т = 25 лет) с приведением к текущему уровню цен в зависимости от прогнозных значений ежегодного темпа изменения стоимости тепловой энергии ( е ) и ежегодной нормы дисконта ( Е ) при фиксированном значении разрыва во времени ( N = 1 год) между моментом начала затрат на компенсацию теплопотерь через ограждающие конструкции и моментом затрат на их возведение
|
Е, % |
0 |
1 |
2 |
3 |
4 |
5 |
6 |
7 |
8 |
9 |
10 |
11 |
12 |
13 |
14 |
15 |
|
0 |
25,00 |
28,53 |
32,67 |
37,55 |
43,31 |
50,11 |
58,16 |
67,68 |
78,95 |
92,32 |
108,18 |
127,00 |
149,33 |
175,85 |
207,33 |
244,71 |
|
1 |
22,02 |
25,00 |
28,49 |
32,58 |
37,40 |
43,07 |
49,75 |
57,64 |
66,96 |
77,99 |
91,04 |
106,49 |
124,79 |
146,48 |
172,18 |
202,64 |
|
2 |
19,52 |
22,05 |
25,00 |
28,45 |
32,50 |
37,24 |
42,82 |
49,40 |
57,14 |
66,27 |
77,06 |
89,90 |
104,86 |
122,66 |
143,73 |
168,65 |
|
3 |
17,41 |
19,57 |
22,08 |
25,00 |
28,41 |
32,41 |
37,09 |
42,59 |
49,05 |
56,65 |
65,60 |
76,15 |
88,60 |
103,28 |
120,62 |
141,09 |
|
4 |
15,62 |
17,47 |
19,61 |
22,10 |
25,00 |
28,38 |
32,33 |
36,95 |
42,36 |
48,72 |
56,18 |
64,95 |
75,28 |
87,44 |
101,76 |
118,64 |
|
5 |
14,09 |
15,69 |
17,53 |
19,66 |
22,13 |
25,00 |
28,34 |
32,25 |
36,81 |
42,14 |
48,39 |
55,72 |
64,32 |
74,43 |
86,31 |
100,29 |
|
6 |
12,78 |
14,16 |
15,75 |
17,58 |
19,70 |
22,15 |
25,00 |
28,31 |
32,17 |
36,67 |
41,92 |
48,07 |
55,27 |
63,71 |
73,61 |
85,23 |
|
7 |
11,65 |
12,86 |
14,23 |
15,82 |
17,64 |
19,74 |
22,18 |
25,00 |
28,28 |
32,09 |
36,53 |
41,71 |
47,76 |
54,84 |
63,12 |
72,81 |
|
8 |
10,67 |
11,73 |
12,93 |
14,30 |
15,88 |
17,69 |
19,79 |
22,20 |
25,00 |
28,24 |
32,01 |
36,40 |
41,50 |
47,46 |
54,41 |
62,54 |
|
9 |
9,82 |
10,75 |
11,80 |
13,00 |
14,37 |
15,94 |
17,75 |
19,83 |
22,23 |
25,00 |
28,21 |
31,94 |
36,27 |
41,30 |
47,17 |
54,00 |
|
10 |
9,08 |
9,89 |
10,82 |
11,87 |
13,07 |
14,44 |
16,00 |
17,80 |
19,87 |
22,25 |
25,00 |
28,18 |
31,37 |
36,14 |
41,11 |
46,88 |
|
11 |
8,42 |
9,15 |
9,96 |
10,89 |
11,94 |
13,14 |
14,50 |
16,06 |
17,85 |
19,91 |
22,27 |
25,00 |
28,15 |
31,79 |
36,02 |
40,91 |
|
12 |
7,84 |
8,49 |
9,22 |
10,03 |
10,96 |
12,01 |
13,21 |
14,57 |
16,12 |
17,90 |
19,95 |
22,30 |
25,00 |
28,12 |
31,72 |
35,90 |
|
13 |
7,33 |
7,91 |
8,56 |
9,28 |
10,10 |
11,03 |
12,08 |
13,27 |
14,63 |
16,18 |
17,95 |
19,99 |
22,32 |
25,00 |
28,09 |
31,66 |
|
14 |
6,87 |
7,39 |
7,97 |
8,62 |
9,35 |
10,17 |
11,10 |
12,15 |
13,34 |
14,70 |
16,24 |
18,00 |
20,02 |
22,34 |
25,00 |
28,06 |
|
15 |
6,46 |
6,93 |
7,46 |
8,04 |
8,69 |
9,42 |
10,24 |
11,17 |
12,22 |
13,41 |
14,76 |
16,30 |
18,05 |
20,06 |
22,36 |
25,00 |
|
16 |
6,10 |
6,52 |
6,99 |
7,52 |
8,10 |
8,75 |
9,49 |
10,31 |
11,24 |
12,29 |
13,47 |
14,82 |
16,35 |
18,10 |
20,10 |
22,38 |
|
17 |
5,77 |
6,15 |
6,58 |
7,05 |
7,58 |
8,17 |
8,82 |
9,55 |
10,38 |
11,31 |
12,35 |
13,54 |
14,88 |
16,41 |
18,15 |
20,13 |
|
18 |
5,47 |
5,82 |
6,21 |
6,64 |
7,11 |
7,64 |
8,23 |
8,88 |
9,62 |
10,44 |
11,37 |
12,42 |
13,60 |
14,94 |
16,47 |
18,20 |
|
19 |
5,20 |
5,52 |
5,87 |
6,26 |
6,69 |
7,17 |
7,70 |
8,29 |
8,95 |
9,69 |
10,51 |
11,44 |
12,49 |
13,67 |
15,00 |
16,52 |
|
20 |
4,95 |
5,24 |
5,57 |
5,93 |
6,32 |
6,75 |
7,23 |
7,76 |
8,35 |
9,01 |
9,75 |
10,58 |
11,51 |
12,55 |
13,73 |
15,06 |
Таблица Д.5
Расчетные значения коэффициента пересчета ( K ) годовых затрат на компенсацию теплопотерь через ограждающие конструкции зданий в текущих ценах на момент оптимизации теплозащиты в суммарные будущие затраты в прогнозных ценах за расчетный срок их эксплуатации ( T = 30 лет) с приведением к текущему уровню цен в зависимости от прогнозных значений ежегодного темпа изменения стоимости тепловой энергии ( е ) и ежегодной нормы дисконта ( Е ) при фиксированном значении разрыва во времени ( N = 1год) между моментом начала затрат на компенсацию теплопотерь через ограждающие конструкции и моментом затрат на их возведение
|
Е, % |
0 |
1 |
2 |
3 |
4 |
5 |
6 |
7 |
8 |
9 |
10 |
11 |
12 |
13 |
14 |
15 |
|
0 |
30,00 |
35,13 |
41,38 |
49,00 |
58,33 |
69,76 |
83,80 |
101,07 |
122,35 |
148,58 |
180,94 |
220,91 |
270,29 |
331,32 |
406,74 |
499,96 |
|
1 |
25,81 |
30,00 |
35,08 |
41,24 |
48,75 |
57,92 |
69,14 |
82,88 |
99,76 |
120,49 |
146,01 |
177,43 |
216,14 |
263,86 |
322,72 |
395,30 |
|
2 |
22,40 |
25,85 |
30,00 |
35,02 |
41,11 |
48,51 |
57,53 |
68,53 |
82,00 |
98,48 |
118,71 |
143,54 |
174,05 |
211,56 |
257,72 |
314,51 |
|
3 |
19,60 |
22,46 |
25,88 |
30,00 |
34,97 |
40,98 |
48,27 |
57,14 |
67,95 |
81,13 |
97,25 |
116,98 |
141,16 |
178,80 |
207,18 |
251,83 |
|
4 |
17,29 |
19,68 |
22,52 |
25,92 |
30,00 |
34,92 |
40,85 |
48,04 |
56,77 |
67,38 |
80,30 |
96,06 |
115,32 |
138,87 |
167,68 |
202,97 |
|
5 |
15,37 |
17,38 |
19,75 |
22,58 |
25,95 |
30,00 |
34,86 |
40,73 |
47,82 |
56,40 |
66,82 |
79,49 |
94,91 |
113,71 |
136,66 |
164,68 |
|
6 |
13,76 |
15,46 |
17,46 |
19,82 |
22,64 |
25,99 |
30,00 |
34,81 |
40,61 |
47,60 |
56,05 |
66,28 |
78,70 |
93,80 |
112,16 |
134,53 |
|
7 |
12,41 |
13,85 |
15,55 |
17,54 |
19,90 |
22,69 |
26,02 |
30,00 |
34,77 |
40,49 |
47,38 |
55,70 |
65,76 |
77,94 |
92,72 |
110,66 |
|
8 |
11,26 |
12,50 |
13,94 |
15,63 |
17,62 |
19,97 |
22,75 |
26,06 |
30,00 |
34,72 |
40,37 |
47,17 |
55,37 |
65,25 |
77,20 |
91,67 |
|
9 |
10,27 |
11,34 |
12,58 |
14,03 |
15,72 |
17,70 |
20,04 |
22,80 |
26,09 |
30,00 |
34,67 |
40,26 |
46,97 |
55,04 |
64,76 |
76,48 |
|
10 |
9,43 |
10,36 |
11,43 |
12,67 |
14,11 |
15,80 |
17,78 |
20,11 |
22,86 |
26,12 |
30,00 |
34,62 |
40,15 |
46,77 |
54,72 |
64,27 |
|
11 |
8,69 |
9,51 |
10,44 |
11,51 |
12,75 |
14,20 |
15,88 |
17,85 |
20,18 |
22,91 |
26,15 |
30,00 |
34,58 |
40,04 |
46,57 |
54,40 |
|
12 |
8,06 |
8,77 |
9,58 |
10,52 |
11,59 |
12,84 |
14,28 |
15,96 |
17,93 |
20,24 |
22,97 |
26,19 |
30,00 |
34,53 |
39,93 |
46,38 |
|
13 |
7,50 |
8,13 |
8,84 |
9,66 |
10,60 |
11,67 |
12,92 |
14,36 |
16,04 |
18,01 |
20,31 |
23,02 |
26,22 |
30,00 |
34,49 |
39,83 |
|
14 |
7,00 |
7,56 |
8,20 |
8,92 |
9,74 |
10,68 |
11,76 |
13,00 |
14,44 |
16,12 |
18,08 |
20,38 |
23,07 |
26,25 |
30,00 |
34,45 |
|
15 |
6,57 |
7,07 |
7,63 |
8,27 |
8,99 |
9,81 |
10,76 |
11,84 |
13,08 |
14,53 |
16,20 |
18,16 |
20,44 |
23,12 |
26,28 |
30,00 |
|
16 |
6,18 |
6,63 |
7,13 |
7,70 |
8,34 |
9,06 |
9,89 |
10,83 |
11,92 |
13,16 |
14,61 |
16,28 |
18,23 |
20,50 |
23,17 |
26,31 |
|
17 |
5,83 |
6,24 |
6,69 |
7,20 |
7,77 |
8,41 |
9,14 |
9,97 |
10,91 |
12,00 |
13,25 |
14,69 |
16,36 |
18,30 |
20,57 |
23,22 |
|
18 |
5,52 |
5,89 |
6,29 |
6,75 |
7,26 |
7,83 |
8,48 |
9,21 |
10,04 |
10,99 |
12,08 |
13,33 |
14,77 |
16,43 |
18,37 |
20,63 |
|
19 |
5,23 |
5,57 |
5,94 |
6,35 |
6,81 |
7,32 |
7,90 |
8,55 |
9,28 |
10,12 |
11,07 |
12,16 |
13,40 |
14,84 |
16,51 |
18,44 |
|
20 |
4,98 |
5,29 |
5,62 |
6,00 |
6,41 |
6,87 |
7,39 |
7,97 |
8,62 |
9,36 |
10,19 |
11,14 |
12,23 |
13,48 |
14,92 |
16,58 |
Таблица Д.6
Расчетные значения коэффициента пересчета ( K ) годовых затрат на компенсацию теплопотерь через ограждающие конструкции зданий в текущих ценах на момент оптимизации теплозащиты в суммарные будущие затраты в прогнозных ценах за расчетный срок их эксплуатации ( T = 40 лет) с приведением к текущему уровню цен в зависимости от прогнозных значений ежегодного темпа изменения стоимости тепловой энергии ( е ) и ежегодной нормы дисконта ( Е ) при фиксированном значении разрыва во времени ( N = 1 год) между моментом начала затрат на компенсацию теплопотерь через ограждающие конструкции и моментом затрат на их возведение
|
Е, % |
0 |
1 |
2 |
3 |
4 |
5 |
6 |
7 |
8 |
9 |
10 |
11 |
12 |
13 |
14 |
15 |
|
0 |
40,00 |
49,38 |
61,61 |
77,66 |
98,83 |
126,84 |
164,05 |
213,61 |
279,78 |
368,29 |
486,85 |
645,83 |
859,14 |
1145,5 |
1529,9 |
2046,0 |
|
1 |
32,83 |
40,00 |
49,27 |
61,33 |
77,12 |
97,87 |
125,26 |
161,53 |
209,70 |
273,81 |
359,32 |
473,50 |
626,16 |
830,39 |
1103,7 |
1469,6 |
|
2 |
27,36 |
32,90 |
40,00 |
49,17 |
61,07 |
76,59 |
96,95 |
123,73 |
159,10 |
205,93 |
268,09 |
350,74 |
460,79 |
607,48 |
803,16 |
1064,3 |
|
3 |
23,11 |
27,45 |
32,96 |
40,00 |
49,07 |
60,80 |
76,08 |
96,05 |
122,25 |
156,76 |
202,31 |
262,60 |
342,54 |
448,67 |
589,73 |
777,36 |
|
4 |
19,79 |
23,23 |
27,54 |
33,02 |
40,00 |
48,97 |
60,55 |
75,58 |
95,17 |
120,82 |
154,50 |
198,83 |
257,34 |
334,69 |
437,10 |
572,84 |
|
5 |
17,16 |
19,91 |
23,34 |
27,64 |
33,08 |
40,00 |
48,87 |
60,30 |
75,09 |
94,33 |
119,44 |
152,31 |
195,48 |
452,29 |
327,18 |
426,06 |
|
6 |
15,05 |
17,28 |
20,03 |
23,44 |
27,73 |
33,13 |
40,00 |
48,78 |
60,05 |
74,62 |
93,51 |
118,09 |
150,20 |
192,25 |
247,43 |
319,98 |
|
7 |
13,33 |
15,16 |
17,39 |
20,14 |
23,55 |
27,82 |
33,19 |
40,00 |
48,68 |
59,82 |
74,16 |
92,71 |
116,79 |
148,17 |
189,14 |
242,77 |
|
8 |
11,92 |
13,44 |
15,27 |
17,51 |
20,25 |
23,66 |
27,91 |
33,25 |
40,00 |
48,59 |
59,58 |
73,71 |
91,93 |
115,53 |
146,20 |
186,14 |
|
9 |
10,76 |
12,03 |
13,55 |
15,38 |
17,62 |
20,37 |
23,76 |
27,99 |
33,30 |
40,00 |
48,50 |
59,36 |
73,27 |
91,18 |
114,31 |
144,29 |
|
10 |
9,78 |
10,85 |
12,13 |
13,65 |
15,49 |
17,73 |
20,48 |
23,87 |
28,08 |
33,36 |
40,00 |
48,42 |
59,13 |
72,84 |
90,44 |
113,12 |
|
11 |
8,95 |
9,87 |
10,95 |
12,23 |
13,76 |
15,60 |
17,85 |
20,59 |
23,97 |
28,16 |
33,41 |
40,00 |
48,33 |
58,92 |
72,42 |
89,73 |
|
12 |
8,24 |
9,03 |
9,96 |
11,04 |
12,33 |
13,87 |
15,71 |
17,96 |
20,70 |
24,07 |
28,25 |
33,46 |
40,00 |
48,25 |
58,70 |
72,02 |
|
13 |
7,63 |
8,32 |
9,12 |
10,05 |
11,14 |
12,43 |
13,97 |
15,82 |
18,07 |
20,80 |
24,17 |
28,33 |
33,51 |
40,00 |
48,17 |
58,50 |
|
14 |
7,11 |
7,71 |
8,40 |
9,20 |
10,14 |
11,23 |
12,53 |
14,07 |
15,93 |
18,17 |
20,91 |
24,27 |
28,41 |
33,56 |
40,00 |
48,09 |
|
15 |
6,64 |
7,17 |
7,78 |
8,48 |
9,29 |
10,22 |
11,33 |
12,63 |
14,18 |
16,04 |
18,28 |
21,02 |
24,36 |
28,49 |
33,61 |
40,00 |
|
16 |
6,23 |
6,71 |
7,24 |
7,85 |
8,56 |
9,37 |
10,31 |
11,42 |
12,73 |
14,28 |
16,14 |
18,39 |
21,12 |
24,46 |
28,57 |
33,66 |
|
17 |
5,87 |
6,29 |
6,77 |
7,31 |
7,93 |
8,63 |
9,45 |
10,40 |
11,51 |
12,82 |
14,38 |
16,25 |
18,50 |
21,22 |
24,56 |
28,65 |
|
18 |
5,55 |
5,93 |
6,36 |
6,84 |
7,38 |
8,00 |
8,71 |
9,53 |
10,49 |
11,60 |
12,92 |
14,48 |
16,35 |
18,60 |
21,33 |
24,65 |
|
19 |
5,26 |
5,60 |
5,99 |
6,42 |
6,90 |
7,45 |
8,07 |
8,79 |
9,62 |
10,57 |
11,70 |
13,02 |
14,58 |
16,46 |
18,71 |
21,43 |
|
20 |
5,00 |
5,31 |
5,66 |
6,05 |
6,48 |
6,97 |
7,52 |
8,15 |
8,87 |
9,70 |
10,66 |
11,79 |
13,11 |
14,68 |
16,56 |
18,81 |
Таблица Д.7
Расчетные значения коэффициента пересчета ( K ) годовых затрат на компенсацию теплопотерь через ограждающие конструкции зданий в текущих ценах на момент оптимизации теплозащиты в суммарные будущие затраты в прогнозных ценах за расчетный срок их эксплуатации ( T = 50 лет) с приведением к текущему уровню цен в зависимости от прогнозных значений ежегодного темпа изменения стоимости тепловой энергии ( е ) и ежегодной нормы дисконта ( Е ) при фиксированном значении разрыва во времени ( N = 1 год) между моментом начала затрат на компенсацию теплопотерь через ограждающие конструкции и моментом затрат на их возведение
|
Е, % |
0 |
1 |
2 |
3 |
4 |
5 |
6 |
7 |
8 |
9 |
10 |
11 |
12 |
13 |
14 |
15 |
|
0 |
50,00 |
65,11 |
86,27 |
116,18 |
158,77 |
219,82 |
307,76 |
434,99 |
619,67 |
888,44 |
1280,3 |
1852,3 |
2688,0 |
3909,2 |
5693,8 |
8300,4 |
|
1 |
39,20 |
50,00 |
64,90 |
85,78 |
115,13 |
156,78 |
216,24 |
301,58 |
424,56 |
602,39 |
860,18 |
1234,6 |
1779,0 |
2571,4 |
3724,9 |
5404,2 |
|
2 |
31,42 |
39,29 |
50,00 |
64,76 |
85,30 |
114,12 |
154,86 |
212,80 |
295,65 |
414,60 |
585,94 |
833,38 |
1191,4 |
1710,0 |
2462,0 |
3552,7 |
|
3 |
25,73 |
31,55 |
39,38 |
50,00 |
64,59 |
84,83 |
113,13 |
152,99 |
209,49 |
289,97 |
405,08 |
570,27 |
807,94 |
1150,5 |
1645,0 |
2359,3 |
|
4 |
21,48 |
25,88 |
31,68 |
39,46 |
50,00 |
64,43 |
84,37 |
112,17 |
151,19 |
206,29 |
284,50 |
395,96 |
555,33 |
783,77 |
1111,9 |
1583,7 |
|
5 |
18,26 |
21,63 |
26,02 |
31,81 |
39,55 |
50,00 |
64,27 |
83,93 |
111,24 |
149,45 |
203,21 |
279,25 |
387,23 |
541,07 |
760,80 |
1075,2 |
|
6 |
15,76 |
18,40 |
21,77 |
26,16 |
31,94 |
39,63 |
50,00 |
64,11 |
83,50 |
110,34 |
147,76 |
200,24 |
274,20 |
378,87 |
527,46 |
738,94 |
|
7 |
13,80 |
15,89 |
18,54 |
21,92 |
26,30 |
32,06 |
39,72 |
50,00 |
63,96 |
83,07 |
109,46 |
146,12 |
197,37 |
269,34 |
370,85 |
514,45 |
|
8 |
12,23 |
13,92 |
16,02 |
18,67 |
22,06 |
26,44 |
32,18 |
39,80 |
50,00 |
63,81 |
82,66 |
108,60 |
144,53 |
194,59 |
264,67 |
363,15 |
|
9 |
10,96 |
12,35 |
14,04 |
16,15 |
18,81 |
22,20 |
26,58 |
32,31 |
39,88 |
50,00 |
63,66 |
82,26 |
107,77 |
142,99 |
191,91 |
260,16 |
|
10 |
9,91 |
11,07 |
12,46 |
14,16 |
16,28 |
18,95 |
22,34 |
26,72 |
32,43 |
39,96 |
50,00 |
63,52 |
81,87 |
106,96 |
141,50 |
189,32 |
|
11 |
9,04 |
10,01 |
11,17 |
12,57 |
14,29 |
16,41 |
19,08 |
22,48 |
26,85 |
32,54 |
40,04 |
50,00 |
63,38 |
81,48 |
106,17 |
140,05 |
|
12 |
8,30 |
9,13 |
10,11 |
11,27 |
12,68 |
14,40 |
16,54 |
19,22 |
22,62 |
26,99 |
32,66 |
40,11 |
50,00 |
63,24 |
81,11 |
105,40 |
|
13 |
7,68 |
8,39 |
9,22 |
10,20 |
11,37 |
12,79 |
14,52 |
16,67 |
19,35 |
22,75 |
27,12 |
32,77 |
40,19 |
50,00 |
63,10 |
80,74 |
|
14 |
7,13 |
7,75 |
8,47 |
9,31 |
10,29 |
11,48 |
12,90 |
14,64 |
16,79 |
19,49 |
22,89 |
27,25 |
32,89 |
40,26 |
50,00 |
62,97 |
|
15 |
6,66 |
7,20 |
7,83 |
8,55 |
9,39 |
10,39 |
11,58 |
13,01 |
14,76 |
16,92 |
19,62 |
23,02 |
27,38 |
30,00 |
40,34 |
50,00 |
|
16 |
6,25 |
6,73 |
7,27 |
7,90 |
8,63 |
9,48 |
10,48 |
11,68 |
13,12 |
14,88 |
17,05 |
19,75 |
23,16 |
27,50 |
33,11 |
40,41 |
|
17 |
5,88 |
6,31 |
6,79 |
7,34 |
7,98 |
8,71 |
9,57 |
10,58 |
11,78 |
13,23 |
15,00 |
17,17 |
19,88 |
23,29 |
27,63 |
33,22 |
|
18 |
5,55 |
5,94 |
6,37 |
6,86 |
7,42 |
8,05 |
8,79 |
9,65 |
10,67 |
11,88 |
13,34 |
15,11 |
17,29 |
20,01 |
23,42 |
27,76 |
|
19 |
5,26 |
5,61 |
6,00 |
6,43 |
6,93 |
7,49 |
8,13 |
8,87 |
9,74 |
10,76 |
11,98 |
13,45 |
15,23 |
17,42 |
20,13 |
23,55 |
|
20 |
5,00 |
5,31 |
5,66 |
6,06 |
6,49 |
6,99 |
7,56 |
8,20 |
8,95 |
9,83 |
10,86 |
12,08 |
13,56 |
15,34 |
17,54 |
20,26 |
Пример 1. Определение экономически целесообразного сопротивления теплопередаче многослойной кирпичной стены с теплоизоляционным слоем из пенополистирола и гибкими стеклопластиковыми связями.
Толщина внутреннего несущего слоя кирпичной кладки 0,38 м, наружного облицовочного 0,12 м. Толщина внутреннего фактурного слоя из штукатурного раствора 0,015 м. Предусматривается расшивка швов кладки на наружной поверхности стены. Гибкие связи из стеклопластиковой арматуры (ТУ 2296-001-20994511-98) диаметром 5,5 мм Бийского завода стеклопластиков, располагаемой с шагом 0,6 м по вертикали и 0,5 м по горизонтали.
Определение экономически целесообразного сопротивления теплопередаче такой стены производим в соответствии с прил.Г следующим образом:
1. Рассчитываем
по формуле (Г.1) приближенное значение экономически целесообразного
сопротивления теплопередаче (
) с предварительным определением всех необходимых для
этого расчетных параметров:
1.1.Принимаем по СНиП 2.08.01 расчетное значение температуры внутреннего воздуха помещений рассматриваемого здания - t int = 21 °С.
1.2.Принимаем по СНиП 23-01 расчетные
значения параметров отопительного периода в г. Новосибирске: средняя
температура -
= - 8,7 °С и продолжительность - z ht = 230 сут.
1.3. Принимаем в качестве расчетного значения текущей стоимости тепловой энергии тариф, утвержденный 24.02.2000 г. решением правления РЭК Новосибирской области - 143,28 руб./Гкал (с НДС), что в принятой системе единиц (СИ) составит: C h = 143,28/ 4,1868 = 34,22 руб./ГДж.
1.4. Определяем расчетное значение коэффициента ( K ) пересчета годовых затрат на компенсацию теплопотерь через 1 м 2 рассматриваемой ограждающей конструкции в текущих ценах в суммарные будущие затраты за расчетный срок ее эксплуатации Т в прогнозных ценах и обратного приведения их к уровню текущих цен в соответствии с п.2 прил. Г в следующей последовательности:
1.4.1. По приложению 3 ВСН 58-88(р) определяем расчетный срок эксплуатации рассматриваемой облегченной кирпичной стены - Т = 30 лет.
1.4.2.В качестве прогнозного значения ежегодного темпа стоимости тепловой энергии ( е ) принимаем наиболее часто указываемое в долгосрочных официальных экономических программах прогнозное значение ежегодного темпа общей инфляции -10%.
1.4.3.В качестве прогнозного значения ежегодной нормы дисконта ( Е ) в связи с отсутствием соответствующего официального норматива принимаем рекомендуемое п.11.2 методических рекомендаций по оценке эффективности инвестиционных проектов (утверждены Министерством экономики РФ, Министерством финансов РФ и Госстроем РФ № ВК 477 от 21.06.99) значение минимально допустимой доходности вкладываемых средств на уровне среднего значения освобожденной от инфляционной составляющей ставки LIBOR - 5%, что с поправкой на принятое в п.1.4.2 прогнозное значение ежегодного темпа общей инфляции (10%) дает расчетное значение Е =15%.
1.4.4.С учетом принятого в п.1.4.1 расчетного значения Т = 30 лет по таблице Г.5 приложения Г определяем расчетное значение K = 16,2 ( е =10 %, Е =15%).
1.5. Определяем расчетное значение сметной стоимости в текущих ценах единичной теплоизоляции ( С u ) из пенополистирольных плит с единичным термическим сопротивлением R u =1 м 2 ·°С/Вт рассматриваемой многослойной кирпичной стены с учетом затрат на устройство гибких стеклопластиковых связей и обусловленного их влияния на его теплозащитные качества в соответствии с п.3 приложения В:
1.5.1.Согласно
п.2.1 СНиП II -3 определяем минимальное из требуемых значений
сопротивления теплопередаче рассматриваемой конструкции из
санитарно-гигиенических и комфортных условии -
. При ранее
принятом в п. 1.1 расчетном значении температуры внутреннего воздуха помещений
рассматриваемого здания - t int = 21 °С и принятом по СНиП 23-01 расчетном
значении зимней температуры наружного воздуха в г. Новосибирске t ext = - 39 °С -
= 1,724 м 2 ·°С/Вт.
1.5.2.
По таблице 16 СНиП П-3 определим максимальное
из требуемых значений сопротивления теплопередаче (
) рассматриваемой конструкции из условия энергосбережения ( II этап)
в зависимости от градусосуток отопительного периода (ГСОП). При ранее принятых
в п.1.2 расчетных параметрах отопительного периода в г. Новосибирске получаем
расчетные значения ГСОП = 6831, a
=3,791
м 2 ·°С/Вт.
1.5.3.
Подбираем варианты конструктивного решения рассматриваемой многослойной
кирпичной стены, соответствующие установленным в п. 1.5.1 и 1.5.2 минимальному
(
= 1,724 м 2 ·°С/Вт) и максимальному (
=3,791 м 2 ·°С/Вт.) уровням требований к ее теплозащитным качествам путем
подбора соответствующих значений толщины теплоизоляционного слоя из пенополистирольных плит с определением
их расчетных значений приведенного сопротивления теплопередаче (
и
) на основании расчета температурных полей расчетных фрагментов этих вариантов
рассчитываемой конструкции, выбираемых исходя из условия обеспечения
возможности учета всех конструктивных элементов, влияющих на их теплозащитные
качества и сметную стоимость. Характеристика подобранных таким образом
вариантов конструкции и результаты
оценки их теплозащитных качеств на ПЭВМ представлены в таблице Е.1. Описание
выбранных фрагментов и их расчета на ПЭВМ в данном примере упущено, так как
выходит за рамки рассматриваемых задач.
1.5.4.
Определяем сметную стоимость в текущих ценах вариантов рассматриваемой
конструкции, обеспечивающих минимальные и максимальные требования к ее
теплозащитным качествам действующей редакции СНиП П-3. Значения
и
, полученные расчетом на ПЭВМ по программе расчета единичных
расценок в текущих ценах базисно-индексным методом с использованием электронных таблиц EXCEL ,
представлены в таблице Е.1. Необходимые для этих расчетов исходные данные
получены следующим образом:
- расчетные значения текущей стоимости основных материалов приняты (без НДС) по информационно-аналитическому бюллетеню стоимости ресурсов в строительстве (март 2000 г.) отдела ценообразования управления строительства и архитектуры администрации Новосибирской области: кирпича керамического - 1083 руб./м 3 ; цементного раствора – 429 руб./м 3 ; пенополистирола ПСБ-С-25-691,67 руб./м 3 ;
- стоимость используемой в качестве гибких связей стекло пластиковой арматуры принята (без НДС) по прайс-листу (на 01.06.2000 г.) Бийского завода стеклопластиков в зависимости от длины стержней: 0,5 м - 4,15 руб./шт; 0,55 м - 4,51 руб./шт; 0,6 м - 4,95 руб./шт;
- расход материалов принят по соответствующим сборникам единых районных единичных расценок на строительные конструкции и работы (ЕРЕР) и элементных сметных норм 1984 г.;
- расценки по заработной плате рабочих и стоимости эксплуатации, строительных машин, а также стоимость прочих материалов приняты в базисных ценах по сборникам ЕРЕР сметных норм 1984 г. с соответствующими индексами, установленными для их пересчета в текущий уровень цен в 20 выпуске сборника "Индексы цен в строительстве" с апреля 2000 г. отделом ценообразования управления строительства и архитектуры администрации Новосибирской области: к заработной платой - 11,0; к стоимости эксплуатации строительных машин - 22,26; к стоимости материальных ресурсов - 17,19.
1.5.5.
Подставляя в формулу (Г.3) приложения Г полученные в п.1.5.3. расчетные
значения
= 1,852 м 2 ·°С/Вт
и
= 3,756 м 2 ·°С/Вт, а
также в п. 1.5.4.
= 565,87 руб./м 2 и
= 644,45 руб./м 2 (таблица Е.1) определяем
расчетное значение сметной стоимости в текущих ценах единичной теплоизоляции ( С
u ) из пенополистирольных плит с единичным термическим
сопротивлением R u
= 1 м 2 ·°С/Вт рассматриваемой многослойной
кирпичной стены с учетом затрат на устройство гибких стеклопластиковых связей и
обусловленного ими влияния на его теплозащитные качества.
С u = (644,45-565,87)/(3,75б -1,852) = 41,27 руб./м 2
1.6. Подставляя
в формулу (Г1) приложения Г полученные в пп.1.1-1.5 расчетные значения: t int = 21 °С;
= - 8,7 °С; z ht =230 сут; C h = 34,22 руб./ГДж; K =16,2 и C u = 41,27 руб./м 2 определяем
приближенное значение экономически целесообразного сопротивления теплопередаче
(
) рассматриваемой
многослойной кирпичной стены с теплоизоляцией из пенополистирольных плит и
гибкими стеклопластиковыми связями в условиях г. Новосибирска:
м 2 ·°С/Вт
Таблица Е.1
Технико-экономические показатели вариантов многослойной кирпичной стены с теплоизоляцией из пенополистирола и гибкими стеклопластиковыми связями, соответствующих минимальным и максимальным требованиям действующих норм теплозащиты (СНиП II -3) для коттеджа в условиях г. Новосибирска
|
Вариант по уровню требований к теплозащите по СНиП II -3 |
Толщина теплоизоляционного слоя δ ins (м) |
Общая толщина конструкции δ des (м) |
Приведенное
сопротивление теплопередаче |
Сметная стоимость в текущих ценах II квартала 2000 г. C des (руб./м 2 ) |
Сметная стоимость единичной теплоизоляции стены C u (руб./м 2 ) |
|
min max |
0,04 0,12 |
0,555 0,635 |
1,852 3,756 |
565,87 644,45 |
41,27
|
2. Определяем окончательное
значение экономически целесообразного сопротивления теплопередаче
рассматриваемой ограждающей конструкции (
) в соответствии с п.4 приложения 3 путем сравнения
вариантов ее конструктивного решения с различными теплозащитными качествами по
приведенным затратам ( P ):
2.1. Подбираем
аналогично п. 1.5.3 первый из сравниваемых в данном случае вариант
конструктивного решения рассматриваемой многослойной кирпичной стены из условия
соответствия его приведенного значения сопротивления теплопередаче (
), предварительно определенному в п.1 данного примера
приближенному значению экономически целесообразного сопротивления теплопередаче
= 2,816 м 2 ·°С/Вт.
Для этого продолжаем начатую в п.1.5.3 оценку теплозащитных качеств вариантов
выбранного фрагмента этой конструкции с другими значениями толщины
теплоизоляционного слоя из пенополистирольных плит (в сторону ее увеличения от
уже рассмотренного минимального значения при
с шагом 0,01 м)
путем расчета на ПЭВМ их температурных полей. В результате этих расчетов
устанавливаем, что в наибольшей степени предварительно определенному значению
= 2,816 м 2 ·°С/Вт
соответствует вариант рассматриваемой стены с толщиной теплоизоляционного слоя
0,08 м с приведенным значением
сопротивления теплопередаче
= 2,804 м 2 ·°С/Вт,
который и принимаем в качестве первого из сравниваемых вариантов. В качестве
двух последующих вариантов принимаем конструктивные решения с толщиной
теплоизоляционного слоя меньшей и большей принятой для первого варианта (на
минимально возможную величину) - соответственно 0,07 и 0,09 м. Характеристика
подобранных для сравнения вариантов рассматриваемой многослойной кирпичной
стены дана в таблице Е.2.
Таблица Е.2
Технико-экономические показатели сравниваемых вариантов многослойной кирпичной стены с теплоизоляцией из пенополистирола и гибкими стеклопластиковыми связями коттеджа в условиях г. Новосибирска
|
Толщина теплоизоляционного слоя δ ins , м |
Общая толщина конструкции δ des , м |
Приведенное
сопротивление теплопередаче |
Единовременные затраты в текущих ценах II квартала 2000 г. C des , руб./м 2 |
Эксплуатационные затраты в текущих ценах II квартала 2000 г. |
Приведенные затраты в текущих ценах II квартала 2000 г . P = C des + C e , (руб./м 2 ) |
Примечание |
|
0,07 0,08 0,09 |
0,585 0,595 0,605 |
2,566 2,804 - 3,042 |
596,57 606,15 615,73 |
127,51 116,69 107,56 |
724,08 722,84 723,29 |
P min |
* В качестве эксплуатационных затрат ( C e ) приняты расчетные значения суммарных будущих затрат в прогнозных ценах на компенсацию теплопотерь ( C ht t ) через 1 м 2 рассматриваемой конструкции за расчетный срок ее эксплуатации Т = 30 лет, приведенные к текущему уровню цен.
2.2. Определяем единовременные затраты на устройство сравниваемых вариантов рассматриваемой многослойной кирпичной стены ( C des ), выражающиеся их сметной стоимостью, получаемой как и в п.1.5.4 расчетом на ПЭВМ по программе расчета единичных расценок в текущих ценах базисно-индексным методом с использованием электронных таблиц EXCEL и тех же самых исходных данных. Полученные таким образом значения C des сравниваемых вариантов стены, отличающихся толщиной их теплоизоляционных слоев (приведенные к 1 м 2 их фасадной поверхности), представлены в таблице Е.2.
2.3. Определяем по формуле (Г.4) в качестве эксплуатационных затрат по сравниваемым вариантам рассматриваемой стены расчетные значения суммарных будущих затрат в прогнозных ценах на компенсацию теплопотерь ( C ht ) через 1 м 2 этой конструкции за расчетный срок их эксплуатации ( Т ), приведенные к текущему уровню цен. Полученные значения C ht по сравниваемым вариантам рассматриваемой стены также представлены в таблице Е.2.
2.4.Определяем по всем сравниваемым вариантам рассматриваемой стены расчетные значения приведенных затрат ( Р ) путем суммирования полученных в п.2.2 расчетных значений единовременных затрат на их устройство ( C des ), выражающихся их сметной стоимостью в текущих ценах и полученных в п.2.3 затрат эксплуатационных, в свою очередь выражающихся суммарными будущими затратами в прогнозных ценах на компенсацию теплопотерь через них ( C ht ) за расчетный срок их эксплуатации ( Т ), приведенными к текущему уровню цен (см. таблицу Е.2).
2.5. Принимаем в качестве окончательного значения экономически
целесообразного сопротивления теплопередаче (
) приведенное значение общего сопротивления теплопередаче
варианта рассматриваемой наружной стены с минимальным значением приведенных
затрат ( Р ). В соответствии
с представленными в таблице Е.2 данными экономически целесообразное
сопротивление теплопередаче многослойной кирпичной стены с теплоизоляцией из
пенополистирольных плит и гибкими стеклопластиковыми
связями в условиях г. Новосибирска составляет
= 2,804 м 2 ·°С/Вт , а оптимальная толщина ее теплоизоляционного слоя - 0,08
м.
Пример 2. Определение экономически целесообразного уровня теплозащиты чердачного перекрытия из сборных многопустотных железобетонных плит с теплоизоляционным слоем из минераловатных прошивных матов.
Определение экономически целесообразного уровня теплозащиты рассматриваемого варианта чердачного перекрытия малоэтажного здания производим в соответствии с приложением Г, аналогично рассмотренному ранее примеру 1:
1. Рассчитываем по формуле (Г.1) приближенное значение экономически целесообразного сопротивления теплопередаче
(
) с предварительным определением всех необходимых для этого
расчетных параметров:
1.1.Расчетные
значения t int ,
, z h , C h , остаются такими же, как и в примере 1.
1.2.Уточняем расчетное значение коэффициента ( К ) пересчета годовых затрат в текущих ценах на компенсацию теплопотерь через 1 м 2 рассматриваемого чердачного перекрытия в суммарные будущие затраты за расчетный срок ее эксплуатации Т в прогнозных ценах и обратного приведения их к уровню текущих цен.
Согласно приложению 3 ВСН 58-88 ( p ) расчетное значение для утепляющих слоев чердачных перекрытий из минеральной ваты составляет Т =15 лет, При е =10%, Е=15% по таблице 2 приложения 4 определяем расчетное значение K =10,71.
1.3.
Определяем расчетное значение сметной стоимости в текущих ценах единичной
теплоизоляции С u из минераловатных
прошивных матов с единичным термическим сопротивлением R u = м 2
·°С/Вт рассматриваемого чердачного перекрытия с
теми же, что и в примере 1 значениями индексов, установленных в г. Новосибирске
для пересчета базисных цен и расценок в текущий уровень цен II квартала 2000 г., при стоимости минераловатных прошивных
матов - 290 руб./м 3 (без НДС), принятой по
информационно-аналитическому бюллетеню стоимости ресурсов в строительстве (март
2000 г.) отдела ценообразования управления строительства и архитектуры
администрации Новосибирской области. Технико-экономические показатели вариантов
чердачного перекрытия с теплоизоляцией из минераловатных прошивных матов,
соответствующих минимальным (
=
2,299 м 2 ·°С/Вт ) и максимальным (
=4,974 м 2 ·°С/Вт
) требованиям действующих норм теплозащиты (СНиП П-3)
для коттеджа в условиях г. Новосибирска, а также рассчитанное значение сметной
стоимости в текущих ценах единичной теплоизоляции ( С u ), представлены в таблице Е.3.
Таблица Е.3
Технико-экономические показатели вариантов чердачного перекрытия из сборных многопустотных железобетонных плит с теплоизоляционным слоем из минераловатных прошивных матов, соответствующих минимальным и максимальным требованиям действующих норм теплозащиты (СНиП П-3) для коттеджа в условиях г. Новосибирска
|
Вариант по уровню требований к теплозащите по СНиП II -3 |
Толщина теплоизоляционного слоя δ ins (м) |
Общая толщина конструкции δ des (м) |
Приведенное
сопротивление теплопередаче |
Сметная стоимость в текущих ценах II квартала 2000 г. C des (руб./м 2 ) |
Сметная стоимость единичной теплоизоляции стены C u (руб./м 2 ) |
|
min max |
0,13 0,30 |
0,35 0,52 |
2,378 5,034 |
64,35 * 144,75 * |
30,27 |
* Без учета затрат на устройство сборного несущего настила из железобетонных многопустотных плит.
1.4. Подставляя в формулу (Г.1) приложения Г полученные в пп.1.1-1.3 расчетные значения:
t int = 21 °С;
= - 8,7 °С; z h = 231 сут; C h = 34,22 руб./ГДж; K = 10,71 и C u = 30,27 руб./м 2
определяем приближенное значение экономически целесообразного
сопротивления теплопередаче рассматриваемого чердачного перекрытия с
теплоизоляцией из минераловатных прошивных матов в условиях г. Новосибирска -
= 2,628 м 2 ·°С/Вт .
2.
Определяем окончательное значение экономически целесообразного сопротивления
теплопередаче рассматриваемого чердачного перекрытия с теплоизоляцией из
минераловатных прошивных матов (
) в соответствии
с п.4 приложения Г путем сравнения вариантов ее конструктивного решения с
различными теплозащитными качествами по приведенным затратам ( Р )
в соответствии с п.4 приложения Г. Технико-экономические показатели
сравниваемых вариантов такой конструкции представлены в таблице Е4. На основании
анализа представленных в таблице показателей можно сделать вывод, что значение
экономически целесообразного сопротивления теплопередаче чердачного перекрытия
с теплоизоляцией из минераловатных прошивных матов в условиях г. Новосибирска
составляет
= 2,846 м 2 ·°С/Вт, а оптимальная
толщина такого теплоизоляционного слоя - 0,16 м.
Таблица Е.4
Технико-экономические показатели сравниваемых вариантов чердачного перекрытия из сборных многопустотных железобетонных плит с теплоизоляционным слоем из минераловатных прошивных матов коттеджа в условиях г. Новосибирска
|
Толщина теплоизоляционного слоя δ ins , м |
Общая толщина конструкции δ des , м |
Приведенное
сопротивление теплопередаче |
Единовременные затраты в текущих ценах II квартала 2000 г. C des , руб./м 2 |
Эксплуатационные затраты в текущих ценах II квартала 2000 г. |
Приведенные затраты в текущих ценах II квартала 2000 г . P = C des + C e , (руб./м 2 ) |
Примечание |
|
0,14 0,15 0,16 0,17 |
0,36 0,37 0,38 0,39 |
2,534 2,690 2,846 - 3,003 |
68,36 72,38 76,39 80,41 |
85,37 80,41 76,00 72,04 |
153,73 153,79 153,39 152,45 |
P min |
* В качестве эксплуатационных затрат ( С е ) приняты расчетные значения суммарных будущих затрат в прогнозных ценах на компенсацию теплопотерь ( С ht ) через 1 м 2 рассматриваемой конструкции за расчетный срок ее эксплуатации Т=15 лет), приведенные к текущему уровню цен.
Примечание:
Приложения Г, Д, Е приведены как справочные. Поскольку территориальные строительные нормы вводятся впервые, после получения и систематизации практических результатов применения вышеуказанных приложений, предполагается методику экономической оптимизации сопротивления теплопередаче наружных ограждающих конструкций зданий издать отдельным пособием к настоящим нормам.
|
|
|
|